Объявление о квартирах в Шлиссельбурге - Страница 8
- Шлиссельбург »
- Недвижимость
- » Квартиры в Шлиссельбурге
Студия 22,4 м с отделкой под ключ и глубокой лоджией-аэрарией. Находится лот на 9 этаже, откуда открывается завораживающий вид на лес.
"Морская Ривьера" - уникальный комплекс апартаментов бизнес-класса в Курортном районе Санкт-Петербурга, г. Зеленогорск. В Зеленогорск приезжают туристы со всех уголков страны и турпоток стремительно растет, поэтому комплекс имеет исключительную инвестиционную привлекательность. Покупка апартаментов в "Морской Ривьере" - это лучшее решение для сбережения и увеличения вашего дохода, потому что:
- это уникальная локация, по популярности сравнимая разве что с Невским проспектом. При этом, в Курортном районе появляется крайне мало новых проектов, что увеличивает его ценность как при сдаче, так и при последующей перепродаже;
- в отделке комплекса мы использовали только премиальные материалы, которые устойчивы к износу и эстетически привлекательны - это позволит минимизировать эксплуатационные расходы в будущем и позволит привлекать клиентов даже с самым избирательным вкусом;
- на закрытой и охраняемой территории комплекса 1,2 га продумана инфраструктура для спокойного или активного отдыха, которая привлекает людей всех возрастов и вкусов. Есть игровые и спортивные площадки, СПА-зона, тренажерный зал, лаунж зона с PlayStation и т.д. Одна из любимых локаций наших туристов - это открытый подогреваемый бассейн 25 м - он работает круглый год, поэтому поток туристов обеспечен вам даже в межсезонье. По сути, комплекс является самостоятельным курортом, что выгодно выделяет его от остальных конкурентов.
Наша управляющая компания может взять все хлопоты на себя: заселение, уборка, обслуживание, а вам останется просто получать выплаты.
А еще, в стоимость включен 22% НДС, которые вы можете сэкономить при оформлении апартамента на свое юридическое лицо. То есть, сразу на этапе покупки, получить скидку в 22%.
Благодаря этим фактам «Морская Ривьера» и является одним из самых выгодных инвестиционных проектов Санкт-Петербурга.
Записывайтесь на персональную встречу с нашим менеджером, успевайте пока еще открыты продажи.
03.02.2026
13 133 736 ₽
Студия 23,1 м с отделкой под ключ и глубокой лоджией-аэрарией. Находится лот на 9 этаже, откуда открывается завораживающий вид на лес.
"Морская Ривьера" - уникальный комплекс апартаментов бизнес-класса в Курортном районе Санкт-Петербурга, г. Зеленогорск. В Зеленогорск приезжают туристы со всех уголков страны и турпоток стремительно растет, поэтому комплекс имеет исключительную инвестиционную привлекательность. Покупка апартаментов в "Морской Ривьере" - это лучшее решение для сбережения и увеличения вашего дохода, потому что:
- это уникальная локация, по популярности сравнимая разве что с Невским проспектом. При этом, в Курортном районе появляется крайне мало новых проектов, что увеличивает его ценность как при сдаче, так и при последующей перепродаже;
- в отделке комплекса мы использовали только премиальные материалы, которые устойчивы к износу и эстетически привлекательны - это позволит минимизировать эксплуатационные расходы в будущем и позволит привлекать клиентов даже с самым избирательным вкусом;
- на закрытой и охраняемой территории комплекса 1,2 га продумана инфраструктура для спокойного или активного отдыха, которая привлекает людей всех возрастов и вкусов. Есть игровые и спортивные площадки, СПА-зона, тренажерный зал, лаунж зона с PlayStation и т.д. Одна из любимых локаций наших туристов - это открытый подогреваемый бассейн 25 м - он работает круглый год, поэтому поток туристов обеспечен вам даже в межсезонье. По сути, комплекс является самостоятельным курортом, что выгодно выделяет его от остальных конкурентов.
Наша управляющая компания может взять все хлопоты на себя: заселение, уборка, обслуживание, а вам останется просто получать выплаты.
А еще, в стоимость включен 22% НДС, которые вы можете сэкономить при оформлении апартамента на свое юридическое лицо. То есть, сразу на этапе покупки, получить скидку в 22%.
Благодаря этим фактам «Морская Ривьера» и является одним из самых выгодных инвестиционных проектов Санкт-Петербурга.
Записывайтесь на персональную встречу с нашим менеджером, успевайте пока еще открыты продажи.
03.02.2026
13 544 165 ₽
Студия 22,6 м с отделкой под ключ и глубокой лоджией-аэрарией. Находится лот на 8 этаже, откуда открывается завораживающий вид на лес.
"Морская Ривьера" - уникальный комплекс апартаментов бизнес-класса в Курортном районе Санкт-Петербурга, г. Зеленогорск. В Зеленогорск приезжают туристы со всех уголков страны и турпоток стремительно растет, поэтому комплекс имеет исключительную инвестиционную привлекательность. Покупка апартаментов в "Морской Ривьере" - это лучшее решение для сбережения и увеличения вашего дохода, потому что:
- это уникальная локация, по популярности сравнимая разве что с Невским проспектом. При этом, в Курортном районе появляется крайне мало новых проектов, что увеличивает его ценность как при сдаче, так и при последующей перепродаже;
- в отделке комплекса мы использовали только премиальные материалы, которые устойчивы к износу и эстетически привлекательны - это позволит минимизировать эксплуатационные расходы в будущем и позволит привлекать клиентов даже с самым избирательным вкусом;
- на закрытой и охраняемой территории комплекса 1,2 га продумана инфраструктура для спокойного или активного отдыха, которая привлекает людей всех возрастов и вкусов. Есть игровые и спортивные площадки, СПА-зона, тренажерный зал, лаунж зона с PlayStation и т.д. Одна из любимых локаций наших туристов - это открытый подогреваемый бассейн 25 м - он работает круглый год, поэтому поток туристов обеспечен вам даже в межсезонье. По сути, комплекс является самостоятельным курортом, что выгодно выделяет его от остальных конкурентов.
Наша управляющая компания может взять все хлопоты на себя: заселение, уборка, обслуживание, а вам останется просто получать выплаты.
А еще, в стоимость включен 22% НДС, которые вы можете сэкономить при оформлении апартамента на свое юридическое лицо. То есть, сразу на этапе покупки, получить скидку в 22%.
Благодаря этим фактам «Морская Ривьера» и является одним из самых выгодных инвестиционных проектов Санкт-Петербурга.
Записывайтесь на персональную встречу с нашим менеджером, успевайте пока еще открыты продажи.
03.02.2026
12 865 050 ₽
Продаются просторные 2-комнатные апартаменты у самого берега Финского залива площадью 79,9 м2. Идеально для семейного проживания и отдыха. Из комнаты и кухни есть выход на глубокую лоджию-аэрарий - там можно легко уместить 2 шезлонга и кофейный столик и наслаждаться видами на лес. Высокие потолки до 3 метров, гардеробная, остекление в пол. Черновая отделка позволит вам реализовать собственный дизайн.
Для семей с детьми мы предусмотрели все необходимое! Дом расположен в 50 метрах от Финского залива. Пляж широкий и песчаный, с собственным выходом. Окружают комплекс вековые хвойные деревья, воздух невероятно чистый и полезный, так как в Курортном районе нет предприятий. Такой воздух благоприятно влияет на сон, здоровье, самочувствие, а также на развитие детей.
Территория комплекса огромная и зеленая - 1,2 га. Ни одного члена семьи не оставит равнодушным большой открытый бассейн 25м с подогревом, он работает круглый год, можно просто поплавать и отдохнуть, а можно заняться спортом или даже устроить семейные соревнования.
А еще мы сделали:
- детские игровые площадки (для детей разных возрастов) , как на улице, так и в самом комплексе. Есть развивающие интерактивы, настольные игры, PlayStation. Пока дети играют, вы можете провести деловой созвон в лаунж-зоне или просто отдохнуть;
- тренажерный зал, теннисный корт, СПА-зону и многое другое. Здесь будет интересно абсолютно всем в любое время года!
И, конечно, мы тщательно продумали безопасность, чтобы вы могли спокойно жить и отдыхать. Территория комплекса закрыта от посторонних и охраняется круглосуточно. По всему периметру есть камеры видеонаблюдения, а попасть в помещения можно только по пропускам, так что вы сможете спокойно отпустить своего ребенка погулять одного, не тревожась за его безопасность.
Вы сможете жить у моря и при этом довольствоваться всей городской инфраструктурой - рядом есть школы, дет сады, поликлиника, рестораны, супермаркеты, лыжная база и тд. А до центра Санкт-Петербурга всего 40 минут езды.
А еще, в стоимость включен 22% НДС, которые вы можете сэкономить при оформлении апартамента на свое юридическое лицо. То есть, сразу на этапе покупки, получить скидку в 22%.
«Морская Ривьера» - это идеальный вариант для жизни и отдыха вашей семьи!
Записывайтесь на персональную экскурсию пока еще открыты продажи!
03.02.2026
34 958 857 ₽
Студия 24,7 м с глубокой лоджией-аэрарией. Находится лот на 10 этаже, откуда открывается завораживающий вид на лес и залив. Апартамент полностью укомплектован и готов к заселению: качественная мебель, встроенная техника, все от кровати до стиральной машины, матрас, подушки, одеяло. Продуманы даже такие детали для комфорта, как освещение, элементы декора и колонка Алиса. Можно заезжать сразу или запускать в аренду без дополнительных вложений.
"Морская Ривьера" - уникальный комплекс апартаментов бизнес-класса в Курортном районе Санкт-Петербурга, г. Зеленогорск. В Зеленогорск приезжают туристы со всех уголков страны и турпоток стремительно растет, поэтому комплекс имеет исключительную инвестиционную привлекательность. Покупка апартаментов в "Морской Ривьере" - это лучшее решение для сбережения и увеличения вашего дохода, потому что:
- это уникальная локация, по популярности сравнимая разве что с Невским проспектом. При этом, в Курортном районе появляется крайне мало новых проектов, что увеличивает его ценность как при сдаче, так и при последующей перепродаже;
- в отделке комплекса мы использовали только премиальные материалы, которые устойчивы к износу и эстетически привлекательны - это позволит минимизировать эксплуатационные расходы в будущем и позволит привлекать клиентов даже с самым избирательным вкусом;
- на закрытой и охраняемой территории комплекса 1,2 га продумана инфраструктура для спокойного или активного отдыха, которая привлекает людей всех возрастов и вкусов. Есть игровые и спортивные площадки, СПА-зона, тренажерный зал, лаунж зона с PlayStation и т.д. Одна из любимых локаций наших туристов - это открытый подогреваемый бассейн 25 м - он работает круглый год, поэтому поток туристов обеспечен вам даже в межсезонье. По сути, комплекс является самостоятельным курортом, что выгодно выделяет его от остальных конкурентов.
Наша управляющая компания может взять все хлопоты на себя: заселение, уборка, обслуживание, а вам останется просто получать выплаты.
А еще, в стоимость включен 22% НДС, которые вы можете сэкономить при оформлении апартамента на свое юридическое лицо. То есть, сразу на этапе покупки, получить скидку в 22%.
Благодаря этим фактам «Морская Ривьера» и является одним из самых выгодных инвестиционных проектов Санкт-Петербурга.
Записывайтесь на персональную встречу с нашим менеджером, успевайте пока еще открыты продажи.
12.03.2026
17 720 149 ₽
Продаются просторные 2-комнатные апартаменты у самого берега Финского залива площадью 126,2 м2. Идеально для семейного проживания и отдыха. В апартаментах 2 глубокие лоджии-аэрарии - на каждой легко уместить по 2 шезлонга и кофейный столик и наслаждаться видами на лес. Высокие потолки до 3 метров, 2 санузла, остекление в пол, отделка white-box.
Для семей с детьми мы предусмотрели все необходимое! Дом расположен в 50 метрах от Финского залива. Пляж широкий и песчаный, с собственным выходом. Окружают комплекс вековые хвойные деревья, воздух невероятно чистый и полезный, так как в Курортном районе нет предприятий. Такой воздух благоприятно влияет на сон, здоровье, самочувствие, а также на развитие детей.
Территория комплекса огромная и зеленая - 1,2 га. Ни одного члена семьи не оставит равнодушным большой открытый бассейн 25м с подогревом, он работает круглый год, можно просто поплавать и отдохнуть, а можно заняться спортом или даже устроить семейные соревнования.
А еще мы сделали:
- детские игровые площадки (для детей разных возрастов) , как на улице, так и в самом комплексе. Есть развивающие интерактивы, настольные игры, PlayStation. Пока дети играют, вы можете провести деловой созвон в лаунж-зоне или просто отдохнуть;
- тренажерный зал, теннисный корт, СПА-зону и многое другое. Здесь будет интересно абсолютно всем в любое время года!
И, конечно, мы тщательно продумали безопасность, чтобы вы могли спокойно жить и отдыхать. Территория комплекса закрыта от посторонних и охраняется круглосуточно. По всему периметру есть камеры видеонаблюдения, а попасть в помещения можно только по пропускам, так что вы сможете спокойно отпустить своего ребенка погулять одного, не тревожась за его безопасность.
Вы сможете жить у моря и при этом довольствоваться всей городской инфраструктурой - рядом есть школы, дет сады, поликлиника, рестораны, супермаркеты, лыжная база и тд. А до центра Санкт-Петербурга всего 40 минут езды.
А еще, в стоимость включен 22% НДС, которые вы можете сэкономить при оформлении апартамента на свое юридическое лицо. То есть, сразу на этапе покупки, получить скидку в 22%.
«Морская Ривьера» - это идеальный вариант для жизни и отдыха вашей семьи!
Записывайтесь на персональную экскурсию пока еще открыты продажи!
03.02.2026
73 290 650 ₽
Продаются просторные 2-комнатные апартаменты у самого берега Финского залива площадью 126,5 м2. Идеально для семейного проживания и отдыха. Из каждой комнаты есть выход на глубокую лоджию-аэрарий - там можно легко уместить 2 шезлонга и кофейный столик и наслаждаться видами на лес. Высокие потолки до 3 метров, гардеробная, отделка white-box.
Для семей с детьми мы предусмотрели все необходимое! Дом расположен в 50 метрах от Финского залива. Пляж широкий и песчаный, с собственным выходом. Окружают комплекс вековые хвойные деревья, воздух невероятно чистый и полезный, так как в Курортном районе нет предприятий. Такой воздух благоприятно влияет на сон, здоровье, самочувствие, а также на развитие детей.
Территория комплекса огромная и зеленая - 1,2 га. Ни одного члена семьи не оставит равнодушным большой открытый бассейн 25м с подогревом, он работает круглый год, можно просто поплавать и отдохнуть, а можно заняться спортом или даже устроить семейные соревнования.
А еще мы сделали:
- детские игровые площадки (для детей разных возрастов) , как на улице, так и в самом комплексе. Есть развивающие интерактивы, настольные игры, PlayStation. Пока дети играют, вы можете провести деловой созвон в лаунж-зоне или просто отдохнуть;
- тренажерный зал, теннисный корт, СПА-зону и многое другое. Здесь будет интересно абсолютно всем в любое время года!
И, конечно, мы тщательно продумали безопасность, чтобы вы могли спокойно жить и отдыхать. Территория комплекса закрыта от посторонних и охраняется круглосуточно. По всему периметру есть камеры видеонаблюдения, а попасть в помещения можно только по пропускам, так что вы сможете спокойно отпустить своего ребенка погулять одного, не тревожась за его безопасность.
Вы сможете жить у моря и при этом довольствоваться всей городской инфраструктурой - рядом есть школы, дет сады, поликлиника, рестораны, супермаркеты, лыжная база и тд. А до центра Санкт-Петербурга всего 40 минут езды.
А еще, в стоимость включен 22% НДС, которые вы можете сэкономить при оформлении апартамента на свое юридическое лицо. То есть, сразу на этапе покупки, получить скидку в 22%.
«Морская Ривьера» - это идеальный вариант для жизни и отдыха вашей семьи!
Записывайтесь на персональную экскурсию пока еще открыты продажи!
03.02.2026
72 737 500 ₽
Продаются уютные 1-комнатные апартаменты у самого берега Финского залива. Идеально для жизни и отдыха. Площадь 46,3 м, высокие потолки до 3м, остекление в пол и глубокая лоджия-аэрарий: можно разместить два шезлонга, кофейный столик и наслаждаться свежим воздухом на собственной террасе. В апартаментах редкий для нашего времени уровень звукоизоляции, это вам позволит наслаждаться тишиной и приватностью. Отделка white-box. А также из крана течет чистейшая питьевая вода.
"Морская Ривьера" - уникальный комплекс в Курортном районе Санкт-Петербурга, г. Зеленогорск. Это респектабельный район с потрясающей экологией, ни одного производства по близости. Воздух здесь по-настоящему оздоравливает - он насыщен морем и соснами - создает атмосферу отдыха и восстановления. Прогулки вдоль залива в лучах заходящего солнца станут вашим личным ритуалом перезагрузки.
В вашем распоряжении территория 1,2 га, где вы можете расслабиться или активно провести время:
- подогреваемый открытый бассейн 25 м - работает круглый год, хотите - плавайте по дорожкам, тренируясь в своем темпе, хотите - просто отдыхайте в теплой воде, наслаждаясь видом на сосны и свежим воздухом;
- теннисный корт, тренажерный зал, СПА-зона, лаунж-зона с PlayStation и и полный набор инфраструктуры для активного или спокойного отдыха и летом и зимой.
Стоит отметить, что управляющая компания постоянно улучшает территорию для жителей: высаживает новые растения и делает все, чтобы вы наслаждались эстетичностью территории. К вашим услугам также охрана, горничные, садовники, хаус-мастер и приветливый консьерж.
Попадать в свои апартаменты вы будете через элегантные гранд-лобби и холлы. Интерьеры и отделочные материалы мы тщательно подбирали, чтобы объединить пространство окружающей природы и пространство дома. Каждая деталь - от пола до потолка, от светильников до дверных ручек - призвана подчеркивать статус вашего дома.
А еще, в стоимость включен 22% НДС, которые вы можете сэкономить при оформлении апартамента на свое юридическое лицо. То есть, сразу на этапе покупки, получить скидку в 22%.
"Морская Ривьера" - это собственная инфраструктура для первоклассного отдыха и комфортного проживания с захватывающими видами на Финский залив и вековой лес. Здесь вы найдете идеальный баланс между динамикой городской жизни, привычным уровнем сервиса бизнес-класса и спокойствием загородной резиденции.
Приглашаем вас на персональную экскурсию, чтобы в полной мере прочувствовать эту неповторимую атмосферу. Успевайте пока еще открыты продажи!
03.02.2026
27 154 950 ₽
Продаются просторные 2-комнатные апартаменты у самого берега Финского залива площадью 79,9 м2. Идеально для семейного проживания и отдыха. Из комнаты и кухни есть выход на глубокую лоджию-аэрарий - там можно легко уместить 2 шезлонга и кофейный столик и наслаждаться видами на лес. Высокие потолки до 3 метров, гардеробная, остекление в пол. Черновая отделка позволит вам реализовать собственный дизайн.
Для семей с детьми мы предусмотрели все необходимое! Дом расположен в 50 метрах от Финского залива. Пляж широкий и песчаный, с собственным выходом. Окружают комплекс вековые хвойные деревья, воздух невероятно чистый и полезный, так как в Курортном районе нет предприятий. Такой воздух благоприятно влияет на сон, здоровье, самочувствие, а также на развитие детей.
Территория комплекса огромная и зеленая - 1,2 га. Ни одного члена семьи не оставит равнодушным большой открытый бассейн 25м с подогревом, он работает круглый год, можно просто поплавать и отдохнуть, а можно заняться спортом или даже устроить семейные соревнования.
А еще мы сделали:
- детские игровые площадки (для детей разных возрастов) , как на улице, так и в самом комплексе. Есть развивающие интерактивы, настольные игры, PlayStation. Пока дети играют, вы можете провести деловой созвон в лаунж-зоне или просто отдохнуть;
- тренажерный зал, теннисный корт, СПА-зону и многое другое. Здесь будет интересно абсолютно всем в любое время года!
И, конечно, мы тщательно продумали безопасность, чтобы вы могли спокойно жить и отдыхать. Территория комплекса закрыта от посторонних и охраняется круглосуточно. По всему периметру есть камеры видеонаблюдения, а попасть в помещения можно только по пропускам, так что вы сможете спокойно отпустить своего ребенка погулять одного, не тревожась за его безопасность.
Вы сможете жить у моря и при этом довольствоваться всей городской инфраструктурой - рядом есть школы, дет сады, поликлиника, рестораны, супермаркеты, лыжная база и тд. А до центра Санкт-Петербурга всего 40 минут езды.
А еще, в стоимость включен 22% НДС, которые вы можете сэкономить при оформлении апартамента на свое юридическое лицо. То есть, сразу на этапе покупки, получить скидку в 22%.
«Морская Ривьера» - это идеальный вариант для жизни и отдыха вашей семьи!
Записывайтесь на персональную экскурсию пока еще открыты продажи!
03.02.2026
45 575 557 ₽
Продаются просторные 1-комнатные апартаменты у самого берега Финского залива. Идеально для жизни и отдыха. Площадь 136,2 м, кухня 39,4 м высокие потолки до 3м, остекление в пол и 2 глубокие лоджии-аэрарии: на каждой можно разместить по два шезлонга, кофейный столик и наслаждаться свежим воздухом на собственной террасе. В апартаментах редкий для нашего времени уровень звукоизоляции, это вам позволит наслаждаться тишиной и приватностью, а из крана течет чистейшая питьевая вода. Черновая отделка позволит вам реализовать собственный дизайн.
"Морская Ривьера" - уникальный комплекс в Курортном районе Санкт-Петербурга, г. Зеленогорск. Это респектабельный район с потрясающей экологией, ни одного производства по близости. Воздух здесь по-настоящему оздоравливает - он насыщен морем и соснами - создает атмосферу отдыха и восстановления. Прогулки вдоль залива в лучах заходящего солнца станут вашим личным ритуалом перезагрузки.
В вашем распоряжении территория 1,2 га, где вы можете расслабиться или активно провести время:
- подогреваемый открытый бассейн 25 м - работает круглый год, хотите - плавайте по дорожкам, тренируясь в своем темпе, хотите - просто отдыхайте в теплой воде, наслаждаясь видом на сосны и свежим воздухом;
- теннисный корт, тренажерный зал, СПА-зона, лаунж-зона с PlayStation и и полный набор инфраструктуры для активного или спокойного отдыха и летом и зимой.
Стоит отметить, что управляющая компания постоянно улучшает территорию для жителей: высаживает новые растения и делает все, чтобы вы наслаждались эстетичностью территории. К вашим услугам также охрана, горничные, садовники, хаус-мастер и приветливый консьерж.
Попадать в свои апартаменты вы будете через элегантные гранд-лобби и холлы. Интерьеры и отделочные материалы мы тщательно подбирали, чтобы объединить пространство окружающей природы и пространство дома. Каждая деталь - от пола до потолка, от светильников до дверных ручек - призвана подчеркивать статус вашего дома.
А еще, в стоимость включен 22% НДС, которые вы можете сэкономить при оформлении апартамента на свое юридическое лицо. То есть, сразу на этапе покупки, получить скидку в 22%.
"Морская Ривьера" - это собственная инфраструктура для первоклассного отдыха и комфортного проживания с захватывающими видами на Финский залив и вековой лес. Здесь вы найдете идеальный баланс между динамикой городской жизни, привычным уровнем сервиса бизнес-класса и спокойствием загородной резиденции.
Приглашаем вас на персональную экскурсию, чтобы в полной мере прочувствовать эту неповторимую атмосферу. Успевайте пока еще открыты продажи!
03.02.2026
79 889 200 ₽
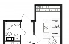
Продается 1-комн. квартира, площадью 39.49 м2 в малоэтажной. Возможен вариант покупки с использованием ипотечных средств, возможна покупка с использованием материнского капитала, есть военная ипотека.
Жилая площадь 18.7 м2, кухня 12.19 м2, комнаты изолированные.
Квартира располагается на 1 этаже 4-этажного дома в ЖК Верево Сити.
Застройщик - Строй Бизнес Групп специализированный застройщик, сдача дома - II квартал 2025 года, закрытая территория.
Парковка автомобилей - наземная, парковка охраняется. Обеспечение безопасности: видеонаблюдение. Инфраструктура: школа, детский сад, поликлиника, детские площадки, спортивные площадки, места для отдыха, супермаркет.
Для бронирования конкретной квартиры звоните по номеру телефона в объявлении.
ЖК Верево Сити - это современный городской жилой квартал малоэтажной застройки.
В 10-ти четырехэтажных корпусах сможет поселиться 1171 семья. Дома располагаются блоками, образуя уютные закрытые и безопасные дворы с большим количеством зеленых насаждений и с зонами отдыха для взрослых и детей.
В ЖК Верево Сити самое низкое ценовое предложение в Ленинградской области и пригородах Санкт-Петербурга, что позволит вам приобрести жилье большей площади, нежели в других жилых комплексах.
Отделка - черновая.
Комфортная среда для жизни:
- малоэтажные красивые здания современной архитектуры, с большой площадью остекления
- обособленная территория
- продуманные планировки, как привычные одно- и двухкомнатные квартиры, так и европланировки
- небольшая плотность населения: комплекс располагается на 6,5 га земли
- полная внутренняя инфраструктура, которая позволит жить с комфортом
Позвоните и узнайте условия покупки прямо сейчас!
Аккредитованные банки: ПАО Сбербанк
Позвоните и узнайте условия покупки прямо сейчас!
05.03.2026
4 703 140 ₽
Продается 1-комн. квартира, площадью 39.32 м2 в малоэтажной. Возможен вариант покупки с использованием ипотечных средств, возможна покупка с использованием материнского капитала, есть военная ипотека.
Жилая площадь 21.68 м2, кухня 10.7 м2, комнаты изолированные.
Квартира располагается на 4 этаже 4-этажного дома в ЖК Верево Сити.
Застройщик - Строй Бизнес Групп специализированный застройщик, сдача дома - II квартал 2025 года, закрытая территория.
Парковка автомобилей - наземная, парковка охраняется. Обеспечение безопасности: видеонаблюдение. Инфраструктура: школа, детский сад, поликлиника, детские площадки, спортивные площадки, места для отдыха, супермаркет.
Для бронирования конкретной квартиры звоните по номеру телефона в объявлении.
ЖК Верево Сити - это современный городской жилой квартал малоэтажной застройки.
В 10-ти четырехэтажных корпусах сможет поселиться 1171 семья. Дома располагаются блоками, образуя уютные закрытые и безопасные дворы с большим количеством зеленых насаждений и с зонами отдыха для взрослых и детей.
В ЖК Верево Сити самое низкое ценовое предложение в Ленинградской области и пригородах Санкт-Петербурга, что позволит вам приобрести жилье большей площади, нежели в других жилых комплексах.
Отделка - черновая.
Комфортная среда для жизни:
- малоэтажные красивые здания современной архитектуры, с большой площадью остекления
- обособленная территория
- продуманные планировки, как привычные одно- и двухкомнатные квартиры, так и европланировки
- небольшая плотность населения: комплекс располагается на 6,5 га земли
- полная внутренняя инфраструктура, которая позволит жить с комфортом
Позвоните и узнайте условия покупки прямо сейчас!
Аккредитованные банки: ПАО Сбербанк
Позвоните и узнайте условия покупки прямо сейчас!
05.03.2026
4 682 894 ₽
Продается 1-комн. квартира, площадью 39.32 м2 в малоэтажной. Возможен вариант покупки с использованием ипотечных средств, возможна покупка с использованием материнского капитала, есть военная ипотека.
Жилая площадь 21.68 м2, кухня 10.7 м2, комнаты изолированные.
Квартира располагается на 3 этаже 4-этажного дома в ЖК Верево Сити.
Застройщик - Строй Бизнес Групп специализированный застройщик, сдача дома - II квартал 2025 года, закрытая территория.
Парковка автомобилей - наземная, парковка охраняется. Обеспечение безопасности: видеонаблюдение. Инфраструктура: школа, детский сад, поликлиника, детские площадки, спортивные площадки, места для отдыха, супермаркет.
Для бронирования конкретной квартиры звоните по номеру телефона в объявлении.
ЖК Верево Сити - это современный городской жилой квартал малоэтажной застройки.
В 10-ти четырехэтажных корпусах сможет поселиться 1171 семья. Дома располагаются блоками, образуя уютные закрытые и безопасные дворы с большим количеством зеленых насаждений и с зонами отдыха для взрослых и детей.
В ЖК Верево Сити самое низкое ценовое предложение в Ленинградской области и пригородах Санкт-Петербурга, что позволит вам приобрести жилье большей площади, нежели в других жилых комплексах.
Отделка - черновая.
Комфортная среда для жизни:
- малоэтажные красивые здания современной архитектуры, с большой площадью остекления
- обособленная территория
- продуманные планировки, как привычные одно- и двухкомнатные квартиры, так и европланировки
- небольшая плотность населения: комплекс располагается на 6,5 га земли
- полная внутренняя инфраструктура, которая позволит жить с комфортом
Позвоните и узнайте условия покупки прямо сейчас!
Аккредитованные банки: ПАО Сбербанк
Позвоните и узнайте условия покупки прямо сейчас!
05.03.2026
4 682 894 ₽
Продается 1-комн. квартира, площадью 38.65 м2 в малоэтажной. Возможен вариант покупки с использованием ипотечных средств, возможна покупка с использованием материнского капитала, есть военная ипотека.
Жилая площадь 18.71 м2, кухня 12.9 м2, комнаты изолированные.
Квартира располагается на 1 этаже 4-этажного дома в ЖК Верево Сити.
Застройщик - Строй Бизнес Групп специализированный застройщик, сдача дома - II квартал 2025 года, закрытая территория.
Парковка автомобилей - наземная, парковка охраняется. Обеспечение безопасности: видеонаблюдение. Инфраструктура: школа, детский сад, поликлиника, детские площадки, спортивные площадки, места для отдыха, супермаркет.
Для бронирования конкретной квартиры звоните по номеру телефона в объявлении.
ЖК Верево Сити - это современный городской жилой квартал малоэтажной застройки.
В 10-ти четырехэтажных корпусах сможет поселиться 1171 семья. Дома располагаются блоками, образуя уютные закрытые и безопасные дворы с большим количеством зеленых насаждений и с зонами отдыха для взрослых и детей.
В ЖК Верево Сити самое низкое ценовое предложение в Ленинградской области и пригородах Санкт-Петербурга, что позволит вам приобрести жилье большей площади, нежели в других жилых комплексах.
Отделка - черновая.
Комфортная среда для жизни:
- малоэтажные красивые здания современной архитектуры, с большой площадью остекления
- обособленная территория
- продуманные планировки, как привычные одно- и двухкомнатные квартиры, так и европланировки
- небольшая плотность населения: комплекс располагается на 6,5 га земли
- полная внутренняя инфраструктура, которая позволит жить с комфортом
Позвоните и узнайте условия покупки прямо сейчас!
Аккредитованные банки: ПАО Сбербанк
Позвоните и узнайте условия покупки прямо сейчас!
05.03.2026
4 603 099 ₽
Продаются просторные 2-комнатные апартаменты у самого берега Финского залива площадью 75,5 м2. Идеально для семейного проживания и отдыха. Из каждой комнаты есть выход на глубокую лоджию-аэрарий - там можно легко уместить 2 шезлонга и кофейный столик и наслаждаться видами на лес. Высокие потолки до 3 метров, гардеробная, отделка white-box.
Для семей с детьми мы предусмотрели все необходимое! Дом расположен в 50 метрах от Финского залива. Пляж широкий и песчаный, с собственным выходом. Окружают комплекс вековые хвойные деревья, воздух невероятно чистый и полезный, так как в Курортном районе нет предприятий. Такой воздух благоприятно влияет на сон, здоровье, самочувствие, а также на развитие детей.
Территория комплекса огромная и зеленая - 1,2 га. Ни одного члена семьи не оставит равнодушным большой открытый бассейн 25м с подогревом, он работает круглый год, можно просто поплавать и отдохнуть, а можно заняться спортом или даже устроить семейные соревнования.
А еще мы сделали:
- детские игровые площадки (для детей разных возрастов) , как на улице, так и в самом комплексе. Есть развивающие интерактивы, настольные игры, PlayStation. Пока дети играют, вы можете провести деловой созвон в лаунж-зоне или просто отдохнуть;
- тренажерный зал, теннисный корт, СПА-зону и многое другое. Здесь будет интересно абсолютно всем в любое время года!
И, конечно, мы тщательно продумали безопасность, чтобы вы могли спокойно жить и отдыхать. Территория комплекса закрыта от посторонних и охраняется круглосуточно. По всему периметру есть камеры видеонаблюдения, а попасть в помещения можно только по пропускам, так что вы сможете спокойно отпустить своего ребенка погулять одного, не тревожась за его безопасность.
Вы сможете жить у моря и при этом довольствоваться всей городской инфраструктурой - рядом есть школы, дет сады, поликлиника, рестораны, супермаркеты, лыжная база и тд. А до центра Санкт-Петербурга всего 40 минут езды.
А еще, в стоимость включен 22% НДС, которые вы можете сэкономить при оформлении апартамента на свое юридическое лицо. То есть, сразу на этапе покупки, получить скидку в 22%.
«Морская Ривьера» - это идеальный вариант для жизни и отдыха вашей семьи!
Записывайтесь на персональную экскурсию пока еще открыты продажи!
03.02.2026
42 975 500 ₽
Сдаю посуточно 1к.кв-ры (на 2-4 чел) и 2к.кв-ры (на 4-6-7чел) в самом центре Петербурга от собственника
31.01.2026
Сниму одно или двухкомнатную квартиру для своих клиентов (большая клиентская база). Проверю документы, подпишу договор Аренды для безопасности наймодателя. Взаиморасчеты происходят сразу, в вашей квартире, которую вы сдаете.
АН "Атланта" - 25 лет безупречной работы на рынке недвижимости, - гарантирует правовую и юридическую поддержку в решении споров между наймодателем и нанимателем на весь период срока договора.
Пишите, звоните, будем рады помочь. Офис в шаговой доступности от станции метро Рыбацкое.
14.01.2026
25 000 ₽
Неактивные объявления
Тип объявления Продам
Вид объекта Вторичка
Количество комнат 1
Тип дома Монолитный
Площадь 38
Этаж 2
Этажей в доме 25
Продается одно-комнатная квартира с качественной ОТДЕЛКОЙ И ГАРДЕРОБНОЙ в доме комфорт-класса, 2020 года постройки, в Красногвардейском районе Санкт-Петербурга. Квартира без обременений. Городская прописка. Застекленная лоджия. Комната -15.05 кв.м., кухня -11.91 кв.м., прихожая – 3.10 кв.м., совмещенный сан/узел – 4.12 кв.м., высота потолков 2.65 м. Плита – электрическая. Вход со двора. Лифты: 2 грузовых и 2 пассажирских. Дом оснащен системой наблюдения, домофонами и автоматической пожарной сигнализацией. Благодаря бесшовному утеплению тепло-потери дома ниже на 30% по сравнению с традиционными зданиями, зимой в нем тепло, а летом прохладно. Один совершеннолетний собственник (Собственность 2021 года). В районе развита инфраструктура, работают государственные и частные детские сады, поликлиника, три стоматологии и ветеринарная клиника. Наземная многоуровневая парковка. Метро Гражданский проспект и Академическая - 10 мин. транспортом. ТРЦ «МЕГА Парнас», «Ашан» , «OBI» и «IKEA» в 15 минутах транспортом по КАД. ЖК «Цветной город» находится на пересечении Муринской дороги и Пискаревского проспекта. КАД - 3 мин. транспортом. Токсовский лесопарк и Кавголовские озера 20 мин. на машине. Просмотр по договоренности.
29.08.2024
5 700 000 ₽
В архиве
Предлагается к продаже уютная,теплая однокомнатна квартира,находится на комфортном 8 этаже 15-ти этажного кирпично-монолитного дома,2003 года постройки.В подарок покупателю остается встроенная кухня.Квартира с хорошей планировкой,просторная комната и кухня,остекленная лоджия 6,3 кв.м. с выходомиз кухни и комнаты.Установлен кондиционер.Квартира без обременений,1 взрослый собственник. Хорошее ТСЖ,по периметру дома и парадныхустановлено видеонаблюдение.Консьерж,чистая парадная (убирается ежедневно),пассажирский и грузовой лифты.
На этаже закрытый коридор на 6 квартир.Спокойные,доброжелательные соседи.Во дворе дома детский сад.школа с углубленным изучением китайского языка,детская площадка,тренажеры для взрослых и детей,футбольное поле.Рядом набережная реки Невы,с прогулочными зонами,храм Рождества Пресвятой Богородицы.Район с развитой инфраструктурой,фитнес центры,торговые комплексы,кинотеатр,бассейны,поликлиники,почта,отделения банков.Непосредственно у дома остановки общественного транспорта,до метро Рыбацкое и ж/д Рыбацкое 9 минут пешком.Удобный выезд на КАД.
25.05.2022
7 400 000 ₽
В архиве
Предлагается к продаже просторная, двусторонняя, четырех комнатная квартира в историческом центре Санкт-Петербурга, до метро "Петроградская" 4 минуты пешком. Доходный дом Р.А.Дидерихса, год постройки 1912-1914,стиль:модерн,представляет историческую и архитектурную ценность. Внутри и снаружи сохранены оригинальные художественные элементы, такие как: витражи в парадных, пилястры в ионическом стиле и барельефы на фасаде. Квартира общей площадью 106,6 кв.м., высота потолков 3,48,толщина стены 2,5-3,5,находится на первом этаже, идеально подходит под коммерцию. В данный момент используется под офис. Чистая парадная, широкие лестницы, домофон, видеонаблюдение. Район с развитой инфраструктурой. Есть разрешение на перевод в нежилой фонд.
25.05.2022
17 500 000 ₽
В архиве
тел:89110055741,продам за 7 950 000 руб.Евро ремонт сделан из качественных,дорогих материалов+мебель и бытовая техника,
видовая квартира-вид из окна на Неву,квартира продается с мебелью и бытовой техникой,прямая продажа,документы готовы.
застекленная лоджия,полы с подогревом,стекло пакеты,кафель,плитка,ТВ-плазма,2 дивана,
новый,теплый,кирпичный дом 2008 года постройки,общая площадь квартиры 40.5 кв.метров,по выписке ЕГРН,+застекленная лоджия 3 кв.метра,итого 43.5кв.метра с учетом лоджии,пандус,3 лифта,консъерж-сервис,видео наблюдение,2 входа,
во дворе школа и 2 детских садика с бассейном,футбольное поле,ст.метро и ЖД Рыбацкое-15 минут пешком,метро Пролетарская и Обухово-10минут транспортом,
рядом КАД,Нева,парк,пляж,3 бассейна,фитнес центр,магазины,Супермаркеты,ТК Парад,Лента,5-ка,Магнит,Эврика,почта,церковь,Сбербанк,кинотеатр,лодочная станция видна из окна,кафе,рестораны,
экологически чистый район-Рыбацкое:напротив дома Нева,река Славянка в 10 минутах пешком,
1 совершеннолетний собственник,квартира без обременений,более 5 лет собственности-показываем полную стоимость Объекта,подходят покупатели с ипотекой-одобренные в любом банке,
прямая продажа,документы готовы.
26.05.2022
7 980 000 ₽
В архиве
Новый,кирпичный дом 2021 года постройки,ЖК"Вариант",собственность, прописка Санкт-Петербурга,без отделки-отделка на видение и вкус покупателя,где Вы можете себя проявить с большой фантазией в роли дизайнера,балкон,стекло пакеты,2-х сторонняя квартира-в комнате 2 окна,1 совершеннолетний собственник-никто не прописан-без обременений,есть пандус,грузопассажирский лифт,свежий воздух,красивые закаты и рассветы,2 станции метро:Шушары(15-20 минут транспортом) и метро Купчино(20-25 минут транспортом),установлены счетчики на воду и свет,рядом город Пушкин с его красотой,парками,дворцами и музеями,рядом новый детский сад № 11 ,с отличными отзывами,новая школа с бассейном,магазины,Супермаркеты,3 аптеки,Сбербанк,почта,развлекательные центры,прекрасный метраж квартиры:42,40кв.м-общая площадь,21.2кв.м-комната,10.8кв.м-кухня,совмещенный сан узел-3кв.м,7.4кв.м-прихожая,встречная покупка подбирается,подходят покупатели с ипотекой,одобренные в любом банке.
30.05.2022
3 950 000 ₽
В архиве
Центр Санкт-Петербурга:метро"пл.Ленина"8-10 минут пешком,новый лифт,красивый фасад,здание- памятник,объект культурного наследия
Доходный дом "Российского общества страхования капиталов и доходов "Жизнь",в стиле модерн,неоклассицизм,архитектор Кригер Р.И.
Дом представляет собой историческую,научную,художественную и культурную ценность объектов Санкт-Петербурга
Чистая парадная,2 входа парадный с улицы и со двора,2-х сторонняя квартира-окна во двор(кухня)+на улицу(комнаты),высокие потолки 3.31м2,напротив дома церковь храм святого Николая Чудотворца(виден из окон)
Рядом д/садик,школа,много магазинов,супермаркетов,развлекательных центров,бассейн,фитнес центр,Военно-медицинская академия,Финляндский вокзал,памятник Ленину,Нева,квартира подготовлена для ремонта и требует косметического ремонта,уместен торг для косметического ремонта.
25.07.2022
14 500 000 ₽
В архиве
Срочно продам. 1 комнатная квартира СПб в Колтушах!
Квартира 35,5 кв.м. 3 899 т.р. от собственника!
От застройщика такая квартира сейчас стоит 4 600 т.р.
Сдача II кв 2023 ЖК «ВЕРХНИЙ» в Колтушах.
02.08.2022
3 899 000 ₽
В архиве
Срочно продам 2 комнатная квартира СПб в Колтушах!
Квартира 69,4 кв.м. 6 910 т.р. от собственника!
От застройщика такая квартира сейчас стоит 7 629 т.р.
Большая гостиная и изолированные комнаты!
Сдача II кв 2023 ЖК «ВЕРХНИЙ» в Колтушах.
02.08.2022
6 910 000 ₽
В архиве
Срочно продам. 3 комнатная квартира СПб в Колтушах!
Квартира 90,0 кв.м. 8 504 т.р. от собственника!
От застройщика такая квартира сейчас стоит 9 000 т.р.
Большая гостиная, раздельный санузел и изолированные комнаты!
Сдача II кв 2023 ЖК «ВЕРХНИЙ» в Колтушах.
02.08.2022
8 504 000 ₽
В архиве
В продаже 4х -комнатная коммунальная квартира 91.3 кв м с изолированными комнатами с жилой площадью 13.7+18.2+18.5+12.2 (в сумме 62.6 кв м) кв м, Дом-сталинка 1954 г. п., 4/4 эт дома без лифта, 3 м потолок, кирпичный дом, хорошая шумоизоляция, двухсторонняя светлая и теплая квартира (стеклопакеты на окнах), БЕЗ перепланировок, несущая балка только по потолку, в коридоре есть украшение в виде архитектурного элемента, в комнатах на потолке сохранена лепнина и плафоны, в трех комнатах паркет в хорошем состоянии, тихий уютный двор с детской площадкой, малонаселенный подъезд, больше нет коммунальных квартир, все квартиры расселены, от метро Черная речка 7 мин пешком , хороший инвестиционный проект, 5 взрослых собственников, полная цена в договоре, собственность более 5 лет, подходит для покупки под ипотеку и субсидии, 1 встречная покупка, показы по требованию, возможен торг
05.08.2022
17 400 000 ₽
В архиве
В ПРЯМОЙ продаже 1-комнатная квартира с видовыми характеристиками (вид на Шкиперский проток и яхт-клуб) и дизайнерским ремонтом на Васильевском острове, большая застекленная лоджия (5,6 кв м), уютная кухня 10, 5 кв м (кухонный гарнитур остается покупателю), встроенный шкаф с зеркалом, большой санузел (4 кв м), теплый пол, поменяна вся проводка, немецкие выключатели, зонирование по освещению, квартира подходит , как для проживания, так и в качестве инвестиций для сдачи в аренду(как на длительный срок, так и для гостей нашего города - посуточно, всегда востребованный адрес!), близость к метро, рядом прекрасная зона для прогулок вдоль водоема, развитая инфраструктура района, свободные парковочные места, детский двор на подиуме без машин, показы по требованию, возможен торг
05.08.2022
10 450 000 ₽
В архиве
АКТУАЛЬНОЕ предложение! Продается в ПРЯМОЙ продаже 2х комнатная квартира Витебский пр д 49к1, 6/9эт, лифт, чистая парадная, от м Московская 10 мин транспортом, развитая инфраструктура района, зеленый двор, в шаговой доступности школа, садик и ТЦ, квартира 47.5 кв м общ площади, просторные и изолированные комнаты 17.5+13.3, из одной комнаты выход на балкон, балкон не застеклен, квадратная кухня 8.2 кв м, квартира очень чистая, паркет на полу, 1 взрослый собственник, никто не прописан, без перепланировок, подходит в покупку под ипотеку, субсидии, показы по требованию. Полная сумма в договоре! Торг
05.08.2022
7 990 000 ₽
В архиве
Квартира в Центре города для Проживания и Инвестиций! Предлагаем Вам потрясающую трехкомнатную квартиру в самом центре города - сердце Санкт-Петербурга! Вся красота исторической части города, будет восхищать вас каждый день! Цените свое время? Метро Лиговский проспект расположен в шаговой доступности в 4 минутах ходьбы! Удобная транспортная доступность и развитая инфраструктура района, подарит удобство и комфорт.
Светлая трехкомнатная квартира расположена на высоком первом этаже четырехэтажного кирпичного дома 1916года постройки. Дом прошел капитальный ремонт, материал перекрытий железобетонные, газифицирован. Идеальное место: вход в квартиру со двора, что позволит наслаждаться тишиной. Окна так же выходят в тихий, закрытый зелёный двор. Придомовая территория оборудована детской площадкой. Двор тихий, закрыт для посторонних, поэтому всегда много парковочных мест. Первый этаж и локация делает вариант приобретения данного объекта привлекательным для дальнейшего использования в коммерческих целях. Расположение квартиры позволяет сделать отдельный вход. Потенциально возможно присоединение подвала. Собственные сауна и бассейн в подвале или дополнительная жилая площадь… Не правда ли, заманчиво. Эта квартира станет вашим местом силы благодаря наличию своего стиля и большого пространства, связанных с расположением в одном из самых культурных мест города! Легко купить: ипотека, материнский капитал, без долгов и обременений, наличные. Недвижимость более 5 лет в собственности, полная стоимость в договоре. Прямая продажа, один взрослый собственник! Юридическое сопровождение сделки бесплатно! Звоните, все подробно расскажу и договоримся на просмотр! Готовы к быстрой сделке!
25.08.2022
14 300 000 ₽
В архиве
Тип объявления Продам
Вид объекта Вторичка
Количество комнат 2
Тип дома Кирпичный
Площадь 98
Этаж 3
Этажей в доме 4
Продам в прямой продаже двухкомнатную квартиру в отличном состоянии. Один собственник, собственность более 10 лет. Квартира односторонняя - окна выходят во двор. Комнаты: 19,7+18.4, кухня/столовая: 38.4, сан/узел совмещенный - 6.6, высота потолков - 3.20. Перепланировка узаконена. Год постройки 1917.Отопление - центральное, горячая вода - газовая колонка Bosh. Полы в комнатах - ламинат, прихожая/кухня/сан узел - плитка. Во всей квартире стоят стекло-пакеты. Кухня/гостиная - диван(раскладывается) + кресло. Газовая плита RICI. Холодильник BEKO. Вытяжка. Стиральная машина - в сан/узле. Душевая кабина. Батареи новые. Два телевизора Panasonik. Шкафы во всех комнатах. В каждой комнате по большой кровати - полуторная + двух-спальная. Сигнализация. Ремонт производился 6 лет назад. В сан/узле пол с подогревом. В квартире остается вся встроенная техника и мебель. Развитая инфраструктура, метро Московские Ворота – 5 мин. пешком.
29.08.2024
17 500 000 ₽
В архиве
Продам 3 х комнатную квартиру в центре города Выборга . Квартира чистая , теплая , солнечная , уютная . Не угловая , окна на две стороны . Рядом 6 , 7 и 11 школы , 2 детских садика , поликлиники , магазины , автобусные остановки. Под ипотеку подходит .
11.05.2024
6 350 000 ₽
В архиве
Евро ремонт сделан из качественных,дорогих материалов+мебель и бытовая техника,
видовая квартира-вид из окна на Неву,квартира продается с мебелью и бытовой техникой,
застекленная лоджия,полы с подогревом,стекло пакеты,кафель,плитка,ТВ-плазма,2 дивана,
новый,теплый,кирпичный дом 2008 года постройки,общая площадь квартиры 40.5 кв.метров,по выписке ЕГРН,+застекленная лоджия 3 кв.метра,итого 43.5кв.метра с учетом лоджии,пандус,3 лифта,консъерж-сервис,видео наблюдение,2 входа,
во дворе школа и 2 детских садика с бассейном,футбольное поле,ст.метро и ЖД Рыбацкое-15 минут пешком,метро Пролетарская и Обухово-30 минут пешком или 10минут транспортом,
рядом КАД,Нева,парк,пляж,3 бассейна,фитнес центр,магазины,Супермаркеты,ТК Парад,Лента,5-ка,Магнит,Эврика,почта,церковь,Сбербанк,кинотеатр,лодочная станция видна из окна квартиры,кафе,рестораны,
экологически чистый район-Рыбацкое:напротив дома Нева,река Славянка в 10 минутах пешком,
1 совершеннолетний собственник,квартира без обременений,более 5 лет собственности-показываем полную стоимость Объекта,подходят покупатели с ипотекой-одобренные в любом банке,
прямая продажа,документы готовы.
01.10.2022
7 980 000 ₽
В архиве
Продаётся двухкомнатная квартира в новом ЖК. Детский сад и школа в шаговой доступности. Магазины, аптеки, досуговые центры, кафе в ЖК есть.
В квартире остаётся телевизор, встроенная техника, кухонный гарнитур, прихожая, диван, мебель в гостинной.
08.10.2022
8 000 000 ₽
В архиве
Продается 5-комнатная квартира 200 кв.м на 2 этаже 6 этажного здания. Все комнаты изолированы. Четырехсторонняя квартира с большим количеством фасадных окон на ул. Марата. Из окон квартиры открывается вид на музей Арктики и Антарктики. Два входа - парадный с ул. Марата и второй во двор. Установлена приточно-вытяжная вентиляция и кондиционеры. Два раздельных санузла и большая ванная комната. В этом году выполнен капитальный ремонт водоснабжения и канализации. Во всех комнатах настоящий дубовый паркет , итальянские двери и стеклопакеты. Высота потолков 3,5 м. Под квартирой находится коммерческое помещение. Парковка в закрытом дворе. Квартира свободна. Прямая продажа . Собственность более 3-х лет. Возможна ипотека. Перепланировок в квартире не производилось. Идеальна как под инвестиционные цели , так и под жилье. Возможен торг. С агентами и посредниками не сотрудничаю.
08.10.2022
43 000 000 ₽
В архиве
Квартира в ЖД «ПРЕМЬЕР»
1 комнатная квартира 36,6 кв.м.
Кухня -11,13
Комната -13,9
Санузел -4,3
Прихожая -7,1
Стоимость 4 745 000 руб.
09.10.2022
4 745 000 ₽
В архиве
❗️НУЖНА ПОМОЩЬ КАЖДОГО НЕБЕЗРАЗЛИЧНОГО ГРАЖДАНИНА❗️- ЛЮБАЯ СУММА ПОМОЖЕТ СПАСТИ ЖИЗНИ НАШИХ РЕБЯТ И МИРНОГО НАСЕЛЕНИЯ ДОНБАССА❗️
✔︎ ПОДДЕРЖАТЬ ФОНД по НОМЕРУ КАРТЫ - 2200 1507 1216 0537 Альфа-Банк, получатель ФОНД "ПОБЕДА" - ВСЁ ДЛЯ ПОБЕДЫ! ✔︎
✔︎ ПОДДЕРЖАТЬ ФОНД по БАНКОВСКИМ РЕКВИЗИТАМ сканируйте QR КОД- через мобильное приложение вашего банка.
Мы объединяем активных людей нашей страны для решения вопросов, важных для каждого гражданина.
ФОНД ПОБЕДА «ВСЁ ДЛЯ ПОБЕДЫ» собирает и доставляет гуманитарные грузы и необходимые товары населению Донбасса и нашим ребятам на Передовой! Сейчас ребятам на постоянно требуются «Расходные Материалы». Вещи которые мы закупаем - расходный материал, необходимый ребятам ежедневно.
❗️ВАША СВОЕВРЕМЕННАЯ ПОМОЩЬ ПОМОГАЕТ СНИЖАТЬ ПОТЕРИ ❗️
✔︎ С АКТУАЛЬНОЙ ИНФОРМАЦИЕЙ О ТЕКУЩИХ ЗАКУПКАХ - СБОРАХ, можно ознакомиться на сайте //fd-pobeda/
16.01.2023
100 ₽
В архиве
❗️НУЖНА ПОМОЩЬ КАЖДОГО НЕБЕЗРАЗЛИЧНОГО ГРАЖДАНИНА❗️- ЛЮБАЯ СУММА ПОМОЖЕТ СПАСТИ ЖИЗНИ НАШИХ РЕБЯТ И МИРНОГО НАСЕЛЕНИЯ ДОНБАССА❗️
✔︎ ПОДДЕРЖАТЬ ФОНД по НОМЕРУ КАРТЫ - 2200 1507 1216 0537 Альфа-Банк, получатель ФОНД "ПОБЕДА" - ВСЁ ДЛЯ ПОБЕДЫ! ✔︎
✔︎ ПОДДЕРЖАТЬ ФОНД по БАНКОВСКИМ РЕКВИЗИТАМ сканируйте QR КОД- через мобильное приложение вашего банка.
Мы объединяем активных людей нашей страны для решения вопросов, важных для каждого гражданина.
ФОНД ПОБЕДА «ВСЁ ДЛЯ ПОБЕДЫ» собирает и доставляет гуманитарные грузы и необходимые товары населению Донбасса и нашим ребятам на Передовой! Сейчас ребятам на постоянно требуются «Расходные Материалы». Вещи которые мы закупаем - расходный материал, необходимый ребятам ежедневно.
❗️ВАША СВОЕВРЕМЕННАЯ ПОМОЩЬ ПОМОГАЕТ СНИЖАТЬ ПОТЕРИ ❗️
✔︎ С АКТУАЛЬНОЙ ИНФОРМАЦИЕЙ О ТЕКУЩИХ ЗАКУПКАХ - СБОРАХ, можно ознакомиться на сайте //fd-pobeda/
09.02.2023
100 ₽
В архиве





































