Сдам коммерческую недвижимость 373 м2
Размещено 11 февраля 2025
105
(+1)
0
Жалоба
- Описание
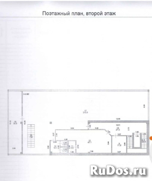
Объект 4282 - Самая востребованная локация - первая линия - высокий пешеходный и автомобильный трафик - просторная стоянка Этот объект - уникальное предложение для реализации любых ваших бизнес идей. Каждый проект в этой локации обречен на успех! Возможна сдача, как всего здания, так и поэтажно. Стоимость аренды: 1 этаж- 373,4 кв м - 1500/кв м 2 этаж - 394,1 кв м - 900/кв м цоколь - 373 кв м - 400/кв м При звонке сообщите, пожалуйста, номер объекта 4282, чтобы мы могли предоставить вам интересующую информацию оперативно.
Универсальное нежилое помещение на 1-й Никитинской улице сдается в аренду
Владислав Бушуров
350 000 ₽
