Сдам коммерческую недвижимость 505 м2
Размещено 22 июля 2025
80
0
Жалоба
- Параметры объявления
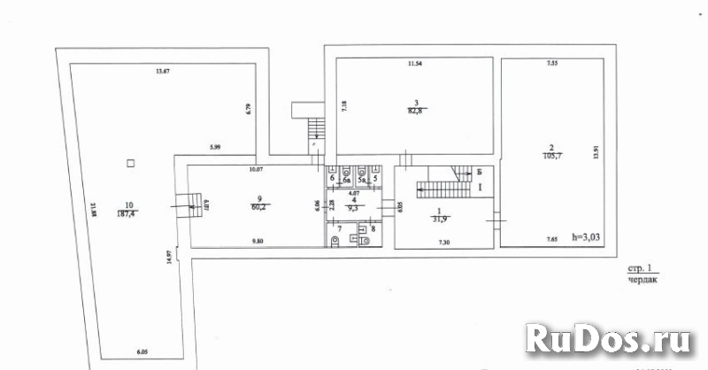
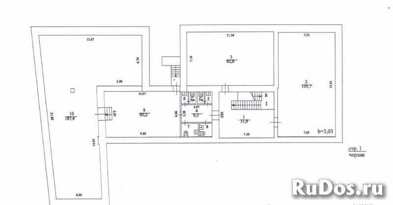
- Общая площадь (м2): 505
- Описание
Собственник предлагает в аренду помещение (этаж целиком), площадью 504,9 м2, расположенное по адресу: Москва, Самокатная 1, стр.1. (м. Бауманская, м. Площадь Ильича).
Помещение после ремонта в стиле LOFT, высота потолка от 3 до 5 м, что создает комфортные условия для продуктивной работы и вдохновляющей атмосферы.
Планировка помещения открытая, есть возможность зонирования под вашу команду.
В помещение выполнена первичная отделка, что дает возможность адаптации помещения под ваш бизнес.
Помещение оборудовано пожарной сигнализацией, интернетом, телефонией.
Здание находится на огороженной территории, по периметру здания парковка и видеонаблюдение.
Развитая инфраструктура: магазины, фитнес клуб, кафе, рестораны.
При необходимости предоставляем юридический адрес (налоговая №22).
Дополнительно оплачиваются эксплуатационные услуги и коммунальные услуги, клининг.
Все коммерческие условия обсуждаются индивидуально.
ЗВОНИТЕ, оперативно покажем и обсудим варианты сотрудничества.
Помещение после ремонта в стиле LOFT, высота потолка от 3 до 5 м, что создает комфортные условия для продуктивной работы и вдохновляющей атмосферы.
Планировка помещения открытая, есть возможность зонирования под вашу команду.
В помещение выполнена первичная отделка, что дает возможность адаптации помещения под ваш бизнес.
Помещение оборудовано пожарной сигнализацией, интернетом, телефонией.
Здание находится на огороженной территории, по периметру здания парковка и видеонаблюдение.
Развитая инфраструктура: магазины, фитнес клуб, кафе, рестораны.
При необходимости предоставляем юридический адрес (налоговая №22).
Дополнительно оплачиваются эксплуатационные услуги и коммунальные услуги, клининг.
Все коммерческие условия обсуждаются индивидуально.
ЗВОНИТЕ, оперативно покажем и обсудим варианты сотрудничества.
