Сдам коммерческую недвижимость 94.9 м2
Размещено 28 февраля 2026
14
0
Жалоба
- Параметры объявления
- Общая площадь (м2): 94.9
- Описание
Аренда коммерческого помещения в ЖК «Одинбург», корпус «Луч 4» (Одинцово, ул. Северная, 5к1)
О комплексе: «Одинбург» — масштабный проект AFI Development в Одинцово, строящийся по принципу «город в городе». На территории 33 га появится 450 тыс. кв. м жилья и социальных объектов. Комплекс включает 11 монолитных корпусов высотой от 16 до 25 этажей. В двух очередях планируется поселить более 24 000 человек, поэтому коммерческие площади на первой линии будут востребованы.
Локация: корпус «Луч 4» расположен вдоль улицы Северная — главной транспортной артерии района. Рядом находятся остановки автобусов №339 и 461, а также МЦД 1 «Одинцово» (15 минут). До МКАД — 7 минут на автомобиле.
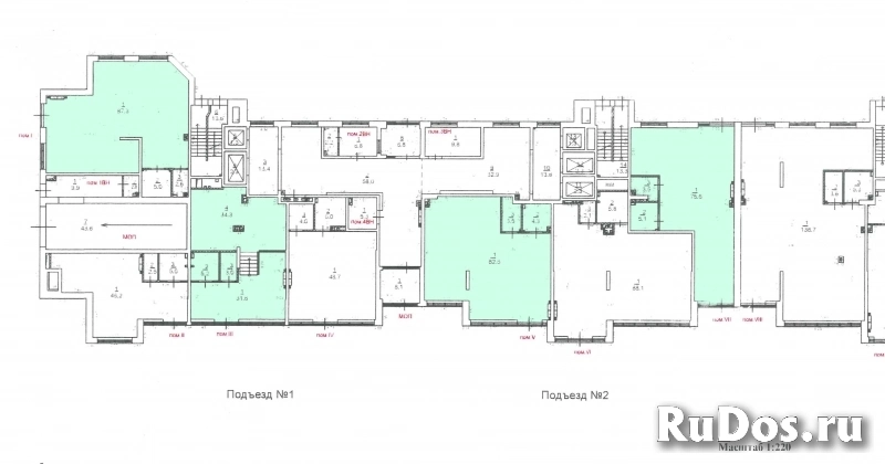
Предлагаемое помещение:
Площадь: 94,9 кв. м.
Высота потолков: 4,5 м.
Витринные окна и отдельные входы на фасад.
Центральные коммуникации: отопление, водоснабжение, канализация и вентиляция.
Черновая отделка («бетон») — инженерные сети заведены, финальная мощность электропитания будет увеличена.
Преимущества первой линии:
Высокий автомобильный и пешеходный трафик на ул. Северной.
Отличная видимость с дороги, возможность наружной рекламы.
Парковка и остановка общественного транспорта у входа.
Ликвидные площади, востребованные для кафе, пекарен, аптек, салонов красоты, пунктов выдачи маркетплейсов и офисов.
Условия аренды:
Прямая аренда от собственника.
Долгосрочный договор.
Возможны арендные каникулы.
Обсуждение индивидуальных условий.
Сочетание крупного жилого квартала (24 000 жителей), собственной инфраструктуры и первой линии вдоль Северной улицы делает эти помещения оптимальными для ритейла и услуг.
Идеально под: кофейню, пекарню, аптеку, салон красоты, стоматологию, офис продаж, пункт выдачи маркетплейсов, магазин или услуги.
О комплексе: «Одинбург» — масштабный проект AFI Development в Одинцово, строящийся по принципу «город в городе». На территории 33 га появится 450 тыс. кв. м жилья и социальных объектов. Комплекс включает 11 монолитных корпусов высотой от 16 до 25 этажей. В двух очередях планируется поселить более 24 000 человек, поэтому коммерческие площади на первой линии будут востребованы.
Локация: корпус «Луч 4» расположен вдоль улицы Северная — главной транспортной артерии района. Рядом находятся остановки автобусов №339 и 461, а также МЦД 1 «Одинцово» (15 минут). До МКАД — 7 минут на автомобиле.
Предлагаемое помещение:
Площадь: 94,9 кв. м.
Высота потолков: 4,5 м.
Витринные окна и отдельные входы на фасад.
Центральные коммуникации: отопление, водоснабжение, канализация и вентиляция.
Черновая отделка («бетон») — инженерные сети заведены, финальная мощность электропитания будет увеличена.
Преимущества первой линии:
Высокий автомобильный и пешеходный трафик на ул. Северной.
Отличная видимость с дороги, возможность наружной рекламы.
Парковка и остановка общественного транспорта у входа.
Ликвидные площади, востребованные для кафе, пекарен, аптек, салонов красоты, пунктов выдачи маркетплейсов и офисов.
Условия аренды:
Прямая аренда от собственника.
Долгосрочный договор.
Возможны арендные каникулы.
Обсуждение индивидуальных условий.
Сочетание крупного жилого квартала (24 000 жителей), собственной инфраструктуры и первой линии вдоль Северной улицы делает эти помещения оптимальными для ритейла и услуг.
Идеально под: кофейню, пекарню, аптеку, салон красоты, стоматологию, офис продаж, пункт выдачи маркетплейсов, магазин или услуги.
