Продам коттедж 194.5 м2

Размещено вчера в 02:48 1
  • Параметры объявления
  • Площадь дома (м2): 194.5
  • Площадь участка (соток): 6
  • Описание
Новый 2-х этажный коттедж 194,5 кв.м на участке 6 соток в КП «Новая Дятловка».
Ключи – май 2026г. Завершается внешняя отделка фасада.
Дом без внутренней отделки.
Семейная и IT ипотека – от 6%.
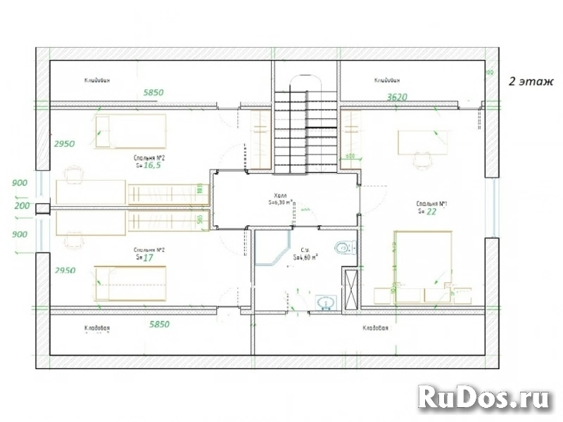
Планировка по проекту:
1 этаж: Просторная кухня-гостиная 33 кв.м с окнами на три стороны света и панорамной дверью на крытую террасу; три комнаты (10/12/14 кв.м), ванная комната, бойлерная, гардеробная, прихожая.
Высокие потолки- 3 метра.
2 этаж: Три спальни (17/16/22), с/у с душевой, много мест для хранения.
Потолки - 3 метра.
Коммуникации: Электричество и магистральный газ заведены на участок.
Земельный участок: 6 соток, ровный, правильной формы.
Забор - металлический штакетник высотой 2м.
Назначение - индивидуальное жилищное строительство (ИЖС). Прописка – д. Дятловка, г.о. Балашиха. Без проблем прикрепиться к садику, школе, поликлинике.
Коттедж построен из высококачественных материалов с соблюдением всех технологий:
- Фундамент: Свайный с ростверком (монолитный с армированием) с заглублением 3м;
- Стены: Газобетонный блок Бонолит, толщина внешних стен 400мм;
- Фасад: Штукатурка, покраска, фасадный декор; Цоколь утеплен и облицован термопанелями; выполнена отмостка;
- Кровля: Двухскатная из метало-черепицы с установкой снегозадержателей и водосточной системы;
- Окна Melke: Металло-пластиковые двухкамерные стеклопакеты с поворотно-откидным механизмом.
- Крыльцо и терраса с навесом;
- Входная металлическая дверь.
О поселке: Асфальтированные дороги. Общее освещение. Закрытая территория. В поселке оборудована детско-спортивная площадкас воркаутом и зоной отдыха, отдельной площадкой для малышей и теннисным столом.
Чистый и свежий воздух, удаленность от трасс и многоэтажек, тишина и уединение с природой и при этом оптимальное расстояние до города- всего 3 км от мкр. Железнодорожный и 17 км от МКАД. Ближайшие станции метро: Новокосино, Железнодорожная, Некрасовка.
Инфраструктура:
Все поблизости: Детский сад, школа, амбулатория, парк, банк, почта, спортивный комплекс с плавательным бассейном в Агрогородке - 10 мин на авто/автобусе. В д. Дятловка расположена остановка школьного автобуса, где утром забирает, а после уроков привозит ребят школьный автобус. В шаговой доступности Вкус Вилл, Пятерочка, пункты Яндекс/Озон/Валдбериз, аптека и тд.
ТЦ, рестораны, кафе, сетевые магазины и другая социально-бытовая инфраструктура расположена в городе Железнодорожном - 15 минут на авто.
Как добраться:
От КП до остановки автобуса 10 минут пешком. Автобус №26 идет до ж/д станции "Черное"- 10 минут, до ж/д станции "Железнодорожная" - 20 минут.
Открыт участок автомобильной трассы М12 Москва-Ногинск, легкое метро МЦД-4 (от Апрелевки до Железнодорожного), что значительно сокращает время в пути.
Продажа от застройщика. Вся стоимость в договор. Одобрение ипотеки и сопровождение сделки - бесплатно. Индивидуальная рассрочка до 12 месяцев.
Добро пожаловать в Новую Дятловку!

Похожие объявления


Продам дом 119 м2
Пугачева Мария Игоревна Поднятое объявление Объявление подтверждено картинка
14 100 000 ₽
Продам коттедж 154.5 м2
Пугачева Мария Игоревна Поднятое объявление Объявление подтверждено картинка
15 600 000 ₽
Продам дом 194.5 м2
Пугачева Мария Игоревна Поднятое объявление Объявление подтверждено картинка
16 100 000 ₽
Продам дом 118.6 м2
Пугачева Мария Игоревна Поднятое объявление Объявление подтверждено картинка
15 800 000 ₽
Продам коттедж 117.8 м2
Пугачева Мария Игоревна Поднятое объявление Объявление подтверждено картинка
19 100 000 ₽
Продам дом 118.6 м2
Пугачева Мария Игоревна Поднятое объявление Объявление подтверждено картинка
14 100 000 ₽
Продам коттедж 194.6 м2
Пугачева Мария Игоревна Поднятое объявление Объявление подтверждено картинка
16 100 000 ₽
Продам дом 156.1 м2
Пугачева Мария Игоревна Поднятое объявление Объявление подтверждено картинка
16 100 000 ₽
Продам дом 119.1 м2
Пугачева Мария Игоревна Поднятое объявление Объявление подтверждено картинка
14 100 000 ₽
Продам дом 118 м2
Пугачева Мария Игоревна Поднятое объявление Объявление подтверждено картинка
14 100 000 ₽
Дом 130 м2. Краснодар
Валерий Поднятое объявление Премиум-объявление картинка Объявление подтверждено картинка
19 500 000 ₽
Продам дом 54 м2
Сергей Поднятое объявление Объявление подтверждено картинка
5 000 000 ₽
Продам коттедж 134 м2
Павлов Максим Васильевич Поднятое объявление Объявление подтверждено картинка
7 500 000 ₽
Продам коттедж 69 м2
Павлов Максим Васильевич Поднятое объявление Объявление подтверждено картинка
18 999 000 ₽
0.2483