Продам дом 192.7 м2

Размещено сегодня в 02:43 0
  • Параметры объявления
  • Площадь дома (м2): 192.7
  • Площадь участка (соток): 6
  • Описание
От застройщика! Новый 2-х этажный коттедж 192,7 кв. м на участке 6 соток в КП «Новая Дятловка».
Семейная и IT ипотека - 6%.
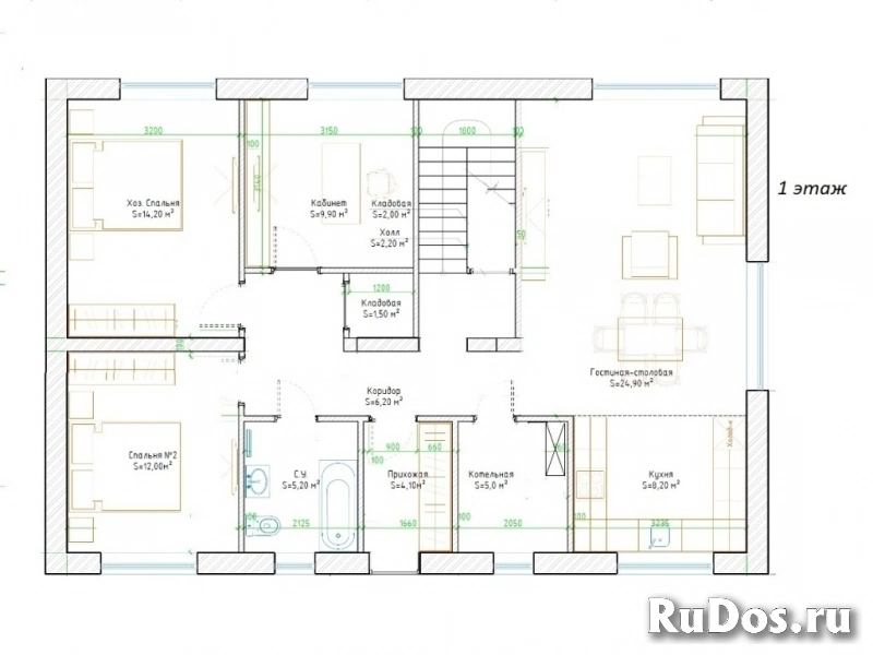
Планировка по проекту:
1 этаж: Просторная кухня-гостиная 33,1 кв. м с окнами на три стороны света и панорамной дверью на крытую террасу; три комнаты (9,9/12/14,2 кв. м), ванная комната, бойлерная, гардеробная, прихожая.
Высокие потолки- 3 метра.
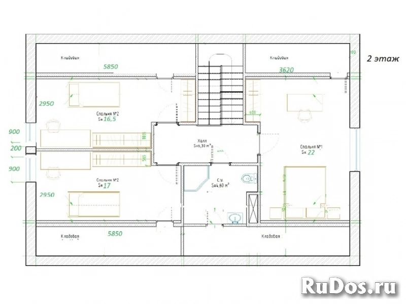
2 этаж: Три спальни (17/16,5/22), с/у с душевой, много мест для хранения.
Потолки - 3 метра.
Дом без внутренней отделки.
Коммуникации: Электричество 10 кВт заведено в дом, магистральный газ заведен на участок.
Земельный участок: 6 соток, ровный, правильной формы, перед домом предусмотрено место для парковки 2-х авто. Забор - металлический штакетник высотой 2м.
Назначение - ИЖС. Прописка – д. Дятловка, г. о. Балашиха. Без проблем прикрепиться к садику, школе, поликлинике.
Технологии и материалы:
- Фундамент: Свайный с ростверком (монолитный с армированием) с заглублением 3м;
- Стены: Газобетонный блок Бонолит, толщина внешних стен 400мм;
- Фасад: Штукатурка, покраска, фасадный декор; Цоколь утеплен и облицован термопанелями; выполнена отмостка;
- Кровля: Двухскатная из метало-черепицы с установкой снегозадержателей и водосточной системы;
- Окна Melke: Металло-пластиковые двухкамерные стеклопакеты с поворотно-откидным механизмом и французским балконом с кованным ограждением на 2-м этаже;
- Крыльцо с навесом;
- Входная металлическая дверь.
О поселке: Асфальтированные дороги. Общее освещение. Закрытая территория. В поселке оборудована детско-спортивная площадка с воркаутом и зоной отдыха.
Чистый и свежий воздух, удаленность от трасс и многоэтажек, тишина и уединение с природой и при этом оптимальное расстояние до города- всего 3 км от мкр. Железнодорожный и 17 км от МКАД. Ближайшие станции метро: Новокосино, Железнодорожная, Некрасовка.
Инфраструктура:
Все поблизости: Детский сад, школа, амбулатория, парк, банк, почта, спортивный комплекс с плавательным бассейном в Агрогородке - 10 мин на авто/автобусе. В д. Дятловка расположена остановка школьного автобуса, где утром забирает, а после уроков привозит ребят школьный автобус. В шаговой доступности Вкус Вилл, Пятерочка, пункты Яндекс/Озон/Валдбериз, аптека и тд.
ТЦ, рестораны, кафе, сетевые магазины и другая социально-бытовая инфраструктура расположена в городе Железнодорожном - 15 мин. на авто.
Как добраться:
От коттеджного поселка до остановки автобуса 10 минут пешком. Автобус №26 идет до ж/д станции "Черное"- 10 минут, до ж/д станции "Железнодорожная" - 20 минут.
Открыт участок автомобильной трассы М12 Москва-Ногинск, легкое метро МЦД-4 (от Апрелевки до Железнодорожного), что значительно сокращает время в пути.
Продажа от застройщика. Вся стоимость в договор. Одобрение ипотеки и сопровождение сделки - бесплатно. Индивидуальная рассрочка до 12 месяцев.
Добро пожаловать в Новую Дятловку!

Похожие объявления


Продам коттедж 156.6 м2
Пугачева Мария Игоревна Поднятое объявление Объявление подтверждено картинка
19 600 000 ₽
Продам дом 355.1 м2
Шмаков Александр Владимирович Поднятое объявление Объявление подтверждено картинка
13 496 500 ₽
Продам коттедж 180 м2
КП Резиденция Булатово Поднятое объявление Объявление подтверждено картинка
26 235 500 ₽
Продам коттедж 150 м2
КП Резиденция Булатово Поднятое объявление Объявление подтверждено картинка
23 443 900 ₽
Продам коттедж 230 м2
КП Резиденция Булатово Поднятое объявление Объявление подтверждено картинка
28 190 000 ₽
Продам коттедж 180 м2
КП Резиденция Булатово Поднятое объявление Объявление подтверждено картинка
32 685 500 ₽
Продам коттедж 150 м2
КП Резиденция Булатово Поднятое объявление Объявление подтверждено картинка
29 693 900 ₽
Продам дом 194.6 м2
Пугачева Мария Игоревна Поднятое объявление Объявление подтверждено картинка
14 900 000 ₽
Продам дом 118.6 м2
Пугачева Мария Игоревна Поднятое объявление Объявление подтверждено картинка
12 900 000 ₽
Продам коттедж 118.6 м2
Пугачева Мария Игоревна Поднятое объявление Объявление подтверждено картинка
14 600 000 ₽
Продам коттедж 194.6 м2
Пугачева Мария Игоревна Поднятое объявление Объявление подтверждено картинка
14 900 000 ₽
Продам дом 118.6 м2
Пугачева Мария Игоревна Поднятое объявление Объявление подтверждено картинка
12 900 000 ₽
Продам дом 117.6 м2
Пугачева Мария Игоревна Поднятое объявление Объявление подтверждено картинка
16 900 000 ₽
Продам коттедж 117.8 м2
Пугачева Мария Игоревна Поднятое объявление Объявление подтверждено картинка
17 900 000 ₽
0.246