Продам коттедж 117.8 м2
Размещено сегодня в 02:44
0
0
Жалоба
- Параметры объявления
- Площадь дома (м2): 117.8
- Площадь участка (соток): 6
- Описание
От застройщика! Новый одноэтажный коттедж с отделкой под ключ117,8 кв.м на участке 6 соток в КП «Новая Дятловка».
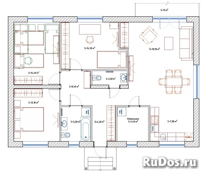
Планировка по проекту:
Просторная кухня-гостиная 36 кв.м с нишей под встроенный шкаф, с окнами на три стороны света и панорамной дверью на крытую террасу 12 кв.м;
3 изолированные комнаты 12,1/14,4/14,5 кв.м, ванная комната, гостевой с/у, бойлерная, прихожая.
Высокие потолки - 2,9 метра.
Под кровлей можно оборудовать дополнительное помещение площадью от 18 до 30 кв.м с высотой до 1,8 м.
Отделка под ключ:
Стены: обои/керамическая плитка.
Полы: керамогранит/кварцвинил.
Потолки: натяжные с установкой точечных светильников.
Установлено: межкомнатные двери, сантехника.
Коммуникации в доме: Электричество, автономная канализация - биостанция Тапас, вода – индивидуальная скважина, отопление от котла. Котельная оборудованапод ключвыполнена разводка всех коммуникаций. Магистральный газ по границе участка (врезка выполнена).
Земельный участок: 6 соток, ровный.
Назначение - ИЖС, прописка – д. Дятловка, г.о. Балашиха
Вы без проблем сможете прикрепиться к садику, школе, поликлинике.
Коттедж построен из высококачественных материалов с соблюдением всех технологий:
- Фундамент: Свайный с ростверком (монолитный с армированием) с заглублением 3 м;
- Стены: Газобетонный блок Бонолит, толщина внешних стен 400мм;
- Фасад: Штукатурка, покраска, Цоколь утеплен и облицован термопанелями, выполнена отмостка;
- Кровля: Четырехскатная из метало-черепицы с установкой снегозадержателей и водосточной системы;
- Окна: Металло-пластиковые двухкамерные стеклопакеты с поворотно-откидным механизмом;
- Крыльцо с навесом.
- Терраса с навесом;
- Входная металлическая утепленная дверь;
- Забор - металлический штакетник высотой 2м.
О поселке: Асфальтированные дороги. Общее освещение. Закрытая территория. В поселке оборудована детско-спортивная площадка с воркаутом и зоной отдыха, площадкой для малышей.
Чистый и свежий воздух и при этом расстояние до города- всего 3 км от мкр. Железнодорожный и 17 км от МКАД. Ближайшие станции метро: Новокосино, Железнодорожная, Некрасовка.
Рядом М12; МЦД4.
Инфраструктура:
Все поблизости: Детский сад, школа, амбулатория, парк, банк, почта, спортивный комплекс с плавательным бассейном в Агрогородке - 10 мин на авто/автобусе. В д.Дятловка расположена остановка школьного автобуса, где утром забирает, а после уроков привозит ребят школьный автобус. В доступности Вкус Вилл, Пятерочка, пункты Яндекс/Озон/Валдбериз, аптека и тд.
ТЦ, рестораны, кафе, магазины и другая социально-бытовая инфраструктура расположена в г.Железнодорожном - 15 минут на авто.
Как добраться:
От КП до остановки автобуса 10 минут пешком. Автобус №26 идет до ж/д станции "Черное"- 10 минут, до ж/д станции "Железнодорожная" - 20 минут.
Продажа от застройщика. Семейная и it-ипотека от 6%. Вся стоимость в договор. Сопровождение сделки - бесплатно. Индивидуальная рассрочка до 12 месяцев.
Добро пожаловать!
Планировка по проекту:
Просторная кухня-гостиная 36 кв.м с нишей под встроенный шкаф, с окнами на три стороны света и панорамной дверью на крытую террасу 12 кв.м;
3 изолированные комнаты 12,1/14,4/14,5 кв.м, ванная комната, гостевой с/у, бойлерная, прихожая.
Высокие потолки - 2,9 метра.
Под кровлей можно оборудовать дополнительное помещение площадью от 18 до 30 кв.м с высотой до 1,8 м.
Отделка под ключ:
Стены: обои/керамическая плитка.
Полы: керамогранит/кварцвинил.
Потолки: натяжные с установкой точечных светильников.
Установлено: межкомнатные двери, сантехника.
Коммуникации в доме: Электричество, автономная канализация - биостанция Тапас, вода – индивидуальная скважина, отопление от котла. Котельная оборудованапод ключвыполнена разводка всех коммуникаций. Магистральный газ по границе участка (врезка выполнена).
Земельный участок: 6 соток, ровный.
Назначение - ИЖС, прописка – д. Дятловка, г.о. Балашиха
Вы без проблем сможете прикрепиться к садику, школе, поликлинике.
Коттедж построен из высококачественных материалов с соблюдением всех технологий:
- Фундамент: Свайный с ростверком (монолитный с армированием) с заглублением 3 м;
- Стены: Газобетонный блок Бонолит, толщина внешних стен 400мм;
- Фасад: Штукатурка, покраска, Цоколь утеплен и облицован термопанелями, выполнена отмостка;
- Кровля: Четырехскатная из метало-черепицы с установкой снегозадержателей и водосточной системы;
- Окна: Металло-пластиковые двухкамерные стеклопакеты с поворотно-откидным механизмом;
- Крыльцо с навесом.
- Терраса с навесом;
- Входная металлическая утепленная дверь;
- Забор - металлический штакетник высотой 2м.
О поселке: Асфальтированные дороги. Общее освещение. Закрытая территория. В поселке оборудована детско-спортивная площадка с воркаутом и зоной отдыха, площадкой для малышей.
Чистый и свежий воздух и при этом расстояние до города- всего 3 км от мкр. Железнодорожный и 17 км от МКАД. Ближайшие станции метро: Новокосино, Железнодорожная, Некрасовка.
Рядом М12; МЦД4.
Инфраструктура:
Все поблизости: Детский сад, школа, амбулатория, парк, банк, почта, спортивный комплекс с плавательным бассейном в Агрогородке - 10 мин на авто/автобусе. В д.Дятловка расположена остановка школьного автобуса, где утром забирает, а после уроков привозит ребят школьный автобус. В доступности Вкус Вилл, Пятерочка, пункты Яндекс/Озон/Валдбериз, аптека и тд.
ТЦ, рестораны, кафе, магазины и другая социально-бытовая инфраструктура расположена в г.Железнодорожном - 15 минут на авто.
Как добраться:
От КП до остановки автобуса 10 минут пешком. Автобус №26 идет до ж/д станции "Черное"- 10 минут, до ж/д станции "Железнодорожная" - 20 минут.
Продажа от застройщика. Семейная и it-ипотека от 6%. Вся стоимость в договор. Сопровождение сделки - бесплатно. Индивидуальная рассрочка до 12 месяцев.
Добро пожаловать!
