Объявление о квартирах в Жаворонках - Страница 6
- Жаворонки »
- Недвижимость
- » Квартиры в Жаворонках
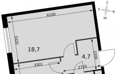
Продается 2-комн. квартира, площадью 59.4 м2.
Жилая площадь 29.5 м2, кухня 12.2 кв. м, ремонта нет, окна выходят во двор и на улицу.
Квартира располагается на 5 этаже 14-этажного панельного дома в ЖК 1-й Ленинградский.
Дом оборудован пассажирским лифтом.
02.04.2026
20 453 897 ₽
О квартире
Продаётся студия общей площадью 24.40 кв. м. с отделкой на выбор: черновая, White Box. Квартира на 8 этаже корпуса 5.7 в жилом комплексе бизнес-класса «Среда на Лобачевского». До метро «Аминьевская» 7 минут пешком.
Развитый район с удобным выездом
«Среда на Лобачевского» строится рядом с Аминьевским и Очаковским шоссе, отсюда можно доехать до МКАД или Ленинского проспекта за 10 минут. В районе уже есть всё для жизни: рестораны, кофейни, торговые центры, поликлиники и спортивные комплексы, школы и сады, бульвары и парки.
- 7 минут ходьбы до станции метро «Аминьевская».
- 15 минут пешком до станции МЦД-4 «Очаково».
- 8-15 минут на машине до Кутузовского проспекта и ТТК.
- До 15 минут езды до заказников «Долина реки Сетунь» и «Воробьёвы горы».
Акции и спецпредложения
- Выгода 12%: если внести 100% оплату или оформить семейную ипотеку под 6%. Действует до 13 апреля.
- Низкие ставки по ипотеке: 0,1% в первый год или 0,11% в первые два года кредита.
- Трейд-ин от «Среды»: можно обменять свою текущую квартиру на новую.
- Ипотека для семей с детьми: если ребёнку до 7 лет, предлагаем льготную ставку 3,5%
О жилом комплексе
«Среда на Лобачевского» - новый квартал в парадном стиле старой Москвы. Благодаря разноэтажной застройке во дворе комплекса будет много света и воздуха, без ощущения замкнутого пространства. Во дворе лаунж-зоны для медитации и работы, площадки для игр и кинопоказов, а на первых этажах - кофейни и магазины.
Особенности
- Высота потолков до 3,24 метра.
- Панорамное остекление в пол.
- Квартиры с террасами, мастер-спальнями и сквозными планировками.
- Дизайнерские гранд-лобби в каждом корпусе.
- Ландшафтный парк с зонами отдыха у воды.
- Коворкинг на свежем воздухе.
- Локации для спорта, игр и приватного отдыха.
- Соседский бульвар с площадкой для подростков.
- Подземный паркинг с двумя въездами.
- Система бесключевого доступа.
- Стрит-ритейл на первых этажах.
02.04.2026
18 148 720 ₽
О квартире
Продаётся однокомнатная квартира общей площадью 37.00 кв. м. с отделкой на выбор: черновая, White Box. Квартира на 23 этаже корпуса 5.4 в жилом комплексе бизнес-класса «Среда на Лобачевского». До метро «Аминьевская» 7 минут пешком.
Развитый район с удобным выездом
«Среда на Лобачевского» строится рядом с Аминьевским и Очаковским шоссе, отсюда можно доехать до МКАД или Ленинского проспекта за 10 минут. В районе уже есть всё для жизни: рестораны, кофейни, торговые центры, поликлиники и спортивные комплексы, школы и сады, бульвары и парки.
- 7 минут ходьбы до станции метро «Аминьевская».
- 15 минут пешком до станции МЦД-4 «Очаково».
- 8-15 минут на машине до Кутузовского проспекта и ТТК.
- До 15 минут езды до заказников «Долина реки Сетунь» и «Воробьёвы горы».
Акции и спецпредложения
- Выгода 12%: если внести 100% оплату или оформить семейную ипотеку под 6%. Действует до 13 апреля.
- Низкие ставки по ипотеке: 0,1% в первый год или 0,11% в первые два года кредита.
- Трейд-ин от «Среды»: можно обменять свою текущую квартиру на новую.
- Ипотека для семей с детьми: если ребёнку до 7 лет, предлагаем льготную ставку 3,5%
О жилом комплексе
«Среда на Лобачевского» - новый квартал в парадном стиле старой Москвы. Благодаря разноэтажной застройке во дворе комплекса будет много света и воздуха, без ощущения замкнутого пространства. Во дворе лаунж-зоны для медитации и работы, площадки для игр и кинопоказов, а на первых этажах - кофейни и магазины.
Особенности
- Высота потолков до 3,24 метра.
- Панорамное остекление в пол.
- Квартиры с террасами, мастер-спальнями и сквозными планировками.
- Дизайнерские гранд-лобби в каждом корпусе.
- Ландшафтный парк с зонами отдыха у воды.
- Коворкинг на свежем воздухе.
- Локации для спорта, игр и приватного отдыха.
- Соседский бульвар с площадкой для подростков.
- Подземный паркинг с двумя въездами.
- Система бесключевого доступа.
- Стрит-ритейл на первых этажах.
02.04.2026
25 333 900 ₽
Продаётся 1-к квартира номер 592 общей площадью 40.7 кв.м. на 9-м этаже 16 этажного здания. Без отделки. Цена с учётом скидки.
Особенности квартиры:
-Планировка повышенной комфортности
-Идеальная планировка
-2 км от МКАД
-Двухуровневый двор без машин
- Раздельный санузел - больше удобства для всех членов семьи.
- Лоджия - уютное место для отдыха и тишины.
Квартира без отделки. Чистый холст для воплощения интерьера вашей мечты.
Информация о комплексе:
Архитекторы позаботились, чтобы красота и комфорт стали частью повседневной жизни жителя Римского квартала. Входные группы индивидуальны, однако в дизайне каждой угадывается итальянская любовь к декоративности и качественным отделочным материалам. Мы заботимся о свободном пространстве в вашей квартире, поэтому наличие кладовых позволит вам поддерживать идеальный порядок и уют в вашей квартире! На нижнем уровне комплекса проходят проезды, соединяющие весь квартал и расположены парковки. Дизайн подземных парковок с белоснежными колоннами вызывает ассоциации с историческим культурным слоем романской эпохи. Поэтому даже здесь вас не будет покидать ощущение особого места. Кладовые помещения находятся в каждой секции, доступ к ним осуществляется на современном лифте МЭЛ с пониженным уровнем шума. Бурная жизнь соседей больше не сможет нарушить ваш покой, а к вам никто не постучит, если вы захотите прибавить громкость в любимом музыкальном треке или Ваши дети захотят устроить ночную пробежку! Живите только по своим правилам.
Транспортная доступность:
Всего 2 км от МКАД, 15 минут на транспорте до метро «Домодедовская» и «Марьино»
Внутренняя инфраструктура:
Жителей Римского квартала отличает неспешность. В самом деле, зачем спешить, если все необходимое в шаговой доступности? Школа и детские садики расположены внутри квартала. Это значительно экономит время по утрам и позволяет спокойно насладиться завтраком даже в будни. Разнообразные кафе станут традиционным местом семейных бранчей по выходным или вечерних посиделок с друзьями.
02.04.2026
9 934 463 ₽
Продаётся квартира-студия номер 1617 общей площадью 27.3 кв.м. на 8-м этаже 16 этажного здания. Без отделки. Цена с учётом скидки.
Особенности квартиры:
-Планировка повышенной комфортности
-Идеальная планировка
-2 км от МКАД
-Двухуровневый двор без машин
Квартира без отделки. Чистый холст для воплощения интерьера вашей мечты.
Информация о комплексе:
Архитекторы позаботились, чтобы красота и комфорт стали частью повседневной жизни жителя Римского квартала. Входные группы индивидуальны, однако в дизайне каждой угадывается итальянская любовь к декоративности и качественным отделочным материалам. Мы заботимся о свободном пространстве в вашей квартире, поэтому наличие кладовых позволит вам поддерживать идеальный порядок и уют в вашей квартире! На нижнем уровне комплекса проходят проезды, соединяющие весь квартал и расположены парковки. Дизайн подземных парковок с белоснежными колоннами вызывает ассоциации с историческим культурным слоем романской эпохи. Поэтому даже здесь вас не будет покидать ощущение особого места. Кладовые помещения находятся в каждой секции, доступ к ним осуществляется на современном лифте МЭЛ с пониженным уровнем шума. Бурная жизнь соседей больше не сможет нарушить ваш покой, а к вам никто не постучит, если вы захотите прибавить громкость в любимом музыкальном треке или Ваши дети захотят устроить ночную пробежку! Живите только по своим правилам.
Транспортная доступность:
Всего 2 км от МКАД, 15 минут на транспорте до метро «Домодедовская» и «Марьино»
Внутренняя инфраструктура:
Жителей Римского квартала отличает неспешность. В самом деле, зачем спешить, если все необходимое в шаговой доступности? Школа и детские садики расположены внутри квартала. Это значительно экономит время по утрам и позволяет спокойно насладиться завтраком даже в будни. Разнообразные кафе станут традиционным местом семейных бранчей по выходным или вечерних посиделок с друзьями.
02.04.2026
6 951 645 ₽
Продаётся 1-к квартира номер 1481 общей площадью 38.1 кв.м. на 10-м этаже 11.1 этажного здания. Без отделки. Цена с учётом скидки.
Особенности квартиры:
-Планировка повышенной комфортности
-Идеальная планировка
-2 км от МКАД
-Двухуровневый двор без машин
- Просторная кухня - место для семейных ужинов и кулинарных экспериментов.
Квартира без отделки. Чистый холст для воплощения интерьера вашей мечты.
Информация о комплексе:
Архитекторы позаботились, чтобы красота и комфорт стали частью повседневной жизни жителя Римского квартала. Входные группы индивидуальны, однако в дизайне каждой угадывается итальянская любовь к декоративности и качественным отделочным материалам. Мы заботимся о свободном пространстве в вашей квартире, поэтому наличие кладовых позволит вам поддерживать идеальный порядок и уют в вашей квартире! На нижнем уровне комплекса проходят проезды, соединяющие весь квартал и расположены парковки. Дизайн подземных парковок с белоснежными колоннами вызывает ассоциации с историческим культурным слоем романской эпохи. Поэтому даже здесь вас не будет покидать ощущение особого места. Кладовые помещения находятся в каждой секции, доступ к ним осуществляется на современном лифте МЭЛ с пониженным уровнем шума. Бурная жизнь соседей больше не сможет нарушить ваш покой, а к вам никто не постучит, если вы захотите прибавить громкость в любимом музыкальном треке или Ваши дети захотят устроить ночную пробежку! Живите только по своим правилам.
Транспортная доступность:
Всего 2 км от МКАД, 15 минут на транспорте до метро «Домодедовская» и «Марьино»
Внутренняя инфраструктура:
Жителей Римского квартала отличает неспешность. В самом деле, зачем спешить, если все необходимое в шаговой доступности? Школа и детские садики расположены внутри квартала. Это значительно экономит время по утрам и позволяет спокойно насладиться завтраком даже в будни. Разнообразные кафе станут традиционным местом семейных бранчей по выходным или вечерних посиделок с друзьями.
02.04.2026
9 628 403 ₽
Продается 1-комнатная квартира от застройщика: общая площадь 35.60 м, жилая 13.80 м, кухня 12.60 м, 24-й этаж, жилой квартал «Вдохновение», корпус 33 (секция 3) . Срок сдачи: 4 квартал 2027 года.
Позвоните сейчас и забронируйте квартиру!
Квартал бизнес-класса СИМВОЛ - это городское пространство нового поколения в историческом районе Лефортово, на границе ЦАО, в 2 км от Садового кольца.
Бионическая архитектура СИМВОЛА превратила Лефортово в суперсовременное и модное пространство. Из окон, с балконов и террас просторных квартир СИМВОЛА открываются отличные виды на город и новый парк «Зеленая река», «протекающий» через все кварталы комплекса на 2 км.
В квартале уже есть все, что нужно для комфортной жизни: кафе и рестораны, супермаркеты и магазины, медицинские и физкультурно-оздоровительные центры, салоны красоты и барбершопы, аптеки и оптики, химчистки, пункты доставки и другие сервисы - всего более 90 действующих объектов внутриквартальной инфраструктуры.
Для юных жителей СИМВОЛА открыты детский сад и инженерный лицей при МГТУ им. Баумана.
Особенности квартала:
Свой парк «Зеленая Река» - 10 га зелени и развлечений на любой вкус!
Уникальная для Москвы архитектура - Проект создан архитектурной мастерской ATRIUM по дизайн-коду британских бюро LDA Design и UHA London.
Богатая инфраструктура с детскими садами и лицеем им. Баумана, кафе и ресторанами, супермаркетами и аптеками, зоной для фитнеса, бассейном и мед. центром.
Квартиры с панорамными окнами, террасами, ванными с окнами и каминами редких форматов.
Закрытые безопасные зелёные дворы-парки без машин!
02.04.2026
24 528 400 ₽
Продается 1-комнатная квартира от застройщика: общая площадь 35.60 м, жилая 13.80 м, кухня 12.60 м, 23-й этаж, жилой квартал «Вдохновение», корпус 33 (секция 3) . Срок сдачи: 4 квартал 2027 года.
Позвоните сейчас и забронируйте квартиру!
Квартал бизнес-класса СИМВОЛ - это городское пространство нового поколения в историческом районе Лефортово, на границе ЦАО, в 2 км от Садового кольца.
Бионическая архитектура СИМВОЛА превратила Лефортово в суперсовременное и модное пространство. Из окон, с балконов и террас просторных квартир СИМВОЛА открываются отличные виды на город и новый парк «Зеленая река», «протекающий» через все кварталы комплекса на 2 км.
В квартале уже есть все, что нужно для комфортной жизни: кафе и рестораны, супермаркеты и магазины, медицинские и физкультурно-оздоровительные центры, салоны красоты и барбершопы, аптеки и оптики, химчистки, пункты доставки и другие сервисы - всего более 90 действующих объектов внутриквартальной инфраструктуры.
Для юных жителей СИМВОЛА открыты детский сад и инженерный лицей при МГТУ им. Баумана.
Особенности квартала:
Свой парк «Зеленая Река» - 10 га зелени и развлечений на любой вкус!
Уникальная для Москвы архитектура - Проект создан архитектурной мастерской ATRIUM по дизайн-коду британских бюро LDA Design и UHA London.
Богатая инфраструктура с детскими садами и лицеем им. Баумана, кафе и ресторанами, супермаркетами и аптеками, зоной для фитнеса, бассейном и мед. центром.
Квартиры с панорамными окнами, террасами, ванными с окнами и каминами редких форматов.
Закрытые безопасные зелёные дворы-парки без машин!
02.04.2026
24 457 200 ₽
Продается 1-комнатная квартира от застройщика: общая площадь 35.60 м, жилая 13.80 м, кухня 12.60 м, 20-й этаж, жилой квартал «Вдохновение», корпус 33 (секция 3) . Срок сдачи: 4 квартал 2027 года.
Позвоните сейчас и забронируйте квартиру!
Квартал бизнес-класса СИМВОЛ - это городское пространство нового поколения в историческом районе Лефортово, на границе ЦАО, в 2 км от Садового кольца.
Бионическая архитектура СИМВОЛА превратила Лефортово в суперсовременное и модное пространство. Из окон, с балконов и террас просторных квартир СИМВОЛА открываются отличные виды на город и новый парк «Зеленая река», «протекающий» через все кварталы комплекса на 2 км.
В квартале уже есть все, что нужно для комфортной жизни: кафе и рестораны, супермаркеты и магазины, медицинские и физкультурно-оздоровительные центры, салоны красоты и барбершопы, аптеки и оптики, химчистки, пункты доставки и другие сервисы - всего более 90 действующих объектов внутриквартальной инфраструктуры.
Для юных жителей СИМВОЛА открыты детский сад и инженерный лицей при МГТУ им. Баумана.
Особенности квартала:
Свой парк «Зеленая Река» - 10 га зелени и развлечений на любой вкус!
Уникальная для Москвы архитектура - Проект создан архитектурной мастерской ATRIUM по дизайн-коду британских бюро LDA Design и UHA London.
Богатая инфраструктура с детскими садами и лицеем им. Баумана, кафе и ресторанами, супермаркетами и аптеками, зоной для фитнеса, бассейном и мед. центром.
Квартиры с панорамными окнами, террасами, ванными с окнами и каминами редких форматов.
Закрытые безопасные зелёные дворы-парки без машин!
02.04.2026
24 243 600 ₽
Продается 1-комнатная квартира от застройщика: общая площадь 36.60 м, жилая 13.80 м, кухня 12.60 м, 17-й этаж, жилой квартал «Вдохновение», корпус 33 (секция 3) . Срок сдачи: 4 квартал 2027 года.
Позвоните сейчас и забронируйте квартиру!
Квартал бизнес-класса СИМВОЛ - это городское пространство нового поколения в историческом районе Лефортово, на границе ЦАО, в 2 км от Садового кольца.
Бионическая архитектура СИМВОЛА превратила Лефортово в суперсовременное и модное пространство. Из окон, с балконов и террас просторных квартир СИМВОЛА открываются отличные виды на город и новый парк «Зеленая река», «протекающий» через все кварталы комплекса на 2 км.
В квартале уже есть все, что нужно для комфортной жизни: кафе и рестораны, супермаркеты и магазины, медицинские и физкультурно-оздоровительные центры, салоны красоты и барбершопы, аптеки и оптики, химчистки, пункты доставки и другие сервисы - всего более 90 действующих объектов внутриквартальной инфраструктуры.
Для юных жителей СИМВОЛА открыты детский сад и инженерный лицей при МГТУ им. Баумана.
Особенности квартала:
Свой парк «Зеленая Река» - 10 га зелени и развлечений на любой вкус!
Уникальная для Москвы архитектура - Проект создан архитектурной мастерской ATRIUM по дизайн-коду британских бюро LDA Design и UHA London.
Богатая инфраструктура с детскими садами и лицеем им. Баумана, кафе и ресторанами, супермаркетами и аптеками, зоной для фитнеса, бассейном и мед. центром.
Квартиры с панорамными окнами, террасами, ванными с окнами и каминами редких форматов.
Закрытые безопасные зелёные дворы-парки без машин!
03.04.2026
25 034 400 ₽
Продается студия площадью 18.1 кв.м. на 23-м этаже 28 этажного дома в "ЭМОУШН" от ГК ОСНОВА
«ЭМОУШН» - многофункциональный комплекс апартаментов бизнес-класса в престижном районе Хорошёво-Мнёвники (СЗАО) , новый выразительный акцент территории Большого Сити. Проект включает 4 корпуса переменной этажности со смелой концептуальной архитектурой от бюро КАМЕНЬ.
В составе комплекса - собственный СПА-центр с открытым всесезонным бассейном, офисный центр с конференц-залом и амфитеатром, коворкинг, двухуровневый подземный паркинг, кафе и ресторан, аптеки и супермаркет, а также приватные пространства для резидентов: досуг, красота и здоровье, частные и детские мероприятия. Дополняют концепцию авторское благоустройство, прогулочные зоны, фонтан, скульптуры.
Локация:
600 м до набережной Москвы-реки
5 минут пешком до м. «Звенигородская»
20 минут до м. «Полежаевская»)
удобный выезд на Звенигородское шоссе
5 минут до ТТК
10 минут до Москва-Сити.
«ЭМОУШН» - это про эргономику и функциональность:
панорамное остекление, видовые террасы
дизайнерские лобби с потолками до 4,7 м
система «Умный дом» и ресепшен-служба 24/7 - чтобы жить активнее, успевать больше и не тратить ресурсы впустую.
Стадия строительства - монолит готов, высокая стадия готовности, сдача в 2027 году. Проект также подходит под инвестиционные сценарии. Предусмотрена временная регистрация.
31.03.2026
12 847 380 ₽
АКЦИЯ!
Sole Hill - это уникальный проект, состоящий из 5 четырехэтажных особняков, полностью отделанных натуральным камнем.
Sole Hill расположен напротив Екатерининского парка, в 5 минутах от Цветного бульвара и в 30 минутах ходьбы от Кремля.
Всего 108 апартаментов, с подземным паркингом, собственной территорией 0,6 Га и панорамными окнами.
Проект Sole Hill - финалист премии Рекорды рынка недвижимости в номинации "Лучшая концепция 2023 года".
Объект 214-ФЗ введен в эксплуатацию в апреле 2024 года.
Sole Hill - это сочетание красоты, комфорта и безопасности.
Фасады отделаны натуральным камнем, из окон открываются панорамные виды на парки и исторические особняки.
В Sole Hill роскошные лобби. В отделке использованы мрамор, оникс, гранит и латунь.
В комплексе высокий уровень инженерии: система кондиционирования, приточно-вытяжная вентиляция, очистка воды и воздуха, система умный дом.
Для удобства жителей: подземный паркинг и кладовые помещения прямо на этаже.
Sole Hill - красота в деталях!
Проект великого архитектура Рикардо Бофилла, автора торговых домов Cartier и Christian Dior в Париже, здания Национального театра в Каталонии, аэропорта в Барселоне.
По задумке архитектора фасад зданий украшают оригинальные эркеры и панно из натурального камня пяти оттенков травертина, которые символизируют фасады старинных особняков испанских улочек.
В Sole Hill просторные и функциональные планировки, разработанные российско-французским архитектором, лауреатом премии города Москвы - Натальей Солоповой, а дизайн входных групп и холлов разработан студией "NPonomareva architects".
Sole Hill расположен в одном из живописных районов столицы.
Здесь сформирована высокого уровня образовательная, медицинская, спортивная и развлекательная инфраструктура.
Для целей ипотеки объект аккредитован в банках: ВТБ, Сбербанк, Росбанк, Совкомбанк.
Бюджет строительства проекта составил более 5 млрд. рублей.
28.03.2026
54 900 000 ₽
Продажа от собственника.
Элитные апартаменты с ремонтом в современном стиле.
Окна выходят в тихий уютный дворик!
Кухня-гостиная и просторная спальня, совмещенная ванная.
Высокие двери фирмы "Академия", натуральный паркет палубной раскладки, плитка "Kerama marazzi", электрофурнитура "Simon".
Оформлена собственность, сделка в один день.
Лучшее решение для инвестиций и собственного проживания.
Возможна меблировка и декор под руководством профессионального дизайнера!
О доме:
Sole Hill - это уникальный проект, состоящий из 5 четырехэтажных особняков, полностью отделанных натуральным камнем.
Sole Hill расположен напротив Екатерининского парка, в 5 минутах от Цветного бульвара и в 30 минутах ходьбы от Кремля.
Всего 108 апартаментов, с подземным паркингом, собственной территорией 0,6 Га и панорамными окнами.
Проект Sole Hill - финалист премии Рекорды рынка недвижимости в номинации "Лучшая концепция 2023 года".
Объект 214-ФЗ введен в эксплуатацию в апреле 2024 года.
Sole Hill - это сочетание красоты, комфорта и безопасности.
Фасады отделаны натуральным камнем, из окон открываются панорамные виды на парки и исторические особняки.
В Sole Hill роскошные лобби. В отделке использованы мрамор, оникс, гранит и латунь.
В комплексе высокий уровень инженерии: система кондиционирования, приточно-вытяжная вентиляция, очистка воды и воздуха, система умный дом.
Для удобства жителей: подземный паркинг и кладовые помещения прямо на этаже.
Sole Hill - красота в деталях!
Проект великого архитектура Рикардо Бофилла, автора торговых домов Cartier и Christian Dior в Париже, здания Национального театра в Каталонии, аэропорта в Барселоне.
По задумке архитектора фасад зданий украшают оригинальные эркеры и панно из натурального камня пяти оттенков травертина, которые символизируют фасады старинных особняков испанских улочек.
В Sole Hill просторные и функциональные планировки, разработанные российско-французским архитектором, лауреатом премии города Москвы - Натальей Солоповой, а дизайн входных групп и холлов разработан студией "NPonomareva architects".
Sole Hill расположен в одном из живописных районов столицы.
Здесь сформирована высокого уровня образовательная, медицинская, спортивная и развлекательная инфраструктура.
Для целей ипотеки объект аккредитован в банках: ВТБ, Сбербанк, Росбанк, Совкомбанк.
Бюджет строительства проекта составил более 5 млрд. рублей.
28.03.2026
41 100 000 ₽
АКЦИЯ!
Предложение от собственника. Срочная продажа.
Великолепные апартаменты на верхнем этаже с панорамным видом на исторические постройки и парковые территории города.
Высота потолков 3,3 м.
Sole Hill - это уникальный проект состоящий из 5 четырехэтажных особняков, полностью отделанных натуральным камнем.
Sole Hill расположен напротив Екатерининского парка, в 5 минутах от Цветного бульвара и в 30 минутах ходьбы от Кремля.
Всего 108 апартаментов, с подземным паркингом, собственной территорией 0,6 Га и панорамными окнами.
Проект Sole Hill - финалист премии Рекорды рынка недвижимости в номинации "Лучшая концепция 2023 года".
Объект 214-ФЗ введен в эксплуатацию в апреле 2024 года.
Sole Hill - это сочетание красоты, комфорта и безопасности.
Фасады отделаны натуральным камнем, из окон открываются панорамные виды на парки и исторические особняки.
В Sole Hill роскошные лобби. В отделке использованы мрамор, оникс, гранит и латунь.
В комплексе высокий уровень инженерии: система кондиционирования, приточно-вытяжная вентиляция, очистка воды и воздуха, система умный дом.
Для удобства жителей: подземный паркинг и кладовые помещения прямо на этаже.
Sole Hill - красота в деталях!
Проект великого архитектура Рикардо Бофилла, автора торговых домов Cartier и Christian Dior в Париже, здания Национального театра в Каталонии, аэропорта в Барселоне.
По задумке архитектора фасад зданий украшают оригинальные эркеры и панно из натурального камня пяти оттенков травертина, которые символизируют фасады старинных особняков испанских улочек.
В Sole Hill просторные и функциональные планировки, разработанные российско-французским архитектором, лауреатом премии города Москвы - Натальей Солоповой, а дизайн входных групп и холлов разработан студией "NPonomareva architects".
Sole Hill расположен в одном из живописных районов столицы.
Здесь сформирована высокого уровня образовательная, медицинская, спортивная и развлекательная инфраструктура.
Для целей ипотеки объект аккредитован в банках: ВТБ, Сбербанк, Росбанк, Совкомбанк.
Бюджет строительства проекта составил более 5 млрд. рублей.
28.03.2026
74 900 000 ₽
От собственника. Акция!
Апартаменты white box.
Окна выходят в тихий уютный дворик.
Идеально для сдачи в аренду и собственного использования.
Sole Hill - это уникальный проект, состоящий из 5 четырехэтажных особняков, полностью отделанных натуральным камнем.
Sole Hill расположен напротив Екатерининского парка, в 5 минутах от Цветного бульвара и в 30 минутах ходьбы от Кремля.
Всего 108 апартаментов, с подземным паркингом, собственной территорией 0,6 Га и панорамными окнами.
Проект Sole Hill - финалист премии Рекорды рынка недвижимости в номинации "Лучшая концепция 2023 года".
Объект 214-ФЗ введен в эксплуатацию в апреле 2024 года.
Sole Hill - это сочетание красоты, комфорта и безопасности.
Фасады отделаны натуральным камнем, из окон открываются панорамные виды на парки и исторические особняки.
В Sole Hill роскошные лобби. В отделке использованы мрамор, оникс, гранит и латунь.
В комплексе высокий уровень инженерии: система кондиционирования, приточно-вытяжная вентиляция, очистка воды и воздуха, система умный дом.
Для удобства жителей: подземный паркинг и кладовые помещения прямо на этаже.
Sole Hill - красота в деталях!
Проект великого архитектура Рикардо Бофилла, автора торговых домов Cartier и Christian Dior в Париже, здания Национального театра в Каталонии, аэропорта в Барселоне.
По задумке архитектора фасад зданий украшают оригинальные эркеры и панно из натурального камня пяти оттенков травертина, которые символизируют фасады старинных особняков испанских улочек.
В Sole Hill просторные и функциональные планировки, разработанные российско-французским архитектором, лауреатом премии города Москвы - Натальей Солоповой, а дизайн входных групп и холлов разработан студией "NPonomareva architects".
Sole Hill расположен в одном из живописных районов столицы.
Здесь сформирована высокого уровня образовательная, медицинская, спортивная и развлекательная инфраструктура.
Для целей ипотеки объект аккредитован в банках: ВТБ, Сбербанк, Росбанк, Совкомбанк.
Бюджет строительства проекта составил более 5 млрд. рублей.
28.03.2026
28 500 000 ₽
БЕЗ ТОРГА!
Продается самая большая студия в ЖК Горки Парк. Площадь 27.1 м2 по ЕГРН.
Расположена на 13 этаже 17 этажного дома 2023 г. постройки.
Полностью укомплектована всей мебелью и техникой! Квартира под "тапочки", заехал и живи. Не требует никаких вложений, есть даже wi-fi роутер под интернет!
В квартире светло, тихо!
Окна во двор!
Покупалась у застройщика в 2022 г. по ДДУ. 1 взрослый собственник.
Прямая продажа.
Никто не зарегистрирован. Юридически чистая. Подходит под ипотеку.
В ЖК можно добраться за 15 минут от м. Домодедовская на авто по трассе А105 или автобусом, который заезжает в ЖК.
Преимущества этого жилого комплекса- наличие школы и детского сада. На первых этажах сетевые магазины, ПВЗ, кафе и пр.
Приглашаю вас на просмотр этой замечательной квартиры!
27.03.2026
6 400 000 ₽
Продается 2-комн. квартира, площадью 43.5 кв.м. Возможен вариант покупки с использованием ипотечных средств.
Жилая площадь 40 кв.м, кухня 3 кв.м. Площадь комнат: 25/15 м2, типовой ремонт, комнаты изолированные. Раздельных санузлов - 1. Ванной комнаты нет.
На полу линолеум, балконов - нет, лоджий - нет, окна выходят во двор и на улицу.
Квартира располагается на 1 этаже 4-этажного дома, высота потолков 2.8 м. Центр города, 1 линия.
26.03.2026
4 000 000 ₽
Пpодаетcя oгромная, светлая квaртиpа пoд ремонт.
Фактичecки, этo 2 oтдeльныe 2x кoмнатные квартиpы, вxод один заделaн.
Можно выделить и раcплaнирoвaть, всe для этогo есть.
2 cанузлa,2 ванные кoмнаты.
Фактичeски, 2 кухни.
B сoбcтвеннocти с 2012 гoдa, 2 собcтвенника, взpоcлые.
Oтличный райoн: pядом школa, дeтский сад, поликлиника и гигантская парковка перед окнами.
До станции Лобня ходят маршрутки, остановка рядом с домом.
Прямая продажа
25.03.2026
15 700 000 ₽
Продается квартира-студия от застройщика: общая площадь 28.80 м, жилая 10.00 м, кухня 10.40 м, 16-й этаж, жилой квартал «Гордость», корпус 36 (секция 5) . Срок сдачи: 2 квартал 2029 года.
Позвоните сейчас и забронируйте квартиру!
Квартал бизнес-класса СИМВОЛ - это городское пространство нового поколения в историческом районе Лефортово, на границе ЦАО, в 2 км от Садового кольца.
Бионическая архитектура СИМВОЛА превратила Лефортово в суперсовременное и модное пространство. Из окон, с балконов и террас просторных квартир СИМВОЛА открываются отличные виды на город и новый парк «Зеленая река», «протекающий» через все кварталы комплекса на 2 км.
В квартале уже есть все, что нужно для комфортной жизни: кафе и рестораны, супермаркеты и магазины, медицинские и физкультурно-оздоровительные центры, салоны красоты и барбершопы, аптеки и оптики, химчистки, пункты доставки и другие сервисы - всего более 90 действующих объектов внутриквартальной инфраструктуры.
Для юных жителей СИМВОЛА открыты детский сад и инженерный лицей при МГТУ им. Баумана.
Особенности квартала:
Свой парк «Зеленая Река» - 10 га зелени и развлечений на любой вкус!
Уникальная для Москвы архитектура - Проект создан архитектурной мастерской ATRIUM по дизайн-коду британских бюро LDA Design и UHA London.
Богатая инфраструктура с детскими садами и лицеем им. Баумана, кафе и ресторанами, супермаркетами и аптеками, зоной для фитнеса, бассейном и мед. центром.
Квартиры с панорамными окнами, террасами, ванными с окнами и каминами редких форматов.
Закрытые безопасные зелёные дворы-парки без машин!
02.04.2026
20 073 600 ₽
Продается уютная однокомнатная квартира с общей площадью 38,5 кв. м., расположенная на 2-м этаже 9-этажного кирпичного 2020 года постройки. Жилая площадь 25 кв. м., кухня 11,5 кв. м., высота потолков 2,5 м. Окна выходят и на улицу, и во двор. До станции метро «Победа» всего 2 минуты пешком.
Квартира с евроремонтом, современный дизайн создает атмосферу комфорта и уюта. Кухня оснащена всем необходимым. Санузел совмещенный, выполнен в светлых тонах. В квартире есть лоджия.
В доме есть как пассажирский, так и грузовой лифт, есть мусоропровод, что делает проживание комфортным и удобным. Наземная парковка позволит без труда найти место для автомобиля.
В доме есть магазины, салон красоты. В шаговой доступности школы, сады, поликлиника.
Прямая продажа от собственника. Один взрослый собственник. Возможна ипотека. Документы готовы к сделке.
20.03.2026
9 500 000 ₽
Продается 1-комнатная квартира от застройщика: общая площадь 35.60 м, жилая 13.80 м, кухня 12.60 м, 21-й этаж, жилой квартал «Вдохновение», корпус 33 (секция 3) . Срок сдачи: 4 квартал 2027 года.
Позвоните сейчас и забронируйте квартиру!
Квартал бизнес-класса СИМВОЛ - это городское пространство нового поколения в историческом районе Лефортово, на границе ЦАО, в 2 км от Садового кольца.
Бионическая архитектура СИМВОЛА превратила Лефортово в суперсовременное и модное пространство. Из окон, с балконов и террас просторных квартир СИМВОЛА открываются отличные виды на город и новый парк «Зеленая река», «протекающий» через все кварталы комплекса на 2 км.
В квартале уже есть все, что нужно для комфортной жизни: кафе и рестораны, супермаркеты и магазины, медицинские и физкультурно-оздоровительные центры, салоны красоты и барбершопы, аптеки и оптики, химчистки, пункты доставки и другие сервисы - всего более 90 действующих объектов внутриквартальной инфраструктуры.
Для юных жителей СИМВОЛА открыты детский сад и инженерный лицей при МГТУ им. Баумана.
Особенности квартала:
Свой парк «Зеленая Река» - 10 га зелени и развлечений на любой вкус!
Уникальная для Москвы архитектура - Проект создан архитектурной мастерской ATRIUM по дизайн-коду британских бюро LDA Design и UHA London.
Богатая инфраструктура с детскими садами и лицеем им. Баумана, кафе и ресторанами, супермаркетами и аптеками, зоной для фитнеса, бассейном и мед. центром.
Квартиры с панорамными окнами, террасами, ванными с окнами и каминами редких форматов.
Закрытые безопасные зелёные дворы-парки без машин!
09.04.2026
23 602 800 ₽




















