Продать квартиру в Вождь Пролетариате - Страница 10
- Вождь Пролетариата »
- Недвижимость
- » Квартиры
- » Продажа квартир в Вождь Пролетариате
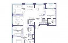
Продается 2-комн. квартира, площадью 56.1 м2 в монолитной новостройке в 12 мин. пешком от м. Динамо. Возможен вариант покупки с использованием ипотечных средств.
Жилая площадь 44.88 м2, предчистовая отделка, комнаты изолированные, окна выходят во двор.
Квартира располагается на 8 этаже 41-этажного дома в ЖК Прайм Парк.
Застройщик - Optima Development, сдача дома - III квартал 2026 года, высота потолков 3.1 м.
Дом оборудован пассажирским лифтом.
Подземная парковка, парковка охраняется. Обеспечение безопасности: консьерж. Инфраструктура: школа, детский сад, детские площадки, места для отдыха, супермаркет, рестораны, фитнес-центр.
Премиальный квартал PRIME PARK стал одним из знаковых жилых проектов столицы, который задал новые
ориентиры на рынке недвижимости. Он неизменно занимает лидирующие позиции по продажам в своем классе,
стал рекордсменом по количеству завоеванных международных и российских премий в области недвижимости,
а также был назван самым благоустроенным кварталом России на XIII Российской национальной премии по ландшафтной архитектуре.
Квартал стал новой доминантой Ленинградского проспекта. Архитектор Филип Болл не только разработал концепцию бескомпромиссно роскошного жилья, но и на постоянной основе осуществляет авторский надзор. Небоскребы квартала отличаются уникальным рисунком фасадов и располагаются в отдалении друг от друга, что обеспечивает постоянный поток солнечного света и восхитительные виды из каждой квартиры. В то же время геометрия PRIME PARK продумана
таким образом, чтобы создать атмосферу спокойствия и тишины на территории частного парка.
5 мин. от Тверской улицы, Патриарших прудов и Белой площади;
20 мин. до аэропорта «Шереметьево» или «Москва-Сити»;
4 парка - Ходынское поле, Петровский и Чапаевский парки, Березовая роща;
4 станции метро - «ЦСКА», «Аэропорт», «Динамо» и «Петровский парк».
Аккредитованные банки: Абсолют Банк, Совкомбанк, Альфа-Банк, Банк ДОМ. РФ, Промсвязьбанк, Банк ВТБ, Россельхозбанк, МКБ.
Позвоните и узнайте условия покупки прямо сейчас!
17.01.2026
46 348 132 ₽
Продается 2-комн. квартира, площадью 55.9 м2 в монолитной новостройке в 12 мин. пешком от м. Динамо. Возможен вариант покупки с использованием ипотечных средств.
Жилая площадь 44.72 м2, предчистовая отделка, комнаты изолированные, окна выходят во двор.
Квартира располагается на 3 этаже 41-этажного дома в ЖК Прайм Парк.
Застройщик - Optima Development, сдача дома - III квартал 2026 года, высота потолков 3.1 м.
Дом оборудован пассажирским лифтом.
Подземная парковка, парковка охраняется. Обеспечение безопасности: консьерж. Инфраструктура: школа, детский сад, детские площадки, места для отдыха, супермаркет, рестораны, фитнес-центр.
Премиальный квартал PRIME PARK стал одним из знаковых жилых проектов столицы, который задал новые
ориентиры на рынке недвижимости. Он неизменно занимает лидирующие позиции по продажам в своем классе,
стал рекордсменом по количеству завоеванных международных и российских премий в области недвижимости,
а также был назван самым благоустроенным кварталом России на XIII Российской национальной премии по ландшафтной архитектуре.
Квартал стал новой доминантой Ленинградского проспекта. Архитектор Филип Болл не только разработал концепцию бескомпромиссно роскошного жилья, но и на постоянной основе осуществляет авторский надзор. Небоскребы квартала отличаются уникальным рисунком фасадов и располагаются в отдалении друг от друга, что обеспечивает постоянный поток солнечного света и восхитительные виды из каждой квартиры. В то же время геометрия PRIME PARK продумана
таким образом, чтобы создать атмосферу спокойствия и тишины на территории частного парка.
5 мин. от Тверской улицы, Патриарших прудов и Белой площади;
20 мин. до аэропорта «Шереметьево» или «Москва-Сити»;
4 парка - Ходынское поле, Петровский и Чапаевский парки, Березовая роща;
4 станции метро - «ЦСКА», «Аэропорт», «Динамо» и «Петровский парк».
Аккредитованные банки: Абсолют Банк, Совкомбанк, Альфа-Банк, Банк ДОМ. РФ, Промсвязьбанк, Банк ВТБ, Россельхозбанк, МКБ.
Позвоните и узнайте условия покупки прямо сейчас!
17.01.2026
45 133 288 ₽
Продается 2-комн. квартира, площадью 55.9 м2 в монолитной новостройке в 12 мин. пешком от м. Динамо. Возможен вариант покупки с использованием ипотечных средств.
Жилая площадь 44.72 м2, предчистовая отделка, комнаты изолированные, окна выходят во двор.
Квартира располагается на 2 этаже 41-этажного дома в ЖК Прайм Парк.
Застройщик - Optima Development, сдача дома - III квартал 2026 года, высота потолков 3.1 м.
Дом оборудован пассажирским лифтом.
Подземная парковка, парковка охраняется. Обеспечение безопасности: консьерж. Инфраструктура: школа, детский сад, детские площадки, места для отдыха, супермаркет, рестораны, фитнес-центр.
Премиальный квартал PRIME PARK стал одним из знаковых жилых проектов столицы, который задал новые
ориентиры на рынке недвижимости. Он неизменно занимает лидирующие позиции по продажам в своем классе,
стал рекордсменом по количеству завоеванных международных и российских премий в области недвижимости,
а также был назван самым благоустроенным кварталом России на XIII Российской национальной премии по ландшафтной архитектуре.
Квартал стал новой доминантой Ленинградского проспекта. Архитектор Филип Болл не только разработал концепцию бескомпромиссно роскошного жилья, но и на постоянной основе осуществляет авторский надзор. Небоскребы квартала отличаются уникальным рисунком фасадов и располагаются в отдалении друг от друга, что обеспечивает постоянный поток солнечного света и восхитительные виды из каждой квартиры. В то же время геометрия PRIME PARK продумана
таким образом, чтобы создать атмосферу спокойствия и тишины на территории частного парка.
5 мин. от Тверской улицы, Патриарших прудов и Белой площади;
20 мин. до аэропорта «Шереметьево» или «Москва-Сити»;
4 парка - Ходынское поле, Петровский и Чапаевский парки, Березовая роща;
4 станции метро - «ЦСКА», «Аэропорт», «Динамо» и «Петровский парк».
Аккредитованные банки: Абсолют Банк, Совкомбанк, Альфа-Банк, Банк ДОМ. РФ, Промсвязьбанк, Банк ВТБ, Россельхозбанк, МКБ.
Позвоните и узнайте условия покупки прямо сейчас!
17.01.2026
44 783 417 ₽
Продается просторная квартира площадью 182.70 м2 в жилом комплексе РЕКА. Квартира находится в 1 секции корпуса 3 (будет введен в эксплуатацию в 4 кв. 2026) . Этаж 11-й из 16.
В квартире продуманная функциональная планировка с просторной кухней 27.80 м2. Жилая площадь - 77.30 м2. Высота потолка от 3,65 м. Изолированные комнаты, 5 санузлов(1 раздельный и 4 совмещенных) . Окна на смежные стороны. Виды на природный парк и реку.
РЕКА - клубный дом от Донстрой на западе Москвы, у границы природного заповедника "Долина реки Сетунь", по соседству с МГУ и МГИМО, дипломатическими представительствами зарубежных стран. В 5 минутах ходьбы находится станция метро "Мичуринский проспект", от которой до центра можно доехать за 15 минут. Также 15 минут понадобится, чтобы добраться на автомобиле до Садового кольца.
Прямо из дома можно попасть в природную часть грандиозного парка "Событие". Здесь созданы детские игровые площадки "Луг" и "Лес", большая воркаут-зона, поле для командных видов спорта, площадка для пикников, смотровые площадки с великолепными видами, летний амфитеатр для лекториев и летняя школа.
Архитектурный проект дома выполнен в стиле современной классики: фасады с облицовкой из натурального камня и металлическими декоративными элементами.
В доме представлены элитные клубные резиденции. Одна из секций целиком состоит из квартир с финишной авторской отделкой: дизайнерские интерьеры, итальянские кухни, премиальная бытовая техника и сантехника. В наличии имеются пентхаусы с террасами и каминами.
В непосредственной близости от дома предусмотрены школы, детские сады, магазины, фитнес-центры, кафе и рестораны, медицинские центры - все, что необходимо для жизни.
Закрытый двор без машин обеспечен круглосуточной охраной и системами контроля доступа. Двор создан как ландшафтное продолжение окружающих природных парков и зонирован для различных видов отдыха, детских игр, занятий спортом.
Работает шоурум.
Позвоните и запишитесь на показ квартиры.
27.01.2026
199 873 800 ₽
Продается просторная квартира площадью 178.90 м2 в жилом комплексе РЕКА. Квартира находится в 1 секции корпуса 3 (будет введен в эксплуатацию в 4 кв. 2026) . Этаж 9-й из 16.
В квартире продуманная функциональная планировка с просторной кухней 27.80 м2. Жилая площадь - 73.60 м2. Высота потолка от 3,65 м. Изолированные комнаты, 5 санузлов(1 раздельный и 4 совмещенных) . Окна на смежные стороны. Виды на природный парк и реку.
РЕКА - клубный дом от Донстрой на западе Москвы, у границы природного заповедника "Долина реки Сетунь", по соседству с МГУ и МГИМО, дипломатическими представительствами зарубежных стран. В 5 минутах ходьбы находится станция метро "Мичуринский проспект", от которой до центра можно доехать за 15 минут. Также 15 минут понадобится, чтобы добраться на автомобиле до Садового кольца.
Прямо из дома можно попасть в природную часть грандиозного парка "Событие". Здесь созданы детские игровые площадки "Луг" и "Лес", большая воркаут-зона, поле для командных видов спорта, площадка для пикников, смотровые площадки с великолепными видами, летний амфитеатр для лекториев и летняя школа.
Архитектурный проект дома выполнен в стиле современной классики: фасады с облицовкой из натурального камня и металлическими декоративными элементами.
В доме представлены элитные клубные резиденции. Одна из секций целиком состоит из квартир с финишной авторской отделкой: дизайнерские интерьеры, итальянские кухни, премиальная бытовая техника и сантехника. В наличии имеются пентхаусы с террасами и каминами.
В непосредственной близости от дома предусмотрены школы, детские сады, магазины, фитнес-центры, кафе и рестораны, медицинские центры - все, что необходимо для жизни.
Закрытый двор без машин обеспечен круглосуточной охраной и системами контроля доступа. Двор создан как ландшафтное продолжение окружающих природных парков и зонирован для различных видов отдыха, детских игр, занятий спортом.
Работает шоурум.
Позвоните и запишитесь на показ квартиры.
27.01.2026
192 854 200 ₽
ПРОДАЕТСЯ 2 комнатная квартира в ЖК бизнес-класса "Воронцово", ул. Воронцовские Пруды дом 3.
Видовая квартира в очень зеленом районе, 19 этаж. Индивидуальная планировка квартиры: 101,6/45/15, большие комнаты, два санузла, гардеробная, большая лоджия на комнату и кухню, высокие потолки. Отделка wite box, что позволит Вам воплотить все свои фантазии в отделке квартиры.
Все, что нужно для комфортной жизни здесь в шаговой доступности. Дом с подземным паркингом. На территории пешеходные зоны, игровые и спортивные площадки, фитнес-центр с басейном и СПА зонами (турецкая баня, русская баня и сауна) , школа, детские площадки, детский сад. На территории ЖК круглосуточная охрана и видеонаблюдение, огороженная территория.
Рядом расположены 2 парка: Воронцовские Пруды и Удальцовские Пруды, пешая доступность до БКЛ Воронцовская - 500метров.
СВОБОДНАЯ ПРОДАЖА! Один собственник. Без обременений. Возможна продажа по ипотеке. Ключи на руках, покажем оперативно.
31.01.2026
43 500 000 ₽
Продается просторная квартира площадью 150.00 м2 в жилом комплексе РЕКА. Квартира находится во 2 секции корпуса 3 (будет введен в эксплуатацию в 4 кв. 2026) . Этаж 9-й из 12.
В квартире продуманная функциональная планировка с просторной кухней 34.50 м2. Жилая площадь - 57.20 м2. Высота потолка от 3,65 м. Изолированные комнаты, 4 санузла(1 раздельный и 3 совмещенных) . Окна на противоположные стороны. Виды на природный парк и реку.
РЕКА - клубный дом от Донстрой на западе Москвы, у границы природного заповедника "Долина реки Сетунь", по соседству с МГУ и МГИМО, дипломатическими представительствами зарубежных стран. В 5 минутах ходьбы находится станция метро "Мичуринский проспект", от которой до центра можно доехать за 15 минут. Также 15 минут понадобится, чтобы добраться на автомобиле до Садового кольца.
Прямо из дома можно попасть в природную часть грандиозного парка "Событие". Здесь созданы детские игровые площадки "Луг" и "Лес", большая воркаут-зона, поле для командных видов спорта, площадка для пикников, смотровые площадки с великолепными видами, летний амфитеатр для лекториев и летняя школа.
Архитектурный проект дома выполнен в стиле современной классики: фасады с облицовкой из натурального камня и металлическими декоративными элементами.
В доме представлены элитные клубные резиденции. Одна из секций целиком состоит из квартир с финишной авторской отделкой: дизайнерские интерьеры, итальянские кухни, премиальная бытовая техника и сантехника. В наличии имеются пентхаусы с террасами и каминами.
В непосредственной близости от дома предусмотрены школы, детские сады, магазины, фитнес-центры, кафе и рестораны, медицинские центры - все, что необходимо для жизни.
Закрытый двор без машин обеспечен круглосуточной охраной и системами контроля доступа. Двор создан как ландшафтное продолжение окружающих природных парков и зонирован для различных видов отдыха, детских игр, занятий спортом.
Работает шоурум.
Позвоните и запишитесь на показ квартиры.
27.01.2026
156 750 000 ₽
Продается просторная квартира площадью 166.00 м2 в жилом комплексе ДОМ XXII. Квартира находится в 1 секции корпуса 1. Этаж 2-й из 11.
Квартира без чистовой отделки, с просторной кухней 44.50 м2. Жилая площадь - 58.60 м2. Высота потолка от 3.50.
ДОМ XXII расположен в Хамовниках - одном из самых респектабельных и тихих районов Москвы. Прямо напротив дома - Новодевичий монастырь, по соседству - Саввинская набережная Москвы-реки и сквер Девичьего поля. Расположение дома позволяет за считанные минуты добраться до всех знаковых мест столицы. Например, на автомобиле до Садового кольца 5 минут, до Дома Правительства - 8, до Кремля - 10.
Неоклассический архитектурный проект переменной этажности (9-12 этажей) выполнен мастерской «Сергей Киселев и Партнеры». Фасады облицованы натуральным мрамором и гранитом, их оригинальный декор создан Андреем, Павлом и Петром Наличами. Благородный силуэт дома подчеркнут французскими балконами и моллированным остеклением на углах.
В доме всего 109 квартир: лоты с патио, пентхаусы с панорамными террасами и возможностью установки камина, а также классические элитные квартиры с большими гостиными, мастер-спальнями, приватными ванными и гардеробными, террасами и лоджиями.
У дома предусмотрена зона дроп-офф. В интерьерах лобби использованы люксовые отделочные материалы, эксклюзивные световые инсталляции, декоративное озеленение. Премиальную атмосферу дополняют зенитный фонарь с естественным светом, водопад, лаунж у камина и библиотека. Площадь лобби 660 м2, высота потолков - до 6,5 м.
Двор превращен в тихий усадебный парк площадью 490 м2. Здесь создана приватная атмосфера для уединенного отдыха: дубовая аллея, пруд с живописным мостиком, галерея-берсо, зеленые комнаты, садовый камин, фонтаны. Для детей - игровая площадка. Для занятий спортом - воркаут. Предусмотрен контроль доступа на территорию, круглосуточная охрана, видеонаблюдение.
Неподалеку находятся лучшие школы: №57, №1535, Филипповская школа, школа «Золотое Сечение». Для знатоков гастрономии рядом - лучшие рестораны: Verd, Peach, «Сахалин», Modus, Soho Rooms, модный гастрономический кластер «Усачевский рынок». Для занятий спортом - спортивный комплекс «Лужники». Для ценителей искусства - Московский дворец молодежи
27.01.2026
342 624 000 ₽
В рамках процедуры банкротства реализуется квартира по адресу: Московская область, г. Железнодорожный, ул. Чаплыгина, д. 1, кв. 84. Кадастровый номер: 50: 50: 0000000: 11646Общей площадью: 121,8 кв. м
Прием заявок на ЭТП "Уральская электронная торговая площадка", задаток 10%. Специалисты Банка сопровождают процедуру участия в торгах "под ключ": - регистрация на ЭТП;- подача заявки;- торги;- сопровождение сделки купли-продажи. Все вопросы можно уточнить на сайте активов банка Portal-DA. Либо обращаться по телефону в будние дни с 09: 00 до 18: 00 по МСК.
16.12.2025
8 560 056 ₽
Продается просторная квартира площадью 179.40 м2 в жилом комплексе РЕКА. Квартира находится во 2 секции корпуса 2 введен в эксплуатацию в 4 кв. 2023. Этаж 10-й из 12.
В квартире продуманная функциональная планировка с просторной кухней 16.20 м2. Жилая площадь - 99.50 м2. Высота потолка от 3,65 м. Изолированные комнаты, 4 санузла(1 раздельный и 3 совмещенных) . Окна на противоположные стороны. Виды на природный парк и реку.
РЕКА - клубный дом от Донстрой на западе Москвы, у границы природного заповедника "Долина реки Сетунь", по соседству с МГУ и МГИМО, дипломатическими представительствами зарубежных стран. В 5 минутах ходьбы находится станция метро "Мичуринский проспект", от которой до центра можно доехать за 15 минут. Также 15 минут понадобится, чтобы добраться на автомобиле до Садового кольца.
Прямо из дома можно попасть в природную часть грандиозного парка "Событие". Здесь созданы детские игровые площадки "Луг" и "Лес", большая воркаут-зона, поле для командных видов спорта, площадка для пикников, смотровые площадки с великолепными видами, летний амфитеатр для лекториев и летняя школа.
Архитектурный проект дома выполнен в стиле современной классики: фасады с облицовкой из натурального камня и металлическими декоративными элементами.
В доме представлены элитные клубные резиденции. Одна из секций целиком состоит из квартир с финишной авторской отделкой: дизайнерские интерьеры, итальянские кухни, премиальная бытовая техника и сантехника. В наличии имеются пентхаусы с террасами и каминами.
В непосредственной близости от дома предусмотрены школы, детские сады, магазины, фитнес-центры, кафе и рестораны, медицинские центры - все, что необходимо для жизни.
Закрытый двор без машин обеспечен круглосуточной охраной и системами контроля доступа. Двор создан как ландшафтное продолжение окружающих природных парков и зонирован для различных видов отдыха, детских игр, занятий спортом.
Работает шоурум.
Позвоните и запишитесь на показ квартиры.
27.01.2026
251 558 800 ₽
Продается просторная квартира площадью 150.30 м2 в жилом комплексе РЕКА. Квартира находится в 4 секции корпуса 3 (будет введен в эксплуатацию в 4 кв. 2026) . Этаж 6-й из 14.
В квартире продуманная функциональная планировка с просторной кухней 35.70 м2. Жилая площадь - 48.70 м2. Высота потолка от 3,65 м. Изолированные комнаты, 4 санузла(1 раздельный и 3 совмещенных) . Окна на смежные стороны. Виды на природный парк и реку.
РЕКА - клубный дом от Донстрой на западе Москвы, у границы природного заповедника "Долина реки Сетунь", по соседству с МГУ и МГИМО, дипломатическими представительствами зарубежных стран. В 5 минутах ходьбы находится станция метро "Мичуринский проспект", от которой до центра можно доехать за 15 минут. Также 15 минут понадобится, чтобы добраться на автомобиле до Садового кольца.
Прямо из дома можно попасть в природную часть грандиозного парка "Событие". Здесь созданы детские игровые площадки "Луг" и "Лес", большая воркаут-зона, поле для командных видов спорта, площадка для пикников, смотровые площадки с великолепными видами, летний амфитеатр для лекториев и летняя школа.
Архитектурный проект дома выполнен в стиле современной классики: фасады с облицовкой из натурального камня и металлическими декоративными элементами.
В доме представлены элитные клубные резиденции. Одна из секций целиком состоит из квартир с финишной авторской отделкой: дизайнерские интерьеры, итальянские кухни, премиальная бытовая техника и сантехника. В наличии имеются пентхаусы с террасами и каминами.
В непосредственной близости от дома предусмотрены школы, детские сады, магазины, фитнес-центры, кафе и рестораны, медицинские центры - все, что необходимо для жизни.
Закрытый двор без машин обеспечен круглосуточной охраной и системами контроля доступа. Двор создан как ландшафтное продолжение окружающих природных парков и зонирован для различных видов отдыха, детских игр, занятий спортом.
Работает шоурум.
Позвоните и запишитесь на показ квартиры.
27.01.2026
135 720 900 ₽
К продаже предлагается право требование участника долевого строительства по договору о долевом строительстве квартира-студия, общ. Пл. 22, 87 кв.м. , номер квартиры 322, этаж 15 секция 22. Дом располагается на земельном участке с кад. №50: 21: 0060310: 1677. Адрес объекта Московская область, г. Видное, дер. Коробово, корп. 7.2. Строительство осуществляет: ООО Специализированный застройщик «Самолет- Коробово» ОГРН 1137746376877Продажа осуществляется в рамках процедуры банкротства. Предлагаем воспользоваться услугами профессионального агента для приобретения с торгов. В случае возникновения вопросов - обращайтесь.
16.12.2025
7 640 000 ₽
Продается просторная квартира площадью 219.00 м2 в жилом комплексе РЕКА. Квартира находится в 4 секции корпуса 3 (будет введен в эксплуатацию в 4 кв. 2026) . Этаж 12-й из 14.
В квартире продуманная функциональная планировка с просторной кухней 34.60 м2. Жилая площадь - 99.20 м2. Высота потолка от 3,65 м. Изолированные комнаты, 3 санузла(1 раздельный и 2 совмещенных) . Окна на противоположные стороны. Виды на природный парк и реку.
РЕКА - клубный дом от Донстрой на западе Москвы, у границы природного заповедника "Долина реки Сетунь", по соседству с МГУ и МГИМО, дипломатическими представительствами зарубежных стран. В 5 минутах ходьбы находится станция метро "Мичуринский проспект", от которой до центра можно доехать за 15 минут. Также 15 минут понадобится, чтобы добраться на автомобиле до Садового кольца.
Прямо из дома можно попасть в природную часть грандиозного парка "Событие". Здесь созданы детские игровые площадки "Луг" и "Лес", большая воркаут-зона, поле для командных видов спорта, площадка для пикников, смотровые площадки с великолепными видами, летний амфитеатр для лекториев и летняя школа.
Архитектурный проект дома выполнен в стиле современной классики: фасады с облицовкой из натурального камня и металлическими декоративными элементами.
В доме представлены элитные клубные резиденции. Одна из секций целиком состоит из квартир с финишной авторской отделкой: дизайнерские интерьеры, итальянские кухни, премиальная бытовая техника и сантехника. В наличии имеются пентхаусы с террасами и каминами.
В непосредственной близости от дома предусмотрены школы, детские сады, магазины, фитнес-центры, кафе и рестораны, медицинские центры - все, что необходимо для жизни.
Закрытый двор без машин обеспечен круглосуточной охраной и системами контроля доступа. Двор создан как ландшафтное продолжение окружающих природных парков и зонирован для различных видов отдыха, детских игр, занятий спортом.
Работает шоурум.
Позвоните и запишитесь на показ квартиры.
27.01.2026
213 744 000 ₽
Продается просторная квартира площадью 276.40 м2 в жилом комплексе РЕКА. Квартира находится в 1 секции корпуса 3 (будет введен в эксплуатацию в 4 кв. 2026) . Этаж 13-й из 16.
В квартире продуманная функциональная планировка с просторной кухней 60.00 м2. Жилая площадь - 110.90 м2. Высота потолка от 3,65 м. Изолированные комнаты, 4 совмещенных санузла. Окна на смежные стороны. Виды на природный парк и реку.
РЕКА - клубный дом от Донстрой на западе Москвы, у границы природного заповедника "Долина реки Сетунь", по соседству с МГУ и МГИМО, дипломатическими представительствами зарубежных стран. В 5 минутах ходьбы находится станция метро "Мичуринский проспект", от которой до центра можно доехать за 15 минут. Также 15 минут понадобится, чтобы добраться на автомобиле до Садового кольца.
Прямо из дома можно попасть в природную часть грандиозного парка "Событие". Здесь созданы детские игровые площадки "Луг" и "Лес", большая воркаут-зона, поле для командных видов спорта, площадка для пикников, смотровые площадки с великолепными видами, летний амфитеатр для лекториев и летняя школа.
Архитектурный проект дома выполнен в стиле современной классики: фасады с облицовкой из натурального камня и металлическими декоративными элементами.
В доме представлены элитные клубные резиденции. Одна из секций целиком состоит из квартир с финишной авторской отделкой: дизайнерские интерьеры, итальянские кухни, премиальная бытовая техника и сантехника. В наличии имеются пентхаусы с террасами и каминами.
В непосредственной близости от дома предусмотрены школы, детские сады, магазины, фитнес-центры, кафе и рестораны, медицинские центры - все, что необходимо для жизни.
Закрытый двор без машин обеспечен круглосуточной охраной и системами контроля доступа. Двор создан как ландшафтное продолжение окружающих природных парков и зонирован для различных видов отдыха, детских игр, занятий спортом.
Работает шоурум.
Позвоните и запишитесь на показ квартиры.
27.01.2026
289 114 400 ₽
Продается просторная квартира площадью 279.90 м2 в жилом комплексе РЕКА. Квартира находится в 1 секции корпуса 3 (будет введен в эксплуатацию в 4 кв. 2026) . Этаж 16-й из 16.
В квартире продуманная функциональная планировка с просторной кухней 71.00 м2. Жилая площадь - 81.80 м2. Высота потолка от 3,65 м. Изолированные комнаты, 4 совмещенных санузла. Окна на три стороны света. Виды на природный парк и реку.
РЕКА - клубный дом от Донстрой на западе Москвы, у границы природного заповедника "Долина реки Сетунь", по соседству с МГУ и МГИМО, дипломатическими представительствами зарубежных стран. В 5 минутах ходьбы находится станция метро "Мичуринский проспект", от которой до центра можно доехать за 15 минут. Также 15 минут понадобится, чтобы добраться на автомобиле до Садового кольца.
Прямо из дома можно попасть в природную часть грандиозного парка "Событие". Здесь созданы детские игровые площадки "Луг" и "Лес", большая воркаут-зона, поле для командных видов спорта, площадка для пикников, смотровые площадки с великолепными видами, летний амфитеатр для лекториев и летняя школа.
Архитектурный проект дома выполнен в стиле современной классики: фасады с облицовкой из натурального камня и металлическими декоративными элементами.
В доме представлены элитные клубные резиденции. Одна из секций целиком состоит из квартир с финишной авторской отделкой: дизайнерские интерьеры, итальянские кухни, премиальная бытовая техника и сантехника. В наличии имеются пентхаусы с террасами и каминами.
В непосредственной близости от дома предусмотрены школы, детские сады, магазины, фитнес-центры, кафе и рестораны, медицинские центры - все, что необходимо для жизни.
Закрытый двор без машин обеспечен круглосуточной охраной и системами контроля доступа. Двор создан как ландшафтное продолжение окружающих природных парков и зонирован для различных видов отдыха, детских игр, занятий спортом.
Работает шоурум.
Позвоните и запишитесь на показ квартиры.
01.02.2026
343 157 400 ₽
НОВЫЙ СОВРЕМЕННЫЙ ЖИЛОЙ КОМПЛЕКС ОТ НАДЕЖНОГО ЗАСТРОЙЩИКА! В исторической части города, в непосредственной близости с Николо-Угрешским монастырем и Москвой-рекой. Дом Введен в эксплуатацию. Продается 3 комнатная крупногабаритная квартира, площадь 83/16,7/18,2/15.8/11,6 м2, два с/у 4/2.2 м2, прихожая 11,2 м2, лоджия 2,6 м2. Адрес: Московская область, г. Дзержинский, ул. Дзержинская д. 26 Возможна ИПОТЕКА. Дом комфорт класса с улучшенным планировочным решением. Тихий зеленый спальный район города. В нутри комплекса торговый центр, медицинский центр. Рядом с домом сетевые магазины Магнит, Пятерочка, фермерский магазин Алексеевский, Николо-угрешский монастырь. Хорошее сообщение с Москвой, остановка общественного транспорта через дорогу от дома до Москвы можно добраться на автобусе за 30 мин до м Кузьминки, Котельники, Люблино, Братиславская, Алма-Атинская, станция Люберцы ходят автобусы. Развитая инфраструктура города в шаговой доступности: школа, детский сад, детская площадка, автостоянка, сетевые и розничные магазины, отделение СберБанка, аптеки, поликлиника
28.08.2025
12 839 285 ₽
Продается 3-комн. квартира, площадью 82.9 м2 в монолитно-кирпичной новостройке. Возможен вариант покупки с использованием ипотечных средств.
Жилая площадь 50.3 м2, кухня 11.5 м2, квартира без отделки. Установлены межкомнатные перегородки. Установлены деревянные входные двери. Окна- пластиковые, с двухкамерным стеклопакетом. Балконы и лоджии с остеклением. Электроснабжение- установлен квартирный электросчётчик(без внутренней разводки). Сантехника-стояки без внутренней разводки с установкой водосчётчиков. Отопление- конверторное, с установленными радиаторами.
Квартира располагается на 4 этаже 8-этажного дома в ЖК Дзержинский.
Застройщик - ГК «Стройсоюз», сдача дома - II квартал 2023 года, дом уже сдан, высота потолков 3 м. Инфраструктура: детские площадки, спортивные площадки, места для отдыха.
Проект доступного и комфортного жилья состоит из семи жилых домов (односекционных и многосекционных) малой этажности, архитектура которых выполнена в едином стиле. Дома возводятся с учётом последних тенденций в строительстве, согласно технологическим регламентам, в том числе устанавливающим требования по обеспечению безопасной эксплуатации зданий и безопасного использования прилегающих территорий с соблюдением технических условий.
Все дома Жилого комплекса возводятся по монолитно-кирпичной технологии. Фасадные решения учитывают близость ансамбля Николо-Угрешского монастыря, и выполнены из «жемчужного» и «шоколадного» облицовочного полуторного кирпича. Витражное остекление офисной части представляет собой алюминиевый каркас с заполнением двухкамерным стеклопакетом, стекло прозрачное. Витражные системы — алюминий. Остекление квартирных балконов предусматривается в виде навесной алюминиевой фасадной системы с заполнением одинарным стеклом и стемалитом бирюзового цвета.
Отличное расположение — рядом с Николо-Угрешским монастырём и парком с живописным прудом. В непосредственной близости конечная остановка большинства городских автобусов. Рядом спортивный комплекс Орбита, одна из городских гимназий и большой торговый центр в районе Городского рынка.
Аккредитованные банки: СберБанк, Газпромбанк, Россельхозбанк, Абсолют Банк, СНГБ, Банк ЗЕНИТ, Альфа-Банк, Банк «Открытие, Райффайзен Банк, МКБ, Связь-банк, Банк «Возрождение», ВТБ, Совкомбанк, Банк Уралсиб, Ак Барс Банк, Банк ДОМ.РФ
Позвоните и узнайте условия покупки прямо сейчас!
28.08.2025
12 825 454 ₽
НОВЫЙ СОВРЕМЕННЫЙ ЖИЛОЙ КОМПЛЕКС ОТ НАДЕЖНОГО ЗАСТРОЙЩИКА! В исторической части города, в непосредственной близости с Николо-Угрешским монастырем и Москвой-рекой. Дом Введен в эксплуатацию. Продается 3 комнатная крупногабаритная квартира, площадь 83,4/16,4/18,3/15.9/11,5 м2, два с/у 4/2.2 м2, прихожая 11,2 м2, лоджия 2,6 м2. Адрес: Московская область, г. Дзержинский, ул. Дзержинская д. 26 Возможна ИПОТЕКА. Дом комфорт класса с улучшенным планировочным решением. Тихий зеленый спальный район города. В нутри комплекса торговый центр, медицинский центр. Рядом с домом сетевые магазины Магнит, Пятерочка, фермерский магазин Алексеевский, Николо-угрешский монастырь. Хорошее сообщение с Москвой, остановка общественного транспорта через дорогу от дома до Москвы можно добраться на автобусе за 30 мин до м Кузьминки, Котельники, Люблино, Братиславская, Алма-Атинская, станция Люберцы ходят автобусы. Развитая инфраструктура города в шаговой доступности: школа, детский сад, детская площадка, автостоянка, сетевые и розничные магазины, отделение СберБанка, аптеки, поликлиника
28.08.2025
12 894 609 ₽
НОВЫЙ СОВРЕМЕННЫЙ ЖИЛОЙ КОМПЛЕКС ОТ НАДЕЖНОГО ЗАСТРОЙЩИКА! В исторической части города, в непосредственной близости с Николо-Угрешским монастырем и Москвой-рекой. Дом Введен в эксплуатацию. Продается 1 комнатная крупногабаритная квартира, площадь 43,7/17,4/13 м2, с/у совмещ. 4,2 м2, прихожая 4,3 м2, балкон 5,2 м2. Адрес: Московская область, г. Дзержинский, Героя России Виктора Дудкина д.3. Возможна ИПОТЕКА. Дом комфорт класса с улучшенным планировочным решением. Тихий зеленый спальный район города. В нутри комплекса торговый центр, медицинский центр. Рядом с домом сетевые магазины Магнит, Пятерочка, фермерский магазин Алексеевский, Николо-угрешский монастырь. Хорошее сообщение с Москвой, остановка общественного транспорта через дорогу от дома до Москвы можно добраться на автобусе за 30 мин до м Кузьминки, Котельники, Люблино, Братиславская, Алма-Атинская, станция Люберцы ходят автобусы. Развитая инфраструктура города в шаговой доступности: школа, детский сад, детская площадка, автостоянка, сетевые и розничные магазины, отделение СберБанка, аптеки, поликлиника
28.08.2025
7 206 969 ₽
НОВЫЙ СОВРЕМЕННЫЙ ЖИЛОЙ КОМПЛЕКС ОТ НАДЕЖНОГО ЗАСТРОЙЩИКА! В исторической части города, в непосредственной близости с Николо-Угрешским монастырем и Москвой-рекой. Дом Введен в эксплуатацию. Продается 1 комнатная крупногабаритная квартира, площадь 43,4/17,3/13 м2, с/у совмещ. 4,2 м2, прихожая 4,3 м2, балкон 5,2 м2. Адрес: Московская область, г. Дзержинский, Героя России Виктора Дудкина д. 3 . Возможна ИПОТЕКА. Дом комфорт класса с улучшенным планировочным решением. Тихий зеленый спальный район города. В нутри комплекса торговый центр, медицинский центр. Рядом с домом сетевые магазины Магнит, Пятерочка, фермерский магазин Алексеевский, Николо-угрешский монастырь. Хорошее сообщение с Москвой, остановка общественного транспорта через дорогу от дома до Москвы можно добраться на автобусе за 30 мин до м Кузьминки, Котельники, Люблино, Братиславская, Алма-Атинская, станция Люберцы ходят автобусы. Развитая инфраструктура города в шаговой доступности: школа, детский сад, детская площадка, автостоянка, сетевые и розничные магазины, отделение СберБанка, аптеки, поликлиника
28.08.2025
7 162 284 ₽
НОВЫЙ СОВРЕМЕННЫЙ ЖИЛОЙ КОМПЛЕКС ОТ НАДЕЖНОГО ЗАСТРОЙЩИКА! В исторической части города, в непосредственной близости с Николо-Угрешским монастырем и Москвой-рекой. Дом Введен в эксплуатацию. Продается 1 комнатная крупногабаритная квартира, площадь 43,4/17,4/12,9 м2, Адрес: Московская область, г. Дзержинский, ул. Героя России Виктора Дудкина . Возможна ИПОТЕКА. Квартира с современной планировкой. Тихий зеленый спальный район города. Рядом с домом сетевые магазины Магнит, Пятерочка, фермерский магазин Алексеевский, Николо-угрешский монастырь. Хорошее сообщение с Москвой, остановка общественного транспорта через дорогу от дома до Москвы можно добраться на автобусе за 30 мин до м Кузьминки, Котельники, Люблино, Братиславская, Алма-Атинская, станция Люберцы ходят автобусы. Развитая инфраструктура города в шаговой доступности: школа, детский сад, детская площадка, автостоянка, сетевые и розничные магазины, отделение СберБанка, аптеки, поликлиника
28.08.2025
7 162 284 ₽




















