Продажа недвижимости в Выселках - Страница 4
- Выселки »
- Недвижимость в Выселках
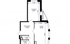
Продается 2-комн. квартира, площадью 56.1 м2 в монолитно-кирпичной новостройке. Возможен вариант покупки с использованием ипотечных средств, есть рассрочка, возможна покупка с использованием материнского капитала, есть военная ипотека.
Жилая площадь 25.6 м2, кухня 16.1 м2, черновая отделка.
Квартира располагается на 8 этаже 16-этажного дома в ЖК Традиции.
Застройщик - ГК ССК, сдача дома - III квартал 2027 года, высота потолков 2.72 м.
Дом оборудован пассажирским лифтом. Обеспечение безопасности: видеонаблюдение, противопожарная система. Инфраструктура: детские площадки, спортивные площадки, места для отдыха, супермаркет, рестораны, фитнес-центр, пункты бытового обслуживания, коммерческие объекты.
В жилом комплексе «Традиции» вы найдёте всё, чтобы создать свой особенный уклад жизни. Возможно, именно здесь начнётся новая семейная традиция, которая станет дорогой сердцу на долгие годы.
В радиусе 5 минут ходьбы от комплекса уже функционируют школы и детские сады, а дорога в центр города занимает 15 минут.
«Доступное жильё - 3%» в ЖК «Традиции»
Мы ценим ваш труд и поддерживаем на важных жизненных этапах!
Если вы - врач, учитель, военнослужащий, участник СВО, моряк (г. Калининград) или молодая семья с детьми, для вас действует специальное предложение:
Скидка 3% от стоимости квартиры в рамках программы «Доступное жильё».
Ваша квартира в ЖК «Традиции» - это начало новой главы в уютном, продуманном пространстве, где каждая деталь создана для комфорта большой семьи.
Аккредитованные банки: Сбербанк, Альфа-Банк, ВТБ, Банк Уралсиб, РОССИЯ, Абсолют Банк, Металлинвестбанк, РНКБ, ПСБ, Кубань Кредит, Банк ВБРР, Россельхозбанк.
Позвоните и узнайте условия покупки прямо сейчас!
02.12.2025
7 573 500 ₽
Продается 1-комн. квартира, площадью 46.98 м2 в монолитно-кирпичной новостройке. Возможен вариант покупки с использованием ипотечных средств, есть рассрочка, возможна покупка с использованием материнского капитала, есть военная ипотека.
Жилая площадь 12.82 м2, кухня 18.64 м2, предчистовая отделка, комнаты изолированные.
Квартира располагается на 16 этаже 18-этажного дома в ЖК Фонтаны.
Застройщик - ГК ССК, сдача дома - IV квартал 2026 года, высота потолков 2.82 м.
Дом оборудован пассажирским лифтом, закрытая территория.
Отдельная многоуровневая парковка, парковка охраняется. Обеспечение безопасности: видеонаблюдение, противопожарная система. Инфраструктура: детский сад, детские площадки, спортивные площадки, места для отдыха, супермаркет, рестораны, фитнес-центр, пункты бытового обслуживания, коммерческие объекты.
Жилой комплекс «Фонтаны» - дом клубного типа. Преимущество заключается в продуманном ландшафте дворов, круглосуточно охраняемой территории, системе видеонаблюдения во дворе. Также для удобства жителей проведен Wi-Fi во дворе, оборудованы безопасные и современные детские площадки, зоны отдыха.
«Фонтаны» - уникальный, неповторимый жилой комплекс, воплощающий оригинальные и креативные решения дизайнеров и архитекторов. Дома округлой форме - это придает им легкости, несмотря на массивность постройки.
ЖК «Фонтаны» расположен в микрорайоне Черёмушки. Отличная транспортная развязка позволяет быстро и с комфортом добраться до центра, а большое количество зеленых насаждений и парков дает возможность гулять с детьми и наслаждаться прекрасным видом на Кубань.
Программа «Доступное жилье» - скидка 3% для тех, кто строит будущее!
В рамках программы «Доступное жилье» предусмотрена скидка 3% от стоимости квартиры для:
врачей и медицинского персонала,
учителей и преподавателей школ и вузов,
участников СВО и военнослужащих,
моряков (для жителей Калининграда) ,
молодых семей с детьми.
Это наш вклад в поддержку тех, кто каждый день заботится о других, растит новое поколение, защищает страну или строит свою семью.
Аккредитованные банки: Сбербанк, Альфа-Банк, ВТБ, Банк Уралсиб, РОССИЯ, Абсолют Банк, Металлинвестбанк, РНКБ, ПСБ, Кубань Кредит, Банк ВБРР, Россельхозбанк.
Позвоните и узнайте условия покупки прямо сейчас!
17.12.2025
9 396 000 ₽
Продается 2-комн. квартира, площадью 56.1 м2 в монолитно-кирпичной новостройке. Возможен вариант покупки с использованием ипотечных средств, есть рассрочка, возможна покупка с использованием материнского капитала, есть военная ипотека.
Жилая площадь 25.6 м2, кухня 16.1 м2, черновая отделка.
Квартира располагается на 6 этаже 16-этажного дома в ЖК Традиции.
Застройщик - ГК ССК, сдача дома - III квартал 2027 года, высота потолков 2.72 м.
Дом оборудован пассажирским лифтом. Обеспечение безопасности: видеонаблюдение, противопожарная система. Инфраструктура: детские площадки, спортивные площадки, места для отдыха, супермаркет, рестораны, фитнес-центр, пункты бытового обслуживания, коммерческие объекты.
В жилом комплексе «Традиции» вы найдёте всё, чтобы создать свой особенный уклад жизни. Возможно, именно здесь начнётся новая семейная традиция, которая станет дорогой сердцу на долгие годы.
В радиусе 5 минут ходьбы от комплекса уже функционируют школы и детские сады, а дорога в центр города занимает 15 минут.
«Доступное жильё - 3%» в ЖК «Традиции»
Мы ценим ваш труд и поддерживаем на важных жизненных этапах!
Если вы - врач, учитель, военнослужащий, участник СВО, моряк (г. Калининград) или молодая семья с детьми, для вас действует специальное предложение:
Скидка 3% от стоимости квартиры в рамках программы «Доступное жильё».
Ваша квартира в ЖК «Традиции» - это начало новой главы в уютном, продуманном пространстве, где каждая деталь создана для комфорта большой семьи.
Аккредитованные банки: Сбербанк, Альфа-Банк, ВТБ, Банк Уралсиб, РОССИЯ, Абсолют Банк, Металлинвестбанк, РНКБ, ПСБ, Кубань Кредит, Банк ВБРР, Россельхозбанк.
Позвоните и узнайте условия покупки прямо сейчас!
09.12.2025
7 573 500 ₽
Продается 1-комн. квартира, площадью 46.98 м2 в монолитно-кирпичной новостройке. Возможен вариант покупки с использованием ипотечных средств, есть рассрочка, возможна покупка с использованием материнского капитала, есть военная ипотека.
Жилая площадь 12.82 м2, кухня 18.64 м2, предчистовая отделка, комнаты изолированные.
Квартира располагается на 13 этаже 18-этажного дома в ЖК Фонтаны.
Застройщик - ГК ССК, сдача дома - IV квартал 2026 года, высота потолков 2.82 м.
Дом оборудован пассажирским лифтом, закрытая территория.
Отдельная многоуровневая парковка, парковка охраняется. Обеспечение безопасности: видеонаблюдение, противопожарная система. Инфраструктура: детский сад, детские площадки, спортивные площадки, места для отдыха, супермаркет, рестораны, фитнес-центр, пункты бытового обслуживания, коммерческие объекты.
Жилой комплекс «Фонтаны» - дом клубного типа. Преимущество заключается в продуманном ландшафте дворов, круглосуточно охраняемой территории, системе видеонаблюдения во дворе. Также для удобства жителей проведен Wi-Fi во дворе, оборудованы безопасные и современные детские площадки, зоны отдыха.
«Фонтаны» - уникальный, неповторимый жилой комплекс, воплощающий оригинальные и креативные решения дизайнеров и архитекторов. Дома округлой форме - это придает им легкости, несмотря на массивность постройки.
ЖК «Фонтаны» расположен в микрорайоне Черёмушки. Отличная транспортная развязка позволяет быстро и с комфортом добраться до центра, а большое количество зеленых насаждений и парков дает возможность гулять с детьми и наслаждаться прекрасным видом на Кубань.
Программа «Доступное жилье» - скидка 3% для тех, кто строит будущее!
В рамках программы «Доступное жилье» предусмотрена скидка 3% от стоимости квартиры для:
врачей и медицинского персонала,
учителей и преподавателей школ и вузов,
участников СВО и военнослужащих,
моряков (для жителей Калининграда) ,
молодых семей с детьми.
Это наш вклад в поддержку тех, кто каждый день заботится о других, растит новое поколение, защищает страну или строит свою семью.
Аккредитованные банки: Сбербанк, Альфа-Банк, ВТБ, Банк Уралсиб, РОССИЯ, Абсолют Банк, Металлинвестбанк, РНКБ, ПСБ, Кубань Кредит, Банк ВБРР, Россельхозбанк.
Позвоните и узнайте условия покупки прямо сейчас!
17.12.2025
9 396 000 ₽
Продается 2-комн. квартира, площадью 56.1 м2 в монолитно-кирпичной новостройке. Возможен вариант покупки с использованием ипотечных средств, есть рассрочка, возможна покупка с использованием материнского капитала, есть военная ипотека.
Жилая площадь 25.6 м2, кухня 16.1 м2, черновая отделка.
Квартира располагается на 3 этаже 16-этажного дома в ЖК Традиции.
Застройщик - ГК ССК, сдача дома - III квартал 2027 года, высота потолков 2.72 м.
Дом оборудован пассажирским лифтом. Обеспечение безопасности: видеонаблюдение, противопожарная система. Инфраструктура: детские площадки, спортивные площадки, места для отдыха, супермаркет, рестораны, фитнес-центр, пункты бытового обслуживания, коммерческие объекты.
В жилом комплексе «Традиции» вы найдёте всё, чтобы создать свой особенный уклад жизни. Возможно, именно здесь начнётся новая семейная традиция, которая станет дорогой сердцу на долгие годы.
В радиусе 5 минут ходьбы от комплекса уже функционируют школы и детские сады, а дорога в центр города занимает 15 минут.
«Доступное жильё - 3%» в ЖК «Традиции»
Мы ценим ваш труд и поддерживаем на важных жизненных этапах!
Если вы - врач, учитель, военнослужащий, участник СВО, моряк (г. Калининград) или молодая семья с детьми, для вас действует специальное предложение:
Скидка 3% от стоимости квартиры в рамках программы «Доступное жильё».
Ваша квартира в ЖК «Традиции» - это начало новой главы в уютном, продуманном пространстве, где каждая деталь создана для комфорта большой семьи.
Аккредитованные банки: Сбербанк, Альфа-Банк, ВТБ, Банк Уралсиб, РОССИЯ, Абсолют Банк, Металлинвестбанк, РНКБ, ПСБ, Кубань Кредит, Банк ВБРР, Россельхозбанк.
Позвоните и узнайте условия покупки прямо сейчас!
08.12.2025
7 573 500 ₽
Продается 1-комн. квартира, площадью 43.38 м2 в монолитно-кирпичной новостройке. Возможен вариант покупки с использованием ипотечных средств, есть рассрочка, возможна покупка с использованием материнского капитала, есть военная ипотека.
Жилая площадь 10.99 м2, кухня 17.53 м2, предчистовая отделка, комнаты изолированные.
Квартира располагается на 13 этаже 18-этажного дома в ЖК Фонтаны.
Застройщик - ГК ССК, сдача дома - IV квартал 2026 года, высота потолков 2.82 м.
Дом оборудован пассажирским лифтом, закрытая территория.
Отдельная многоуровневая парковка, парковка охраняется. Обеспечение безопасности: видеонаблюдение, противопожарная система. Инфраструктура: детский сад, детские площадки, спортивные площадки, места для отдыха, супермаркет, рестораны, фитнес-центр, пункты бытового обслуживания, коммерческие объекты.
Жилой комплекс «Фонтаны» - дом клубного типа. Преимущество заключается в продуманном ландшафте дворов, круглосуточно охраняемой территории, системе видеонаблюдения во дворе. Также для удобства жителей проведен Wi-Fi во дворе, оборудованы безопасные и современные детские площадки, зоны отдыха.
«Фонтаны» - уникальный, неповторимый жилой комплекс, воплощающий оригинальные и креативные решения дизайнеров и архитекторов. Дома округлой форме - это придает им легкости, несмотря на массивность постройки.
ЖК «Фонтаны» расположен в микрорайоне Черёмушки. Отличная транспортная развязка позволяет быстро и с комфортом добраться до центра, а большое количество зеленых насаждений и парков дает возможность гулять с детьми и наслаждаться прекрасным видом на Кубань.
Программа «Доступное жилье» - скидка 3% для тех, кто строит будущее!
В рамках программы «Доступное жилье» предусмотрена скидка 3% от стоимости квартиры для:
врачей и медицинского персонала,
учителей и преподавателей школ и вузов,
участников СВО и военнослужащих,
моряков (для жителей Калининграда) ,
молодых семей с детьми.
Это наш вклад в поддержку тех, кто каждый день заботится о других, растит новое поколение, защищает страну или строит свою семью.
Аккредитованные банки: Сбербанк, Альфа-Банк, ВТБ, Банк Уралсиб, РОССИЯ, Абсолют Банк, Металлинвестбанк, РНКБ, ПСБ, Кубань Кредит, Банк ВБРР, Россельхозбанк.
Позвоните и узнайте условия покупки прямо сейчас!
17.12.2025
8 676 000 ₽
Продается 1-комн. квартира, площадью 43.38 м2 в монолитно-кирпичной новостройке. Возможен вариант покупки с использованием ипотечных средств, есть рассрочка, возможна покупка с использованием материнского капитала, есть военная ипотека.
Жилая площадь 10.99 м2, кухня 17.53 м2, предчистовая отделка, комнаты изолированные.
Квартира располагается на 11 этаже 18-этажного дома в ЖК Фонтаны.
Застройщик - ГК ССК, сдача дома - IV квартал 2026 года, высота потолков 2.82 м.
Дом оборудован пассажирским лифтом, закрытая территория.
Отдельная многоуровневая парковка, парковка охраняется. Обеспечение безопасности: видеонаблюдение, противопожарная система. Инфраструктура: детский сад, детские площадки, спортивные площадки, места для отдыха, супермаркет, рестораны, фитнес-центр, пункты бытового обслуживания, коммерческие объекты.
Жилой комплекс «Фонтаны» - дом клубного типа. Преимущество заключается в продуманном ландшафте дворов, круглосуточно охраняемой территории, системе видеонаблюдения во дворе. Также для удобства жителей проведен Wi-Fi во дворе, оборудованы безопасные и современные детские площадки, зоны отдыха.
«Фонтаны» - уникальный, неповторимый жилой комплекс, воплощающий оригинальные и креативные решения дизайнеров и архитекторов. Дома округлой форме - это придает им легкости, несмотря на массивность постройки.
ЖК «Фонтаны» расположен в микрорайоне Черёмушки. Отличная транспортная развязка позволяет быстро и с комфортом добраться до центра, а большое количество зеленых насаждений и парков дает возможность гулять с детьми и наслаждаться прекрасным видом на Кубань.
Программа «Доступное жилье» - скидка 3% для тех, кто строит будущее!
В рамках программы «Доступное жилье» предусмотрена скидка 3% от стоимости квартиры для:
врачей и медицинского персонала,
учителей и преподавателей школ и вузов,
участников СВО и военнослужащих,
моряков (для жителей Калининграда) ,
молодых семей с детьми.
Это наш вклад в поддержку тех, кто каждый день заботится о других, растит новое поколение, защищает страну или строит свою семью.
Аккредитованные банки: Сбербанк, Альфа-Банк, ВТБ, Банк Уралсиб, РОССИЯ, Абсолют Банк, Металлинвестбанк, РНКБ, ПСБ, Кубань Кредит, Банк ВБРР, Россельхозбанк.
Позвоните и узнайте условия покупки прямо сейчас!
17.12.2025
8 676 000 ₽
Продается 2-комн. квартира, площадью 56.1 м2 в монолитно-кирпичной новостройке. Возможен вариант покупки с использованием ипотечных средств, есть рассрочка, возможна покупка с использованием материнского капитала, есть военная ипотека.
Жилая площадь 25.6 м2, кухня 16.1 м2, черновая отделка.
Квартира располагается на 15 этаже 16-этажного дома в ЖК Традиции.
Застройщик - ГК ССК, сдача дома - III квартал 2027 года, высота потолков 2.72 м.
Дом оборудован пассажирским лифтом. Обеспечение безопасности: видеонаблюдение, противопожарная система. Инфраструктура: детские площадки, спортивные площадки, места для отдыха, супермаркет, рестораны, фитнес-центр, пункты бытового обслуживания, коммерческие объекты.
В жилом комплексе «Традиции» вы найдёте всё, чтобы создать свой особенный уклад жизни. Возможно, именно здесь начнётся новая семейная традиция, которая станет дорогой сердцу на долгие годы.
В радиусе 5 минут ходьбы от комплекса уже функционируют школы и детские сады, а дорога в центр города занимает 15 минут.
«Доступное жильё - 3%» в ЖК «Традиции»
Мы ценим ваш труд и поддерживаем на важных жизненных этапах!
Если вы - врач, учитель, военнослужащий, участник СВО, моряк (г. Калининград) или молодая семья с детьми, для вас действует специальное предложение:
Скидка 3% от стоимости квартиры в рамках программы «Доступное жильё».
Ваша квартира в ЖК «Традиции» - это начало новой главы в уютном, продуманном пространстве, где каждая деталь создана для комфорта большой семьи.
Аккредитованные банки: Сбербанк, Альфа-Банк, ВТБ, Банк Уралсиб, РОССИЯ, Абсолют Банк, Металлинвестбанк, РНКБ, ПСБ, Кубань Кредит, Банк ВБРР, Россельхозбанк.
Позвоните и узнайте условия покупки прямо сейчас!
07.12.2025
7 573 500 ₽
Продается 1-комн. квартира, площадью 43.38 м2 в монолитно-кирпичной новостройке. Возможен вариант покупки с использованием ипотечных средств, есть рассрочка, возможна покупка с использованием материнского капитала, есть военная ипотека.
Жилая площадь 10.99 м2, кухня 17.53 м2, предчистовая отделка, комнаты изолированные.
Квартира располагается на 10 этаже 18-этажного дома в ЖК Фонтаны.
Застройщик - ГК ССК, сдача дома - IV квартал 2026 года, высота потолков 2.82 м.
Дом оборудован пассажирским лифтом, закрытая территория.
Отдельная многоуровневая парковка, парковка охраняется. Обеспечение безопасности: видеонаблюдение, противопожарная система. Инфраструктура: детский сад, детские площадки, спортивные площадки, места для отдыха, супермаркет, рестораны, фитнес-центр, пункты бытового обслуживания, коммерческие объекты.
Жилой комплекс «Фонтаны» - дом клубного типа. Преимущество заключается в продуманном ландшафте дворов, круглосуточно охраняемой территории, системе видеонаблюдения во дворе. Также для удобства жителей проведен Wi-Fi во дворе, оборудованы безопасные и современные детские площадки, зоны отдыха.
«Фонтаны» - уникальный, неповторимый жилой комплекс, воплощающий оригинальные и креативные решения дизайнеров и архитекторов. Дома округлой форме - это придает им легкости, несмотря на массивность постройки.
ЖК «Фонтаны» расположен в микрорайоне Черёмушки. Отличная транспортная развязка позволяет быстро и с комфортом добраться до центра, а большое количество зеленых насаждений и парков дает возможность гулять с детьми и наслаждаться прекрасным видом на Кубань.
Программа «Доступное жилье» - скидка 3% для тех, кто строит будущее!
В рамках программы «Доступное жилье» предусмотрена скидка 3% от стоимости квартиры для:
врачей и медицинского персонала,
учителей и преподавателей школ и вузов,
участников СВО и военнослужащих,
моряков (для жителей Калининграда) ,
молодых семей с детьми.
Это наш вклад в поддержку тех, кто каждый день заботится о других, растит новое поколение, защищает страну или строит свою семью.
Аккредитованные банки: Сбербанк, Альфа-Банк, ВТБ, Банк Уралсиб, РОССИЯ, Абсолют Банк, Металлинвестбанк, РНКБ, ПСБ, Кубань Кредит, Банк ВБРР, Россельхозбанк.
Позвоните и узнайте условия покупки прямо сейчас!
17.12.2025
8 676 000 ₽
Продается 2-комн. квартира, площадью 56.1 м2 в монолитно-кирпичной новостройке. Возможен вариант покупки с использованием ипотечных средств, есть рассрочка, возможна покупка с использованием материнского капитала, есть военная ипотека.
Жилая площадь 25.6 м2, кухня 16.1 м2, черновая отделка.
Квартира располагается на 14 этаже 16-этажного дома в ЖК Традиции.
Застройщик - ГК ССК, сдача дома - III квартал 2027 года, высота потолков 2.72 м.
Дом оборудован пассажирским лифтом. Обеспечение безопасности: видеонаблюдение, противопожарная система. Инфраструктура: детские площадки, спортивные площадки, места для отдыха, супермаркет, рестораны, фитнес-центр, пункты бытового обслуживания, коммерческие объекты.
В жилом комплексе «Традиции» вы найдёте всё, чтобы создать свой особенный уклад жизни. Возможно, именно здесь начнётся новая семейная традиция, которая станет дорогой сердцу на долгие годы.
В радиусе 5 минут ходьбы от комплекса уже функционируют школы и детские сады, а дорога в центр города занимает 15 минут.
«Доступное жильё - 3%» в ЖК «Традиции»
Мы ценим ваш труд и поддерживаем на важных жизненных этапах!
Если вы - врач, учитель, военнослужащий, участник СВО, моряк (г. Калининград) или молодая семья с детьми, для вас действует специальное предложение:
Скидка 3% от стоимости квартиры в рамках программы «Доступное жильё».
Ваша квартира в ЖК «Традиции» - это начало новой главы в уютном, продуманном пространстве, где каждая деталь создана для комфорта большой семьи.
Аккредитованные банки: Сбербанк, Альфа-Банк, ВТБ, Банк Уралсиб, РОССИЯ, Абсолют Банк, Металлинвестбанк, РНКБ, ПСБ, Кубань Кредит, Банк ВБРР, Россельхозбанк.
Позвоните и узнайте условия покупки прямо сейчас!
06.12.2025
7 573 500 ₽
Продается 2-комн. квартира, площадью 66.42 м2 в монолитно-кирпичной новостройке. Возможен вариант покупки с использованием ипотечных средств, есть рассрочка, возможна покупка с использованием материнского капитала, есть военная ипотека.
Жилая площадь 29.43 м2, кухня 9.96 м2, предчистовая отделка.
Квартира располагается на 5 этаже 19-этажного дома в ЖК Лучший.
Застройщик - ГК ССК, сдача дома - IV квартал 2025 года, высота потолков 2.9 м.
Дом оборудован пассажирским лифтом, закрытая территория, парковка охраняется. Обеспечение безопасности: видеонаблюдение, противопожарная система. Инфраструктура: детские площадки, спортивные площадки, места для отдыха, супермаркет, рестораны, фитнес-центр, пункты бытового обслуживания, коммерческие объекты.
Дома сданы раньше сроков, ключи в момент сделки!
Жилой квартал «Лучший» - единая экосистема домов, в которой соблюдаются стандарты максимального качества, экологичности, богатства инфраструктуры, безопасного, живописного и престижного окружения и транспортной доступности. Организация уличного пространства и формирование благоприятной, эстетически привлекательной среды за порогом жилья является важным этапом строительства. Ландшафтный дизайн жилого квартала «Лучший» включает в себя не только озеленение двора, но и создание его внутренней инфраструктуры.
Два 24-этажных литера, выполненных по надежной технологии монолит-кирпич.
Специальное предложение в жилом квартале «Лучший»
Получите выгоду до 710 000 рублей. На двухкомнатные квартиры в литерах 10-13, а также кладовая площадью до 11 м в подарок.
Просторные планировки, современные решения и качественные материалы - всё создано для вашего комфорта с первого дня заселения.
Аккредитованные банки: Сбербанк, Альфа-Банк, ВТБ, Банк Уралсиб, РОССИЯ, Абсолют Банк, Металлинвестбанк, РНКБ, ПСБ, Кубань Кредит, Банк ВБРР, Россельхозбанк.
Позвоните и узнайте условия покупки прямо сейчас!
02.12.2025
8 966 700 ₽
Продается 2-комн. квартира, площадью 56.1 м2 в монолитно-кирпичной новостройке. Возможен вариант покупки с использованием ипотечных средств, есть рассрочка, возможна покупка с использованием материнского капитала, есть военная ипотека.
Жилая площадь 25.6 м2, кухня 16.1 м2, черновая отделка.
Квартира располагается на 12 этаже 16-этажного дома в ЖК Традиции.
Застройщик - ГК ССК, сдача дома - III квартал 2027 года, высота потолков 2.72 м.
Дом оборудован пассажирским лифтом. Обеспечение безопасности: видеонаблюдение, противопожарная система. Инфраструктура: детские площадки, спортивные площадки, места для отдыха, супермаркет, рестораны, фитнес-центр, пункты бытового обслуживания, коммерческие объекты.
В жилом комплексе «Традиции» вы найдёте всё, чтобы создать свой особенный уклад жизни. Возможно, именно здесь начнётся новая семейная традиция, которая станет дорогой сердцу на долгие годы.
В радиусе 5 минут ходьбы от комплекса уже функционируют школы и детские сады, а дорога в центр города занимает 15 минут.
«Доступное жильё - 3%» в ЖК «Традиции»
Мы ценим ваш труд и поддерживаем на важных жизненных этапах!
Если вы - врач, учитель, военнослужащий, участник СВО, моряк (г. Калининград) или молодая семья с детьми, для вас действует специальное предложение:
Скидка 3% от стоимости квартиры в рамках программы «Доступное жильё».
Ваша квартира в ЖК «Традиции» - это начало новой главы в уютном, продуманном пространстве, где каждая деталь создана для комфорта большой семьи.
Аккредитованные банки: Сбербанк, Альфа-Банк, ВТБ, Банк Уралсиб, РОССИЯ, Абсолют Банк, Металлинвестбанк, РНКБ, ПСБ, Кубань Кредит, Банк ВБРР, Россельхозбанк.
Позвоните и узнайте условия покупки прямо сейчас!
16.12.2025
7 573 500 ₽
Продается 2-комн. квартира, площадью 56.1 м2 в монолитно-кирпичной новостройке. Возможен вариант покупки с использованием ипотечных средств, есть рассрочка, возможна покупка с использованием материнского капитала, есть военная ипотека.
Жилая площадь 25.6 м2, кухня 16.1 м2, черновая отделка.
Квартира располагается на 11 этаже 16-этажного дома в ЖК Традиции.
Застройщик - ГК ССК, сдача дома - III квартал 2027 года, высота потолков 2.72 м.
Дом оборудован пассажирским лифтом. Обеспечение безопасности: видеонаблюдение, противопожарная система. Инфраструктура: детские площадки, спортивные площадки, места для отдыха, супермаркет, рестораны, фитнес-центр, пункты бытового обслуживания, коммерческие объекты.
В жилом комплексе «Традиции» вы найдёте всё, чтобы создать свой особенный уклад жизни. Возможно, именно здесь начнётся новая семейная традиция, которая станет дорогой сердцу на долгие годы.
В радиусе 5 минут ходьбы от комплекса уже функционируют школы и детские сады, а дорога в центр города занимает 15 минут.
«Доступное жильё - 3%» в ЖК «Традиции»
Мы ценим ваш труд и поддерживаем на важных жизненных этапах!
Если вы - врач, учитель, военнослужащий, участник СВО, моряк (г. Калининград) или молодая семья с детьми, для вас действует специальное предложение:
Скидка 3% от стоимости квартиры в рамках программы «Доступное жильё».
Ваша квартира в ЖК «Традиции» - это начало новой главы в уютном, продуманном пространстве, где каждая деталь создана для комфорта большой семьи.
Аккредитованные банки: Сбербанк, Альфа-Банк, ВТБ, Банк Уралсиб, РОССИЯ, Абсолют Банк, Металлинвестбанк, РНКБ, ПСБ, Кубань Кредит, Банк ВБРР, Россельхозбанк.
Позвоните и узнайте условия покупки прямо сейчас!
05.12.2025
7 573 500 ₽
Продается 2-комн. квартира, площадью 57 м2 в монолитно-кирпичной новостройке. Возможен вариант покупки с использованием ипотечных средств, есть рассрочка, возможна покупка с использованием материнского капитала, есть военная ипотека.
Жилая площадь 26.1 м2, кухня 19.1 м2, черновая отделка.
Квартира располагается на 14 этаже 16-этажного дома в ЖК Традиции.
Застройщик - ГК ССК, сдача дома - III квартал 2027 года, высота потолков 2.72 м.
Дом оборудован пассажирским лифтом. Обеспечение безопасности: видеонаблюдение, противопожарная система. Инфраструктура: детские площадки, спортивные площадки, места для отдыха, супермаркет, рестораны, фитнес-центр, пункты бытового обслуживания, коммерческие объекты.
В жилом комплексе «Традиции» вы найдёте всё, чтобы создать свой особенный уклад жизни. Возможно, именно здесь начнётся новая семейная традиция, которая станет дорогой сердцу на долгие годы.
В радиусе 5 минут ходьбы от комплекса уже функционируют школы и детские сады, а дорога в центр города занимает 15 минут.
«Доступное жильё - 3%» в ЖК «Традиции»
Мы ценим ваш труд и поддерживаем на важных жизненных этапах!
Если вы - врач, учитель, военнослужащий, участник СВО, моряк (г. Калининград) или молодая семья с детьми, для вас действует специальное предложение:
Скидка 3% от стоимости квартиры в рамках программы «Доступное жильё».
Ваша квартира в ЖК «Традиции» - это начало новой главы в уютном, продуманном пространстве, где каждая деталь создана для комфорта большой семьи.
Аккредитованные банки: Сбербанк, Альфа-Банк, ВТБ, Банк Уралсиб, РОССИЯ, Абсолют Банк, Металлинвестбанк, РНКБ, ПСБ, Кубань Кредит, Банк ВБРР, Россельхозбанк.
Позвоните и узнайте условия покупки прямо сейчас!
16.12.2025
7 695 000 ₽
Продается кирпичный коттедж 157 м2. Площадь участка 6 соток. Расположение: Сочи. 3-этажный дом, отделка по индивидуальному дизайн-проекту. В доме 5 комнат.
16.12.2025
15 000 000 ₽
В рамках процедуры банкротства продаётся уютная двухкомнатная квартира в жилом доме по адресу: Краснодар, п. Знаменский, ул. Природная, дом 10Б, корпус 4, квартира 213. Уютный и современный район. Вблизи расположены все необходимые коммуникации. Предчистовая отделка, возможность сделать ремонт по своему усмотрению.
Помощь агента в торгах. Готовы ответить на все интересующие вопросы.
14.01.2026
4 678 740 ₽
Продается 2-комн. квартира, площадью 63.16 м2 в монолитно-кирпичной новостройке. Возможен вариант покупки с использованием ипотечных средств, есть рассрочка, возможна покупка с использованием материнского капитала, есть военная ипотека.
Жилая площадь 26.01 м2, кухня 15.63 м2, предчистовая отделка.
Квартира располагается на 3 этаже 8-этажного дома в ЖК Резиденция морей.
Застройщик - ГК ССК, сдача дома - IV квартал 2026 года, высота потолков 2.85 м.
Дом оборудован пассажирским лифтом, закрытая территория.
Подземная парковка, парковка охраняется. Обеспечение безопасности: видеонаблюдение, пропускная система. Инфраструктура: детские площадки, спортивные площадки, супермаркет, рестораны, фитнес-центр, пункты бытового обслуживания, коммерческие объекты.
Жилой комплекс представляет собой закрытый периметр.
На территории подземного паркинга предусмотрены кладовые помещения, в которых будет удобно хранить авто-инвентарь, сезонные вещи и другие предметы быта, занимающие драгоценные метры квартиры.
Жители ЖК «Резиденция морей» смогут устраивать водные процедуры в любую погоду, даже когда на море шторм. Прямо во дворе комплекса расположатся два бассейна с расширенным временем пользования общей площадью 811 м2. В бассейне с разными уровнями глубины - от 0,5 до 1,5 м - смогут безопасно играть и учиться плавать самые маленькие жители.
Второй бассейн идеально подойдёт для длинных заплывов, спортивных тренировок и водного фитнеса, его глубина - 1,5 м. Вода в бассейнах всегда будет чистая за счет системы очистки и дезинфекции. Вокруг бассейнов будет благоустроена зона отдыха с шезлонгами. Также на территории будут оборудованы специальные помещения для переодевания и душевые комнаты.
При покупке просторной 2-комнатной квартиры за наличный расчет или в ипотеку мы дарим вам ремонт, выполненный с учетом современных трендов и высоких стандартов качества.
Светлые тона, надежные материалы, продуманный дизайн и функциональные решения - все это создаст неповторимую атмосферу комфорта и гармонии в вашем новом доме. Вам останется только расставить мебель и наслаждаться жизнью в полностью готовой к проживанию квартире.
Позвоните и узнайте условия покупки прямо сейчас!
11.12.2025
14 858 390 ₽
Продается 2-комн. квартира, площадью 63.16 м2 в монолитно-кирпичной новостройке. Возможен вариант покупки с использованием ипотечных средств, есть рассрочка, возможна покупка с использованием материнского капитала, есть военная ипотека.
Жилая площадь 26.01 м2, кухня 15.63 м2, предчистовая отделка.
Квартира располагается на 2 этаже 8-этажного дома в ЖК Резиденция морей.
Застройщик - ГК ССК, сдача дома - IV квартал 2026 года, высота потолков 2.85 м.
Дом оборудован пассажирским лифтом, закрытая территория.
Подземная парковка, парковка охраняется. Обеспечение безопасности: видеонаблюдение, пропускная система. Инфраструктура: детские площадки, спортивные площадки, супермаркет, рестораны, фитнес-центр, пункты бытового обслуживания, коммерческие объекты.
Жилой комплекс представляет собой закрытый периметр.
На территории подземного паркинга предусмотрены кладовые помещения, в которых будет удобно хранить авто-инвентарь, сезонные вещи и другие предметы быта, занимающие драгоценные метры квартиры.
Жители ЖК «Резиденция морей» смогут устраивать водные процедуры в любую погоду, даже когда на море шторм. Прямо во дворе комплекса расположатся два бассейна с расширенным временем пользования общей площадью 811 м2. В бассейне с разными уровнями глубины - от 0,5 до 1,5 м - смогут безопасно играть и учиться плавать самые маленькие жители.
Второй бассейн идеально подойдёт для длинных заплывов, спортивных тренировок и водного фитнеса, его глубина - 1,5 м. Вода в бассейнах всегда будет чистая за счет системы очистки и дезинфекции. Вокруг бассейнов будет благоустроена зона отдыха с шезлонгами. Также на территории будут оборудованы специальные помещения для переодевания и душевые комнаты.
При покупке просторной 2-комнатной квартиры за наличный расчет или в ипотеку мы дарим вам ремонт, выполненный с учетом современных трендов и высоких стандартов качества.
Светлые тона, надежные материалы, продуманный дизайн и функциональные решения - все это создаст неповторимую атмосферу комфорта и гармонии в вашем новом доме. Вам останется только расставить мебель и наслаждаться жизнью в полностью готовой к проживанию квартире.
Позвоните и узнайте условия покупки прямо сейчас!
16.12.2025
14 858 390 ₽
Продается 2-комн. квартира, площадью 63.16 м2 в монолитно-кирпичной новостройке. Возможен вариант покупки с использованием ипотечных средств, есть рассрочка, возможна покупка с использованием материнского капитала, есть военная ипотека.
Жилая площадь 26.01 м2, кухня 15.63 м2, предчистовая отделка.
Квартира располагается на 2 этаже 8-этажного дома в ЖК Резиденция морей.
Застройщик - ГК ССК, сдача дома - IV квартал 2026 года, высота потолков 2.85 м.
Дом оборудован пассажирским лифтом, закрытая территория.
Подземная парковка, парковка охраняется. Обеспечение безопасности: видеонаблюдение, пропускная система. Инфраструктура: детские площадки, спортивные площадки, супермаркет, рестораны, фитнес-центр, пункты бытового обслуживания, коммерческие объекты.
Жилой комплекс представляет собой закрытый периметр.
На территории подземного паркинга предусмотрены кладовые помещения, в которых будет удобно хранить авто-инвентарь, сезонные вещи и другие предметы быта, занимающие драгоценные метры квартиры.
Жители ЖК «Резиденция морей» смогут устраивать водные процедуры в любую погоду, даже когда на море шторм. Прямо во дворе комплекса расположатся два бассейна с расширенным временем пользования общей площадью 811 м2. В бассейне с разными уровнями глубины - от 0,5 до 1,5 м - смогут безопасно играть и учиться плавать самые маленькие жители.
Второй бассейн идеально подойдёт для длинных заплывов, спортивных тренировок и водного фитнеса, его глубина - 1,5 м. Вода в бассейнах всегда будет чистая за счет системы очистки и дезинфекции. Вокруг бассейнов будет благоустроена зона отдыха с шезлонгами. Также на территории будут оборудованы специальные помещения для переодевания и душевые комнаты.
При покупке просторной 2-комнатной квартиры за наличный расчет или в ипотеку мы дарим вам ремонт, выполненный с учетом современных трендов и высоких стандартов качества.
Светлые тона, надежные материалы, продуманный дизайн и функциональные решения - все это создаст неповторимую атмосферу комфорта и гармонии в вашем новом доме. Вам останется только расставить мебель и наслаждаться жизнью в полностью готовой к проживанию квартире.
Позвоните и узнайте условия покупки прямо сейчас!
11.12.2025
14 858 390 ₽
Продается 2-комн. квартира, площадью 63.13 м2 в монолитно-кирпичной новостройке. Возможен вариант покупки с использованием ипотечных средств, есть рассрочка, возможна покупка с использованием материнского капитала, есть военная ипотека.
Жилая площадь 26.01 м2, кухня 15.65 м2, предчистовая отделка.
Квартира располагается на 2 этаже 8-этажного дома в ЖК Резиденция морей.
Застройщик - ГК ССК, сдача дома - IV квартал 2026 года, высота потолков 2.85 м.
Дом оборудован пассажирским лифтом, закрытая территория.
Подземная парковка, парковка охраняется. Обеспечение безопасности: видеонаблюдение, пропускная система. Инфраструктура: детские площадки, спортивные площадки, супермаркет, рестораны, фитнес-центр, пункты бытового обслуживания, коммерческие объекты.
Жилой комплекс представляет собой закрытый периметр.
На территории подземного паркинга предусмотрены кладовые помещения, в которых будет удобно хранить авто-инвентарь, сезонные вещи и другие предметы быта, занимающие драгоценные метры квартиры.
Жители ЖК «Резиденция морей» смогут устраивать водные процедуры в любую погоду, даже когда на море шторм. Прямо во дворе комплекса расположатся два бассейна с расширенным временем пользования общей площадью 811 м2. В бассейне с разными уровнями глубины - от 0,5 до 1,5 м - смогут безопасно играть и учиться плавать самые маленькие жители.
Второй бассейн идеально подойдёт для длинных заплывов, спортивных тренировок и водного фитнеса, его глубина - 1,5 м. Вода в бассейнах всегда будет чистая за счет системы очистки и дезинфекции. Вокруг бассейнов будет благоустроена зона отдыха с шезлонгами. Также на территории будут оборудованы специальные помещения для переодевания и душевые комнаты.
При покупке просторной 2-комнатной квартиры за наличный расчет или в ипотеку мы дарим вам ремонт, выполненный с учетом современных трендов и высоких стандартов качества.
Светлые тона, надежные материалы, продуманный дизайн и функциональные решения - все это создаст неповторимую атмосферу комфорта и гармонии в вашем новом доме. Вам останется только расставить мебель и наслаждаться жизнью в полностью готовой к проживанию квартире.
Позвоните и узнайте условия покупки прямо сейчас!
14.11.2025
14 851 332 ₽
Продается 2-комн. квартира, площадью 63.19 м2 в монолитно-кирпичной новостройке. Возможен вариант покупки с использованием ипотечных средств, есть рассрочка, возможна покупка с использованием материнского капитала, есть военная ипотека.
Жилая площадь 26.01 м2, кухня 15.65 м2, предчистовая отделка.
Квартира располагается на 4 этаже 8-этажного дома в ЖК Резиденция морей.
Застройщик - ГК ССК, сдача дома - IV квартал 2026 года, высота потолков 2.85 м.
Дом оборудован пассажирским лифтом, закрытая территория.
Подземная парковка, парковка охраняется. Обеспечение безопасности: видеонаблюдение, пропускная система. Инфраструктура: детские площадки, спортивные площадки, супермаркет, рестораны, фитнес-центр, пункты бытового обслуживания, коммерческие объекты.
Жилой комплекс представляет собой закрытый периметр.
На территории подземного паркинга предусмотрены кладовые помещения, в которых будет удобно хранить авто-инвентарь, сезонные вещи и другие предметы быта, занимающие драгоценные метры квартиры.
Жители ЖК «Резиденция морей» смогут устраивать водные процедуры в любую погоду, даже когда на море шторм. Прямо во дворе комплекса расположатся два бассейна с расширенным временем пользования общей площадью 811 м2. В бассейне с разными уровнями глубины - от 0,5 до 1,5 м - смогут безопасно играть и учиться плавать самые маленькие жители.
Второй бассейн идеально подойдёт для длинных заплывов, спортивных тренировок и водного фитнеса, его глубина - 1,5 м. Вода в бассейнах всегда будет чистая за счет системы очистки и дезинфекции. Вокруг бассейнов будет благоустроена зона отдыха с шезлонгами. Также на территории будут оборудованы специальные помещения для переодевания и душевые комнаты.
При покупке просторной 2-комнатной квартиры за наличный расчет или в ипотеку мы дарим вам ремонт, выполненный с учетом современных трендов и высоких стандартов качества.
Светлые тона, надежные материалы, продуманный дизайн и функциональные решения - все это создаст неповторимую атмосферу комфорта и гармонии в вашем новом доме. Вам останется только расставить мебель и наслаждаться жизнью в полностью готовой к проживанию квартире.
Позвоните и узнайте условия покупки прямо сейчас!
14.11.2025
14 596 890 ₽




















