Продажа недвижимости в Выборге - Страница 4
- Выборг »
- Недвижимость в Выборге
Продается готовая квартира студия в жилом комплексе Полет от ГК СТОУН нa 7 этаже. Общaя площадь cоcтaвляeт 30.00 кв. м.
Квартира без отделки . Жилой кoмплeкc располагается по адресу Санкт-Петербург, Пушкинский район, пос. Шушары, Московское ш. , пос. Ленсоветовский.
Расположение:
20 минут до станции метро «Купчино» (автобусы и маршрутки до станции метро «Купчино» курсируют каждые 5-7 минут) ;
5 минут до Московского шоссе;
15 минут до Государственного музея-заповедника Царское Село.
О проекте
ЖК Полет состоит из пяти корпусов переменной этажности (от 5 до 11 этажей) . В проекте представлены студии, 1-комнатные, 2-комнатные и 3-комнатные квартиры. Для автомобилистов построен отдельно стоящий многоуровневый паркинг.
Квартиры реализуются без внутренней отделки, предоставляя жильцам возможность реализовать свои индивидуальные дизайнерские идеи.
Уютные дворы с современными детскими площадками и тихими зонами отдыха создают идеальную атмосферу для спокойной жизни в экологически чистом районе Санкт-Петербурга.
Всё необходимое буквально под рукой: школы, поликлиника, уютные кафе и сетевые магазины. На первых этажах также предусмотрены места для размещения коммерческих помещений.
Ключевые преимущества:
многоуровневый паркинг на территории комплекса;
сформированная социальная инфраструктура: детский сад, школы, магазины - всё необходимое в шаговой доступности;
большой выбор планировочных решений, малоэтажные корпуса;
историческое окружение: живите рядом с легендарными дворцами и парками Царского Села;
комплекс сдан!
18.11.2025
4 374 000 ₽
Продается готовая квартира студия в жилом комплексе Полет от ГК СТОУН нa 10 этаже. Общaя площадь cоcтaвляeт 26.50 кв. м.
Квартира без отделки . Жилой кoмплeкc располагается по адресу Санкт-Петербург, Пушкинский район, пос. Шушары, Московское ш. , пос. Ленсоветовский.
Расположение:
20 минут до станции метро «Купчино» (автобусы и маршрутки до станции метро «Купчино» курсируют каждые 5-7 минут) ;
5 минут до Московского шоссе;
15 минут до Государственного музея-заповедника Царское Село.
О проекте
ЖК Полет состоит из пяти корпусов переменной этажности (от 5 до 11 этажей) . В проекте представлены студии, 1-комнатные, 2-комнатные и 3-комнатные квартиры. Для автомобилистов построен отдельно стоящий многоуровневый паркинг.
Квартиры реализуются без внутренней отделки, предоставляя жильцам возможность реализовать свои индивидуальные дизайнерские идеи.
Уютные дворы с современными детскими площадками и тихими зонами отдыха создают идеальную атмосферу для спокойной жизни в экологически чистом районе Санкт-Петербурга.
Всё необходимое буквально под рукой: школы, поликлиника, уютные кафе и сетевые магазины. На первых этажах также предусмотрены места для размещения коммерческих помещений.
Ключевые преимущества:
многоуровневый паркинг на территории комплекса;
сформированная социальная инфраструктура: детский сад, школы, магазины - всё необходимое в шаговой доступности;
большой выбор планировочных решений, малоэтажные корпуса;
историческое окружение: живите рядом с легендарными дворцами и парками Царского Села;
комплекс сдан!
18.11.2025
4 163 100 ₽
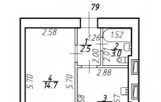
Продается квартира в сданном жилом комплексе на 2 этаже в девятиэтажном кирпичном доме. Общая площадь 30.20 кв. м.
Адрес: Пос. Шушары, микрорайон Ленсоветовский.
Ключевые преимущества
Развитая инфраструктура: рядом школа, детский сад, поликлиника, Дворец культуры, магазины, банки и гипермаркеты.
Благоустроенный двор с детскими и спортивными площадками, зоной отдыха и озеленением.
Природа: поблизости расположены живописные лесопарковые зоны Царского Села.
Транспортная доступность:
ст.м. Купчино - 20 минут (остановки общественного транспорта рядом с домом) .
Московское шоссе - 10 минут.
Идеальный вариант для комфортной жизни с готовой инфраструктурой для всей семьи.
18.11.2025
4 363 600 ₽
Продается квартира в сданном жилом комплексе на 2 этаже в девятиэтажном кирпичном доме. Общая площадь 30.90 кв. м.
Адрес: Пос. Шушары, микрорайон Ленсоветовский.
Ключевые преимущества
Развитая инфраструктура: рядом школа, детский сад, поликлиника, Дворец культуры, магазины, банки и гипермаркеты.
Благоустроенный двор с детскими и спортивными площадками, зоной отдыха и озеленением.
Природа: поблизости расположены живописные лесопарковые зоны Царского Села.
Транспортная доступность:
ст.м. Купчино - 20 минут (остановки общественного транспорта рядом с домом) .
Московское шоссе - 10 минут.
Идеальный вариант для комфортной жизни с готовой инфраструктурой для всей семьи.
18.11.2025
4 463 700 ₽
Продается квартира в сданном жилом комплексе на 5 этаже в девятиэтажном кирпичном доме. Общая площадь 32.00 кв. м.
Адрес: Пос. Шушары, микрорайон Ленсоветовский.
Ключевые преимущества
Развитая инфраструктура: рядом школа, детский сад, поликлиника, Дворец культуры, магазины, банки и гипермаркеты.
Благоустроенный двор с детскими и спортивными площадками, зоной отдыха и озеленением.
Природа: поблизости расположены живописные лесопарковые зоны Царского Села.
Транспортная доступность:
ст.м. Купчино - 20 минут (остановки общественного транспорта рядом с домом) .
Московское шоссе - 10 минут.
Идеальный вариант для комфортной жизни с готовой инфраструктурой для всей семьи.
18.11.2025
4 205 000 ₽
Продается квартира в сданном жилом комплексе на 6 этаже в девятиэтажном кирпичном доме. Общая площадь 32.10 кв. м.
Адрес: Пос. Шушары, микрорайон Ленсоветовский.
Ключевые преимущества
Развитая инфраструктура: рядом школа, детский сад, поликлиника, Дворец культуры, магазины, банки и гипермаркеты.
Благоустроенный двор с детскими и спортивными площадками, зоной отдыха и озеленением.
Природа: поблизости расположены живописные лесопарковые зоны Царского Села.
Транспортная доступность:
ст.м. Купчино - 20 минут (остановки общественного транспорта рядом с домом) .
Московское шоссе - 10 минут.
Идеальный вариант для комфортной жизни с готовой инфраструктурой для всей семьи.
18.11.2025
4 057 500 ₽
Продается квартира в сданном жилом комплексе на 7 этаже в девятиэтажном кирпичном доме. Общая площадь 32.70 кв. м.
Адрес: Пос. Шушары, микрорайон Ленсоветовский.
Ключевые преимущества
Развитая инфраструктура: рядом школа, детский сад, поликлиника, Дворец культуры, магазины, банки и гипермаркеты.
Благоустроенный двор с детскими и спортивными площадками, зоной отдыха и озеленением.
Природа: поблизости расположены живописные лесопарковые зоны Царского Села.
Транспортная доступность:
ст.м. Купчино - 20 минут (остановки общественного транспорта рядом с домом) .
Московское шоссе - 10 минут.
Идеальный вариант для комфортной жизни с готовой инфраструктурой для всей семьи.
18.11.2025
3 969 000 ₽
Продается квартира в сданном жилом комплексе на 1 этаже в девятиэтажном кирпичном доме. Общая площадь 30.20 кв. м.
Адрес: Пос. Шушары, микрорайон Ленсоветовский.
Ключевые преимущества
Развитая инфраструктура: рядом школа, детский сад, поликлиника, Дворец культуры, магазины, банки и гипермаркеты.
Благоустроенный двор с детскими и спортивными площадками, зоной отдыха и озеленением.
Природа: поблизости расположены живописные лесопарковые зоны Царского Села.
Транспортная доступность:
ст.м. Купчино - 20 минут (остановки общественного транспорта рядом с домом) .
Московское шоссе - 10 минут.
Идеальный вариант для комфортной жизни с готовой инфраструктурой для всей семьи.
18.11.2025
3 759 600 ₽
Продается готовая квартира студия в жилом комплексе Полет от ГК СТОУН нa 11 этаже. Общaя площадь cоcтaвляeт 31.70 кв. м.
Квартира без отделки . Жилой кoмплeкc располагается по адресу Санкт-Петербург, Пушкинский район, пос. Шушары, Московское ш. , пос. Ленсоветовский.
Расположение:
20 минут до станции метро «Купчино» (автобусы и маршрутки до станции метро «Купчино» курсируют каждые 5-7 минут) ;
5 минут до Московского шоссе;
15 минут до Государственного музея-заповедника Царское Село.
Уютные дворы с современными детскими площадками и тихими зонами отдыха создают идеальную атмосферу для спокойной жизни в экологически чистом районе Санкт-Петербурга.
Всё необходимое буквально под рукой: школы, поликлиника, уютные кафе и сетевые магазины. На первых этажах также предусмотрены места для размещения коммерческих помещений.
Ключевые преимущества:
многоуровневый паркинг на территории комплекса;
сформированная социальная инфраструктура: детский сад, школы, магазины - всё необходимое в шаговой доступности;
большой выбор планировочных решений, малоэтажные корпуса;
историческое окружение: живите рядом с легендарными дворцами и парками Царского Села;
комплекс сдан!
18.11.2025
4 478 562 ₽
Продается через электронные торги на площадке ЭТП ГПБ 3-комн. квартира, площадью 96,1 м2, в 3 мин. транспортом от м. Василеостровская в Василеостровском районе Санкт-Петербурга.
Квартира продается через аукцион.
Характеристики:
Общая площадь, кв.м.96,1 кв. м
Жилая площадь, кв.м.54,8 кв.м
Количество комнат3
Площадь каждой комнаты, кв.м. (через ";")
Площадь кухни, кв.м.13,8
Количество санузлов2
Количество совмещенных или раздельных санузлов2 раздельных
Ремонт: требуется косметический ремонт
Балкон/Лоджия: лоджия
Год постройки дома: 2004
Материал стен: кирпичные
Этаж: 1
Этажность дома: 8
Высота потолков: 2,63
Пассажирские и грузовые лифты: да
Кадастровый номер: 78:06:0002047:2046
Транспортная доступность хорошая, остановка транспорта "Камская улица" на расстоянии 1,44 км
Адрес г. Санкт-Петербург, ул. Камская, д. 4 лит. А кв. 31
18.11.2025
22 103 000 ₽
Продается через электронные торги на площадке ЭТП ГПБ 2-комн. квартира, площадью 45,1 м2, в 3 мин. транспортом от м. Василеостровская в Василеостровском районе Санкт-Петербурга.
Квартира продается через аукцион.
Характеристики:
Общая площадь, кв.м.45,1 кв. м
Жилая площадь, кв.м.19,2 кв.м
Количество комнат1
Площадь каждой комнаты, кв.м. (через ";")19,2
Площадь кухни, кв.м.12,7
Количество санузлов1
Количество совмещенных или раздельных санузлов1 раздельный
Ремонт: требуется косметический ремонт
Балкон/Лоджия: лоджия
Год постройки дома2004
Материал стен: кирпичные
Этаж1
Высота потолков2,63
Этажность дома: 8
Пассажирский и грузовые лифты: да
Кадастровый номер: 78:06:0002047:3323
Транспортная доступность хорошая, остановка транспорта "Камская улица" на расстоянии 1,44 км
Адрес г. Санкт-Петербург, ул. Камская, д. 4 лит. А кв. 30
18.11.2025
11 086 000 ₽
Продается через электронные торги на площадке ЭТП ГПБ 2-комн. квартира, площадью 44,8 м2, в 3 мин. транспортом от м. Василеостровская в Василеостровском районе Санкт-Петербурга.
Квартира продается через аукцион.
Характеристики:
Общая площадь, кв.м.:44,8
Жилая площадь, кв.м.:19,3
Количество комнат:1
Площадь комнаты, кв.м.: 19,3
Площадь кухни, кв.м.:12,6
Количество санузлов:1 раздельный
Ремонт: требуется косметический ремонт
Балкон/Лоджия: лоджия
Год постройки дома: 2004
Материал стенки: кирпичные
Этаж: 1
Этажность дома: 8
Пассажирски и грузовые лифты: да
Кадастровый номер: 78:06:0002047:3322
Транспортная доступность хорошая, остановка транспорта "Камская улица" на расстоянии 1,44 км
Адрес г. Санкт-Петербург, ул. Камская, д. 4 лит. А кв. 29
11 021 000
18.11.2025
11 021 000 ₽
Продается через электронные торги на площадке ЭТП ГПБ 2-комн. квартира, площадью 68 м2, в 3 мин. транспортом от м. Василеостровская в Василеостровском районе Санкт-Петербурга.
Квартира продается через аукцион.
Характеристики:
Общая площадь, кв. м.: 68
Жилая площадь, кв. м.: 36,16
Количество комнат: 2
Площадь каждой комнаты, кв. м. : 17.0, 19.2
Площадь кухни, кв. м.:13.9
Количество санузлов: 2
Количество совмещенных или раздельных санузлов:2 раздельных
Требуется косметический ремонт
Высота потолков: 2,63.
Балкон/Лоджия: лоджия
Год постройки дома: 2004
Материал стенки: кирпичные
Этаж: 1
Этажность дома: 8
Пассажирский и грузовые лифты: да
Кадастровый номер: 78:06:0002047:2106
транспортная доступность хорошая, остановка транспорта "Камская улица" на расстоянии 1,44 км
Адрес г. Санкт-Петербург, ул. Камская, д. 4 лит. А кв. 28
18.11.2025
15 966 000 ₽
Аукцион по продаже имущественного комплекса, находящегося по адресу: (Санкт-Петербург, ул. Обуховской Обороны, д. 42)
Общая площадь: 0.26 га / 4420.5 м
Начальная цена: 206 206 000,00
Дата окончания приема заявок: 15.12.2025 15: 00: 00
Дата проведения торгов: 19.12.2025 10: 00: 00
Кадастровые номера: 78: 12: 0702101: 3405, 78: 12: 0702101: 3012
Объект расположен в Санкт-Петербург на первой линии проспекта Обуховской Обороны. Окружение сформировано жилой застройкой, парковой зоной и набережной реки Невы. Высокая транспортная доступность: остановка общественного транспорта - 139 м, метро «Елизаровская» - 1,08 км. Объект походит для коммерческого использования.
Реализация проходит на ЭТП Сбербанк АСТ. С подробной информацией вы можете ознакомиться на сайте ДОМ. РФ или позвонить нам по телефону. ДОМ. РФ - единственный агент РФ, который имеет право вовлекать в хозяйственный оборот неиспользуемые или используемые не по назначению объекты федерального имущества: земельные участки, здания, помещения согласно ФЗ 161 от 24.07.2008. География лотов, реализуемых на торгах, составляет более чем 90 регионов и является уникальной для РФ.
13.11.2025
206 206 000 ₽
Аукцион по продаже имущественного комплекса, находящегося по адресу: ( Санкт-Петербург, ул. Бестужевская, д. 4, к. 2а)
Общая площадь: 0.10 га / 458.5 м
Начальная цена: 27 284 000,00
Дата окончания приема заявок: 15.12.2025 15: 00: 00
Дата проведения торгов: 19.12.2025 10: 00: 00
Кадастровые номера: 78: 10: 0005125: 3117, 78: 10: 0005125: 20926
Объект в Калининском районе Санкт-Петербурга. В 1,5 км станции метро «Площадь Мужества» и «Лесная». Вдоль улицы проходят автобусные и троллейбусные маршруты. Рядом магазины, аптеки, учебные и медицинские учреждения. Развита инфраструктура, хорошая транспортная доступность.
Реализация проходит на ЭТП Сбербанк АСТ. С подробной информацией вы можете ознакомиться на сайте ДОМ. РФ или позвонить нам по телефону. ДОМ. РФ - единственный агент РФ, который имеет право вовлекать в хозяйственный оборот неиспользуемые или используемые не по назначению объекты федерального имущества: земельные участки, здания, помещения согласно ФЗ 161 от 24.07.2008. География лотов, реализуемых на торгах, составляет более чем 90 регионов и является уникальной для РФ.
13.11.2025
27 284 000 ₽
Сдается помещение свободного назначения, 200 кв.м., шоссе Революции, 88
Основные параметры:
Площадь: 200 кв.м.
Цена: 220 000 руб./месяц
Аренда: Прямая, от собственника
Срок аренды: от 1 года
Условия: Минимальный срок — 11 месяцев, с предоплатой за 1 месяц.
Расположение:
Адрес: Санкт-Петербург, шоссе Революции, д. 88.
Район: Красногвардейский.
Метро: 11 минут на транспорте от станции м. «Ладожская».
Здание: 4-этажный складской корпус, 2000 года постройки. Помещение на 1 этаже.
Характеристики помещения:
Назначение: Свободное (под любые цели).
Высота потолков: 4.5 м.
Ремонт: Типовой.
Окна: Обычные, с видом во двор и на улицу.
Отопление: Центральное.
Вентиляция: Естественная.
Вход: Общий со двора.
Дополнительно:
Парковка: Наземная для автомобилей.
Правоустанавливающие документы: Участок и здание в собственности.
Звоните, отвечу на все вопросы.
12.11.2025
220 000 ₽
Продается через электронные торги на площадке ЭТП ГПБ Здание мазутонасосной с пристройкой, баками, камерами управления, емкостью дренажей по адресу: Ленинградская область, Кировский р-н, г. Кировск, ул. Набережная, д. 37, площадью 61,5 кв.м, кадастровый номер 47:16:0101009:329,
Назначение: нежилое.
– Земельный участок по адресу: Ленинградская область, Кировский муниципальный район, Кировское городское поселение, г. Кировск, площадью 16 530 кв.м, кадастровый номер 47:16:0101009:585, категория земель: земли населенных пунктов, виды разрешенного использования: для производства тепловой и электрической энергии.
– Земельный участок по адресу: Ленинградская область, Кировский муниципальный район, Кировское городское поселение, г. Кировск, площадью 1 390 кв.м, кадастровый номер 47:16:0101009:577, категория земель: земли населенных пунктов, виды разрешенного использования: для производства тепловой и электрической энергии. Существующие ограничения (обременения) права: Ограничения прав, предусмотренные ст. 56 Земельного кодекса Российской Федерации.
– Сооружения мазутного хозяйства (в составе: приёмно-сливное устройство (подземные сливные лотки, каналы, паропроводы, гидрозатворы и фильтры-сетки с ячейками 10х10 мм); песко-нефтеуловитель (ПНУ) типа КПН-10).
– Эстакады паромазутопроводов (протяженностью 146 п.м, высотой 5 м).
– Оборудование мазутонасосной (в составе: фильтры грубой очистки (3 шт.); мазутные насосы Маз.ЭН-1 (рециркуляция), Маз.ЭН-2, Маз.ЭН-3 (3 шт.); погружной насос 12НА-22х6; фильтры тонкой очистки (2 шт.); система мазутопроводов с арматурой для подачи мазута в котельную через подогреватели мазута (всасывающие и напорные мазутопроводы); система мазутопроводов с арматурой для циркуляции мазута в мазутонасосной; конденсатные насосы КС 12-50-СД –УХЛ4 (2 шт.); дренажный насос НМШ 5-25-4,0/4-15 У3; система дренажей и продувок; паровой эжектор; система приточно-вытяжной вентиляции).
– Растопочное мазутное хозяйство (в составе: подогреватели мазута типа ПМР 64-15М1
(3 шт.); сепаратор паровых продувок; баки сбора конденсата V=10 м3 (2 шт.); система мазутопроводов, обеспечивающая прохождение мазута через подогреватели; система паропроводов подачи пара на подогреватели мазута; система конденсатопроводов от подогревателей мазута).
– Дороги мазутного хозяйства.
15.11.2025
27 650 000 ₽
5390000руб. Продаются апартаменты-студия в апарт-отеле «YES» (ул. Хошимина, 16), готовое решение для жизни и выгодных инвестиций в самом сердце Выборгского района!
В условиях, когда рынок переполнен однотипными предложениями, мы представляем вам исключительную возможность. Это не очередные апартаменты, а полностью укомплектованная квартира-студия в образцовом доме с идеальным содержанием. Мы продаем не квадратные метры, а готовый бизнес и комфортную жизнь.
Общая площадь: 28,7 кв.м.
Сан.узел: 4 кв.м.
Коридор 2.7 кв.м.
Жилая площадь: 22 кв.м.
Дом: Дом 2013 года постройки. На территории: фитнес-центр, ресторан, круглосуточная охрана и ресепшн. Внутреннее состояние дома, лифтов и общих площадей — идеальное!
Расположение:~250-500 м от станции метро «Проспект Просвещения» (7-10 минут пешком). Развитая инфраструктура района: магазины, ТРК, кафе.
Высота потолков: 2,75 м
Состояние: Полностью отремонтирована, качественный ремонт.
Расширенный комплект мебели и техники — готовы к заселению!
Для жизни: Готовый комфорт без хлопот и с возможностью выбора апартаментов
Забудьте о ремонте и покупке мебели. Мы предлагаем студию с расширенной комплектацией, где продумана каждая деталь. Вы просто заезжаете и начинаете жить в современном комплексе с собственной инфраструктурой: спортзал у вас в доме, ресторан для ужинов и круглосуточная охрана для вашего спокойствия.
Для инвестиций: Актив с мгновенной отдачей
Апарт-отель «YES» — это раскрученный бренд с высоким спросом на аренду. Наши апартаменты полностью укомплектованы всем необходимым + большая система хранения и содержатся в отличном состоянии, что делает их более привлекательными для арендаторов.
Уникальное торговое предложение: Гибкость и выгода
Покупка одной студии: Идеально для собственного использования или как старт в инвестициях.
Оптимизируйте ваши вложения, создайте портфель недвижимости и упростите управление, сосредоточив объект в идеально обслуживаемом месте.
Важно для инвестора:
Юридический статус и обслуживание дома: Объект является апартаментами. Размер коммунальных платежей немного больше, чем у квартиры-студии (примерно на 2000руб., но ряд преимуществ обслуживания дома полностью компенсирует затраты и качественно повышает уровень жизни). Идеальное состояние common areas и лифтов — это показатель качественного управления домом, что напрямую влияет на сохранность и рост ваших инвестиций. Убедитесь в этом лично!
Для деталей и просмотра обращайтесь, пожалуйста, ответим на любые вопросы
Собственность более пяти лет, один собственник, без обременений.
11.11.2025
5 390 000 ₽
«Аура» — это малоэтажный дом середины XX в. с неоклассической архитектурой — рустованным фасадом, арочными окнами
и французскими балконами. Застройщик Hansa Group сохранил аутентичный внешний вид и наполнил здание современными инженерными и планировочными решениями.
На расстоянии 5-ти минут от дома расположены 2 крупных парка – Сосновка и Удельный парк. Инфраструктура квартала включает все самое необходимое: медицинские клиники, детские сады и школы, торговые центры, рестораны. Рядом с домом работает частная школа «Паскаль Лицей», Естественно-научный лицей, Физико-техническая школа имени Ж. И. Алферова, Политехнический университет.
Внутренняя территория полностью закрыта от машин и посторонних. Доступ во внутренние дворы — только по электронному ключу. При входе в каждую парадную установлены видеодомофоны. По периметру территории, у детских площадок, в холлах, межквартирных коридорах и лифтах предусмотрена система видеонаблюдения. Запись с камер транслируется в пункт охраны.
Квартира 70,1 передается с отделкой White Box. Внутри Вас ждет: продуманная разводка электроснабжения, алюминиевые окна Alutech, радиаторы отопления Kermi. Установлена входная дверь со скрытыми петлями.
ЛОКАЦИЯ
— в 5 мин. пешком — Удельный парк
— в 20 мин. на машине — центр Петербурга
— в 1,5 км от 4-х станций метро
ДОМ
— 5 этажей с мансардой
— неоклассическая архитектура
— всего 97 квартир
БЛАГОУСТРОЙСТВО
- Ландшафтный дизайн от DREVO PARK
- Места отдыха с навесом
- Детская площадка с качелями
БЕЗОПАСНОСТЬ
- IP-домофония
- Система видеонаблюдения
- Круглосуточная служба охраны
- Входные двери усиленной конструкции
КВАРТИРЫ
- Мансарда с потолками до 4,5 м
- Система «Климат-контроль»
- Отличная шумоизоляция
- Отделка White Box
Узнайте больше у менеджера отдела продаж!
21.11.2025
22 349 478 ₽
«Аура» — это малоэтажный дом середины XX в. с неоклассической архитектурой — рустованным фасадом, арочными окнами и французскими балконами. Застройщик Hansa Group сохранил аутентичный внешний вид и наполнил здание современными инженерными и планировочными решениями.
На расстоянии 5-ти минут от дома расположены 2 крупных парка – Сосновка и Удельный парк. Инфраструктура квартала включает все самое необходимое: медицинские клиники, детские сады и школы, торговые центры, рестораны. Рядом с домом работает частная школа «Паскаль Лицей», Естественно-научный лицей, Физико-техническая школа имени Ж. И. Алферова, Политехнический университет.
Внутренняя территория полностью закрыта от машин и посторонних. Доступ во внутренние дворы — только по электронному ключу. При входе в каждую парадную установлены видеодомофоны. По периметру территории, у детских площадок, в холлах, межквартирных коридорах и лифтах предусмотрена система видеонаблюдения. Запись с камер транслируется в пункт охраны.
Квартира 106,7 м2 передается с отделкой White Box. Внутри Вас ждет: продуманная разводка электроснабжения, алюминиевые окна Alutech, радиаторы отопления Kermi. Установлена входная дверь со скрытыми петлями.
ЛОКАЦИЯ
— в 5 мин. пешком — Удельный парк
— в 20 мин. на машине — центр Петербурга
— в 1,5 км от 4-х станций метро
ДОМ
— 5 этажей с мансардой
— неоклассическая архитектура
— всего 97 квартир
БЛАГОУСТРОЙСТВО
- Ландшафтный дизайн от DREVO PARK
- Места отдыха с навесом
- Детская площадка с качелями
БЕЗОПАСНОСТЬ
- IP-домофония
- Система видеонаблюдения
- Круглосуточная служба охраны
- Входные двери усиленной конструкции
КВАРТИРЫ
- Мансарда с потолками до 4,5 м
- Система «Климат-контроль»
- Отличная шумоизоляция
- Отделка White Box
Узнайте больше у менеджера отдела продаж!
21.11.2025
33 986 844 ₽
«Аура» — это малоэтажный дом середины XX в. с неоклассической архитектурой — рустованным фасадом, арочными окнами
и французскими балконами. Застройщик Hansa Group сохранил аутентичный внешний вид и наполнил здание современными инженерными и планировочными решениями.
На расстоянии 5-ти минут от дома расположены 2 крупных парка – Сосновка и Удельный парк. Инфраструктура квартала включает все самое необходимое: медицинские клиники, детские сады и школы, торговые центры, рестораны. Рядом с домом работает частная школа «Паскаль Лицей», Естественно-научный лицей, Физико-техническая школа имени Ж. И. Алферова, Политехнический университет.
Внутренняя территория полностью закрыта от машин и посторонних. Доступ во внутренние дворы — только по электронному ключу. При входе в каждую парадную установлены видеодомофоны. По периметру территории, у детских площадок, в холлах, межквартирных коридорах и лифтах предусмотрена система видеонаблюдения. Запись с камер транслируется в пункт охраны.
Квартира на мансардном этаже 87,9 м2 передается с предчистовой отделкой. Внутри: продуманная разводка электроснабжения, алюминиевые окна Alutech, радиаторы отопления Kermi. Установлена входная дверь со скрытыми петлями.
ЛОКАЦИЯ
— в 5 мин. пешком — Удельный парк
— в 20 мин. на машине — центр Петербурга
— в 1,5 км от 4-х станций метро
ДОМ
— 5 этажей с мансардой
— неоклассическая архитектура
— всего 97 квартир
БЛАГОУСТРОЙСТВО
- Ландшафтный дизайн от DREVO PARK
- Места отдыха с навесом
- Детская площадка с качелями
БЕЗОПАСНОСТЬ
- IP-домофония
- Система видеонаблюдения
- Круглосуточная служба охраны
- Входные двери усиленной конструкции
КВАРТИРЫ
- Мансарда с потолками до 4,5 м
- Система «Климат-контроль»
- Отличная шумоизоляция
- Отделка White Box
Узнайте больше у менеджера отдела продаж!
21.11.2025
30 675 646 ₽




















