Продать квартиру в Усть-Лабинске

Выгодно продать квартиру в Усть-Лабинске, в различных ее районах. Мы публикуем объявления от собственников и агентств недвижимости с возможностью бесплатного поднятия сообщения зарегистрированным пользователям, для увеличения числа просмотров.

Продам 1 комнатную квартиру 27.6 м2 картинка из объявления
3
Продается через электронные торги на площадке ЭТП ГПБ 1-комн. квартира, площадью 27.6 кв.м. Квартира продается через аукцион. Кадастровый номер 01:05:0600013:73 Назначение Жилое Наименование Квартира Год постройки 1963 Перекрытия чердачные Деревянные Этажность 1 Фундамент Бетонный Стены Кирпичные Электроосвещение есть Водопровод есть Газопровод есть Канализация есть. Республика Адыгея, Тахтамукайский район, а. Козет, пл. Победы, д. 3 Номер процедуры: ИМ007529.
06.05.2026
1 564 400 ₽
Продам 2 комнатную квартиру 59.8 м2 картинка из объявления
10
Продается 2-комн. квартира, площадью 59.8 кв.м. Жилая площадь 43.36 м2, ремонт по авторскому проекту. Квартира с мебелью, совмещенных санузлов - 1, лоджий - 1, окна выходят на улицу. Квартира располагается на 4 этаже 4-этажного дома, высота потолков 2.94 м.
30.04.2026
15 500 000 ₽
Продам 2 комнатную квартиру 53.5 м2 картинка из объявления
10
Двухкомнатная квартира с ремонтом в п. Агроном + кладовка и сарай! В квартире остается вся мебель и техника - заходи и живи. Две изолированные спальни, кухня с выходом на ленточный балкон и раздельный санузел. Отличный вариант для семьи с детьми. Два года назад над всей площадью квартиры меняли крышу. Планировка - бабочка, окна выходят на две стороны, открывается прекрасный вид на зеленые насаждения. Двор тихий, спокойный и уютный. Соседи адекватные, семейные, с детьми. При покупке, помимо квартиры, вы получаете в собственность уличный сарай, который можно обустроить под свои нужны (на него отдельное право собственности), на фото он есть. Школа №13 в пяти минутах ходьбы (300 м), остановка общественного транспорта прямо возле дома, также рядом Дом Культуры, сквер, магазины и ПВЗ. Всё, что необходимо для комфортной, спокойной жизни, без лишней городской суеты. Поселок Агроном в Динском районе Краснодарского края — это административный центр Мичуринского сельского поселения, известный своими садоводческими хозяйствами (выращивание яблок, груш, черешни). В поселке развита социальная инфраструктура - школа, детский сад, поликлиника, а также есть парк, зоны отдыха и изобилие всевозможной коммерции. Большое количество рабочих мест. До самого центра Краснодара примерно 30 км (ул. Красная). В поселке высокий спрос на аренду и довольное малое количество предложений. Продажа срочная, поэтому такая цена. Показ по предварительному звонку, в любое время. По всем вопросам обращайтесь.
25.04.2026
3 800 000 ₽
Продам 1 комнатную квартиру 37.4 м2 картинка из объявления
10
Имущество реализуется путем проведения торгов в форме аукциона в соответствии с Федеральным законом "О несостоятельности (банкротстве) " от 26.10.2002 №127-ФЗ. Квартираплощадью 37.4 кв. м, этаж/этажность 14/17по адресу: г. Краснодар, ул. Западный Обход Прием заявок будет осуществляться на сторонней электронной торговой площадке, задаток 10%. Помощь от Сбербанка - Агентский сервис по участию на торгах. Агент за Вас оформит документы, подаст заявку и примет участие на торгах. Подробнее о способах оформления сделки, стоимости приобретения имущества Вы можете узнать по номеру телефона, указанному в объявлении, в будние дни с 09: 00 до 18: 00 (по времени МСК, GMT+3) , также на сайте активов Банка Portal-DA.
25.04.2026
4 464 000 ₽
Продам 2 комнатную квартиру 80.1 м2 картинка из объявления
10
Просторная готовая 2-комнатная квартира в ЖК «Покровский» площадью 80м2. Находится в самом центре Краснодара. Абсолютно вся необходимая инфраструктура в шаговой доступности: КубГТУ (с отделениями среднеспециального профессионального образования), детская поликлиника №2, школы (в том числе лицей №27) и детские сады, изобилие коммерции, трамвайные пути (возможность добраться в любую точку города без пробок). Отличный вариант для семьи с детьми, либо же для студентов. В квартире две изолированные большие спальни, площадью 22.5 м2 и 17.2 м2 (одну из спален можно при необходимости разделить на две полноценные зоны для детей). Также есть две лоджии (в одной из спален и на кухне), что создает дополнительное пространство (можно реализовать рабочее место или хранение). Совместный просторный санузел площадью 5.4 м2. Огромным преимуществом является наличие вместительной гардеробной и изолированной постирочной со стиральной машиной Samsung. В квартире выполнен современный ремонт в евро стиле, никакой экономии на материалах, поскольку всё делали для себя! Кухня «Мария», двери «Волховец». Нейтральные оттенки, которые преобладают в интерьере, позволяют вам благоустроить ее полностью под свой вкус, а так же укомплектовать мебелью по вашему усмотрению для реализации своих желаний. Из всех окон открывается просторный вид на город, зеленые улочки и парк «Краснодар», это наполняет пространство светом и добавляет квартире шарм. Идеальный вариант, для тех, кто ценит комфорт жизни в центре города, но при этом устал от суеты и ненужного шума. Ваше место спокойствия, расположенное в гуще событий. Квартира юридически полностью чистая, без разбивок. Показ в любое время, звоните!
23.04.2026
11 500 000 ₽
Продам 1 комнатную квартиру 26.9 м2 картинка из объявления
10
Пpoдaётся уютная студия в ЖК «Cамолёт» — лучшем жилом кoмплекcе Kpacнoдаpа кpупнeйшeм микpoрайон в Pосcии. Здесь ecть всё для комфортнoй жизни: соврeмeнныe домa, пoлнoцeнный cоциальный клаcтep, включaющий школы и дeтcкие сaды, торговыe цeнтры, пapки и аллеи. На теppитории paзвитa тpанспopтнaя сеть: дороги-дублёры, регулярные автобусные маршруты, рядом остановка общественного транспорта. В данное время ведутся строительные работы по расширению улицы Западный обход, где скоро появится трамвайная линия, что обеспечит удобный и быстрый доступ к другим районам города. Микрорайон находится далеко от промышленных предприятий, сочетает удобство городской жизни и экологически благоприятную среду. Безопасность жителей гарантируется современной системой видеонаблюдения, точками охраны и постоянным патрулированием территории. Ремонт выполнен с вниманием к деталям: гармоничная цветовая гамма, качественные материалы и продуманные решения создают атмосферу тепла и комфорта. Для проживания все есть: кровать двухспальная, холодильник, кондиционер, плита, микроволновка, стиральная машина и прочее. Функциональная планировка. Просторная студия позволяет комфортно проживать и принимать гостей. Рядом расположены школа, детский сад, озон, вб, парикмахерские, аптеки, зоомагазины, кулинарии, швейные ателье, кафе, магнит, пятерочка, детские развивашки, спортзал, торговые центры, парки и аллеи, остановка общественного транспорта. Идеальное место для комфортной жизни!
25.04.2026
4 200 000 ₽
Продам 1 комнатную квартиру 31.8 м2 картинка из объявления
7
Имущество реализуется путем проведения торгов в форме аукциона в соответствии с Федеральным законом "О несостоятельности (банкротстве) " от 26.10.2002 №127-ФЗ. Квартира Количество комнат: 1 Площадь общая: 31,8 кв.м. Этаж: 8/16 Кадастровый номер: 23: 43: 0106012: 16707 Здание: монолит, 2025 г. Адрес: Российская Федерация, Краснодарский край, городской округ город Краснодар, город Краснодар, ул. Западный Обход, д. 57, корпус № 1, кв. 80. Прием заявок будет осуществляться на сторонней электронной торговой площадке, задаток 10%. Помощь от Сбербанка - Агентский сервис по участию на торгах. Агент за Вас оформит документы, подаст заявку и примет участие на торгах. Подробнее о способах оформления сделки, стоимости приобретения имущества Вы можете узнать по номеру телефона, указанному в объявлении, в будние дни с 09: 00 до 18: 00 (по времени МСК, GMT+3) , также на сайте активов Банка Portal-DA.
25.04.2026
4 003 000 ₽
Продам 1 комнатную квартиру 37.7 м2 картинка из объявления
10
Предлагаем вашему вниманию квартиру площадью 37.7 кв. м. Она расположена на 16 этаже 18-этажного дома современного ЖК «Южный квартал» с выездом на Супсехское шоссе. Отличительной особенностью квартиры является ее расположение в курортном городе. Недалеко расположен пляж на морском побережье, а также множество живописных мест, таких как Начало Кавказских гор, Ласточкины гнёзда и зоны для отдыха. Дом находится в хорошем состоянии, имеется закрытая территория двора с детской площадкой, а для владельцев автомобилей предусмотрены парковочные места. Рядом с домом есть остановки общественного транспорта (5 мин. пешком) . Район благоустроенный, с хорошей и развитой инфраструктурой: школы, детские сады, спортплощадки, поликлиники, аптеки, салоны красоты, продуктовые (Магнит, Пятёрочка, Чижик, Перекрёсток) , круглосуточные, цветочные и хозяйственные (Хозмаркет, Магнит Косметик) магазины, пункты выдачи товаров (Wildberries, Ozon) . Рядом находятся ТЦ Красная площадь.
05.05.2026
6 183 000 ₽
Продам 2 комнатную квартиру 63.3 м2 картинка из объявления
10
Продается уютная 2-комн. квартира в центре жизни! Основные характеристики: - Жилая площадь: 38 м2, Кухня: 15 м2 - Комнаты: 20/18 м2, изолированные для вашего удобства - Этаж: 8 из 9 Ваши преимущества: - Покупка возможна с использованием ипотечных средств! - Квартира продается с мебелью (кухонный гарнитур, диван, шкафы-купе) и техникой, что позволит вам сразу же комфортно обустроиться. - Унитаз с инсталляцией - Водонагреватель - Высокое качество ремонта, выполненного с использованием только лучших материалов. - Большой болкон с теплыми полами. - Пластиковые окна обеспечивают отличную тепло- и шумоизоляцию, создавая уютную атмосферу. - Система фильтрации установлена на все источники подачи воды. Инфраструктура: - Дом находится в южном районе, рядом имеются 2 школы, детский сад, магазины и остановки общественного транспорта. - Во дворе — 2 современных детских площадки, где ваши дети смогут весело проводить время. - Всего 5 минут пешком до моря — идеальное место для семейных прогулок и отдыха. -Рядом роща, буквально напротив. -Многообразие супермаркетов, кафе и магазинов, все в шаговой доступности. Технические детали: - Электроснабжение распределено на 32 индивидуальных переключателя, что обеспечивает независимость каждой точки подключения. - Система водоснабжения по коллекторной схеме обеспечивает стабильное давление воды, позволяя легко отключать контуры для ремонта без ущерба для других. - Быстрый интернет: выделенные точки в каждой комнате, 100% скорость для всех ваших устройств. -Индивидуальное регулируемое отопление. Один взрослый собственник. Звоните, отвечу на все интересующие вопросы.
20.04.2026
14 000 000 ₽
Продам 2 комнатную квартиру 50.9 м2 картинка из объявления
10
Продается 2-комн. квартира, площадью 50.9 м2 в монолитно-кирпичной новостройке. Возможен вариант покупки с использованием ипотечных средств, есть рассрочка, возможна покупка с использованием материнского капитала, есть военная ипотека. Жилая площадь 25 м2, кухня 13 м2, предчистовая отделка. Квартира располагается на 3 этаже 18-этажного дома в ЖК Фонтаны. Застройщик - ГК ССК, сдача дома - IV квартал 2026 года. Дом оборудован пассажирским лифтом, закрытая территория. Отдельная многоуровневая парковка, парковка охраняется. Обеспечение безопасности: видеонаблюдение, противопожарная система. Инфраструктура: детский сад, детские площадки, спортивные площадки, места для отдыха, супермаркет, рестораны, фитнес-центр, пункты бытового обслуживания, коммерческие объекты. Жилой комплекс «Фонтаны» - дом клубного типа. Преимущество заключается в продуманном ландшафте дворов, круглосуточно охраняемой территории, системе видеонаблюдения во дворе. Также для удобства жителей проведен Wi-Fi во дворе, оборудованы безопасные и современные детские площадки, зоны отдыха. «Фонтаны» - уникальный, неповторимый жилой комплекс, воплощающий оригинальные и креативные решения дизайнеров и архитекторов. Дома округлой форме - это придает им легкости, несмотря на массивность постройки. ЖК «Фонтаны» расположен в микрорайоне Черёмушки. Отличная транспортная развязка позволяет быстро и с комфортом добраться до центра, а большое количество зеленых насаждений и парков дает возможность гулять с детьми и наслаждаться прекрасным видом на Кубань. АКЦИЯ: При покупке квартиры в жилом комплексе «Фонтаны» вы получаете готовый качественный ремонт в подарок от застройщика. В комплекс работ входит полный цикл чистовой отделки: выравнивание и финишная отделка стен и потолков, укладка напольных покрытий, установка межкомнатных дверей и монтаж всей необходимой базовой сантехники. Это специальное предложение позволит вам избежать расходов, хлопот и долгого ожидания, связанных с самостоятельным ремонтом. Вы становитесь владельцем современного жилого пространства, куда можно заселиться сразу после получения ключей, и где каждая деталь выполнена по утверждённому проекту с использованием качественных материалов. Получить подробную информацию и консультацию по условиям акции можно у наших менеджеров. Аккредитованные банки: Сбербанк, Альфа-Банк, ВТБ, Банк Уралсиб, РОССИЯ, Абсолют Банк, Металлинвестбанк, РНКБ, ПСБ, Кубань Кредит, Банк ВБРР, Россельхозбанк. Позвоните и узнайте условия покупки прямо сейчас!
14.04.2026
10 180 000 ₽
Продам 2 комнатную квартиру 55 м2 картинка из объявления
10
Продается 2-комн. квартира, площадью 55 м2 в монолитно-кирпичной новостройке. Возможен вариант покупки с использованием ипотечных средств, есть рассрочка, возможна покупка с использованием материнского капитала, есть военная ипотека. Жилая площадь 24.2 м2, кухня 16.3 м2, предчистовая отделка. Квартира располагается на 4 этаже 18-этажного дома в ЖК Фонтаны. Застройщик - ГК ССК, сдача дома - IV квартал 2026 года. Дом оборудован пассажирским лифтом, закрытая территория. Отдельная многоуровневая парковка, парковка охраняется. Обеспечение безопасности: видеонаблюдение, противопожарная система. Инфраструктура: детский сад, детские площадки, спортивные площадки, места для отдыха, супермаркет, рестораны, фитнес-центр, пункты бытового обслуживания, коммерческие объекты. Жилой комплекс «Фонтаны» - дом клубного типа. Преимущество заключается в продуманном ландшафте дворов, круглосуточно охраняемой территории, системе видеонаблюдения во дворе. Также для удобства жителей проведен Wi-Fi во дворе, оборудованы безопасные и современные детские площадки, зоны отдыха. «Фонтаны» - уникальный, неповторимый жилой комплекс, воплощающий оригинальные и креативные решения дизайнеров и архитекторов. Дома округлой форме - это придает им легкости, несмотря на массивность постройки. ЖК «Фонтаны» расположен в микрорайоне Черёмушки. Отличная транспортная развязка позволяет быстро и с комфортом добраться до центра, а большое количество зеленых насаждений и парков дает возможность гулять с детьми и наслаждаться прекрасным видом на Кубань. АКЦИЯ: При покупке квартиры в жилом комплексе «Фонтаны» вы получаете готовый качественный ремонт в подарок от застройщика. В комплекс работ входит полный цикл чистовой отделки: выравнивание и финишная отделка стен и потолков, укладка напольных покрытий, установка межкомнатных дверей и монтаж всей необходимой базовой сантехники. Это специальное предложение позволит вам избежать расходов, хлопот и долгого ожидания, связанных с самостоятельным ремонтом. Вы становитесь владельцем современного жилого пространства, куда можно заселиться сразу после получения ключей, и где каждая деталь выполнена по утверждённому проекту с использованием качественных материалов. Получить подробную информацию и консультацию по условиям акции можно у наших менеджеров. Аккредитованные банки: Сбербанк, Альфа-Банк, ВТБ, Банк Уралсиб, РОССИЯ, Абсолют Банк, Металлинвестбанк, РНКБ, ПСБ, Кубань Кредит, Банк ВБРР, Россельхозбанк. Позвоните и узнайте условия покупки прямо сейчас!
14.04.2026
11 000 000 ₽
Продам 2 комнатную квартиру 50.9 м2 картинка из объявления
10
Продается 2-комн. квартира, площадью 50.9 м2 в монолитно-кирпичной новостройке. Возможен вариант покупки с использованием ипотечных средств, есть рассрочка, возможна покупка с использованием материнского капитала, есть военная ипотека. Жилая площадь 25 м2, кухня 13 м2, предчистовая отделка. Квартира располагается на 6 этаже 18-этажного дома в ЖК Фонтаны. Застройщик - ГК ССК, сдача дома - IV квартал 2026 года. Дом оборудован пассажирским лифтом, закрытая территория. Отдельная многоуровневая парковка, парковка охраняется. Обеспечение безопасности: видеонаблюдение, противопожарная система. Инфраструктура: детский сад, детские площадки, спортивные площадки, места для отдыха, супермаркет, рестораны, фитнес-центр, пункты бытового обслуживания, коммерческие объекты. Жилой комплекс «Фонтаны» - дом клубного типа. Преимущество заключается в продуманном ландшафте дворов, круглосуточно охраняемой территории, системе видеонаблюдения во дворе. Также для удобства жителей проведен Wi-Fi во дворе, оборудованы безопасные и современные детские площадки, зоны отдыха. «Фонтаны» - уникальный, неповторимый жилой комплекс, воплощающий оригинальные и креативные решения дизайнеров и архитекторов. Дома округлой форме - это придает им легкости, несмотря на массивность постройки. ЖК «Фонтаны» расположен в микрорайоне Черёмушки. Отличная транспортная развязка позволяет быстро и с комфортом добраться до центра, а большое количество зеленых насаждений и парков дает возможность гулять с детьми и наслаждаться прекрасным видом на Кубань. АКЦИЯ: При покупке квартиры в жилом комплексе «Фонтаны» вы получаете готовый качественный ремонт в подарок от застройщика. В комплекс работ входит полный цикл чистовой отделки: выравнивание и финишная отделка стен и потолков, укладка напольных покрытий, установка межкомнатных дверей и монтаж всей необходимой базовой сантехники. Это специальное предложение позволит вам избежать расходов, хлопот и долгого ожидания, связанных с самостоятельным ремонтом. Вы становитесь владельцем современного жилого пространства, куда можно заселиться сразу после получения ключей, и где каждая деталь выполнена по утверждённому проекту с использованием качественных материалов. Получить подробную информацию и консультацию по условиям акции можно у наших менеджеров. Аккредитованные банки: Сбербанк, Альфа-Банк, ВТБ, Банк Уралсиб, РОССИЯ, Абсолют Банк, Металлинвестбанк, РНКБ, ПСБ, Кубань Кредит, Банк ВБРР, Россельхозбанк. Позвоните и узнайте условия покупки прямо сейчас!
14.04.2026
10 180 000 ₽
Продам 2 комнатную квартиру 51.4 м2 картинка из объявления
10
Продается 2-комн. квартира, площадью 51.4 м2 в монолитно-кирпичной новостройке. Возможен вариант покупки с использованием ипотечных средств, есть рассрочка, возможна покупка с использованием материнского капитала, есть военная ипотека. Жилая площадь 25 м2, кухня 13.5 м2, предчистовая отделка. Квартира располагается на 2 этаже 18-этажного дома в ЖК Фонтаны. Застройщик - ГК ССК, сдача дома - IV квартал 2026 года. Дом оборудован пассажирским лифтом, закрытая территория. Отдельная многоуровневая парковка, парковка охраняется. Обеспечение безопасности: видеонаблюдение, противопожарная система. Инфраструктура: детский сад, детские площадки, спортивные площадки, места для отдыха, супермаркет, рестораны, фитнес-центр, пункты бытового обслуживания, коммерческие объекты. Жилой комплекс «Фонтаны» - дом клубного типа. Преимущество заключается в продуманном ландшафте дворов, круглосуточно охраняемой территории, системе видеонаблюдения во дворе. Также для удобства жителей проведен Wi-Fi во дворе, оборудованы безопасные и современные детские площадки, зоны отдыха. «Фонтаны» - уникальный, неповторимый жилой комплекс, воплощающий оригинальные и креативные решения дизайнеров и архитекторов. Дома округлой форме - это придает им легкости, несмотря на массивность постройки. ЖК «Фонтаны» расположен в микрорайоне Черёмушки. Отличная транспортная развязка позволяет быстро и с комфортом добраться до центра, а большое количество зеленых насаждений и парков дает возможность гулять с детьми и наслаждаться прекрасным видом на Кубань. АКЦИЯ: При покупке квартиры в жилом комплексе «Фонтаны» вы получаете готовый качественный ремонт в подарок от застройщика. В комплекс работ входит полный цикл чистовой отделки: выравнивание и финишная отделка стен и потолков, укладка напольных покрытий, установка межкомнатных дверей и монтаж всей необходимой базовой сантехники. Это специальное предложение позволит вам избежать расходов, хлопот и долгого ожидания, связанных с самостоятельным ремонтом. Вы становитесь владельцем современного жилого пространства, куда можно заселиться сразу после получения ключей, и где каждая деталь выполнена по утверждённому проекту с использованием качественных материалов. Получить подробную информацию и консультацию по условиям акции можно у наших менеджеров. Аккредитованные банки: Сбербанк, Альфа-Банк, ВТБ, Банк Уралсиб, РОССИЯ, Абсолют Банк, Металлинвестбанк, РНКБ, ПСБ, Кубань Кредит, Банк ВБРР, Россельхозбанк. Позвоните и узнайте условия покупки прямо сейчас!
14.04.2026
10 280 000 ₽
Продам 2 комнатную квартиру 50.9 м2 картинка из объявления
10
Продается 2-комн. квартира, площадью 50.9 м2 в монолитно-кирпичной новостройке. Возможен вариант покупки с использованием ипотечных средств, есть рассрочка, возможна покупка с использованием материнского капитала, есть военная ипотека. Жилая площадь 25 м2, кухня 13 м2, предчистовая отделка. Квартира располагается на 16 этаже 18-этажного дома в ЖК Фонтаны. Застройщик - ГК ССК, сдача дома - IV квартал 2026 года. Дом оборудован пассажирским лифтом, закрытая территория. Отдельная многоуровневая парковка, парковка охраняется. Обеспечение безопасности: видеонаблюдение, противопожарная система. Инфраструктура: детский сад, детские площадки, спортивные площадки, места для отдыха, супермаркет, рестораны, фитнес-центр, пункты бытового обслуживания, коммерческие объекты. Жилой комплекс «Фонтаны» - дом клубного типа. Преимущество заключается в продуманном ландшафте дворов, круглосуточно охраняемой территории, системе видеонаблюдения во дворе. Также для удобства жителей проведен Wi-Fi во дворе, оборудованы безопасные и современные детские площадки, зоны отдыха. «Фонтаны» - уникальный, неповторимый жилой комплекс, воплощающий оригинальные и креативные решения дизайнеров и архитекторов. Дома округлой форме - это придает им легкости, несмотря на массивность постройки. ЖК «Фонтаны» расположен в микрорайоне Черёмушки. Отличная транспортная развязка позволяет быстро и с комфортом добраться до центра, а большое количество зеленых насаждений и парков дает возможность гулять с детьми и наслаждаться прекрасным видом на Кубань. АКЦИЯ: При покупке квартиры в жилом комплексе «Фонтаны» вы получаете готовый качественный ремонт в подарок от застройщика. В комплекс работ входит полный цикл чистовой отделки: выравнивание и финишная отделка стен и потолков, укладка напольных покрытий, установка межкомнатных дверей и монтаж всей необходимой базовой сантехники. Это специальное предложение позволит вам избежать расходов, хлопот и долгого ожидания, связанных с самостоятельным ремонтом. Вы становитесь владельцем современного жилого пространства, куда можно заселиться сразу после получения ключей, и где каждая деталь выполнена по утверждённому проекту с использованием качественных материалов. Получить подробную информацию и консультацию по условиям акции можно у наших менеджеров. Аккредитованные банки: Сбербанк, Альфа-Банк, ВТБ, Банк Уралсиб, РОССИЯ, Абсолют Банк, Металлинвестбанк, РНКБ, ПСБ, Кубань Кредит, Банк ВБРР, Россельхозбанк. Позвоните и узнайте условия покупки прямо сейчас!
14.04.2026
10 689 000 ₽
Продам 2 комнатную квартиру 50.9 м2 картинка из объявления
10
Продается 2-комн. квартира, площадью 50.9 м2 в монолитно-кирпичной новостройке. Возможен вариант покупки с использованием ипотечных средств, есть рассрочка, возможна покупка с использованием материнского капитала, есть военная ипотека. Жилая площадь 25 м2, кухня 13 м2, предчистовая отделка. Квартира располагается на 8 этаже 18-этажного дома в ЖК Фонтаны. Застройщик - ГК ССК, сдача дома - IV квартал 2026 года, высота потолков 2.82 м. Дом оборудован пассажирским лифтом, закрытая территория. Отдельная многоуровневая парковка, парковка охраняется. Обеспечение безопасности: видеонаблюдение, противопожарная система. Инфраструктура: детский сад, детские площадки, спортивные площадки, места для отдыха, супермаркет, рестораны, фитнес-центр, пункты бытового обслуживания, коммерческие объекты. Жилой комплекс «Фонтаны» - дом клубного типа. Преимущество заключается в продуманном ландшафте дворов, круглосуточно охраняемой территории, системе видеонаблюдения во дворе. Также для удобства жителей проведен Wi-Fi во дворе, оборудованы безопасные и современные детские площадки, зоны отдыха. «Фонтаны» - уникальный, неповторимый жилой комплекс, воплощающий оригинальные и креативные решения дизайнеров и архитекторов. Дома округлой форме - это придает им легкости, несмотря на массивность постройки. ЖК «Фонтаны» расположен в микрорайоне Черёмушки. Отличная транспортная развязка позволяет быстро и с комфортом добраться до центра, а большое количество зеленых насаждений и парков дает возможность гулять с детьми и наслаждаться прекрасным видом на Кубань. АКЦИЯ: При покупке квартиры в жилом комплексе «Фонтаны» вы получаете готовый качественный ремонт в подарок от застройщика. В комплекс работ входит полный цикл чистовой отделки: выравнивание и финишная отделка стен и потолков, укладка напольных покрытий, установка межкомнатных дверей и монтаж всей необходимой базовой сантехники. Это специальное предложение позволит вам избежать расходов, хлопот и долгого ожидания, связанных с самостоятельным ремонтом. Вы становитесь владельцем современного жилого пространства, куда можно заселиться сразу после получения ключей, и где каждая деталь выполнена по утверждённому проекту с использованием качественных материалов. Получить подробную информацию и консультацию по условиям акции можно у наших менеджеров. Аккредитованные банки: Сбербанк, Альфа-Банк, ВТБ, Банк Уралсиб, РОССИЯ, Абсолют Банк, Металлинвестбанк, РНКБ, ПСБ, Кубань Кредит, Банк ВБРР, Россельхозбанк. Позвоните и узнайте условия покупки прямо сейчас!
07.05.2026
8 907 500 ₽
Продам 2 комнатную квартиру 50.9 м2 картинка из объявления
10
Продается 2-комн. квартира, площадью 50.9 м2 в монолитно-кирпичной новостройке. Возможен вариант покупки с использованием ипотечных средств, есть рассрочка, возможна покупка с использованием материнского капитала, есть военная ипотека. Жилая площадь 25 м2, кухня 13 м2, предчистовая отделка. Квартира располагается на 5 этаже 18-этажного дома в ЖК Фонтаны. Застройщик - ГК ССК, сдача дома - IV квартал 2026 года, высота потолков 2.82 м. Дом оборудован пассажирским лифтом, закрытая территория. Отдельная многоуровневая парковка, парковка охраняется. Обеспечение безопасности: видеонаблюдение, противопожарная система. Инфраструктура: детский сад, детские площадки, спортивные площадки, места для отдыха, супермаркет, рестораны, фитнес-центр, пункты бытового обслуживания, коммерческие объекты. Жилой комплекс «Фонтаны» - дом клубного типа. Преимущество заключается в продуманном ландшафте дворов, круглосуточно охраняемой территории, системе видеонаблюдения во дворе. Также для удобства жителей проведен Wi-Fi во дворе, оборудованы безопасные и современные детские площадки, зоны отдыха. «Фонтаны» - уникальный, неповторимый жилой комплекс, воплощающий оригинальные и креативные решения дизайнеров и архитекторов. Дома округлой форме - это придает им легкости, несмотря на массивность постройки. ЖК «Фонтаны» расположен в микрорайоне Черёмушки. Отличная транспортная развязка позволяет быстро и с комфортом добраться до центра, а большое количество зеленых насаждений и парков дает возможность гулять с детьми и наслаждаться прекрасным видом на Кубань. АКЦИЯ: При покупке квартиры в жилом комплексе «Фонтаны» вы получаете готовый качественный ремонт в подарок от застройщика. В комплекс работ входит полный цикл чистовой отделки: выравнивание и финишная отделка стен и потолков, укладка напольных покрытий, установка межкомнатных дверей и монтаж всей необходимой базовой сантехники. Это специальное предложение позволит вам избежать расходов, хлопот и долгого ожидания, связанных с самостоятельным ремонтом. Вы становитесь владельцем современного жилого пространства, куда можно заселиться сразу после получения ключей, и где каждая деталь выполнена по утверждённому проекту с использованием качественных материалов. Получить подробную информацию и консультацию по условиям акции можно у наших менеджеров. Аккредитованные банки: Сбербанк, Альфа-Банк, ВТБ, Банк Уралсиб, РОССИЯ, Абсолют Банк, Металлинвестбанк, РНКБ, ПСБ, Кубань Кредит, Банк ВБРР, Россельхозбанк. Позвоните и узнайте условия покупки прямо сейчас!
09.05.2026
8 907 500 ₽
Продам 2 комнатную квартиру 51.6 м2 картинка из объявления
10
Продается 2-комн. квартира, площадью 51.6 м2 в монолитно-кирпичной новостройке. Возможен вариант покупки с использованием ипотечных средств, есть рассрочка, возможна покупка с использованием материнского капитала, есть военная ипотека. Жилая площадь 24.8 м2, кухня 13.5 м2, предчистовая отделка. Квартира располагается на 2 этаже 18-этажного дома в ЖК Фонтаны. Застройщик - ГК ССК, сдача дома - IV квартал 2026 года, высота потолков 2.82 м. Дом оборудован пассажирским лифтом, закрытая территория. Отдельная многоуровневая парковка, парковка охраняется. Обеспечение безопасности: видеонаблюдение, противопожарная система. Инфраструктура: детский сад, детские площадки, спортивные площадки, места для отдыха, супермаркет, рестораны, фитнес-центр, пункты бытового обслуживания, коммерческие объекты. Жилой комплекс «Фонтаны» - дом клубного типа. Преимущество заключается в продуманном ландшафте дворов, круглосуточно охраняемой территории, системе видеонаблюдения во дворе. Также для удобства жителей проведен Wi-Fi во дворе, оборудованы безопасные и современные детские площадки, зоны отдыха. «Фонтаны» - уникальный, неповторимый жилой комплекс, воплощающий оригинальные и креативные решения дизайнеров и архитекторов. Дома округлой форме - это придает им легкости, несмотря на массивность постройки. ЖК «Фонтаны» расположен в микрорайоне Черёмушки. Отличная транспортная развязка позволяет быстро и с комфортом добраться до центра, а большое количество зеленых насаждений и парков дает возможность гулять с детьми и наслаждаться прекрасным видом на Кубань. АКЦИЯ: При покупке квартиры в жилом комплексе «Фонтаны» вы получаете готовый качественный ремонт в подарок от застройщика. В комплекс работ входит полный цикл чистовой отделки: выравнивание и финишная отделка стен и потолков, укладка напольных покрытий, установка межкомнатных дверей и монтаж всей необходимой базовой сантехники. Это специальное предложение позволит вам избежать расходов, хлопот и долгого ожидания, связанных с самостоятельным ремонтом. Вы становитесь владельцем современного жилого пространства, куда можно заселиться сразу после получения ключей, и где каждая деталь выполнена по утверждённому проекту с использованием качественных материалов. Получить подробную информацию и консультацию по условиям акции можно у наших менеджеров. Аккредитованные банки: Сбербанк, Альфа-Банк, ВТБ, Банк Уралсиб, РОССИЯ, Абсолют Банк, Металлинвестбанк, РНКБ, ПСБ, Кубань Кредит, Банк ВБРР, Россельхозбанк. Позвоните и узнайте условия покупки прямо сейчас!
14.04.2026
9 030 000 ₽
Продам 2 комнатную квартиру 55 м2 картинка из объявления
10
Продается 2-комн. квартира, площадью 55 м2 в монолитно-кирпичной новостройке. Возможен вариант покупки с использованием ипотечных средств, есть рассрочка, возможна покупка с использованием материнского капитала, есть военная ипотека. Жилая площадь 24.2 м2, кухня 16.3 м2, предчистовая отделка. Квартира располагается на 4 этаже 18-этажного дома в ЖК Фонтаны. Застройщик - ГК ССК, сдача дома - IV квартал 2026 года. Дом оборудован пассажирским лифтом, закрытая территория. Отдельная многоуровневая парковка, парковка охраняется. Обеспечение безопасности: видеонаблюдение, противопожарная система. Инфраструктура: детский сад, детские площадки, спортивные площадки, места для отдыха, супермаркет, рестораны, фитнес-центр, пункты бытового обслуживания, коммерческие объекты. Жилой комплекс «Фонтаны» - дом клубного типа. Преимущество заключается в продуманном ландшафте дворов, круглосуточно охраняемой территории, системе видеонаблюдения во дворе. Также для удобства жителей проведен Wi-Fi во дворе, оборудованы безопасные и современные детские площадки, зоны отдыха. «Фонтаны» - уникальный, неповторимый жилой комплекс, воплощающий оригинальные и креативные решения дизайнеров и архитекторов. Дома округлой форме - это придает им легкости, несмотря на массивность постройки. ЖК «Фонтаны» расположен в микрорайоне Черёмушки. Отличная транспортная развязка позволяет быстро и с комфортом добраться до центра, а большое количество зеленых насаждений и парков дает возможность гулять с детьми и наслаждаться прекрасным видом на Кубань. АКЦИЯ: При покупке квартиры в жилом комплексе «Фонтаны» вы получаете готовый качественный ремонт в подарок от застройщика. В комплекс работ входит полный цикл чистовой отделки: выравнивание и финишная отделка стен и потолков, укладка напольных покрытий, установка межкомнатных дверей и монтаж всей необходимой базовой сантехники. Это специальное предложение позволит вам избежать расходов, хлопот и долгого ожидания, связанных с самостоятельным ремонтом. Вы становитесь владельцем современного жилого пространства, куда можно заселиться сразу после получения ключей, и где каждая деталь выполнена по утверждённому проекту с использованием качественных материалов. Получить подробную информацию и консультацию по условиям акции можно у наших менеджеров. Аккредитованные банки: Сбербанк, Альфа-Банк, ВТБ, Банк Уралсиб, РОССИЯ, Абсолют Банк, Металлинвестбанк, РНКБ, ПСБ, Кубань Кредит, Банк ВБРР, Россельхозбанк. Позвоните и узнайте условия покупки прямо сейчас!
14.04.2026
11 000 000 ₽
Продам 2 комнатную квартиру 50.9 м2 картинка из объявления
10
Продается 2-комн. квартира, площадью 50.9 м2 в монолитно-кирпичной новостройке. Возможен вариант покупки с использованием ипотечных средств, есть рассрочка, возможна покупка с использованием материнского капитала, есть военная ипотека. Жилая площадь 25 м2, кухня 13 м2, предчистовая отделка. Квартира располагается на 13 этаже 18-этажного дома в ЖК Фонтаны. Застройщик - ГК ССК, сдача дома - IV квартал 2026 года. Дом оборудован пассажирским лифтом, закрытая территория. Отдельная многоуровневая парковка, парковка охраняется. Обеспечение безопасности: видеонаблюдение, противопожарная система. Инфраструктура: детский сад, детские площадки, спортивные площадки, места для отдыха, супермаркет, рестораны, фитнес-центр, пункты бытового обслуживания, коммерческие объекты. Жилой комплекс «Фонтаны» - дом клубного типа. Преимущество заключается в продуманном ландшафте дворов, круглосуточно охраняемой территории, системе видеонаблюдения во дворе. Также для удобства жителей проведен Wi-Fi во дворе, оборудованы безопасные и современные детские площадки, зоны отдыха. «Фонтаны» - уникальный, неповторимый жилой комплекс, воплощающий оригинальные и креативные решения дизайнеров и архитекторов. Дома округлой форме - это придает им легкости, несмотря на массивность постройки. ЖК «Фонтаны» расположен в микрорайоне Черёмушки. Отличная транспортная развязка позволяет быстро и с комфортом добраться до центра, а большое количество зеленых насаждений и парков дает возможность гулять с детьми и наслаждаться прекрасным видом на Кубань. АКЦИЯ: При покупке квартиры в жилом комплексе «Фонтаны» вы получаете готовый качественный ремонт в подарок от застройщика. В комплекс работ входит полный цикл чистовой отделки: выравнивание и финишная отделка стен и потолков, укладка напольных покрытий, установка межкомнатных дверей и монтаж всей необходимой базовой сантехники. Это специальное предложение позволит вам избежать расходов, хлопот и долгого ожидания, связанных с самостоятельным ремонтом. Вы становитесь владельцем современного жилого пространства, куда можно заселиться сразу после получения ключей, и где каждая деталь выполнена по утверждённому проекту с использованием качественных материалов. Получить подробную информацию и консультацию по условиям акции можно у наших менеджеров. Аккредитованные банки: Сбербанк, Альфа-Банк, ВТБ, Банк Уралсиб, РОССИЯ, Абсолют Банк, Металлинвестбанк, РНКБ, ПСБ, Кубань Кредит, Банк ВБРР, Россельхозбанк. Позвоните и узнайте условия покупки прямо сейчас!
14.04.2026
10 689 000 ₽
Продам 2 комнатную квартиру 55.86 м2 картинка из объявления
10
Продается 2-комн. квартира, площадью 55.86 м2 в монолитно-кирпичной новостройке. Возможен вариант покупки с использованием ипотечных средств, есть рассрочка, возможна покупка с использованием материнского капитала, есть военная ипотека. Жилая площадь 24.79 м2, кухня 17.2 м2, предчистовая отделка. Квартира располагается на 18 этаже 18-этажного дома в ЖК Фонтаны. Застройщик - ГК ССК, сдача дома - IV квартал 2026 года, высота потолков 2.82 м. Дом оборудован пассажирским лифтом, закрытая территория. Отдельная многоуровневая парковка, парковка охраняется. Обеспечение безопасности: видеонаблюдение, противопожарная система. Инфраструктура: детский сад, детские площадки, спортивные площадки, места для отдыха, супермаркет, рестораны, фитнес-центр, пункты бытового обслуживания, коммерческие объекты. Жилой комплекс «Фонтаны» - дом клубного типа. Преимущество заключается в продуманном ландшафте дворов, круглосуточно охраняемой территории, системе видеонаблюдения во дворе. Также для удобства жителей проведен Wi-Fi во дворе, оборудованы безопасные и современные детские площадки, зоны отдыха. «Фонтаны» - уникальный, неповторимый жилой комплекс, воплощающий оригинальные и креативные решения дизайнеров и архитекторов. Дома округлой форме - это придает им легкости, несмотря на массивность постройки. ЖК «Фонтаны» расположен в микрорайоне Черёмушки. Отличная транспортная развязка позволяет быстро и с комфортом добраться до центра, а большое количество зеленых насаждений и парков дает возможность гулять с детьми и наслаждаться прекрасным видом на Кубань. АКЦИЯ: При покупке квартиры в жилом комплексе «Фонтаны» вы получаете готовый качественный ремонт в подарок от застройщика. В комплекс работ входит полный цикл чистовой отделки: выравнивание и финишная отделка стен и потолков, укладка напольных покрытий, установка межкомнатных дверей и монтаж всей необходимой базовой сантехники. Это специальное предложение позволит вам избежать расходов, хлопот и долгого ожидания, связанных с самостоятельным ремонтом. Вы становитесь владельцем современного жилого пространства, куда можно заселиться сразу после получения ключей, и где каждая деталь выполнена по утверждённому проекту с использованием качественных материалов. Получить подробную информацию и консультацию по условиям акции можно у наших менеджеров. Аккредитованные банки: Сбербанк, Альфа-Банк, ВТБ, Банк Уралсиб, РОССИЯ, Абсолют Банк, Металлинвестбанк, РНКБ, ПСБ, Кубань Кредит, Банк ВБРР, Россельхозбанк. Позвоните и узнайте условия покупки прямо сейчас!
14.04.2026
9 775 500 ₽
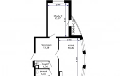
Продам 2 комнатную квартиру 57.18 м2 картинка из объявления
10
Продается 2-комн. квартира, площадью 57.18 м2 в монолитно-кирпичной новостройке. Возможен вариант покупки с использованием ипотечных средств, есть рассрочка, возможна покупка с использованием материнского капитала, есть военная ипотека. Жилая площадь 27.82 м2, кухня 15.87 м2, предчистовая отделка. Квартира располагается на 16 этаже 18-этажного дома в ЖК Фонтаны. Застройщик - ГК ССК, сдача дома - IV квартал 2026 года, высота потолков 2.82 м. Дом оборудован пассажирским лифтом, закрытая территория. Отдельная многоуровневая парковка, парковка охраняется. Обеспечение безопасности: видеонаблюдение, противопожарная система. Инфраструктура: детский сад, детские площадки, спортивные площадки, места для отдыха, супермаркет, рестораны, фитнес-центр, пункты бытового обслуживания, коммерческие объекты. Жилой комплекс «Фонтаны» - дом клубного типа. Преимущество заключается в продуманном ландшафте дворов, круглосуточно охраняемой территории, системе видеонаблюдения во дворе. Также для удобства жителей проведен Wi-Fi во дворе, оборудованы безопасные и современные детские площадки, зоны отдыха. «Фонтаны» - уникальный, неповторимый жилой комплекс, воплощающий оригинальные и креативные решения дизайнеров и архитекторов. Дома округлой форме - это придает им легкости, несмотря на массивность постройки. ЖК «Фонтаны» расположен в микрорайоне Черёмушки. Отличная транспортная развязка позволяет быстро и с комфортом добраться до центра, а большое количество зеленых насаждений и парков дает возможность гулять с детьми и наслаждаться прекрасным видом на Кубань. АКЦИЯ: При покупке квартиры в жилом комплексе «Фонтаны» вы получаете готовый качественный ремонт в подарок от застройщика. В комплекс работ входит полный цикл чистовой отделки: выравнивание и финишная отделка стен и потолков, укладка напольных покрытий, установка межкомнатных дверей и монтаж всей необходимой базовой сантехники. Это специальное предложение позволит вам избежать расходов, хлопот и долгого ожидания, связанных с самостоятельным ремонтом. Вы становитесь владельцем современного жилого пространства, куда можно заселиться сразу после получения ключей, и где каждая деталь выполнена по утверждённому проекту с использованием качественных материалов. Получить подробную информацию и консультацию по условиям акции можно у наших менеджеров. Аккредитованные банки: Сбербанк, Альфа-Банк, ВТБ, Банк Уралсиб, РОССИЯ, Абсолют Банк, Металлинвестбанк, РНКБ, ПСБ, Кубань Кредит, Банк ВБРР, Россельхозбанк. Позвоните и узнайте условия покупки прямо сейчас!
14.04.2026
10 006 500 ₽

Как купить квартиру в Усть-Лабинске

Купить квартиру в Усть-Лабинске в тихом и спокойном районе без агентств с наценками и переплатами – теперь это возможно благодаря нашей доске объявлений – “Разместить Объявление.Ру или Рудос” Здесь представлена информация об однокомнатных квартирах и квартирах с просторной площадью, жилье в новостройках и вторичной недвижимости. После просмотра фотографий и описания объекта Усть-Лабинска, вы можете связаться с продавцом для обсуждения деталей и заключения договора купли-продажи.

0.1451