Сдам гараж 215.6 м2
Размещено 16 декабря 2025
34
0
Жалоба
- Описание
г. Ульяновск, проезд Энергетиков, д.9
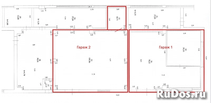
Помещения в аренду – под гараж, СТО, автосервис или склад.
Гараж 1 – 100 м2.
Гараж 2 – 115, 6 м2.
Арендная ставка – 400 р/м2.
Гаражи располагаются на территории производственной базы, периметр огорожен, видеонаблюдение, КПП, охрана круглосуточно. Доступ 24/7.
Удобные пути подъезда.
Характеристики:
- Ворота - 3х3м.
- Сетевое напряжение – 220В, 380В.
- Есть отдельные помещения для бытовок.
- Пол ровный, бетонный.
- Отопление.
Рядом с гаражами установлена эстакада, по потребности аренда обсуждается.
Коммунальные услуги оплачиваются отдельно, эл/эн по счётчику, отопление пропорционально занимаемой площади.
Аренда от собственника.
Звоните, договоримся о показе!
Помещения в аренду – под гараж, СТО, автосервис или склад.
Гараж 1 – 100 м2.
Гараж 2 – 115, 6 м2.
Арендная ставка – 400 р/м2.
Гаражи располагаются на территории производственной базы, периметр огорожен, видеонаблюдение, КПП, охрана круглосуточно. Доступ 24/7.
Удобные пути подъезда.
Характеристики:
- Ворота - 3х3м.
- Сетевое напряжение – 220В, 380В.
- Есть отдельные помещения для бытовок.
- Пол ровный, бетонный.
- Отопление.
Рядом с гаражами установлена эстакада, по потребности аренда обсуждается.
Коммунальные услуги оплачиваются отдельно, эл/эн по счётчику, отопление пропорционально занимаемой площади.
Аренда от собственника.
Звоните, договоримся о показе!
