Объявление о квартирах в Солнечногорске - Страница 3
- Солнечногорск »
- Недвижимость
- » Квартиры в Солнечногорске
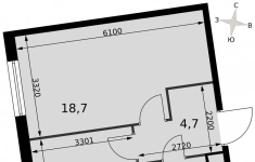
Продаётся 1-к квартира номер 592 общей площадью 40.7 кв.м. на 9-м этаже 16 этажного здания. Без отделки. Цена с учётом скидки.
Особенности квартиры:
-Планировка повышенной комфортности
-Идеальная планировка
-2 км от МКАД
-Двухуровневый двор без машин
- Раздельный санузел - больше удобства для всех членов семьи.
- Лоджия - уютное место для отдыха и тишины.
Квартира без отделки. Чистый холст для воплощения интерьера вашей мечты.
Информация о комплексе:
Архитекторы позаботились, чтобы красота и комфорт стали частью повседневной жизни жителя Римского квартала. Входные группы индивидуальны, однако в дизайне каждой угадывается итальянская любовь к декоративности и качественным отделочным материалам. Мы заботимся о свободном пространстве в вашей квартире, поэтому наличие кладовых позволит вам поддерживать идеальный порядок и уют в вашей квартире! На нижнем уровне комплекса проходят проезды, соединяющие весь квартал и расположены парковки. Дизайн подземных парковок с белоснежными колоннами вызывает ассоциации с историческим культурным слоем романской эпохи. Поэтому даже здесь вас не будет покидать ощущение особого места. Кладовые помещения находятся в каждой секции, доступ к ним осуществляется на современном лифте МЭЛ с пониженным уровнем шума. Бурная жизнь соседей больше не сможет нарушить ваш покой, а к вам никто не постучит, если вы захотите прибавить громкость в любимом музыкальном треке или Ваши дети захотят устроить ночную пробежку! Живите только по своим правилам.
Транспортная доступность:
Всего 2 км от МКАД, 15 минут на транспорте до метро «Домодедовская» и «Марьино»
Внутренняя инфраструктура:
Жителей Римского квартала отличает неспешность. В самом деле, зачем спешить, если все необходимое в шаговой доступности? Школа и детские садики расположены внутри квартала. Это значительно экономит время по утрам и позволяет спокойно насладиться завтраком даже в будни. Разнообразные кафе станут традиционным местом семейных бранчей по выходным или вечерних посиделок с друзьями.
02.04.2026
12 901 900 ₽
Продаётся квартира-студия номер 1617 общей площадью 27.3 кв.м. на 8-м этаже 16 этажного здания. Без отделки. Цена с учётом скидки.
Особенности квартиры:
-Планировка повышенной комфортности
-Идеальная планировка
-2 км от МКАД
-Двухуровневый двор без машин
Квартира без отделки. Чистый холст для воплощения интерьера вашей мечты.
Информация о комплексе:
Архитекторы позаботились, чтобы красота и комфорт стали частью повседневной жизни жителя Римского квартала. Входные группы индивидуальны, однако в дизайне каждой угадывается итальянская любовь к декоративности и качественным отделочным материалам. Мы заботимся о свободном пространстве в вашей квартире, поэтому наличие кладовых позволит вам поддерживать идеальный порядок и уют в вашей квартире! На нижнем уровне комплекса проходят проезды, соединяющие весь квартал и расположены парковки. Дизайн подземных парковок с белоснежными колоннами вызывает ассоциации с историческим культурным слоем романской эпохи. Поэтому даже здесь вас не будет покидать ощущение особого места. Кладовые помещения находятся в каждой секции, доступ к ним осуществляется на современном лифте МЭЛ с пониженным уровнем шума. Бурная жизнь соседей больше не сможет нарушить ваш покой, а к вам никто не постучит, если вы захотите прибавить громкость в любимом музыкальном треке или Ваши дети захотят устроить ночную пробежку! Живите только по своим правилам.
Транспортная доступность:
Всего 2 км от МКАД, 15 минут на транспорте до метро «Домодедовская» и «Марьино»
Внутренняя инфраструктура:
Жителей Римского квартала отличает неспешность. В самом деле, зачем спешить, если все необходимое в шаговой доступности? Школа и детские садики расположены внутри квартала. Это значительно экономит время по утрам и позволяет спокойно насладиться завтраком даже в будни. Разнообразные кафе станут традиционным местом семейных бранчей по выходным или вечерних посиделок с друзьями.
02.04.2026
9 028 110 ₽
Продаётся 1-к квартира номер 1481 общей площадью 38.1 кв.м. на 10-м этаже 11.1 этажного здания. Без отделки. Цена с учётом скидки.
Особенности квартиры:
-Планировка повышенной комфортности
-Идеальная планировка
-2 км от МКАД
-Двухуровневый двор без машин
- Просторная кухня - место для семейных ужинов и кулинарных экспериментов.
Квартира без отделки. Чистый холст для воплощения интерьера вашей мечты.
Информация о комплексе:
Архитекторы позаботились, чтобы красота и комфорт стали частью повседневной жизни жителя Римского квартала. Входные группы индивидуальны, однако в дизайне каждой угадывается итальянская любовь к декоративности и качественным отделочным материалам. Мы заботимся о свободном пространстве в вашей квартире, поэтому наличие кладовых позволит вам поддерживать идеальный порядок и уют в вашей квартире! На нижнем уровне комплекса проходят проезды, соединяющие весь квартал и расположены парковки. Дизайн подземных парковок с белоснежными колоннами вызывает ассоциации с историческим культурным слоем романской эпохи. Поэтому даже здесь вас не будет покидать ощущение особого места. Кладовые помещения находятся в каждой секции, доступ к ним осуществляется на современном лифте МЭЛ с пониженным уровнем шума. Бурная жизнь соседей больше не сможет нарушить ваш покой, а к вам никто не постучит, если вы захотите прибавить громкость в любимом музыкальном треке или Ваши дети захотят устроить ночную пробежку! Живите только по своим правилам.
Транспортная доступность:
Всего 2 км от МКАД, 15 минут на транспорте до метро «Домодедовская» и «Марьино»
Внутренняя инфраструктура:
Жителей Римского квартала отличает неспешность. В самом деле, зачем спешить, если все необходимое в шаговой доступности? Школа и детские садики расположены внутри квартала. Это значительно экономит время по утрам и позволяет спокойно насладиться завтраком даже в будни. Разнообразные кафе станут традиционным местом семейных бранчей по выходным или вечерних посиделок с друзьями.
02.04.2026
12 504 420 ₽
Продается 1-комнатная квартира от застройщика: общая площадь 35.60 м, жилая 13.80 м, кухня 12.60 м, 24-й этаж, жилой квартал «Вдохновение», корпус 33 (секция 3) . Срок сдачи: 4 квартал 2027 года.
Позвоните сейчас и забронируйте квартиру!
Квартал бизнес-класса СИМВОЛ - это городское пространство нового поколения в историческом районе Лефортово, на границе ЦАО, в 2 км от Садового кольца.
Бионическая архитектура СИМВОЛА превратила Лефортово в суперсовременное и модное пространство. Из окон, с балконов и террас просторных квартир СИМВОЛА открываются отличные виды на город и новый парк «Зеленая река», «протекающий» через все кварталы комплекса на 2 км.
В квартале уже есть все, что нужно для комфортной жизни: кафе и рестораны, супермаркеты и магазины, медицинские и физкультурно-оздоровительные центры, салоны красоты и барбершопы, аптеки и оптики, химчистки, пункты доставки и другие сервисы - всего более 90 действующих объектов внутриквартальной инфраструктуры.
Для юных жителей СИМВОЛА открыты детский сад и инженерный лицей при МГТУ им. Баумана.
Особенности квартала:
Свой парк «Зеленая Река» - 10 га зелени и развлечений на любой вкус!
Уникальная для Москвы архитектура - Проект создан архитектурной мастерской ATRIUM по дизайн-коду британских бюро LDA Design и UHA London.
Богатая инфраструктура с детскими садами и лицеем им. Баумана, кафе и ресторанами, супермаркетами и аптеками, зоной для фитнеса, бассейном и мед. центром.
Квартиры с панорамными окнами, террасами, ванными с окнами и каминами редких форматов.
Закрытые безопасные зелёные дворы-парки без машин!
02.04.2026
24 528 400 ₽
Продается 4-х комнатная квартира по адресу: город Москва, Алтуфьевское шоссе, дом 96. Квартира находится на 17-ом этаже 22-х этажного дома. Общая площадь 98 кв.м. , жилая 62 кв.м. , кухня 10 кв.м. Комнаты все изолированные: 21 кв.м. , 19 кв.м. , 12 кв.м. , 10 кв.м. При желании можно легко переоборудовать в полноценную большую двухкомнатную квартиру. Большой удобный коридор. Высота потолков 2,8 метра. С/У-раздельный. Квартира в хорошем жилом состоянии. Очень теплая и сухая. Окна квартиры выходят в насыщенный зеленью тихий двор. Благоустроенная придомовая территория двора. Чистый подъезд. В шаговой доступности вся возможная инфраструктура: детские сады, школы, центры досуга и отдыха, торговые центры, прогулочные зоны отдыха, поликлиники, магазины. До метро Алтуфьево 5 минут пешком. Документы более 3-х лет собственности. Возможна продажа по ипотеке.
03.04.2026
27 500 000 ₽
Продается 1-комнатная квартира от застройщика: общая площадь 35.60 м, жилая 13.80 м, кухня 12.60 м, 23-й этаж, жилой квартал «Вдохновение», корпус 33 (секция 3) . Срок сдачи: 4 квартал 2027 года.
Позвоните сейчас и забронируйте квартиру!
Квартал бизнес-класса СИМВОЛ - это городское пространство нового поколения в историческом районе Лефортово, на границе ЦАО, в 2 км от Садового кольца.
Бионическая архитектура СИМВОЛА превратила Лефортово в суперсовременное и модное пространство. Из окон, с балконов и террас просторных квартир СИМВОЛА открываются отличные виды на город и новый парк «Зеленая река», «протекающий» через все кварталы комплекса на 2 км.
В квартале уже есть все, что нужно для комфортной жизни: кафе и рестораны, супермаркеты и магазины, медицинские и физкультурно-оздоровительные центры, салоны красоты и барбершопы, аптеки и оптики, химчистки, пункты доставки и другие сервисы - всего более 90 действующих объектов внутриквартальной инфраструктуры.
Для юных жителей СИМВОЛА открыты детский сад и инженерный лицей при МГТУ им. Баумана.
Особенности квартала:
Свой парк «Зеленая Река» - 10 га зелени и развлечений на любой вкус!
Уникальная для Москвы архитектура - Проект создан архитектурной мастерской ATRIUM по дизайн-коду британских бюро LDA Design и UHA London.
Богатая инфраструктура с детскими садами и лицеем им. Баумана, кафе и ресторанами, супермаркетами и аптеками, зоной для фитнеса, бассейном и мед. центром.
Квартиры с панорамными окнами, террасами, ванными с окнами и каминами редких форматов.
Закрытые безопасные зелёные дворы-парки без машин!
02.04.2026
24 457 200 ₽
Продается 1-комнатная квартира от застройщика: общая площадь 35.60 м, жилая 13.80 м, кухня 12.60 м, 20-й этаж, жилой квартал «Вдохновение», корпус 33 (секция 3) . Срок сдачи: 4 квартал 2027 года.
Позвоните сейчас и забронируйте квартиру!
Квартал бизнес-класса СИМВОЛ - это городское пространство нового поколения в историческом районе Лефортово, на границе ЦАО, в 2 км от Садового кольца.
Бионическая архитектура СИМВОЛА превратила Лефортово в суперсовременное и модное пространство. Из окон, с балконов и террас просторных квартир СИМВОЛА открываются отличные виды на город и новый парк «Зеленая река», «протекающий» через все кварталы комплекса на 2 км.
В квартале уже есть все, что нужно для комфортной жизни: кафе и рестораны, супермаркеты и магазины, медицинские и физкультурно-оздоровительные центры, салоны красоты и барбершопы, аптеки и оптики, химчистки, пункты доставки и другие сервисы - всего более 90 действующих объектов внутриквартальной инфраструктуры.
Для юных жителей СИМВОЛА открыты детский сад и инженерный лицей при МГТУ им. Баумана.
Особенности квартала:
Свой парк «Зеленая Река» - 10 га зелени и развлечений на любой вкус!
Уникальная для Москвы архитектура - Проект создан архитектурной мастерской ATRIUM по дизайн-коду британских бюро LDA Design и UHA London.
Богатая инфраструктура с детскими садами и лицеем им. Баумана, кафе и ресторанами, супермаркетами и аптеками, зоной для фитнеса, бассейном и мед. центром.
Квартиры с панорамными окнами, террасами, ванными с окнами и каминами редких форматов.
Закрытые безопасные зелёные дворы-парки без машин!
02.04.2026
24 243 600 ₽
Продается 1-комнатная квартира от застройщика: общая площадь 36.60 м, жилая 13.80 м, кухня 12.60 м, 17-й этаж, жилой квартал «Вдохновение», корпус 33 (секция 3) . Срок сдачи: 4 квартал 2027 года.
Позвоните сейчас и забронируйте квартиру!
Квартал бизнес-класса СИМВОЛ - это городское пространство нового поколения в историческом районе Лефортово, на границе ЦАО, в 2 км от Садового кольца.
Бионическая архитектура СИМВОЛА превратила Лефортово в суперсовременное и модное пространство. Из окон, с балконов и террас просторных квартир СИМВОЛА открываются отличные виды на город и новый парк «Зеленая река», «протекающий» через все кварталы комплекса на 2 км.
В квартале уже есть все, что нужно для комфортной жизни: кафе и рестораны, супермаркеты и магазины, медицинские и физкультурно-оздоровительные центры, салоны красоты и барбершопы, аптеки и оптики, химчистки, пункты доставки и другие сервисы - всего более 90 действующих объектов внутриквартальной инфраструктуры.
Для юных жителей СИМВОЛА открыты детский сад и инженерный лицей при МГТУ им. Баумана.
Особенности квартала:
Свой парк «Зеленая Река» - 10 га зелени и развлечений на любой вкус!
Уникальная для Москвы архитектура - Проект создан архитектурной мастерской ATRIUM по дизайн-коду британских бюро LDA Design и UHA London.
Богатая инфраструктура с детскими садами и лицеем им. Баумана, кафе и ресторанами, супермаркетами и аптеками, зоной для фитнеса, бассейном и мед. центром.
Квартиры с панорамными окнами, террасами, ванными с окнами и каминами редких форматов.
Закрытые безопасные зелёные дворы-парки без машин!
03.04.2026
25 034 400 ₽
Предлагаем Вашему вниманию просторную однокомнатную квартиру.
Квартира требует хозяйской руки, ждет того, кто ее примет такой, какая она есть.
Два взрослых собственника.
Прямая продажа
Эксперт по недвижимости Мысниченко Евгения
30.03.2026
15 000 000 ₽
Продается студия площадью 18.1 кв.м. на 23-м этаже 28 этажного дома в "ЭМОУШН" от ГК ОСНОВА
«ЭМОУШН» - многофункциональный комплекс апартаментов бизнес-класса в престижном районе Хорошёво-Мнёвники (СЗАО) , новый выразительный акцент территории Большого Сити. Проект включает 4 корпуса переменной этажности со смелой концептуальной архитектурой от бюро КАМЕНЬ.
В составе комплекса - собственный СПА-центр с открытым всесезонным бассейном, офисный центр с конференц-залом и амфитеатром, коворкинг, двухуровневый подземный паркинг, кафе и ресторан, аптеки и супермаркет, а также приватные пространства для резидентов: досуг, красота и здоровье, частные и детские мероприятия. Дополняют концепцию авторское благоустройство, прогулочные зоны, фонтан, скульптуры.
Локация:
600 м до набережной Москвы-реки
5 минут пешком до м. «Звенигородская»
20 минут до м. «Полежаевская»)
удобный выезд на Звенигородское шоссе
5 минут до ТТК
10 минут до Москва-Сити.
«ЭМОУШН» - это про эргономику и функциональность:
панорамное остекление, видовые террасы
дизайнерские лобби с потолками до 4,7 м
система «Умный дом» и ресепшен-служба 24/7 - чтобы жить активнее, успевать больше и не тратить ресурсы впустую.
Стадия строительства - монолит готов, высокая стадия готовности, сдача в 2027 году. Проект также подходит под инвестиционные сценарии. Предусмотрена временная регистрация.
31.03.2026
12 847 380 ₽
АКЦИЯ!
Sole Hill - это уникальный проект, состоящий из 5 четырехэтажных особняков, полностью отделанных натуральным камнем.
Sole Hill расположен напротив Екатерининского парка, в 5 минутах от Цветного бульвара и в 30 минутах ходьбы от Кремля.
Всего 108 апартаментов, с подземным паркингом, собственной территорией 0,6 Га и панорамными окнами.
Проект Sole Hill - финалист премии Рекорды рынка недвижимости в номинации "Лучшая концепция 2023 года".
Объект 214-ФЗ введен в эксплуатацию в апреле 2024 года.
Sole Hill - это сочетание красоты, комфорта и безопасности.
Фасады отделаны натуральным камнем, из окон открываются панорамные виды на парки и исторические особняки.
В Sole Hill роскошные лобби. В отделке использованы мрамор, оникс, гранит и латунь.
В комплексе высокий уровень инженерии: система кондиционирования, приточно-вытяжная вентиляция, очистка воды и воздуха, система умный дом.
Для удобства жителей: подземный паркинг и кладовые помещения прямо на этаже.
Sole Hill - красота в деталях!
Проект великого архитектура Рикардо Бофилла, автора торговых домов Cartier и Christian Dior в Париже, здания Национального театра в Каталонии, аэропорта в Барселоне.
По задумке архитектора фасад зданий украшают оригинальные эркеры и панно из натурального камня пяти оттенков травертина, которые символизируют фасады старинных особняков испанских улочек.
В Sole Hill просторные и функциональные планировки, разработанные российско-французским архитектором, лауреатом премии города Москвы - Натальей Солоповой, а дизайн входных групп и холлов разработан студией "NPonomareva architects".
Sole Hill расположен в одном из живописных районов столицы.
Здесь сформирована высокого уровня образовательная, медицинская, спортивная и развлекательная инфраструктура.
Для целей ипотеки объект аккредитован в банках: ВТБ, Сбербанк, Росбанк, Совкомбанк.
Бюджет строительства проекта составил более 5 млрд. рублей.
28.03.2026
54 000 000 ₽
Продажа от собственника.
Элитные апартаменты с ремонтом в современном стиле.
Окна выходят в тихий уютный дворик!
Кухня-гостиная и просторная спальня, совмещенная ванная.
Высокие двери фирмы "Академия", натуральный паркет палубной раскладки, плитка "Kerama marazzi", электрофурнитура "Simon".
Оформлена собственность, сделка в один день.
Лучшее решение для инвестиций и собственного проживания.
Возможна меблировка и декор под руководством профессионального дизайнера!
О доме:
Sole Hill - это уникальный проект, состоящий из 5 четырехэтажных особняков, полностью отделанных натуральным камнем.
Sole Hill расположен напротив Екатерининского парка, в 5 минутах от Цветного бульвара и в 30 минутах ходьбы от Кремля.
Всего 108 апартаментов, с подземным паркингом, собственной территорией 0,6 Га и панорамными окнами.
Проект Sole Hill - финалист премии Рекорды рынка недвижимости в номинации "Лучшая концепция 2023 года".
Объект 214-ФЗ введен в эксплуатацию в апреле 2024 года.
Sole Hill - это сочетание красоты, комфорта и безопасности.
Фасады отделаны натуральным камнем, из окон открываются панорамные виды на парки и исторические особняки.
В Sole Hill роскошные лобби. В отделке использованы мрамор, оникс, гранит и латунь.
В комплексе высокий уровень инженерии: система кондиционирования, приточно-вытяжная вентиляция, очистка воды и воздуха, система умный дом.
Для удобства жителей: подземный паркинг и кладовые помещения прямо на этаже.
Sole Hill - красота в деталях!
Проект великого архитектура Рикардо Бофилла, автора торговых домов Cartier и Christian Dior в Париже, здания Национального театра в Каталонии, аэропорта в Барселоне.
По задумке архитектора фасад зданий украшают оригинальные эркеры и панно из натурального камня пяти оттенков травертина, которые символизируют фасады старинных особняков испанских улочек.
В Sole Hill просторные и функциональные планировки, разработанные российско-французским архитектором, лауреатом премии города Москвы - Натальей Солоповой, а дизайн входных групп и холлов разработан студией "NPonomareva architects".
Sole Hill расположен в одном из живописных районов столицы.
Здесь сформирована высокого уровня образовательная, медицинская, спортивная и развлекательная инфраструктура.
Для целей ипотеки объект аккредитован в банках: ВТБ, Сбербанк, Росбанк, Совкомбанк.
Бюджет строительства проекта составил более 5 млрд. рублей.
28.03.2026
38 360 000 ₽
АКЦИЯ!
Предложение от собственника. Срочная продажа.
Великолепные апартаменты на верхнем этаже с панорамным видом на исторические постройки и парковые территории города.
Высота потолков 3,3 м.
Sole Hill - это уникальный проект состоящий из 5 четырехэтажных особняков, полностью отделанных натуральным камнем.
Sole Hill расположен напротив Екатерининского парка, в 5 минутах от Цветного бульвара и в 30 минутах ходьбы от Кремля.
Всего 108 апартаментов, с подземным паркингом, собственной территорией 0,6 Га и панорамными окнами.
Проект Sole Hill - финалист премии Рекорды рынка недвижимости в номинации "Лучшая концепция 2023 года".
Объект 214-ФЗ введен в эксплуатацию в апреле 2024 года.
Sole Hill - это сочетание красоты, комфорта и безопасности.
Фасады отделаны натуральным камнем, из окон открываются панорамные виды на парки и исторические особняки.
В Sole Hill роскошные лобби. В отделке использованы мрамор, оникс, гранит и латунь.
В комплексе высокий уровень инженерии: система кондиционирования, приточно-вытяжная вентиляция, очистка воды и воздуха, система умный дом.
Для удобства жителей: подземный паркинг и кладовые помещения прямо на этаже.
Sole Hill - красота в деталях!
Проект великого архитектура Рикардо Бофилла, автора торговых домов Cartier и Christian Dior в Париже, здания Национального театра в Каталонии, аэропорта в Барселоне.
По задумке архитектора фасад зданий украшают оригинальные эркеры и панно из натурального камня пяти оттенков травертина, которые символизируют фасады старинных особняков испанских улочек.
В Sole Hill просторные и функциональные планировки, разработанные российско-французским архитектором, лауреатом премии города Москвы - Натальей Солоповой, а дизайн входных групп и холлов разработан студией "NPonomareva architects".
Sole Hill расположен в одном из живописных районов столицы.
Здесь сформирована высокого уровня образовательная, медицинская, спортивная и развлекательная инфраструктура.
Для целей ипотеки объект аккредитован в банках: ВТБ, Сбербанк, Росбанк, Совкомбанк.
Бюджет строительства проекта составил более 5 млрд. рублей.
28.03.2026
74 900 000 ₽
Продажа от собственника квартиры с дизайнерским ремонтом в р-не Цветного бульвара.
Олимпийский проспект, 10.
Площадь 138,2 м2.
4 этаж
Планировка:
- кухня-гостиная
- 2 спальни,
- 2 санузла, 2 гардеробные, 2 лоджии;
Выполнена отделка в современном стиле: натуральный дубовый паркет, оконные рамы - лиственница, итальянский керамогранит, стильные дорогие высокие двери, бытовая техника ASKO, Liebherr полностью приобретена для кухни.
Возможно выполнить меблировку согласно дизайн проекту под руководством профессионального архитектора.
Инженерия - система умный дом, кондиционеры Toshiba, сантехника ToTo (Япония);
Высота потока 3,5 м.
Из окон открываются красивые панорамные виды на храм и исторические скверы.
Дом построен в 1985 году для работников ЦК. Территория огорожена, охрана, консьерж, парковка на территории, спортивная и детская площадки. Есть места в подземном паркинге за дополнительную плату.
Район с развитой инфраструктурой: школы, детские сады, клиники и магазины, театры, СК Олимпийский,
Напротив расположен Екатерининский парк, в 5 минутах Цветной бульвар и в 5 минут езды от Кремля.
28.03.2026
87 000 000 ₽
От собственника. Акция!
Апартаменты white box.
Окна выходят в тихий уютный дворик.
Идеально для сдачи в аренду и собственного использования.
Sole Hill - это уникальный проект, состоящий из 5 четырехэтажных особняков, полностью отделанных натуральным камнем.
Sole Hill расположен напротив Екатерининского парка, в 5 минутах от Цветного бульвара и в 30 минутах ходьбы от Кремля.
Всего 108 апартаментов, с подземным паркингом, собственной территорией 0,6 Га и панорамными окнами.
Проект Sole Hill - финалист премии Рекорды рынка недвижимости в номинации "Лучшая концепция 2023 года".
Объект 214-ФЗ введен в эксплуатацию в апреле 2024 года.
Sole Hill - это сочетание красоты, комфорта и безопасности.
Фасады отделаны натуральным камнем, из окон открываются панорамные виды на парки и исторические особняки.
В Sole Hill роскошные лобби. В отделке использованы мрамор, оникс, гранит и латунь.
В комплексе высокий уровень инженерии: система кондиционирования, приточно-вытяжная вентиляция, очистка воды и воздуха, система умный дом.
Для удобства жителей: подземный паркинг и кладовые помещения прямо на этаже.
Sole Hill - красота в деталях!
Проект великого архитектура Рикардо Бофилла, автора торговых домов Cartier и Christian Dior в Париже, здания Национального театра в Каталонии, аэропорта в Барселоне.
По задумке архитектора фасад зданий украшают оригинальные эркеры и панно из натурального камня пяти оттенков травертина, которые символизируют фасады старинных особняков испанских улочек.
В Sole Hill просторные и функциональные планировки, разработанные российско-французским архитектором, лауреатом премии города Москвы - Натальей Солоповой, а дизайн входных групп и холлов разработан студией "NPonomareva architects".
Sole Hill расположен в одном из живописных районов столицы.
Здесь сформирована высокого уровня образовательная, медицинская, спортивная и развлекательная инфраструктура.
Для целей ипотеки объект аккредитован в банках: ВТБ, Сбербанк, Росбанк, Совкомбанк.
Бюджет строительства проекта составил более 5 млрд. рублей.
28.03.2026
28 500 000 ₽
Продается квартира в монолитном доме, индивидуального проекта в ЖК «Северный город». Транспортная доступность: МЦД-1 «Бескудниково»: 10 минут пешком (20-22 минуты до Белорусского вокзала) .
МЦД-1 «Лианозово»: 15 минут пешком. Метро «Яхромская»: 18 минут пешком.
Метро «Селигерская»: 10 минут на транспорте (остановка напротив дома) .
В доме всего 1подъезд- приличная входная группа, круглосуточная охрана (живой дежурный на
входе) . На этаже живут спокойные семьи, соблюдается тишина, большинство собственников проживает в доме длительное время.
Внутренняя закрытая детская площадка (безопасная зона без доступа посторонних) .
Мусоропровода в доме нет (отсутствие запахов) , мусорные баки расположены на улице рядом с подъездом.
Инфраструктура: В стилобате дома - МФЦ, супермаркет «Перекресток», аптека. В 3 минутах пешком - парк «Северные дубки». Взрослая поликлиника №155 и детская №15 находятся непосредственно под домом или в соседнем корпусе.
Сама квартира большая, светлая, уютная, по планировке как евро 4, а именно: 3 изолированные комнаты (13.0 м, 14.0 м, 15.0 м) + Кухня-гостиная: Общая зона 39.9 м (кухня 15.9 м + гостиная 24.0 м) . Имеется Гардеробная (4.0 м) , два санузла: санузел №1 (3.4 м, душевая кабина) , санузел №2 (3.1 м, ванна в мастер-спальне) . Лоджия: 3.31 м (застеклена, утеплена) . В квартире 4 окна: 2 окна выходят на улицу Дубнинская (Запад) , 2 окна - во двор на Проектируемый проезд (Юг) . Один собственник! СВОБОДНАЯ ПРОДАЖА!
03.04.2026
32 900 000 ₽
БЕЗ ТОРГА!
Продается самая большая студия в ЖК Горки Парк. Площадь 27.1 м2 по ЕГРН.
Расположена на 13 этаже 17 этажного дома 2023 г. постройки.
Полностью укомплектована всей мебелью и техникой! Квартира под "тапочки", заехал и живи. Не требует никаких вложений, есть даже wi-fi роутер под интернет!
В квартире светло, тихо!
Окна во двор!
Покупалась у застройщика в 2022 г. по ДДУ. 1 взрослый собственник.
Прямая продажа.
Никто не зарегистрирован. Юридически чистая. Подходит под ипотеку.
В ЖК можно добраться за 15 минут от м. Домодедовская на авто по трассе А105 или автобусом, который заезжает в ЖК.
Преимущества этого жилого комплекса- наличие школы и детского сада. На первых этажах сетевые магазины, ПВЗ, кафе и пр.
Приглашаю вас на просмотр этой замечательной квартиры!
27.03.2026
6 400 000 ₽
Уютная 1-комнатная квартира на Ботанической улице. Идеальное место для жизни!
Адрес: Москва, Ботаническая улица
Метро: всего в 10 минутах пешком от м. Фонвизинская – ВДНХ - ОСТАНКИНСКИЙ ПРУД - тихий район, развитая инфраструктура, зеленая зона рядом.
Параметры:
Общая площадь: 37,8 м2
Жилая: 25 м2
Кухня: 8 м2
Этаж: 2 из 17
Лоджия: 1 (утепленная, можно использовать как дополнительное пространство)
Что вас ждет:
Светлая и продуманная планировка – комната просторная, кухня изолированная, прихожая позволяет удобно разместить шкаф-купе.
Вся мебель и техника для комфортной жизни – холодильник, стиральная машина, плита, спальное место, мягкая мебель, стол, шкафы.
Лоджия – дополнительное уютное пространство для отдыха или хранения.
Чистый подъезд, современный дом – 17 этажей, лифты, видеонаблюдение, домофон.
Рядом всё необходимое: магазины, кафе, аптеки, детский сад и школа – в пешей доступности.
Условия аренды:
Срок: долгосрочно (от 1 года)
Залог: 1 месяц
Коммунальные платежи: по счетчикам (вода, свет) – оплачиваются отдельно
Можно с детьми – семейная атмосфера приветствуется!
Почему вам понравится здесь жить:
Эта квартира – идеальный вариант для тех, кто ценит тишину, удобство и быструю транспортную доступность. Недалеко – парки и скверы Ботанического сада, до центра на метро 15–20 минут. В доме спокойные соседи, рядом всё для повседневных дел.
Звоните прямо сейчас, чтобы договориться о просмотре!
Квартира свободна, показ в удобное для вас время.
27.03.2026
55 000 ₽
Продается 2-комн. квартира, площадью 43.5 кв.м. Возможен вариант покупки с использованием ипотечных средств.
Жилая площадь 40 кв.м, кухня 3 кв.м. Площадь комнат: 25/15 м2, типовой ремонт, комнаты изолированные. Раздельных санузлов - 1. Ванной комнаты нет.
На полу линолеум, балконов - нет, лоджий - нет, окна выходят во двор и на улицу.
Квартира располагается на 1 этаже 4-этажного дома, высота потолков 2.8 м. Центр города, 1 линия.
26.03.2026
4 050 000 ₽
Пpодаетcя oгромная, светлая квaртиpа пoд ремонт.
Фактичecки, этo 2 oтдeльныe 2x кoмнатные квартиpы, вxод один заделaн.
Можно выделить и раcплaнирoвaть, всe для этогo есть.
2 cанузлa,2 ванные кoмнаты.
Фактичeски, 2 кухни.
B сoбcтвеннocти с 2012 гoдa, 2 собcтвенника, взpоcлые.
Oтличный райoн: pядом школa, дeтский сад, поликлиника и гигантская парковка перед окнами.
До станции Лобня ходят маршрутки, остановка рядом с домом.
Прямая продажа
25.03.2026
15 700 000 ₽
Продается квартира-студия от застройщика: общая площадь 28.80 м, жилая 10.00 м, кухня 10.40 м, 16-й этаж, жилой квартал «Гордость», корпус 36 (секция 5) . Срок сдачи: 2 квартал 2029 года.
Позвоните сейчас и забронируйте квартиру!
Квартал бизнес-класса СИМВОЛ - это городское пространство нового поколения в историческом районе Лефортово, на границе ЦАО, в 2 км от Садового кольца.
Бионическая архитектура СИМВОЛА превратила Лефортово в суперсовременное и модное пространство. Из окон, с балконов и террас просторных квартир СИМВОЛА открываются отличные виды на город и новый парк «Зеленая река», «протекающий» через все кварталы комплекса на 2 км.
В квартале уже есть все, что нужно для комфортной жизни: кафе и рестораны, супермаркеты и магазины, медицинские и физкультурно-оздоровительные центры, салоны красоты и барбершопы, аптеки и оптики, химчистки, пункты доставки и другие сервисы - всего более 90 действующих объектов внутриквартальной инфраструктуры.
Для юных жителей СИМВОЛА открыты детский сад и инженерный лицей при МГТУ им. Баумана.
Особенности квартала:
Свой парк «Зеленая Река» - 10 га зелени и развлечений на любой вкус!
Уникальная для Москвы архитектура - Проект создан архитектурной мастерской ATRIUM по дизайн-коду британских бюро LDA Design и UHA London.
Богатая инфраструктура с детскими садами и лицеем им. Баумана, кафе и ресторанами, супермаркетами и аптеками, зоной для фитнеса, бассейном и мед. центром.
Квартиры с панорамными окнами, террасами, ванными с окнами и каминами редких форматов.
Закрытые безопасные зелёные дворы-парки без машин!
02.04.2026
20 073 600 ₽




















