Продать квартиру в Шатурторфе - Страница 2
- Шатурторф »
- Недвижимость
- » Квартиры
- » Продажа квартир в Шатурторфе
Продается просторная 3 комнатная квартира в г. Домодедово, мкр. Западный, по улице Рабочая, д.44, корп.1. Дом 2004 года постройки. Квартира располагается на 1 этаже 10 этажного кирпичного дома. Квартира распашонкой, на две стороны, общей площадью 64,8 кв., комнаты 15.5/10.5 кв.м. маленькая комната 9 кв.м. была совмещена с коридором, застекленный балкон, кухня 10 кв.м с газом, совмещенный санузел с душевой кабиной. В квартире сделан хороший качественный ремонт, въезжай и живи. Остается практически вся мебель и техника, включая: стиральная машина, холодильник, варочная плита, духовой шкаф, посудомоечная машина и многое другое. В двух комнатах установлены кондиционеры, окна заменены на новые, дорогая входная железная дверь. Потолки натяжные. Полы –керамическая плитка и паркетная доска. В большой комнате дополнительно сделана гардеробная комната. Теплые полы по всей квартире, включая балкон. Была произведена перепланировка квартиры для более удобного и просторного использования всех помещений. Перепланировка не узаконена, мокрые точки, несущая конструкция не тронуты.
Отличные соседи на площадке, дом стоит в планах кап. ремонта, пассажирский лифт, стихийная парковка. Во дворе дома дополнительно подвал для хранения овощей или бытовые нужды.
Дом располагается в спальном районе города, вблизи вся инфраструктура: городской лес, парк, детские сады, школы, Сбербанк, сетевые магазины, ТЦ, спортивный комплекс с плавательным бассейном, женская консультация, почта и многое другое. Остановка до Москвы и до ж/д станции Домодедово под окнами. До станции Домодедово пешком можно дойти за 20 минут.
Квартира без обременений, материнский капитал не использовался. Документы основания – договор купли-продажи 2006 года. Один взрослый собственник, полная стоимость в договоре. Свободная продажа. Ипотека возможна. Звоните и записывайтесь на показ квартиры. AFY-345509783
25.02.2026
12 000 000 ₽
Вашему вниманию представлена к продаже 1 комнатная квартира в городе Домодедово, мкр. Западный, по улице Зеленая, д. 85. Дом 1962 года постройки, 4 подъездный. Квартира в жилом состоянии, общей площадь. 30, 1 кв.м., расположенная на 2 этаже 5 этажного кирпичного дома, не угловая. Кухня 6 кв.м, комната 17 кв.м., совмещенный санузел. Квартира светлая, теплая, комфортная. Высота потолков 2.5 метра, входная железная дверь. Парковка стихийная. До ж/д станции и рынка 20-25 минут пешком. В 12 минутах городской парк и отдыха «Елочки». Удобное расположение практически до всех объектов городской инфраструктур: школа № 7, детских садик во дворе, ДК «Мир», магазины, почта, остановки общественного транспорта, в том числе и до Москвы (30 минут без пробок м. Домодедовская). Тихий спальный район. Зеленый двор.
В собственности менее 5 лет, основание права собственности – ДКП. Один взрослый собственник. Никаких обременений и залогов нет. Готовы рассмотреть ипотеку. Цена в договоре полная. Свободная продажа! AFY-345503544
19.02.2026
5 200 000 ₽
Продаю двухкомнатную квартиру на 2 этаже двухэтажного деревянного дома, 41 кв м. В доме 250 кв м 6 квартир.
Подробная информация по телефону. AFY-345339218
28.11.2025
3 000 000 ₽
Квартира-студия расположена на первой береговой линии Москвы-реки, площадью 23. 40 кв. м. Без отделки. Квартира расположена на 7 этаже 26-этажного корпуса "С". номер секции 1 в жилом комплексе бизнес-класса Level Нагатинская (компания Level Group). С каждого этажа дома на лифте можно спуститься в подземный отапливаемый паркинг.
До метро 15 мин. пешком до станции м. Нагатинская" , так же доступность до станций метро -"Коломенская" и мцк "Верхние Котлы" , ТТК , до Садового кольца на авто 12 мин . AFY-345312219
28.11.2025
11 900 000 ₽
Новый жилой комплекс
в г. Котельники, мкр. Южный.
Однокомнатная квартира с евроремонтом в современном стиле. Большой балкон. Кухня оборудована всей необходимой техникой по последнему слову. Установлены индивидуальные счётчики отопления с регулировкой температуры.
Развитая инфраструктура: рядом школа, детский сад, поликлиники. В пешей доступности несколько сетевых супермаркетов.
Удобная транспортная развязка :
до метро Котельники 7-10 минут общественным транспортом .
Окна выходят во двор, где находится прекрасно оборудованная , детская площадка.
Рядом Томилинский лесопарк.
В полукилометре от дома расположены несколько лесных озер. На одном из них экстрим-парк "Фристайл " :
летом - водные атракционы,
зимой - горнолыжный спуск, тюнинг.
В доме есть подземный паркинг.
В квартире после ремонта никто не жил.
Один взрослый собственник.
Прямая продажа.
Оперативный показ.
Быстрый выход на сделку. AFY-342209627
28.11.2025
8 300 000 ₽
Продается 2-комнатная квартира от застройщика: общая площадь 68.60 м, жилая 26.80 м, кухня 19.90 м, 12-й этаж, жилой квартал «Вдохновение», корпус 28 (секция 1) . Срок сдачи: 4 квартал 2025 года.
Позвоните сейчас и забронируйте квартиру!
Квартал бизнес-класса СИМВОЛ - это городское пространство нового поколения в историческом районе Лефортово, на границе ЦАО, в 2 км от Садового кольца.
Бионическая архитектура СИМВОЛА превратила Лефортово в суперсовременное и модное пространство. Из окон, с балконов и террас просторных квартир СИМВОЛА открываются отличные виды на город и новый парк «Зеленая река», «протекающий» через все кварталы комплекса на 2 км.
В квартале уже есть все, что нужно для комфортной жизни: кафе и рестораны, супермаркеты и магазины, медицинские и физкультурно-оздоровительные центры, салоны красоты и барбершопы, аптеки и оптики, химчистки, пункты доставки и другие сервисы - всего более 90 действующих объектов внутриквартальной инфраструктуры.
Для юных жителей СИМВОЛА открыты детский сад и инженерный лицей при МГТУ им. Баумана.
Особенности квартала:
Свой парк «Зеленая Река» - 10 га зелени и развлечений на любой вкус!
Уникальная для Москвы архитектура - Проект создан архитектурной мастерской ATRIUM по дизайн-коду британских бюро LDA Design и UHA London.
Богатая инфраструктура с детскими садами и лицеем им. Баумана, кафе и ресторанами, супермаркетами и аптеками, зоной для фитнеса, бассейном и мед. центром.
Квартиры с панорамными окнами, террасами, ванными с окнами и каминами редких форматов.
Закрытые безопасные зелёные дворы-парки без машин!
01.03.2026
34 678 488 ₽
Светлая однокомнатная квартира, закрытый двор, огороженная территория, чистый подъезд.
5 минут пешком до МЦД-3, станция Фабричная, 40 минут до московской станции Выхино, 50 минут до центра Москвы.
Развитая инфроструктура, в 5 ти минутах Мираторг, Дикси, Да, Пятерочка, продуктовый рынок. Детские сады, школы, поликлинника и тд. . . .
Прозрачная история, первичные документы, 38 лет в одной семье. Один взрослый собственник, полная стоимость в договоре, легкая альтернатива. Ипотека приветствуется!
Просмотр в любое удобное время, по договоренности.
28.02.2026
5 500 000 ₽
Продается 2-комн. квартира, площадью 42.7 кв.м. Возможен вариант покупки с использованием ипотечных средств.
Жилая площадь 26 м2, кухня 7 кв.м. Раздельных санузлов - нет, совмещенных санузлов - 1, балконов - 1, лоджий - нет.
Квартира располагается на 5 этаже 9-этажного дома.
До станции жд Люберцы-1( D3) 15 минут пешком. Развитый район города, сетевые магазины, все дошкольные и школьные , спортивные учреждения. Рядом ТЦ Светофор, кинотеатр, банк фитнес центр с бассейном.
26.02.2026
8 300 000 ₽
Продается студия площадью 24.5 кв.м. на 15-м этаже 28 этажного дома в "Эмоушн" от ГК ОСНОВА
Эмоушн включает в себя 4 корпуса переменной этажности, собственный спа-центр с открытым бассейном, офисный центр с конференц-залом и амфитеатром, подземный паркинг, кафе, супермаркет, а также специально отведенные пространства для проведения частных и детских мероприятий, организации досуга и заботы о своей красоте и здоровье.
Проект бизнес-класса находится в центре территории Большого Сити в 600 метрах от набережной Москвы-реки в окружении 4-х действующих крупных транспортных развязок, что позволяет минимизировать пробки на пересекающих транспортных потоках.
Эмоушн - это воплощение эргономичности и функциональности. Каждый сантиметр пространства создан для того, чтобы приносить вам пользу, помогать быть всегда быть активными, успешными и эффективными, оставаться в тонусе, как можно больше успевать и при этом не растрачивать зря свои ресурсы.
26.02.2026
15 876 000 ₽
Лучше пишите, сразу отвечу вам.
Продается 2-к квартира 37.2 м2. Центральная и самая обжитая часть города с развитой инфраструктурой. Рядом все магазины, детские, спортивные учреждения .
Дом кирпичный, 1972 года постройки. Квартира в собственности у одного взрослого собственника, свободная продажа.
Совмещенный санузел, застекленная лоджия с торца дома, вся мебель остается.
Звоните, отвечу на все интересующие вопросы.
25.02.2026
7 200 000 ₽
Продажа квартиры, с ремонтом от застройщика в современном развивающемся районе. Регистрация- г. Москва. Общая площадь 38 кв.м. Кухня с выходом на балкон, совмещенный санузел, гардеробная. В пешей доступности: остановка автотранспорта, школа, продуктовые магазины, детский сад, детская площадка, аптеки. Один взрослый собственник. Свободная продажа. Ипотека возможна.
25.02.2026
10 500 000 ₽
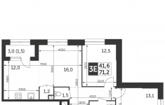
Продается 3-комн. квартира, площадью 71.2 кв.м.
Жилая площадь 41.6 кв. м, кухня 12 кв. м, ремонта нет, окна выходят на улицу.
Квартира располагается на 20 этаже 28-этажного монолитного дома.
Дом оборудован пассажирским лифтом, есть мусоропровод, закрытая территория, парковка охраняется.
21.02.2026
39 985 564 ₽
Последние квартиры в ЖК "Датский квартал"!
Продаётся 1-к квартира номер 1026 общей площадью 37.8 кв.м. на 16-м этаже 17 этажного здания. Без отделки. Цена с учётом скидки.
Особенности квартиры:
Дополнительные условия:
- Возможна покупка по программе Трэйд-Ин
- Живите сейчас и платите потом - гибкие условия приобретения
- Максимальные скидки при 100% оплате
- Просторная спальня, в которой можно разместить большую кровать.
- Линейная планировка - максимальная функциональность и удобство.
- Гибкая планировка - создайте пространство по своему вкусу.
- Можно оборудовать рабочее место - комфорт для работы и учёбы.
- Ниша под шкаф - компактное и удобное место для вещей.
- Балкон - открытое пространство для отдыха.
Квартира без отделки. Чистый холст для воплощения интерьера вашей мечты.
Информация о комплексе:
Ощутите прелесть жизни в маленьком европейском городке, не выезжая на пределы Москвы. Здесь всё рядом и продумано для вас: магазины, булочные, прачечные, аптеки и салоны красоты в шаговой доступности. Наличие кладовых позволит вам поддерживать идеальный порядок и уют!
Мы учли каждую мелочь, чтобы вы могли наслаждаться повседневной жизнью- Двор без машин, закрытое, безопасное, охраняемое место с удобным доступом для вашего авто, более чистый воздух и гарантированное место для стоянки - и это далеко не все преимущества наличия подземного паркинга. Наличие кладовых позволит вам поддерживать идеальный порядок и уют в вашей квартире! Родители самых маленьких жильцов будут в восторге от колясочных, запирающихся на магнитный замок. Весь малогабаритный семейный транспорт - коляска, велосипеды и самокаты - прекрасно будет ждать вас здесь до следующего раза. Вымыть колеса коляски или лапы питомцу можно в специальных помещениях, расположенных рядом с колясочной.
Транспортная доступность:
Менее 1км от МКАД: рядом Осташковское и Алтуфьевское шоссе; 15 минут до метро "Алтуфьево", "Бибирево", "Медведково"; 7 минут пешком до ближайшей остановки общественного транспорта.
Внутренняя инфраструктура:
- 2 муниципальных детских сада и муниципальная школа
- Медицинский центр
- Магазины, аптеки, салоны красоты, кафе, булочные на первых этажах комплекса
Квартира без отделки - чистый холст для вашего интерьера.
21.02.2026
9 392 506 ₽
Продается 2-комнатная квартира от застройщика: общая площадь 71.60 м, жилая 35.80 м, кухня 18.50 м, 17-й этаж, жилой квартал «Гордость», корпус 36 (секция 2) . Срок сдачи: 2 квартал 2029 года.
Позвоните сейчас и забронируйте квартиру!
Квартал бизнес-класса СИМВОЛ - это городское пространство нового поколения в историческом районе Лефортово, на границе ЦАО, в 2 км от Садового кольца.
Бионическая архитектура СИМВОЛА превратила Лефортово в суперсовременное и модное пространство. Из окон, с балконов и террас просторных квартир СИМВОЛА открываются отличные виды на город и новый парк «Зеленая река», «протекающий» через все кварталы комплекса на 2 км.
В квартале уже есть все, что нужно для комфортной жизни: кафе и рестораны, супермаркеты и магазины, медицинские и физкультурно-оздоровительные центры, салоны красоты и барбершопы, аптеки и оптики, химчистки, пункты доставки и другие сервисы - всего более 90 действующих объектов внутриквартальной инфраструктуры.
Для юных жителей СИМВОЛА открыты детский сад и инженерный лицей при МГТУ им. Баумана.
Особенности квартала:
Свой парк «Зеленая Река» - 10 га зелени и развлечений на любой вкус!
Уникальная для Москвы архитектура - Проект создан архитектурной мастерской ATRIUM по дизайн-коду британских бюро LDA Design и UHA London.
Богатая инфраструктура с детскими садами и лицеем им. Баумана, кафе и ресторанами, супермаркетами и аптеками, зоной для фитнеса, бассейном и мед. центром.
Квартиры с панорамными окнами, террасами, ванными с окнами и каминами редких форматов.
Закрытые безопасные зелёные дворы-парки без машин!
27.02.2026
33 133 616 ₽
Продается 1-комнатная квартира от застройщика: общая площадь 48.00 м, жилая 14.00 м, кухня 23.30 м, 23-й этаж, жилой квартал «Вдохновение», корпус 35 (секция 1) . Срок сдачи: 4 квартал 2027 года.
Позвоните сейчас и забронируйте квартиру!
Квартал бизнес-класса СИМВОЛ - это городское пространство нового поколения в историческом районе Лефортово, на границе ЦАО, в 2 км от Садового кольца.
Бионическая архитектура СИМВОЛА превратила Лефортово в суперсовременное и модное пространство. Из окон, с балконов и террас просторных квартир СИМВОЛА открываются отличные виды на город и новый парк «Зеленая река», «протекающий» через все кварталы комплекса на 2 км.
В квартале уже есть все, что нужно для комфортной жизни: кафе и рестораны, супермаркеты и магазины, медицинские и физкультурно-оздоровительные центры, салоны красоты и барбершопы, аптеки и оптики, химчистки, пункты доставки и другие сервисы - всего более 90 действующих объектов внутриквартальной инфраструктуры.
Для юных жителей СИМВОЛА открыты детский сад и инженерный лицей при МГТУ им. Баумана.
Особенности квартала:
Свой парк «Зеленая Река» - 10 га зелени и развлечений на любой вкус!
Уникальная для Москвы архитектура - Проект создан архитектурной мастерской ATRIUM по дизайн-коду британских бюро LDA Design и UHA London.
Богатая инфраструктура с детскими садами и лицеем им. Баумана, кафе и ресторанами, супермаркетами и аптеками, зоной для фитнеса, бассейном и мед. центром.
Квартиры с панорамными окнами, террасами, ванными с окнами и каминами редких форматов.
Закрытые безопасные зелёные дворы-парки без машин!
27.02.2026
25 127 040 ₽
Продается теплая и уютная 1-комнатная квартира у метро Академическая!
Идеальный вариант для жизни или инвестиций!
Предлагаем к продаже светлую, теплую квартиру в престижном районе, всего в 2 минутах ходьбы от станции метро "Академическая". Современный дом 2015 года постройки, улучшенная планировка, 5 этаж 19-ти этажного панельного дома. Высота потолков 2,78 метра создает ощущение простора. Комната с эркерным окном, пропускающим много естественного света. Застекленная лоджия – ваше личное пространство для отдыха.
Преимущества расположения:
- Транспортная доступность: 2 минуты пешком до метро "Академическая" (Калужско-Рижская и Троицкая линии). - Остановки общественного транспорта рядом. Удобный выезд на личном автомобиле в центр и область.
- Развитая инфраструктура: В шаговой доступности всё необходимое для комфортной жизни: детские сады, школы, поликлиники, магазины, торговые центры, рестораны, фитнес-центры, салоны красоты, банки.
- Видовые характеристики: Окна выходят на живописную площадь Хо Ши Мина.
Характеристики квартиры:
Площадь: 36 кв.м.
Комната с эркерным окном
Застекленная лоджия
Высокие потолки (2,78 м)
Современный дом (2015 г.п.)
Улучшенная планировка
Юридическая чистота:
Более 3 лет в собственности.
Полная стоимость в договоре.
Один взрослый собственник.
Без обременений и залогов.
Эта квартира – ваш шанс обрести уютное жилье в одном из лучших районов Москвы с отличной транспортной доступностью и развитой инфраструктурой. Звоните прямо сейчас, чтобы узнать подробности и договориться о просмотре!
18.02.2026
19 950 000 ₽
Продается 3-комн. квартира, площадью 71.2 м2.
Жилая площадь 41.6 кв. м, кухня 12 кв. м, ремонта нет, окна выходят на улицу.
Квартира располагается на 23 этаже 28-этажного монолитного дома.
Дом оборудован пассажирским лифтом, есть мусоропровод, закрытая территория, парковка охраняемая.
18.02.2026
40 167 124 ₽
Продается 3-комн. квартира, площадью 84.3 кв.м.
Жилая площадь 39.3 кв. м, ремонта нет, окна выходят на улицу.
Квартира располагается на 10 этаже 17-этажного монолитного дома.
Дом оборудован пассажирским лифтом, есть мусоропровод, закрытая территория, парковка охраняется.
18.02.2026
53 414 335 ₽
ПРОДАЕТСЯ 1-КОМНАТНАЯ КВАРТИРА В ЖИЛОМ КОМПЛЕКСЕ КОМФОРТ-КЛАССА (г. Одинцово)
Адрес: Московская область, г. Одинцово, ул. Белорусская, д. 2
Этаж: 12 (из 11) — верхний этаж, потрясающий вид и тишина.
Общяя площадь 42,4
Высота потолков 2,88
Просторная и функциональная планировка, от застройщика под отделку.
ОПИСАНИЕ И ПРЕИМУЩЕСТВА
СВЕТЛАЯ И УЮТНАЯ КВАРТИРА С ПРЕКРАСНЫМ ВИДОМ
Просторная 1-комнатная квартира на верхнем этаже современного монолитного дома. Большая жилая площадь (40 м2) позволяет организовать комфортное пространство как для одного человека, так и для пары.
КАЧЕСТВЕННЫЙ ДОМ (2015 ГОДА ПОСТРОЙКИ)
Тип дома: Монолитный (высокая тепло- и звукоизоляция)
Год постройки: 2015 (относительно новый дом, без проблем старых построек)
Лифт: Пассажирский (удобство для всех жильцов)
Мусоропровод: Наличие (чистота и комфорт)
УДОБНАЯ ЛОКАЦИЯ (Одинцово, ул. Белорусская)
Тихий и зеленый район с развитой инфраструктурой
В шаговой доступности магазины, аптеки, школы, детские сады
Хорошая транспортная доступность до Москвы и областных трасс
СТОИМОСТЬ
Цена: 9 850 000 рублей
Это отличное предложение для квартиры с такой жилой площадью и качественным домом!
ДЛЯ КОГО ЭТА КВАРТИРА?
Для тех, кто ценит простор — огромная жилая площадь для однушки
Для семейной пары или инвестора
Для любителей верхних этажей и красивых видов из окна
18.02.2026
9 850 000 ₽
Продается 3-комн. квартира, площадью 77.3 кв.м.
Жилая площадь 43.1 м2, кухня 12 кв. м, ремонта нет, окна выходят на улицу.
Квартира располагается на 14 этаже 28-этажного монолитного дома.
Дом оборудован пассажирским лифтом, есть мусоропровод, закрытая территория, парковка охраняется.
18.02.2026
42 130 046 ₽
Продается 3-комн. квартира, площадью 69.4 м2.
Жилая площадь 40.6 м2, кухня 11.6 кв. м, ремонта нет, окна выходят на улицу.
Квартира располагается на 4 этаже 28-этажного монолитного дома.
Дом оборудован пассажирским лифтом, есть мусоропровод, закрытая территория, парковка охраняемая.
18.02.2026
39 977 523 ₽




















