Продам коммерческую недвижимость 1496 м2
Размещено 30 сентября 2025
17
0
Жалоба
- Параметры объявления
- Общая площадь (м2): 1496
- Описание
Прямая продажа офисного помещения в апарт-отеле Best Western Zoom Hotel (900+ номеров) на набережной Черной реки.
Идеальное расположение для офиса в новом трендовом центре Петербурга в шаговой доступности от метро «Черная речка» (7 мин.).
Продажа помещения с гарантированным арендатором на срок 10 лет, что обеспечивает стабильный доход и скорость окупаемости. Согласно оценке независимой компании IPG Estate, срок возврата инвестиций составляет 7-8 лет.
Дизайнерская отделка и современные инженерные системы. Собственная система вентиляции и кондиционирования.
Панорамные окно с видом на Черную речку и благоустроенную набережную.
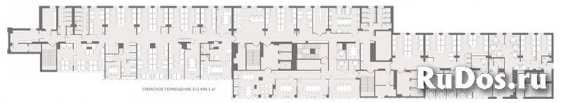
Оптимальная схема размещения офиса на одном этаже с эргономичным зонированием.
Несколько входов (включая отдельный собственный и через рецепш отеля).
Переговорные залы-трансформеры с возможностью разделения на 3 отдельных или в единое помещение. Лаунж-зоны. Зоны рецепшн.
Офис организован по принципу опен-спейса.
Вся необходимая инфраструктура для персонала: кухня и столовая, санузлы, гардеробные.
Общая площадь: 1 496,1 м2
Высота потолков: 2,6 метра.
Электроэнергия: 157 кВт.
Идеальное расположение для офиса в новом трендовом центре Петербурга в шаговой доступности от метро «Черная речка» (7 мин.).
Продажа помещения с гарантированным арендатором на срок 10 лет, что обеспечивает стабильный доход и скорость окупаемости. Согласно оценке независимой компании IPG Estate, срок возврата инвестиций составляет 7-8 лет.
Дизайнерская отделка и современные инженерные системы. Собственная система вентиляции и кондиционирования.
Панорамные окно с видом на Черную речку и благоустроенную набережную.
Оптимальная схема размещения офиса на одном этаже с эргономичным зонированием.
Несколько входов (включая отдельный собственный и через рецепш отеля).
Переговорные залы-трансформеры с возможностью разделения на 3 отдельных или в единое помещение. Лаунж-зоны. Зоны рецепшн.
Офис организован по принципу опен-спейса.
Вся необходимая инфраструктура для персонала: кухня и столовая, санузлы, гардеробные.
Общая площадь: 1 496,1 м2
Высота потолков: 2,6 метра.
Электроэнергия: 157 кВт.
