Объявление о квартирах в Рублево - Страница 7
- Рублево »
- Недвижимость
- » Квартиры в Рублево
Продается теплая и уютная 1-комнатная квартира у метро Академическая!
Идеальный вариант для жизни или инвестиций!
Предлагаем к продаже светлую, теплую квартиру в престижном районе, всего в 2 минутах ходьбы от станции метро "Академическая". Современный дом 2015 года постройки, улучшенная планировка, 5 этаж 19-ти этажного панельного дома. Высота потолков 2,78 метра создает ощущение простора. Комната с эркерным окном, пропускающим много естественного света. Застекленная лоджия – ваше личное пространство для отдыха.
Преимущества расположения:
- Транспортная доступность: 2 минуты пешком до метро "Академическая" (Калужско-Рижская и Троицкая линии). - Остановки общественного транспорта рядом. Удобный выезд на личном автомобиле в центр и область.
- Развитая инфраструктура: В шаговой доступности всё необходимое для комфортной жизни: детские сады, школы, поликлиники, магазины, торговые центры, рестораны, фитнес-центры, салоны красоты, банки.
- Видовые характеристики: Окна выходят на живописную площадь Хо Ши Мина.
Характеристики квартиры:
Площадь: 36 кв.м.
Комната с эркерным окном
Застекленная лоджия
Высокие потолки (2,78 м)
Современный дом (2015 г.п.)
Улучшенная планировка
Юридическая чистота:
Более 3 лет в собственности.
Полная стоимость в договоре.
Один взрослый собственник.
Без обременений и залогов.
Эта квартира – ваш шанс обрести уютное жилье в одном из лучших районов Москвы с отличной транспортной доступностью и развитой инфраструктурой. Звоните прямо сейчас, чтобы узнать подробности и договориться о просмотре!
18.02.2026
19 700 000 ₽
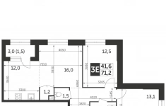
Продается 3-комн. квартира, площадью 71.2 кв.м.
Жилая площадь 41.6 м2, кухня 12 кв. м, ремонта нет, окна выходят на улицу.
Квартира располагается на 23 этаже 28-этажного монолитного дома.
Дом оборудован пассажирским лифтом, есть мусоропровод, закрытая территория, парковка охраняется.
09.03.2026
40 167 124 ₽
Продается 3-комн. квартира, площадью 84.3 кв.м.
Жилая площадь 39.3 м2, ремонта нет, окна выходят на улицу.
Квартира располагается на 10 этаже 17-этажного монолитного дома.
Дом оборудован пассажирским лифтом, есть мусоропровод, закрытая территория, парковка охраняемая.
09.03.2026
53 414 335 ₽
ПРОДАЕТСЯ 1-КОМНАТНАЯ КВАРТИРА В ЖИЛОМ КОМПЛЕКСЕ КОМФОРТ-КЛАССА (г. Одинцово)
Адрес: Московская область, г. Одинцово, ул. Белорусская, д. 2
Этаж: 12 (из 11) — верхний этаж, потрясающий вид и тишина.
Общяя площадь 42,4
Высота потолков 2,88
Просторная и функциональная планировка, от застройщика под отделку.
ОПИСАНИЕ И ПРЕИМУЩЕСТВА
СВЕТЛАЯ И УЮТНАЯ КВАРТИРА С ПРЕКРАСНЫМ ВИДОМ
Просторная 1-комнатная квартира на верхнем этаже современного монолитного дома. Большая жилая площадь (40 м2) позволяет организовать комфортное пространство как для одного человека, так и для пары.
КАЧЕСТВЕННЫЙ ДОМ (2015 ГОДА ПОСТРОЙКИ)
Тип дома: Монолитный (высокая тепло- и звукоизоляция)
Год постройки: 2015 (относительно новый дом, без проблем старых построек)
Лифт: Пассажирский (удобство для всех жильцов)
Мусоропровод: Наличие (чистота и комфорт)
УДОБНАЯ ЛОКАЦИЯ (Одинцово, ул. Белорусская)
Тихий и зеленый район с развитой инфраструктурой
В шаговой доступности магазины, аптеки, школы, детские сады
Хорошая транспортная доступность до Москвы и областных трасс
СТОИМОСТЬ
Цена: 9 850 000 рублей
Это отличное предложение для квартиры с такой жилой площадью и качественным домом!
ДЛЯ КОГО ЭТА КВАРТИРА?
Для тех, кто ценит простор — огромная жилая площадь для однушки
Для семейной пары или инвестора
Для любителей верхних этажей и красивых видов из окна
18.02.2026
9 850 000 ₽
Продается 3-комн. квартира, площадью 77.3 м2.
Жилая площадь 43.1 м2, кухня 12 кв. м, ремонта нет, окна выходят на улицу.
Квартира располагается на 14 этаже 28-этажного монолитного дома.
Дом оборудован пассажирским лифтом, есть мусоропровод, закрытая территория, парковка охраняемая.
09.03.2026
42 130 046 ₽
Продается 3-комн. квартира, площадью 69.4 кв.м.
Жилая площадь 40.6 кв. м, кухня 11.6 кв. м, ремонта нет, окна выходят на улицу.
Квартира располагается на 4 этаже 28-этажного монолитного дома.
Дом оборудован пассажирским лифтом, есть мусоропровод, закрытая территория, парковка охраняемая.
09.03.2026
39 977 523 ₽
Продается 2-комн. квартира, площадью 65.9 кв.м.
Жилая площадь 31.6 кв. м, кухня 12.4 кв. м, ремонта нет, окна выходят на улицу.
Квартира располагается на 20 этаже 47-этажного монолитного дома.
Дом оборудован пассажирским лифтом, есть мусоропровод, закрытая территория, парковка с охраной.
09.03.2026
41 036 589 ₽
Продается 4-комн. квартира, площадью 135.8 м2.
Жилая площадь 66.4 кв. м, кухня 14.9 кв. м, ремонта нет, окна выходят на улицу.
Квартира располагается на 35 этаже 37-этажного монолитного дома.
Дом оборудован пассажирским лифтом, есть мусоропровод, закрытая территория, парковка охраняемая.
09.03.2026
105 910 420 ₽
Продается 3-комн. квартира, площадью 66.2 кв.м.
Жилая площадь 29.4 м2, ремонта нет, окна выходят на улицу.
Квартира располагается на 15 этаже 17-этажного монолитного дома.
Дом оборудован пассажирским лифтом, есть мусоропровод, закрытая территория, парковка с охраной.
09.03.2026
41 275 435 ₽
Продается 5-комн. квартира, площадью 122.3 кв.м.
Жилая площадь 55.6 м2, ремонта нет, окна выходят на улицу.
Квартира располагается на 13 этаже 17-этажного монолитного дома.
Дом оборудован пассажирским лифтом, есть мусоропровод, закрытая территория, парковка охраняемая.
09.03.2026
74 873 038 ₽
Продается 3-комн. квартира, площадью 83.2 кв.м.
Жилая площадь 46.3 м2, кухня 14.3 кв. м, ремонта нет, окна выходят во двор.
Квартира располагается на 3 этаже 37-этажного монолитного дома.
Дом оборудован пассажирским лифтом, есть мусоропровод, закрытая территория, парковка охраняется.
09.03.2026
41 632 864 ₽
Продается 3-комн. квартира, площадью 72.8 м2.
Жилая площадь 29.4 кв. м, ремонта нет, окна выходят на улицу.
Квартира располагается на 13 этаже 17-этажного монолитного дома.
Дом оборудован пассажирским лифтом, есть мусоропровод, закрытая территория, парковка с охраной.
09.03.2026
59 227 605 ₽
Продаётся квартира от застройщика: общая площадь 28.00 м, жилая 14.00 м, кухня 5.00 м, 3-й этаж, жилой квартал «Остров 14», корпус 1 (секция 2) . Срок сдачи: 2 квартал 2029 года.
1 совмещенный санузел.
Квартира продаётся с чистовой отделкой и мебелью! Идеальный вариант для тех, кто приобретает недвижимость для сдачи в аренду!
Инвестиционный продукт для получения постоянного дохода.
Остров. 14 ДОХОДНЫЙ ДОМ - ЧАСТЬ ПРОЕКТА «ОСТРОВ», В 10 МИНУТАХ ОТ МОСКВА-СИТИ, В 15 МИНУТАХ
ЕЗДЫ ОТ САДОВОГО КОЛЬЦА.
Квартиры с отделкой и мебелью, и с управлением "под ключ"
Постоянный доход для инвесторов, отельный сервис для арендаторов
Востребованные для аренды планировки: студии, 1- и 2-комнатные квартиры 28-64 м2
Полная комплектация квартир: отделка, мебель, бытовая техника, кондиционеры
Постоянный поток арендаторов - 10 минут от Москва-Сити, 5 минут от метро «Мневники», самодостаточная инфраструктура в квартале и собственная клубная инфраструктура в доме, спортивный, рекреационный и деловой кластеры на территории ОСТРОВА
27.02.2026
22 076 320 ₽
Продается 2-комнатная квартира от застройщика: общая площадь 55.50 м, жилая 25.90 м, кухня 18.30 м, 25-й этаж, жилой квартал «Вдохновение», корпус 33 (секция 3) . Срок сдачи: 4 квартал 2027 года.
Позвоните сейчас и забронируйте квартиру!
Квартал бизнес-класса СИМВОЛ - это городское пространство нового поколения в историческом районе Лефортово, на границе ЦАО, в 2 км от Садового кольца.
Бионическая архитектура СИМВОЛА превратила Лефортово в суперсовременное и модное пространство. Из окон, с балконов и террас просторных квартир СИМВОЛА открываются отличные виды на город и новый парк «Зеленая река», «протекающий» через все кварталы комплекса на 2 км.
В квартале уже есть все, что нужно для комфортной жизни: кафе и рестораны, супермаркеты и магазины, медицинские и физкультурно-оздоровительные центры, салоны красоты и барбершопы, аптеки и оптики, химчистки, пункты доставки и другие сервисы - всего более 90 действующих объектов внутриквартальной инфраструктуры.
Для юных жителей СИМВОЛА открыты детский сад и инженерный лицей при МГТУ им. Баумана.
Особенности квартала:
Свой парк «Зеленая Река» - 10 га зелени и развлечений на любой вкус!
Уникальная для Москвы архитектура - Проект создан архитектурной мастерской ATRIUM по дизайн-коду британских бюро LDA Design и UHA London.
Богатая инфраструктура с детскими садами и лицеем им. Баумана, кафе и ресторанами, супермаркетами и аптеками, зоной для фитнеса, бассейном и мед. центром.
Квартиры с панорамными окнами, террасами, ванными с окнами и каминами редких форматов.
Закрытые безопасные зелёные дворы-парки без машин!
15.03.2026
33 342 180 ₽
Последние квартиры в ЖК "Датский квартал"!
Продаётся 1-к квартира номер 413 общей площадью 38.9 кв.м. на 19-м этаже 22 этажного здания. Без отделки. Цена с учётом скидки.
Особенности квартиры:
Дополнительные условия:
- Возможна покупка по программе Трэйд-Ин
- Живите сейчас и платите потом - гибкие условия приобретения
- Максимальные скидки при 100% оплате
- Просторная спальня, в которой можно разместить большую кровать.
- Линейная планировка - максимальная функциональность и удобство.
- Увеличенная ширина окна/окон - больше света и визуального простора.
- Раздельный санузел - больше удобства для всех членов семьи.
- Гибкая планировка - создайте пространство по своему вкусу.
- Можно оборудовать рабочее место - комфорт для работы и учёбы.
- Балкон - открытое пространство для отдыха.
Квартира без отделки. Чистый холст для воплощения интерьера вашей мечты.
Информация о комплексе:
Ощутите прелесть жизни в маленьком европейском городке, не выезжая на пределы Москвы. Здесь всё рядом и продумано для вас: магазины, булочные, прачечные, аптеки и салоны красоты в шаговой доступности. Наличие кладовых позволит вам поддерживать идеальный порядок и уют!
Мы учли каждую мелочь, чтобы вы могли наслаждаться повседневной жизнью- Двор без машин, закрытое, безопасное, охраняемое место с удобным доступом для вашего авто, более чистый воздух и гарантированное место для стоянки - и это далеко не все преимущества наличия подземного паркинга. Наличие кладовых позволит вам поддерживать идеальный порядок и уют в вашей квартире! Родители самых маленьких жильцов будут в восторге от колясочных, запирающихся на магнитный замок. Весь малогабаритный семейный транспорт - коляска, велосипеды и самокаты - прекрасно будет ждать вас здесь до следующего раза. Вымыть колеса коляски или лапы питомцу можно в специальных помещениях, расположенных рядом с колясочной.
Транспортная доступность:
Менее 1км от МКАД: рядом Осташковское и Алтуфьевское шоссе; 15 минут до метро "Алтуфьево", "Бибирево", "Медведково"; 7 минут пешком до ближайшей остановки общественного транспорта.
Внутренняя инфраструктура:
- 2 муниципальных детских сада и муниципальная школа
- Медицинский центр
- Магазины, аптеки, салоны красоты, кафе, булочные на первых этажах комплекса
Квартира без отделки - чистый холст для вашего интерьера.
11.03.2026
9 638 875 ₽
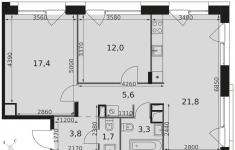
Продаётся 2-комн. квартира от застройщика: общая площадь 73.40 м, жилая 30.60 м, кухня 25.20 м, 19-й этаж, жилой квартал «Остров 7», корпус 7 (секция 2) . Срок сдачи: 3 квартал 2028 года.
2 совмещенных санузла. В жилой зоне 2 больших окна на одну сторону, хорошая инсоляция.
Позвоните сейчас и забронируйте квартиру!
ОСТРОВ от Донстрой - жилой комплекс на западе Москвы, в Мневниковской пойме. Уникальное преимущество комплекса - в том, что он обособлен от города рекой и природным парком (650 га) . Благодаря природному окружению эта территория имеет лучший экологический рейтинг в столице. Кварталы ОСТРОВА объединены ландшафтным дизайном в единое пространство - с набережными и Центральным бульваром. На ОСТРОВЕ любые объекты, необходимые для полноценной жизни и отдыха, находятся на расстоянии 15-минутной прогулки. Торговый центр и супермаркеты, кафе и рестораны, фитнес, салоны красоты, школы и детские сады. А также крупнейший в Москве спортивный кластер.
27.02.2026
50 308 360 ₽
Продается 2-комн. квартира, площадью 55.1 м2 в монолитной новостройке в 12 мин. пешком от м. Аминьевская, район города - Очаково-Матвеевское. Возможен вариант покупки с использованием ипотечных средств, есть рассрочка.
Жилая площадь 33.8 м2, кухня 5 м2, предчистовая отделка, комнаты изолированные.
Квартира располагается на 2 этаже 27-этажного дома в ЖК Среда на Лобачевского.
Застройщик - Среда, сдача дома - II квартал 2027 года, высота потолков 2.92 м.
Дом оборудован пассажирским лифтом.
Подземная парковка. Инфраструктура: детские площадки, спортивные площадки.
«Среда на Лобачевского» полностью соответствует критериям современного жилого пространства. Взяв за основу рациональный подход, мы гармонично соединили дизайн, актуальные тренды и функциональность. Продуманный современный экстерьер и функциональные планировки внутри, приватные пространства и разнообразные досуговые зоны для каждого члена семьи - все это «Среда на Лобачевского».
Район отлично развит и наполнен жизнью, здесь уже есть вся необходимая инфраструктура- детские сады, школы, медучреждения, торговые центры, благоустроены парки для прогулок и отдыха, удобен и легкодоступен городской транспорт.
Рядом расположены учебные корпуса крупных университетов - МГУ, МГИМО и РАНХиГС. Школы и детские сады в районе занимают высокие позиции в городских рейтингах, поэтому вам не придется беспокоиться о качестве образования детей. Как и об отдыхе: поблизости расположены живописные пруды, реки и парки. Это Парк Олимпийской деревни, Парк имени 50-летия Октября, Мещерский парк и Очаковские пруды. Теперь поставить галочки в еженедельном чек-листе «спорт-прогулки-встречи с друзьями» можно, не покидая любимый район.
Особое внимание в проекте уделяется созданию функциональных пространств не только внутри дома, но и за его пределами. В ландшафтном парке «Среды на Лобачевского» расположены крытые зоны для спокойного времяпровождения, места для активного отдыха и спорта, коворкинг, соседский комьюнити-центр, водные объекты.
-Ландшафтный парк во дворе.
-Водный сад с зонами отдыха.
-Зоны коворкинга.
-Дизайнерские гранд-лобби.
-Бесключевой доступ.
-Подземный паркинг.
СПЕЦ. ПРЕДЛОЖЕНИЕ!
Рассрочка с платежом 200 000 руб. /мес.
Специальная программа рассрочки для покупки квартир в корпусах 5.5-5.8.
Условия программы:
Первый взнос: 30%
Ежемесячный платеж: 200 000 рублей (фиксированный на весь срок)
Срок: 18 месяцев
Предложение действует на ограниченный пул квартир.
Аккредитованные банки: Совкомбанк, Альфа-Банк, Банк ДОМ. РФ, Банк ВТБ, Т-Банк, МКБ
Позвоните и узнайте условия покупки прямо сейчас!
05.03.2026
31 506 180 ₽
Лот №9. Жилое помещение (квартира) , общ. пл. 38,4 кв.м. Продаваться будет с баланса банка. , приобрести его можно только с электронных торгов. Для участия в торгах вам понадобиться услуга "Агент в торгах". Более подробная информация по телефону, указанному в объявлении, в будние дни с 09-00 до 18-00 (МСК+7) Ожидается назначение повторных торгов.
07.02.2026
4 172 400 ₽
Продаются 2-к апартаменты площадью 44.7 кв.м. на 23-м этаже 28 этажного дома в "ЭМОУШН" от ГК ОСНОВА
«ЭМОУШН» - многофункциональный комплекс апартаментов бизнес-класса в престижном районе Хорошёво-Мнёвники (СЗАО) , новый выразительный акцент территории Большого Сити. Проект включает 4 корпуса переменной этажности со смелой концептуальной архитектурой от бюро КАМЕНЬ.
В составе комплекса - собственный СПА-центр с открытым всесезонным бассейном, офисный центр с конференц-залом и амфитеатром, коворкинг, двухуровневый подземный паркинг, кафе и ресторан, аптеки и супермаркет, а также приватные пространства для резидентов: досуг, красота и здоровье, частные и детские мероприятия. Дополняют концепцию авторское благоустройство, прогулочные зоны, фонтан, скульптуры.
Локация:
600 м до набережной Москвы-реки
5 минут пешком до м. «Звенигородская»
20 минут до м. «Полежаевская»)
удобный выезд на Звенигородское шоссе
5 минут до ТТК
10 минут до Москва-Сити.
«ЭМОУШН» - это про эргономику и функциональность:
панорамное остекление, видовые террасы
дизайнерские лобби с потолками до 4,7 м
система «Умный дом» и ресепшен-служба 24/7 - чтобы жить активнее, успевать больше и не тратить ресурсы впустую.
Стадия строительства - монолит готов, высокая стадия готовности, сдача в 2027 году. Проект также подходит под инвестиционные сценарии. Предусмотрена временная регистрация.
05.02.2026
21 540 930 ₽
Продаются 2-к апартаменты площадью 44.7 кв.м. на 22-м этаже 28 этажного дома в "ЭМОУШН" от ГК ОСНОВА
«ЭМОУШН» - многофункциональный комплекс апартаментов бизнес-класса в престижном районе Хорошёво-Мнёвники (СЗАО) , новый выразительный акцент территории Большого Сити. Проект включает 4 корпуса переменной этажности со смелой концептуальной архитектурой от бюро КАМЕНЬ.
В составе комплекса - собственный СПА-центр с открытым всесезонным бассейном, офисный центр с конференц-залом и амфитеатром, коворкинг, двухуровневый подземный паркинг, кафе и ресторан, аптеки и супермаркет, а также приватные пространства для резидентов: досуг, красота и здоровье, частные и детские мероприятия. Дополняют концепцию авторское благоустройство, прогулочные зоны, фонтан, скульптуры.
Локация:
600 м до набережной Москвы-реки
5 минут пешком до м. «Звенигородская»
20 минут до м. «Полежаевская»)
удобный выезд на Звенигородское шоссе
5 минут до ТТК
10 минут до Москва-Сити.
«ЭМОУШН» - это про эргономику и функциональность:
панорамное остекление, видовые террасы
дизайнерские лобби с потолками до 4,7 м
система «Умный дом» и ресепшен-служба 24/7 - чтобы жить активнее, успевать больше и не тратить ресурсы впустую.
Стадия строительства - монолит готов, высокая стадия готовности, сдача в 2027 году. Проект также подходит под инвестиционные сценарии. Предусмотрена временная регистрация.
05.02.2026
21 478 350 ₽
Продаются 2-к апартаменты площадью 43.8 кв.м. на 15-м этаже 28 этажного дома в "ЭМОУШН" от ГК ОСНОВА
«ЭМОУШН» - многофункциональный комплекс апартаментов бизнес-класса в престижном районе Хорошёво-Мнёвники (СЗАО) , новый выразительный акцент территории Большого Сити. Проект включает 4 корпуса переменной этажности со смелой концептуальной архитектурой от бюро КАМЕНЬ.
В составе комплекса - собственный СПА-центр с открытым всесезонным бассейном, офисный центр с конференц-залом и амфитеатром, коворкинг, двухуровневый подземный паркинг, кафе и ресторан, аптеки и супермаркет, а также приватные пространства для резидентов: досуг, красота и здоровье, частные и детские мероприятия. Дополняют концепцию авторское благоустройство, прогулочные зоны, фонтан, скульптуры.
Локация:
600 м до набережной Москвы-реки
5 минут пешком до м. «Звенигородская»
20 минут до м. «Полежаевская»)
удобный выезд на Звенигородское шоссе
5 минут до ТТК
10 минут до Москва-Сити.
«ЭМОУШН» - это про эргономику и функциональность:
панорамное остекление, видовые террасы
дизайнерские лобби с потолками до 4,7 м
система «Умный дом» и ресепшен-служба 24/7 - чтобы жить активнее, успевать больше и не тратить ресурсы впустую.
Стадия строительства - монолит готов, высокая стадия готовности, сдача в 2027 году. Проект также подходит под инвестиционные сценарии. Предусмотрена временная регистрация.
05.02.2026
21 330 600 ₽




















