Сдам коммерческую недвижимость 683 м2
Размещено сегодня в 03:02
0
0
Жалоба
- Параметры объявления
- Общая площадь (м2): 683
- Описание
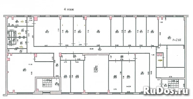
Сдаю в аренду отдельный этаж (4-й) в Нахичевани. Общая площадь 683 м2 (23 кабинета). Полностью готовый офис класса «под ключ» — заезжайте и работайте.
Подходит под офис, IT-компанию, представительство.
Почему это выгодно:
1. Цена: 850 руб/м2 (включены все эксплуатационные услуги и НДС 22%).
2. Прямая аренда: Без комиссий, посредников и переплат.
3. Скидка 50% на первый арендный платеж!
Что уже включено в стоимость:
Круглосуточная физическая охрана здания.
Просторная парковка для сотрудников и клиентов.
Ежедневная уборка мест общего пользования.
ИТ-инфраструктура для бизнеса (готово!):
Выделенное помещение под серверную с отдельным сплит-системой.
В здание заведен мощный оптический канал (скорость до 10 Гбит/с).
Установлен серверный шкаф 42U с готовой разводкой сети по всем кабинетам.
В каждом кабинете продумана эргономика: розетки рассчитаны на организацию от 6 до 20 рабочих мест. Вам не нужно тратить бюджет на прокладку сети.
Планировка (всё продумано):
Помещение идеально подойдет под головной офис или административное учреждение.
В наличии:
— Кабинет директора (с отдельным санузлом и СКУД на входе в кабинет).
— Просторная приемная/зона ресепшн.
— Переговорная.
— Кладовые и архивные помещения.
— Остальные кабинеты различного метража.
Во всех комнатах уже установлено: современное светодиодное освещение, сплит-системы, смонтирована пожарная сигнализация.
Локация:
Ростов-на-Дону, Нахичевань (район с развитой инфраструктурой и удобной транспортной развязкой).
Рядом остановка, аптеки, супермаркеты — всё для комфортной работы.
Звоните, покажу планировку и этаж в любое удобное время.
Подходит под офис, IT-компанию, представительство.
Почему это выгодно:
1. Цена: 850 руб/м2 (включены все эксплуатационные услуги и НДС 22%).
2. Прямая аренда: Без комиссий, посредников и переплат.
3. Скидка 50% на первый арендный платеж!
Что уже включено в стоимость:
Круглосуточная физическая охрана здания.
Просторная парковка для сотрудников и клиентов.
Ежедневная уборка мест общего пользования.
ИТ-инфраструктура для бизнеса (готово!):
Выделенное помещение под серверную с отдельным сплит-системой.
В здание заведен мощный оптический канал (скорость до 10 Гбит/с).
Установлен серверный шкаф 42U с готовой разводкой сети по всем кабинетам.
В каждом кабинете продумана эргономика: розетки рассчитаны на организацию от 6 до 20 рабочих мест. Вам не нужно тратить бюджет на прокладку сети.
Планировка (всё продумано):
Помещение идеально подойдет под головной офис или административное учреждение.
В наличии:
— Кабинет директора (с отдельным санузлом и СКУД на входе в кабинет).
— Просторная приемная/зона ресепшн.
— Переговорная.
— Кладовые и архивные помещения.
— Остальные кабинеты различного метража.
Во всех комнатах уже установлено: современное светодиодное освещение, сплит-системы, смонтирована пожарная сигнализация.
Локация:
Ростов-на-Дону, Нахичевань (район с развитой инфраструктурой и удобной транспортной развязкой).
Рядом остановка, аптеки, супермаркеты — всё для комфортной работы.
Звоните, покажу планировку и этаж в любое удобное время.
