Сдам коммерческую недвижимость 683 м2
Размещено 16 декабря 2025
3
0
Жалоба
- Описание
Прямая аренда 23 кабинета на 4 этаже, без комиссий от собственника.
В стоимость аренды включены:физическая охрана здания, пользование парковкой, ежедневная уборка мест общего пользования.
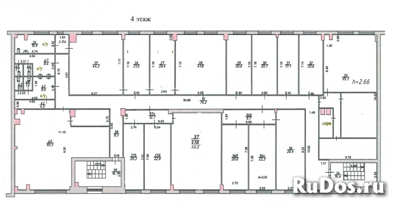
Есть отдельная комната для серверной (установлен сплит), заведена оптика от оператора связи скорость до 10 Гбит/с, установлен шкаф 42U с разводкой сети по кабинетам, в каждом кабинете сеть рассчитана от 6 до 20 раб мест не требуется доп вложений на организацию сети.
Кабинеты: каб. дир. + отдельный с/у + скуд на вход, приемная, переговорная, кладовки, архивные и т.д. Во всех комнатах установлены: светодиодное освещение, сплит системы, пожарная система оповещения и т.д.
См. планировку.
Инфраструктура рядом: автобусная остановка, аптека, супермаркет и т.д.
Скидка 50% на первый платеж.
В стоимость аренды включены:физическая охрана здания, пользование парковкой, ежедневная уборка мест общего пользования.
Есть отдельная комната для серверной (установлен сплит), заведена оптика от оператора связи скорость до 10 Гбит/с, установлен шкаф 42U с разводкой сети по кабинетам, в каждом кабинете сеть рассчитана от 6 до 20 раб мест не требуется доп вложений на организацию сети.
Кабинеты: каб. дир. + отдельный с/у + скуд на вход, приемная, переговорная, кладовки, архивные и т.д. Во всех комнатах установлены: светодиодное освещение, сплит системы, пожарная система оповещения и т.д.
См. планировку.
Инфраструктура рядом: автобусная остановка, аптека, супермаркет и т.д.
Скидка 50% на первый платеж.
