Продажа недвижимости в Репино Парк - Страница 9
- Репино Парк п. »
- Недвижимость в Репино Парк
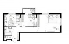
Продается 1-комн. квартира, площадью 32.8 м2 в монолитно-кирпичной новостройке в 15 мин. транспортом от м. Девяткино. Возможен вариант покупки с использованием ипотечных средств, есть рассрочка, возможна покупка с использованием материнского капитала.
Жилая площадь 16.4 м2, кухня 8.8 м2, чистовая отделка, комнаты изолированные, лоджий - 1.
Квартира располагается на 16 этаже 20-этажного дома в ЖК Стороны света.
Застройщик - ГК Прок, сдача дома - III квартал 2023 года, дом уже сдан, высота потолков 2.54 м. Инфраструктура: детские площадки, спортивные площадки, места для отдыха.
ЖК «Стороны света» - современный жилой комплекс комфорт-класса в г. Бугры Ленинградской области. Состоит из четырех корпусов, имеющих тематические названия - «Север» , «Юг» , «Запад» и «Восток». Общее количество квартир - 2294.
Акция: Готовые квартиры с отделкой от 4,7 млн рублей. Ключи сразу!
От ЖК ходит общественный транспорт до ст. метро «Девяткино», «пр. Просвещения» и «Парнас». Есть 2 удобных выезда на КАД, развитая система наземного транспорта. Ж/Д станция «Девяткино», автовокзал «Северный» в 15 минутах езды.
Аккредитованные банки: ВТБ, Банк ДОМ. РФ, Промсвязьбанк, Ак Барс Банк, Альфа-Банк, СберБанк, Абсолют Банк, Банк «УБРиР», Россельхозбанк, Банк «Санкт-Петербург, Совкомбанк.
Позвоните и узнайте условия покупки прямо сейчас!
07.03.2026
5 904 000 ₽
Продается офисное помещение в сданном жилом комплексе Шведская Крона. Прямая продажа от застройщика.
ЖК «Шведская крона» расположен в Приморском районе Санкт-Петербурга в престижной локации возле Удельного парка. Дома сданы и заселены, что обеспечивает стабильный пешеходный трафик и востребованность услуг малого бизнеса среди жителей ЖК.
06.11.2025
9 625 004 ₽
Старт продаж 5 орпуса в жилом комплексе "Аннино Сити", квартиры с отделкой! Срок сдачи 2025 год.
14.02.2026
8 132 700 ₽
Старт продаж 5 орпуса в жилом комплексе "Аннино Сити", квартиры с отделкой! Срок сдачи 2025 год.
14.02.2026
8 132 700 ₽
Старт продаж 5 орпуса в жилом комплексе "Аннино Сити", квартиры с отделкой! Срок сдачи 2025 год.
14.02.2026
7 869 050 ₽
Продается 2-комн. квартира, площадью 54.33 м2 в малоэтажной в монолитно-кирпичной новостройке. Возможен вариант покупки с использованием ипотечных средств, возможна покупка с использованием материнского капитала, есть военная ипотека.
Жилая площадь 27.31 м2, кухня 11.49 м2, квартира без отделки.
Квартира располагается на 1 этаже 4-этажного дома в ЖК Верево Сити.
Застройщик - Строй Бизнес Групп специализированный застройщик, сдача дома - II квартал 2025 года, закрытая территория.
Парковка автомобилей - наземная, парковка охраняется. Обеспечение безопасности: видеонаблюдение. Инфраструктура: школа, детский сад, поликлиника, детские площадки, спортивные площадки, места для отдыха, супермаркет.
Для бронирования конкретной квартиры звоните по номеру телефона в объявлении.
ЖК Верево Сити - это современный городской жилой квартал малоэтажной застройки.
В 10-ти четырехэтажных корпусах сможет поселиться 1171 семья. Дома располагаются блоками, образуя уютные закрытые и безопасные дворы с большим количеством зеленых насаждений и с зонами отдыха для взрослых и детей.
В ЖК Верево Сити самое низкое ценовое предложение в Ленинградской области и пригородах Санкт-Петербурга, что позволит вам приобрести жилье большей площади, нежели в других жилых комплексах.
Отделка - черновая.
Комфортная среда для жизни:
- малоэтажные красивые здания современной архитектуры, с большой площадью остекления
- обособленная территория
- продуманные планировки, как привычные одно- и двухкомнатные квартиры, так и европланировки
- небольшая плотность населения: комплекс располагается на 6,5 га земли
- полная внутренняя инфраструктура, которая позволит жить с комфортом
Позвоните и узнайте условия покупки прямо сейчас!
Аккредитованные банки: ПАО Сбербанк
Позвоните и узнайте условия покупки прямо сейчас!
05.03.2026
6 073 007 ₽
Продается 2-комн. квартира, площадью 61.9 м2 в малоэтажной в монолитной новостройке в 20 мин. транспортом от м. Проспект Ветеранов. Возможен вариант покупки с использованием ипотечных средств, есть рассрочка, возможна покупка с использованием материнского капитала.
Жилая площадь 49.52 м2, квартира без отделки.
Квартира располагается на 4 этаже 4-этажного дома в ЖК Аннино Сити.
Застройщик - ГК Невская строительная компания, сдача дома - III квартал 2025 года.
Парковка автомобилей - наземная. Инфраструктура: школа, детский сад, поликлиника, детские площадки, спортивные площадки, места для отдыха.
ЖК «Аннино Сити» как и любое жилье в стиле Urban Village имеет все достоинства современных жилых комплексов в мегаполисе, но при этом есть ряд неоспоримых преимуществ загородной жизни: малоэтажность, хорошо продуманная инфраструктура внутри комплекса, собственные котельные, охраняемые территории с зелеными насаждениями, пешеходные и зоны отдыха, детские и спортивные площадки, а также достаточное количество парковочных мест.
Аннино - небольшой уютный активно развивающийся поселок расположен всего в 30 минутах езды от Санкт-Петербурга. Поселок находится на западно-южном берегу Финского залива - т.е. к югу от Санкт-Петербурга.
Место для строительства ЖК Аннино Сити было выбрано не случайно. Поселок Аннино отличается развитой инфраструктурой, близостью к городу, хорошей транспортной доступностью, наличием различного общественного транспорта
Экологическая ситуация в районе благоприятная, так как нет крупных транспортных магистралей и промышленных производств. Поселок окружен лесными массивами, а поблизости находятся чистые лесные озера и парк Победы.
До побережья Финского залива от поселка Аннино около 14 километров.
Аккредитованные банки: Продажи ведутся через ЭСКРОУ счета при проектном финансировании ПАО Сбербанк
Позвоните и узнайте условия покупки прямо сейчас!
14.02.2026
8 132 700 ₽
Продается 2-комн. квартира, площадью 61.9 м2 в малоэтажной в монолитной новостройке в 20 мин. транспортом от м. Проспект Ветеранов. Возможен вариант покупки с использованием ипотечных средств, есть рассрочка, возможна покупка с использованием материнского капитала.
Жилая площадь 49.52 м2, квартира без отделки.
Квартира располагается на 4 этаже 4-этажного дома в ЖК Аннино Сити.
Застройщик - ГК Невская строительная компания, сдача дома - III квартал 2025 года.
Парковка автомобилей - наземная. Инфраструктура: школа, детский сад, поликлиника, детские площадки, спортивные площадки, места для отдыха.
ЖК «Аннино Сити» как и любое жилье в стиле Urban Village имеет все достоинства современных жилых комплексов в мегаполисе, но при этом есть ряд неоспоримых преимуществ загородной жизни: малоэтажность, хорошо продуманная инфраструктура внутри комплекса, собственные котельные, охраняемые территории с зелеными насаждениями, пешеходные и зоны отдыха, детские и спортивные площадки, а также достаточное количество парковочных мест.
Аннино - небольшой уютный активно развивающийся поселок расположен всего в 30 минутах езды от Санкт-Петербурга. Поселок находится на западно-южном берегу Финского залива - т.е. к югу от Санкт-Петербурга.
Место для строительства ЖК Аннино Сити было выбрано не случайно. Поселок Аннино отличается развитой инфраструктурой, близостью к городу, хорошей транспортной доступностью, наличием различного общественного транспорта
Экологическая ситуация в районе благоприятная, так как нет крупных транспортных магистралей и промышленных производств. Поселок окружен лесными массивами, а поблизости находятся чистые лесные озера и парк Победы.
До побережья Финского залива от поселка Аннино около 14 километров.
Аккредитованные банки: Продажи ведутся через ЭСКРОУ счета при проектном финансировании ПАО Сбербанк
Позвоните и узнайте условия покупки прямо сейчас!
14.02.2026
8 132 700 ₽
Продается имущественный комплекс, включающий право долгосрочной аренды земельных участков и оборудование для организации яхт-клуба , согласно перечню.
Расположение на первой линии Финского залива в престижной локации Зеленогорска рядом с Золотым пляжем на территории загородного клуба Терийоки. В непосредственной близости расположено большое количество отелей, ресторанов, а также частных загородных резиденций.
Участок состоит из двух частей 1 855 кв. м (кадастровый номер 78:38:22458:3) и 2 006 кв. м (кадастровый номер 78:38:22458:2), которые формируют марину – закрытое пространство с возможностью организации яхт-клуба. В локации есть высокий сформированный спрос на места для стоянки яхт как на летний, так и на зимний сезон.
В стоимость входит имущество, необходимое для организации яхт-клуба:
1. Лодка «Буревестник-360» с мотором Ямаха 25 л.с. – 1 шт.
2. Несамоходное стоечное нефтеналивное судно «Терийоки» – 1 шт.
3. Навигационное оборудование (Плавучие буи) – 6шт
4. Металлоконструкция навигационный знак (Створный маяк) – 1 шт.
5. Понтонная система:
– железобетонный понтон Neavy Dutym 2712, размер 11,95*2,7 м – 17 шт.
– деревянный понтон, длина 92м – 1 шт.
– трапы деревянные из сосны – 5 шт.
– якорь 2,5 тн – 64 шт.
– цепь оцинкованная диаметром 19мм 720 метров
– причальный палец F 6000 – 23 шт.
– причальный палец F 7500 – 15 шт.
– причальный палец F 10500 – 11 шт.
– причальный палец F 12000 – 5 шт.
6. Траверза 10.0тн для разгрузки судов – 1 шт.
7. Траверза прямая 10тн для разгрузки судов – 1 шт.
8. Кран для яхт Vermeer – 1 шт.
24.07.2025
80 000 000 ₽
Прямая продажа офисного помещения в апарт-отеле Best Western Zoom Hotel (900+ номеров) на набережной Черной реки.
Идеальное расположение для офиса в новом трендовом центре Петербурга в шаговой доступности от метро «Черная речка» (7 мин.).
Современное просторное помещение в цоколе нового здания с высотой потолков от 3,5 до 4,3 м. Стильная отделка и современное оснащение создают идеальную рабочую атмосферу.
Отдельный вход и удобный доступ к зонам общего пользования апарт-отеля: кафе и ресторану.
Преимущества помещения:
- Гибкая возможность зонирования пространства
- Высокие потолки
- Дизайнерская отделка от Projector Studio
- Современные системы вентиляции и кондиционирования и инженерное обеспечения
- Электроэнергия: 45 кВт
Функциональная планировка:
- Зона ресепшн и гардероб
- 3 большие и 2 малые переговорные комнаты
- Зоны open space
- Столовая и кухня
- Зона отдыха
- Офисная мебель и техника могут быть оставлены за отдельную плату.
06.11.2025
120 000 000 ₽
Прямая продажа офисного помещения в апарт-отеле Best Western Zoom Hotel (900+ номеров) на набережной Черной реки.
Идеальное расположение для офиса в новом трендовом центре Петербурга в шаговой доступности от метро «Черная речка» (7 мин.).
Продажа помещения с гарантированным арендатором на срок 10 лет, что обеспечивает стабильный доход и скорость окупаемости. Согласно оценке независимой компании IPG Estate, срок возврата инвестиций составляет 7-8 лет.
Дизайнерская отделка и современные инженерные системы. Собственная система вентиляции и кондиционирования.
Панорамные окно с видом на Черную речку и благоустроенную набережную.
Оптимальная схема размещения офиса на одном этаже с эргономичным зонированием.
Несколько входов (включая отдельный собственный и через рецепш отеля).
Переговорные залы-трансформеры с возможностью разделения на 3 отдельных или в единое помещение. Лаунж-зоны. Зоны рецепшн.
Офис организован по принципу опен-спейса.
Вся необходимая инфраструктура для персонала: кухня и столовая, санузлы, гардеробные.
Общая площадь: 1 496,1 м2
Высота потолков: 2,6 метра.
Электроэнергия: 157 кВт.
06.11.2025
330 000 000 ₽
Продается помещение свободного назначения в Квартале «Новый Московский». Прямая продажа от застройщика.
Квартал «Новый Московский» - масштабный проект на Московском шоссе в Пушкинском районе Петербурга. Комплекс состоит из 10 корпусов по 10 этажей - на 3 200 квартир. В рамках проекта комплексного развития территории возводится социальная инфраструктура, позволяющая жителям ЖК больше времени проводить рядом с домом. Это увеличивает бизнес-потенциал коммерческих помещений, расположенных на первых этажах ЖК.
03.12.2025
15 514 065 ₽
Продается помещение свободного назначения в комплексе апартаментов Зум на Неве. Прямая продажа от застройщика.
Зум на Неве расположен на берегу Невы в непосредственной близости от центра города. Комплекс состоит на 1 700 апартаментов. Локация, масштаб объекта и тип недвижимости - слагаемые высокой потребительской активности среди жителей и гостей комплекса.
06.11.2025
53 759 506 ₽
Офис площадью 37 кв.м, на 4 этаже 4-этажного бизнес-центра класса B в 7 мин. транспортом от м.Звездная в Московском районе Санкт-Петербурга, предоставляется юридический адрес. Высота потолков: 3 м. Офис предоставляется в прямую аренду, срок аренды - до года, с предоплатой за 1 месяц. Включено в ставку: коммунальные платежи, эксплуатационные расходы, можно добавить телефонные линии и выбрать оператора телекоммуникационных услуг.. Офис со стандартной отделкой, комнат в аренду - 1, внутри кабинетная планировка, на полу ламинат, тип окон - обычные.
Офис расположен в центре "Глория", общая площадь здания 5284 м2, участок находится в собственности, доступ в здание осуществляется по пропускам, в офисе центральное кондиционирование, вентиляция офиса - приточная, автономное отопление, пожарная сигнализация.
Парковка автомобилей - наземная, парковка на 100 машиномест, из них 4 предоставляются в пользование, парковка охраняемая, на парковке есть гостевые места.
17.02.2026
70 300 ₽
Офис площадью 28 м2, на 2 этаже 4-этажного бизнес-центра класса B+ в 7 мин. пешком от м.Звездная в Московском районе Санкт-Петербурга, предоставляется юридический адрес. Высота потолков: 3 м. Офис предоставляется в прямую аренду, срок аренды - до года, с предоплатой за 1 месяц. В ставку включены: коммунальные платежи, эксплуатационные расходы. Минимальный срок аренды 11 мес. Офис со стандартной отделкой, комнат в аренду - 1, на полу ламинат, тип окон - обычные.
Офис расположен в центре "Глория", общая площадь здания 5280 м2, участок находится в собственности, доступ в здание осуществляется по пропускам.
Вход в офис - общий с улицы, в офисе центральное кондиционирование, вентиляция офиса - приточная, автономное отопление, пожарная сигнализация.
Парковка автомобилей - наземная, парковка на 100 машиномест, из них от 4 предоставляются в пользование, парковка охраняется, на парковке есть гостевые места.
17.02.2026
53 200 ₽
Продается 2-комн. квартира, площадью 62.22 м2 в малоэтажной в монолитной новостройке в 20 мин. транспортом от м. Проспект Ветеранов. Возможен вариант покупки с использованием ипотечных средств, есть рассрочка, возможна покупка с использованием материнского капитала.
Жилая площадь 49.78 м2, квартира без отделки.
Квартира располагается на 2 этаже 4-этажного дома в ЖК Аннино Сити.
Застройщик - ГК Невская строительная компания, сдача дома - III квартал 2025 года.
Парковка автомобилей - наземная. Инфраструктура: школа, детский сад, поликлиника, детские площадки, спортивные площадки, места для отдыха.
ЖК «Аннино Сити» как и любое жилье в стиле Urban Village имеет все достоинства современных жилых комплексов в мегаполисе, но при этом есть ряд неоспоримых преимуществ загородной жизни: малоэтажность, хорошо продуманная инфраструктура внутри комплекса, собственные котельные, охраняемые территории с зелеными насаждениями, пешеходные и зоны отдыха, детские и спортивные площадки, а также достаточное количество парковочных мест.
Аннино - небольшой уютный активно развивающийся поселок расположен всего в 30 минутах езды от Санкт-Петербурга. Поселок находится на западно-южном берегу Финского залива - т.е. к югу от Санкт-Петербурга.
Место для строительства ЖК Аннино Сити было выбрано не случайно. Поселок Аннино отличается развитой инфраструктурой, близостью к городу, хорошей транспортной доступностью, наличием различного общественного транспорта
Экологическая ситуация в районе благоприятная, так как нет крупных транспортных магистралей и промышленных производств. Поселок окружен лесными массивами, а поблизости находятся чистые лесные озера и парк Победы.
До побережья Финского залива от поселка Аннино около 14 километров.
Аккредитованные банки: Продажи ведутся через ЭСКРОУ счета при проектном финансировании ПАО Сбербанк
Позвоните и узнайте условия покупки прямо сейчас!
14.02.2026
8 299 700 ₽
Предложение от Собственника!
Сдается в аренду торговые помещения:
1) 83,5 м2 - 121 800 руб. в месяц, вкл. НДС 5%
2) 115 м2 - 231 000 руб. в месяц, вкл. НДС 5%
3)3 м2 - 31 500 руб. в месяц, вкл. НДС 5%
Торговый комплекс находится на на автодороге Р21 (E 105) «Кола» (Санкт-Петербург — Петрозаводск — Мурманск), что увеличивает его посещаемость.
Среди арендаторов Фикс Прайс, Пятерочка, Аптека Невис .
Проходимость ТРК от 30000 человек в месяц.
Собственная парковка, круглосуточная охрана , удобная зона загрузки разгрузки товаров .
Возможны арендные каникулы и индивидуальные условия договора.
30.01.2026
400 179 ₽
Предложение от СОБСТВЕННИКА!
Сдается в аренду помещение в Торговом комплексе:
300 кв. м - (2 этаж) - аренда 250 000 руб./мес.
Среди арендаторов Фикс Прайс, Улыбка Радуги, Аптека Невис и другие.
Собственная парковка, круглосуточная охрана, удобная зона загрузки разгрузки товаров.
Возможны арендные каникулы и индивидуальные условия договора.
30.01.2026
250 000 ₽
Старт продаж 5 орпуса в жилом комплексе "Аннино Сити", квартиры с отделкой! Срок сдачи 2025 год.
14.02.2026
8 371 250 ₽
Старт продаж 5 орпуса в жилом комплексе "Аннино Сити", квартиры с отделкой! Срок сдачи 2025 год.
14.02.2026
8 299 700 ₽
Старт продаж 5 орпуса в жилом комплексе "Аннино Сити", квартиры с отделкой! Срок сдачи 2025 год.
14.02.2026
8 256 500 ₽




















