Сдам коммерческую недвижимость 615 м2
Размещено 03 февраля 2026
14
0
Жалоба
- Параметры объявления
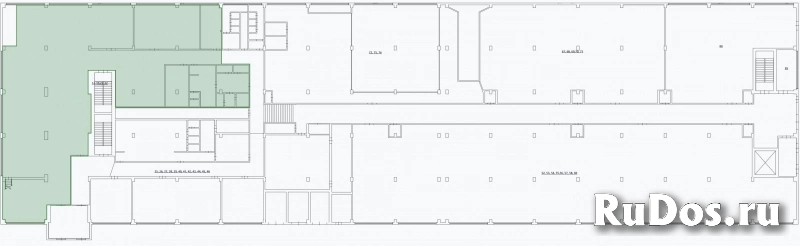
- Общая площадь (м2): 615
- Описание
Сдам в аренду помещение 615м2 для бизнеса с удобным расположением в Подольске – 7 минут пешком от МЦД ст. Подольск
Адрес: г. Подольск, ул. Рощинская, д. 3
Основные характеристики:
Высота потолков: 4 метра
Размер помещений: 615 м2
Состояние помещений: как на фото.
Погрузочная зона: отдельные ворота и доступ для большегрузного транспорта.
Инфраструктура и коммуникации:
- Парковка: более 100 мест.
- Коммуникации: вода, отопление, электричество (мощность 2 МВт).
- Интернет и телефон подключаются по запросу.
- Безопасность: круглосуточная охрана, система видеонаблюдения, контроль доступа.
Транспортная доступность:
- 20 км от МКАД (Варшавское шоссе).
- 18 км от СКАД (Симферопольское шоссе).
- 7 минут пешком до МЦД Подольск.
- 5 минут пешком до автобусной остановки.
Идеально подходит для:
- Легкая промышленность: текстиль, швейное производство, фурнитура, сборка электроники.
- Тяжелая промышленность: металлообработка, приборостроение, мебельное производство.
- Склады: легкие и средние товары, фулфилмент, упаковка.
- Прочее: майнинг-фермы, 3D-печать, сборка электрощитов.
- Доступ 24/7
- Удобное расположение: 7 минут от МЦД и 20 км от МКАД.
- Современные условия: мощные коммуникации, охрана, доступная парковка.
Звоните, все обсуждается!
Адрес: г. Подольск, ул. Рощинская, д. 3
Основные характеристики:
Высота потолков: 4 метра
Размер помещений: 615 м2
Состояние помещений: как на фото.
Погрузочная зона: отдельные ворота и доступ для большегрузного транспорта.
Инфраструктура и коммуникации:
- Парковка: более 100 мест.
- Коммуникации: вода, отопление, электричество (мощность 2 МВт).
- Интернет и телефон подключаются по запросу.
- Безопасность: круглосуточная охрана, система видеонаблюдения, контроль доступа.
Транспортная доступность:
- 20 км от МКАД (Варшавское шоссе).
- 18 км от СКАД (Симферопольское шоссе).
- 7 минут пешком до МЦД Подольск.
- 5 минут пешком до автобусной остановки.
Идеально подходит для:
- Легкая промышленность: текстиль, швейное производство, фурнитура, сборка электроники.
- Тяжелая промышленность: металлообработка, приборостроение, мебельное производство.
- Склады: легкие и средние товары, фулфилмент, упаковка.
- Прочее: майнинг-фермы, 3D-печать, сборка электрощитов.
- Доступ 24/7
- Удобное расположение: 7 минут от МЦД и 20 км от МКАД.
- Современные условия: мощные коммуникации, охрана, доступная парковка.
Звоните, все обсуждается!
