Объявление о квартирах в Пикалёво - Страница 6
- Пикалёво »
- Недвижимость
- » Квартиры в Пикалёво
Продается 1-комн. квартира, площадью 37.95 м2 в малоэтажной. Возможен вариант покупки с использованием ипотечных средств, возможна покупка с использованием материнского капитала, есть военная ипотека.
Жилая площадь 14.43 м2, кухня 15 м2, комнаты изолированные.
Квартира располагается на 1 этаже 4-этажного дома в ЖК Верево Сити.
Застройщик - Строй Бизнес Групп специализированный застройщик, сдача дома - II квартал 2025 года, закрытая территория.
Парковка автомобилей - наземная, парковка охраняется. Обеспечение безопасности: видеонаблюдение. Инфраструктура: школа, детский сад, поликлиника, детские площадки, спортивные площадки, места для отдыха, супермаркет.
Для бронирования конкретной квартиры звоните по номеру телефона в объявлении.
ЖК Верево Сити - это современный городской жилой квартал малоэтажной застройки.
В 10-ти четырехэтажных корпусах сможет поселиться 1171 семья. Дома располагаются блоками, образуя уютные закрытые и безопасные дворы с большим количеством зеленых насаждений и с зонами отдыха для взрослых и детей.
В ЖК Верево Сити самое низкое ценовое предложение в Ленинградской области и пригородах Санкт-Петербурга, что позволит вам приобрести жилье большей площади, нежели в других жилых комплексах.
Отделка - черновая.
Комфортная среда для жизни:
- малоэтажные красивые здания современной архитектуры, с большой площадью остекления
- обособленная территория
- продуманные планировки, как привычные одно- и двухкомнатные квартиры, так и европланировки
- небольшая плотность населения: комплекс располагается на 6,5 га земли
- полная внутренняя инфраструктура, которая позволит жить с комфортом
Позвоните и узнайте условия покупки прямо сейчас!
Аккредитованные банки: ПАО Сбербанк
Позвоните и узнайте условия покупки прямо сейчас!
05.03.2026
4 519 731 ₽
Продается 1-комн. квартира, площадью 35.51 кв.м.
Жилая площадь 13.71 кв. м, кухня 13.83 кв. м, ремонта нет, комнаты изолированные.
Квартира располагается на 10 этаже 11-этажного монолитного дома.
20.01.2026
4 559 400 ₽
Продается 1-комн. квартира, площадью 35.3 м2.
Жилая площадь 16.25 м2, кухня 10.36 кв. м, ремонта нет, комнаты изолированные.
Квартира располагается на 10 этаже 11-этажного монолитного дома.
20.01.2026
4 634 000 ₽
Продается 1-комн. квартира, площадью 59.2 м2.
Жилая площадь 21.7 кв. м, кухня 21.38 кв. м, ремонта нет, комнаты изолированные.
Квартира располагается на 10 этаже 11-этажного монолитного дома.
20.01.2026
6 616 200 ₽
Продается 1-комн. квартира, площадью 59.2 м2.
Жилая площадь 21.7 м2, кухня 21.38 кв. м, ремонта нет, комнаты изолированные.
Квартира располагается на 11 этаже 11-этажного монолитного дома.
20.01.2026
6 616 200 ₽
Продается 2-комн. квартира, площадью 46.4 кв. м в Пушкинском районе Санкт-Петербурга.
Жилая площадь 26.9 кв. м, кухня 8.7 кв. м, ремонта нет.
Квартира располагается на 3 этаже 9-этажного кирпичного дома.
20.01.2026
6 030 600 ₽
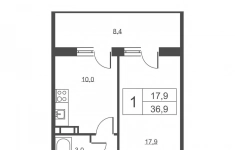
Продается 1-комн. квартира, площадью 36.9 кв. м м. Площадь Мужества в Калининском районе Санкт-Петербурга.
Жилая площадь 17.9 кв. м, кухня 10 кв. м, ремонта нет, комнаты изолированные.
Квартира располагается на 2 этаже 14-этажного монолитного дома.
20.01.2026
10 008 000 ₽
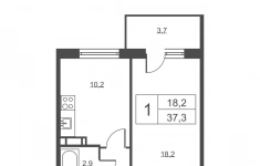
Продается 1-комн. квартира, площадью 37.3 м2 м. Площадь Мужества в Калининском районе Санкт-Петербурга.
Жилая площадь 18.2 кв. м, кухня 10.2 кв. м, ремонта нет, комнаты изолированные.
Квартира располагается на 14 этаже 14-этажного монолитного дома.
20.01.2026
9 929 500 ₽
Продается 1-комн. квартира, площадью 37.3 м2 м. Площадь Мужества в Калининском районе Санкт-Петербурга.
Жилая площадь 17.5 м2, кухня 10.2 кв. м, ремонта нет, комнаты изолированные.
Квартира располагается на 2 этаже 14-этажного монолитного дома.
20.01.2026
9 743 000 ₽
Продается 1-комн. квартира, площадью 32 м2 в Пушкинском районе Санкт-Петербурга.
Жилая площадь 15.4 кв. м, кухня 11 кв. м, ремонта нет, комнаты изолированные.
Квартира располагается на 5 этаже 9-этажного кирпичного дома.
20.01.2026
4 205 000 ₽
Старт продаж 5 орпуса в жилом комплексе "Аннино Сити", квартиры с отделкой! Срок сдачи 2025 год.
14.02.2026
4 366 100 ₽
Продается 1-комн. квартира, площадью 32.8 м2 в монолитно-кирпичной новостройке в 15 мин. транспортом от м. Девяткино. Возможен вариант покупки с использованием ипотечных средств, есть рассрочка, возможна покупка с использованием материнского капитала.
Жилая площадь 16.4 м2, кухня 8.8 м2, чистовая отделка, комнаты изолированные, лоджий - 1.
Квартира располагается на 16 этаже 20-этажного дома в ЖК Стороны света.
Застройщик - ГК Прок, сдача дома - III квартал 2023 года, дом уже сдан, высота потолков 2.54 м. Инфраструктура: детские площадки, спортивные площадки, места для отдыха.
ЖК «Стороны света» - современный жилой комплекс комфорт-класса в г. Бугры Ленинградской области. Состоит из четырех корпусов, имеющих тематические названия - «Север» , «Юг» , «Запад» и «Восток». Общее количество квартир - 2294.
Акция: Готовые квартиры с отделкой от 4,7 млн рублей. Ключи сразу!
От ЖК ходит общественный транспорт до ст. метро «Девяткино», «пр. Просвещения» и «Парнас». Есть 2 удобных выезда на КАД, развитая система наземного транспорта. Ж/Д станция «Девяткино», автовокзал «Северный» в 15 минутах езды.
Аккредитованные банки: ВТБ, Банк ДОМ. РФ, Промсвязьбанк, Ак Барс Банк, Альфа-Банк, СберБанк, Абсолют Банк, Банк «УБРиР», Россельхозбанк, Банк «Санкт-Петербург, Совкомбанк.
Позвоните и узнайте условия покупки прямо сейчас!
07.03.2026
5 904 000 ₽
Старт продаж 5 орпуса в жилом комплексе "Аннино Сити", квартиры с отделкой! Срок сдачи 2025 год.
14.02.2026
8 132 700 ₽
Старт продаж 5 орпуса в жилом комплексе "Аннино Сити", квартиры с отделкой! Срок сдачи 2025 год.
14.02.2026
8 132 700 ₽
Старт продаж 5 орпуса в жилом комплексе "Аннино Сити", квартиры с отделкой! Срок сдачи 2025 год.
14.02.2026
7 869 050 ₽
Продается 2-комн. квартира, площадью 54.33 м2 в малоэтажной в монолитно-кирпичной новостройке. Возможен вариант покупки с использованием ипотечных средств, возможна покупка с использованием материнского капитала, есть военная ипотека.
Жилая площадь 27.31 м2, кухня 11.49 м2, квартира без отделки.
Квартира располагается на 1 этаже 4-этажного дома в ЖК Верево Сити.
Застройщик - Строй Бизнес Групп специализированный застройщик, сдача дома - II квартал 2025 года, закрытая территория.
Парковка автомобилей - наземная, парковка охраняется. Обеспечение безопасности: видеонаблюдение. Инфраструктура: школа, детский сад, поликлиника, детские площадки, спортивные площадки, места для отдыха, супермаркет.
Для бронирования конкретной квартиры звоните по номеру телефона в объявлении.
ЖК Верево Сити - это современный городской жилой квартал малоэтажной застройки.
В 10-ти четырехэтажных корпусах сможет поселиться 1171 семья. Дома располагаются блоками, образуя уютные закрытые и безопасные дворы с большим количеством зеленых насаждений и с зонами отдыха для взрослых и детей.
В ЖК Верево Сити самое низкое ценовое предложение в Ленинградской области и пригородах Санкт-Петербурга, что позволит вам приобрести жилье большей площади, нежели в других жилых комплексах.
Отделка - черновая.
Комфортная среда для жизни:
- малоэтажные красивые здания современной архитектуры, с большой площадью остекления
- обособленная территория
- продуманные планировки, как привычные одно- и двухкомнатные квартиры, так и европланировки
- небольшая плотность населения: комплекс располагается на 6,5 га земли
- полная внутренняя инфраструктура, которая позволит жить с комфортом
Позвоните и узнайте условия покупки прямо сейчас!
Аккредитованные банки: ПАО Сбербанк
Позвоните и узнайте условия покупки прямо сейчас!
05.03.2026
6 073 007 ₽
Продается 2-комн. квартира, площадью 61.9 м2 в малоэтажной в монолитной новостройке в 20 мин. транспортом от м. Проспект Ветеранов. Возможен вариант покупки с использованием ипотечных средств, есть рассрочка, возможна покупка с использованием материнского капитала.
Жилая площадь 49.52 м2, квартира без отделки.
Квартира располагается на 4 этаже 4-этажного дома в ЖК Аннино Сити.
Застройщик - ГК Невская строительная компания, сдача дома - III квартал 2025 года.
Парковка автомобилей - наземная. Инфраструктура: школа, детский сад, поликлиника, детские площадки, спортивные площадки, места для отдыха.
ЖК «Аннино Сити» как и любое жилье в стиле Urban Village имеет все достоинства современных жилых комплексов в мегаполисе, но при этом есть ряд неоспоримых преимуществ загородной жизни: малоэтажность, хорошо продуманная инфраструктура внутри комплекса, собственные котельные, охраняемые территории с зелеными насаждениями, пешеходные и зоны отдыха, детские и спортивные площадки, а также достаточное количество парковочных мест.
Аннино - небольшой уютный активно развивающийся поселок расположен всего в 30 минутах езды от Санкт-Петербурга. Поселок находится на западно-южном берегу Финского залива - т.е. к югу от Санкт-Петербурга.
Место для строительства ЖК Аннино Сити было выбрано не случайно. Поселок Аннино отличается развитой инфраструктурой, близостью к городу, хорошей транспортной доступностью, наличием различного общественного транспорта
Экологическая ситуация в районе благоприятная, так как нет крупных транспортных магистралей и промышленных производств. Поселок окружен лесными массивами, а поблизости находятся чистые лесные озера и парк Победы.
До побережья Финского залива от поселка Аннино около 14 километров.
Аккредитованные банки: Продажи ведутся через ЭСКРОУ счета при проектном финансировании ПАО Сбербанк
Позвоните и узнайте условия покупки прямо сейчас!
14.02.2026
8 132 700 ₽
Продается 2-комн. квартира, площадью 61.9 м2 в малоэтажной в монолитной новостройке в 20 мин. транспортом от м. Проспект Ветеранов. Возможен вариант покупки с использованием ипотечных средств, есть рассрочка, возможна покупка с использованием материнского капитала.
Жилая площадь 49.52 м2, квартира без отделки.
Квартира располагается на 4 этаже 4-этажного дома в ЖК Аннино Сити.
Застройщик - ГК Невская строительная компания, сдача дома - III квартал 2025 года.
Парковка автомобилей - наземная. Инфраструктура: школа, детский сад, поликлиника, детские площадки, спортивные площадки, места для отдыха.
ЖК «Аннино Сити» как и любое жилье в стиле Urban Village имеет все достоинства современных жилых комплексов в мегаполисе, но при этом есть ряд неоспоримых преимуществ загородной жизни: малоэтажность, хорошо продуманная инфраструктура внутри комплекса, собственные котельные, охраняемые территории с зелеными насаждениями, пешеходные и зоны отдыха, детские и спортивные площадки, а также достаточное количество парковочных мест.
Аннино - небольшой уютный активно развивающийся поселок расположен всего в 30 минутах езды от Санкт-Петербурга. Поселок находится на западно-южном берегу Финского залива - т.е. к югу от Санкт-Петербурга.
Место для строительства ЖК Аннино Сити было выбрано не случайно. Поселок Аннино отличается развитой инфраструктурой, близостью к городу, хорошей транспортной доступностью, наличием различного общественного транспорта
Экологическая ситуация в районе благоприятная, так как нет крупных транспортных магистралей и промышленных производств. Поселок окружен лесными массивами, а поблизости находятся чистые лесные озера и парк Победы.
До побережья Финского залива от поселка Аннино около 14 километров.
Аккредитованные банки: Продажи ведутся через ЭСКРОУ счета при проектном финансировании ПАО Сбербанк
Позвоните и узнайте условия покупки прямо сейчас!
14.02.2026
8 132 700 ₽
Продается 2-комн. квартира, площадью 62.22 м2 в малоэтажной в монолитной новостройке в 20 мин. транспортом от м. Проспект Ветеранов. Возможен вариант покупки с использованием ипотечных средств, есть рассрочка, возможна покупка с использованием материнского капитала.
Жилая площадь 49.78 м2, квартира без отделки.
Квартира располагается на 2 этаже 4-этажного дома в ЖК Аннино Сити.
Застройщик - ГК Невская строительная компания, сдача дома - III квартал 2025 года.
Парковка автомобилей - наземная. Инфраструктура: школа, детский сад, поликлиника, детские площадки, спортивные площадки, места для отдыха.
ЖК «Аннино Сити» как и любое жилье в стиле Urban Village имеет все достоинства современных жилых комплексов в мегаполисе, но при этом есть ряд неоспоримых преимуществ загородной жизни: малоэтажность, хорошо продуманная инфраструктура внутри комплекса, собственные котельные, охраняемые территории с зелеными насаждениями, пешеходные и зоны отдыха, детские и спортивные площадки, а также достаточное количество парковочных мест.
Аннино - небольшой уютный активно развивающийся поселок расположен всего в 30 минутах езды от Санкт-Петербурга. Поселок находится на западно-южном берегу Финского залива - т.е. к югу от Санкт-Петербурга.
Место для строительства ЖК Аннино Сити было выбрано не случайно. Поселок Аннино отличается развитой инфраструктурой, близостью к городу, хорошей транспортной доступностью, наличием различного общественного транспорта
Экологическая ситуация в районе благоприятная, так как нет крупных транспортных магистралей и промышленных производств. Поселок окружен лесными массивами, а поблизости находятся чистые лесные озера и парк Победы.
До побережья Финского залива от поселка Аннино около 14 километров.
Аккредитованные банки: Продажи ведутся через ЭСКРОУ счета при проектном финансировании ПАО Сбербанк
Позвоните и узнайте условия покупки прямо сейчас!
14.02.2026
8 299 700 ₽
Старт продаж 5 орпуса в жилом комплексе "Аннино Сити", квартиры с отделкой! Срок сдачи 2025 год.
14.02.2026
8 371 250 ₽
Старт продаж 5 орпуса в жилом комплексе "Аннино Сити", квартиры с отделкой! Срок сдачи 2025 год.
14.02.2026
8 299 700 ₽




















