Продам участок 30 сот.
Размещено сегодня в 03:14
0
0
Жалоба
- Параметры объявления
- Площадь (соток): 30
- Описание
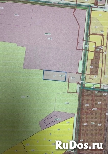
Предлагается земельный участок 3 000 м2 с объектом недвижимости в собственности, в общественно-деловой зоне ОД(К) в центре Первоуральска, на территории парка Культуры и Отдыха, с готовыми ТУ и возможностью строительства торгово-офисного или многофункционального комплекса. Участок подходит под торговый центр, офисный, медицинский, спортивно-развлекательный и другие коммерческие форматы с высокой проходимостью и трафиком.
Описание объекта
Адрес: Свердловская область, г. Первоуральск, ул. Физкультурников, д. 1Б
Площадь участка: 3 000 м2, земли населённых пунктов, разрешенное использование — для торговой деятельности, зона ОД(К) — комплексная общественно-деловая зона.
На участке расположено нежилое здание (кафе) площадью 293,3 м2, которое можно реконструировать под новый формат или демонтировать под застройку.
Собственность: частная, участок и здание в собственности физлица, актуальный ГПЗУ выдан (2021 / 2025 гг.).
Инженерия и ТУ (нужно продлевать):
Электричество: 146,8 кВт на участке.
Водоснабжение и канализация: разрешенный объём 13,5 м&179;/сутки.
&8203;
Теплоснабжение: 0,811 Гкал/час, присоединение к тепловым сетям ТЭЦ.
&8203;
Градостроительный план, эскизный проект админ&8209;торгового здания ~2 872–3 000 м2, ТУ от ресурсоснабжающих организаций — в наличии.
Центр Первоуральска, престижная локация ул. Физкультурников с высокой проходимостью, рядом парк, жилые кварталы, развитая торговая и социальная инфраструктура.
Участок расположен на территории парка Культуры и Отдыха, что усиливает рекреационный и семейный трафик.
Удобный отдельный заезд, близость к транспортной развязке и остановкам общественного транспорта обеспечивает стабильный поток автотрафика.
Проработан проект административно&8209;торгового комплекса площадью около 2 872–3 000 м2: офисные помещения, кафе, спортклуб, парковка на 30+ машиномест.
Функционал зоны ОД(К) позволяет размещать торговый центр, офисный центр, медицинский центр, кафе/ресторан, спортивно&8209;развлекательный комплекс, гостиницу, объекты услуг и др.
Обращайтесь!
Ждём Вас на просмотр! AFY-203391051
Описание объекта
Адрес: Свердловская область, г. Первоуральск, ул. Физкультурников, д. 1Б
Площадь участка: 3 000 м2, земли населённых пунктов, разрешенное использование — для торговой деятельности, зона ОД(К) — комплексная общественно-деловая зона.
На участке расположено нежилое здание (кафе) площадью 293,3 м2, которое можно реконструировать под новый формат или демонтировать под застройку.
Собственность: частная, участок и здание в собственности физлица, актуальный ГПЗУ выдан (2021 / 2025 гг.).
Инженерия и ТУ (нужно продлевать):
Электричество: 146,8 кВт на участке.
Водоснабжение и канализация: разрешенный объём 13,5 м&179;/сутки.
&8203;
Теплоснабжение: 0,811 Гкал/час, присоединение к тепловым сетям ТЭЦ.
&8203;
Градостроительный план, эскизный проект админ&8209;торгового здания ~2 872–3 000 м2, ТУ от ресурсоснабжающих организаций — в наличии.
Центр Первоуральска, престижная локация ул. Физкультурников с высокой проходимостью, рядом парк, жилые кварталы, развитая торговая и социальная инфраструктура.
Участок расположен на территории парка Культуры и Отдыха, что усиливает рекреационный и семейный трафик.
Удобный отдельный заезд, близость к транспортной развязке и остановкам общественного транспорта обеспечивает стабильный поток автотрафика.
Проработан проект административно&8209;торгового комплекса площадью около 2 872–3 000 м2: офисные помещения, кафе, спортклуб, парковка на 30+ машиномест.
Функционал зоны ОД(К) позволяет размещать торговый центр, офисный центр, медицинский центр, кафе/ресторан, спортивно&8209;развлекательный комплекс, гостиницу, объекты услуг и др.
Обращайтесь!
Ждём Вас на просмотр! AFY-203391051
