Продажа недвижимости в Павловской - Страница 5
- Павловская »
- Недвижимость в Павловской
Продаются 2 комн. апартаменты, площадью 45.7 м2 в монолитной новостройке. Возможен вариант покупки с использованием ипотечных средств, есть рассрочка, возможна покупка с использованием материнского капитала, есть военная ипотека.
Жилая площадь 19.9 м2, кухня 12.7 м2, чистовая отделка с мебелью.
Квартира располагается на 5 этаже 9-этажного дома в ЖК Гостиничный комплекс Мореград.
Застройщик - ООО СЗ ГРАЖДАНСТРОЙАНАПА входит в состав ГК ССК, сдача дома - I квартал 2027 года.
Дом оборудован пассажирским лифтом, закрытая территория.
Подземная парковка, парковка охраняется. Обеспечение безопасности: видеонаблюдение, круглосуточная охрана, противопожарная система. Инфраструктура: детские площадки, спортивные площадки, места для отдыха, супермаркет, рестораны, пункты бытового обслуживания, коммерческие объекты.
Расположенный в живописном месте города-курорта Анапы, гостиничный комплекс «Мореград» предлагает идеальное сочетание уютной обстановки и удобного расположения. Всего в трех минутах ходьбы от тенистых зеленых аллей Пионерского проспекта, он станет идеальным выбором для отдыхающих, желающих насладиться близостью к морю.
Песчаные пляжи Черного моря, всего в 7 минутах ходьбы от комплекса, приглашают насладиться теплым солнцем и ласковыми волнами.
«Мореград» - уникальный современный гостиничный комплекс, где гостям будут доступны все удобства отельного сервиса. Коммерческие блоки и различные виды отдыха - рестораны, бары, магазины, лаунж-зоны, оборудованные спортивные и детские площадки и многое другое сделают отдых гостей незабываемым.
Набережная, море и комфорт в каждом метре - гостиничный комплекс «Мореград» в живописном городе-курорте Анапа представляет специальное предложение для тех, кто ценит выгодные решения. При оплате наличными вы получаете выгоду до 1 180 000 рублей, что делает приобретение недвижимости здесь особенно привлекательным. Расположенный всего в трёх минутах ходьбы от тенистых зелёных аллей Пионерского проспекта, комплекс сочетает уютную атмосферу и удобное расположение, идеально подходя для отдыха и постоянного проживания. Наслаждайтесь близостью к морю, высоким уровнем комфорта и перспективной инвестицией в будущее уже сегодня.
Позвоните и узнайте условия покупки прямо сейчас!
14.01.2026
13 710 000 ₽
Аукцион по продаже имущественного комплекса, находящегося по адресу: (Краснодарский край, Славянский р-н. , Славянск-на-Кубани, ул. Комсомольская, д. 93А)
Общая площадь: 0.05 га / 252.6 м
Начальная цена: 11 365 000,00
Дата окончания приема заявок: 16.02.2026 15: 00: 00
Дата проведения торгов: 20.02.2026 10: 00: 00
Кадастровые номера: 23: 48: 0204034: 18, 23: 27: 1404001: 10253
Имущественный комплекс расположен среди индивидуальной жилой застройки. Ближайшее окружение, помимо частного сектора, включает: школу, бассейн, торговый центр, стоматологию и администрацию. Всего в 300 м от объекта находится остановка общественного транспорта, в 1,51 км автовокзал.
Реализация проходит на ЭТП Сбербанк АСТ. С подробной информацией вы можете ознакомиться на сайте ДОМ. РФ или позвонить нам по телефону. ДОМ. РФ - единственный агент РФ, который имеет право вовлекать в хозяйственный оборот неиспользуемые или используемые не по назначению объекты федерального имущества: земельные участки, здания, помещения согласно ФЗ 161 от 24.07.2008. География лотов, реализуемых на торгах, составляет более чем 90 регионов и является уникальной для РФ.
14.01.2026
11 365 000 ₽
Продается 2-комн. квартира, площадью 53.7 м2 в монолитно-кирпичной новостройке. Возможен вариант покупки с использованием ипотечных средств, есть рассрочка, возможна покупка с использованием материнского капитала, есть военная ипотека.
Жилая площадь 27.4 м2, кухня 13.8 м2, черновая отделка.
Квартира располагается на 2 этаже 16-этажного дома в ЖК Традиции.
Застройщик - ГК ССК, сдача дома - III квартал 2027 года, высота потолков 2.72 м.
Дом оборудован пассажирским лифтом. Обеспечение безопасности: видеонаблюдение, противопожарная система. Инфраструктура: детские площадки, спортивные площадки, места для отдыха, супермаркет, рестораны, фитнес-центр, пункты бытового обслуживания, коммерческие объекты.
В жилом комплексе «Традиции» вы найдёте всё, чтобы создать свой особенный уклад жизни. Возможно, именно здесь начнётся новая семейная традиция, которая станет дорогой сердцу на долгие годы.
В радиусе 5 минут ходьбы от комплекса уже функционируют школы и детские сады, а дорога в центр города занимает 15 минут.
«Доступное жильё - 3%» в ЖК «Традиции»
Мы ценим ваш труд и поддерживаем на важных жизненных этапах!
Если вы - врач, учитель, военнослужащий, участник СВО, моряк (г. Калининград) или молодая семья с детьми, для вас действует специальное предложение:
Скидка 3% от стоимости квартиры в рамках программы «Доступное жильё».
Ваша квартира в ЖК «Традиции» - это начало новой главы в уютном, продуманном пространстве, где каждая деталь создана для комфорта большой семьи.
Аккредитованные банки: Сбербанк, Альфа-Банк, ВТБ, Банк Уралсиб, РОССИЯ, Абсолют Банк, Металлинвестбанк, РНКБ, ПСБ, Кубань Кредит, Банк ВБРР, Россельхозбанк.
Позвоните и узнайте условия покупки прямо сейчас!
02.12.2025
7 249 500 ₽
Продается 2-комн. квартира, площадью 56.1 м2 в монолитно-кирпичной новостройке. Возможен вариант покупки с использованием ипотечных средств, есть рассрочка, возможна покупка с использованием материнского капитала, есть военная ипотека.
Жилая площадь 25.6 м2, кухня 16.1 м2, черновая отделка.
Квартира располагается на 7 этаже 16-этажного дома в ЖК Традиции.
Застройщик - ГК ССК, сдача дома - III квартал 2027 года, высота потолков 2.72 м.
Дом оборудован пассажирским лифтом. Обеспечение безопасности: видеонаблюдение, противопожарная система. Инфраструктура: детские площадки, спортивные площадки, места для отдыха, супермаркет, рестораны, фитнес-центр, пункты бытового обслуживания, коммерческие объекты.
В жилом комплексе «Традиции» вы найдёте всё, чтобы создать свой особенный уклад жизни. Возможно, именно здесь начнётся новая семейная традиция, которая станет дорогой сердцу на долгие годы.
В радиусе 5 минут ходьбы от комплекса уже функционируют школы и детские сады, а дорога в центр города занимает 15 минут.
«Доступное жильё - 3%» в ЖК «Традиции»
Мы ценим ваш труд и поддерживаем на важных жизненных этапах!
Если вы - врач, учитель, военнослужащий, участник СВО, моряк (г. Калининград) или молодая семья с детьми, для вас действует специальное предложение:
Скидка 3% от стоимости квартиры в рамках программы «Доступное жильё».
Ваша квартира в ЖК «Традиции» - это начало новой главы в уютном, продуманном пространстве, где каждая деталь создана для комфорта большой семьи.
Аккредитованные банки: Сбербанк, Альфа-Банк, ВТБ, Банк Уралсиб, РОССИЯ, Абсолют Банк, Металлинвестбанк, РНКБ, ПСБ, Кубань Кредит, Банк ВБРР, Россельхозбанк.
Позвоните и узнайте условия покупки прямо сейчас!
09.12.2025
7 573 500 ₽
Продается 2-комн. квартира, площадью 56.1 м2 в монолитно-кирпичной новостройке. Возможен вариант покупки с использованием ипотечных средств, есть рассрочка, возможна покупка с использованием материнского капитала, есть военная ипотека.
Жилая площадь 25.6 м2, кухня 16.1 м2, черновая отделка.
Квартира располагается на 13 этаже 16-этажного дома в ЖК Традиции.
Застройщик - ГК ССК, сдача дома - III квартал 2027 года, высота потолков 2.72 м.
Дом оборудован пассажирским лифтом. Обеспечение безопасности: видеонаблюдение, противопожарная система. Инфраструктура: детские площадки, спортивные площадки, места для отдыха, супермаркет, рестораны, фитнес-центр, пункты бытового обслуживания, коммерческие объекты.
В жилом комплексе «Традиции» вы найдёте всё, чтобы создать свой особенный уклад жизни. Возможно, именно здесь начнётся новая семейная традиция, которая станет дорогой сердцу на долгие годы.
В радиусе 5 минут ходьбы от комплекса уже функционируют школы и детские сады, а дорога в центр города занимает 15 минут.
«Доступное жильё - 3%» в ЖК «Традиции»
Мы ценим ваш труд и поддерживаем на важных жизненных этапах!
Если вы - врач, учитель, военнослужащий, участник СВО, моряк (г. Калининград) или молодая семья с детьми, для вас действует специальное предложение:
Скидка 3% от стоимости квартиры в рамках программы «Доступное жильё».
Ваша квартира в ЖК «Традиции» - это начало новой главы в уютном, продуманном пространстве, где каждая деталь создана для комфорта большой семьи.
Аккредитованные банки: Сбербанк, Альфа-Банк, ВТБ, Банк Уралсиб, РОССИЯ, Абсолют Банк, Металлинвестбанк, РНКБ, ПСБ, Кубань Кредит, Банк ВБРР, Россельхозбанк.
Позвоните и узнайте условия покупки прямо сейчас!
02.12.2025
7 573 500 ₽
Продаётся новый дом с шикарным видом на море и горы. Три мастер спальни, гостиная, кухня, сауна, бассейн, отдельно стоящее подсобное помещение. Граничит с нац.парком. Веранда с летней кухней и мебелью. Полностью меблирован, техника, всё новое, в доме никто не жил. Собственник!
08.12.2025
65 000 000 ₽
Продаются 2 комн. апартаменты, площадью 48.7 м2 в монолитной новостройке. Возможен вариант покупки с использованием ипотечных средств, есть рассрочка, возможна покупка с использованием материнского капитала, есть военная ипотека.
Жилая площадь 14.9 м2, кухня 13.3 м2, чистовая отделка с мебелью.
Квартира располагается на 2 этаже 9-этажного дома в ЖК Гостиничный комплекс Мореград.
Застройщик - ООО СЗ ГРАЖДАНСТРОЙАНАПА входит в состав ГК ССК, сдача дома - I квартал 2027 года.
Дом оборудован пассажирским лифтом, закрытая территория.
Подземная парковка, парковка охраняется. Обеспечение безопасности: видеонаблюдение, круглосуточная охрана, противопожарная система. Инфраструктура: детские площадки, спортивные площадки, места для отдыха, супермаркет, рестораны, пункты бытового обслуживания, коммерческие объекты.
Расположенный в живописном месте города-курорта Анапы, гостиничный комплекс «Мореград» предлагает идеальное сочетание уютной обстановки и удобного расположения. Всего в трех минутах ходьбы от тенистых зеленых аллей Пионерского проспекта, он станет идеальным выбором для отдыхающих, желающих насладиться близостью к морю.
Песчаные пляжи Черного моря, всего в 7 минутах ходьбы от комплекса, приглашают насладиться теплым солнцем и ласковыми волнами.
«Мореград» - уникальный современный гостиничный комплекс, где гостям будут доступны все удобства отельного сервиса. Коммерческие блоки и различные виды отдыха - рестораны, бары, магазины, лаунж-зоны, оборудованные спортивные и детские площадки и многое другое сделают отдых гостей незабываемым.
Набережная, море и комфорт в каждом метре - гостиничный комплекс «Мореград» в живописном городе-курорте Анапа представляет специальное предложение для тех, кто ценит выгодные решения. При оплате наличными вы получаете выгоду до 1 180 000 рублей, что делает приобретение недвижимости здесь особенно привлекательным. Расположенный всего в трёх минутах ходьбы от тенистых зелёных аллей Пионерского проспекта, комплекс сочетает уютную атмосферу и удобное расположение, идеально подходя для отдыха и постоянного проживания. Наслаждайтесь близостью к морю, высоким уровнем комфорта и перспективной инвестицией в будущее уже сегодня.
Позвоните и узнайте условия покупки прямо сейчас!
06.12.2025
13 636 000 ₽
Продаются 2 комн. апартаменты, площадью 48.7 м2 в монолитной новостройке. Возможен вариант покупки с использованием ипотечных средств, есть рассрочка, возможна покупка с использованием материнского капитала, есть военная ипотека.
Жилая площадь 14.9 м2, кухня 13.3 м2, чистовая отделка с мебелью.
Квартира располагается на 2 этаже 9-этажного дома в ЖК Гостиничный комплекс Мореград.
Застройщик - ООО СЗ ГРАЖДАНСТРОЙАНАПА входит в состав ГК ССК, сдача дома - I квартал 2027 года.
Дом оборудован пассажирским лифтом, закрытая территория.
Подземная парковка, парковка охраняется. Обеспечение безопасности: видеонаблюдение, круглосуточная охрана, противопожарная система. Инфраструктура: детские площадки, спортивные площадки, места для отдыха, супермаркет, рестораны, пункты бытового обслуживания, коммерческие объекты.
Расположенный в живописном месте города-курорта Анапы, гостиничный комплекс «Мореград» предлагает идеальное сочетание уютной обстановки и удобного расположения. Всего в трех минутах ходьбы от тенистых зеленых аллей Пионерского проспекта, он станет идеальным выбором для отдыхающих, желающих насладиться близостью к морю.
Песчаные пляжи Черного моря, всего в 7 минутах ходьбы от комплекса, приглашают насладиться теплым солнцем и ласковыми волнами.
«Мореград» - уникальный современный гостиничный комплекс, где гостям будут доступны все удобства отельного сервиса. Коммерческие блоки и различные виды отдыха - рестораны, бары, магазины, лаунж-зоны, оборудованные спортивные и детские площадки и многое другое сделают отдых гостей незабываемым.
Набережная, море и комфорт в каждом метре - гостиничный комплекс «Мореград» в живописном городе-курорте Анапа представляет специальное предложение для тех, кто ценит выгодные решения. При оплате наличными вы получаете выгоду до 1 180 000 рублей, что делает приобретение недвижимости здесь особенно привлекательным. Расположенный всего в трёх минутах ходьбы от тенистых зелёных аллей Пионерского проспекта, комплекс сочетает уютную атмосферу и удобное расположение, идеально подходя для отдыха и постоянного проживания. Наслаждайтесь близостью к морю, высоким уровнем комфорта и перспективной инвестицией в будущее уже сегодня.
Позвоните и узнайте условия покупки прямо сейчас!
06.12.2025
13 636 000 ₽
Продается 2-комн. квартира, площадью 66.42 м2 в монолитно-кирпичной новостройке. Возможен вариант покупки с использованием ипотечных средств, есть рассрочка, возможна покупка с использованием материнского капитала, есть военная ипотека.
Жилая площадь 29.43 м2, кухня 9.96 м2, предчистовая отделка.
Квартира располагается на 4 этаже 19-этажного дома в ЖК Лучший.
Застройщик - ГК ССК, сдача дома - IV квартал 2025 года, высота потолков 2.9 м.
Дом оборудован пассажирским лифтом, закрытая территория, парковка охраняется. Обеспечение безопасности: видеонаблюдение, противопожарная система. Инфраструктура: детские площадки, спортивные площадки, места для отдыха, супермаркет, рестораны, фитнес-центр, пункты бытового обслуживания, коммерческие объекты.
Дома сданы раньше сроков, ключи в момент сделки!
Жилой квартал «Лучший» - единая экосистема домов, в которой соблюдаются стандарты максимального качества, экологичности, богатства инфраструктуры, безопасного, живописного и престижного окружения и транспортной доступности. Организация уличного пространства и формирование благоприятной, эстетически привлекательной среды за порогом жилья является важным этапом строительства. Ландшафтный дизайн жилого квартала «Лучший» включает в себя не только озеленение двора, но и создание его внутренней инфраструктуры.
Два 24-этажных литера, выполненных по надежной технологии монолит-кирпич.
Специальное предложение в жилом квартале «Лучший»
Получите выгоду до 710 000 рублей. На двухкомнатные квартиры в литерах 10-13, а также кладовая площадью до 11 м в подарок.
Просторные планировки, современные решения и качественные материалы - всё создано для вашего комфорта с первого дня заселения.
Аккредитованные банки: Сбербанк, Альфа-Банк, ВТБ, Банк Уралсиб, РОССИЯ, Абсолют Банк, Металлинвестбанк, РНКБ, ПСБ, Кубань Кредит, Банк ВБРР, Россельхозбанк.
Позвоните и узнайте условия покупки прямо сейчас!
02.12.2025
8 966 700 ₽
Продается 2-комн. квартира, площадью 65.8 м2 в монолитно-кирпичной новостройке. Возможен вариант покупки с использованием ипотечных средств, есть рассрочка, возможна покупка с использованием материнского капитала, есть военная ипотека.
Жилая площадь 29.43 м2, кухня 9.87 м2, предчистовая отделка.
Квартира располагается на 2 этаже 19-этажного дома в ЖК Лучший.
Застройщик - ГК ССК, сдача дома - IV квартал 2025 года, высота потолков 2.9 м.
Дом оборудован пассажирским лифтом, закрытая территория, парковка охраняется. Обеспечение безопасности: видеонаблюдение, противопожарная система. Инфраструктура: детские площадки, спортивные площадки, места для отдыха, супермаркет, рестораны, фитнес-центр, пункты бытового обслуживания, коммерческие объекты.
Дома сданы раньше сроков, ключи в момент сделки!
Жилой квартал «Лучший» - единая экосистема домов, в которой соблюдаются стандарты максимального качества, экологичности, богатства инфраструктуры, безопасного, живописного и престижного окружения и транспортной доступности. Организация уличного пространства и формирование благоприятной, эстетически привлекательной среды за порогом жилья является важным этапом строительства. Ландшафтный дизайн жилого квартала «Лучший» включает в себя не только озеленение двора, но и создание его внутренней инфраструктуры.
Два 24-этажных литера, выполненных по надежной технологии монолит-кирпич.
Специальное предложение в жилом квартале «Лучший»
Получите выгоду до 710 000 рублей. На двухкомнатные квартиры в литерах 10-13, а также кладовая площадью до 11 м в подарок.
Просторные планировки, современные решения и качественные материалы - всё создано для вашего комфорта с первого дня заселения.
Аккредитованные банки: Сбербанк, Альфа-Банк, ВТБ, Банк Уралсиб, РОССИЯ, Абсолют Банк, Металлинвестбанк, РНКБ, ПСБ, Кубань Кредит, Банк ВБРР, Россельхозбанк.
Позвоните и узнайте условия покупки прямо сейчас!
02.12.2025
8 883 000 ₽
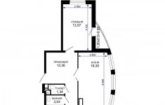
Продается 2-комн. квартира, площадью 65.27 м2 в монолитно-кирпичной новостройке. Возможен вариант покупки с использованием ипотечных средств, есть рассрочка, возможна покупка с использованием материнского капитала, есть военная ипотека.
Жилая площадь 36.3 м2, кухня 6.02 м2, предчистовая отделка.
Квартира располагается на 6 этаже 18-этажного дома в ЖК Фонтаны.
Застройщик - ГК ССК, сдача дома - IV квартал 2026 года, высота потолков 2.82 м.
Дом оборудован пассажирским лифтом, закрытая территория.
Отдельная многоуровневая парковка, парковка охраняется. Обеспечение безопасности: видеонаблюдение, противопожарная система. Инфраструктура: детский сад, детские площадки, спортивные площадки, места для отдыха, супермаркет, рестораны, фитнес-центр, пункты бытового обслуживания, коммерческие объекты.
Жилой комплекс «Фонтаны» - дом клубного типа. Преимущество заключается в продуманном ландшафте дворов, круглосуточно охраняемой территории, системе видеонаблюдения во дворе. Также для удобства жителей проведен Wi-Fi во дворе, оборудованы безопасные и современные детские площадки, зоны отдыха.
«Фонтаны» - уникальный, неповторимый жилой комплекс, воплощающий оригинальные и креативные решения дизайнеров и архитекторов. Дома округлой форме - это придает им легкости, несмотря на массивность постройки.
ЖК «Фонтаны» расположен в микрорайоне Черёмушки. Отличная транспортная развязка позволяет быстро и с комфортом добраться до центра, а большое количество зеленых насаждений и парков дает возможность гулять с детьми и наслаждаться прекрасным видом на Кубань.
Программа «Доступное жилье» - скидка 3% для тех, кто строит будущее!
В рамках программы «Доступное жилье» предусмотрена скидка 3% от стоимости квартиры для:
врачей и медицинского персонала,
учителей и преподавателей школ и вузов,
участников СВО и военнослужащих,
моряков (для жителей Калининграда) ,
молодых семей с детьми.
Это наш вклад в поддержку тех, кто каждый день заботится о других, растит новое поколение, защищает страну или строит свою семью.
Аккредитованные банки: Сбербанк, Альфа-Банк, ВТБ, Банк Уралсиб, РОССИЯ, Абсолют Банк, Металлинвестбанк, РНКБ, ПСБ, Кубань Кредит, Банк ВБРР, Россельхозбанк.
Позвоните и узнайте условия покупки прямо сейчас!
17.12.2025
10 116 850 ₽
Продаю земельный участок 16 гектар под склады. Район МТФ-1. Кадастровый номер 23:43:0422002:841
Согласно ИСОГД - склады в основных видах разрешенного использования.
Рядом расположено много производственных и складских предприятий.
14.01.2026
250 000 000 ₽
Продается земельный участок площадью 11.5 Га. Согласно новому документу единого территориального планирования, участок находится в коммунально-складской территориальной зоне - КС 1.2. Предназначен для строительства зданий складского назначения. На данном участке имеется возможность размещения зданий площадью до 69000 квадратных метров. Кадастровый номер 23:43:0431001:297
Собственность. Агентам не беспокоить.
14.01.2026
898 000 000 ₽
Продается кинотеатр на два зала. Много дополнительных площадей под сферу услуг. Новое здание. Кинотеатр очень нужен городу. Горожанам и отдыхающим гостям города приходится ездить за 70 км. Помещение свободного назначения площадью 500 м2, предоставляется юридический адрес. Помещение располагается в 3-этажном административном здании класса A, находится на 2 этаже здания.
Возможное назначение - прочее, высота потолков 7 м, внутри типовой ремонт, 4 мокрые точки, тип окон - витринные, окна выходят окна во двор и на улицу. В помещении интернет, телефон.
Общая площадь здания 1400 м2, здание находится на участке 0.6 га, год постройки 2021, участок находится в собственности, здание полностью функционирует.
Внутри центральное кондиционирование, вентиляция - приточная, автономное отопление, система пожаротушения, внутри есть водоснабжение.
Отдельный вход с улицы, доступ в здание свободный, здание открыто круглосуточно.
Парковка автомобилей - наземная, парковка на 20 машиномест, из них 20 предоставляются в пользование, есть гостевые места, парковка предоставляется бесплатно.
14.01.2026
40 000 000 ₽
Сдается фасадная часть под базу, торговлю, производство или стоянку. Ровный, без проводов. Только на длительный срок.
14.01.2026
550 000 ₽
Продается 2-комн. квартира, площадью 55.86 м2 в монолитно-кирпичной новостройке. Возможен вариант покупки с использованием ипотечных средств, есть рассрочка, возможна покупка с использованием материнского капитала, есть военная ипотека.
Жилая площадь 24.79 м2, кухня 17.2 м2, предчистовая отделка.
Квартира располагается на 10 этаже 18-этажного дома в ЖК Фонтаны.
Застройщик - ГК ССК, сдача дома - IV квартал 2026 года, высота потолков 2.82 м.
Дом оборудован пассажирским лифтом, закрытая территория.
Отдельная многоуровневая парковка, парковка охраняется. Обеспечение безопасности: видеонаблюдение, противопожарная система. Инфраструктура: детский сад, детские площадки, спортивные площадки, места для отдыха, супермаркет, рестораны, фитнес-центр, пункты бытового обслуживания, коммерческие объекты.
Жилой комплекс «Фонтаны» - дом клубного типа. Преимущество заключается в продуманном ландшафте дворов, круглосуточно охраняемой территории, системе видеонаблюдения во дворе. Также для удобства жителей проведен Wi-Fi во дворе, оборудованы безопасные и современные детские площадки, зоны отдыха.
«Фонтаны» - уникальный, неповторимый жилой комплекс, воплощающий оригинальные и креативные решения дизайнеров и архитекторов. Дома округлой форме - это придает им легкости, несмотря на массивность постройки.
ЖК «Фонтаны» расположен в микрорайоне Черёмушки. Отличная транспортная развязка позволяет быстро и с комфортом добраться до центра, а большое количество зеленых насаждений и парков дает возможность гулять с детьми и наслаждаться прекрасным видом на Кубань.
Программа «Доступное жилье» - скидка 3% для тех, кто строит будущее!
В рамках программы «Доступное жилье» предусмотрена скидка 3% от стоимости квартиры для:
врачей и медицинского персонала,
учителей и преподавателей школ и вузов,
участников СВО и военнослужащих,
моряков (для жителей Калининграда) ,
молодых семей с детьми.
Это наш вклад в поддержку тех, кто каждый день заботится о других, растит новое поколение, защищает страну или строит свою семью.
Аккредитованные банки: Сбербанк, Альфа-Банк, ВТБ, Банк Уралсиб, РОССИЯ, Абсолют Банк, Металлинвестбанк, РНКБ, ПСБ, Кубань Кредит, Банк ВБРР, Россельхозбанк.
Позвоните и узнайте условия покупки прямо сейчас!
17.12.2025
10 892 700 ₽
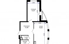
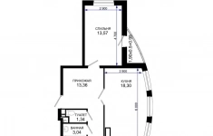
Продается 2-комн. квартира, площадью 65.27 м2 в монолитно-кирпичной новостройке. Возможен вариант покупки с использованием ипотечных средств, есть рассрочка, возможна покупка с использованием материнского капитала, есть военная ипотека.
Жилая площадь 36.3 м2, кухня 6.02 м2, предчистовая отделка.
Квартира располагается на 4 этаже 18-этажного дома в ЖК Фонтаны.
Застройщик - ГК ССК, сдача дома - IV квартал 2026 года, высота потолков 2.82 м.
Дом оборудован пассажирским лифтом, закрытая территория.
Отдельная многоуровневая парковка, парковка охраняется. Обеспечение безопасности: видеонаблюдение, противопожарная система. Инфраструктура: детский сад, детские площадки, спортивные площадки, места для отдыха, супермаркет, рестораны, фитнес-центр, пункты бытового обслуживания, коммерческие объекты.
Жилой комплекс «Фонтаны» - дом клубного типа. Преимущество заключается в продуманном ландшафте дворов, круглосуточно охраняемой территории, системе видеонаблюдения во дворе. Также для удобства жителей проведен Wi-Fi во дворе, оборудованы безопасные и современные детские площадки, зоны отдыха.
«Фонтаны» - уникальный, неповторимый жилой комплекс, воплощающий оригинальные и креативные решения дизайнеров и архитекторов. Дома округлой форме - это придает им легкости, несмотря на массивность постройки.
ЖК «Фонтаны» расположен в микрорайоне Черёмушки. Отличная транспортная развязка позволяет быстро и с комфортом добраться до центра, а большое количество зеленых насаждений и парков дает возможность гулять с детьми и наслаждаться прекрасным видом на Кубань.
Программа «Доступное жилье» - скидка 3% для тех, кто строит будущее!
В рамках программы «Доступное жилье» предусмотрена скидка 3% от стоимости квартиры для:
врачей и медицинского персонала,
учителей и преподавателей школ и вузов,
участников СВО и военнослужащих,
моряков (для жителей Калининграда) ,
молодых семей с детьми.
Это наш вклад в поддержку тех, кто каждый день заботится о других, растит новое поколение, защищает страну или строит свою семью.
Аккредитованные банки: Сбербанк, Альфа-Банк, ВТБ, Банк Уралсиб, РОССИЯ, Абсолют Банк, Металлинвестбанк, РНКБ, ПСБ, Кубань Кредит, Банк ВБРР, Россельхозбанк.
Позвоните и узнайте условия покупки прямо сейчас!
17.12.2025
12 074 950 ₽
Продается 2-комн. квартира, площадью 66.42 м2 в монолитно-кирпичной новостройке. Возможен вариант покупки с использованием ипотечных средств, есть рассрочка, возможна покупка с использованием материнского капитала, есть военная ипотека.
Жилая площадь 29.43 м2, кухня 9.96 м2, предчистовая отделка.
Квартира располагается на 2 этаже 19-этажного дома в ЖК Лучший.
Застройщик - ГК ССК, сдача дома - IV квартал 2025 года, высота потолков 2.9 м.
Дом оборудован пассажирским лифтом, закрытая территория, парковка охраняется. Обеспечение безопасности: видеонаблюдение, противопожарная система. Инфраструктура: детские площадки, спортивные площадки, места для отдыха, супермаркет, рестораны, фитнес-центр, пункты бытового обслуживания, коммерческие объекты.
Дома сданы раньше сроков, ключи в момент сделки!
Жилой квартал «Лучший» - единая экосистема домов, в которой соблюдаются стандарты максимального качества, экологичности, богатства инфраструктуры, безопасного, живописного и престижного окружения и транспортной доступности. Организация уличного пространства и формирование благоприятной, эстетически привлекательной среды за порогом жилья является важным этапом строительства. Ландшафтный дизайн жилого квартала «Лучший» включает в себя не только озеленение двора, но и создание его внутренней инфраструктуры.
Два 24-этажных литера, выполненных по надежной технологии монолит-кирпич.
Специальное предложение в жилом квартале «Лучший»
Получите выгоду до 710 000 рублей. На двухкомнатные квартиры в литерах 10-13, а также кладовая площадью до 11 м в подарок.
Просторные планировки, современные решения и качественные материалы - всё создано для вашего комфорта с первого дня заселения.
Аккредитованные банки: Сбербанк, Альфа-Банк, ВТБ, Банк Уралсиб, РОССИЯ, Абсолют Банк, Металлинвестбанк, РНКБ, ПСБ, Кубань Кредит, Банк ВБРР, Россельхозбанк.
Позвоните и узнайте условия покупки прямо сейчас!
02.12.2025
8 966 700 ₽
Продается 2-комн. квартира, площадью 65.6 м2 в монолитно-кирпичной новостройке. Возможен вариант покупки с использованием ипотечных средств, есть рассрочка, возможна покупка с использованием материнского капитала, есть военная ипотека.
Жилая площадь 29.43 м2, кухня 9.84 м2, предчистовая отделка.
Квартира располагается на 9 этаже 19-этажного дома в ЖК Лучший.
Застройщик - ГК ССК, сдача дома - IV квартал 2025 года, высота потолков 2.9 м.
Дом оборудован пассажирским лифтом, закрытая территория, парковка охраняется. Обеспечение безопасности: видеонаблюдение, противопожарная система. Инфраструктура: детские площадки, спортивные площадки, места для отдыха, супермаркет, рестораны, фитнес-центр, пункты бытового обслуживания, коммерческие объекты.
Дома сданы раньше сроков, ключи в момент сделки!
Жилой квартал «Лучший» - единая экосистема домов, в которой соблюдаются стандарты максимального качества, экологичности, богатства инфраструктуры, безопасного, живописного и престижного окружения и транспортной доступности. Организация уличного пространства и формирование благоприятной, эстетически привлекательной среды за порогом жилья является важным этапом строительства. Ландшафтный дизайн жилого квартала «Лучший» включает в себя не только озеленение двора, но и создание его внутренней инфраструктуры.
Два 24-этажных литера, выполненных по надежной технологии монолит-кирпич.
Специальное предложение в жилом квартале «Лучший»
Получите выгоду до 710 000 рублей. На двухкомнатные квартиры в литерах 10-13, а также кладовая площадью до 11 м в подарок.
Просторные планировки, современные решения и качественные материалы - всё создано для вашего комфорта с первого дня заселения.
Аккредитованные банки: Сбербанк, Альфа-Банк, ВТБ, Банк Уралсиб, РОССИЯ, Абсолют Банк, Металлинвестбанк, РНКБ, ПСБ, Кубань Кредит, Банк ВБРР, Россельхозбанк.
Позвоните и узнайте условия покупки прямо сейчас!
09.12.2025
8 856 000 ₽
Продается 2-комн. квартира, площадью 65.8 м2 в монолитно-кирпичной новостройке. Возможен вариант покупки с использованием ипотечных средств, есть рассрочка, возможна покупка с использованием материнского капитала, есть военная ипотека.
Жилая площадь 29.43 м2, кухня 9.87 м2, предчистовая отделка.
Квартира располагается на 6 этаже 19-этажного дома в ЖК Лучший.
Застройщик - ГК ССК, сдача дома - IV квартал 2025 года, высота потолков 2.9 м.
Дом оборудован пассажирским лифтом, закрытая территория, парковка охраняется. Обеспечение безопасности: видеонаблюдение, противопожарная система. Инфраструктура: детские площадки, спортивные площадки, места для отдыха, супермаркет, рестораны, фитнес-центр, пункты бытового обслуживания, коммерческие объекты.
Дома сданы раньше сроков, ключи в момент сделки!
Жилой квартал «Лучший» - единая экосистема домов, в которой соблюдаются стандарты максимального качества, экологичности, богатства инфраструктуры, безопасного, живописного и престижного окружения и транспортной доступности. Организация уличного пространства и формирование благоприятной, эстетически привлекательной среды за порогом жилья является важным этапом строительства. Ландшафтный дизайн жилого квартала «Лучший» включает в себя не только озеленение двора, но и создание его внутренней инфраструктуры.
Два 24-этажных литера, выполненных по надежной технологии монолит-кирпич.
Специальное предложение в жилом квартале «Лучший»
Получите выгоду до 710 000 рублей. На двухкомнатные квартиры в литерах 10-13, а также кладовая площадью до 11 м в подарок.
Просторные планировки, современные решения и качественные материалы - всё создано для вашего комфорта с первого дня заселения.
Аккредитованные банки: Сбербанк, Альфа-Банк, ВТБ, Банк Уралсиб, РОССИЯ, Абсолют Банк, Металлинвестбанк, РНКБ, ПСБ, Кубань Кредит, Банк ВБРР, Россельхозбанк.
Позвоните и узнайте условия покупки прямо сейчас!
02.12.2025
8 883 000 ₽
Продается 2-комн. квартира, площадью 66.1 м2 в монолитно-кирпичной новостройке. Возможен вариант покупки с использованием ипотечных средств, есть рассрочка, возможна покупка с использованием материнского капитала, есть военная ипотека.
Жилая площадь 29.43 м2, кухня 9.92 м2, предчистовая отделка.
Квартира располагается на 4 этаже 19-этажного дома в ЖК Лучший.
Застройщик - ГК ССК, сдача дома - IV квартал 2025 года, высота потолков 2.9 м.
Дом оборудован пассажирским лифтом, закрытая территория, парковка охраняется. Обеспечение безопасности: видеонаблюдение, противопожарная система. Инфраструктура: детские площадки, спортивные площадки, места для отдыха, супермаркет, рестораны, фитнес-центр, пункты бытового обслуживания, коммерческие объекты.
Дома сданы раньше сроков, ключи в момент сделки!
Жилой квартал «Лучший» - единая экосистема домов, в которой соблюдаются стандарты максимального качества, экологичности, богатства инфраструктуры, безопасного, живописного и престижного окружения и транспортной доступности. Организация уличного пространства и формирование благоприятной, эстетически привлекательной среды за порогом жилья является важным этапом строительства. Ландшафтный дизайн жилого квартала «Лучший» включает в себя не только озеленение двора, но и создание его внутренней инфраструктуры.
Два 24-этажных литера, выполненных по надежной технологии монолит-кирпич.
Специальное предложение в жилом квартале «Лучший»
Получите выгоду до 710 000 рублей. На двухкомнатные квартиры в литерах 10-13, а также кладовая площадью до 11 м в подарок.
Просторные планировки, современные решения и качественные материалы - всё создано для вашего комфорта с первого дня заселения.
Аккредитованные банки: Сбербанк, Альфа-Банк, ВТБ, Банк Уралсиб, РОССИЯ, Абсолют Банк, Металлинвестбанк, РНКБ, ПСБ, Кубань Кредит, Банк ВБРР, Россельхозбанк.
Позвоните и узнайте условия покупки прямо сейчас!
02.12.2025
8 923 500 ₽




















