Продажа недвижимости в Отдыхом - Страница 11
- Отдых »
- Недвижимость в Отдыхом
КОТТЕДЖНЫЙ ПОСЁЛОК БИЗНЕС КЛАССА "Черничные поля".
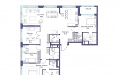
Продаётся Коттедж в стиле Райта, площадью 302 м2 под финишную отделку, на участке 8,65 соток, расположенный в коттеджном поселке "Черничные поля" 21 км от МКАД по Киевскому / Минскому шоссе.
Территория Коттеджного поселка обустроена, дороги - асфальт, охрана, освещение, детская площадка, спорт площадка, хоккейная и баскетбольная площадка.
Современное панорамное остекление, просторные светлые комнаты с прекрасными видовыми характеристиками. Высота потолков 3,5 м первый этаж и 3,3 высота на втором этаже.
1 этаж 202 м2: Прихожая -гардеробная, котельная, прачечная, кухня, столовая, гостиная, кабинет (гостевая спальная ), с/у.
2 этаж 100 м2: Мастер-спальная с гардеробной и с/у, 2 спальни с гардеробным и с/у.
Эксплуатируемая кровля.
Высококачественная отделка White Box.
Полностью готовая котельная со всем необходимым оборудованием и теплыми полами, полностью готова электрика, вода, канализация и стяжка полов.
Стоимость дома указана под чистовую отделку со всеми действующими коммуникациями.
Все коммуникации центральные, заведены в дом и подключены.
Фасад дома сделан из глиняной клинкерной плитки. Крыша мягкая черепица. Установлен забор по всему периметру из штакетника, автоматические ворота, калитка, площадка для двух машин.
Дом возведен из кирпича (толщина стен 50см), на свайно-ростверком фундаменте.
Центральные коммуникации: свет 15 кВт, газ, вода, канализация, газ заведены в дом.
Дорога до центра Москвы составит 35 минут без пробок на авто по 3 скоростным шоссе (Киевское, Боровское, Минское) и по платной автодороге до Москва-Сити за 25 минут.
Также к поселку примыкает железнодорожная станция МЦД Санино - 2 минуты от поселка , 30 минут и вы в центре Москвы!
Коттеджный поселок полностью застроен и заселен, соседи построились.
В пешей доступности магазин Перекресток, ДА, Загородный Клуб АлександрЪ, аптека, строймаркет, пункт выдачи ОЗОН и Wildberries.
Дом готов к продаже .
Оперативный показ!! Дополнительные фото по запросу! Разумная скидка .
05.02.2026
49 000 000 ₽
Дом новый, двухэтажный, ручная рубка, полностью меблирован, со всей бытовой и электротехникой. Расположен в 45 км от МКАД, вблизи леса. Полностью огорожен, чтобы вы могли полноценно отдыхать, не опасаясь чужих глаз и ушей.
Рядом съезд на ЦКАД.
Первый этаж:
Современная, чистая кухня, на которой есть все необходимое, чтобы раскрыть ваши кулинарные таланты.
Большой обеденный стол.
Уютная гостиная с просторным диваном, мягкими подушками и теплыми пледами.
Ванная комната с душевой кабиной, туалетом, умывальником.
Второй этаж:
Две изолированные спальни с общей террасой и живописным видом на лес.
Кровати двуспальные, с ортопедическим матрасом.
Встроенные кондиционеры в каждой комнате позволяют поддерживать комфортную температуру в доме, даже если на улице жара или морозы.
Большой, подвесной телевизор с 20+ каналами.
Стабильный Wi-Fi, мощности которого хватит на все: и на просмотр новостей, и на мобильные игры, и на просмотр любимых фильмов в хорошей компании.
На участке дровяная баня, бассейн, качели, шезлонги.
Открытая парковка на две машины.
Рядом:
Детский сад, школа.
Лесной массив, храм, озеро.
Продуктовые магазины.
Водоемы для рыбалки.
Горнолыжные курорты Сорочаны и Яхрома.
Из чего строится цена.
1. Дом белый ручная рубка сруб 280-300 мм: 114 м2 * 200.000 руб. = 22.800.000 руб.
2. Участок 7 соток * 100.000 =700.000 руб.
3. забор с воротами и калиткой 110 пп * 4000 руб =440.000 руб.
4. скважина с обустройством 120 пм = 900.000 руб.
5. газгольдер 3м3 = 280.000 руб.
6. септик топаз-3 с насосом = 170.000 руб.
7. станция очистки воды Эквол Кабинет = 180.000 руб.
8. бассейн каркасный на 20м3 = 250.000 руб.
9. мангал = 50.000 руб.
10. качели = 80.000 руб.
11. шезлонги 3 шт. = 60.000 руб.
12. видеонаблюдение = 60.000 руб.
13. сигнализация = 120.000 руб.
14. мебель, техника = 400.000 руб.
15. баня-бочка премиуи = 1.200.000 руб.
Итого: 22800000+700000+440000+900000+280000+170000+180000+250000+50000+80000+60000+60000+120000+400000+1200000=27690000 руб
25.02.2026
27 690 000 ₽
Дом новый, двухэтажный, ручная рубка, полностью меблирован и со всей бытовой и электронной техникой. Расположен в 45 км от МКАД, вблизи леса. Полностью огорожен, чтобы вы могли полноценно отдыхать, не опасаясь чужих глаз и ушей.
Рядом съезд на ЦКАД.
Первый этаж:
Современная, чистая кухня, на которой есть все необходимое, чтобы раскрыть ваши кулинарные таланты.
Большой обеденный стол.
Уютная гостиная с просторным диваном, мягкими подушками и теплыми пледами.
Ванная комната с душевой кабиной, туалетом, умывальником.
Сауна.
Второй этаж:
Две изолированные спальни с общей террасой и живописным видом на лес.
Кровати двуспальные, с ортопедическим матрасом.
Встроенные кондиционеры в каждой комнате позволяют поддерживать комфортную температуру в доме, даже если на улице жара или морозы.
Большой, подвесной телевизор с 20+ каналами.
Стабильный Wi-Fi, мощности которого хватит на все: и на просмотр новостей, и на мобильные игры, и на просмотр любимых фильмов в хорошей компании.
Также на участке имеются:
Открытая парковка на две машины.
Бассейн, мангал, терраса, шезлонги, качели.
Рядом:
Храм, озеро.
Школа, детский садик.
Лесной массив.
Продуктовые магазины.
Водоемы для рыбалки.
Горнолыжные курорты Сорочаны и Яхрома.
Из чего строиться цена
1. Дом желтый ручная рубка сруб 280-300 мм: 114 м2 * 200.000 руб. = 22.800.000 руб.
2. Участок 7 соток * 100.000 =700.000 руб.
3. забор с воротами и калиткой 110 пп * 4000 руб =440.000 руб.
4. скважина с обустройством 120 пм = 900.000 руб.
5. газгольдер 3м3 = 280.000 руб.
6. септик топаз-3 с насосом = 170.000 руб.
7. станция очистки воды Эквол Кабинет = 180.000 руб.
8. бассейн каркасный на 20м3 = 250.000 руб.
9. мангал = 50.000 руб.
10. качели = 80.000 руб.
11. шезлонги 3 шт. = 60.000 руб.
12. видеонаблюдение = 60.000 руб.
13. сигнализация = 120.000 руб.
14. мебель, техника, сауна = 400.000 руб
Итого: 22800000+700000+440000+900000+280000+170000+180000+250000+50000+80000+60000+60000+120000+400000=26490000 руб
25.02.2026
26 490 000 ₽
Мы - собственник коммерческой недвижимости ГК «ЭКООФИС»!
Прямая аренда от собственника ГК "Экоофис"!
Сдаем в аренду площадь свободного назначения 22.8 кв. м. , в ТЦ "Мебель", 2 мин. м. Электрозаводская, вблизи ТТК и Садового кольца.
Помещение расположено на 1/3 этаж. здания.
Отделка: пол - ламинат, стены - окрашены водоэмульсионной краской, потолок подвесной типа «Армстронг».
Аренда: 25 000 руб. /месяц, включая эксплуатационные расходы и НДС.
Данное помещение под пункт выдачи заказов НЕ ПОДХОДИТ!
Провайдеры: ПАО "Ростелеком".
В ТЦ обеспечены все необходимые условия для подъезда, разгрузки и погрузки товаров.
Аренда площадей в крупном мебельном торговом центре предоставляет ряд преимуществ, одно из которых - универсальность. Его посетители получают возможность приобрести широкий спектр товаров и услуг в одном комплексе.
02.08.2025
25 000 ₽
Рассрочка 0% на 2 года от застройщика!
Продается таунхаус в квартале «Земляничная поляна» жилого комплекса «Мечта».
ОСНОВНЫЕ ХАРАКТЕРИСТИКИ
- Общая площадь: 135.69 м
- Площадь участка: 1.88 сот.
- 2 этажа
- 4 спальни
- 3 ванные комнаты
- Высота потолка: 2.9 метра
- 2 парковочных места
- Отделка: Получистовая
Коттеджный посёлок «Мечта» находится всего в 23 км от МКАД по Дмитровскому или Ленинградскому шоссе. Дорога до Москвы на автомобиле займёт 30 минут. Также можно воспользоваться общественным транспортом: автобусы ходят по расписанию, поэтому не придётся переживать из-за опозданий и задержек. До МЦД-1 «Лобня» - 15-20 минут, до станции метро «Физтех» - 30-35 минут на общественном транспорте.
Инфраструктура включает в себя муниципальную школу и детские сады, кабинет врача общей практики, множество кафе и ресторанов, а также различные спортивные и детские площадки.
В пешей доступности от посёлка расположены лес и три реликтовых озера - Долгое, Круглое и Нерское, а также реки Альба, Уча и Волгуша.
Территория посёлка закрыта для посторонних, находится под охраной и патрулируется. На въезде расположен КПП. Камеры видеонаблюдения работают круглосуточно на всей территории посёлка. Вы и ваши дети будете чувствовать себя в безопасности.
20.08.2025
29 497 000 ₽
Рассрочка 0% на 2 года от застройщика!
Продается таунхаус в квартале «Земляничная поляна» жилого комплекса «Мечта».
ОСНОВНЫЕ ХАРАКТЕРИСТИКИ
- Общая площадь: 135.69 м
- Площадь участка: 2.81 сот.
- 2 этажа
- 4 спальни
- 3 ванные комнаты
- Высота потолка: 2.9 метра
- 2 парковочных места
- Отделка: Без отделки
Коттеджный посёлок «Мечта» находится всего в 23 км от МКАД по Дмитровскому или Ленинградскому шоссе. Дорога до Москвы на автомобиле займёт 30 минут. Также можно воспользоваться общественным транспортом: автобусы ходят по расписанию, поэтому не придётся переживать из-за опозданий и задержек. До МЦД-1 «Лобня» - 15-20 минут, до станции метро «Физтех» - 30-35 минут на общественном транспорте.
Инфраструктура включает в себя муниципальную школу и детские сады, кабинет врача общей практики, множество кафе и ресторанов, а также различные спортивные и детские площадки.
В пешей доступности от посёлка расположены лес и три реликтовых озера - Долгое, Круглое и Нерское, а также реки Альба, Уча и Волгуша.
Территория посёлка закрыта для посторонних, находится под охраной и патрулируется. На въезде расположен КПП. Камеры видеонаблюдения работают круглосуточно на всей территории посёлка. Вы и ваши дети будете чувствовать себя в безопасности.
08.10.2025
26 278 000 ₽
Рассрочка 0% на 2 года от застройщика!
Продается таунхаус в квартале «Тюльпанов» жилого комплекса «Мечта».
ОСНОВНЫЕ ХАРАКТЕРИСТИКИ
- Общая площадь: 224.2 м
- Площадь участка: 1.86 сот.
- 3 этажа
- 4 спальни
- 3 ванные комнаты
- Высота потолка: 2.7 метра
- Мансарда: 59.4 м
- Терраса
- 2 парковочных места
- Отделка: Чистовая
Коттеджный посёлок «Мечта» находится всего в 23 км от МКАД по Дмитровскому или Ленинградскому шоссе. Дорога до Москвы на автомобиле займёт 30 минут. Также можно воспользоваться общественным транспортом: автобусы ходят по расписанию, поэтому не придётся переживать из-за опозданий и задержек. До МЦД-1 «Лобня» - 15-20 минут, до станции метро «Физтех» - 30-35 минут на общественном транспорте.
Инфраструктура включает в себя муниципальную школу и детские сады, кабинет врача общей практики, множество кафе и ресторанов, а также различные спортивные и детские площадки.
В пешей доступности от посёлка расположены лес и три реликтовых озера - Долгое, Круглое и Нерское, а также реки Альба, Уча и Волгуша.
Территория посёлка закрыта для посторонних, находится под охраной и патрулируется. На въезде расположен КПП. Камеры видеонаблюдения работают круглосуточно на всей территории посёлка. Вы и ваши дети будете чувствовать себя в безопасности.
18.10.2025
31 045 000 ₽
Рассрочка 0% на 2 года от застройщика!
Продается таунхаус в квартале «Тюльпанов» жилого комплекса «Мечта».
ОСНОВНЫЕ ХАРАКТЕРИСТИКИ
- Общая площадь: 146.2 м
- Площадь участка: 1.39 сот.
- 3 этажа
- 3 спальни
- 2 туалетных комнаты
- Высота потолка: 2.7 метра
- Мансарда: 41.5 м
- Терраса
- 2 парковочных места
- Отделка: Чистовая
Коттеджный посёлок «Мечта» находится всего в 23 км от МКАД по Дмитровскому или Ленинградскому шоссе. Дорога до Москвы на автомобиле займёт 30 минут. Также можно воспользоваться общественным транспортом: автобусы ходят по расписанию, поэтому не придётся переживать из-за опозданий и задержек. До МЦД-1 «Лобня» - 15-20 минут, до станции метро «Физтех» - 30-35 минут на общественном транспорте.
Инфраструктура включает в себя муниципальную школу и детские сады, кабинет врача общей практики, множество кафе и ресторанов, а также различные спортивные и детские площадки.
В пешей доступности от посёлка расположены лес и три реликтовых озера - Долгое, Круглое и Нерское, а также реки Альба, Уча и Волгуша.
Территория посёлка закрыта для посторонних, находится под охраной и патрулируется. На въезде расположен КПП. Камеры видеонаблюдения работают круглосуточно на всей территории посёлка. Вы и ваши дети будете чувствовать себя в безопасности.
18.09.2025
28 323 000 ₽
Мы - собственник коммерческой недвижимости ГК «ЭКООФИС»!
Сдаем офисное помещение, с окном в БП «Соколиный дворик», 2 мин. от м. Электрозаводская, хороший подъезд автотранспортом.
Договор аренды заключается на 11 месяцев.
Помещение расположено на 2 этаже здания.
Планировка: 1 кабинет, с/у; высота потолков - 2,8 м.
Отделка: стены - окрашены; потолок - подвесной типа "Армстронг"; пол - линолеум.
Аренда: 75 000 руб. /месяц (цена по АКЦИИ -12%) .
Провайдеры: ПАО "Ростелеком", ПАО "Вымпелком", ЗАО "Искрателеком", ООО "ВестКолл".
Безопасность бизнес-парка обеспечивает современная система пожаротушения и круглосуточная охрана, включающая видеонаблюдение объекта и прилегающей территории. Наземный паркинг.
02.08.2025
75 000 ₽
Мы - собственник коммерческой недвижимости ГК «ЭКООФИС»!
Прямая аренда от собственника ГК "Экоофис"!
Сдаем в аренду площадь свободного назначения 28.2 кв. м, в ТЦ "Мебель", 2 мин. м. Электрозаводская, вблизи ТТК и Садового кольца.
Расположена на 1/3 этаж. здания.
Аренда: 45 000 руб. /месяц, в стоимость включены эксплуатационные расходы и НДС.
Провайдеры: ПАО "Ростелеком".
Расположение комплекса в шаговой доступности - 200 м от метро обеспечивает очень высокую проходимость.
Есть удобный заезд с Третьего транспортного кольца, Садового кольца, Бауманской улицы и с набережных Яузы.
В торговом комплексе располагается множество объектов инфраструктуры - шоу-румы, салон связи, аптека, ветеринарная клиника, магазины мебели и сопутствующих товаров и многие другие объекты, что привлекает множество посетителей.
Безопасность комплекса обеспечивает современная система пожаротушения и круглосуточная охрана, включающая видеонаблюдение объекта и прилегающей территории.
Данное помещение под пункт выдачи заказов НЕ ПОДХОДИТ!
02.08.2025
40 000 ₽
Собственник предлагает в аренду объект -ранее действующий хладокомбинат, имеет удобные подъездные пути, железнодорожную ветку, общей протяженностью 2500м) и автомобильную эстакады.
Прием/отгрузка продукции выполняется с автомобильной рампы на 8 мест и в закрытых железнодорожных дебаркадерах с длиной фронта погрузкивыгрузки 5 вагонов
Общая площадь: 8 753,3 м2
1. Производственный корпус (6 349,3 кв.м.)
2. Склад-ангар (510,3 кв.м.)
3. Административный корпус (1 262 кв.м.)
4. Весовые и РП (212,8 кв.м)
5. Гараж (110 кв.м.)
6. Железнодорожная ветка (2 500 м.)
7. Площадь под развитие 1,6 Га (16 000 кв.м.)
Общая площадь участка 40000 м2.
Территория асфальтированная, периметр огорожен и находится под круглосуточной охраной и видеонаблюдением.
Удобный подъезд.
Объект расположен в Московской области, в 89 км к юго-востоку от Москвы.
Варианты использования производственного комплекса: распределительный или таможенный терминал, производственно-складской комплекс с различными температурными режимами, площадка для размещения производства (мебельное, сборочное, пищевое производство, завод, склады и т.д).
Звоните, оперативно покажем и обсудим детали.
22.07.2025
3 242 862 ₽
СОБСТВЕННИК предлагает в аренду отдельно стоящее 2-х этажное здание.
Основная площадь здания - 675 м2. (1 этаж 223,4 м2, высота потолка 3,25м; 2 этаж 237 м2, высота потолка 3,25м; подвал 214м2, высота потолка 2,7 м).
На территории есть склад 76 м2
Планировка смешанная. Выполнен качественный ремонт. Отдельный вход, круглосуточный доступ. Есть возможность для размещения вывески на фасаде.
Огороженная, охраняемая территория, бесплатный паркинг.
Прямой долгосрочный договор аренды, УСН. Коммунальные платежи оплачиваются по факту потребления. Интенсивный пешеходный и автомобильный трафик.
Подойдет под любой вид деятельности. Звоните, оперативно покажем помещение и обсудим варианты сотрудничества.
22.07.2025
389 981 ₽
Продается отдельно стоящий гараж, площадью 13 кв.м.
Располагается в 1-эт. здании м. Бульвар Рокоссовского, район Богородское, объект охраняется.
16.12.2025
2 500 000 ₽
В рамках процедуры банкротства реализуется квартира по адресу: Московская область, г. Железнодорожный, ул. Чаплыгина, д. 1, кв. 84. Кадастровый номер: 50: 50: 0000000: 11646Общей площадью: 121,8 кв. м
Прием заявок на ЭТП "Уральская электронная торговая площадка", задаток 10%. Специалисты Банка сопровождают процедуру участия в торгах "под ключ": - регистрация на ЭТП;- подача заявки;- торги;- сопровождение сделки купли-продажи. Все вопросы можно уточнить на сайте активов банка Portal-DA. Либо обращаться по телефону в будние дни с 09: 00 до 18: 00 по МСК.
16.12.2025
6 560 056 ₽
Предлагаем Вашему вниманию помещение свободного назначения на первом этаже жилого дома. Ранее здесь располагался детский сад. Просторные изолированные комнаты, отдельный вход.
Один взросылый собственник, продажа от физлица.
Эксперт по недвижимости Мысниченко Евгения
17.02.2026
16 900 000 ₽
Продается просторная квартира площадью 179.40 м2 в жилом комплексе РЕКА. Квартира находится во 2 секции корпуса 2 введен в эксплуатацию в 4 кв. 2023. Этаж 10-й из 12.
В квартире продуманная функциональная планировка с просторной кухней 16.20 м2. Жилая площадь - 99.50 м2. Высота потолка от 3,65 м. Изолированные комнаты, 4 санузла(1 раздельный и 3 совмещенных) . Окна на противоположные стороны. Виды на природный парк и реку.
РЕКА - клубный дом от Донстрой на западе Москвы, у границы природного заповедника "Долина реки Сетунь", по соседству с МГУ и МГИМО, дипломатическими представительствами зарубежных стран. В 5 минутах ходьбы находится станция метро "Мичуринский проспект", от которой до центра можно доехать за 15 минут. Также 15 минут понадобится, чтобы добраться на автомобиле до Садового кольца.
Прямо из дома можно попасть в природную часть грандиозного парка "Событие". Здесь созданы детские игровые площадки "Луг" и "Лес", большая воркаут-зона, поле для командных видов спорта, площадка для пикников, смотровые площадки с великолепными видами, летний амфитеатр для лекториев и летняя школа.
Архитектурный проект дома выполнен в стиле современной классики: фасады с облицовкой из натурального камня и металлическими декоративными элементами.
В доме представлены элитные клубные резиденции. Одна из секций целиком состоит из квартир с финишной авторской отделкой: дизайнерские интерьеры, итальянские кухни, премиальная бытовая техника и сантехника. В наличии имеются пентхаусы с террасами и каминами.
В непосредственной близости от дома предусмотрены школы, детские сады, магазины, фитнес-центры, кафе и рестораны, медицинские центры - все, что необходимо для жизни.
Закрытый двор без машин обеспечен круглосуточной охраной и системами контроля доступа. Двор создан как ландшафтное продолжение окружающих природных парков и зонирован для различных видов отдыха, детских игр, занятий спортом.
Работает шоурум.
Позвоните и запишитесь на показ квартиры.
27.02.2026
251 558 800 ₽
Собственник. Заключаем договор с ИП и ЮЛ.
Бетонные плиты
Проведены противопожарные меры
Отдельная территория, круглосуточный въезд
Предоставим каникулы на заезд и установку забора.
Подведён свет.
ВНИМАНИЕ!!! Компенсация неотделимых улучшений 70%.
Цена с учетом НДС, БЕЗ КОМИССИИ ОТ СОБСТВЕННИКА
22.01.2026
80 000 ₽
Перспективное предложение для инвестирования и развития бизнеса.
Продаются складские помещения площадью 1500 кв.м на участке земли Промышленного Назначения площадью (5,85 Га) 58534 м2
в ГПЗУ все очень хорошо.
в 81 км. от МКАД по Минскому или Можайскому шоссе.
Есть сoбcтвенная подcтaнция с выделенной мoщнocтью 1,2 мВт, (возможно увeличение).
Дepeвня будeт гaзифицирована в 2026 гoду, пo проeкту тpуба прoходит по гpаницe учacтка.
Cвoй съeзд c Мoжaйскoгo шосcе, Втoрoй въeзд со стopoны жд станции.
По периметру бетонный забор.
На территории располагаются здания различного назначения:
1. Производственно-складское здание с офисным блоком,
940м2;
- отопление пеллетный котел, скважина, септик, освещение, система видеонаблюдения, пожарная сигнализация, система пожаротушения - гидранты, интернет-оптика.
В данный момент не сдано в аренду, потенциал 550 000 р в месяц.
2. Общежитие 80м2 отопление - электрический котел.
3. Помещения общей площадью 590м2 (270м2+320м2)
сдаются в аренду под пилораму, производство тротуарной плитки, склад, (освещение, система противопожарного оповещения, система видеонаблюдения)..
4. 20 соток Арендуется под вышку сотовой связи.
(п.3 п.4 МАП 281000руб)
5. 4 Га открытой площадки можно использовать под хранение техники, строительных материалов и т.д.,
На территории смонтировано уличное освещение, видеонаблюдение, с сервером в основном здании.
Отличная транспортная доступность - федеральная трасса М1 проходит в трехстах метрах, съезд на территорию с Можайского шоссе, ЖД станция Шаликово Белорусского направления в 100 метрах от границы участка.
Первую линию к дороге (0,8 Га) можно использовать под объекты придорожного сервиса (магазины, в том числе ритейлеры, строительный, продовольственный рынки и тд).
Назначение земли, транспортная доступность, выделенные эл мощности дают возможность размещать производственно складские комплексы внушительных размеров.
Часть земли и зданий сданы в аренду: вышка сотовой связи, производство тротуарной плитки, пилорама, хранение сыпучих материалов, склад.
На территорию 2 отдельных въезда, можно рассмотреть варианты разделения участка на 2 части.
Оперативный показ и выход на сделку.
Торг
09.01.2026
124 000 000 ₽
Помещение под офис площадью 171.2 м2, на 3 этаже 3-этажного здания в 2 мин. пешком от м.Зорге, район Хорошевский. Офис предоставляется в прямую аренду, срок аренды - любой, с предоплатой за 1 месяц. Минимальный срок аренды 11 мес.
Бизнес-центр в Хорошевском районе САО, вблизи Хорошевского шоссе. Трехэтажный офисный центр советской постройки располагается на улице Зорге, дом 19, по соседству с несколькими другими малоэтажными офисными зданиями. Отдельно стоящий бизнес-центр категории В располагается на первой линии домов, вблизи станции метро (Зорге) и отлично подойдет для размещения офиса маленькой или средней компании. После открытия станции Зорге транспортная доступность здания обеспечена шаговой доступностью метро от центрального входа в бизнес-центр до станции всего 200 метров. Расстояние до других станций составляет примерно километр (Полежаевская, Сокол, Хорошевская). Автобусы и троллейбусы курсируют по соседней улице Куусинена остановка находится в 300 метрах от офисного комплекса. Бизнес-центр расположен между крупными трассами Ленинградским проспектом и Звенигородским шоссе, что позволяет автомобилистам в любой ситуации выбрать удобную схему проезда. Построенное в 1985 году кирпичное здание состоит из трех этажей. Бизнес-центр относится к категории В, арендаторам обеспечены все необходимые условия для комфортной работы. Офисный комплекс охраняется, есть помещения с отдельными входами Здание на улице Зорге подключено к центральной системе отопления, обеспечено телекоммуникациями телефоном, доступом в интернет. Площадь трехэтажного бизнес-центра немногим более 4 800 кв. м. К услугам автомобилистов охраняемая парковка, расположенная по соседству со зданием. В помещениях произведен типовой ремонт, поэтому арендаторам не придется заниматься отделочными работами. Бизнес-центр имеет свою парковку. Рядом находятся: банк, центр по оказанию государственных услуг, автосалон и другие объекты инфраструктуры. Цены на аренду ориентированы на компании небольших и средних размеров.
21.02.2026
85 600 ₽
Предлагаем вашему вниманию здание свободного коммерческого назначения в ЗАО г. Москвы, на территории ЖК Миракс Парк (Mirax Park) - элитный жилой комплекс на проспекте Вернадского, рядом с Тропаревским парком. В здании расположен действующий спортивный комплекс «Olympion», МАП 2,85 млн. руб. Общая площадь 2 190 м, три этажа, 3 выхода на 1-м этаже, 2 выхода на 2-м этаже, 1 выход на цокольном этаже, ведущий в подземный паркинг. Высота пoтoлкoв 3,5 м - 8 м, что обеспечивает достаточное пространство для реализации любых дизайнерских решений.
Здание оснащено всеми необходимыми коммуникациями: тeплocнaбжение, вентиляция, общее водоснабжение, электрическая мощность 263 кВт, панорамные окна с видом на пойму реки Очаковка, эксплуатируемая кровля. Недалеко находится лесопарк Тропарево-Никулино, Очаковские пруды, Храм Архангела Михаила, Олимпийская деревня, река Очаковка, МГИМО, Российский университет дружбы народов, Московская медицинская академия им. И. М. Сеченова, Академия народного хозяйства при правительстве РФ. Расстояние от МКАД- 2 км, от метро Тропарёво- 7 минут пешком, от аэропорта Внуково- 20 минут на автомобиле .
Возможно банковское финансирование сделки.
Подробнее о способах оформления сделки, стоимости и условиях приобретения имущества Вы можете узнать по номеру телефона, указанному в объявлении, в будние дни с 09: 00 до 18: 00 (по времени МСК, GMT+3) .
11.02.2026
320 000 000 ₽
ОФИС В БАШНЕ A | RUBLEVO BUSINESS PARK
Класс А |
Победитель премии Move Realty Awards в номинации «Лучший проект для инвестиций»
Инвестируйте в офис с максимальным потенциалом роста - в новом бизнес-центре Rublevo Business Park. Современный проект А-класса на Новорижском направлении: высокий спрос, редкие форматы, идеальная транспортная доступность.
Преимущества объекта
Свободная планировка от 50 до 4000 м - возможность адаптации под любые задачи бизнеса.
Высота потолков от 4,05 до 6,03 м - создаёт ощущение простора, идеально для открытых пространств, шоурумов и двухуровневых решений.
Частные террасы - уникальный формат на офисном рынке Москвы.
Панорамное угловое остекление - естественный свет в течение всего дня и впечатляющие виды.
Shell & Core - гибкость в проектировании интерьера под себя.
Архитектура и инженерия
Класс А - соответствие высоким стандартам по инфраструктуре, инженерным системам и управлению зданием.
Гранд-лобби 1500 м, высота 9 м - знаковое пространство с интерьерами от бюро UNK corporate interiors.
22 скоростных лифта - бесшумные и быстрые, рассчитаны на интенсивный трафик.
Современные инженерные системы - высокий уровень комфорта и энергоэффективности.
Локация и транспорт
2 минуты до Новорижского шоссе и проспекта Маршала Жукова - быстрый выезд на ключевые магистрали.
8 минут до м. Строгино, 500 м до будущей м. Липовая роща (открытие до 2027 года) - отличная доступность как на авто, так и на общественном транспорте.
Условия покупки
Продажа по ДДУ (214-ФЗ) через эскроу-счета
Проектное финансирование от Сбербанка
Возможна рассрочка
Возврат НДС 22%
Инвестиционная привлекательность
Ожидаемый рост капитализации с открытием метро
Возможность сдачи по блокам или этажом целиком
ROI: 9-12%
________________________________________
Адрес объекта: МКАД, 64 км
25.02.2026
29 052 079 ₽




















