Продажа недвижимости в Новоселках - Страница 4
- Новоселки д. »
- Недвижимость в Новоселках
Евротрешка с мастер-спальней в ЖК Страна Озерная | 4 мин. до метро | Переуступка
Продается отличная трехкомнатная квартира (евро-формат) в жилом комплексе бизнес-класса Страна Озерная. Престижный Западный округ Москвы, идеальное сочетание технологичности и уюта.
О квартире:
Планировка: Продуманное пространство с просторной кухней-гостиной и двумя изолированными спальнями. Одна из них — мастер-спальня с собственным санузлом.
Видовые характеристики: Увеличенные панорамные окна позволяют насладится красотой города.
Параметры: Высокие потолки (3 метра), качественная входная дверь.
Состояние: Без отделки — возможность реализовать любой дизайн-проект с нуля.
О жилом комплексе:
Безопасность и комфорт: Закрытая территория, доступ по Face ID, лобби и охраняемый двор-с местами для отдыха.
Инфраструктура: Коворкинг, кафе, зона отдыха на крыше, подземный паркинг с зарядками для электромобилей.
Локация: 4 минуты пешком до м. Озерная. В пешей доступности парк Олимпийской деревни, Очаковские пруды и топовые вузы и школы страны.
Почему это предложение уникально:
Эстетика и свет: Панорамное остекление, высокие потолки и вид в тихий благоустроенный двор.
Технологичность: Предустановленный Умный дом и система безопасности с опознаванием лиц.
Приватность: Функциональная мастер-спальня с индивидуальным санузлом.
Локация: Престижный район, много зеленых зон, прекрасная транспортная доступность.
Условия сделки:
Продажа по переуступке от физлица.
Один собственник. Объект в ипотеке. Быстрый выход на сделку.
10.02.2026
27 450 000 ₽
Новый 2-х этажный коттедж 194,5 кв.м на участке 6 соток в КП «Новая Дятловка».
Ключи – апрель 2026г. Завершается внешняя отделка фасада.
Дом без внутренней отделки.
Семейная и IT ипотека – от 6%.
Планировка по проекту:
1 этаж: Просторная кухня-гостиная 33 кв.м с окнами на три стороны света и панорамной дверью на крытую террасу; три комнаты (10/12/14 кв.м), ванная комната, бойлерная, гардеробная, прихожая.
Высокие потолки- 3 метра.
2 этаж: Три спальни (17/16/22), с/у с душевой, много мест для хранения.
Потолки - 3 метра.
Коммуникации: Электричество и магистральный газ заведены на участок.
Земельный участок: 6 соток, ровный, правильной формы.
Забор - металлический штакетник высотой 2м.
Назначение - индивидуальное жилищное строительство (ИЖС). Прописка – д. Дятловка, г.о. Балашиха. Без проблем прикрепиться к садику, школе, поликлинике.
Коттедж построен из высококачественных материалов с соблюдением всех технологий:
- Фундамент: Свайный с ростверком (монолитный с армированием) с заглублением 3м;
- Стены: Газобетонный блок Бонолит, толщина внешних стен 400мм;
- Фасад: Штукатурка, покраска, фасадный декор; Цоколь утеплен и облицован термопанелями; выполнена отмостка;
- Кровля: Двухскатная из метало-черепицы с установкой снегозадержателей и водосточной системы;
- Окна Melke: Металло-пластиковые двухкамерные стеклопакеты с поворотно-откидным механизмом.
- Крыльцо и терраса с навесом;
- Входная металлическая дверь.
О поселке: Асфальтированные дороги. Общее освещение. Закрытая территория. В поселке оборудована детско-спортивная площадкас воркаутом и зоной отдыха, отдельной площадкой для малышей и теннисным столом.
Чистый и свежий воздух, удаленность от трасс и многоэтажек, тишина и уединение с природой и при этом оптимальное расстояние до города- всего 3 км от мкр. Железнодорожный и 17 км от МКАД. Ближайшие станции метро: Новокосино, Железнодорожная, Некрасовка.
Инфраструктура:
Все поблизости: Детский сад, школа, амбулатория, парк, банк, почта, спортивный комплекс с плавательным бассейном в Агрогородке - 10 мин на авто/автобусе. В д. Дятловка расположена остановка школьного автобуса, где утром забирает, а после уроков привозит ребят школьный автобус. В шаговой доступности Вкус Вилл, Пятерочка, пункты Яндекс/Озон/Валдбериз, аптека и тд.
ТЦ, рестораны, кафе, сетевые магазины и другая социально-бытовая инфраструктура расположена в городе Железнодорожном - 15 минут на авто.
Как добраться:
От КП до остановки автобуса 10 минут пешком. Автобус №26 идет до ж/д станции "Черное"- 10 минут, до ж/д станции "Железнодорожная" - 20 минут.
Открыт участок автомобильной трассы М12 Москва-Ногинск, легкое метро МЦД-4 (от Апрелевки до Железнодорожного), что значительно сокращает время в пути.
Продажа от застройщика. Вся стоимость в договор. Одобрение ипотеки и сопровождение сделки - бесплатно. Индивидуальная рассрочка до 12 месяцев.
Добро пожаловать в Новую Дятловку!
07.02.2026
14 900 000 ₽
Лот №9. Жилое помещение (квартира) , общ. пл. 38,4 кв.м. Продаваться будет с баланса банка. , приобрести его можно только с электронных торгов. Для участия в торгах вам понадобиться услуга "Агент в торгах". Более подробная информация по телефону, указанному в объявлении, в будние дни с 09-00 до 18-00 (МСК+7) Ожидается назначение повторных торгов.
07.02.2026
4 172 400 ₽
Рассрочка 0% на 2 года от застройщика!
Продается таунхаус в квартале «Тюльпанов» жилого комплекса «Мечта».
ОСНОВНЫЕ ХАРАКТЕРИСТИКИ
- Общая площадь: 146.2 м
- Площадь участка: 1.40 сот.
- 3 этажа
- 3 спальни
- 2 туалетных комнаты
- Высота потолка: 2.7 метра
- Мансарда: 41.5 м
- Терраса
- 2 парковочных места
- Отделка: Получистовая
Коттеджный посёлок «Мечта» находится всего в 23 км от МКАД по Дмитровскому или Ленинградскому шоссе. Дорога до Москвы на автомобиле займёт 30 минут. Также можно воспользоваться общественным транспортом: автобусы ходят по расписанию, поэтому не придётся переживать из-за опозданий и задержек. До МЦД-1 «Лобня» - 15-20 минут, до станции метро «Физтех» - 30-35 минут на общественном транспорте.
Инфраструктура включает в себя муниципальную школу и детские сады, кабинет врача общей практики, множество кафе и ресторанов, а также различные спортивные и детские площадки.
В пешей доступности от посёлка расположены лес и три реликтовых озера - Долгое, Круглое и Нерское, а также реки Альба, Уча и Волгуша.
Территория посёлка закрыта для посторонних, находится под охраной и патрулируется. На въезде расположен КПП. Камеры видеонаблюдения работают круглосуточно на всей территории посёлка. Вы и ваши дети будете чувствовать себя в безопасности.
07.02.2026
19 500 000 ₽
Аренда (офисов/ крупных офисных блоков) в новом БЦ Sydney city, всего в 5 минутах от ММДЦ Москва-сити!
В аренду предлагаются офисы без отделки напрямую от ФСК БЕЗ КОМИССИИ!!
БЦ Sydney city — это новый Бизнес-центр класса "А" всего в 5 минутах от ММДЦ Москва-сити, а с 4 кв. 2026 г., благодаря открытию новой ст. метро Звенигородская (Рублево-Архангельской ветки), всего в 1 станции метро от Москва-сити!
БЦ Sydney city расположен в самом центре Большого Сити с прекрасными видовыми характеристиками на Шелепихинскую набережную. Станция метро и МЦК "Шелепиха" находятся в 15-минутной пешеходной доступности, а с 4 кв. 2026 г. выход из новой ст.м. метро "Звенигородская" будет располагаться непосредственно у входа в бизнес-центр.
В новом бизнес-центре предлагаются в долгосрочную аренду офисные помещения площадью от 2 156 до 29 250 м2, которые располагаются на 4-16 этажах. В бизнес-центре выполняется высококачественная отделка мест общего пользования, а офисные помещения сдаются в состоянии "под отделку" (shell&core).
Арендодатель готов предоставить арендные каникулы на ремонт или выполнить отделку офисной части помещения по типовому дизайн-проекту ФСК с учетом требований арендатора.
БЦ Sydney city - это современные архитектура от бюро Kleinewelt architekten, инженерные решения и комфортные офисы с панорамным остеклением «в пол» и открытой эффективной планировкой. Шаг колонн 8,4 х 8,4 м, энерговооруженность - 100 Вт/м2, 5 отдельных лифтовых групп, в т.ч. 17 грузопассажирских лифтов марки Mitsubishi. Офисы на 4, 11, 16 этажах имеют собственную панорамную террасу. Воздухообмен 60 м3/час, кондиционирование по схеме чиллер/фанк-ойл. Автоматическая система спринклерного пожаротушения, АПС, СОУЭ, ДУ. Автоматизация и диспетчеризация базовых инженерных систем и ПБ. Просторная двусветная входная группа с торгово-сервисными помещениями и рестораном на 1 и 2 этажах.
Многоуровневый паркинг на 313 м/м, из них 147 м/м доступны в аренду вместе с офисами. Ставка аренды паркинга – по запросу.
Доступ к обширной инфраструктуре ЖК Sydney City. Sydney City - новый проект премиум-класса на Шелепихинской набережной, первый жилой квартал в концепции well being в Москве. На территории в 19,3 га ведется строительство 23 жилых корпусов, переменной этажности 8-44 этажей. Квартал обладает развитой собственной социальной и коммерческой инфраструктурой, начиная от престижной школы и д/с и заканчивая фудхоллом и развлекательным центром.
Ставка аренды офисов включает НДС, не включает ОРЕХ и коммунальные платежи. Ставка эксплуатационных расходов определяется в диапазоне от 10 500 до 12 500 руб./кв.м/год вкл. НДС.
Позвоните, мы оперативно организуем просмотр помещения в комфортное для вас время и ответим на все интересующие вас вопросы!
07.02.2026
41 770 078 ₽
Аренда (офисов/ крупных офисных блоков) в новом БЦ Sydney city, всего в 5 минутах от ММДЦ Москва-сити!
В аренду предлагаются офисы без отделки напрямую от ФСК БЕЗ КОМИССИИ!!
БЦ Sydney city — это новый Бизнес-центр класса "А" всего в 5 минутах от ММДЦ Москва-сити, а с 4 кв. 2026 г., благодаря открытию новой ст. метро Звенигородская (Рублево-Архангельской ветки), всего в 1 станции метро от Москва-сити!
БЦ Sydney city расположен в самом центре Большого Сити с прекрасными видовыми характеристиками на Шелепихинскую набережную. Станция метро и МЦК "Шелепиха" находятся в 15-минутной пешеходной доступности, а с 4 кв. 2026 г. выход из новой ст.м. метро "Звенигородская" будет располагаться непосредственно у входа в бизнес-центр.
В новом бизнес-центре предлагаются в долгосрочную аренду офисные помещения площадью от 2 156 до 29 250 м2, которые располагаются на 4-16 этажах. В бизнес-центре выполняется высококачественная отделка мест общего пользования, а офисные помещения сдаются в состоянии "под отделку" (shell&core).
Арендодатель готов предоставить арендные каникулы на ремонт или выполнить отделку офисной части помещения по типовому дизайн-проекту ФСК с учетом требований арендатора.
БЦ Sydney city - это современные архитектура от бюро Kleinewelt architekten, инженерные решения и комфортные офисы с панорамным остеклением «в пол» и открытой эффективной планировкой. Шаг колонн 8,4 х 8,4 м, энерговооруженность - 100 Вт/м2, 5 отдельных лифтовых групп, в т.ч. 17 грузопассажирских лифтов марки Mitsubishi. Офисы на 4, 11, 16 этажах имеют собственную панорамную террасу. Воздухообмен 60 м3/час, кондиционирование по схеме чиллер/фанк-ойл. Автоматическая система спринклерного пожаротушения, АПС, СОУЭ, ДУ. Автоматизация и диспетчеризация базовых инженерных систем и ПБ. Просторная двусветная входная группа с торгово-сервисными помещениями и рестораном на 1 и 2 этажах.
Многоуровневый паркинг на 313 м/м, из них 147 м/м доступны в аренду вместе с офисами. Ставка аренды паркинга – по запросу.
Доступ к обширной инфраструктуре ЖК Sydney City. Sydney City - новый проект премиум-класса на Шелепихинской набережной, первый жилой квартал в концепции well being в Москве. На территории в 19,3 га ведется строительство 23 жилых корпусов, переменной этажности 8-44 этажей. Квартал обладает развитой собственной социальной и коммерческой инфраструктурой, начиная от престижной школы и д/с и заканчивая фудхоллом и развлекательным центром.
Ставка аренды офисов включает НДС, не включает ОРЕХ и коммунальные платежи. Ставка эксплуатационных расходов определяется в диапазоне от 10 500 до 12 500 руб./кв.м/год вкл. НДС.
Позвоните, мы оперативно организуем просмотр помещения в комфортное для вас время и ответим на все интересующие вас вопросы!
07.02.2026
20 812 250 ₽
Сдается коммерческое помещение 52.2 м2 на 1 этаже в Зеленограде
Основная информация:
Адрес: Москва, Зеленоград, ул. Заводская, д. 14, корп. 2 (первый этаж 17-этажного дома).
Площадь: 52.2 кв. м.
Назначение: Идеально подойдет для салона красоты/барбершопа, пункта выдачи заказов (ПВЗ), розничной торговли, оказания услуг, кафе (с согласованием), офиса.
Район: Перспективный, спальный район с высокой проходимостью.
Ключевые преимущества:
Отличная транспортная доступность: Всего 12 минут пешком от станции МЦД «Крюково». Рядом остановка общественного транспорта.
Высокий трафик: Расположение на первом этаже жилого дома гарантирует постоянный поток потенциальных клиентов.
Готовность под разные виды бизнеса: Помещение имеет необходимые коммуникации.
Условия аренды:
Цена: 132 750 рублей в месяц (из расчета 2 500 руб./кв.м.).
Коммунальные платежи: Оплачиваются отдельно:
Холодное и горячее водоснабжение – по приборам учета.
Электроэнергия – по приборам учета.
Отопление – по площади помещения.
10.02.2026
132 750 ₽
Продается просторная квартира площадью 140.00 м2 в жилом комплексе РЕКА. Квартира находится в 5 секции корпуса 3 (будет введен в эксплуатацию в 4 кв. 2026) . Этаж 3-й из 10.
В квартире продуманная функциональная планировка с просторной кухней 18.80 м2. Жилая площадь - 68.10 м2. Высота потолка от 3,65 м. Изолированные комнаты, 3 совмещенных санузла. Окна на смежные стороны. Виды на природный парк и реку.
РЕКА - клубный дом от Донстрой на западе Москвы, у границы природного заповедника "Долина реки Сетунь", по соседству с МГУ и МГИМО, дипломатическими представительствами зарубежных стран. В 5 минутах ходьбы находится станция метро "Мичуринский проспект", от которой до центра можно доехать за 15 минут. Также 15 минут понадобится, чтобы добраться на автомобиле до Садового кольца.
Прямо из дома можно попасть в природную часть грандиозного парка "Событие". Здесь созданы детские игровые площадки "Луг" и "Лес", большая воркаут-зона, поле для командных видов спорта, площадка для пикников, смотровые площадки с великолепными видами, летний амфитеатр для лекториев и летняя школа.
Архитектурный проект дома выполнен в стиле современной классики: фасады с облицовкой из натурального камня и металлическими декоративными элементами.
В доме представлены элитные клубные резиденции. Одна из секций целиком состоит из квартир с финишной авторской отделкой: дизайнерские интерьеры, итальянские кухни, премиальная бытовая техника и сантехника. В наличии имеются пентхаусы с террасами и каминами.
В непосредственной близости от дома предусмотрены школы, детские сады, магазины, фитнес-центры, кафе и рестораны, медицинские центры - все, что необходимо для жизни.
Закрытый двор без машин обеспечен круглосуточной охраной и системами контроля доступа. Двор создан как ландшафтное продолжение окружающих природных парков и зонирован для различных видов отдыха, детских игр, занятий спортом.
Работает шоурум.
Позвоните и запишитесь на показ квартиры.
07.02.2026
154 000 000 ₽
Аренда офисного помещения площадью 594.1 кв.м, на 2 этаже 9-этажного здания в 8 мин. пешком от м.Академическая, район города - Академический. Офис предоставляется в прямую аренду, срок аренды - свыше года, с предоплатой за 1 месяц. Минимальный срок аренды 11 мес.
При необходимости предоставляется юридический адрес.
В здании 2 пассажирских лифта, единый рецепшен, охрана ЧОП, электронная пропускная система, видеонаблюдение периметра, единая система кондиционирования и вентиляция, центральное отопление, спринклерная система пожаротушения.
Центральный вход в офис - общий с улицы Дмитрия Ульянова.
12.02.2026
2 970 500 ₽
Сдается открытая площадка с твердым покрытием 9600 кв.м.
На площадке есть электричество (300 кВт возможно увеличить) вода.
Круглосуточная охрана, контролируемый въезд/выезд.
Удобная локация.
Каникулы на переезд.
Компенсация 70% по неотделимым улучшениям.
06.02.2026
672 000 ₽
Продается 3-комн. квартира, площадью 71.21 кв.м.
Жилая площадь 41.3 м2, кухня 15.4 кв. м, ремонта нет, окна выходят на улицу.
Квартира располагается на 13 этаже 15-этажного монолитного дома, есть мусоропровод, закрытая территория, парковка с охраной.
07.02.2026
20 565 448 ₽
Продается 3-комн. квартира, площадью 71.2 кв.м.
Жилая площадь 41.6 м2, кухня 12 кв. м, ремонта нет, окна выходят на улицу.
Квартира располагается на 23 этаже 28-этажного монолитного дома.
Дом оборудован пассажирским лифтом, есть мусоропровод, закрытая территория, парковка охраняемая.
07.02.2026
40 167 124 ₽
Продается 3-комн. квартира, площадью 77.3 кв.м.
Жилая площадь 43.1 м2, кухня 12 кв. м, ремонта нет, окна выходят на улицу.
Квартира располагается на 14 этаже 28-этажного монолитного дома.
Дом оборудован пассажирским лифтом, есть мусоропровод, закрытая территория, парковка с охраной.
07.02.2026
42 130 046 ₽
Продается 3-комн. квартира, площадью 69.4 кв.м.
Жилая площадь 40.6 м2, кухня 11.6 кв. м, ремонта нет, окна выходят на улицу.
Квартира располагается на 4 этаже 28-этажного монолитного дома.
Дом оборудован пассажирским лифтом, есть мусоропровод, закрытая территория, парковка с охраной.
07.02.2026
39 977 523 ₽
Продается 3-комн. квартира, площадью 76.2 кв.м.
Жилая площадь 43 кв. м, кухня 11.8 кв. м, ремонта нет, окна выходят на улицу.
Квартира располагается на 4 этаже 28-этажного монолитного дома.
Дом оборудован пассажирским лифтом, есть мусоропровод, закрытая территория, парковка охраняется.
07.02.2026
39 431 976 ₽
Продается 2-комн. квартира, площадью 65.9 кв.м.
Жилая площадь 31.6 кв. м, кухня 12.4 кв. м, ремонта нет, окна выходят на улицу.
Квартира располагается на 20 этаже 47-этажного монолитного дома.
Дом оборудован пассажирским лифтом, есть мусоропровод, закрытая территория, парковка охраняемая.
07.02.2026
41 036 589 ₽
Продается 4-комн. квартира, площадью 135.8 кв.м.
Жилая площадь 66.4 м2, кухня 14.9 кв. м, ремонта нет, окна выходят на улицу.
Квартира располагается на 35 этаже 37-этажного монолитного дома.
Дом оборудован пассажирским лифтом, есть мусоропровод, закрытая территория, парковка охраняемая.
07.02.2026
105 910 420 ₽
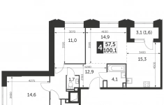
Продается 4-комн. квартира, площадью 100.1 кв.м.
Жилая площадь 57.5 кв. м, кухня 15.3 кв. м, ремонта нет, окна выходят на улицу.
Квартира располагается на 30 этаже 37-этажного монолитного дома.
Дом оборудован пассажирским лифтом, есть мусоропровод, закрытая территория, парковка охраняемая.
07.02.2026
60 623 063 ₽
Продается 4-комн. квартира, площадью 100.1 м2.
Жилая площадь 57.5 кв. м, кухня 15.3 кв. м, ремонта нет, окна выходят на улицу.
Квартира располагается на 27 этаже 37-этажного монолитного дома.
Дом оборудован пассажирским лифтом, есть мусоропровод, закрытая территория, парковка охраняется.
07.02.2026
60 452 893 ₽
Продается 3-комн. квартира, площадью 83.2 кв.м.
Жилая площадь 46.3 кв. м, кухня 14.3 кв. м, ремонта нет, окна выходят во двор.
Квартира располагается на 3 этаже 37-этажного монолитного дома.
Дом оборудован пассажирским лифтом, есть мусоропровод, закрытая территория, парковка с охраной.
07.02.2026
41 632 864 ₽
Продается 3-комн. квартира, площадью 83.7 м2.
Жилая площадь 39.3 кв. м, ремонта нет, окна выходят на улицу.
Квартира располагается на 10 этаже 17-этажного монолитного дома, высота потолков 3.17 м.
Дом оборудован пассажирским лифтом, есть мусоропровод, закрытая территория, парковка охраняется.
07.02.2026
53 414 335 ₽



















