Объявление о квартирах в Новомихайловском - Страница 6
- Новомихайловский »
- Недвижимость
- » Квартиры в Новомихайловском
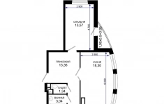
Продается 2-комн. квартира, площадью 65.2 м2 в монолитно-кирпичной новостройке. Возможен вариант покупки с использованием ипотечных средств, есть рассрочка, возможна покупка с использованием материнского капитала, есть военная ипотека.
Жилая площадь 29.43 м2, кухня 9.78 м2, предчистовая отделка.
Квартира располагается на 5 этаже 19-этажного дома в ЖК Лучший.
Застройщик - ГК ССК, сдача дома - IV квартал 2025 года, высота потолков 2.9 м.
Дом оборудован пассажирским лифтом, закрытая территория, парковка охраняется. Обеспечение безопасности: видеонаблюдение, противопожарная система. Инфраструктура: детские площадки, спортивные площадки, места для отдыха, супермаркет, рестораны, фитнес-центр, пункты бытового обслуживания, коммерческие объекты.
Дома сданы раньше сроков, ключи в момент сделки!
Жилой квартал «Лучший» - единая экосистема домов, в которой соблюдаются стандарты максимального качества, экологичности, богатства инфраструктуры, безопасного, живописного и престижного окружения и транспортной доступности. Организация уличного пространства и формирование благоприятной, эстетически привлекательной среды за порогом жилья является важным этапом строительства. Ландшафтный дизайн жилого квартала «Лучший» включает в себя не только озеленение двора, но и создание его внутренней инфраструктуры.
Два 24-этажных литера, выполненных по надежной технологии монолит-кирпич.
Специальное предложение в жилом квартале «Лучший»
Получите выгоду до 710 000 рублей. На двухкомнатные квартиры в литерах 10-13, а также кладовая площадью до 11 м в подарок.
Просторные планировки, современные решения и качественные материалы - всё создано для вашего комфорта с первого дня заселения.
Аккредитованные банки: Сбербанк, Альфа-Банк, ВТБ, Банк Уралсиб, РОССИЯ, Абсолют Банк, Металлинвестбанк, РНКБ, ПСБ, Кубань Кредит, Банк ВБРР, Россельхозбанк.
Позвоните и узнайте условия покупки прямо сейчас!
02.12.2025
8 966 700 ₽
Продается 2-комн. квартира, площадью 56.1 м2 в монолитно-кирпичной новостройке. Возможен вариант покупки с использованием ипотечных средств, есть рассрочка, возможна покупка с использованием материнского капитала, есть военная ипотека.
Жилая площадь 25.6 м2, кухня 16.1 м2, черновая отделка.
Квартира располагается на 12 этаже 16-этажного дома в ЖК Традиции.
Застройщик - ГК ССК, сдача дома - III квартал 2027 года, высота потолков 2.72 м.
Дом оборудован пассажирским лифтом. Обеспечение безопасности: видеонаблюдение, противопожарная система. Инфраструктура: детские площадки, спортивные площадки, места для отдыха, супермаркет, рестораны, фитнес-центр, пункты бытового обслуживания, коммерческие объекты.
В жилом комплексе «Традиции» вы найдёте всё, чтобы создать свой особенный уклад жизни. Возможно, именно здесь начнётся новая семейная традиция, которая станет дорогой сердцу на долгие годы.
В радиусе 5 минут ходьбы от комплекса уже функционируют школы и детские сады, а дорога в центр города занимает 15 минут.
«Доступное жильё - 3%» в ЖК «Традиции»
Мы ценим ваш труд и поддерживаем на важных жизненных этапах!
Если вы - врач, учитель, военнослужащий, участник СВО, моряк (г. Калининград) или молодая семья с детьми, для вас действует специальное предложение:
Скидка 3% от стоимости квартиры в рамках программы «Доступное жильё».
Ваша квартира в ЖК «Традиции» - это начало новой главы в уютном, продуманном пространстве, где каждая деталь создана для комфорта большой семьи.
Аккредитованные банки: Сбербанк, Альфа-Банк, ВТБ, Банк Уралсиб, РОССИЯ, Абсолют Банк, Металлинвестбанк, РНКБ, ПСБ, Кубань Кредит, Банк ВБРР, Россельхозбанк.
Позвоните и узнайте условия покупки прямо сейчас!
16.12.2025
7 573 500 ₽
Продается 2-комн. квартира, площадью 56.1 м2 в монолитно-кирпичной новостройке. Возможен вариант покупки с использованием ипотечных средств, есть рассрочка, возможна покупка с использованием материнского капитала, есть военная ипотека.
Жилая площадь 25.6 м2, кухня 16.1 м2, черновая отделка.
Квартира располагается на 11 этаже 16-этажного дома в ЖК Традиции.
Застройщик - ГК ССК, сдача дома - III квартал 2027 года, высота потолков 2.72 м.
Дом оборудован пассажирским лифтом. Обеспечение безопасности: видеонаблюдение, противопожарная система. Инфраструктура: детские площадки, спортивные площадки, места для отдыха, супермаркет, рестораны, фитнес-центр, пункты бытового обслуживания, коммерческие объекты.
В жилом комплексе «Традиции» вы найдёте всё, чтобы создать свой особенный уклад жизни. Возможно, именно здесь начнётся новая семейная традиция, которая станет дорогой сердцу на долгие годы.
В радиусе 5 минут ходьбы от комплекса уже функционируют школы и детские сады, а дорога в центр города занимает 15 минут.
«Доступное жильё - 3%» в ЖК «Традиции»
Мы ценим ваш труд и поддерживаем на важных жизненных этапах!
Если вы - врач, учитель, военнослужащий, участник СВО, моряк (г. Калининград) или молодая семья с детьми, для вас действует специальное предложение:
Скидка 3% от стоимости квартиры в рамках программы «Доступное жильё».
Ваша квартира в ЖК «Традиции» - это начало новой главы в уютном, продуманном пространстве, где каждая деталь создана для комфорта большой семьи.
Аккредитованные банки: Сбербанк, Альфа-Банк, ВТБ, Банк Уралсиб, РОССИЯ, Абсолют Банк, Металлинвестбанк, РНКБ, ПСБ, Кубань Кредит, Банк ВБРР, Россельхозбанк.
Позвоните и узнайте условия покупки прямо сейчас!
05.12.2025
7 573 500 ₽
Продается 2-комн. квартира, площадью 57 м2 в монолитно-кирпичной новостройке. Возможен вариант покупки с использованием ипотечных средств, есть рассрочка, возможна покупка с использованием материнского капитала, есть военная ипотека.
Жилая площадь 26.1 м2, кухня 19.1 м2, черновая отделка.
Квартира располагается на 14 этаже 16-этажного дома в ЖК Традиции.
Застройщик - ГК ССК, сдача дома - III квартал 2027 года, высота потолков 2.72 м.
Дом оборудован пассажирским лифтом. Обеспечение безопасности: видеонаблюдение, противопожарная система. Инфраструктура: детские площадки, спортивные площадки, места для отдыха, супермаркет, рестораны, фитнес-центр, пункты бытового обслуживания, коммерческие объекты.
В жилом комплексе «Традиции» вы найдёте всё, чтобы создать свой особенный уклад жизни. Возможно, именно здесь начнётся новая семейная традиция, которая станет дорогой сердцу на долгие годы.
В радиусе 5 минут ходьбы от комплекса уже функционируют школы и детские сады, а дорога в центр города занимает 15 минут.
«Доступное жильё - 3%» в ЖК «Традиции»
Мы ценим ваш труд и поддерживаем на важных жизненных этапах!
Если вы - врач, учитель, военнослужащий, участник СВО, моряк (г. Калининград) или молодая семья с детьми, для вас действует специальное предложение:
Скидка 3% от стоимости квартиры в рамках программы «Доступное жильё».
Ваша квартира в ЖК «Традиции» - это начало новой главы в уютном, продуманном пространстве, где каждая деталь создана для комфорта большой семьи.
Аккредитованные банки: Сбербанк, Альфа-Банк, ВТБ, Банк Уралсиб, РОССИЯ, Абсолют Банк, Металлинвестбанк, РНКБ, ПСБ, Кубань Кредит, Банк ВБРР, Россельхозбанк.
Позвоните и узнайте условия покупки прямо сейчас!
16.12.2025
7 695 000 ₽
В рамках процедуры банкротства продаётся уютная двухкомнатная квартира в жилом доме по адресу: Краснодар, п. Знаменский, ул. Природная, дом 10Б, корпус 4, квартира 213. Уютный и современный район. Вблизи расположены все необходимые коммуникации. Предчистовая отделка, возможность сделать ремонт по своему усмотрению.
Помощь агента в торгах. Готовы ответить на все интересующие вопросы.
14.01.2026
4 403 520 ₽
Продается 2-комн. квартира, площадью 63.16 м2 в монолитно-кирпичной новостройке. Возможен вариант покупки с использованием ипотечных средств, есть рассрочка, возможна покупка с использованием материнского капитала, есть военная ипотека.
Жилая площадь 26.01 м2, кухня 15.63 м2, предчистовая отделка.
Квартира располагается на 3 этаже 8-этажного дома в ЖК Резиденция морей.
Застройщик - ГК ССК, сдача дома - IV квартал 2026 года, высота потолков 2.85 м.
Дом оборудован пассажирским лифтом, закрытая территория.
Подземная парковка, парковка охраняется. Обеспечение безопасности: видеонаблюдение, пропускная система. Инфраструктура: детские площадки, спортивные площадки, супермаркет, рестораны, фитнес-центр, пункты бытового обслуживания, коммерческие объекты.
Жилой комплекс представляет собой закрытый периметр.
На территории подземного паркинга предусмотрены кладовые помещения, в которых будет удобно хранить авто-инвентарь, сезонные вещи и другие предметы быта, занимающие драгоценные метры квартиры.
Жители ЖК «Резиденция морей» смогут устраивать водные процедуры в любую погоду, даже когда на море шторм. Прямо во дворе комплекса расположатся два бассейна с расширенным временем пользования общей площадью 811 м2. В бассейне с разными уровнями глубины - от 0,5 до 1,5 м - смогут безопасно играть и учиться плавать самые маленькие жители.
Второй бассейн идеально подойдёт для длинных заплывов, спортивных тренировок и водного фитнеса, его глубина - 1,5 м. Вода в бассейнах всегда будет чистая за счет системы очистки и дезинфекции. Вокруг бассейнов будет благоустроена зона отдыха с шезлонгами. Также на территории будут оборудованы специальные помещения для переодевания и душевые комнаты.
При покупке просторной 2-комнатной квартиры за наличный расчет или в ипотеку мы дарим вам ремонт, выполненный с учетом современных трендов и высоких стандартов качества.
Светлые тона, надежные материалы, продуманный дизайн и функциональные решения - все это создаст неповторимую атмосферу комфорта и гармонии в вашем новом доме. Вам останется только расставить мебель и наслаждаться жизнью в полностью готовой к проживанию квартире.
Позвоните и узнайте условия покупки прямо сейчас!
11.12.2025
14 858 390 ₽
Продается 2-комн. квартира, площадью 63.16 м2 в монолитно-кирпичной новостройке. Возможен вариант покупки с использованием ипотечных средств, есть рассрочка, возможна покупка с использованием материнского капитала, есть военная ипотека.
Жилая площадь 26.01 м2, кухня 15.63 м2, предчистовая отделка.
Квартира располагается на 2 этаже 8-этажного дома в ЖК Резиденция морей.
Застройщик - ГК ССК, сдача дома - IV квартал 2026 года, высота потолков 2.85 м.
Дом оборудован пассажирским лифтом, закрытая территория.
Подземная парковка, парковка охраняется. Обеспечение безопасности: видеонаблюдение, пропускная система. Инфраструктура: детские площадки, спортивные площадки, супермаркет, рестораны, фитнес-центр, пункты бытового обслуживания, коммерческие объекты.
Жилой комплекс представляет собой закрытый периметр.
На территории подземного паркинга предусмотрены кладовые помещения, в которых будет удобно хранить авто-инвентарь, сезонные вещи и другие предметы быта, занимающие драгоценные метры квартиры.
Жители ЖК «Резиденция морей» смогут устраивать водные процедуры в любую погоду, даже когда на море шторм. Прямо во дворе комплекса расположатся два бассейна с расширенным временем пользования общей площадью 811 м2. В бассейне с разными уровнями глубины - от 0,5 до 1,5 м - смогут безопасно играть и учиться плавать самые маленькие жители.
Второй бассейн идеально подойдёт для длинных заплывов, спортивных тренировок и водного фитнеса, его глубина - 1,5 м. Вода в бассейнах всегда будет чистая за счет системы очистки и дезинфекции. Вокруг бассейнов будет благоустроена зона отдыха с шезлонгами. Также на территории будут оборудованы специальные помещения для переодевания и душевые комнаты.
При покупке просторной 2-комнатной квартиры за наличный расчет или в ипотеку мы дарим вам ремонт, выполненный с учетом современных трендов и высоких стандартов качества.
Светлые тона, надежные материалы, продуманный дизайн и функциональные решения - все это создаст неповторимую атмосферу комфорта и гармонии в вашем новом доме. Вам останется только расставить мебель и наслаждаться жизнью в полностью готовой к проживанию квартире.
Позвоните и узнайте условия покупки прямо сейчас!
16.12.2025
14 858 390 ₽
Продается 2-комн. квартира, площадью 63.16 м2 в монолитно-кирпичной новостройке. Возможен вариант покупки с использованием ипотечных средств, есть рассрочка, возможна покупка с использованием материнского капитала, есть военная ипотека.
Жилая площадь 26.01 м2, кухня 15.63 м2, предчистовая отделка.
Квартира располагается на 2 этаже 8-этажного дома в ЖК Резиденция морей.
Застройщик - ГК ССК, сдача дома - IV квартал 2026 года, высота потолков 2.85 м.
Дом оборудован пассажирским лифтом, закрытая территория.
Подземная парковка, парковка охраняется. Обеспечение безопасности: видеонаблюдение, пропускная система. Инфраструктура: детские площадки, спортивные площадки, супермаркет, рестораны, фитнес-центр, пункты бытового обслуживания, коммерческие объекты.
Жилой комплекс представляет собой закрытый периметр.
На территории подземного паркинга предусмотрены кладовые помещения, в которых будет удобно хранить авто-инвентарь, сезонные вещи и другие предметы быта, занимающие драгоценные метры квартиры.
Жители ЖК «Резиденция морей» смогут устраивать водные процедуры в любую погоду, даже когда на море шторм. Прямо во дворе комплекса расположатся два бассейна с расширенным временем пользования общей площадью 811 м2. В бассейне с разными уровнями глубины - от 0,5 до 1,5 м - смогут безопасно играть и учиться плавать самые маленькие жители.
Второй бассейн идеально подойдёт для длинных заплывов, спортивных тренировок и водного фитнеса, его глубина - 1,5 м. Вода в бассейнах всегда будет чистая за счет системы очистки и дезинфекции. Вокруг бассейнов будет благоустроена зона отдыха с шезлонгами. Также на территории будут оборудованы специальные помещения для переодевания и душевые комнаты.
При покупке просторной 2-комнатной квартиры за наличный расчет или в ипотеку мы дарим вам ремонт, выполненный с учетом современных трендов и высоких стандартов качества.
Светлые тона, надежные материалы, продуманный дизайн и функциональные решения - все это создаст неповторимую атмосферу комфорта и гармонии в вашем новом доме. Вам останется только расставить мебель и наслаждаться жизнью в полностью готовой к проживанию квартире.
Позвоните и узнайте условия покупки прямо сейчас!
11.12.2025
14 858 390 ₽
Продается 2-комн. квартира, площадью 63.13 м2 в монолитно-кирпичной новостройке. Возможен вариант покупки с использованием ипотечных средств, есть рассрочка, возможна покупка с использованием материнского капитала, есть военная ипотека.
Жилая площадь 26.01 м2, кухня 15.65 м2, предчистовая отделка.
Квартира располагается на 2 этаже 8-этажного дома в ЖК Резиденция морей.
Застройщик - ГК ССК, сдача дома - IV квартал 2026 года, высота потолков 2.85 м.
Дом оборудован пассажирским лифтом, закрытая территория.
Подземная парковка, парковка охраняется. Обеспечение безопасности: видеонаблюдение, пропускная система. Инфраструктура: детские площадки, спортивные площадки, супермаркет, рестораны, фитнес-центр, пункты бытового обслуживания, коммерческие объекты.
Жилой комплекс представляет собой закрытый периметр.
На территории подземного паркинга предусмотрены кладовые помещения, в которых будет удобно хранить авто-инвентарь, сезонные вещи и другие предметы быта, занимающие драгоценные метры квартиры.
Жители ЖК «Резиденция морей» смогут устраивать водные процедуры в любую погоду, даже когда на море шторм. Прямо во дворе комплекса расположатся два бассейна с расширенным временем пользования общей площадью 811 м2. В бассейне с разными уровнями глубины - от 0,5 до 1,5 м - смогут безопасно играть и учиться плавать самые маленькие жители.
Второй бассейн идеально подойдёт для длинных заплывов, спортивных тренировок и водного фитнеса, его глубина - 1,5 м. Вода в бассейнах всегда будет чистая за счет системы очистки и дезинфекции. Вокруг бассейнов будет благоустроена зона отдыха с шезлонгами. Также на территории будут оборудованы специальные помещения для переодевания и душевые комнаты.
При покупке просторной 2-комнатной квартиры за наличный расчет или в ипотеку мы дарим вам ремонт, выполненный с учетом современных трендов и высоких стандартов качества.
Светлые тона, надежные материалы, продуманный дизайн и функциональные решения - все это создаст неповторимую атмосферу комфорта и гармонии в вашем новом доме. Вам останется только расставить мебель и наслаждаться жизнью в полностью готовой к проживанию квартире.
Позвоните и узнайте условия покупки прямо сейчас!
14.11.2025
14 851 332 ₽
Продается 2-комн. квартира, площадью 63.19 м2 в монолитно-кирпичной новостройке. Возможен вариант покупки с использованием ипотечных средств, есть рассрочка, возможна покупка с использованием материнского капитала, есть военная ипотека.
Жилая площадь 26.01 м2, кухня 15.65 м2, предчистовая отделка.
Квартира располагается на 4 этаже 8-этажного дома в ЖК Резиденция морей.
Застройщик - ГК ССК, сдача дома - IV квартал 2026 года, высота потолков 2.85 м.
Дом оборудован пассажирским лифтом, закрытая территория.
Подземная парковка, парковка охраняется. Обеспечение безопасности: видеонаблюдение, пропускная система. Инфраструктура: детские площадки, спортивные площадки, супермаркет, рестораны, фитнес-центр, пункты бытового обслуживания, коммерческие объекты.
Жилой комплекс представляет собой закрытый периметр.
На территории подземного паркинга предусмотрены кладовые помещения, в которых будет удобно хранить авто-инвентарь, сезонные вещи и другие предметы быта, занимающие драгоценные метры квартиры.
Жители ЖК «Резиденция морей» смогут устраивать водные процедуры в любую погоду, даже когда на море шторм. Прямо во дворе комплекса расположатся два бассейна с расширенным временем пользования общей площадью 811 м2. В бассейне с разными уровнями глубины - от 0,5 до 1,5 м - смогут безопасно играть и учиться плавать самые маленькие жители.
Второй бассейн идеально подойдёт для длинных заплывов, спортивных тренировок и водного фитнеса, его глубина - 1,5 м. Вода в бассейнах всегда будет чистая за счет системы очистки и дезинфекции. Вокруг бассейнов будет благоустроена зона отдыха с шезлонгами. Также на территории будут оборудованы специальные помещения для переодевания и душевые комнаты.
При покупке просторной 2-комнатной квартиры за наличный расчет или в ипотеку мы дарим вам ремонт, выполненный с учетом современных трендов и высоких стандартов качества.
Светлые тона, надежные материалы, продуманный дизайн и функциональные решения - все это создаст неповторимую атмосферу комфорта и гармонии в вашем новом доме. Вам останется только расставить мебель и наслаждаться жизнью в полностью готовой к проживанию квартире.
Позвоните и узнайте условия покупки прямо сейчас!
14.11.2025
14 596 890 ₽
Продается 2-комн. квартира, площадью 63.19 м2 в монолитно-кирпичной новостройке. Возможен вариант покупки с использованием ипотечных средств, есть рассрочка, возможна покупка с использованием материнского капитала, есть военная ипотека.
Жилая площадь 26.01 м2, кухня 15.65 м2, предчистовая отделка.
Квартира располагается на 2 этаже 8-этажного дома в ЖК Резиденция морей.
Застройщик - ГК ССК, сдача дома - IV квартал 2026 года, высота потолков 2.85 м.
Дом оборудован пассажирским лифтом, закрытая территория.
Подземная парковка, парковка охраняется. Обеспечение безопасности: видеонаблюдение, пропускная система. Инфраструктура: детские площадки, спортивные площадки, супермаркет, рестораны, фитнес-центр, пункты бытового обслуживания, коммерческие объекты.
Жилой комплекс представляет собой закрытый периметр.
На территории подземного паркинга предусмотрены кладовые помещения, в которых будет удобно хранить авто-инвентарь, сезонные вещи и другие предметы быта, занимающие драгоценные метры квартиры.
Жители ЖК «Резиденция морей» смогут устраивать водные процедуры в любую погоду, даже когда на море шторм. Прямо во дворе комплекса расположатся два бассейна с расширенным временем пользования общей площадью 811 м2. В бассейне с разными уровнями глубины - от 0,5 до 1,5 м - смогут безопасно играть и учиться плавать самые маленькие жители.
Второй бассейн идеально подойдёт для длинных заплывов, спортивных тренировок и водного фитнеса, его глубина - 1,5 м. Вода в бассейнах всегда будет чистая за счет системы очистки и дезинфекции. Вокруг бассейнов будет благоустроена зона отдыха с шезлонгами. Также на территории будут оборудованы специальные помещения для переодевания и душевые комнаты.
При покупке просторной 2-комнатной квартиры за наличный расчет или в ипотеку мы дарим вам ремонт, выполненный с учетом современных трендов и высоких стандартов качества.
Светлые тона, надежные материалы, продуманный дизайн и функциональные решения - все это создаст неповторимую атмосферу комфорта и гармонии в вашем новом доме. Вам останется только расставить мебель и наслаждаться жизнью в полностью готовой к проживанию квартире.
Позвоните и узнайте условия покупки прямо сейчас!
14.11.2025
14 596 890 ₽
Продается 2-комн. квартира, площадью 63.19 м2 в монолитно-кирпичной новостройке. Возможен вариант покупки с использованием ипотечных средств, есть рассрочка, возможна покупка с использованием материнского капитала, есть военная ипотека.
Жилая площадь 26.01 м2, кухня 15.65 м2, предчистовая отделка.
Квартира располагается на 2 этаже 8-этажного дома в ЖК Резиденция морей.
Застройщик - ГК ССК, сдача дома - IV квартал 2026 года, высота потолков 2.85 м.
Дом оборудован пассажирским лифтом, закрытая территория.
Подземная парковка, парковка охраняется. Обеспечение безопасности: видеонаблюдение, пропускная система. Инфраструктура: детские площадки, спортивные площадки, супермаркет, рестораны, фитнес-центр, пункты бытового обслуживания, коммерческие объекты.
Жилой комплекс представляет собой закрытый периметр.
На территории подземного паркинга предусмотрены кладовые помещения, в которых будет удобно хранить авто-инвентарь, сезонные вещи и другие предметы быта, занимающие драгоценные метры квартиры.
Жители ЖК «Резиденция морей» смогут устраивать водные процедуры в любую погоду, даже когда на море шторм. Прямо во дворе комплекса расположатся два бассейна с расширенным временем пользования общей площадью 811 м2. В бассейне с разными уровнями глубины - от 0,5 до 1,5 м - смогут безопасно играть и учиться плавать самые маленькие жители.
Второй бассейн идеально подойдёт для длинных заплывов, спортивных тренировок и водного фитнеса, его глубина - 1,5 м. Вода в бассейнах всегда будет чистая за счет системы очистки и дезинфекции. Вокруг бассейнов будет благоустроена зона отдыха с шезлонгами. Также на территории будут оборудованы специальные помещения для переодевания и душевые комнаты.
При покупке просторной 2-комнатной квартиры за наличный расчет или в ипотеку мы дарим вам ремонт, выполненный с учетом современных трендов и высоких стандартов качества.
Светлые тона, надежные материалы, продуманный дизайн и функциональные решения - все это создаст неповторимую атмосферу комфорта и гармонии в вашем новом доме. Вам останется только расставить мебель и наслаждаться жизнью в полностью готовой к проживанию квартире.
Позвоните и узнайте условия покупки прямо сейчас!
14.11.2025
14 596 890 ₽
Продается 2-комн. квартира, площадью 63.17 м2 в монолитно-кирпичной новостройке. Возможен вариант покупки с использованием ипотечных средств, есть рассрочка, возможна покупка с использованием материнского капитала, есть военная ипотека.
Жилая площадь 26.01 м2, кухня 15.63 м2, предчистовая отделка.
Квартира располагается на 4 этаже 8-этажного дома в ЖК Резиденция морей.
Застройщик - ГК ССК, сдача дома - IV квартал 2026 года, высота потолков 2.85 м.
Дом оборудован пассажирским лифтом, закрытая территория.
Подземная парковка, парковка охраняется. Обеспечение безопасности: видеонаблюдение, пропускная система. Инфраструктура: детские площадки, спортивные площадки, супермаркет, рестораны, фитнес-центр, пункты бытового обслуживания, коммерческие объекты.
Жилой комплекс представляет собой закрытый периметр.
На территории подземного паркинга предусмотрены кладовые помещения, в которых будет удобно хранить авто-инвентарь, сезонные вещи и другие предметы быта, занимающие драгоценные метры квартиры.
Жители ЖК «Резиденция морей» смогут устраивать водные процедуры в любую погоду, даже когда на море шторм. Прямо во дворе комплекса расположатся два бассейна с расширенным временем пользования общей площадью 811 м2. В бассейне с разными уровнями глубины - от 0,5 до 1,5 м - смогут безопасно играть и учиться плавать самые маленькие жители.
Второй бассейн идеально подойдёт для длинных заплывов, спортивных тренировок и водного фитнеса, его глубина - 1,5 м. Вода в бассейнах всегда будет чистая за счет системы очистки и дезинфекции. Вокруг бассейнов будет благоустроена зона отдыха с шезлонгами. Также на территории будут оборудованы специальные помещения для переодевания и душевые комнаты.
При покупке просторной 2-комнатной квартиры за наличный расчет или в ипотеку мы дарим вам ремонт, выполненный с учетом современных трендов и высоких стандартов качества.
Светлые тона, надежные материалы, продуманный дизайн и функциональные решения - все это создаст неповторимую атмосферу комфорта и гармонии в вашем новом доме. Вам останется только расставить мебель и наслаждаться жизнью в полностью готовой к проживанию квартире.
Позвоните и узнайте условия покупки прямо сейчас!
14.11.2025
14 592 270 ₽
Продается 2-комн. квартира, площадью 63.17 м2 в монолитно-кирпичной новостройке. Возможен вариант покупки с использованием ипотечных средств, есть рассрочка, возможна покупка с использованием материнского капитала, есть военная ипотека.
Жилая площадь 26.01 м2, кухня 15.63 м2, предчистовая отделка.
Квартира располагается на 4 этаже 8-этажного дома в ЖК Резиденция морей.
Застройщик - ГК ССК, сдача дома - IV квартал 2026 года, высота потолков 2.85 м.
Дом оборудован пассажирским лифтом, закрытая территория.
Подземная парковка, парковка охраняется. Обеспечение безопасности: видеонаблюдение, пропускная система. Инфраструктура: детские площадки, спортивные площадки, супермаркет, рестораны, фитнес-центр, пункты бытового обслуживания, коммерческие объекты.
Жилой комплекс представляет собой закрытый периметр.
На территории подземного паркинга предусмотрены кладовые помещения, в которых будет удобно хранить авто-инвентарь, сезонные вещи и другие предметы быта, занимающие драгоценные метры квартиры.
Жители ЖК «Резиденция морей» смогут устраивать водные процедуры в любую погоду, даже когда на море шторм. Прямо во дворе комплекса расположатся два бассейна с расширенным временем пользования общей площадью 811 м2. В бассейне с разными уровнями глубины - от 0,5 до 1,5 м - смогут безопасно играть и учиться плавать самые маленькие жители.
Второй бассейн идеально подойдёт для длинных заплывов, спортивных тренировок и водного фитнеса, его глубина - 1,5 м. Вода в бассейнах всегда будет чистая за счет системы очистки и дезинфекции. Вокруг бассейнов будет благоустроена зона отдыха с шезлонгами. Также на территории будут оборудованы специальные помещения для переодевания и душевые комнаты.
При покупке просторной 2-комнатной квартиры за наличный расчет или в ипотеку мы дарим вам ремонт, выполненный с учетом современных трендов и высоких стандартов качества.
Светлые тона, надежные материалы, продуманный дизайн и функциональные решения - все это создаст неповторимую атмосферу комфорта и гармонии в вашем новом доме. Вам останется только расставить мебель и наслаждаться жизнью в полностью готовой к проживанию квартире.
Позвоните и узнайте условия покупки прямо сейчас!
14.11.2025
14 592 270 ₽
Продается 1-комн. квартира, площадью 41.54 м2 в монолитно-кирпичной новостройке. Возможен вариант покупки с использованием ипотечных средств, есть рассрочка, возможна покупка с использованием материнского капитала, есть военная ипотека.
Жилая площадь 12.72 м2, кухня 16.98 м2, предчистовая отделка, комнаты изолированные.
Квартира располагается на 5 этаже 8-этажного дома в ЖК Резиденция морей.
Застройщик - ГК ССК, сдача дома - IV квартал 2026 года, высота потолков 2.85 м.
Дом оборудован пассажирским лифтом, закрытая территория.
Подземная парковка, парковка охраняется. Обеспечение безопасности: видеонаблюдение, пропускная система. Инфраструктура: детские площадки, спортивные площадки, супермаркет, рестораны, фитнес-центр, пункты бытового обслуживания, коммерческие объекты.
Жилой комплекс представляет собой закрытый периметр.
На территории подземного паркинга предусмотрены кладовые помещения, в которых будет удобно хранить авто-инвентарь, сезонные вещи и другие предметы быта, занимающие драгоценные метры квартиры.
Жители ЖК «Резиденция морей» смогут устраивать водные процедуры в любую погоду, даже когда на море шторм. Прямо во дворе комплекса расположатся два бассейна с расширенным временем пользования общей площадью 811 м2. В бассейне с разными уровнями глубины - от 0,5 до 1,5 м - смогут безопасно играть и учиться плавать самые маленькие жители.
Второй бассейн идеально подойдёт для длинных заплывов, спортивных тренировок и водного фитнеса, его глубина - 1,5 м. Вода в бассейнах всегда будет чистая за счет системы очистки и дезинфекции. Вокруг бассейнов будет благоустроена зона отдыха с шезлонгами. Также на территории будут оборудованы специальные помещения для переодевания и душевые комнаты.
При покупке просторной 2-комнатной квартиры за наличный расчет или в ипотеку мы дарим вам ремонт, выполненный с учетом современных трендов и высоких стандартов качества.
Светлые тона, надежные материалы, продуманный дизайн и функциональные решения - все это создаст неповторимую атмосферу комфорта и гармонии в вашем новом доме. Вам останется только расставить мебель и наслаждаться жизнью в полностью готовой к проживанию квартире.
Позвоните и узнайте условия покупки прямо сейчас!
14.11.2025
10 478 465 ₽
Продается 2-комн. квартира, площадью 51.11 м2 в кирпичной новостройке. Возможен вариант покупки с использованием ипотечных средств, есть рассрочка, возможна покупка с использованием материнского капитала.
Жилая площадь 21.49 м2, кухня 16.1 м2, предчистовая отделка.
Квартира располагается на 3 этаже 4-этажного дома в ЖК Усадьба Гостагаевская.
Застройщик - ГК ССК, сдача дома - IV квартал 2026 года, высота потолков 2.7 м.
Дом оборудован пассажирским лифтом, закрытая территория.
Парковка автомобилей - наземная. Обеспечение безопасности: видеонаблюдение. Инфраструктура: школа, детский сад, детские площадки, спортивные площадки, места для отдыха.
На территории комплекса будут находиться собственный детский сад на 300 мест, школа на 750 учеников дом культуры и библиотека для мероприятий и досуга. Коммерческие площади, включая магазины и кафе, обеспечат жителей всеми необходимыми услугами.
Комплекс предложит спортивные площадки, беговые дорожки, места для занятий йогой и фитнесом на свежем воздухе. Приятные скверы и аллеи будут идеальны для семейных прогулок и досуга.
Территория комплекса будет благоустроена с акцентом на экологию и комфорт. Планируется озеленение с использованием местных растений, что улучшит внешний вид и создаст приятную атмосферу. Современные технологии, такие как динамическое освещение и зоны для зарядки гаджетов, сделают жизнь удобной и комфортной.
Комплекс удобно расположен вблизи основных транспортных артерий, что обеспечивает быструю связь с Анапой и другими важными точками региона Краснодар, Новороссийск, Крым. Железнодорожная станция находится всего в 2 минутах на машине, а аэропорт в 6 километрах
При покупке 2- или 3-комнатной квартиры в жилом комплексе «Усадьба Гостагаевская» за наличный расчёт вы получаете скидку до 1 325 000 рублей.
«Усадьба Гостагаевская» - масштабный проект на 27 гектарах, созданный как современная усадьба. Здесь всё продумано до детали: поквартальная застройка, единый архитектурный стиль и продуманная планировка пространства, в которой каждый дом - не просто жильё, а часть гармоничного мира, где ценятся приватность и покой.
На территории - не просто ландшафтный дизайн, а настоящий Дикий сад: живая, дышащая природа, где тишина становится частью повседневности. А подогреваемый бассейн - не сезонная роскошь, а ваш личный уголок уюта, доступный даже в ноябре.
Аккредитованные банки: Абсолют Банк, Совкомбанк, Альфа-Банк, Банк ДОМ. РФ, Промсвязьбанк, Банк ВТБ, Т-Банк, Россельхозбанк, МКБ.
Позвоните и узнайте условия покупки прямо сейчас!
06.12.2025
10 477 550 ₽
Продаются 2 комн. апартаменты, площадью 49.4 м2 в монолитной новостройке. Возможен вариант покупки с использованием ипотечных средств, есть рассрочка, возможна покупка с использованием материнского капитала, есть военная ипотека.
Жилая площадь 19.9 м2, кухня 18.8 м2, чистовая отделка с мебелью.
Квартира располагается на 2 этаже 9-этажного дома в ЖК Гостиничный комплекс Мореград.
Застройщик - ГК ССК, сдача дома - I квартал 2027 года.
Дом оборудован пассажирским лифтом, закрытая территория.
Подземная парковка, парковка охраняется. Обеспечение безопасности: видеонаблюдение, круглосуточная охрана, противопожарная система. Инфраструктура: детские площадки, спортивные площадки, места для отдыха, супермаркет, рестораны, пункты бытового обслуживания, коммерческие объекты.
Расположенный в живописном месте города-курорта Анапы, гостиничный комплекс «Мореград» предлагает идеальное сочетание уютной обстановки и удобного расположения. Всего в трех минутах ходьбы от тенистых зеленых аллей Пионерского проспекта, он станет идеальным выбором для отдыхающих, желающих насладиться близостью к морю.
Песчаные пляжи Черного моря, всего в 7 минутах ходьбы от комплекса, приглашают насладиться теплым солнцем и ласковыми волнами.
«Мореград» - уникальный современный гостиничный комплекс, где гостям будут доступны все удобства отельного сервиса. Коммерческие блоки и различные виды отдыха - рестораны, бары, магазины, лаунж-зоны, оборудованные спортивные и детские площадки и многое другое сделают отдых гостей незабываемым.
Набережная, море и комфорт в каждом метре - гостиничный комплекс «Мореград» в живописном городе-курорте Анапа представляет специальное предложение для тех, кто ценит выгодные решения. При оплате наличными вы получаете выгоду до 1 180 000 рублей, что делает приобретение недвижимости здесь особенно привлекательным. Расположенный всего в трёх минутах ходьбы от тенистых зелёных аллей Пионерского проспекта, комплекс сочетает уютную атмосферу и удобное расположение, идеально подходя для отдыха и постоянного проживания. Наслаждайтесь близостью к морю, высоким уровнем комфорта и перспективной инвестицией в будущее уже сегодня.
Позвоните и узнайте условия покупки прямо сейчас!
06.12.2025
13 832 000 ₽
Продаются 2 комн. апартаменты, площадью 49.4 м2 в монолитной новостройке. Возможен вариант покупки с использованием ипотечных средств, есть рассрочка, возможна покупка с использованием материнского капитала, есть военная ипотека.
Жилая площадь 19.9 м2, кухня 18.8 м2, чистовая отделка с мебелью.
Квартира располагается на 2 этаже 9-этажного дома в ЖК Гостиничный комплекс Мореград.
Застройщик - ГК ССК, сдача дома - I квартал 2027 года.
Дом оборудован пассажирским лифтом, закрытая территория.
Подземная парковка, парковка охраняется. Обеспечение безопасности: видеонаблюдение, круглосуточная охрана, противопожарная система. Инфраструктура: детские площадки, спортивные площадки, места для отдыха, супермаркет, рестораны, пункты бытового обслуживания, коммерческие объекты.
Расположенный в живописном месте города-курорта Анапы, гостиничный комплекс «Мореград» предлагает идеальное сочетание уютной обстановки и удобного расположения. Всего в трех минутах ходьбы от тенистых зеленых аллей Пионерского проспекта, он станет идеальным выбором для отдыхающих, желающих насладиться близостью к морю.
Песчаные пляжи Черного моря, всего в 7 минутах ходьбы от комплекса, приглашают насладиться теплым солнцем и ласковыми волнами.
«Мореград» - уникальный современный гостиничный комплекс, где гостям будут доступны все удобства отельного сервиса. Коммерческие блоки и различные виды отдыха - рестораны, бары, магазины, лаунж-зоны, оборудованные спортивные и детские площадки и многое другое сделают отдых гостей незабываемым.
Набережная, море и комфорт в каждом метре - гостиничный комплекс «Мореград» в живописном городе-курорте Анапа представляет специальное предложение для тех, кто ценит выгодные решения. При оплате наличными вы получаете выгоду до 1 180 000 рублей, что делает приобретение недвижимости здесь особенно привлекательным. Расположенный всего в трёх минутах ходьбы от тенистых зелёных аллей Пионерского проспекта, комплекс сочетает уютную атмосферу и удобное расположение, идеально подходя для отдыха и постоянного проживания. Наслаждайтесь близостью к морю, высоким уровнем комфорта и перспективной инвестицией в будущее уже сегодня.
Позвоните и узнайте условия покупки прямо сейчас!
06.12.2025
13 832 000 ₽
Продаются 2 комн. апартаменты, площадью 45.6 м2 в монолитной новостройке. Возможен вариант покупки с использованием ипотечных средств, есть рассрочка, возможна покупка с использованием материнского капитала, есть военная ипотека.
Жилая площадь 19.9 м2, кухня 12.7 м2, чистовая отделка с мебелью.
Квартира располагается на 7 этаже 9-этажного дома в ЖК Гостиничный комплекс Мореград.
Застройщик - ГК ССК, сдача дома - I квартал 2027 года.
Дом оборудован пассажирским лифтом, закрытая территория.
Подземная парковка, парковка охраняется. Обеспечение безопасности: видеонаблюдение, круглосуточная охрана, противопожарная система. Инфраструктура: детские площадки, спортивные площадки, места для отдыха, супермаркет, рестораны, пункты бытового обслуживания, коммерческие объекты.
Расположенный в живописном месте города-курорта Анапы, гостиничный комплекс «Мореград» предлагает идеальное сочетание уютной обстановки и удобного расположения. Всего в трех минутах ходьбы от тенистых зеленых аллей Пионерского проспекта, он станет идеальным выбором для отдыхающих, желающих насладиться близостью к морю.
Песчаные пляжи Черного моря, всего в 7 минутах ходьбы от комплекса, приглашают насладиться теплым солнцем и ласковыми волнами.
«Мореград» - уникальный современный гостиничный комплекс, где гостям будут доступны все удобства отельного сервиса. Коммерческие блоки и различные виды отдыха - рестораны, бары, магазины, лаунж-зоны, оборудованные спортивные и детские площадки и многое другое сделают отдых гостей незабываемым.
Набережная, море и комфорт в каждом метре - гостиничный комплекс «Мореград» в живописном городе-курорте Анапа представляет специальное предложение для тех, кто ценит выгодные решения. При оплате наличными вы получаете выгоду до 1 180 000 рублей, что делает приобретение недвижимости здесь особенно привлекательным. Расположенный всего в трёх минутах ходьбы от тенистых зелёных аллей Пионерского проспекта, комплекс сочетает уютную атмосферу и удобное расположение, идеально подходя для отдыха и постоянного проживания. Наслаждайтесь близостью к морю, высоким уровнем комфорта и перспективной инвестицией в будущее уже сегодня.
Позвоните и узнайте условия покупки прямо сейчас!
14.01.2026
13 680 000 ₽
Продаются 2 комн. апартаменты, площадью 45.7 м2 в монолитной новостройке. Возможен вариант покупки с использованием ипотечных средств, есть рассрочка, возможна покупка с использованием материнского капитала, есть военная ипотека.
Жилая площадь 19.9 м2, кухня 12.7 м2, чистовая отделка с мебелью.
Квартира располагается на 2 этаже 9-этажного дома в ЖК Гостиничный комплекс Мореград.
Застройщик - ГК ССК, сдача дома - I квартал 2027 года.
Дом оборудован пассажирским лифтом, закрытая территория.
Подземная парковка, парковка охраняется. Обеспечение безопасности: видеонаблюдение, круглосуточная охрана, противопожарная система. Инфраструктура: детские площадки, спортивные площадки, места для отдыха, супермаркет, рестораны, пункты бытового обслуживания, коммерческие объекты.
Расположенный в живописном месте города-курорта Анапы, гостиничный комплекс «Мореград» предлагает идеальное сочетание уютной обстановки и удобного расположения. Всего в трех минутах ходьбы от тенистых зеленых аллей Пионерского проспекта, он станет идеальным выбором для отдыхающих, желающих насладиться близостью к морю.
Песчаные пляжи Черного моря, всего в 7 минутах ходьбы от комплекса, приглашают насладиться теплым солнцем и ласковыми волнами.
«Мореград» - уникальный современный гостиничный комплекс, где гостям будут доступны все удобства отельного сервиса. Коммерческие блоки и различные виды отдыха - рестораны, бары, магазины, лаунж-зоны, оборудованные спортивные и детские площадки и многое другое сделают отдых гостей незабываемым.
Набережная, море и комфорт в каждом метре - гостиничный комплекс «Мореград» в живописном городе-курорте Анапа представляет специальное предложение для тех, кто ценит выгодные решения. При оплате наличными вы получаете выгоду до 1 180 000 рублей, что делает приобретение недвижимости здесь особенно привлекательным. Расположенный всего в трёх минутах ходьбы от тенистых зелёных аллей Пионерского проспекта, комплекс сочетает уютную атмосферу и удобное расположение, идеально подходя для отдыха и постоянного проживания. Наслаждайтесь близостью к морю, высоким уровнем комфорта и перспективной инвестицией в будущее уже сегодня.
Позвоните и узнайте условия покупки прямо сейчас!
06.12.2025
13 710 000 ₽
Продаются 2 комн. апартаменты, площадью 45.7 м2 в монолитной новостройке. Возможен вариант покупки с использованием ипотечных средств, есть рассрочка, возможна покупка с использованием материнского капитала, есть военная ипотека.
Жилая площадь 19.9 м2, кухня 12.7 м2, чистовая отделка с мебелью.
Квартира располагается на 2 этаже 9-этажного дома в ЖК Гостиничный комплекс Мореград.
Застройщик - ГК ССК, сдача дома - I квартал 2027 года.
Дом оборудован пассажирским лифтом, закрытая территория.
Подземная парковка, парковка охраняется. Обеспечение безопасности: видеонаблюдение, круглосуточная охрана, противопожарная система. Инфраструктура: детские площадки, спортивные площадки, места для отдыха, супермаркет, рестораны, пункты бытового обслуживания, коммерческие объекты.
Расположенный в живописном месте города-курорта Анапы, гостиничный комплекс «Мореград» предлагает идеальное сочетание уютной обстановки и удобного расположения. Всего в трех минутах ходьбы от тенистых зеленых аллей Пионерского проспекта, он станет идеальным выбором для отдыхающих, желающих насладиться близостью к морю.
Песчаные пляжи Черного моря, всего в 7 минутах ходьбы от комплекса, приглашают насладиться теплым солнцем и ласковыми волнами.
«Мореград» - уникальный современный гостиничный комплекс, где гостям будут доступны все удобства отельного сервиса. Коммерческие блоки и различные виды отдыха - рестораны, бары, магазины, лаунж-зоны, оборудованные спортивные и детские площадки и многое другое сделают отдых гостей незабываемым.
Набережная, море и комфорт в каждом метре - гостиничный комплекс «Мореград» в живописном городе-курорте Анапа представляет специальное предложение для тех, кто ценит выгодные решения. При оплате наличными вы получаете выгоду до 1 180 000 рублей, что делает приобретение недвижимости здесь особенно привлекательным. Расположенный всего в трёх минутах ходьбы от тенистых зелёных аллей Пионерского проспекта, комплекс сочетает уютную атмосферу и удобное расположение, идеально подходя для отдыха и постоянного проживания. Наслаждайтесь близостью к морю, высоким уровнем комфорта и перспективной инвестицией в будущее уже сегодня.
Позвоните и узнайте условия покупки прямо сейчас!
06.12.2025
13 710 000 ₽




















