Объявление о квартирах в Некрасовке - Страница 3
- Некрасовка »
- Недвижимость
- » Квартиры в Некрасовке
Продается квартира-студия в 6 секции ЖК Купавино , на высоком этаже с окнами на пруд! Лучший и самый дорогой, качественный ремонт в данном доме! Полная стоимость в дкп, дизайнерская отделка, полностью меблирована и укомплектована, всё для жизни есть вплоть до приборов и штор, заходи и живи! ЖК Купавино расположен в городе Старая Купавна (19 км от МКАД по Горьковскому шоссе). Территория комплекса огорожена и круглосуточно охраняется. Общая площадь застройки составляет 11000 кв. м. Название жилого комплекса выбрано не случайно. В двух шагах от дома находится живописное Купавинское озеро, излюбленное место отдыха местных жителей. Жилой комплекс расположен в очень живописном месте, на берегу Купавинского озера, береговая линия которого разделена на несколько частей: Пляжная зона, оборудованная навесами и площадками для активных игр. Прогулочная зона вдоль берега озера представляет собой зеленую аллею со скамейками и беседками. В шаговой доступности находятся все необходимые городские объекты социально-бытовой инфраструктуры. Возможен незначительный торг. Ипотека. Звоните, пишите. AFY-317736161
11.03.2026
5 400 000 ₽
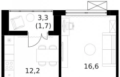
Продаётся 2-х комнатная уютная квартира с новым ремонтом в районе с хорошей инфраструктурой и транспортной доступностью
Общие сведения
Продаётся уютная двухкомнатная квартира на 15 этаже панельного дома, построенного в 2016 году в ЖК Немчиновка.
Транспортная доступность
Хорошая транспортная доступность:
20 минут до метро Молодежная на маршрутке 597
10 минут пешком до ж/д станции Ромашково
20 минут пешком до ж/д станции Немчиновка
Быстрый доступ до района Москва-сити по платной дороге (15 минут)
Комфорт и удобство
Изолированные комнаты и раздельный санузел
Панорамный вид из окон
Кондиционер на жаркие дни
Встроенный фильтр и измельчитель отходов на кухне
Новая электрика и сантехника (замена в 2024 году)
Мусоропровод, пассажирский и грузовой лифты
Открытая парковка во дворе
Инфраструктура
Спортивные и детские площадки на территории ЖК
Лесной массив для прогулок
Наличие лицея и магазинов (Пятерочка, Дикси, Вкусвилл)
В шаговой доступности ТЦ Вегас и спортклуб
Правовая информация
Квартира в собственности более 5 лет, один взрослый собственник, никто не прописан. Документы готовы к продаже, возможна ипотека (семейная, сельская, для учителей, IT ипотека, коммерческая) и с использованием материнского капитала. Оперативный показ и выход на сделку.
10.04.2026
13 687 383 ₽
Продается 3-комн. квартира, площадью 63.2 кв.м.
Жилая площадь 37.9 м2, кухня 8.6 кв. м, ремонта нет, окна выходят во двор и на улицу.
Квартира располагается на 7 этаже 14-этажного панельного дома в ЖК 1-й Ленинградский.
Дом оборудован пассажирским лифтом.
10.04.2026
21 791 360 ₽
Велтон Парк: 250м2 дизайнерского ремонта с панорамным светом и умным домом.
В тихом престижном районе Москвы, среди зелени предлагается квартира, где не нужно ничего доделывать, переделывать или додумывать. Всё уже работает.
Пространство для семьи и для себя.
Общая гостиная 60 м2, мастер-спальня с двумя гардеробными и своим санузлом, отдельный кабинет и ещё три спальни. Потолки 3,1 м. Окна на три стороны — солнце с утра до вечера. Окна - дубовые с триплексом внутри и коленным стеклом снаружи - для тишины и безопасности. Вы не столкнётесь локтями, но всегда будете рядом.
Умный дом, который реально полезен:
итальянская система Vimar (не ушли из России) - управление светом, шторами, тёплым полом, кондиционерами и музыкой с телефона.
Встроенная система «Sonos» и акустика «Cary Audio» с плоскими колонками — музыка там, где вы хотите, плюс акустика в потолке в санузлах.
Климат без сквозняков: кондиционеры Daikin с притоком уличного воздуха в каждой комнате + конвекторы в полу. Пожарная сигнализация «Болид» - безопасность на уровне небольшого отеля.
Мелочи, которые вы оцените сразу:
У вас три машиноместа в тёплом паркинге — прямо у лифта;
Автономный бойлер в мастер-спальне. Горячая вода есть всегда, даже летом;
Отдельный постирочный блок и несколько гардеробных — хлам не прячете, вещи висят;
У всех спален есть выход на балкон;
Бытовая техника Miele под ключ: винный шкаф, духовка, кофемашина, два холодильника, посудомойка, варочная плита.
Подъезд, куда не стыдно пригласить гостей: на этаже всего 4 квартиры. Латунь, итальянский мрамор, свет. Никакого «советского шика».
Жизнь без машины перед окном.
Двор закрытый, машин нет. Детские и спортивные площадки, прогулочные аллеи. Рядом — «Хорошкола» (топ Forbes 2026) и школа №1517 с профильными классами: от IT и инженерного до медицинского и лингвистического.
Кафе, рестораны, фитнес, торговый центр Патриот, кинотеатр, Азбука Вкуса - в пешей доступности.
Природа = выход из подъезда: Карамышевская набережная - утром пробежка, вечером кофе у воды. 5 минут до Серебряного бора: сосны, пляжи, воздух.
Транспорт для тех, кто ценит время: прямой выезд на проспект Маршала Жукова. ТТК - 7 минут, Садовое - 15. Метро «Народное Ополчение» - 12 минут пешком.
Видео и дополнительные фото- по запросу.
10.04.2026
140 000 000 ₽
Продается 2-комн. квартира, площадью 59.4 м2.
Жилая площадь 29.7 кв. м, кухня 12.2 кв. м, ремонта нет, окна выходят во двор и на улицу.
Квартира располагается на 13 этаже 13-этажного панельного дома в ЖК 1-й Ленинградский.
Дом оборудован пассажирским лифтом.
09.04.2026
18 353 115 ₽
Продается 2-комн. квартира, площадью 59.6 м2.
Жилая площадь 29.7 м2, кухня 12.2 кв. м, ремонта нет, окна выходят во двор и на улицу.
Квартира располагается на 7 этаже 14-этажного панельного дома в ЖК 1-й Ленинградский.
Дом оборудован пассажирским лифтом.
09.04.2026
17 779 634 ₽
Просторная 5-комнатная квартира с дизайнерским ремонтом и высокими потолками. Отличный вариант для семьи, которая ценит комфорт и статусное расположение в престижном районе Москвы. Возможна ипотека.
Расположение и транспорт:
8 минут пешком от м. «Мичуринский проспект».
Район: Проспект Вернадского — один из самых зеленых и престижных районов Москвы.
Дом: 13-этажный (квартира на последних этажах — 12 и 13).
О квартире:
Формат: Двухуровневая квартира.
Площадь: 167 м2.
Планировка: 5 изолированных комнат — достаточно пространства для большой семьи, кабинета и гостевой зоны.
Высота потолков: 3.2 метра — создает ощущение воздуха и свободы.
Санузлы: 1 раздельный + 2 совмещенных — максимальное удобство для всех членов семьи.
Остекление: 2 лоджии, окна выходят на две стороны (во двор и на улицу).
Ремонт и состояние:
Качественный современный ремонт по авторскому проекту — можно въезжать и жить, не тратя время и деньги на отделку.
Покрытие полов: паркет и плитка.
Бонус: по договоренности можем оставить мебель — переезжайте с комфортом.
Условия продажи:
Цена: 73 480 000 руб. (прямая продажа от собственника).
Возможна ипотека — включая семейную (уточняйте условия).
Обременения: нет, чистая продажа.
Для просмотра:
Свяжитесь с нами, чтобы увидеть квартиру своими глазами и почувствовать атмосферу этого пространства. Готовы ответить на любые вопросы.
09.04.2026
73 480 000 ₽
Продается 2-комн. квартира, площадью 56.4 кв. м.
Жилая площадь 35 кв. м, кухня 15 кв. м, внутри евро ремонт, комнаты изолированные, интернет. Раздельных санузлов - 1, совмещенных санузлов - нет.
На полу ламинат, балконов - нет, лоджий - 1, окна выходят во двор и на улицу.
Квартира располагается на 10 этаже 18-этажного монолитно-кирпичного дома в ЖК Самолет 2018 года постройки, высота потолков 2.7 м. Частично мебелерована. Вся встроенная мебель остается (шкафы, кухня).
Дом оборудован грузовым и пассажирским лифтом, есть мусоропровод, закрытая территория.
Парковка автомобилей - наземная, есть гостевые парковочные места, парковка охраняемая. Обеспечение безопасности: консьерж. Инфраструктура: школа, детский сад, поликлиника, детские площадки, спортивные площадки, места для отдыха, супермаркет.
2 собственника, срок владения более 5 лет. Прямая свободная продажа.
10.04.2026
11 500 000 ₽
Продается 1-комн. квартира, площадью 46 кв.м.
Жилая площадь 20 кв.м, кухня 10 кв.м, лоджий - 1.
Квартира располагается на 6 этаже 25-этажного кирпичного дома 2013 года постройки.
09.04.2026
11 000 000 ₽
Продается 3-комн. квартира, площадью 84.3 кв.м.
Жилая площадь 39.3 м2, ремонта нет, окна выходят на улицу.
Квартира располагается на 5 этаже 17-этажного монолитного дома.
Дом оборудован пассажирским лифтом, есть мусоропровод, закрытая территория, парковка охраняется.
08.04.2026
51 652 296 ₽
Продается уютная квартира в ЖК "Миракс Парк"
Просторная и светлая квартира площадью 146 кв. м, расположенная на 9 этаже 11-этажного монолитного дома премиум-класса.
Описание квартиры:
В квартире выполнен качественный ремонт в классическом стиле.
Двухуровневая планировка:
Верхний этаж: просторная кухня-гостиная с лоджией, изолированная спальня, санузел и гардеробная.
Нижний этаж: 2 изолированные спальни (одна с лоджией, другая с панорамными окнами) , санузел и прачечная.
Инфраструктура:
Под домом имеется большая подземная парковка, в собственности 2 парковочных места (продаются за отдельную плату) .
Удобный выезд на проспект Вернадского и Ленинский проспект.
До метро Тропарево всего 10 минут спокойной ходьбы.
Жилой комплекс "Миракс Парк" предлагает закрытую и огороженную территорию с концепцией "двор без машин" на площади 16 гектаров, собственным озером и зоопарком. Прямо через дорогу расположен Тропарево-Никулинский лесопарк.
Территория охраняется круглосуточно и оборудована видеонаблюдением. На территории работают фитнес-центры, рестораны, кафе, детские сады, аптека, магазины и салоны красоты. В пешей доступности находятся детский сад, школа, лицей РАНХиГС, детская поликлиника и широкий выбор высших учебных заведений.
Свободная продажа, один взрослый собственник, полная стоимость в договоре.
Не упустите возможность стать владельцем роскошной квартиры в одном из лучших комплексов города!
Для получения дополнительной информации и записи на просмотр, пожалуйста, звоните по телефону.
08.04.2026
95 000 000 ₽
Продаю светлую, очень уютную, теплую, с продуманной планировкой квартиру в новых Химках. В квартире выполнен качественный ремонт, остается вся мебель и техника. В квартире большая застекленная лоджия более 5 метров, много шкафов для хранения, кухня объединена с гостиной, две изолированные спальни, приятный вид из окон, прекрасное местоположение дома, в шаговой доступности ТЦ "Мега", остановки общественного транспорта, магазины первой необходимости, кондитерские, салоны красоты. 1 взрослый собственник, с 2011 года в собственности. Быстрый выход на сделку.
07.04.2026
15 400 000 ₽
Продается 2-комн. квартира, площадью 59 м2 м. Технопарк. Возможен вариант покупки с использованием ипотечных средств.
Жилая площадь 41.3 м2, кухня 8.85 кв. м, ремонта нет, комнаты изолированные, окна выходят во двор.
Квартира располагается на 11 этаже 24-этажного монолитно-кирпичного дома, высота потолков 3.15 м.
07.04.2026
35 721 829 ₽
Продается 2-комн. квартира, площадью 65.3 м2 в монолитно-кирпичной новостройке в 6 мин. пешком от м. Стрешнево, район города - Щукино. Возможен вариант покупки с использованием ипотечных средств, есть рассрочка, возможна покупка с использованием материнского капитала, есть военная ипотека.
Жилая площадь 28.9 м2, кухня 17.4 м2. Площадь комнат: 12.8/16.1 м2, предчистовая отделка. Раздельных санузлов - 2.
Квартира располагается на 25 этаже 34-этажного дома в ЖК МОМЕНТС.
Застройщик - FORMA, сдача дома - III квартал 2027 года, высота потолков 2.87 м.
Дом оборудован пассажирским лифтом, закрытая территория.
Подземная парковка, парковка охраняется. Обеспечение безопасности: видеонаблюдение, круглосуточная охрана, консьерж, противопожарная система, пропускная система. Инфраструктура: школа, детский сад, поликлиника, детские площадки, спортивные площадки, места для отдыха, супермаркет, рестораны, пункты бытового обслуживания, коммерческие объекты.
Moments - это место единения города и природы, центр жизни, где зелень парка находится буквально на расстоянии вытянутой руки. Дом, который помогает обрести гармонию и баланс в жизни.
Moments расположился на северо-западе в одном и самых зеленых районов города рядом с парком Покровское-Стрешнево. Попасть в парк можно будет по благоустроенной тропе длиной 1250 метров. Богатая флора и фауна дополнят прогулку по этому экологическому освещенному променаду.
Жилой комплекс будет состоять из 8 корпусов высотой от 4 и до 47 этажей. Cтроительство разделено на три очереди, первая из которых, - корпус в 30 этажей с 330 квартирами - будет введена в эксплуатацию в 2025 году.
Архитектурный облик от одного из ведущих бюро KAMEN ARC'ITECTS. В отделке фасадов используются витражное остекление и композитные панели. Большинство квартир имеют вид на парк Покровское-Стрешнево.
Жилой комплекс выполнен с использованием монолитно-кирпичной технологии строительства. В комплексе 3 подъезда и максимальная этажность - 42 этажа. Минимальная этажность - 3 этажа. Комплекс имеет высокий класс энергоэффективности - A++.
Жилой комплекс расположен в районе Щукино города Москвы. В пешей доступности находится станция метро Стрешнево (7 минут) , также можно дойти до станции Войковская (20 минут) и Щукинская (21 минута) .
Аккредитованные банки: ВТБ
Альфа-Банк
Позвоните и узнайте условия покупки прямо сейчас!
07.04.2026
32 982 507 ₽
Предлагаем Вашему вниманию уютную квартиру в поселке городского типа Агрогородок с развитой инфраструктурой. Магазины, поликлиника, школа детский сад, Дом культуры все рядом с домом. Цивилизованный загородный комфорт. Квартира на втором высоком этаже, готова к проживанию, вся мебель остается. При желание есть возможность вести личное хозяйство, подробности по телефону. Удобная транспортная доступность, на машине до Москвы ЦКАД, Волоколамское шоссе , Ново Рижское шоссе, Пятницкое шоссе, Ленинградское шоссе. На автобусе до города Истра или станция Манихино-1, окружная ж.д. станция Манихино 2 в пешей доступности. Квартира с прозрачной историей. без мат. капиталов, кредитов и залогов. Свободная продажа. Показ по договоренности.
05.04.2026
4 650 000 ₽
ЖК "Камелот" Система умный дом, 3 санузла, гардеробная, Мебель дорогая сделана на заказ из натурального дерева, Дорогая техника, встроенная( пароварка, индукционная плита, гриль и стеклокерамика) , кофе машина Миле.
05.04.2026
125 000 000 ₽
Предлагаем уютную квартиру в ЖК Павловские кварталы. Высокий первый этаж, отличное состояние, территория огорожена, ДДУ, полная стоимость , один собственник, без залогов, мат. капитала и обременений. Развитая инфраструктура поселка, удобная транспортная доступность. Показ по договоренности.
05.04.2026
7 200 000 ₽
О квартире
Продаётся однокомнатная квартира общей площадью 50.60 кв. м. с отделкой на выбор: черновая, White Box. Квартира на 10 этаже корпуса 5.2 в жилом комплексе бизнес-класса «Среда на Лобачевского». До метро «Аминьевская» 7 минут пешком.
Развитый район с удобным выездом
«Среда на Лобачевского» строится рядом с Аминьевским и Очаковским шоссе, отсюда можно доехать до МКАД или Ленинского проспекта за 10 минут. В районе уже есть всё для жизни: рестораны, кофейни, торговые центры, поликлиники и спортивные комплексы, школы и сады, бульвары и парки.
- 7 минут ходьбы до станции метро «Аминьевская».
- 15 минут пешком до станции МЦД-4 «Очаково».
- 8-15 минут на машине до Кутузовского проспекта и ТТК.
- До 15 минут езды до заказников «Долина реки Сетунь» и «Воробьёвы горы».
Акции и спецпредложения
- Выгода 12%: если внести 100% оплату или оформить семейную ипотеку под 6%. Действует до 13 апреля.
- Низкие ставки по ипотеке: 0,1% в первый год или 0,11% в первые два года кредита.
- Трейд-ин от «Среды»: можно обменять свою текущую квартиру на новую.
- Ипотека для семей с детьми: если ребёнку до 7 лет, предлагаем льготную ставку 3,5%
О жилом комплексе
«Среда на Лобачевского» - новый квартал в парадном стиле старой Москвы. Благодаря разноэтажной застройке во дворе комплекса будет много света и воздуха, без ощущения замкнутого пространства. Во дворе лаунж-зоны для медитации и работы, площадки для игр и кинопоказов, а на первых этажах - кофейни и магазины.
Особенности
- Высота потолков до 3,24 метра.
- Панорамное остекление в пол.
- Квартиры с террасами, мастер-спальнями и сквозными планировками.
- Дизайнерские гранд-лобби в каждом корпусе.
- Ландшафтный парк с зонами отдыха у воды.
- Коворкинг на свежем воздухе.
- Локации для спорта, игр и приватного отдыха.
- Соседский бульвар с площадкой для подростков.
- Подземный паркинг с двумя въездами.
- Система бесключевого доступа.
- Стрит-ритейл на первых этажах.
10.04.2026
32 211 960 ₽
О квартире
Продаётся однокомнатная квартира общей площадью 39.20 кв. м. с отделкой на выбор: черновая, White Box. Квартира на 11 этаже корпуса 5.1 в жилом комплексе бизнес-класса «Среда на Лобачевского». До метро «Аминьевская» 7 минут пешком.
Развитый район с удобным выездом
«Среда на Лобачевского» строится рядом с Аминьевским и Очаковским шоссе, отсюда можно доехать до МКАД или Ленинского проспекта за 10 минут. В районе уже есть всё для жизни: рестораны, кофейни, торговые центры, поликлиники и спортивные комплексы, школы и сады, бульвары и парки.
- 7 минут ходьбы до станции метро «Аминьевская».
- 15 минут пешком до станции МЦД-4 «Очаково».
- 8-15 минут на машине до Кутузовского проспекта и ТТК.
- До 15 минут езды до заказников «Долина реки Сетунь» и «Воробьёвы горы».
Акции и спецпредложения
- Выгода 12%: если внести 100% оплату или оформить семейную ипотеку под 6%. Действует до 13 апреля.
- Низкие ставки по ипотеке: 0,1% в первый год или 0,11% в первые два года кредита.
- Трейд-ин от «Среды»: можно обменять свою текущую квартиру на новую.
- Ипотека для семей с детьми: если ребёнку до 7 лет, предлагаем льготную ставку 3,5%
О жилом комплексе
«Среда на Лобачевского» - новый квартал в парадном стиле старой Москвы. Благодаря разноэтажной застройке во дворе комплекса будет много света и воздуха, без ощущения замкнутого пространства. Во дворе лаунж-зоны для медитации и работы, площадки для игр и кинопоказов, а на первых этажах - кофейни и магазины.
Особенности
- Высота потолков до 3,24 метра.
- Панорамное остекление в пол.
- Квартиры с террасами, мастер-спальнями и сквозными планировками.
- Дизайнерские гранд-лобби в каждом корпусе.
- Ландшафтный парк с зонами отдыха у воды.
- Коворкинг на свежем воздухе.
- Локации для спорта, игр и приватного отдыха.
- Соседский бульвар с площадкой для подростков.
- Подземный паркинг с двумя въездами.
- Система бесключевого доступа.
- Стрит-ритейл на первых этажах.
09.04.2026
25 872 000 ₽
Продается 3-комн. квартира, площадью 101.1 м2 м. Технопарк. Возможен вариант покупки с использованием ипотечных средств.
Жилая площадь 70.77 кв. м, кухня 15.17 кв. м, ремонта нет, комнаты изолированные, окна выходят на улицу.
Квартира располагается на 2 этаже 6-этажного монолитно-кирпичного дома, высота потолков 3.15 м.
09.04.2026
53 307 345 ₽
Продается 2-комн. квартира, площадью 57.1 кв. м м. Технопарк. Возможен вариант покупки с использованием ипотечных средств.
Жилая площадь 39.97 кв. м, кухня 8.57 кв. м, ремонта нет, комнаты изолированные, окна выходят на улицу.
Квартира располагается на 6 этаже 6-этажного монолитно-кирпичного дома, высота потолков 3.15 м.
07.04.2026
33 629 499 ₽




















