Продажа недвижимости в Мостовской - Страница 2
- Мостовской »
- Недвижимость в Мостовской
Продается 2-комн. квартира, площадью 62.69 м2 в монолитно-кирпичной новостройке. Возможен вариант покупки с использованием ипотечных средств, есть рассрочка, возможна покупка с использованием материнского капитала, есть военная ипотека.
Жилая площадь 31.25 м2, кухня 15.41 м2, предчистовая отделка.
Квартира располагается на 5 этаже 18-этажного дома в ЖК Фонтаны.
Застройщик - ГК ССК, сдача дома - IV квартал 2026 года, высота потолков 2.82 м.
Дом оборудован пассажирским лифтом, закрытая территория.
Отдельная многоуровневая парковка, парковка охраняется. Обеспечение безопасности: видеонаблюдение, противопожарная система. Инфраструктура: детский сад, детские площадки, спортивные площадки, места для отдыха, супермаркет, рестораны, фитнес-центр, пункты бытового обслуживания, коммерческие объекты.
Жилой комплекс «Фонтаны» - дом клубного типа. Преимущество заключается в продуманном ландшафте дворов, круглосуточно охраняемой территории, системе видеонаблюдения во дворе. Также для удобства жителей проведен Wi-Fi во дворе, оборудованы безопасные и современные детские площадки, зоны отдыха.
«Фонтаны» - уникальный, неповторимый жилой комплекс, воплощающий оригинальные и креативные решения дизайнеров и архитекторов. Дома округлой форме - это придает им легкости, несмотря на массивность постройки.
ЖК «Фонтаны» расположен в микрорайоне Черёмушки. Отличная транспортная развязка позволяет быстро и с комфортом добраться до центра, а большое количество зеленых насаждений и парков дает возможность гулять с детьми и наслаждаться прекрасным видом на Кубань.
В жилом комплексе «Фонтаны» семьи с детьми до шести лет включительно могут оформить ипотеку по льготной ставке от 3,5% при первоначальном взносе от 20%.
Это возможность приобрести современную квартиру с продуманной планировкой, панорамными окнами и видами на реку Кубань, не откладывая мечту «на потом».
Территория ЖК - продуманное пространство для жизни: здесь найдётся место и для детских игр, и для спокойного отдыха взрослых, а близость к парковой зоне и будущему детскому саду сделает каждый день ещё комфортнее.
Выбирайте квартиру с готовым ремонтом и заселяйтесь без лишних хлопот - всё, что нужно для старта новой главы вашей семейной истории, уже здесь. Информация носит справочный характер. Не является публичной офертой.
Аккредитованные банки: Сбербанк, Альфа-Банк, ВТБ, Банк Уралсиб, РОССИЯ, Абсолют Банк, Металлинвестбанк, РНКБ, ПСБ, Кубань Кредит, Банк ВБРР, Россельхозбанк.
Позвоните и узнайте условия покупки прямо сейчас!
27.02.2026
10 343 850 ₽
Не фейк, реальная квартира. Продажа от собственника, просьба агентства не беспокоить.
Один собственник, без прописанных, более пяти лет, полная
стоимость в договоре, быстрый выход на сделку.
Большой закрытый жилой комплекс "Морская Симфония" с большим открытым бассейном, смотровой площадкой с видом на море, детские площадки, фонтан с подсветкой, теннисный корт, спортивные площадки, фитнес.
Уютная евро трешка 56 метров, две отдельные спальни и гостиная с кухней. Кондиционер, стиральная машина, сушка, лоджия, фильтр воды, посудомойка, электрическая духовка, миксер, мультиварка. Интернет 100мбит.
Большой супермаркет "Перекресток", аптеки, хозяйственный магазин, кофейня, ресторан, магазин овощи-фрукты, магазин пива, пункты выдачи товаров Wildberries, Озон, СДЭК салон для животных, салон красоты, клубы для детей, фитнес клуб "Среда" все это расположено в комплексе.
До олимпийского парка 15 минут на машине, большой Сочи 30 минут, красная поляна 35 минут. До море 15 минут пешком.
Жилая площадь 46 м2, кухня 9 кв. м, внутри евро ремонт. Квартира меблированная, есть бытовая техника: стиральная машина, холодильник, телевизор, кондиционер, посудомоечная машина, микроволновая печь, интернет. Раздельных санузлов - 1, совмещенных санузлов - нет.
На полу ламинат, лоджий - 1, окна выходят во двор.
Квартира располагается на 6 этаже 18-этажного монолитного дома в ЖК Морская симфония 2013 года постройки. Застройщик - Монолит (Сочи).
Дом оборудован одним грузовым и 2 пассажирскими лифтами, закрытая территория.
Парковка автомобилей - наземная, парковка с охраной. Обеспечение безопасности: круглосуточная охрана. Инфраструктура: детские площадки, спортивные площадки, места для отдыха, супермаркет, рестораны, фитнес-центр, пункты бытового обслуживания.
01.03.2026
17 950 000 ₽
Аукцион по Договор КРТ, находящегося по адресу: (Краснодарский край, Краснодар, Прикубанский вн.г. округ, ул. Московская, д. 94)
Общая площадь: 0.22 га
Дата окончания приема заявок: 23.03.2026 15: 00: 00
Дата проведения торгов: 27.03.2026 10: 00: 00
Кадастровые номера: 23: 43: 0141008: 19008
Земельный участок располагается в микрорайоне ЗИП. Имеет удобный доступ к общественному транспорту с автобусной остановкой в 250 м и остановкой электрички в 800 м. Объект - в окружении нескольких крупных улиц - Московская, Солнечная, Российская. Рядом клиника "РЖД-Медицина", академия "ФК Краснодар". ЗУ подходит под строительство нежилого здания коммерческого назначения до 6 этажей.
Реализация проходит на ЭТП Сбербанк АСТ. С подробной информацией вы можете ознакомиться на сайте ДОМ. РФ или позвонить нам по телефону. ДОМ. РФ - единственный агент РФ, который имеет право вовлекать в хозяйственный оборот неиспользуемые или используемые не по назначению объекты федерального имущества: земельные участки, здания, помещения согласно ФЗ 161 от 24.07.2008. География лотов, реализуемых на торгах, составляет более чем 90 регионов и является уникальной для РФ.
25.02.2026
296 866 ₽
Аукцион по Договор КРТ, находящегося по адресу: (Краснодарский край, Краснодар, п. Знаменский / пос. Зеленопольский, ул. Пуховая, д. 14)
Общая площадь: 6.13 га
Дата окончания приема заявок: 20.04.2026 15: 00: 00
Дата проведения торгов: 24.04.2026 10: 00: 00
Кадастровые номера: 23: 43: 0439016: 942
Земельный участок расположен на востоке г. Краснодара, в окружении малоэтажной жилой застройки и полей, в непосредственной близости линия железнодорожных путей. Земельный участок возможно использовать под строительство многофункционального комплекса объектов делового, общественного и коммерческого назначения.
Реализация проходит на ЭТП Сбербанк АСТ. С подробной информацией вы можете ознакомиться на сайте ДОМ. РФ или позвонить нам по телефону. ДОМ. РФ - единственный агент РФ, который имеет право вовлекать в хозяйственный оборот неиспользуемые или используемые не по назначению объекты федерального имущества: земельные участки, здания, помещения согласно ФЗ 161 от 24.07.2008. География лотов, реализуемых на торгах, составляет более чем 90 регионов и является уникальной для РФ.
21.02.2026
2 643 663 ₽
Продается 2-комн. квартира, площадью 52.5 м2 в монолитно-кирпичной новостройке. Возможен вариант покупки с использованием ипотечных средств, есть рассрочка, возможна покупка с использованием материнского капитала, есть военная ипотека.
Жилая площадь 24.7 м2, кухня 14.2 м2, черновая отделка.
Квартира располагается на 1 этаже 16-этажного дома в ЖК Традиции.
Застройщик - ГК ССК, сдача дома - III квартал 2027 года, высота потолков 2.72 м.
Дом оборудован пассажирским лифтом. Обеспечение безопасности: видеонаблюдение, противопожарная система. Инфраструктура: детские площадки, спортивные площадки, места для отдыха, супермаркет, рестораны, фитнес-центр, пункты бытового обслуживания, коммерческие объекты.
В жилом комплексе «Традиции» вы найдёте всё, чтобы создать свой особенный уклад жизни. Возможно, именно здесь начнётся новая семейная традиция, которая станет дорогой сердцу на долгие годы.
В радиусе 5 минут ходьбы от комплекса уже функционируют школы и детские сады, а дорога в центр города занимает 15 минут.
Выгодные условия при покупке за наличный расчёт в ЖК «Традиции»
Для клиентов, выбирающих полный расчёт наличными, действуют специальные условия приобретения квартиры в жилом комплексе «Традиции».
Данное предложение обеспечивает максимальную экономию, позволяя стать владельцем современного жилья по исключительной цене при единовременной оплате.
Аккредитованные банки: Сбербанк, Альфа-Банк, ВТБ, Банк Уралсиб, РОССИЯ, Абсолют Банк, Металлинвестбанк, РНКБ, ПСБ, Кубань Кредит, Банк ВБРР, Россельхозбанк.
Позвоните и узнайте условия покупки прямо сейчас!
23.02.2026
6 562 500 ₽
Представляем уникальное предложение для инвесторов и ценителей простора!
В первой курортной зоне Витязево продается готовый бизнес и комфортное семейное гнездо "два в одном". Это не просто дом, это полноценный комплекс на ИЖС участке 7 соток, состоящий из:
Жилой дом (195 м2): Просторное жилье для вашей семьи с продуманной планировкой.
* 1 этаж: Гостевая зона с кухней-столовой и уютным каминным залом (настоящий дровяной камин!) Верхний свет!!!.
* 2 этаж: 3 изолированные спальни и санузел для личного комфорта.
* Цокольный этаж: 2 просторных помещения свободного назначения — под спортзал, бильярдную, винный погреб или кладовые.
Мини-гостиница (232 м2): Полностью готовый к работе актив!
ВСЕ НОМЕРА (1-й и 2-й этажи) всего 12 номеров сдаются «под ключ»: с ремонтом и мебелью, каждый с собственным санузлом. Гостиница полностью отапливается, что гарантирует стабильный доход даже в межсезонье!
Инфраструктура для жизни и отдыха:
* Коммуникации вашей мечты: ЦЕНТРАЛЬНЫЕ газ, вода, канализация и электричество!я Никаких проблем с автономией.
* Продуманная территория: детская площадка, зона барбекю и отдыха, а летом — каркасный бассейн.
* Парковка на 9 (!) машин — золотое преимущество в курортной зоне. Ваши гости и клиенты всегда будут довольны.
* Отдельная летняя кухня — идеально для приготовления еды в сезон и сохранения прохлады в доме.
Локация:
До пляжа всего 1 км (15-20 минут неспешным шагом).
Вся инфраструктура рядом: школа, сад, поликлиника, супермаркеты.
Этот вариант идеален для тех, кто ищет готовый, надежный и прибыльный объект недвижимости у моря
Вы приобретаете не просто "квартиру у моря". А личное жилье + готовый бизнес + земельный актив. Это "подушка безопасности" в одном флаконе.
18.02.2026
36 000 000 ₽
Продается помещение площадью 4 кв.м.
Свежий ремонт, собственник
21.02.2026
350 000 ₽
Продаю готовый прибыльный бизнес: уютный апарт-отель в сердце Немецкой деревни.
Приобретение включает комфортабельный отель с развитой инфраструктурой и превосходной атмосферой. Гостям предлагается приятное размещение рядом с озером, населённым красивыми водоплавающими птицами, разнообразием ресторанов, собственной пивоварней, фирменным магазином вина, уютными кофейнями, заведениями быстрого питания, множеством торговых точек, дорожками для велоспорта, просторными местами для прогулок, спортивными площадками для тенниса и детской зоной. Удобства включают доступ ко всем сервисам доставок.
Отель располагает четырьмя комфортабельными номерами с полным набором удобств, качественным дизайнерским интерьером, современной мебелью и бытовой техникой. Имеется также техническая комната с профессиональной прачечной и необходимым уборочным инвентарем. Реализовано бесконтактное поселение гостей.
Будущим собственникам предоставляется полная отчётность бизнеса, богатая база постоянных клиентов, сайт гостиницы и страницы на популярных онлайн-площадках бронирования.
Идеальное предложение для инвесторов, желающих приобрести успешный гостиничный бизнес с налаженным потоком туристов и высоким уровнем комфорта.
21.02.2026
17 900 000 ₽
Стильные aпаpтаменты Green Oasis в комплeксe ЖК Большой
О комплексе:
Потрясающая локация. Центр города.
На территории комплекса есть всё для отдыха, расслабления и восстановления сил. косметические кабинеты, флоатинг, студии маникюра, и салоны красоты,
В непосредственной близости – ТРЦ «Галерея» , кинотеатр Каро,с 8 кинозалами премиум класса, ресторанами и магазинами, гипермаркет Ноff,
На первом этаже дома находится торговый центр с продуктовым магазином Перекресток
В шаговой доступности находятся: ФудМаркет (120 ресторанов кухонь мира под одной крышей), ресторан «Голый повар», «Бумбараш» и др. - центральная улица Красная, Аллея с фонтанами.
Маршруты общественного транспорта в шаговой доступности – без пробок в любую часть города
Закрытый доступ на территорию – никаких посторонних, комфорт и безопасность
10 этаж, красивый вид на город
Двуспальная кровать quin-sizе (160*200)
Стильный диван-кровать
Смарт ТВ с доступом к видеоконтенту интернет-сервисов в зоне спальни и гостиной
Сплит система в комнате и на кухне, стиральная машина, холодильник, микроволновая печь, варочная панель, чайник, фен, гладильные принадлежности
Укомплектованная техникой и посудой кухонная зона
Ванная комната с ванной
Высокоскоростной Wi-Fi
Документы установленного образца, работаем с организациями.
21.02.2026
10 800 000 ₽
Продается 2-комнатная квартира в центре города в сталинском доме с высокими потолками (3 метра). Квартира находится на 2-м этаже, что гарантирует тишину и минимальное количество соседей сверху. Предоставляется предчистовая отделка, что дает возможность реализовать ваши дизайнерские идеи и сделать ремонт по своему вкусу.
Во дворе всегда есть парковочное место. Дом расположен в исторической части Краснодара, рядом находится остановка трамвая, а также в шаговой доступности школы и детские сады. Это отличное предложение для тех, кто ценит комфорт и удобство городской жизни!
21.02.2026
5 800 000 ₽
Просторная 2х комнатная квартира в престижном ЖК «Привилегия» с готовым интерьером от известных брендов. Это вариант для тех, кто ценит время и хочет жить в центре событий, но в тихом, охраняемом пространстве.
Энергоэффективность: 6 окон на солнечной стороне + панорамное остекление. Это не просто «светло», это реальная экономия на отоплении зимой. В солнечные дни батареи можно отключать (регулировка индивидуальная).
Реальная площадь: 86,3 м2 + 9,9 м2 (лоджии) = 96,2 м2 полезной площади. По сути, вы получаете бонусом почти 10 метров, которые можно использовать как кабинет или зону отдыха (лоджия совмещена с кухней). Большой коридор и удобная гардеробная . Такого предложения вы не найдете в этом ЖК.
Характеристики со вкусом:
Учет ресурсов: Индивидуальные счетчики ХВС/ГВС раздельно на кухню и санузел (платите только за себя).
Техника: 2 кондиционера, WiFi, ТВ приставка, инвекционная варочная панель.
Отопление: Центральное, с погодным регулированием в квартире. Теплые полы (от труб отопления) в коридоре.
Свет: 6 окон (2 панорамных).
Готовый интерьер: Вам не нужно тратить бюджет на ремонт и ожидания. Стены уже оклеены обоями Roberto Cavalli, Ferre, Valentin Yudashkin (метр таких обоев стоит как хороший ужин в ресторане). Встроенная кухня и техника Zigmund&Shtain остаются.
Развитая Инфраструктура ЖК «Привилегия»:
В пешей доступности: Магнит, Пятерочка, рынок, ПВЗ OZON/WB, фитнес-залы, школы и мед.центры.
Парковка: Просторная парковка во дворе и дополнительные места перед домом — гости всегда смогут припарковаться.
Ландшафтный дизайн: Самый ухоженный двор в районе. Есть фонтан с зоной отдыха (редкость для жилых комплексов), 2 большие детских площадки (для разного возраста) и спортзона.
Клубный двор: Закрытая территория с 3 шлагбаумами и 6 калитками. Доступ только для жильцов — никаких чужих машин и шумных компаний.
Вишенка на торте:
Из панорамных окон открывается вид на Кавказский хребет. Это не просто «вид из окна», а ваша личная картина, которая меняется каждый день (особенно в полнолуние).
В продажу включено: Вся мебель и техника остаются (по договоренности).
Вся сумма в договоре !!!
Звоните. В ЖК «Привилегия» такие лоты с панорамными окнами уходят быстро. Покажите эту квартиру своим близким — она впечатляет вживую.
17.02.2026
23 000 000 ₽
Продается 2-комн. квартира, площадью 50.9 м2 в монолитно-кирпичной новостройке. Возможен вариант покупки с использованием ипотечных средств, есть рассрочка, возможна покупка с использованием материнского капитала, есть военная ипотека.
Жилая площадь 25 м2, кухня 13 м2, предчистовая отделка.
Квартира располагается на 16 этаже 18-этажного дома в ЖК Фонтаны.
Застройщик - ГК ССК, сдача дома - IV квартал 2026 года.
Дом оборудован пассажирским лифтом, закрытая территория.
Отдельная многоуровневая парковка, парковка охраняется. Обеспечение безопасности: видеонаблюдение, противопожарная система. Инфраструктура: детский сад, детские площадки, спортивные площадки, места для отдыха, супермаркет, рестораны, фитнес-центр, пункты бытового обслуживания, коммерческие объекты.
Жилой комплекс «Фонтаны» - дом клубного типа. Преимущество заключается в продуманном ландшафте дворов, круглосуточно охраняемой территории, системе видеонаблюдения во дворе. Также для удобства жителей проведен Wi-Fi во дворе, оборудованы безопасные и современные детские площадки, зоны отдыха.
«Фонтаны» - уникальный, неповторимый жилой комплекс, воплощающий оригинальные и креативные решения дизайнеров и архитекторов. Дома округлой форме - это придает им легкости, несмотря на массивность постройки.
ЖК «Фонтаны» расположен в микрорайоне Черёмушки. Отличная транспортная развязка позволяет быстро и с комфортом добраться до центра, а большое количество зеленых насаждений и парков дает возможность гулять с детьми и наслаждаться прекрасным видом на Кубань.
В жилом комплексе «Фонтаны» семьи с детьми до шести лет включительно могут оформить ипотеку по льготной ставке от 3,5% при первоначальном взносе от 20%.
Это возможность приобрести современную квартиру с продуманной планировкой, панорамными окнами и видами на реку Кубань, не откладывая мечту «на потом».
Территория ЖК - продуманное пространство для жизни: здесь найдётся место и для детских игр, и для спокойного отдыха взрослых, а близость к парковой зоне и будущему детскому саду сделает каждый день ещё комфортнее.
Выбирайте квартиру с готовым ремонтом и заселяйтесь без лишних хлопот - всё, что нужно для старта новой главы вашей семейной истории, уже здесь. Информация носит справочный характер. Не является публичной офертой.
Аккредитованные банки: Сбербанк, Альфа-Банк, ВТБ, Банк Уралсиб, РОССИЯ, Абсолют Банк, Металлинвестбанк, РНКБ, ПСБ, Кубань Кредит, Банк ВБРР, Россельхозбанк.
Позвоните и узнайте условия покупки прямо сейчас!
16.02.2026
9 671 000 ₽
Продается 2-комн. квартира, площадью 54.11 м2 в монолитно-кирпичной новостройке. Возможен вариант покупки с использованием ипотечных средств, есть рассрочка, возможна покупка с использованием материнского капитала, есть военная ипотека.
Жилая площадь 23.9 м2, предчистовая отделка.
Квартира располагается на 6 этаже 16-этажного дома в ЖК Горные высоты.
Застройщик - ГК ССК, сдача дома - III квартал 2027 года, высота потолков 2.7 м.
Дом оборудован грузовым и пассажирским лифтом.
Парковка автомобилей - наземная. Обеспечение безопасности: видеонаблюдение. Инфраструктура: школа, детский сад, поликлиника, детские площадки, спортивные площадки, места для отдыха.
«Горные Высоты» - это радушный, современный и природный микрорайон, где сердце остаётся навсегда: соседи становятся семьёй, технологии служат уюту, а горный воздух и панорамные виды дарят ощущение гармонии каждый день. Здесь рождаются тёплые традиции, всё продумано для комфорта жизни, а природа становится частью вашего дома. Возвращаться сюда - значит возвращаться туда, где вас ждут, понимают и окружают заботой.
При покупке трёхкомнатной квартиры в микрорайоне «Горные Высоты» вы получаете качественный ремонт в подарок - всё, чтобы сразу заселиться и начать жить.
Современные планировки, высокие потолки и продуманные до деталей отделочные материалы создают идеальный баланс между уютом и стилем. Большие панорамные окна наполняют пространство светом, витражные конструкции подчёркивают эстетику, а удобные холлы и рациональное зонирование делают каждый день лёгким и комфортным.
Позвоните и узнайте условия покупки прямо сейчас!
20.02.2026
7 737 730 ₽
Продается 2-комн. квартира, площадью 54.11 м2 в монолитно-кирпичной новостройке. Возможен вариант покупки с использованием ипотечных средств, есть рассрочка, возможна покупка с использованием материнского капитала, есть военная ипотека.
Жилая площадь 23.9 м2, предчистовая отделка.
Квартира располагается на 4 этаже 16-этажного дома в ЖК Горные высоты.
Застройщик - ГК ССК, сдача дома - III квартал 2027 года, высота потолков 2.7 м.
Дом оборудован грузовым и пассажирским лифтом.
Парковка автомобилей - наземная. Обеспечение безопасности: видеонаблюдение. Инфраструктура: школа, детский сад, поликлиника, детские площадки, спортивные площадки, места для отдыха.
«Горные Высоты» - это радушный, современный и природный микрорайон, где сердце остаётся навсегда: соседи становятся семьёй, технологии служат уюту, а горный воздух и панорамные виды дарят ощущение гармонии каждый день. Здесь рождаются тёплые традиции, всё продумано для комфорта жизни, а природа становится частью вашего дома. Возвращаться сюда - значит возвращаться туда, где вас ждут, понимают и окружают заботой.
При покупке трёхкомнатной квартиры в микрорайоне «Горные Высоты» вы получаете качественный ремонт в подарок - всё, чтобы сразу заселиться и начать жить.
Современные планировки, высокие потолки и продуманные до деталей отделочные материалы создают идеальный баланс между уютом и стилем. Большие панорамные окна наполняют пространство светом, витражные конструкции подчёркивают эстетику, а удобные холлы и рациональное зонирование делают каждый день лёгким и комфортным.
Позвоните и узнайте условия покупки прямо сейчас!
20.02.2026
7 737 730 ₽
Продается 2-комн. квартира, площадью 54.11 м2 в монолитно-кирпичной новостройке. Возможен вариант покупки с использованием ипотечных средств, есть рассрочка, возможна покупка с использованием материнского капитала, есть военная ипотека.
Жилая площадь 23.9 м2, предчистовая отделка.
Квартира располагается на 4 этаже 16-этажного дома в ЖК Горные высоты.
Застройщик - ГК ССК, сдача дома - III квартал 2027 года, высота потолков 2.7 м.
Дом оборудован грузовым и пассажирским лифтом.
Парковка автомобилей - наземная. Обеспечение безопасности: видеонаблюдение. Инфраструктура: школа, детский сад, поликлиника, детские площадки, спортивные площадки, места для отдыха.
«Горные Высоты» - это радушный, современный и природный микрорайон, где сердце остаётся навсегда: соседи становятся семьёй, технологии служат уюту, а горный воздух и панорамные виды дарят ощущение гармонии каждый день. Здесь рождаются тёплые традиции, всё продумано для комфорта жизни, а природа становится частью вашего дома. Возвращаться сюда - значит возвращаться туда, где вас ждут, понимают и окружают заботой.
При покупке трёхкомнатной квартиры в микрорайоне «Горные Высоты» вы получаете качественный ремонт в подарок - всё, чтобы сразу заселиться и начать жить.
Современные планировки, высокие потолки и продуманные до деталей отделочные материалы создают идеальный баланс между уютом и стилем. Большие панорамные окна наполняют пространство светом, витражные конструкции подчёркивают эстетику, а удобные холлы и рациональное зонирование делают каждый день лёгким и комфортным.
Позвоните и узнайте условия покупки прямо сейчас!
21.02.2026
7 737 730 ₽
Продается 2-комн. квартира, площадью 54.11 м2 в монолитно-кирпичной новостройке. Возможен вариант покупки с использованием ипотечных средств, есть рассрочка, возможна покупка с использованием материнского капитала, есть военная ипотека.
Жилая площадь 23.9 м2, предчистовая отделка.
Квартира располагается на 3 этаже 16-этажного дома в ЖК Горные высоты.
Застройщик - ГК ССК, сдача дома - III квартал 2027 года, высота потолков 2.7 м.
Дом оборудован грузовым и пассажирским лифтом.
Парковка автомобилей - наземная. Обеспечение безопасности: видеонаблюдение. Инфраструктура: школа, детский сад, поликлиника, детские площадки, спортивные площадки, места для отдыха.
«Горные Высоты» - это радушный, современный и природный микрорайон, где сердце остаётся навсегда: соседи становятся семьёй, технологии служат уюту, а горный воздух и панорамные виды дарят ощущение гармонии каждый день. Здесь рождаются тёплые традиции, всё продумано для комфорта жизни, а природа становится частью вашего дома. Возвращаться сюда - значит возвращаться туда, где вас ждут, понимают и окружают заботой.
При покупке трёхкомнатной квартиры в микрорайоне «Горные Высоты» вы получаете качественный ремонт в подарок - всё, чтобы сразу заселиться и начать жить.
Современные планировки, высокие потолки и продуманные до деталей отделочные материалы создают идеальный баланс между уютом и стилем. Большие панорамные окна наполняют пространство светом, витражные конструкции подчёркивают эстетику, а удобные холлы и рациональное зонирование делают каждый день лёгким и комфортным.
Позвоните и узнайте условия покупки прямо сейчас!
11.03.2026
7 737 730 ₽
Продается 2-комн. квартира, площадью 54.11 м2 в монолитно-кирпичной новостройке. Возможен вариант покупки с использованием ипотечных средств, есть рассрочка, возможна покупка с использованием материнского капитала, есть военная ипотека.
Жилая площадь 23.9 м2, предчистовая отделка.
Квартира располагается на 3 этаже 16-этажного дома в ЖК Горные высоты.
Застройщик - ГК ССК, сдача дома - III квартал 2027 года, высота потолков 2.7 м.
Дом оборудован грузовым и пассажирским лифтом.
Парковка автомобилей - наземная. Обеспечение безопасности: видеонаблюдение. Инфраструктура: школа, детский сад, поликлиника, детские площадки, спортивные площадки, места для отдыха.
«Горные Высоты» - это радушный, современный и природный микрорайон, где сердце остаётся навсегда: соседи становятся семьёй, технологии служат уюту, а горный воздух и панорамные виды дарят ощущение гармонии каждый день. Здесь рождаются тёплые традиции, всё продумано для комфорта жизни, а природа становится частью вашего дома. Возвращаться сюда - значит возвращаться туда, где вас ждут, понимают и окружают заботой.
При покупке трёхкомнатной квартиры в микрорайоне «Горные Высоты» вы получаете качественный ремонт в подарок - всё, чтобы сразу заселиться и начать жить.
Современные планировки, высокие потолки и продуманные до деталей отделочные материалы создают идеальный баланс между уютом и стилем. Большие панорамные окна наполняют пространство светом, витражные конструкции подчёркивают эстетику, а удобные холлы и рациональное зонирование делают каждый день лёгким и комфортным.
Позвоните и узнайте условия покупки прямо сейчас!
20.02.2026
7 737 730 ₽
Продается 2-комн. квартира, площадью 54.11 м2 в монолитно-кирпичной новостройке. Возможен вариант покупки с использованием ипотечных средств, есть рассрочка, возможна покупка с использованием материнского капитала, есть военная ипотека.
Жилая площадь 23.9 м2, предчистовая отделка.
Квартира располагается на 5 этаже 16-этажного дома в ЖК Горные высоты.
Застройщик - ГК ССК, сдача дома - III квартал 2027 года, высота потолков 2.7 м.
Дом оборудован грузовым и пассажирским лифтом.
Парковка автомобилей - наземная. Обеспечение безопасности: видеонаблюдение. Инфраструктура: школа, детский сад, поликлиника, детские площадки, спортивные площадки, места для отдыха.
«Горные Высоты» - это радушный, современный и природный микрорайон, где сердце остаётся навсегда: соседи становятся семьёй, технологии служат уюту, а горный воздух и панорамные виды дарят ощущение гармонии каждый день. Здесь рождаются тёплые традиции, всё продумано для комфорта жизни, а природа становится частью вашего дома. Возвращаться сюда - значит возвращаться туда, где вас ждут, понимают и окружают заботой.
При покупке трёхкомнатной квартиры в микрорайоне «Горные Высоты» вы получаете качественный ремонт в подарок - всё, чтобы сразу заселиться и начать жить.
Современные планировки, высокие потолки и продуманные до деталей отделочные материалы создают идеальный баланс между уютом и стилем. Большие панорамные окна наполняют пространство светом, витражные конструкции подчёркивают эстетику, а удобные холлы и рациональное зонирование делают каждый день лёгким и комфортным.
Позвоните и узнайте условия покупки прямо сейчас!
20.02.2026
7 737 730 ₽
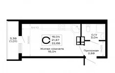
Продается студия, площадью 22.68 м2 в монолитно-кирпичной новостройке. Возможен вариант покупки с использованием ипотечных средств, есть рассрочка, возможна покупка с использованием материнского капитала, есть военная ипотека.
Жилая площадь 16.04 м2, предчистовая отделка, комнаты смежные.
Квартира располагается на 2 этаже 16-этажного дома в ЖК Горные высоты.
Застройщик - ГК ССК, сдача дома - III квартал 2027 года, высота потолков 2.7 м.
Дом оборудован грузовым и пассажирским лифтом.
Парковка автомобилей - наземная. Обеспечение безопасности: видеонаблюдение. Инфраструктура: школа, детский сад, поликлиника, детские площадки, спортивные площадки, места для отдыха.
«Горные Высоты» - это радушный, современный и природный микрорайон, где сердце остаётся навсегда: соседи становятся семьёй, технологии служат уюту, а горный воздух и панорамные виды дарят ощущение гармонии каждый день. Здесь рождаются тёплые традиции, всё продумано для комфорта жизни, а природа становится частью вашего дома. Возвращаться сюда - значит возвращаться туда, где вас ждут, понимают и окружают заботой.
При покупке трёхкомнатной квартиры в микрорайоне «Горные Высоты» вы получаете качественный ремонт в подарок - всё, чтобы сразу заселиться и начать жить.
Современные планировки, высокие потолки и продуманные до деталей отделочные материалы создают идеальный баланс между уютом и стилем. Большие панорамные окна наполняют пространство светом, витражные конструкции подчёркивают эстетику, а удобные холлы и рациональное зонирование делают каждый день лёгким и комфортным.
Позвоните и узнайте условия покупки прямо сейчас!
20.02.2026
3 764 880 ₽
Продается студия, площадью 22.68 м2 в монолитно-кирпичной новостройке. Возможен вариант покупки с использованием ипотечных средств, есть рассрочка, возможна покупка с использованием материнского капитала, есть военная ипотека.
Жилая площадь 16.04 м2, предчистовая отделка, комнаты смежные.
Квартира располагается на 2 этаже 16-этажного дома в ЖК Горные высоты.
Застройщик - ГК ССК, сдача дома - III квартал 2027 года, высота потолков 2.7 м.
Дом оборудован грузовым и пассажирским лифтом.
Парковка автомобилей - наземная. Обеспечение безопасности: видеонаблюдение. Инфраструктура: школа, детский сад, поликлиника, детские площадки, спортивные площадки, места для отдыха.
«Горные Высоты» - это радушный, современный и природный микрорайон, где сердце остаётся навсегда: соседи становятся семьёй, технологии служат уюту, а горный воздух и панорамные виды дарят ощущение гармонии каждый день. Здесь рождаются тёплые традиции, всё продумано для комфорта жизни, а природа становится частью вашего дома. Возвращаться сюда - значит возвращаться туда, где вас ждут, понимают и окружают заботой.
При покупке трёхкомнатной квартиры в микрорайоне «Горные Высоты» вы получаете качественный ремонт в подарок - всё, чтобы сразу заселиться и начать жить.
Современные планировки, высокие потолки и продуманные до деталей отделочные материалы создают идеальный баланс между уютом и стилем. Большие панорамные окна наполняют пространство светом, витражные конструкции подчёркивают эстетику, а удобные холлы и рациональное зонирование делают каждый день лёгким и комфортным.
Позвоните и узнайте условия покупки прямо сейчас!
20.02.2026
3 764 880 ₽
Продается студия, площадью 22.68 м2 в монолитно-кирпичной новостройке. Возможен вариант покупки с использованием ипотечных средств, есть рассрочка, возможна покупка с использованием материнского капитала, есть военная ипотека.
Жилая площадь 16.04 м2, предчистовая отделка, комнаты смежные.
Квартира располагается на 3 этаже 16-этажного дома в ЖК Горные высоты.
Застройщик - ГК ССК, сдача дома - III квартал 2027 года, высота потолков 2.7 м.
Дом оборудован грузовым и пассажирским лифтом.
Парковка автомобилей - наземная. Обеспечение безопасности: видеонаблюдение. Инфраструктура: школа, детский сад, поликлиника, детские площадки, спортивные площадки, места для отдыха.
«Горные Высоты» - это радушный, современный и природный микрорайон, где сердце остаётся навсегда: соседи становятся семьёй, технологии служат уюту, а горный воздух и панорамные виды дарят ощущение гармонии каждый день. Здесь рождаются тёплые традиции, всё продумано для комфорта жизни, а природа становится частью вашего дома. Возвращаться сюда - значит возвращаться туда, где вас ждут, понимают и окружают заботой.
При покупке трёхкомнатной квартиры в микрорайоне «Горные Высоты» вы получаете качественный ремонт в подарок - всё, чтобы сразу заселиться и начать жить.
Современные планировки, высокие потолки и продуманные до деталей отделочные материалы создают идеальный баланс между уютом и стилем. Большие панорамные окна наполняют пространство светом, витражные конструкции подчёркивают эстетику, а удобные холлы и рациональное зонирование делают каждый день лёгким и комфортным.
Позвоните и узнайте условия покупки прямо сейчас!
20.02.2026
3 764 880 ₽




















