Продам коммерческую недвижимость 606.5 м2
Размещено 31 января 2026
23
(+1)
0
Жалоба
- Параметры объявления
- Общая площадь (м2): 606.5
- Описание
Продажа отдельно стоящего здания в ЖК «Режиссер»
Относится к комплексу зданий, входящих в ЖК «Режиссер»
РнВ получено в 4 кв. 2024 г.
Преимущества:
Уникальное расположение: Единственный отдельно стоящий торговый объект на территории ЖК "Режиссер", центральное местоположение, напротив главного входа и рядом с центральным въездом в жилой комплекс.
Готовый бизнес: Здание с премиальной отделкой под офис от застройщика ФСК, готово к использованию. Сейчас используется как офис продаж ФСК.
Удобная транспортная доступность: 5 минут на машине до станции метро "ВДНХ".
Высокий потенциал: Подходит для различных видов деятельности: торговля, медицинский центр, частный детский сад, магазин, шоу-рум, представительский офис.
Развитая инфраструктура: ЖК бизнес-класса "Режиссер" с более чем 981 квартирами и населением более 1700 человек, полностью введен в эксплуатацию, идет заселение.
Удобная транспортная доступность: 5 минут на машине до станции метро "ВДНХ".
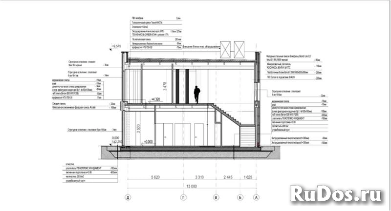
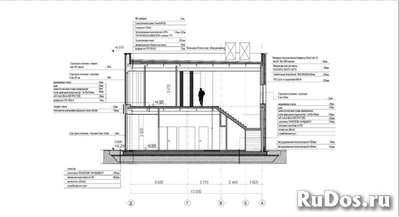
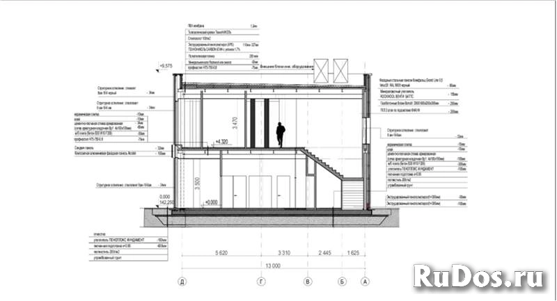
Характеристики здания:
Тип: Отдельно стоящее 2-х этажное здание
Общая площадь: 606,5 кв. м (без подвала)
o 1 этаж: 274 кв. м
o 2 этаж: 262 кв. м
Высота потолков: от 3,47 до 3,5 м
Входная группа: 1 вход с главного фасада, 1 вход с торца здания, есть подъезд для разгрузки, под помещением нет паркинга
Состояние: С премиальной отделкой от ФСК под офис
Инженерные системы: современные системы кондиционирования и вентиляции, выделенная электрическая мощность - 150 кВт
Земельный участок: Благоустроен перед зданием, общий с МКД
О жилом комплексе бизнес-класса «Режиссер»
Жилой комплекс бизнес-класса "Режиссер" расположен в престижном районе Ростокино и представляет собой современный комплекс из 3 домов, построенных на территории 1,7 га. Комплекс уже введен в эксплуатацию и активно заселяется, в нем насчитывается более 981 квартир, а общее количество жителей превысит 1700 человек. Важным преимуществом является расположение рядом со сложившейся жилой застройкой.
Относится к комплексу зданий, входящих в ЖК «Режиссер»
РнВ получено в 4 кв. 2024 г.
Преимущества:
Уникальное расположение: Единственный отдельно стоящий торговый объект на территории ЖК "Режиссер", центральное местоположение, напротив главного входа и рядом с центральным въездом в жилой комплекс.
Готовый бизнес: Здание с премиальной отделкой под офис от застройщика ФСК, готово к использованию. Сейчас используется как офис продаж ФСК.
Удобная транспортная доступность: 5 минут на машине до станции метро "ВДНХ".
Высокий потенциал: Подходит для различных видов деятельности: торговля, медицинский центр, частный детский сад, магазин, шоу-рум, представительский офис.
Развитая инфраструктура: ЖК бизнес-класса "Режиссер" с более чем 981 квартирами и населением более 1700 человек, полностью введен в эксплуатацию, идет заселение.
Удобная транспортная доступность: 5 минут на машине до станции метро "ВДНХ".
Характеристики здания:
Тип: Отдельно стоящее 2-х этажное здание
Общая площадь: 606,5 кв. м (без подвала)
o 1 этаж: 274 кв. м
o 2 этаж: 262 кв. м
Высота потолков: от 3,47 до 3,5 м
Входная группа: 1 вход с главного фасада, 1 вход с торца здания, есть подъезд для разгрузки, под помещением нет паркинга
Состояние: С премиальной отделкой от ФСК под офис
Инженерные системы: современные системы кондиционирования и вентиляции, выделенная электрическая мощность - 150 кВт
Земельный участок: Благоустроен перед зданием, общий с МКД
О жилом комплексе бизнес-класса «Режиссер»
Жилой комплекс бизнес-класса "Режиссер" расположен в престижном районе Ростокино и представляет собой современный комплекс из 3 домов, построенных на территории 1,7 га. Комплекс уже введен в эксплуатацию и активно заселяется, в нем насчитывается более 981 квартир, а общее количество жителей превысит 1700 человек. Важным преимуществом является расположение рядом со сложившейся жилой застройкой.
