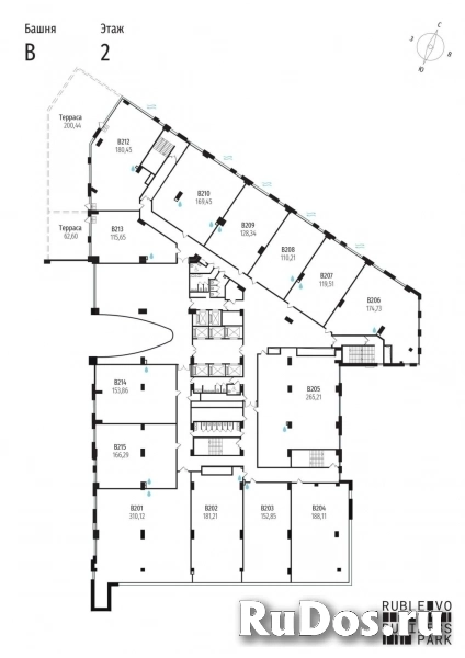
Продам коммерческую недвижимость 153.86 м2
Размещено 02 апреля 2026
4
0
Жалоба
- Параметры объявления
- Общая площадь (м2): 153.86
- Описание
ОФИС В БАШНЕ B | Рублево Бизнес Парк
Класс А | Победитель премии Move Realty Awards в номинации «Лучший проект для инвестиций»
Инвестируйте в офис с максимальным потенциалом роста - в новом бизнес-центре Рублево Бизнес Парк. Современный проект А-класса на Новорижском направлении: высокий спрос, редкие форматы, идеальная транспортная доступность.
Преимущества объекта
Свободная планировка от 50 до 4000 м - возможность адаптации под любые задачи бизнеса.
Высота потолков от 4,05 до 6,03 м - создаёт ощущение простора, идеально для открытых пространств, шоурумов и двухуровневых решений.
Частные террасы - уникальный формат на офисном рынке Москвы.
Панорамное угловое остекление - естественный свет в течение всего дня и впечатляющие виды.
Shell & Core - гибкость в проектировании интерьера под себя.
Архитектура и инженерия
Класс А - соответствие высоким стандартам по инфраструктуре, инженерным системам и управлению зданием.
Гранд-лобби 1500 м, высота 9 м - знаковое пространство с интерьерами от бюро UNK corporate interiors.
22 скоростных лифта - бесшумные и быстрые, рассчитаны на интенсивный трафик.
Современные инженерные системы - высокий уровень комфорта и энергоэффективности.
Локация и транспорт
2 минуты до Новорижского шоссе и проспекта Маршала Жукова - быстрый выезд на ключевые магистрали.
8 минут до м. Строгино, 500 м до будущей м. Липовая роща (открытие до 2027 года) - отличная доступность как на авто, так и на общественном транспорте.
Условия покупки
Продажа по ДДУ (214-ФЗ) через эскроу-счета
Проектное финансирование от Сбербанка
Возможна рассрочка
Возврат НДС 22%
Инвестиционная привлекательность
Ожидаемый рост капитализации с открытием метро
Возможность сдачи по блокам или этажом целиком
ROI: 9-12%
________________________________________
Адрес объекта: МКАД, 64 км
Класс А | Победитель премии Move Realty Awards в номинации «Лучший проект для инвестиций»
Инвестируйте в офис с максимальным потенциалом роста - в новом бизнес-центре Рублево Бизнес Парк. Современный проект А-класса на Новорижском направлении: высокий спрос, редкие форматы, идеальная транспортная доступность.
Преимущества объекта
Свободная планировка от 50 до 4000 м - возможность адаптации под любые задачи бизнеса.
Высота потолков от 4,05 до 6,03 м - создаёт ощущение простора, идеально для открытых пространств, шоурумов и двухуровневых решений.
Частные террасы - уникальный формат на офисном рынке Москвы.
Панорамное угловое остекление - естественный свет в течение всего дня и впечатляющие виды.
Shell & Core - гибкость в проектировании интерьера под себя.
Архитектура и инженерия
Класс А - соответствие высоким стандартам по инфраструктуре, инженерным системам и управлению зданием.
Гранд-лобби 1500 м, высота 9 м - знаковое пространство с интерьерами от бюро UNK corporate interiors.
22 скоростных лифта - бесшумные и быстрые, рассчитаны на интенсивный трафик.
Современные инженерные системы - высокий уровень комфорта и энергоэффективности.
Локация и транспорт
2 минуты до Новорижского шоссе и проспекта Маршала Жукова - быстрый выезд на ключевые магистрали.
8 минут до м. Строгино, 500 м до будущей м. Липовая роща (открытие до 2027 года) - отличная доступность как на авто, так и на общественном транспорте.
Условия покупки
Продажа по ДДУ (214-ФЗ) через эскроу-счета
Проектное финансирование от Сбербанка
Возможна рассрочка
Возврат НДС 22%
Инвестиционная привлекательность
Ожидаемый рост капитализации с открытием метро
Возможность сдачи по блокам или этажом целиком
ROI: 9-12%
________________________________________
Адрес объекта: МКАД, 64 км
