Продажа недвижимости в Морозовой - Страница 3
- Морозова п. »
- Недвижимость в Морозовой
Продается офисное помещение в сданном жилом комплексе Шведская Крона. Прямая продажа от застройщика.
ЖК «Шведская крона» расположен в Приморском районе Санкт-Петербурга в престижной локации возле Удельного парка. Дома сданы и заселены, что обеспечивает стабильный пешеходный трафик и востребованность услуг малого бизнеса среди жителей ЖК.
31.12.2025
21 868 012 ₽
Продается 1-комн. квартира, площадью 32.9 м2 в монолитно-кирпичной новостройке в 15 мин. транспортом от м. Девяткино. Возможен вариант покупки с использованием ипотечных средств, есть рассрочка, возможна покупка с использованием материнского капитала.
Жилая площадь 16.6 м2, кухня 8.9 м2, чистовая отделка, комнаты изолированные, лоджий - 1.
Квартира располагается на 5 этаже 20-этажного дома в ЖК Стороны света.
Застройщик - ГК Прок, сдача дома - III квартал 2023 года, дом уже сдан, высота потолков 2.54 м. Инфраструктура: детские площадки, спортивные площадки, места для отдыха.
ЖК «Стороны света» - современный жилой комплекс комфорт-класса в г. Бугры Ленинградской области. Состоит из четырех корпусов, имеющих тематические названия - «Север» , «Юг» , «Запад» и «Восток». Общее количество квартир - 2294.
Акция: Готовые квартиры с отделкой от 5,7 млн рублей. Ключи сразу!
От ЖК ходит общественный транспорт до ст. метро «Девяткино», «пр. Просвещения» и «Парнас». Есть 2 удобных выезда на КАД, развитая система наземного транспорта. Ж/Д станция «Девяткино», автовокзал «Северный» в 15 минутах езды.
Аккредитованные банки: ВТБ, Банк ДОМ. РФ, Промсвязьбанк, Ак Барс Банк, Альфа-Банк, СберБанк, Абсолют Банк, Банк «УБРиР», Россельхозбанк, Банк «Санкт-Петербург, Совкомбанк.
Позвоните и узнайте условия покупки прямо сейчас!
31.01.2026
5 856 200 ₽
Продается 1-комн. квартира, площадью 32.02 м2 в монолитно-кирпичной новостройке в 15 мин. транспортом от м. Девяткино. Возможен вариант покупки с использованием ипотечных средств, есть рассрочка, возможна покупка с использованием материнского капитала.
Жилая площадь 10.69 м2, кухня 13.08 м2, чистовая отделка, комнаты изолированные.
Квартира располагается на 1 этаже 20-этажного дома в ЖК Стороны света-2.
Застройщик - ГК Прок, сдача дома - I квартал 2027 года, высота потолков 2.54 м. Инфраструктура: детские площадки, спортивные площадки, места для отдыха.
ЖК комфорт-класса "Стороны света-2 строится в г. Бугры Ленинградской области, прямо на границе с Санкт-Петербургом. Мечта о спокойной жизни вблизи северной столицы стала еще реальнее.
Акция: 1-комнатные квартиры по цене студии от 4,9 млн. рублей! Отделка на выбор: чистовая либо white box!
Программа рассрочки «Фиксированный ежемесячный платеж» для ЖК "Стороны света-2" (корпуса 17 и 20) !
Первый взнос -25% от стоимости квартиры. Оплачивается при заключении Договора;
Ежемесячно вносится фиксированная сумма (35 000 рублей за студию и 1-к квартиру; 45 000 рублей - за 2-к и 3-к квартиры) ;
Остаток вносится до 01.12.2026 года.
Программа рассрочки «3 платежа» для ЖК "Стороны света-2" (корпуса 17 и 20) !
Первый взнос -25% от стоимости квартиры. Оплачивается при заключении Договора;
Платеж 35% от стоимости квартиры вносится через 6 месяцев;
Остаток 40% вносится до 01.12.2026 года.
От ЖК ходит общественный транспорт до ст. метро «Девяткино», «пр. Просвещения» и «Парнас». Есть 2 удобных выезда на КАД, развитая система наземного транспорта. Ж/Д станция «Девяткино», автовокзал «Северный» в 15 минутах езды.
Аккредитованные банки: ВТБ, Банк ДОМ. РФ, Промсвязьбанк, Ак Барс Банк, Альфа-Банк, СберБанк, Абсолют Банк, Банк «УБРиР», Россельхозбанк, Банк «Санкт-Петербург, Совкомбанк.
Позвоните и узнайте условия покупки прямо сейчас!
31.01.2026
4 899 060 ₽
ПРОДАЁТСЯ за НАЛИЧНЫЙ и БЕЗНАЛИЧНЫЙ РАСЧЁТ. Продажи в семейную ипотеку нет, так как дом оформлен на физлицо.
Дом построен по индивидуальному проекту. Основание дома - бетонная плита, толщиной 250 мм., с трубами тёплого пола. Дом подготовлен для окончательной отделки: стены оштукатурены под обои, на полу стяжка, для укладки ламината или керамической плитки. На каждом этаже по туалету, на первом этаже предусмотрена установка ванны, на втором душевой кабины. На первом этаже тёплый пол, на втором батареи отопления, сделана разводка электросетей. Интернет через оптоволоконный кабель. Водоснабжение из скважины. Очистные сооружения - биостанция. К дому примыкает гараж, где возможно размещение до четырёх автомобилей. С лицевой стороны дома открытая терраса, площадью 35 кв.метров (её площадь, в общую площадь дома, не входит). Участок, 10 соток, огорожен забором из евроштакетника. Ворота сдвижные автоматические.
22.01.2026
18 000 000 ₽
Продается 3-комн. квартира свободной планировки, площадью 68.6 м2, в 36 мин. транспортом от м.Шушары в Пушкинском районе Санкт-Петербурга.
Жилая площадь 23.3 м2, кухня 12.4 кв.м, ремонт не нужен, можно жить, есть бытовая техника: стиральная машина, холодильник, телевизор, кондиционер, посудомоечная машина, микроволновая печь. Раздельных санузлов - 1.
На полу ламинат, балконов - 1, окна выходят во двор.
Квартира располагается на 3 этаже 3-этажного дома.
Сделана перепланировка - надстроена антресоль, площадью 10 кв.м. Проект согласован и утвержден. Площадь антресоли в общую площадь не входит. Все остальное на фотографиях. Площадка для стоянки автомобилей внутри огороженной территории. До входа в Павловский парк - 500 метров. Продовольственный магазин в 30 метрах. Рядом остановка автобуса. Один взрослый собственник. Никто не прописан. Без обременений. Звоните, приезжайте, поторгуемся, найдём общий язык, достигнем результата!
22.01.2026
23 500 000 ₽
Продается 1-комн. квартира, площадью 32.02 м2 в монолитно-кирпичной новостройке в 15 мин. транспортом от м. Девяткино. Возможен вариант покупки с использованием ипотечных средств, есть рассрочка, возможна покупка с использованием материнского капитала.
Жилая площадь 10.69 м2, кухня 13.08 м2, чистовая отделка, комнаты изолированные.
Квартира располагается на 1 этаже 20-этажного дома в ЖК Стороны света-2.
Застройщик - ГК Прок, сдача дома - I квартал 2027 года, высота потолков 2.54 м. Инфраструктура: детские площадки, спортивные площадки, места для отдыха.
ЖК комфорт-класса "Стороны света-2 строится в г. Бугры Ленинградской области, прямо на границе с Санкт-Петербургом. Мечта о спокойной жизни вблизи северной столицы стала еще реальнее.
Акция: 1-комнатные квартиры по цене студии от 4,9 млн. рублей! Отделка на выбор: чистовая либо white box!
Программа рассрочки «Фиксированный ежемесячный платеж» для ЖК "Стороны света-2" (корпуса 17 и 20) !
Первый взнос -25% от стоимости квартиры. Оплачивается при заключении Договора;
Ежемесячно вносится фиксированная сумма (35 000 рублей за студию и 1-к квартиру; 45 000 рублей - за 2-к и 3-к квартиры) ;
Остаток вносится до 01.12.2026 года.
Программа рассрочки «3 платежа» для ЖК "Стороны света-2" (корпуса 17 и 20) !
Первый взнос -25% от стоимости квартиры. Оплачивается при заключении Договора;
Платеж 35% от стоимости квартиры вносится через 6 месяцев;
Остаток 40% вносится до 01.12.2026 года.
От ЖК ходит общественный транспорт до ст. метро «Девяткино», «пр. Просвещения» и «Парнас». Есть 2 удобных выезда на КАД, развитая система наземного транспорта. Ж/Д станция «Девяткино», автовокзал «Северный» в 15 минутах езды.
Аккредитованные банки: ВТБ, Банк ДОМ. РФ, Промсвязьбанк, Ак Барс Банк, Альфа-Банк, СберБанк, Абсолют Банк, Банк «УБРиР», Россельхозбанк, Банк «Санкт-Петербург, Совкомбанк.
Позвоните и узнайте условия покупки прямо сейчас!
31.01.2026
4 899 060 ₽
Продается 1-комн. квартира, площадью 32.02 м2 в монолитно-кирпичной новостройке в 15 мин. транспортом от м. Девяткино. Возможен вариант покупки с использованием ипотечных средств, есть рассрочка, возможна покупка с использованием материнского капитала.
Жилая площадь 10.69 м2, кухня 13.08 м2, чистовая отделка, комнаты изолированные.
Квартира располагается на 1 этаже 20-этажного дома в ЖК Стороны света-2.
Застройщик - ГК Прок, сдача дома - I квартал 2027 года, высота потолков 2.54 м. Инфраструктура: детские площадки, спортивные площадки, места для отдыха.
ЖК комфорт-класса "Стороны света-2 строится в г. Бугры Ленинградской области, прямо на границе с Санкт-Петербургом. Мечта о спокойной жизни вблизи северной столицы стала еще реальнее.
Акция: 1-комнатные квартиры по цене студии от 4,9 млн. рублей! Отделка на выбор: чистовая либо white box!
Программа рассрочки «Фиксированный ежемесячный платеж» для ЖК "Стороны света-2" (корпуса 17 и 20) !
Первый взнос -25% от стоимости квартиры. Оплачивается при заключении Договора;
Ежемесячно вносится фиксированная сумма (35 000 рублей за студию и 1-к квартиру; 45 000 рублей - за 2-к и 3-к квартиры) ;
Остаток вносится до 01.12.2026 года.
Программа рассрочки «3 платежа» для ЖК "Стороны света-2" (корпуса 17 и 20) !
Первый взнос -25% от стоимости квартиры. Оплачивается при заключении Договора;
Платеж 35% от стоимости квартиры вносится через 6 месяцев;
Остаток 40% вносится до 01.12.2026 года.
От ЖК ходит общественный транспорт до ст. метро «Девяткино», «пр. Просвещения» и «Парнас». Есть 2 удобных выезда на КАД, развитая система наземного транспорта. Ж/Д станция «Девяткино», автовокзал «Северный» в 15 минутах езды.
Аккредитованные банки: ВТБ, Банк ДОМ. РФ, Промсвязьбанк, Ак Барс Банк, Альфа-Банк, СберБанк, Абсолют Банк, Банк «УБРиР», Россельхозбанк, Банк «Санкт-Петербург, Совкомбанк.
Позвоните и узнайте условия покупки прямо сейчас!
31.01.2026
4 899 060 ₽
Помещение под офис площадью 64.6 кв.м, на 2 этаже 14-этажного бизнес-центра класса A в 15 мин. транспортом от м.Новочеркасская в Красногвардейском районе Санкт-Петербурга. Высота потолков: 3.37 м. Офис предоставляется в прямую аренду, срок аренды - любой, с предоплатой за 1 месяц. Минимальный срок аренды 11 мес. Офис со стандартной отделкой, внутри открытая планировка, на полу ковролин, тип окон - витринные, окна выходят во двор.
Офис расположен в центре "Office L27 (Офис Л27)", общая площадь здания 15808 м2, здание построено в 2016 году, здание полностью функционирует, доступ в здание осуществляется по пропускам, доступ в здание круглосуточный.
Вход в офис - общий с улицы. В здании есть лифт, охрана, в офисе центральное кондиционирование, вентиляция офиса - приточная, центральное отопление, спринклерная система пожаротушения.
23.12.2025
142 120 ₽
Недалеко от г. Павловска, Пушкина в г. Коммунар, деревня Монделево Гатчинского района. д. 15-Б продается жилой 2-этажный жилой дом площадью 73,5 кв. м. 2022 года постройки на земельном участке 7,5 сот.
Деревня газифицирована. Магистральный газ - по границе участка.
Жилой дом расположен на берегу карьера. Среди фотографий объявления представлен вид из окна в летнее время на водоем. Карьер чистый. Жители купаются в нем.
Тихое, спокойное, комфортное место для проживания. Вся инфраструктура - в шаговой доступности.
Земли населенных пунктов. Вид разрешенного использования - для ведения личного подсобного хозяйства.
Дом - жилой. Каркасный. Построен в 2022 году русской бригадой с качественным контролем проводимых строительных работ.
Все необходимые документы по строительству дома и используемым материалам - предоставим.
Скважина, анаэробный септик. Отопление – электрокотел. Электричество - 15 кВт.
Дом теплый. В нем на постоянной основе проживает собственница. Круглогодичное проживание.
Санузлы - на каждом этаже.
Метраж:
1 этаж: кухня 10 кв. см., гостиная 13,35 кв. м, тамбур - 2,5 кв. м.,
совмещенный санузел – 4 кв. м., крыльцо - 4,2 кв. м, веранда- 18 кв. м. Веранда полноценно утеплена. Используется как жилое помещение.
2 этаж: холл - 2,65кв. м., комнаты - 9,75 + 12,4 кв. м., совмещенный санузел - 2,4 кв. м.
Земельный участок выровнен, огорожен. Высажены садовые кустарники и деревья. Многочисленные туи вдоль забора. Хорошая подъездная дорога. Дороги регулярно чистят от снега.
Удобная транспортная доступность - автобусная остановка в шаговой доступности от дома. До г. Павловска - 15 минут на транспорте.
2 железнодорожные станции – Кобралово и Антропшино. Общественный транспорт- до Павловска, Гатчины, Кобралово, станции метро Купчино и Московская. Маршруты - 478, 527, 529, 545А, К545. Детский сад, школа, амбулатория-5 минут транспортом. Расположенный рядом город Коммунар имеет всю необходимую инфраструктуру - магазины, поликлиники, МФЦ, банк, бассейн, детские образовательные и развлекательные учреждения.
Объект недвижимости принадлежит собственнице на основании договора купли-продажи земельного участка от 2015 года, договора дарения доли участка и технического плана здания от 2022 года. Собственница в момент покупки участка и постройки дома была не в браке. Подтверждающие документы из архива ЗАГСа - предоставим. Полная стоимость в договоре! Обременений нет. Подходим под ипотеку, мат. капитал. сертификаты.
20.01.2026
10 999 999 ₽
Продается 2-комн. квартира с европланировкой, площадью 75,28 м2, в 13 минутах пешком от метро Новочеркасская в Красногвардейском районе Санкт-Петербурга.
Жилая площадь 26,59 м2, кухня 27,02 м2.
Квартира располагается в ЖК Magnifika Residence.
Жить в Magnifika Residence — значит брать от города лучшее: камерную атмосферу Охты и близость к историческому центру. У жителей Magnifika все под рукой: современный торгово-развлекательный центр «Охта-Молл» — через дорогу, кафе, рестораны, кино и театры — в двух шагах. Дорога до центра города займет всего несколько минут как на собственном, так и на общественном транспорте.
Magnifika — это единство скандинавской архитектуры, стилистики европейских портовых городов и типично петербургских архитектурных приёмов. Фасады с облицовкой из кирпича ручной формовки, панорамное остекление, разнообразие балконов и дизайн общественных пространств в стиле лофт — всё создано для того, чтобы называть Magnifika домом мечты.
Дворы Magnifika – это обилие зелени, взрослые деревья, зелёные холмы, разноуровневое освещение и природные материалы. Пространство закрыто от случайных прохожих и включает в себя места для отдыха, общения и прогулок. Приезжаете посмотреть своими глазами – и вы будете приятно удивлены вниманию к деталям и качеству исполнению.
Дома расположены на полностью огороженной и закрытой от посторонних территории с системами видеонаблюдения и контроля доступа. В парадных размещены колясочные, а у входов в подъезды — велопарковки. К подземному паркингу и индивидуальным кладовым можно спуститься на лифте OTIS из своей парадной.
У всех жителей Magnifika есть доступ к уже реализованной благоустроенной набережной, находиться на которой комфортно в любое время года. Прогулочная зона у воды, амфитеатр, гамаки, столы для настольных игр и зоны йоги: все это уже готово и ждет вас непосредственно около жилого комплекса.
17.01.2026
26 000 000 ₽
Земельный участок Садовая аллея, 15 площадью 16 соток в дачном поселке Стремление.
Удобная транспортная доступность: Краснофлотское шоссе, 75 км от КАД. Коммуникации: электричество по границе участка (подключение через Ленэнерго, прямой договор с ПСК, двухтарифный учет).
В 30 метрах от участка красивый грибной лес, в 10 мин. езды чистейшее Копанское озеро и Финский залив.
Дороги отсыпаны асфальтовой крошкой, круглогодичный подъезд.
Категория земли - земли с/х назначения, разрешенное использование - дачное строительство, позволяющее прописаться в построенном доме. Документы на руках, прямая продажа от собственника.
Возможна беспроцентная рассрочка сроком на год. Вынос границ геодезистом - в подарок.
28.11.2025
834 000 ₽
Продается 1-комн. квартира, площадью 31.9 м2 в Пушкинском районе Санкт-Петербурга.
Жилая площадь 15.4 м2, кухня 10.9 кв. м, ремонта нет, комнаты изолированные.
Квартира располагается на 4 этаже 9-этажного кирпичного дома.
20.01.2026
4 192 000 ₽
Продается студия, площадью 29.4 м2.
Жилая площадь 19.75 м2, кухня 4.41 кв. м, ремонта нет, комнаты смежные.
Квартира располагается на 10 этаже 11-этажного монолитного дома.
20.01.2026
3 966 920 ₽
Продается 1-комн. квартира, площадью 39.32 м2 в малоэтажной. Возможен вариант покупки с использованием ипотечных средств, возможна покупка с использованием материнского капитала, есть военная ипотека.
Жилая площадь 21.68 м2, кухня 10.72 м2, комнаты изолированные.
Квартира располагается на 4 этаже 4-этажного дома в ЖК Верево Сити.
Застройщик - Строй Бизнес Групп специализированный застройщик, сдача дома - II квартал 2025 года, закрытая территория.
Парковка автомобилей - наземная, парковка охраняется. Обеспечение безопасности: видеонаблюдение. Инфраструктура: школа, детский сад, поликлиника, детские площадки, спортивные площадки, места для отдыха, супермаркет.
Для бронирования конкретной квартиры звоните по номеру телефона в объявлении.
ЖК Верево Сити - это современный городской жилой квартал малоэтажной застройки.
В 10-ти четырехэтажных корпусах сможет поселиться 1171 семья. Дома располагаются блоками, образуя уютные закрытые и безопасные дворы с большим количеством зеленых насаждений и с зонами отдыха для взрослых и детей.
В ЖК Верево Сити самое низкое ценовое предложение в Ленинградской области и пригородах Санкт-Петербурга, что позволит вам приобрести жилье большей площади, нежели в других жилых комплексах.
Отделка - черновая.
Комфортная среда для жизни:
- малоэтажные красивые здания современной архитектуры, с большой площадью остекления
- обособленная территория
- продуманные планировки, как привычные одно- и двухкомнатные квартиры, так и европланировки
- небольшая плотность населения: комплекс располагается на 6,5 га земли
- полная внутренняя инфраструктура, которая позволит жить с комфортом
Позвоните и узнайте условия покупки прямо сейчас!
Аккредитованные банки: ПАО Сбербанк
Позвоните и узнайте условия покупки прямо сейчас!
03.12.2025
4 529 664 ₽
Продается 2-комн. квартира с европланировкой, площадью 74 кв. м в 5 мин. транспортом от м. Пионерская.
Жилая площадь 32,5 м2, кухня 26,6 кв. м, без ремонта.
Квартира располагается на 1 этаже 6-этажного кирпичного дома. Дом оборудован пассажирским лифтом, есть подземная парковка.
11.02.2026
25 309 850 ₽
Продается 2-комн. квартира с европланировкой, площадью 80,1 кв. м в 5 мин. транспортом от м. Пионерская.
Жилая площадь 30,1 м2, кухня 14,4 кв. м, без ремонта.
Квартира располагается на 5 этаже 6-этажного кирпичного дома. Дом оборудован пассажирским лифтом, есть подземная парковка.
11.02.2026
30 702 330 ₽
Продается 2-комн. квартира, площадью 42.6 м2.
Жилая площадь 19.3 кв. м, кухня 6.39 кв. м, ремонта нет.
Квартира располагается на 4 этаже 4-этажного монолитного дома.
20.01.2026
3 580 800 ₽
Продается 2-комн. квартира, площадью 50.2 кв. м в Пушкинском районе Санкт-Петербурга.
Жилая площадь 31.2 м2, кухня 8.4 кв. м, ремонта нет.
Квартира располагается на 3 этаже 9-этажного кирпичного дома.
20.01.2026
6 169 400 ₽
Продается 1-комн. квартира, площадью 37.95 м2 в малоэтажной. Возможен вариант покупки с использованием ипотечных средств, возможна покупка с использованием материнского капитала, есть военная ипотека.
Жилая площадь 14.43 м2, кухня 15 м2, комнаты изолированные.
Квартира располагается на 1 этаже 4-этажного дома в ЖК Верево Сити.
Застройщик - Строй Бизнес Групп специализированный застройщик, сдача дома - II квартал 2025 года, закрытая территория.
Парковка автомобилей - наземная, парковка охраняется. Обеспечение безопасности: видеонаблюдение. Инфраструктура: школа, детский сад, поликлиника, детские площадки, спортивные площадки, места для отдыха, супермаркет.
Для бронирования конкретной квартиры звоните по номеру телефона в объявлении.
ЖК Верево Сити - это современный городской жилой квартал малоэтажной застройки.
В 10-ти четырехэтажных корпусах сможет поселиться 1171 семья. Дома располагаются блоками, образуя уютные закрытые и безопасные дворы с большим количеством зеленых насаждений и с зонами отдыха для взрослых и детей.
В ЖК Верево Сити самое низкое ценовое предложение в Ленинградской области и пригородах Санкт-Петербурга, что позволит вам приобрести жилье большей площади, нежели в других жилых комплексах.
Отделка - черновая.
Комфортная среда для жизни:
- малоэтажные красивые здания современной архитектуры, с большой площадью остекления
- обособленная территория
- продуманные планировки, как привычные одно- и двухкомнатные квартиры, так и европланировки
- небольшая плотность населения: комплекс располагается на 6,5 га земли
- полная внутренняя инфраструктура, которая позволит жить с комфортом
Позвоните и узнайте условия покупки прямо сейчас!
Аккредитованные банки: ПАО Сбербанк
Позвоните и узнайте условия покупки прямо сейчас!
03.12.2025
4 371 840 ₽
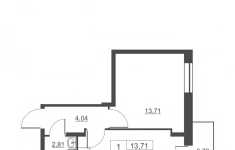
Продается 1-комн. квартира, площадью 35.51 м2.
Жилая площадь 13.71 м2, кухня 13.83 кв. м, ремонта нет, комнаты изолированные.
Квартира располагается на 10 этаже 11-этажного монолитного дома.
20.01.2026
4 412 730 ₽
Продается 1-комн. квартира, площадью 35.3 м2.
Жилая площадь 16.25 м2, кухня 10.36 кв. м, ремонта нет, комнаты изолированные.
Квартира располагается на 10 этаже 11-этажного монолитного дома.
20.01.2026
4 448 190 ₽




















