Объявление о квартирах в Марфино - Страница 16
- Марфино »
- Недвижимость
- » Квартиры в Марфино
Продается просторная квартира площадью 218.60 м2 в жилом комплексе РЕКА. Квартира находится в 1 секции корпуса 3 (будет введен в эксплуатацию в 4 кв. 2026) . Этаж 6-й из 16.
В квартире продуманная функциональная планировка с просторной кухней 54.60 м2. Жилая площадь - 89.50 м2. Высота потолка от 3,65 м. Изолированные комнаты, 4 санузла(1 раздельный и 3 совмещенных) . Окна на три стороны света. Виды на природный парк и реку.
РЕКА - клубный дом от Донстрой на западе Москвы, у границы природного заповедника "Долина реки Сетунь", по соседству с МГУ и МГИМО, дипломатическими представительствами зарубежных стран. В 5 минутах ходьбы находится станция метро "Мичуринский проспект", от которой до центра можно доехать за 15 минут. Также 15 минут понадобится, чтобы добраться на автомобиле до Садового кольца.
Прямо из дома можно попасть в природную часть грандиозного парка "Событие". Здесь созданы детские игровые площадки "Луг" и "Лес", большая воркаут-зона, поле для командных видов спорта, площадка для пикников, смотровые площадки с великолепными видами, летний амфитеатр для лекториев и летняя школа.
Архитектурный проект дома выполнен в стиле современной классики: фасады с облицовкой из натурального камня и металлическими декоративными элементами.
В доме представлены элитные клубные резиденции. Одна из секций целиком состоит из квартир с финишной авторской отделкой: дизайнерские интерьеры, итальянские кухни, премиальная бытовая техника и сантехника. В наличии имеются пентхаусы с террасами и каминами.
В непосредственной близости от дома предусмотрены школы, детские сады, магазины, фитнес-центры, кафе и рестораны, медицинские центры - все, что необходимо для жизни.
Закрытый двор без машин обеспечен круглосуточной охраной и системами контроля доступа. Двор создан как ландшафтное продолжение окружающих природных парков и зонирован для различных видов отдыха, детских игр, занятий спортом.
Работает шоурум.
Позвоните и запишитесь на показ квартиры.
05.09.2025
238 055 400 ₽
Продаётся квартира от застройщика: общая площадь 167.50 м, жилая 106.40 м, кухня 14.30 м, 15-й этаж, жилой квартал «Остров 7», корпус 6 (секция 2) . Срок сдачи: 3 квартал 2028 года.
3 совмещенных санузла. В жилой зоне 2 больших окна на одну сторону, хорошая инсоляция.
Позвоните сейчас и забронируйте квартиру!
ОСТРОВ от Донстрой - жилой комплекс на западе Москвы, в Мневниковской пойме. Уникальное преимущество комплекса - в том, что он обособлен от города рекой и природным парком (650 га) . Благодаря природному окружению эта территория имеет лучший экологический рейтинг в столице. Кварталы ОСТРОВА объединены ландшафтным дизайном в единое пространство - с набережными и Центральным бульваром. На ОСТРОВЕ любые объекты, необходимые для полноценной жизни и отдыха, находятся на расстоянии 15-минутной прогулки. Торговый центр и супермаркеты, кафе и рестораны, фитнес, салоны красоты, школы и детские сады. А также крупнейший в Москве спортивный кластер.
25.08.2025
126 630 000 ₽
Продаётся 2-комн. квартира от застройщика: общая площадь 91.20 м, жилая 26.00 м, кухня 35.80 м, 16-й этаж, жилой квартал «Остров 7», корпус 3 (секция 2) . Срок сдачи: 1 квартал 2028 года.
2 совмещенных санузла. В жилой зоне 2 больших окна на одну сторону, хорошая инсоляция.
Позвоните сейчас и забронируйте квартиру!
ОСТРОВ от Донстрой - жилой комплекс на западе Москвы, в Мневниковской пойме. Уникальное преимущество комплекса - в том, что он обособлен от города рекой и природным парком (650 га) . Благодаря природному окружению эта территория имеет лучший экологический рейтинг в столице. Кварталы ОСТРОВА объединены ландшафтным дизайном в единое пространство - с набережными и Центральным бульваром. На ОСТРОВЕ любые объекты, необходимые для полноценной жизни и отдыха, находятся на расстоянии 15-минутной прогулки. Торговый центр и супермаркеты, кафе и рестораны, фитнес, салоны красоты, школы и детские сады. А также крупнейший в Москве спортивный кластер.
25.08.2025
91 291 200 ₽
Продаётся 1-комн. квартира от застройщика: общая площадь 44.00 м, жилая 14.30 м, кухня 19.40 м, 21-й этаж, жилой квартал «Остров 7», корпус 7 (секция 1) . Срок сдачи: 3 квартал 2028 года.
1 совмещенный санузел. В жилой зоне 2 больших окна на одну сторону, хорошая инсоляция.
Позвоните сейчас и забронируйте квартиру!
ОСТРОВ от Донстрой - жилой комплекс на западе Москвы, в Мневниковской пойме. Уникальное преимущество комплекса - в том, что он обособлен от города рекой и природным парком (650 га) . Благодаря природному окружению эта территория имеет лучший экологический рейтинг в столице. Кварталы ОСТРОВА объединены ландшафтным дизайном в единое пространство - с набережными и Центральным бульваром. На ОСТРОВЕ любые объекты, необходимые для полноценной жизни и отдыха, находятся на расстоянии 15-минутной прогулки. Торговый центр и супермаркеты, кафе и рестораны, фитнес, салоны красоты, школы и детские сады. А также крупнейший в Москве спортивный кластер.
25.08.2025
40 682 400 ₽
Продается 3-комнатная квартира в доме Champine (Сосинская, д. 8) .
Дом введен в эксплуатацию!
Общая площадь квартиры - 75.37 кв.м. В квартире выполнена премиальная отделка в современном стиле.
Отделка выполнена из высококачественных материалов: на полу - инженерная доска, на стенах - финишная покраска, потолок из ГКЛ белого цвета с нишами под шторы. Установлены точёные светильники и сделаны выводы под люстры. В каждой комнате будет установлена сплит-система с внутренним и внешним блоком, электрофурнитура (розетки, выключатели) . В санузлах установлена вся сантехника, тумбочка под раковину, оборудован теплый пол. Благодаря увеличенным окнам и высоким потолкам квартира наполнится светом и воздухом.
Champine - дом с камерной атмосферой, где каждая деталь продумана для вашего удобства.
Дом состоит из трех корпусов высотой от 6 до 13 этажей и рассчитан всего на 238 квартир. В проекте будет закрытая территория с видеонаблюдением. Предусмотрен подземный паркинг на 169 машино-мест, каждое из которых можно оборудовать зарядкой для электромобилей.
Дизайнерская отделка лобби и консьерж-сервис 24/7 сделают вашу жизнь в доме еще комфортнее.
Под благоустройство выделено 8 000 кв. м территории. Во внутреннем дворе будут игровые и спортивные площадки, а также зоны отдыха для взрослых и детей.
Расположенный на границе ЦАО Champine станет тем местом, куда действительно хочется вернуться после рабочего дня. Кирпично-монолитная технология также станет плюсом. Дом сдан.
Не упустите свой шанс стать обладателем квартиры в доме Champine!
11.10.2025
53 090 000 ₽
Продается 1-комнатная квартира в доме Champine (Сосинская, д. 8) .
Дом введен в эксплуатацию!
Общая площадь квартиры - 42.8 кв.м. В квартире выполнена премиальная отделка в неоклассическом стиле.
Отделка выполнена из высококачественных материалов: на полу - инженерная доска, на стенах - финишная покраска, потолок из ГКЛ белого цвета с нишами под шторы. Установлены точёные светильники и сделаны выводы под люстры. В каждой комнате будет установлена сплит-система с внутренним и внешним блоком, электрофурнитура (розетки, выключатели) . В санузлах установлена вся сантехника, тумбочка под раковину, оборудован теплый пол. Благодаря увеличенным окнам и высоким потолкам квартира наполнится светом и воздухом.
Champine - дом с камерной атмосферой, где каждая деталь продумана для вашего удобства.
Дом состоит из трех корпусов высотой от 6 до 13 этажей и рассчитан всего на 238 квартир. В проекте будет закрытая территория с видеонаблюдением. Предусмотрен подземный паркинг на 169 машино-мест, каждое из которых можно оборудовать зарядкой для электромобилей.
Дизайнерская отделка лобби и консьерж-сервис 24/7 сделают вашу жизнь в доме еще комфортнее.
Под благоустройство выделено 8 000 кв. м территории. Во внутреннем дворе будут игровые и спортивные площадки, а также зоны отдыха для взрослых и детей.
Расположенный на границе ЦАО Champine станет тем местом, куда действительно хочется вернуться после рабочего дня. Кирпично-монолитная технология также станет плюсом. Дом сдан.
Не упустите свой шанс стать обладателем квартиры в доме Champine!
11.10.2025
34 380 000 ₽
Продается 2-комнатная квартира в доме Champine (Сосинская, д. 8) .
Дом введен в эксплуатацию!
Общая площадь квартиры - 64 кв.м. В квартире выполнена премиальная отделка в неоклассическом стиле.
Отделка выполнена из высококачественных материалов: на полу - инженерная доска, на стенах - финишная покраска, потолок из ГКЛ белого цвета с нишами под шторы. Установлены точёные светильники и сделаны выводы под люстры. В каждой комнате будет установлена сплит-система с внутренним и внешним блоком, электрофурнитура (розетки, выключатели) . В санузлах установлена вся сантехника, тумбочка под раковину, оборудован теплый пол. Благодаря увеличенным окнам и высоким потолкам квартира наполнится светом и воздухом.
Champine - дом с камерной атмосферой, где каждая деталь продумана для вашего удобства.
Дом состоит из трех корпусов высотой от 6 до 13 этажей и рассчитан всего на 238 квартир. В проекте будет закрытая территория с видеонаблюдением. Предусмотрен подземный паркинг на 169 машино-мест, каждое из которых можно оборудовать зарядкой для электромобилей.
Дизайнерская отделка лобби и консьерж-сервис 24/7 сделают вашу жизнь в доме еще комфортнее.
Под благоустройство выделено 8 000 кв. м территории. Во внутреннем дворе будут игровые и спортивные площадки, а также зоны отдыха для взрослых и детей.
Расположенный на границе ЦАО Champine станет тем местом, куда действительно хочется вернуться после рабочего дня. Кирпично-монолитная технология также станет плюсом. Дом сдан.
Не упустите свой шанс стать обладателем квартиры в доме Champine!
11.10.2025
48 320 000 ₽
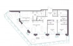
Продается просторная квартира площадью 144.70 м2 в жилом комплексе ДОМ XXII. Квартира находится в 1 секции корпуса 1. Этаж 2-й из 11.
Квартира без чистовой отделки, с просторной кухней 34.20 м2. Жилая площадь - 42.40 м2. Высота потолка от 3.50.
ДОМ XXII расположен в Хамовниках - одном из самых респектабельных и тихих районов Москвы. Прямо напротив дома - Новодевичий монастырь, по соседству - Саввинская набережная Москвы-реки и сквер Девичьего поля. Расположение дома позволяет за считанные минуты добраться до всех знаковых мест столицы. Например, на автомобиле до Садового кольца 5 минут, до Дома Правительства - 8, до Кремля - 10.
Неоклассический архитектурный проект переменной этажности (9-12 этажей) выполнен мастерской «Сергей Киселев и Партнеры». Фасады облицованы натуральным мрамором и гранитом, их оригинальный декор создан Андреем, Павлом и Петром Наличами. Благородный силуэт дома подчеркнут французскими балконами и моллированным остеклением на углах.
В доме всего 109 квартир: лоты с патио, пентхаусы с панорамными террасами и возможностью установки камина, а также классические элитные квартиры с большими гостиными, мастер-спальнями, приватными ванными и гардеробными, террасами и лоджиями.
У дома предусмотрена зона дроп-офф. В интерьерах лобби использованы люксовые отделочные материалы, эксклюзивные световые инсталляции, декоративное озеленение. Премиальную атмосферу дополняют зенитный фонарь с естественным светом, водопад, лаунж у камина и библиотека. Площадь лобби 660 м2, высота потолков - до 6,5 м.
Двор превращен в тихий усадебный парк площадью 490 м2. Здесь создана приватная атмосфера для уединенного отдыха: дубовая аллея, пруд с живописным мостиком, галерея-берсо, зеленые комнаты, садовый камин, фонтаны. Для детей - игровая площадка. Для занятий спортом - воркаут. Предусмотрен контроль доступа на территорию, круглосуточная охрана, видеонаблюдение.
Неподалеку находятся лучшие школы: №57, №1535, Филипповская школа, школа «Золотое Сечение». Для знатоков гастрономии рядом - лучшие рестораны: Verd, Peach, «Сахалин», Modus, Soho Rooms, модный гастрономический кластер «Усачевский рынок». Для занятий спортом - спортивный комплекс «Лужники». Для ценителей искусства - Московский дворец молодежи
05.09.2025
263 064 600 ₽
Продается просторная квартира площадью 219.00 м2 в жилом комплексе РЕКА. Квартира находится в 4 секции корпуса 3 (будет введен в эксплуатацию в 4 кв. 2026) . Этаж 12-й из 14.
В квартире продуманная функциональная планировка с просторной кухней 34.60 м2. Жилая площадь - 99.20 м2. Высота потолка от 3,65 м. Изолированные комнаты, 3 санузла(1 раздельный и 2 совмещенных) . Окна на противоположные стороны. Виды на природный парк и реку.
РЕКА - клубный дом от Донстрой на западе Москвы, у границы природного заповедника "Долина реки Сетунь", по соседству с МГУ и МГИМО, дипломатическими представительствами зарубежных стран. В 5 минутах ходьбы находится станция метро "Мичуринский проспект", от которой до центра можно доехать за 15 минут. Также 15 минут понадобится, чтобы добраться на автомобиле до Садового кольца.
Прямо из дома можно попасть в природную часть грандиозного парка "Событие". Здесь созданы детские игровые площадки "Луг" и "Лес", большая воркаут-зона, поле для командных видов спорта, площадка для пикников, смотровые площадки с великолепными видами, летний амфитеатр для лекториев и летняя школа.
Архитектурный проект дома выполнен в стиле современной классики: фасады с облицовкой из натурального камня и металлическими декоративными элементами.
В доме представлены элитные клубные резиденции. Одна из секций целиком состоит из квартир с финишной авторской отделкой: дизайнерские интерьеры, итальянские кухни, премиальная бытовая техника и сантехника. В наличии имеются пентхаусы с террасами и каминами.
В непосредственной близости от дома предусмотрены школы, детские сады, магазины, фитнес-центры, кафе и рестораны, медицинские центры - все, что необходимо для жизни.
Закрытый двор без машин обеспечен круглосуточной охраной и системами контроля доступа. Двор создан как ландшафтное продолжение окружающих природных парков и зонирован для различных видов отдыха, детских игр, занятий спортом.
Работает шоурум.
Позвоните и запишитесь на показ квартиры.
05.09.2025
205 641 000 ₽
Продается просторная квартира площадью 150.30 м2 в жилом комплексе РЕКА. Квартира находится в 4 секции корпуса 3 (будет введен в эксплуатацию в 4 кв. 2026) . Этаж 10-й из 14.
В квартире продуманная функциональная планировка с просторной кухней 35.70 м2. Жилая площадь - 48.70 м2. Высота потолка от 3,65 м. Изолированные комнаты, 4 санузла(1 раздельный и 3 совмещенных) . Окна на смежные стороны. Виды на природный парк и реку.
РЕКА - клубный дом от Донстрой на западе Москвы, у границы природного заповедника "Долина реки Сетунь", по соседству с МГУ и МГИМО, дипломатическими представительствами зарубежных стран. В 5 минутах ходьбы находится станция метро "Мичуринский проспект", от которой до центра можно доехать за 15 минут. Также 15 минут понадобится, чтобы добраться на автомобиле до Садового кольца.
Прямо из дома можно попасть в природную часть грандиозного парка "Событие". Здесь созданы детские игровые площадки "Луг" и "Лес", большая воркаут-зона, поле для командных видов спорта, площадка для пикников, смотровые площадки с великолепными видами, летний амфитеатр для лекториев и летняя школа.
Архитектурный проект дома выполнен в стиле современной классики: фасады с облицовкой из натурального камня и металлическими декоративными элементами.
В доме представлены элитные клубные резиденции. Одна из секций целиком состоит из квартир с финишной авторской отделкой: дизайнерские интерьеры, итальянские кухни, премиальная бытовая техника и сантехника. В наличии имеются пентхаусы с террасами и каминами.
В непосредственной близости от дома предусмотрены школы, детские сады, магазины, фитнес-центры, кафе и рестораны, медицинские центры - все, что необходимо для жизни.
Закрытый двор без машин обеспечен круглосуточной охраной и системами контроля доступа. Двор создан как ландшафтное продолжение окружающих природных парков и зонирован для различных видов отдыха, детских игр, занятий спортом.
Работает шоурум.
Позвоните и запишитесь на показ квартиры.
05.09.2025
132 564 600 ₽
Продается просторная квартира площадью 148.40 м2 в жилом комплексе РЕКА. Квартира находится в 4 секции корпуса 3 (будет введен в эксплуатацию в 4 кв. 2026) . Этаж 9-й из 14.
В квартире продуманная функциональная планировка с просторной кухней 35.70 м2. Жилая площадь - 47.10 м2. Высота потолка от 3,65 м. Изолированные комнаты, 4 санузла(1 раздельный и 3 совмещенных) . Окна на смежные стороны. Виды на природный парк и реку.
РЕКА - клубный дом от Донстрой на западе Москвы, у границы природного заповедника "Долина реки Сетунь", по соседству с МГУ и МГИМО, дипломатическими представительствами зарубежных стран. В 5 минутах ходьбы находится станция метро "Мичуринский проспект", от которой до центра можно доехать за 15 минут. Также 15 минут понадобится, чтобы добраться на автомобиле до Садового кольца.
Прямо из дома можно попасть в природную часть грандиозного парка "Событие". Здесь созданы детские игровые площадки "Луг" и "Лес", большая воркаут-зона, поле для командных видов спорта, площадка для пикников, смотровые площадки с великолепными видами, летний амфитеатр для лекториев и летняя школа.
Архитектурный проект дома выполнен в стиле современной классики: фасады с облицовкой из натурального камня и металлическими декоративными элементами.
В доме представлены элитные клубные резиденции. Одна из секций целиком состоит из квартир с финишной авторской отделкой: дизайнерские интерьеры, итальянские кухни, премиальная бытовая техника и сантехника. В наличии имеются пентхаусы с террасами и каминами.
В непосредственной близости от дома предусмотрены школы, детские сады, магазины, фитнес-центры, кафе и рестораны, медицинские центры - все, что необходимо для жизни.
Закрытый двор без машин обеспечен круглосуточной охраной и системами контроля доступа. Двор создан как ландшафтное продолжение окружающих природных парков и зонирован для различных видов отдыха, детских игр, занятий спортом.
Работает шоурум.
Позвоните и запишитесь на показ квартиры.
11.10.2025
129 404 800 ₽
НОВЫЙ СОВРЕМЕННЫЙ ЖИЛОЙ КОМПЛЕКС ОТ НАДЕЖНОГО ЗАСТРОЙЩИКА! В исторической части города, в непосредственной близости с Николо-Угрешским монастырем и Москвой-рекой. Дом Введен в эксплуатацию. Продается 3 комнатная крупногабаритная квартира, площадь 83/16,7/18,2/15.8/11,6 м2, два с/у 4/2.2 м2, прихожая 11,2 м2, лоджия 2,6 м2. Адрес: Московская область, г. Дзержинский, ул. Дзержинская д. 26 Возможна ИПОТЕКА. Дом комфорт класса с улучшенным планировочным решением. Тихий зеленый спальный район города. В нутри комплекса торговый центр, медицинский центр. Рядом с домом сетевые магазины Магнит, Пятерочка, фермерский магазин Алексеевский, Николо-угрешский монастырь. Хорошее сообщение с Москвой, остановка общественного транспорта через дорогу от дома до Москвы можно добраться на автобусе за 30 мин до м Кузьминки, Котельники, Люблино, Братиславская, Алма-Атинская, станция Люберцы ходят автобусы. Развитая инфраструктура города в шаговой доступности: школа, детский сад, детская площадка, автостоянка, сетевые и розничные магазины, отделение СберБанка, аптеки, поликлиника
28.08.2025
12 839 285 ₽
Продается 3-комн. квартира, площадью 82.9 м2 в монолитно-кирпичной новостройке. Возможен вариант покупки с использованием ипотечных средств.
Жилая площадь 50.3 м2, кухня 11.5 м2, квартира без отделки. Установлены межкомнатные перегородки. Установлены деревянные входные двери. Окна- пластиковые, с двухкамерным стеклопакетом. Балконы и лоджии с остеклением. Электроснабжение- установлен квартирный электросчётчик(без внутренней разводки). Сантехника-стояки без внутренней разводки с установкой водосчётчиков. Отопление- конверторное, с установленными радиаторами.
Квартира располагается на 4 этаже 8-этажного дома в ЖК Дзержинский.
Застройщик - ГК «Стройсоюз», сдача дома - II квартал 2023 года, дом уже сдан, высота потолков 3 м. Инфраструктура: детские площадки, спортивные площадки, места для отдыха.
Проект доступного и комфортного жилья состоит из семи жилых домов (односекционных и многосекционных) малой этажности, архитектура которых выполнена в едином стиле. Дома возводятся с учётом последних тенденций в строительстве, согласно технологическим регламентам, в том числе устанавливающим требования по обеспечению безопасной эксплуатации зданий и безопасного использования прилегающих территорий с соблюдением технических условий.
Все дома Жилого комплекса возводятся по монолитно-кирпичной технологии. Фасадные решения учитывают близость ансамбля Николо-Угрешского монастыря, и выполнены из «жемчужного» и «шоколадного» облицовочного полуторного кирпича. Витражное остекление офисной части представляет собой алюминиевый каркас с заполнением двухкамерным стеклопакетом, стекло прозрачное. Витражные системы — алюминий. Остекление квартирных балконов предусматривается в виде навесной алюминиевой фасадной системы с заполнением одинарным стеклом и стемалитом бирюзового цвета.
Отличное расположение — рядом с Николо-Угрешским монастырём и парком с живописным прудом. В непосредственной близости конечная остановка большинства городских автобусов. Рядом спортивный комплекс Орбита, одна из городских гимназий и большой торговый центр в районе Городского рынка.
Аккредитованные банки: СберБанк, Газпромбанк, Россельхозбанк, Абсолют Банк, СНГБ, Банк ЗЕНИТ, Альфа-Банк, Банк «Открытие, Райффайзен Банк, МКБ, Связь-банк, Банк «Возрождение», ВТБ, Совкомбанк, Банк Уралсиб, Ак Барс Банк, Банк ДОМ.РФ
Позвоните и узнайте условия покупки прямо сейчас!
28.08.2025
12 825 454 ₽
НОВЫЙ СОВРЕМЕННЫЙ ЖИЛОЙ КОМПЛЕКС ОТ НАДЕЖНОГО ЗАСТРОЙЩИКА! В исторической части города, в непосредственной близости с Николо-Угрешским монастырем и Москвой-рекой. Дом Введен в эксплуатацию. Продается 3 комнатная крупногабаритная квартира, площадь 83,4/16,4/18,3/15.9/11,5 м2, два с/у 4/2.2 м2, прихожая 11,2 м2, лоджия 2,6 м2. Адрес: Московская область, г. Дзержинский, ул. Дзержинская д. 26 Возможна ИПОТЕКА. Дом комфорт класса с улучшенным планировочным решением. Тихий зеленый спальный район города. В нутри комплекса торговый центр, медицинский центр. Рядом с домом сетевые магазины Магнит, Пятерочка, фермерский магазин Алексеевский, Николо-угрешский монастырь. Хорошее сообщение с Москвой, остановка общественного транспорта через дорогу от дома до Москвы можно добраться на автобусе за 30 мин до м Кузьминки, Котельники, Люблино, Братиславская, Алма-Атинская, станция Люберцы ходят автобусы. Развитая инфраструктура города в шаговой доступности: школа, детский сад, детская площадка, автостоянка, сетевые и розничные магазины, отделение СберБанка, аптеки, поликлиника
28.08.2025
12 894 609 ₽
НОВЫЙ СОВРЕМЕННЫЙ ЖИЛОЙ КОМПЛЕКС ОТ НАДЕЖНОГО ЗАСТРОЙЩИКА! В исторической части города, в непосредственной близости с Николо-Угрешским монастырем и Москвой-рекой. Дом Введен в эксплуатацию. Продается 1 комнатная крупногабаритная квартира, площадь 43,7/17,4/13 м2, с/у совмещ. 4,2 м2, прихожая 4,3 м2, балкон 5,2 м2. Адрес: Московская область, г. Дзержинский, Героя России Виктора Дудкина д.3. Возможна ИПОТЕКА. Дом комфорт класса с улучшенным планировочным решением. Тихий зеленый спальный район города. В нутри комплекса торговый центр, медицинский центр. Рядом с домом сетевые магазины Магнит, Пятерочка, фермерский магазин Алексеевский, Николо-угрешский монастырь. Хорошее сообщение с Москвой, остановка общественного транспорта через дорогу от дома до Москвы можно добраться на автобусе за 30 мин до м Кузьминки, Котельники, Люблино, Братиславская, Алма-Атинская, станция Люберцы ходят автобусы. Развитая инфраструктура города в шаговой доступности: школа, детский сад, детская площадка, автостоянка, сетевые и розничные магазины, отделение СберБанка, аптеки, поликлиника
28.08.2025
7 206 969 ₽
НОВЫЙ СОВРЕМЕННЫЙ ЖИЛОЙ КОМПЛЕКС ОТ НАДЕЖНОГО ЗАСТРОЙЩИКА! В исторической части города, в непосредственной близости с Николо-Угрешским монастырем и Москвой-рекой. Дом Введен в эксплуатацию. Продается 1 комнатная крупногабаритная квартира, площадь 43,4/17,3/13 м2, с/у совмещ. 4,2 м2, прихожая 4,3 м2, балкон 5,2 м2. Адрес: Московская область, г. Дзержинский, Героя России Виктора Дудкина д. 3 . Возможна ИПОТЕКА. Дом комфорт класса с улучшенным планировочным решением. Тихий зеленый спальный район города. В нутри комплекса торговый центр, медицинский центр. Рядом с домом сетевые магазины Магнит, Пятерочка, фермерский магазин Алексеевский, Николо-угрешский монастырь. Хорошее сообщение с Москвой, остановка общественного транспорта через дорогу от дома до Москвы можно добраться на автобусе за 30 мин до м Кузьминки, Котельники, Люблино, Братиславская, Алма-Атинская, станция Люберцы ходят автобусы. Развитая инфраструктура города в шаговой доступности: школа, детский сад, детская площадка, автостоянка, сетевые и розничные магазины, отделение СберБанка, аптеки, поликлиника
28.08.2025
7 162 284 ₽
НОВЫЙ СОВРЕМЕННЫЙ ЖИЛОЙ КОМПЛЕКС ОТ НАДЕЖНОГО ЗАСТРОЙЩИКА! В исторической части города, в непосредственной близости с Николо-Угрешским монастырем и Москвой-рекой. Дом Введен в эксплуатацию. Продается 1 комнатная крупногабаритная квартира, площадь 43,4/17,4/12,9 м2, Адрес: Московская область, г. Дзержинский, ул. Героя России Виктора Дудкина . Возможна ИПОТЕКА. Квартира с современной планировкой. Тихий зеленый спальный район города. Рядом с домом сетевые магазины Магнит, Пятерочка, фермерский магазин Алексеевский, Николо-угрешский монастырь. Хорошее сообщение с Москвой, остановка общественного транспорта через дорогу от дома до Москвы можно добраться на автобусе за 30 мин до м Кузьминки, Котельники, Люблино, Братиславская, Алма-Атинская, станция Люберцы ходят автобусы. Развитая инфраструктура города в шаговой доступности: школа, детский сад, детская площадка, автостоянка, сетевые и розничные магазины, отделение СберБанка, аптеки, поликлиника
28.08.2025
7 162 284 ₽
НОВЫЙ СОВРЕМЕННЫЙ ЖИЛОЙ КОМПЛЕКС ОТ НАДЕЖНОГО ЗАСТРОЙЩИКА! В исторической части города, в непосредственной близости с Николо-Угрешским монастырем и Москвой-рекой. Дом Введен в эксплуатацию. Продается 1 комнатная крупногабаритная квартира, площадь 43,3/17,2/13 м2, Адрес: Московская область, г. Дзержинский, ул.Героя России Виктора Дудкина . Возможна ИПОТЕКА. Квартира с современной планировкой. Тихий зеленый спальный район города. Рядом с домом сетевые магазины Магнит, Пятерочка, фермерский магазин Алексеевский, Николо-угрешский монастырь. Хорошее сообщение с Москвой, остановка общественного транспорта через дорогу от дома до Москвы можно добраться на автобусе за 30 мин до м Кузьминки, Котельники, Люблино, Братиславская, Алма-Атинская, станция Люберцы ходят автобусы. Развитая инфраструктура города в шаговой доступности: школа, детский сад, детская площадка, автостоянка, сетевые и розничные магазины, отделение СберБанка, аптеки, поликлиника
28.08.2025
7 147 389 ₽
НОВЫЙ СОВРЕМЕННЫЙ ЖИЛОЙ КОМПЛЕКС ОТ НАДЕЖНОГО ЗАСТРОЙЩИКА! В исторической части города, в непосредственной близости с Николо-Угрешским монастырем и Москвой-рекой. Дом Введен в эксплуатацию. Продается 2 комнатная крупногабаритная квартира, площадь 65,4/14,8/18,4/11,7 м2, с/у раздельный прихожая 10,6 м2, балкон 5,2 м2. Адрес: Московская область, г. Дзержинский, ул. Дзержинская д. 28. Возможна ИПОТЕКА. Квартира с современной планировкой. Тихий зеленый спальный район города. Рядом с домом сетевые магазины Магнит, Пятерочка, фермерский магазин Алексеевский, Николо-угрешский монастырь. Хорошее сообщение с Москвой, остановка общественного транспорта через дорогу от дома до Москвы можно добраться на автобусе за 30 мин до м Кузьминки, Котельники, Люблино, Братиславская, Алма-Атинская, станция Люберцы ходят автобусы. Развитая инфраструктура города в шаговой доступности: школа, детский сад, детская площадка, автостоянка, сетевые и розничные магазины, отделение СберБанка, аптеки, поликлиника
28.08.2025
9 157 134 ₽
НОВЫЙ СОВРЕМЕННЫЙ ЖИЛОЙ КОМПЛЕКС ОТ НАДЕЖНОГО ЗАСТРОЙЩИКА! В исторической части города, в непосредственной близости с Николо-Угрешским монастырем и Москвой-рекой. Дом Введен в эксплуатацию. Продается 2 комнатная крупногабаритная квартира, площадь 64/14,9/18,6/11,7 м2, с/у раздельный прихожая 10,6 м2, балкон 5,2 м2. Адрес: Московская область, г. Дзержинский, ул. Дзержинская д. 28. Возможна ИПОТЕКА. Квартира с современной планировкой. Тихий зеленый спальный район города. Рядом с домом сетевые магазины Магнит, Пятерочка, фермерский магазин Алексеевский, Николо-угрешский монастырь. Хорошее сообщение с Москвой, остановка общественного транспорта через дорогу от дома до Москвы можно добраться на автобусе за 30 мин до м Кузьминки, Котельники, Люблино, Братиславская, Алма-Атинская, станция Люберцы ходят автобусы. Развитая инфраструктура города в шаговой доступности: школа, детский сад, детская площадка, автостоянка, сетевые и розничные магазины, отделение СберБанка, аптеки, поликлиника
28.08.2025
8 970 948 ₽
НОВЫЙ СОВРЕМЕННЫЙ ЖИЛОЙ КОМПЛЕКС ОТ НАДЕЖНОГО ЗАСТРОЙЩИКА! В исторической части города, в непосредственной близости с Николо-Угрешским монастырем и Москвой-рекой. Дом Введен в эксплуатацию. Продается 1 комнатная крупногабаритная квартира, площадь 45/17,3/13 м2, с/у совмещ. 4,2 м2, прихожая , лоджия. Адрес: Московская область, г. Дзержинский, ул. Героя России В. Дудкина д. 3. Возможна ИПОТЕКА. Дом комфорт класса с улучшенным планировочным решением. Тихий зеленый спальный район города. В нутри комплекса торговый центр, медицинский центр. Рядом с домом сетевые магазины Магнит, Пятерочка, фермерский магазин Алексеевский, Николо-угрешский монастырь. Хорошее сообщение с Москвой, остановка общественного транспорта через дорогу от дома до Москвы можно добраться на автобусе за 30 мин до м Кузьминки, Котельники, Люблино, Братиславская, Алма-Атинская, станция Люберцы ходят автобусы. Развитая инфраструктура города в шаговой доступности: школа, детский сад, детская площадка, автостоянка, сетевые и розничные магазины, отделение СберБанка, аптеки, поликлиника
28.08.2025
7 162 284 ₽




















