Продается двухэтажный дом в Луганске!
Размещено 30 января 2026
26
0
Жалоба
- Параметры объявления
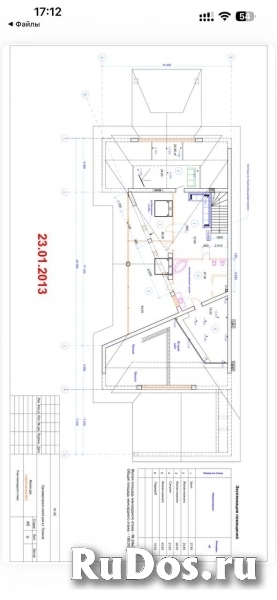
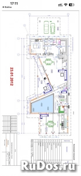
- Площадь дома (м2): 550
- Площадь участка (соток): 1
- Этажей в доме: 2 этажа
- Количество комнат: 5 и больше
- Описание
Резиденция в сердце города. С бассейном, камином и готовой мечтой.
🖼Представьте: вы пьёте утренний кофе, а за огромным панорамным окном, как живая картина в дорогой раме, сияет купол старинной церкви. Это — ваша реальность. Продается дом, где главная ценность — не квадратные метры, а вид, который заставляет сердце биться чаще.
Это место, где соединились история города и современный комфорт:
📍 Королевская локация: Самый центр Луганска. Вы в эпицентре жизни, но за стенами своего тихого, приватного мира.
🖼 Видовой этаж каждый день: Гостиная, кухня, спальни — ключевые комнаты обращены к храму. Вы покупаете не только дом, но и вечно прекрасный пейзаж, меняющийся от времени суток и сезона.
✨ Готовый полёт фантазии: Ремонт в состоянии чистого холста. Но вам не нужно ломать голову! Весь дизайн-проект уже создан, а материалы для отделки — закуплены. Вам осталось лишь дать команду и воплотить в жизнь интерьер своей мечты, избежав долгого и мучительного этапа поисков.
Роскошь, в которой есть душа:
· Камин для тех, кто верит в магию семейных вечеров.
· Частный бассейн — ваша курортная зона без выезда из города.
· Уютная детская, где уже сейчас светит солнце (а вы можете выбрать финальный цвет стен).
· Домик для охраны — для полного спокойствия.
· Панорамные окна от пола до потолка, стирающие грань между уютным интерьером и величественной архитектурой.
Это предложение для того, кто ищет не «коробку», а ШЕДЕВР.
Для семьи, которая ценит исторический дух, безупречный вкус и хочет создать уникальное пространство под своим контролем, но без стартовых хлопот.
Не упустите шанс вписать своё имя в историю этого особенного места. Вид из этого окна — уже готовый сюжет для вашей будущей семейной летописи.
Готовы увидеть свою жизнь в новом ракурсе?
✉Запрашивайте полное портфолио: цена, адрес, фото, видео с панорамой, дизайн-проект и список материалов. Всё для вашего решения.
📞За дополнительными вопросами обращайтесь по номеру
🖼Представьте: вы пьёте утренний кофе, а за огромным панорамным окном, как живая картина в дорогой раме, сияет купол старинной церкви. Это — ваша реальность. Продается дом, где главная ценность — не квадратные метры, а вид, который заставляет сердце биться чаще.
Это место, где соединились история города и современный комфорт:
📍 Королевская локация: Самый центр Луганска. Вы в эпицентре жизни, но за стенами своего тихого, приватного мира.
🖼 Видовой этаж каждый день: Гостиная, кухня, спальни — ключевые комнаты обращены к храму. Вы покупаете не только дом, но и вечно прекрасный пейзаж, меняющийся от времени суток и сезона.
✨ Готовый полёт фантазии: Ремонт в состоянии чистого холста. Но вам не нужно ломать голову! Весь дизайн-проект уже создан, а материалы для отделки — закуплены. Вам осталось лишь дать команду и воплотить в жизнь интерьер своей мечты, избежав долгого и мучительного этапа поисков.
Роскошь, в которой есть душа:
· Камин для тех, кто верит в магию семейных вечеров.
· Частный бассейн — ваша курортная зона без выезда из города.
· Уютная детская, где уже сейчас светит солнце (а вы можете выбрать финальный цвет стен).
· Домик для охраны — для полного спокойствия.
· Панорамные окна от пола до потолка, стирающие грань между уютным интерьером и величественной архитектурой.
Это предложение для того, кто ищет не «коробку», а ШЕДЕВР.
Для семьи, которая ценит исторический дух, безупречный вкус и хочет создать уникальное пространство под своим контролем, но без стартовых хлопот.
Не упустите шанс вписать своё имя в историю этого особенного места. Вид из этого окна — уже готовый сюжет для вашей будущей семейной летописи.
Готовы увидеть свою жизнь в новом ракурсе?
✉Запрашивайте полное портфолио: цена, адрес, фото, видео с панорамой, дизайн-проект и список материалов. Всё для вашего решения.
📞За дополнительными вопросами обращайтесь по номеру
Куплю дом в Анапе или обменяю на две квартиры на Дальнем Востоке
Бочков Сергей Андреевич
8 000 000 ₽
