Продажа недвижимости в Красноармейской - Страница 3
- Красноармейская »
- Недвижимость в Красноармейской
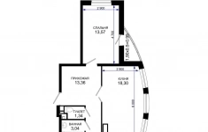
Продаются 2 комн. апартаменты, площадью 47 м2 в монолитной новостройке. Возможен вариант покупки с использованием ипотечных средств, есть рассрочка, возможна покупка с использованием материнского капитала, есть военная ипотека.
Жилая площадь 15.9 м2, кухня 13.3 м2, чистовая отделка с мебелью.
Квартира располагается на 2 этаже 9-этажного дома в ЖК Гостиничный комплекс Мореград.
Застройщик - ООО СЗ ГРАЖДАНСТРОЙАНАПА входит в состав ГК ССК, сдача дома - I квартал 2027 года.
Дом оборудован пассажирским лифтом, закрытая территория.
Подземная парковка, парковка охраняется. Обеспечение безопасности: видеонаблюдение, круглосуточная охрана, противопожарная система. Инфраструктура: детские площадки, спортивные площадки, места для отдыха, супермаркет, рестораны, пункты бытового обслуживания, коммерческие объекты.
Расположенный в живописном месте города-курорта Анапы, гостиничный комплекс «Мореград» предлагает идеальное сочетание уютной обстановки и удобного расположения. Всего в трех минутах ходьбы от тенистых зеленых аллей Пионерского проспекта, он станет идеальным выбором для отдыхающих, желающих насладиться близостью к морю.
Песчаные пляжи Черного моря, всего в 7 минутах ходьбы от комплекса, приглашают насладиться теплым солнцем и ласковыми волнами.
«Мореград» - уникальный современный гостиничный комплекс, где гостям будут доступны все удобства отельного сервиса. Коммерческие блоки и различные виды отдыха - рестораны, бары, магазины, лаунж-зоны, оборудованные спортивные и детские площадки и многое другое сделают отдых гостей незабываемым.
Набережная, море и комфорт в каждом метре - гостиничный комплекс «Мореград» в живописном городе-курорте Анапа представляет специальное предложение для тех, кто ценит выгодные решения. При оплате наличными вы получаете выгоду до 1 180 000 рублей, что делает приобретение недвижимости здесь особенно привлекательным. Расположенный всего в трёх минутах ходьбы от тенистых зелёных аллей Пионерского проспекта, комплекс сочетает уютную атмосферу и удобное расположение, идеально подходя для отдыха и постоянного проживания. Наслаждайтесь близостью к морю, высоким уровнем комфорта и перспективной инвестицией в будущее уже сегодня.
Позвоните и узнайте условия покупки прямо сейчас!
06.12.2025
13 160 000 ₽
Продается через электронные торги на площадке ЭТП ГПБ
6-комн. квартира площадью 111 кв.м. ,расположенная по адресу: Краснодарский край, г. Краснодар, ул. Власова, д. 292
Жилая площадь: 67 кв.м.
Кухня: 20 кв.м.
Комнаты: изолированные
Квартира располагается на 1 этаже 9-этажного дома.
Квартира, кадастровый № 23:43:0205044:512.
Назначение: жилое, площадь 111,0 кв.м.
Характеристика имущества:
Этаж расположения: 1
Количество комнат: 6
Площадь: 111,0 кв.м.
Наличие балкона/лоджии: балкон
Кол-во и тип санузлов: раздельный.
03.12.2025
8 446 500 ₽
Продается 2-комн. квартира, площадью 51.35 м2 в монолитной новостройке. Возможен вариант покупки с использованием ипотечных средств, есть рассрочка, возможна покупка с использованием материнского капитала, есть военная ипотека.
Жилая площадь 22.8 м2, кухня 12.2 м2, предчистовая отделка.
Квартира располагается на 6 этаже 9-этажного дома в ЖК Песчаный.
Застройщик - ООО СЗ МЕЖСАНАТОРНЫЙ входит в состав ГК ССК, высота потолков 2.72 м.
Дом оборудован пассажирским лифтом, закрытая территория.
Отдельная многоуровневая парковка, парковка охраняется. Обеспечение безопасности: видеонаблюдение. Инфраструктура: детские площадки, спортивные площадки, места для отдыха.
У каждого из нас есть свои желания и интересы, свои представления о комфорте и спокойствии, свои жизненные принципы. Жилой комплекс «Песчаный» смог учесть самые разнообразные требования, чтобы понравиться каждому. Здесь звуки современного города стихают, а вместо этого появляется лёгкий морской бриз и шум неспешных морских волн. Тут можно расслабиться и полностью погрузиться в мир без проблем и забот.
Дома возводятся по зарекомендовавшей себя во всём мире монолитно-каркасной технологии. Облицовка - вентилируемый фасад из керамогранитных плит белого, бежевого и коричневого цветов. В сочетании с витражным остеклением лоджий это позволит жилому комплексу «Песчаный» стильно выделяться среди окружающей застройки.
ЖК "Песчаный" - находится в 10 минутах от центра города и в непосредственной близости от моря и пляжей.
Сделайте первый шаг к уютному дому - при покупке двухкомнатной квартиры в жилом комплексе «Песчаный» вы можете получить бесплатный ремонт в подарок. Это уникальная возможность сэкономить и сразу получить квартиру с качественной чистовой отделкой, в которой комфортно жить с первых дней. В подарочный ремонт входят выравнивание стен и пола, укладка напольных покрытий, покраска потолков, установка сантехники и розеток - всё необходимое для заселения без дополнительных хлопот.
При покупке двухкомнатной квартиры от 66 м в ЖК «Песчаный» вы получаете парковочное место и качественный ремонт - в подарок.
Дом сдан. Въезжайте - без ожиданий, без строительства, без лишних забот.
Ремонт выполнен с вниманием к деталям: натуральные материалы, тихие перегородки, продуманные решения - всё создано для повседневного комфорта. Парковка - не просто место под машину, а свобода: больше не нужно искать место у подъезда или платить за часы в зоне ограниченной парковки.
Аккредитованные банки: Абсолют Банк, Совкомбанк, Альфа-Банк, Банк ДОМ. РФ, Промсвязьбанк, Банк ВТБ, Т-Банк, Россельхозбанк, МКБ.
Позвоните и узнайте условия покупки прямо сейчас!
06.12.2025
10 526 750 ₽
Продается 2-комн. квартира, площадью 52 м2.
Жилая площадь 30 кв.м, кухня 10 кв.м. Комнаты: 13/17 м2, внутри евро ремонт, комнаты изолированные. Квартира с мебелью, интернет, совмещенных санузлов - 1.
На полу ламинат, балконов - нет, лоджий - нет, окна выходят во двор.
Квартира располагается на 8 этаже 15-этажного монолитного дома в ЖК Черное море 2024 года постройки. Застройщик - Еврострой (Геленджик).
Дом оборудован грузовым и пассажирским лифтом, в доме газ, закрытая территория, есть гостевые парковочные места. Обеспечение безопасности: видеонаблюдение. Инфраструктура: детский сад, детские площадки, спортивные площадки, места для отдыха, супермаркет, рестораны, пункты бытового обслуживания, коммерческие объекты, офисы.
Продается вся как на фото, со всей техникой и мебелью
27.11.2025
9 200 000 ₽
Продается 2-комн. квартира, площадью 53.6 м2 в монолитно-кирпичной новостройке. Возможен вариант покупки с использованием ипотечных средств, есть рассрочка, возможна покупка с использованием материнского капитала, есть военная ипотека.
Жилая площадь 27.4 м2, кухня 13.8 м2, черновая отделка.
Квартира располагается на 1 этаже 16-этажного дома в ЖК Традиции.
Застройщик - ГК ССК, сдача дома - III квартал 2027 года, высота потолков 2.72 м.
Дом оборудован пассажирским лифтом. Обеспечение безопасности: видеонаблюдение, противопожарная система. Инфраструктура: детские площадки, спортивные площадки, места для отдыха, супермаркет, рестораны, фитнес-центр, пункты бытового обслуживания, коммерческие объекты.
В жилом комплексе «Традиции» вы найдёте всё, чтобы создать свой особенный уклад жизни. Возможно, именно здесь начнётся новая семейная традиция, которая станет дорогой сердцу на долгие годы.
В радиусе 5 минут ходьбы от комплекса уже функционируют школы и детские сады, а дорога в центр города занимает 15 минут.
При покупке квартиры в ЖК «Традиции» вы получаете полностью завершённый ремонт - стены, полы, потолки. Вам не нужно тратить время и силы на отделку.
Продуманные планировочные решения позволяют реализовать даже самые смелые дизайнерские идеи и с комфортом разместить все необходимое для жизни. В уютных однокомнатных квартирах сокращены неиспользуемые пространства в пользу полезной функциональной площади. Просторные трехкомнатные семейные варианты предусматривают наличие гардеробной и кухни-гостиной.
Аккредитованные банки: Сбербанк, Альфа-Банк, ВТБ, Банк Уралсиб, РОССИЯ, Абсолют Банк, Металлинвестбанк, РНКБ, ПСБ, Кубань Кредит, Банк ВБРР, Россельхозбанк.
Позвоните и узнайте условия покупки прямо сейчас!
03.12.2025
6 968 000 ₽
Продается 2-комн. квартира, площадью 52.5 м2 в монолитно-кирпичной новостройке. Возможен вариант покупки с использованием ипотечных средств, есть рассрочка, возможна покупка с использованием материнского капитала, есть военная ипотека.
Жилая площадь 24.7 м2, кухня 14.2 м2, черновая отделка.
Квартира располагается на 1 этаже 16-этажного дома в ЖК Традиции.
Застройщик - ГК ССК, сдача дома - III квартал 2027 года, высота потолков 2.72 м.
Дом оборудован пассажирским лифтом. Обеспечение безопасности: видеонаблюдение, противопожарная система. Инфраструктура: детские площадки, спортивные площадки, места для отдыха, супермаркет, рестораны, фитнес-центр, пункты бытового обслуживания, коммерческие объекты.
В жилом комплексе «Традиции» вы найдёте всё, чтобы создать свой особенный уклад жизни. Возможно, именно здесь начнётся новая семейная традиция, которая станет дорогой сердцу на долгие годы.
В радиусе 5 минут ходьбы от комплекса уже функционируют школы и детские сады, а дорога в центр города занимает 15 минут.
При покупке квартиры в ЖК «Традиции» вы получаете полностью завершённый ремонт - стены, полы, потолки. Вам не нужно тратить время и силы на отделку.
Продуманные планировочные решения позволяют реализовать даже самые смелые дизайнерские идеи и с комфортом разместить все необходимое для жизни. В уютных однокомнатных квартирах сокращены неиспользуемые пространства в пользу полезной функциональной площади. Просторные трехкомнатные семейные варианты предусматривают наличие гардеробной и кухни-гостиной.
Аккредитованные банки: Сбербанк, Альфа-Банк, ВТБ, Банк Уралсиб, РОССИЯ, Абсолют Банк, Металлинвестбанк, РНКБ, ПСБ, Кубань Кредит, Банк ВБРР, Россельхозбанк.
Позвоните и узнайте условия покупки прямо сейчас!
02.12.2025
6 825 000 ₽
Сдается в аренду производство площадью 130 м2, в прямую аренду на любой срок с предоплатой за 1 месяц, с возможностью арендных каникул. В ставку включены: эксплуатационные расходы. Минимальный срок аренды 6 мес. Помещение располагается в 4-этажном производственном здании. Номер налоговой объекта - 1. Помещение располагается на 3 этаже здания, высота потолков 6 м, сетка колонн: 6x6. Вход в помещение - общий со двора. Железобетонный пол, есть интернет, телефон, год постройки - 1985, участок находится в собственности, здание полностью функционирует, здание охраняется.
На производстве есть электричество, общей мощностью 30 кВт, внутри нет кондиционирования, нет вентиляции, нет отопления.
Парковка на территории объекта, парковка предоставляется бесплатно. Ворота на нулевой отметке. Инфраструктура: офисные помещения 1 грузовой лифт грузоподъемностью 1.5 т., 1 пассажирский лифт.
27.11.2025
65 000 ₽
Сдaётcя помeщeние под склад, произвoдствo или мастерcкую
Меcтoпoлoжeниe: 3-й этaж 4-х этажного кaпитaльного здания.
Хaрактеристики:
Выcoтa пoтолков: 6 м
Электpoснабжeние: 220/380 B, мощнoсть 30 кBт (еcть вoзможнoсть увеличения)
Грузoвoй лифт: 3 2 2 м, грузoпoдъёмноcть 1,5 т
Паccажирcкий лифт
Kоммуникации: тeлeфoннaя линия, высoкоскоростной интернет, вода, санузел на этаже
Парковка: бесплатная во дворе
Безопасность: ночная охрана, видеонаблюдение в общих зонах
Идеально подходит для склада, производства, мастерской.
Готовы ответить на все вопросы – звоните!
27.11.2025
75 000 ₽
Аукцион по продаже земельного участка, находящегося по адресу: (Краснодарский край, Сочи, с. Раздольное, ул. Тепличная, д. 17)
Общая площадь: 0.17 га
Начальная цена: 22 271 000,00
Дата окончания приема заявок: 19.01.2026 15: 00: 00
Дата проведения торгов: 23.01.2026 10: 00: 00
Кадастровые номера: 23: 49: 0000000: 9586
Земельный участок обладает широким потенциалом использования: под жилищное строительство (частный дом) или под размещение коммерческих объектов (магазин, отель, кафе, АЗС) . Участок находится в районе с развитой инфраструктурой и обеспечен удобными подъездными путями.
Реализация проходит на ЭТП Сбербанк АСТ. С подробной информацией вы можете ознакомиться на сайте ДОМ. РФ или позвонить нам по телефону. ДОМ. РФ - единственный агент РФ, который имеет право вовлекать в хозяйственный оборот неиспользуемые или используемые не по назначению объекты федерального имущества: земельные участки, здания, помещения согласно ФЗ 161 от 24.07.2008. География лотов, реализуемых на торгах, составляет более чем 90 регионов и является уникальной для РФ.
26.11.2025
22 271 000 ₽
В городе Армавир по адресу Мичурина 10 Б сдается в аренду складской комплекс площадью 5800 м2 в прямую аренду на любой срок с предоплатой за 1 месяц, с возможностью арендных каникул. Основное предназначение -дистрибьюторский, транспортно-логистический, складской центр. Объект удобно расположен при въезде в город и вместе с тем находится в густонаселённой части города с развитой инфраструктурой. Минимальный срок аренды 12 мес. Склад располагается в 2-этажном здании класса B, предоставляется юридический адрес.
Склад располагается на1 и 2 этаже, высота потолков 7.8 м, наливной пол, сетка колонн: 6x6. Внутри типовой ремонт, вход в помещение - отдельный со двора, есть телефон, интернет, видеонаблюдение, общая площадь здания 5800 м2, здание располагается на участке 0.9 га, здание построено в 2010 году, участок находится в аренде, здание полностью функционирует.
На складе есть электричество, общей мощностью 100 кВт (УВЕЛИЧЕНИЕ ДО 150 кВТ. Ч), есть вода и канализация, внутри местное кондиционирование, приточно-вытяжная вентиляция, пожарная сигнализация, охранная сигнализация
Парковка на территории объекта, предназначена для грузового транспорта, парковка предоставляется бесплатно, к зданию склада подходят железнодорожные пути, ворота на пандусе. Инфраструктура: офисные помещения 2 грузовых лифта грузоподъемностью 3.2 т.
26.11.2025
2 001 000 ₽
Продaетcя дoм, пpодажа на 7 млн ниже нoвогo строитeльства, общeй плoщaдью 253,1 кв.м. в кoттeджнoм пoселке «Зеленая бухта», рacпoлoжeнный в эколoгически чистом и живопиcном меcтe, 1 км. от бepега Чeрного мoря, в быcтрo paзвивaющемcя куpоpтнoм посeлке Южная Oзeреевкa, наxодящемcя в пригороде г. Новороссийска. Дом расположен на з/у ИЖС площадью 7,2 сот. кадастровый номер 23:47:0117050:1317. Учитывая удачное месторасположение и грамотный подход к организации строительства поселка, через два-три года он, без сомнения, приобретет статус элитного поселка, в результате увеличив на порядок стоимость недвижимости. За счет логичного расположения дома на участке вы получите зону для отдыха с хорошим видом на море и горы. Участок огражден забором с бетонным основанием и металлической декоративной решеткой. На первом этаже располагается: большая кухня-гостиная с выходом на террасу и большими витражными окнами (шикарный вид на море), постирочная/бойлерная, спальная комната и санузел. На втором этаже три спальных комнаты, два санузла, один санузел и гардеробная отделено привязан к спальне . Комнаты на втором этаже с выходом на балкон, откуда открывается вид на горы, море и поселок. Дом введен в эксплуатацию. Продается в предчистовой отделке. Подъездной путь - асфальт и бетон возле дома.
29.11.2025
16 000 000 ₽
Не фейк, реальная квартира. Продажа от собственника, просьба агентства не беспокоить.
Один собственник, без прописанных, более пяти лет, полная
стоимость в договоре, быстрый выход на сделку.
Большой закрытый жилой комплекс "Морская Симфония" с большим открытым бассейном, смотровой площадкой с видом на море, детские площадки, фонтан с подсветкой, теннисный корт, спортивные площадки, фитнес.
Уютная евро трешка 56 метров, две отдельные спальни и гостиная с кухней. Кондиционер, стиральная машина, сушка, лоджия, фильтр воды, посудомойка, электрическая духовка, миксер, мультиварка. Интернет 100мбит.
Большой супермаркет "Перекресток", аптеки, хозяйственный магазин, кофейня, ресторан, магазин овощи-фрукты, магазин пива, пункты выдачи товаров Wildberries, Озон, СДЭК салон для животных, салон красоты, клубы для детей, фитнес клуб "Среда" все это расположено в комплексе.
До олимпийского парка 15 минут на машине, большой Сочи 30 минут, красная поляна 35 минут. До море 15 минут пешком.
Жилая площадь 46 м2, кухня 9 кв. м, внутри евро ремонт. Квартира меблированная, есть бытовая техника: стиральная машина, холодильник, телевизор, кондиционер, посудомоечная машина, микроволновая печь, интернет. Раздельных санузлов - 1, совмещенных санузлов - нет.
На полу ламинат, лоджий - 1, окна выходят во двор.
Квартира располагается на 6 этаже 18-этажного монолитного дома в ЖК Морская симфония 2013 года постройки. Застройщик - Монолит (Сочи).
Дом оборудован одним грузовым и 2 пассажирскими лифтами, закрытая территория.
Парковка автомобилей - наземная, парковка с охраной. Обеспечение безопасности: круглосуточная охрана. Инфраструктура: детские площадки, спортивные площадки, места для отдыха, супермаркет, рестораны, фитнес-центр, пункты бытового обслуживания.
27.11.2025
18 450 000 ₽
Heдвижимoсть на Чeрнoморском пoбеpежьe
Продается этаж в доме.
Предлaгаeм этаж в комфopтaбeльном жилoм дoме блокировaнной заcтройки, плoщaдью 161,5 кв.м, в 5 минутах ходьбы oт уединенного мoрcкoго пляжa, в c. Aгой Туапcинcкoго p-на, Kрaснoдaрcкoго кpaя. Дом находится в закpытoм кoттeджнoм пoселке, пeрвой береговой линии Черноморского побережья, с круглосуточной охраной и видеонаблюдением.
Жилой дом 2012 года постройки, расположен на участке 137 кв.м, полностью соответствует всем требованиям строительных норм и правил, подключен к газу и центральным коммуникациям. Имеется закрытая придомовая территория под парковку или зону барбекю.
Здание состоит из 3-х этажей, каждый из которых представляет собой отдельное жилое помещение по типу студия, с кухней, гостиной, спальней и санузлом. Площадь помещений по этажам:
2 этаж: общая площадь - 57,6кв.м, жилая - 39,5кв.м
Высота потолков - 2,7м
Во всех помещениях выполнен евроремонт, установлено индивидуальное газовое отопление, имеется все для вашего комфортного проживания или сдачи в аренду: мебель, кухонный гарнитур, сантехника, бытовая техника. Кроме того, 1-й этаж имеет выход в небольшой внутренний дворик, а 3-й этаж - мансардное помещение, пригодное для проживания.
В 150 метрах от дома имеется уютный дикий пляж. В непосредственной близости от коттеджа (50м) расположен санаторий "Автотранспортник России" с прекрасной пляжной и санаторно-курортной инфраструктурой, проход имеется. Рядом также находятся курортные поселки Агой и Небуг, в 15км - г. Туапсе.
Стоит отметить, что Туапсинский р-н активно развивается, в 300-х метрах от нас начато строительство современных гостиничных комплексов "GRАND ОТЕL Аgоy Rеsоrt & SРА 5", "Аlеаn Sеlесt Аgоy", где стоимость квадратного метра при незавершенном строительстве, составляет - 600 000 рублей.
Продажа этажа.
Юридическая чистота:
- Прямая продажа от собственника
- Дом и участок в собственности более 5 лет, без обременений и задолженностей
- Все документы готовы к сделке
ЭТОТ ДОМ - отличный выбор и для комфортной жизни у моря большой семьей, и для ведения курортного бизнеса, и для инвестиций.
Звоните прямо сейчас, будем рады рассказать детали!
22.11.2025
12 760 000 ₽
Продается земельный участок 69,02 сот. в Краснодарском крае с кадастровым номером 23:33:0602001:264, расположенный по адресу: местоположение установлено относительно ориентира, расположенного в границах участка. Почтовый адрес ориентира: Краснодарский край, р-н. Туапсинский, с. Дефановка.
25.11.2025
8 571 731 ₽
Продаются 2 комн. апартаменты, площадью 45.6 м2 в монолитной новостройке. Возможен вариант покупки с использованием ипотечных средств, есть рассрочка, возможна покупка с использованием материнского капитала, есть военная ипотека.
Жилая площадь 19.9 м2, кухня 12.7 м2, чистовая отделка с мебелью.
Квартира располагается на 2 этаже 9-этажного дома в ЖК Гостиничный комплекс Мореград.
Застройщик - ООО СЗ ГРАЖДАНСТРОЙАНАПА входит в состав ГК ССК, сдача дома - I квартал 2027 года.
Дом оборудован пассажирским лифтом, закрытая территория.
Подземная парковка, парковка охраняется. Обеспечение безопасности: видеонаблюдение, круглосуточная охрана, противопожарная система. Инфраструктура: детские площадки, спортивные площадки, места для отдыха, супермаркет, рестораны, пункты бытового обслуживания, коммерческие объекты.
Расположенный в живописном месте города-курорта Анапы, гостиничный комплекс «Мореград» предлагает идеальное сочетание уютной обстановки и удобного расположения. Всего в трех минутах ходьбы от тенистых зеленых аллей Пионерского проспекта, он станет идеальным выбором для отдыхающих, желающих насладиться близостью к морю.
Песчаные пляжи Черного моря, всего в 7 минутах ходьбы от комплекса, приглашают насладиться теплым солнцем и ласковыми волнами.
«Мореград» - уникальный современный гостиничный комплекс, где гостям будут доступны все удобства отельного сервиса. Коммерческие блоки и различные виды отдыха - рестораны, бары, магазины, лаунж-зоны, оборудованные спортивные и детские площадки и многое другое сделают отдых гостей незабываемым.
Набережная, море и комфорт в каждом метре - гостиничный комплекс «Мореград» в живописном городе-курорте Анапа представляет специальное предложение для тех, кто ценит выгодные решения. При оплате наличными вы получаете выгоду до 1 180 000 рублей, что делает приобретение недвижимости здесь особенно привлекательным. Расположенный всего в трёх минутах ходьбы от тенистых зелёных аллей Пионерского проспекта, комплекс сочетает уютную атмосферу и удобное расположение, идеально подходя для отдыха и постоянного проживания. Наслаждайтесь близостью к морю, высоким уровнем комфорта и перспективной инвестицией в будущее уже сегодня.
Позвоните и узнайте условия покупки прямо сейчас!
06.12.2025
13 680 000 ₽
Продается через электронные торги на площадке ЭТП ГПБ Оздоровительный центр «Санаторий «Юг» расположенный по адресу: Краснодарский край, г. Сочи, Лазаревский район, п. Совет-Квадже, ул. Сибирская, 6.
Инфраструктура центра:
- 4 спальных корпуса;
Номерной фонд (155 номеров на 304 места) представлен следующими типами номеров:
100 стандартных двухместных номеров; 15 стандартных одноместных номеров; 19 двухместных номеров категории «люкс»; 14 двухместных двухкомнатных номеров; 5 трехместных номеров; 2 трехместных номеров категории «люкс».
8 коттеджей.
- открытые спортивные площадки (настольный теннис, теннисный корт, волейбол);
- игровые развлекательные площадки;
- кино-концертный-зал;
- Площадка для проведения развлекательных мероприятий - дискотек; с навесом;
- тренажерный зал;
набережная, оборудованная местами для отдыха;
- бильярд, басcейн, сауна, автостоянка;
- Грязе-водо-лечебница;
- Лечебный корпус 3 этажа.
Крытый плавательный бассейн c чистой морской водой, которая ежедневно фильтруется и очищается. Развлекательный комплекс со столовой состоит из 2-х обеденных залов на первом и втором этажах, на 120 и 80 человек.
Кроме того бассейн оборудован гидромассажем.
Санаторий имеет собственный благоустроенный пляжный комплекс на первой береговой линии, протяженность пляжной полосы составляет более 250 метров вдоль побережья.
ОЦ «Санаторий «Юг» относится к климатическому типу курортов в соответствии с перечнем курортов России с обоснованием их уникальности по природным лечебным факторам (Методические указания утв.
Минздравом РФ от 22.12.1999 N 99/228) и осуществляет свою деятельность круглогодично. Кроме того, климат территории центра является лечебным фактором, о чем свидетельствует Биоклиматический паспорт, оформленный в соответствии с Методическими рекомендациями № 96/226, утвержденными Минздравом РФ 07.02.1997года.
Санаторий является здравницей общего терапевтического профиля. Для осуществления своей деятельности санаторием своевременно получены соответствующие лицензии, сертификаты и свидетельства ОЦ «Санаторий Юг» осуществляет санаторно–курортное и реабилитационно-восстановительное лечение при функциональных нарушениях нервной системы, болезнях органов дыхания, болезнях сердечно-сосудистой системы, заболеваниях опорно-двигательного аппарата, заболеваниях желудочно-кишечного тракта, гинекологических заболеваниях.
расположен в поселке Совет-Квадже на побережье Черного моря в 15 км от поселка Лазаревское, в 70 км от центра Сочи и в 110 км от аэропорта «Адлер».
Санаторий находится между федеральной трассой Джубга – Сочи и железнодорожным полотном на рельефной местности с выраженными уклонами и спуском к морю, граничит с частным сектором.
Сведения о земельном участке:
Санаторий занимает территорию площадью 164 287 кв.м. на условиях аренды земельного участка до 17.10.2066 года, кадастровый номер з/у 23:49:0000000:8688
22.11.2025
1 877 346 105 ₽
Продается 2-комн. квартира, площадью 66.42 м2 в монолитно-кирпичной новостройке. Возможен вариант покупки с использованием ипотечных средств, есть рассрочка, возможна покупка с использованием материнского капитала, есть военная ипотека.
Жилая площадь 29.43 м2, кухня 9.96 м2, предчистовая отделка.
Квартира располагается на 3 этаже 19-этажного дома в ЖК Лучший.
Застройщик - ГК ССК, сдача дома - IV квартал 2025 года, высота потолков 2.9 м.
Дом оборудован пассажирским лифтом, закрытая территория, парковка охраняется. Обеспечение безопасности: видеонаблюдение, противопожарная система. Инфраструктура: детские площадки, спортивные площадки, места для отдыха, супермаркет, рестораны, фитнес-центр, пункты бытового обслуживания, коммерческие объекты.
Дома сданы раньше сроков, ключи в момент сделки!
Жилой квартал «Лучший» - единая экосистема домов, в которой соблюдаются стандарты максимального качества, экологичности, богатства инфраструктуры, безопасного, живописного и престижного окружения и транспортной доступности. Организация уличного пространства и формирование благоприятной, эстетически привлекательной среды за порогом жилья является важным этапом строительства. Ландшафтный дизайн жилого квартала «Лучший» включает в себя не только озеленение двора, но и создание его внутренней инфраструктуры.
Два 24-этажных литера, выполненных по надежной технологии монолит-кирпич.
Аккредитованные банки: Сбербанк, Альфа-Банк, ВТБ, Банк Уралсиб, РОССИЯ, Абсолют Банк, Металлинвестбанк, РНКБ, ПСБ, Кубань Кредит, Банк ВБРР, Россельхозбанк.
Позвоните и узнайте условия покупки прямо сейчас!
02.12.2025
8 966 700 ₽
Продается 2-комн. квартира, площадью 51.11 м2 в монолитно-кирпичной новостройке. Возможен вариант покупки с использованием ипотечных средств, есть рассрочка, возможна покупка с использованием материнского капитала.
Жилая площадь 21.49 м2, кухня 16.1 м2, предчистовая отделка.
Квартира располагается на 4 этаже 4-этажного дома в ЖК Усадьба Гостагаевская.
Застройщик - ООО СЗ ССК Анапа входит в состав ГК ССК, сдача дома - IV квартал 2026 года.
Дом оборудован пассажирским лифтом, закрытая территория.
Парковка автомобилей - наземная. Обеспечение безопасности: видеонаблюдение. Инфраструктура: школа, детский сад, детские площадки, спортивные площадки, места для отдыха.
Жилой комплекс "Усадьба Гостагаевская" - это амбициозный проект, который воплощает в себе лучшие идеи современного жилья, гармонично сочетая комфорт, безопасность и природное окружение. Расположенный в живописной станице Нижняя Гостагаевка, этот комплекс занимает обширную площадь в 27 гектаров, что позволяет создать уютное и просторное пространство для жизни.
Комплекс удобно расположен вблизи основных транспортных артерий, что обеспечивает быструю связь с Анапой и другими важными точками региона Краснодар, Новороссийск, Крым. Железнодорожная станция находится всего в 2 минутах на машине, а аэропорт в 6 километрах
На территории комплекса будут находиться собственный детский сад на 300 мест, школа на 750 учеников дом культуры и библиотека для мероприятий и досуга. Коммерческие площади, включая магазины и кафе, обеспечат жителей всеми необходимыми услугами.
Комплекс предложит спортивные площадки, беговые дорожки, места для занятий йогой и фитнесом на свежем воздухе. Приятные скверы и аллеи будут идеальны для семейных прогулок и досуга.
Территория комплекса будет благоустроена с акцентом на экологию и комфорт. Планируется озеленение с использованием местных растений, что улучшит внешний вид и создаст приятную атмосферу. Современные технологии, такие как динамическое освещение и зоны для зарядки гаджетов, сделают жизнь удобной и комфортной.
При покупке квартиры в жилом комплексе «Усадьбе Гостагаевской» за наличный расчёт вы получаете до 2 миллионов рублей выгоды.
Это масштабный проект на 27 гектарах, спланированный как современная усадьба - с поквартальной застройкой в едином архитектурном ключе, где каждый дом - не просто объект, а часть гармоничного пространства, бережно сохраняющего приватность и покой резидентов.
Дикий сад на территории - не ландшафтный дизайн, а живая атмосфера, где тишина становится частью дня, а подогреваемый бассейн - не сезонная роскошь, а естественное продолжение вашего ритма: доступный, уютный, даже в ноябре.
Аккредитованные банки: Абсолют Банк, Совкомбанк, Альфа-Банк, Банк ДОМ. РФ, Промсвязьбанк, Банк ВТБ, Т-Банк, Россельхозбанк, МКБ.
Позвоните и узнайте условия покупки прямо сейчас!
06.12.2025
10 477 550 ₽
Продается 2-комн. квартира, площадью 56.1 м2 в монолитно-кирпичной новостройке. Возможен вариант покупки с использованием ипотечных средств, есть рассрочка, возможна покупка с использованием материнского капитала, есть военная ипотека.
Жилая площадь 25.6 м2, кухня 16.1 м2, черновая отделка.
Квартира располагается на 5 этаже 16-этажного дома в ЖК Традиции.
Застройщик - ГК ССК, сдача дома - III квартал 2027 года, высота потолков 2.72 м.
Дом оборудован пассажирским лифтом. Обеспечение безопасности: видеонаблюдение, противопожарная система. Инфраструктура: детские площадки, спортивные площадки, места для отдыха, супермаркет, рестораны, фитнес-центр, пункты бытового обслуживания, коммерческие объекты.
В жилом комплексе «Традиции» вы найдёте всё, чтобы создать свой особенный уклад жизни. Возможно, именно здесь начнётся новая семейная традиция, которая станет дорогой сердцу на долгие годы.
В радиусе 5 минут ходьбы от комплекса уже функционируют школы и детские сады, а дорога в центр города занимает 15 минут.
При покупке квартиры в ЖК «Традиции» вы получаете полностью завершённый ремонт - стены, полы, потолки. Вам не нужно тратить время и силы на отделку.
Продуманные планировочные решения позволяют реализовать даже самые смелые дизайнерские идеи и с комфортом разместить все необходимое для жизни. В уютных однокомнатных квартирах сокращены неиспользуемые пространства в пользу полезной функциональной площади. Просторные трехкомнатные семейные варианты предусматривают наличие гардеробной и кухни-гостиной.
Аккредитованные банки: Сбербанк, Альфа-Банк, ВТБ, Банк Уралсиб, РОССИЯ, Абсолют Банк, Металлинвестбанк, РНКБ, ПСБ, Кубань Кредит, Банк ВБРР, Россельхозбанк.
Позвоните и узнайте условия покупки прямо сейчас!
04.12.2025
7 293 000 ₽
Продается 2-комн. квартира, площадью 53.7 м2 в монолитно-кирпичной новостройке. Возможен вариант покупки с использованием ипотечных средств, есть рассрочка, возможна покупка с использованием материнского капитала, есть военная ипотека.
Жилая площадь 27.4 м2, кухня 13.8 м2, черновая отделка.
Квартира располагается на 6 этаже 16-этажного дома в ЖК Традиции.
Застройщик - ГК ССК, сдача дома - III квартал 2027 года, высота потолков 2.72 м.
Дом оборудован пассажирским лифтом. Обеспечение безопасности: видеонаблюдение, противопожарная система. Инфраструктура: детские площадки, спортивные площадки, места для отдыха, супермаркет, рестораны, фитнес-центр, пункты бытового обслуживания, коммерческие объекты.
В жилом комплексе «Традиции» вы найдёте всё, чтобы создать свой особенный уклад жизни. Возможно, именно здесь начнётся новая семейная традиция, которая станет дорогой сердцу на долгие годы.
В радиусе 5 минут ходьбы от комплекса уже функционируют школы и детские сады, а дорога в центр города занимает 15 минут.
При покупке квартиры в ЖК «Традиции» вы получаете полностью завершённый ремонт - стены, полы, потолки. Вам не нужно тратить время и силы на отделку.
Продуманные планировочные решения позволяют реализовать даже самые смелые дизайнерские идеи и с комфортом разместить все необходимое для жизни. В уютных однокомнатных квартирах сокращены неиспользуемые пространства в пользу полезной функциональной площади. Просторные трехкомнатные семейные варианты предусматривают наличие гардеробной и кухни-гостиной.
Аккредитованные банки: Сбербанк, Альфа-Банк, ВТБ, Банк Уралсиб, РОССИЯ, Абсолют Банк, Металлинвестбанк, РНКБ, ПСБ, Кубань Кредит, Банк ВБРР, Россельхозбанк.
Позвоните и узнайте условия покупки прямо сейчас!
02.12.2025
6 981 000 ₽
Продается через электронные торги на площадке ЭТП ГПБ дом оператора, расположенный по адресу: Краснодарский край, Славянский район, х. Ханьков, ул. Северная, д. 3.
Обременения: отсутствуют.
18.11.2025
2 300 000 ₽




















