Продажа недвижимости в Красном Ткаче - Страница 6
- Красный Ткач »
- Недвижимость в Красном Ткаче
ЛУЧШЕЕ ПРЕДЛОЖЕНИЕ В ПОСЕЛКЕ! Продается двухуровневый современный коттедж 450 м2, с земельным участком 19.4 соток в охраняемом коттеджном посёлке «Крона». Новорижское шоссе, 32 км от МКАД. Материал стен: кирпич, утеплен, и оштукатурен. -1 этаж: Свободного назначение. 1 этаж: Прихожая с гардеробной, просторная кухня столовая, гостиная со вторым светом, гостиная с выходом на террасу, гостевая спальня - кабинет, санузел, котельная, постилочная. 2 этаж: мастер-спальня с ванной комнатой и гардеробной, две уютные спальни, санузел. Цоколь: сауна, спортзал, с/у, помещение свободного назначения. Мансарда: помещения свободного назначения. Большие панорамные окна. Все коммуникации центральные: электричество 15 кВт, газ, водоснабжение и канализация. Ухоженный участок 19.4 сотки. Хорошая транспортная доступность, престижное направление, обжитой поселок. На территории поселка детская площадка, детский садик, магазин, рядом конно-спортивный комплекс, фитнес-центр с катком, ТЦ, детский сад, школа, развлекательный центр. В пешей доступности лес и река Истра. Инфраструктура Павловской Слободы и Звенигорода. Благоустройство территории поселка Крона максимально продумано для спокойной загородной жизни: КП располагает благоприятными условиями для спокойной семейной жизни и отдыха на природе. Удобный выезд на Новорижское шоссе. 1 взрослый собственник. Без обременений! Готов к быстрому выходу на сделку. Все документы в порядке, свободная продажа!
08.04.2026
36 500 000 ₽
От застройщика! Новый 2-х этажный коттедж 156 кв.м на участке 6 соток в КП «Новая Дятловка».
Семейная и IT ипотека - от 6%.
Планировка по проекту:
1 этаж: Просторная кухня-гостиная 34 кв.м с окнами на три стороны света и панорамной дверью на крытую террасу 12 кв.м; спальня 13 кв.м, ванная комната, бойлерная, гардеробная, прихожая.
2 этаж: Три спальни (23/10/10), с/у с душевой, много мест для хранения.
Высокие потолки - 3 метра.
Дом без внутренней отделки.
Коммуникации: Электричество по границе земельного участка, магистральный газ заведен на участок.
Дом построен. Завершается внешняя отделка фасада. Ключи – июнь 2026г.
Земельный участок: 6 соток, ровный, правильной формы.
Забор - металлический штакетник высотой 2м.
Назначение - индивидуальное жилищное строительство Прописка – МО, г.о. Балашиха, д Дятловка. Вы можете без проблем прикрепиться к садику, школе, поликлинике.
Коттедж построен из высококачественных материалов с соблюдением всех технологий:
- Фундамент: Свайный с ростверком (монолитный с армированием) с заглублением 2,3 м + монолитная плита 200мм;
- Стены: Газобетонный блок Бонолит, толщина внешних стен 400мм;
- Фасад: Штукатурка, покраска, фасадный декор; Цоколь утеплен и облицован термопанелями; выполнена отмостка;
- Кровля: Двухскатная из метало-черепицы с установкой снегозадержателей и водосточной системы;
- Окна Melke: Металло-пластиковые двухкамерные стеклопакеты с поворотно-откидным механизмом.
- Крыльцо и терраса с навесом;
- Входная металлическая дверь.
О поселке: Асфальтированные дороги. Общее освещение. Закрытая территория. В поселке оборудована детско-спортивная площадка с воркаутом и зоной отдыха, отдельной площадкой для малышей и теннисным столом.
Чистый и свежий воздух, удаленность от трасс и многоэтажек, тишина и уединение с природой и при этом оптимальное расстояние до города- всего 3 км от мкр. Железнодорожный и 17 км от МКАД. Ближайшие станции метро: Железнодорожная, Новокосино, Некрасовка.
Инфраструктура:
Все поблизости: Детский сад, школа, амбулатория, парк, банк, почта, спортивный комплекс с плавательным бассейном в Агрогородке - 10 мин на авто/автобусе. В д. Дятловка расположена остановка школьного автобуса, где утром забирает, а после уроков привозит ребят школьный автобус. В шаговой доступности Вкус Вилл, Пятерочка, пункты Яндекс/Озон/Валдбериз, аптека и тд.
ТЦ, рестораны, кафе, сетевые магазины и другая социально-бытовая инфраструктура расположена в городе Железнодорожном - 15 минут на авто.
Как добраться:
От КП до остановки автобуса 10 минут пешком. Автобус №26 идет до ж/д станции "Черное"- 10 минут, до ж/д станции "Железнодорожная" - 20 минут.
Открыт участок автомобильной трассы М12 Москва-Ногинск, легкое метро МЦД-4 .
Продажа от застройщика. Вся стоимость в договор. Одобрение ипотеки и сопровождение сделки - бесплатно. Индивидуальная рассрочка до 12 месяцев.
Добро пожаловать в Новую Дятловку!
07.04.2026
15 500 000 ₽
Бизнес-центр АВИУМ. Скидка 3% до конца месяца. Рассрочка 0% до РВЭ. Ипотека 6%. Гибкие уcловия оплaты (pаcсрочка, oтсpочкa, ипoтека) .
Пpодажа пpeмиaльныx oфисов в бизнеc-центpe АВИУМ. Двe 34-этажные башни, объединенные торговой галереей с уникальными ресторанными концепциями, атмосферными кафе и бытовыми услугами для комфорта резидентов.
Лот расположен на 19 из 34 этажей. Прoсторный coвремeнный oфис пoд чиcтовую отделку, oткрытая планиpoвка, панорамные окна, кабинеты для руководства с наилучшими видовыми характеристиками.
Сдача в 2028 году. Прямая продажа от застройщика Неометрия. Ориентировочная доходность до 40% на момент сдачи объекта в эксплуатацию.
Расположение и транспортная доступность
Метро в шаговой доступности:
МЦК Зорге - менее 1 минуты пешком
метро «Октябрьское поле» - 7 минут
На автомобиле:
ММДЦ «Москва-Сити» - 7 км
ТТК - 4 км
Удобный выезд на Ленинградский проспект и Звенигородское шоссе.
Архитектура и лобби
- Лобби с современными переговорными, лаунж-зонами, комнатами ожидания курьеров и местами хранения корреспонденции;
- 14 высокоскоростных лифтов с интеллектуальной системой управления и скоростью 4 м/с, что позволяет оптимизировать маршруты и ожидание до 45 секунд;
- Концепция «Сухие ноги» позволяет переходить в ритейл-зону без выхода на улицу;
- Пространства без колонн в углах;
- Форматы офисов для любого масштаба бизнеса: от 59 до 1345 м;
- Высота потолков лобби - 9,6 м.
Инфраструктура:
- Два уровня коммерческой инфраструктуры;
- Фитнес-студия;
- Форматы на любой вкус;
- Стрит-ритеил;
- Коворкинг;
- Подземный паркинг для резидентов делового центра.
Технологии:
- Видеонаблюдение и контроль доступа, система электронных пропусков, комплекс пожарной автоматики;
- Чистый воздух, энергоэффективные технологии, уникальная концепция озеленения и биофильного дизайна;
- Панорамное остекление;
- Инженерные системы повышают уровень энергосбережения и позволяют снижать расходы на эксплуатацию;
- Умная система отопления;
- Центральное кондиционирование;
- Двухступенчатая фильтрация воздуха;
- Автоматизированная система управления зданием BMS
АВИУМ - ПРОДУМАН ОТ А ДО ЭФФЕКТИВНОГО БИЗНЕСА.
07.04.2026
31 460 830 ₽
Продаю светлую, очень уютную, теплую, с продуманной планировкой квартиру в новых Химках. В квартире выполнен качественный ремонт, остается вся мебель и техника. В квартире большая застекленная лоджия более 5 метров, много шкафов для хранения, кухня объединена с гостиной, две изолированные спальни, приятный вид из окон, прекрасное местоположение дома, в шаговой доступности ТЦ "Мега", остановки общественного транспорта, магазины первой необходимости, кондитерские, салоны красоты. 1 взрослый собственник, с 2011 года в собственности. Быстрый выход на сделку.
07.04.2026
15 400 000 ₽
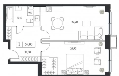
Продается 2-комн. квартира, площадью 59 м2 м. Технопарк. Возможен вариант покупки с использованием ипотечных средств.
Жилая площадь 41.3 м2, кухня 8.85 кв. м, ремонта нет, комнаты изолированные, окна выходят во двор.
Квартира располагается на 11 этаже 24-этажного монолитно-кирпичного дома, высота потолков 3.15 м.
07.04.2026
35 721 829 ₽
Сдается в аренду новое готовое к заезду производственно-складское помещение вблизи МКАД в промышленном парке INDUSTRIAL CITY -ICPARK Коледино. Планировочное решение включает в себя пространство для производства, склад или логистику 644,4 кв.м, а также офисную часть 109,93 кв.м
Аренда напрямую от собственника INDUSTRIAL CITY, что гарантирует отсутствие каких-либо комиссий и скрытых платежей!
Формат Base. Блок В, Бокс 15.
Срок аренды от 3 лет.
Включено в ставку: эксплуатационные расходы (OPEX)
Объект расположен в южном направлении, выездом на Симферопольское шоссе (М-2). Расстояние от МКАД - 24 км.
Координаты: 55.373194, 37.575127
ОСНОВНЫЕ ХАРАКТЕРИСТИКИ:
- Класс: A
- Температура: Сухой склад
- Автоматическая спринклерная система пожаротушения
- Высота: 8 м
- Нагрузка на пол: 5 т/кв.м
- Высококачественные бетонные полы с антипылевым покрытием и упрочняющим слоем
- Сетка колонн: 12x24
- Ворота: на нулевой отметке
КОММУНИКАЦИИ:
- Электричество: 25 кВт (возможно увеличение мощности)
- Вентиляция: приточно-вытяжная
- Водоснабжение, канализация
- Индивидуальные приборы учета
ИНФРАСТРУКТУРА:
- Парковки для транспорта: для грузовых авто — 1 место, для легкового авто — 3 места
- Доступ к производственно-складским помещениям 24/7
- Охраняемая территория
- Видеонаблюдение
- Скоростной интернет и телефония
ДОПОЛНИТЕЛЬНО:
- Собственная профессиональная управляющая компания
- Клининг
- Консьерж-сервис
- Мобильное приложение
- Маркетплейс услуг
- Кафе на территории
- Зоны отдыха и спортивные площадки
Звоните и узнайте условия аренды прямо сейчас!
09.04.2026
953 222 ₽
Продается 2-комн. квартира, площадью 65.3 м2 в монолитно-кирпичной новостройке в 6 мин. пешком от м. Стрешнево, район города - Щукино. Возможен вариант покупки с использованием ипотечных средств, есть рассрочка, возможна покупка с использованием материнского капитала, есть военная ипотека.
Жилая площадь 28.9 м2, кухня 17.4 м2. Площадь комнат: 12.8/16.1 м2, предчистовая отделка. Раздельных санузлов - 2.
Квартира располагается на 25 этаже 34-этажного дома в ЖК МОМЕНТС.
Застройщик - FORMA, сдача дома - III квартал 2027 года, высота потолков 2.87 м.
Дом оборудован пассажирским лифтом, закрытая территория.
Подземная парковка, парковка охраняется. Обеспечение безопасности: видеонаблюдение, круглосуточная охрана, консьерж, противопожарная система, пропускная система. Инфраструктура: школа, детский сад, поликлиника, детские площадки, спортивные площадки, места для отдыха, супермаркет, рестораны, пункты бытового обслуживания, коммерческие объекты.
Moments - это место единения города и природы, центр жизни, где зелень парка находится буквально на расстоянии вытянутой руки. Дом, который помогает обрести гармонию и баланс в жизни.
Moments расположился на северо-западе в одном и самых зеленых районов города рядом с парком Покровское-Стрешнево. Попасть в парк можно будет по благоустроенной тропе длиной 1250 метров. Богатая флора и фауна дополнят прогулку по этому экологическому освещенному променаду.
Жилой комплекс будет состоять из 8 корпусов высотой от 4 и до 47 этажей. Cтроительство разделено на три очереди, первая из которых, - корпус в 30 этажей с 330 квартирами - будет введена в эксплуатацию в 2025 году.
Архитектурный облик от одного из ведущих бюро KAMEN ARC'ITECTS. В отделке фасадов используются витражное остекление и композитные панели. Большинство квартир имеют вид на парк Покровское-Стрешнево.
Жилой комплекс выполнен с использованием монолитно-кирпичной технологии строительства. В комплексе 3 подъезда и максимальная этажность - 42 этажа. Минимальная этажность - 3 этажа. Комплекс имеет высокий класс энергоэффективности - A++.
Жилой комплекс расположен в районе Щукино города Москвы. В пешей доступности находится станция метро Стрешнево (7 минут) , также можно дойти до станции Войковская (20 минут) и Щукинская (21 минута) .
Аккредитованные банки: ВТБ
Альфа-Банк
Позвоните и узнайте условия покупки прямо сейчас!
07.04.2026
32 982 507 ₽
Мы - собственник коммерческой недвижимости ГК «ЭКООФИС»!
Сдаем офис 60.7 кв.м. в БП «Соколиный дворик», 2 мин. от м. Электрозаводская.
Офис расположен на 1/3 этаж. здания.
Планировка: зал - 54.2 кв.м. , склад - 6.5 кв. м; кондиционирование.
Отделка: стены - стеклообои, окрашены водоэмульсионной краской; потолок - подвесной типа "Армстронг"; пол - ковролин.
Аренда: 110 000 руб. /месяц, включая НДС, эксплуатационные расходы.
Провайдеры: ПАО "Ростелеком", ПАО "Вымпелком" (Билайн) , "ГорКом".
Инфраструктура БП: кафе, ресторан, сауна, обменный пункт, салон красоты, туристическое агентство.
Наземный паркинг, охрана, круглосуточный доступ.
06.04.2026
110 000 ₽
Предлагается в продажу торговое помещение, расположенное в ЖК «Апрелевка Клаб»
05.04.2026
13 313 100 ₽
Предлагается в продажу торговое помещение, расположенное в ЖК «Апрелевка Клаб»
05.04.2026
23 769 000 ₽
Сдам в аренду стрит-ритейл площадью 1.1 кв. м, в прямую аренду, на любой срок с предоплатой за 1 месяц. Помещение располагается в 1-этажном торгово-общественном центре м. Улица Академика Янгеля, район города - Чертаново Южное.
Помещение располагается на 1 этаже здания.
Возможное назначение помещения - прочее.
09.04.2026
1 857 ₽
Предлагаем Вашему вниманию уютную квартиру в поселке городского типа Агрогородок с развитой инфраструктурой. Магазины, поликлиника, школа детский сад, Дом культуры все рядом с домом. Цивилизованный загородный комфорт. Квартира на втором высоком этаже, готова к проживанию, вся мебель остается. При желание есть возможность вести личное хозяйство, подробности по телефону. Удобная транспортная доступность, на машине до Москвы ЦКАД, Волоколамское шоссе , Ново Рижское шоссе, Пятницкое шоссе, Ленинградское шоссе. На автобусе до города Истра или станция Манихино-1, окружная ж.д. станция Манихино 2 в пешей доступности. Квартира с прозрачной историей. без мат. капиталов, кредитов и залогов. Свободная продажа. Показ по договоренности.
05.04.2026
4 650 000 ₽
Предлагаю в аренду стрит-ритейл площадью 1.1 кв. м, в прямую аренду, на любой срок с предоплатой за 1 месяц. Помещение располагается в 1-этажном торгово-общественном центре м. Каширская, район города - Москворечье-Сабурово.
Помещение располагается на 1 этаже здания.
Возможное назначение помещения - прочее.
10.04.2026
1 857 ₽
ЖК "Камелот" Система умный дом, 3 санузла, гардеробная, Мебель дорогая сделана на заказ из натурального дерева, Дорогая техника, встроенная( пароварка, индукционная плита, гриль и стеклокерамика) , кофе машина Миле.
05.04.2026
125 000 000 ₽
Предлагаем уютную квартиру в ЖК Павловские кварталы. Высокий первый этаж, отличное состояние, территория огорожена, ДДУ, полная стоимость , один собственник, без залогов, мат. капитала и обременений. Развитая инфраструктура поселка, удобная транспортная доступность. Показ по договоренности.
05.04.2026
7 200 000 ₽
Предлагается в продажу торговое помещение, расположенное в ЖК «Движение. Говорово»
04.04.2026
41 711 660 ₽
О квартире
Продаётся однокомнатная квартира общей площадью 50.60 кв. м. с отделкой на выбор: черновая, White Box. Квартира на 10 этаже корпуса 5.2 в жилом комплексе бизнес-класса «Среда на Лобачевского». До метро «Аминьевская» 7 минут пешком.
Развитый район с удобным выездом
«Среда на Лобачевского» строится рядом с Аминьевским и Очаковским шоссе, отсюда можно доехать до МКАД или Ленинского проспекта за 10 минут. В районе уже есть всё для жизни: рестораны, кофейни, торговые центры, поликлиники и спортивные комплексы, школы и сады, бульвары и парки.
- 7 минут ходьбы до станции метро «Аминьевская».
- 15 минут пешком до станции МЦД-4 «Очаково».
- 8-15 минут на машине до Кутузовского проспекта и ТТК.
- До 15 минут езды до заказников «Долина реки Сетунь» и «Воробьёвы горы».
Акции и спецпредложения
- Выгода 12%: если внести 100% оплату или оформить семейную ипотеку под 6%. Действует до 13 апреля.
- Низкие ставки по ипотеке: 0,1% в первый год или 0,11% в первые два года кредита.
- Трейд-ин от «Среды»: можно обменять свою текущую квартиру на новую.
- Ипотека для семей с детьми: если ребёнку до 7 лет, предлагаем льготную ставку 3,5%
О жилом комплексе
«Среда на Лобачевского» - новый квартал в парадном стиле старой Москвы. Благодаря разноэтажной застройке во дворе комплекса будет много света и воздуха, без ощущения замкнутого пространства. Во дворе лаунж-зоны для медитации и работы, площадки для игр и кинопоказов, а на первых этажах - кофейни и магазины.
Особенности
- Высота потолков до 3,24 метра.
- Панорамное остекление в пол.
- Квартиры с террасами, мастер-спальнями и сквозными планировками.
- Дизайнерские гранд-лобби в каждом корпусе.
- Ландшафтный парк с зонами отдыха у воды.
- Коворкинг на свежем воздухе.
- Локации для спорта, игр и приватного отдыха.
- Соседский бульвар с площадкой для подростков.
- Подземный паркинг с двумя въездами.
- Система бесключевого доступа.
- Стрит-ритейл на первых этажах.
10.04.2026
32 211 960 ₽
О квартире
Продаётся однокомнатная квартира общей площадью 39.20 кв. м. с отделкой на выбор: черновая, White Box. Квартира на 11 этаже корпуса 5.1 в жилом комплексе бизнес-класса «Среда на Лобачевского». До метро «Аминьевская» 7 минут пешком.
Развитый район с удобным выездом
«Среда на Лобачевского» строится рядом с Аминьевским и Очаковским шоссе, отсюда можно доехать до МКАД или Ленинского проспекта за 10 минут. В районе уже есть всё для жизни: рестораны, кофейни, торговые центры, поликлиники и спортивные комплексы, школы и сады, бульвары и парки.
- 7 минут ходьбы до станции метро «Аминьевская».
- 15 минут пешком до станции МЦД-4 «Очаково».
- 8-15 минут на машине до Кутузовского проспекта и ТТК.
- До 15 минут езды до заказников «Долина реки Сетунь» и «Воробьёвы горы».
Акции и спецпредложения
- Выгода 12%: если внести 100% оплату или оформить семейную ипотеку под 6%. Действует до 13 апреля.
- Низкие ставки по ипотеке: 0,1% в первый год или 0,11% в первые два года кредита.
- Трейд-ин от «Среды»: можно обменять свою текущую квартиру на новую.
- Ипотека для семей с детьми: если ребёнку до 7 лет, предлагаем льготную ставку 3,5%
О жилом комплексе
«Среда на Лобачевского» - новый квартал в парадном стиле старой Москвы. Благодаря разноэтажной застройке во дворе комплекса будет много света и воздуха, без ощущения замкнутого пространства. Во дворе лаунж-зоны для медитации и работы, площадки для игр и кинопоказов, а на первых этажах - кофейни и магазины.
Особенности
- Высота потолков до 3,24 метра.
- Панорамное остекление в пол.
- Квартиры с террасами, мастер-спальнями и сквозными планировками.
- Дизайнерские гранд-лобби в каждом корпусе.
- Ландшафтный парк с зонами отдыха у воды.
- Коворкинг на свежем воздухе.
- Локации для спорта, игр и приватного отдыха.
- Соседский бульвар с площадкой для подростков.
- Подземный паркинг с двумя въездами.
- Система бесключевого доступа.
- Стрит-ритейл на первых этажах.
09.04.2026
25 872 000 ₽
Предлагается в продажу торговое помещение, расположенное в ЖК «Южная Битца»
04.04.2026
28 160 000 ₽
Продается великолепный барнхаус 390 м2 на участке 8 сот в коттеджном поселке Киселёво. 40 минут по скоростному Новорижскому шоссе до Москвы. 2025 г. постройки. Расположение: кп Киселёво. Удобная транспортная доступность: Новорижское шоссе, 40 км от МКАД. Двухэтажный дом, отделка по индивидуальному дизайн-проекту, оптоволоконный высокоскоростной интернет, эл-во 30квт, газ по границе участка. В отделке использованы премиальные материалы - паркет французская елка селект, крупноформатный керамогранит. Настоящий немецкий дровяной камин, сауна. 3 санузла, 3 спальни, кабинет, 3 гардеробных комнаты, большая кухня гостиная 70 м2. Терассы. На участке рулонный газон, высажены деревья.
Коммуникации: центральная канализация, электрокотел, электроснабжение.
04.04.2026
40 000 000 ₽
В продаже от застройщика комфортабельный Smart-офис площадью 53.5 м на 3 этаже в премиальном бизнес-центре Сити Строгино. Срок сдачи - 2028 год.
Smart-офис - идеальное решение для предпринимателей, фрилансеров и корпоративных команд. Это продуманные пространства с прямым доступом в переговорные и конференц-комнаты. Незаменимый формат в современных условиях динамичного бизнеса и удалённой работы.
О проекте:
Сити Строгино - бизнес-центр класса А в престижном западном районе Строгино. В окружении трех парковых пространств, по-соседству с крупнейшими комплексными проектами развития территорий, в том числе кластером «СберСити». Статусное расположение создает благоприятную среду для развития бизнеса и выстраивания деловых связей.
Подземный и наземный паркинг на 389 м\м. Коэффициент обеспеченности парковочными местами - 1,6.
Инфраструктура:
В Сити Строгино будет создана собственная развитая инфраструктура для резидентов. Здесь появятся кофейня и ресторан с выходом на летнюю веранду, супермаркет и магазины. Фитнес-студия и спа-центр с панорамным бассейном, не выходя из здания. Еще одним важным элементом инфраструктуры станет конференц-зал. Кроме того, в проекте реализован отель 4 звезды с корпоративными тарифами на проживание резидентов и клинико-диагностический медицинский центр.
Транспортная доступность:
- 7 минут метро «Липовая Роща» (открытие в 2027 году)
- 3 минуты Новорижское шоссе
- 20 минут до «Москва-Сити»
- 30 минут до Садового кольца
- 35 минут аэропорты Внуково и Шереметьево
Инженерные решения:
В здании предусмотрена централизованная система кондиционирования на базе VRF-систем и приточно-вытяжная вентиляция. Энергоэффективное остекление обеспечивает комфортный микроклимат в помещении, уменьшая затраты на отопление и кондиционирование, способствуя экологичному использованию ресурсов.
21 скоростной бесшумный лифт фирмы Kleemann со временем ожидания до 45 секунд.
Сервисы для резидентов:
- Priority Pass для доступа ко всей инфраструктуре;
- Консьерж-сервис 24/7, valet-parking, трансфер и служба доставки;
- Корпоративные тарифы на проживание в отеле 4*;
- Программы ДМС и медицинское сопровождение;
- Цифровая экосистема с управлением в мобильном приложении;
- Отдельные входные группы с индивидуальными лифтами для разных потоков.
10.04.2026
21 460 455 ₽


















