Объявление о квартирах в Красной Поляне - Страница 2
- Красная Поляна »
- Недвижимость
- » Квартиры в Красной Поляне
Сдается 1-комн. квартира посуточно, площадью 20 м2.
Жилая площадь 15 кв.м. В квартире два спальных места.
Квартира располагается на 2 этаже 2-этажного дома. Вся необходимая техника, зона для работы в сети Интернет через подключение интернет- разетка. 2 береговая линия, 500 метров др моря, пляж песчано-галечный наличный с развитой инфраструктурой. Удобное местоположение- жд Адлера , автобусная остановка в шаговой дрступности.
Минимальный срок проживания -2 дня.
Хорошая транспортная доступность, пешком минут 7 до остановки.
Скидки при проживании от 5 дней !
Звоните, отвечу на все интересующие вопросы.
13.02.2026
3 500 ₽
Продается 2-комн. квартира, площадью 54.11 м2 в монолитно-кирпичной новостройке. Возможен вариант покупки с использованием ипотечных средств, есть рассрочка, возможна покупка с использованием материнского капитала, есть военная ипотека.
Жилая площадь 23.9 м2, предчистовая отделка.
Квартира располагается на 6 этаже 16-этажного дома в ЖК Горные высоты.
Застройщик - ГК ССК, сдача дома - III квартал 2027 года, высота потолков 2.7 м.
Дом оборудован грузовым и пассажирским лифтом.
Парковка автомобилей - наземная. Обеспечение безопасности: видеонаблюдение. Инфраструктура: школа, детский сад, поликлиника, детские площадки, спортивные площадки, места для отдыха.
«Горные Высоты» - это радушный, современный и природный микрорайон, где сердце остаётся навсегда: соседи становятся семьёй, технологии служат уюту, а горный воздух и панорамные виды дарят ощущение гармонии каждый день. Здесь рождаются тёплые традиции, всё продумано для комфорта жизни, а природа становится частью вашего дома. Возвращаться сюда - значит возвращаться туда, где вас ждут, понимают и окружают заботой.
При покупке трёхкомнатной квартиры в микрорайоне «Горные Высоты» вы получаете качественный ремонт в подарок - всё, чтобы сразу заселиться и начать жить.
Современные планировки, высокие потолки и продуманные до деталей отделочные материалы создают идеальный баланс между уютом и стилем. Большие панорамные окна наполняют пространство светом, витражные конструкции подчёркивают эстетику, а удобные холлы и рациональное зонирование делают каждый день лёгким и комфортным.
Позвоните и узнайте условия покупки прямо сейчас!
25.02.2026
7 737 730 ₽
Продается 2-комн. квартира, площадью 54.11 м2 в монолитно-кирпичной новостройке. Возможен вариант покупки с использованием ипотечных средств, есть рассрочка, возможна покупка с использованием материнского капитала, есть военная ипотека.
Жилая площадь 23.9 м2, предчистовая отделка.
Квартира располагается на 6 этаже 16-этажного дома в ЖК Горные высоты.
Застройщик - ГК ССК, сдача дома - III квартал 2027 года, высота потолков 2.7 м.
Дом оборудован грузовым и пассажирским лифтом.
Парковка автомобилей - наземная. Обеспечение безопасности: видеонаблюдение. Инфраструктура: школа, детский сад, поликлиника, детские площадки, спортивные площадки, места для отдыха.
«Горные Высоты» - это радушный, современный и природный микрорайон, где сердце остаётся навсегда: соседи становятся семьёй, технологии служат уюту, а горный воздух и панорамные виды дарят ощущение гармонии каждый день. Здесь рождаются тёплые традиции, всё продумано для комфорта жизни, а природа становится частью вашего дома. Возвращаться сюда - значит возвращаться туда, где вас ждут, понимают и окружают заботой.
При покупке трёхкомнатной квартиры в микрорайоне «Горные Высоты» вы получаете качественный ремонт в подарок - всё, чтобы сразу заселиться и начать жить.
Современные планировки, высокие потолки и продуманные до деталей отделочные материалы создают идеальный баланс между уютом и стилем. Большие панорамные окна наполняют пространство светом, витражные конструкции подчёркивают эстетику, а удобные холлы и рациональное зонирование делают каждый день лёгким и комфортным.
Позвоните и узнайте условия покупки прямо сейчас!
20.02.2026
7 737 730 ₽
Продается 2-комн. квартира, площадью 54.11 м2 в монолитно-кирпичной новостройке. Возможен вариант покупки с использованием ипотечных средств, есть рассрочка, возможна покупка с использованием материнского капитала, есть военная ипотека.
Жилая площадь 23.9 м2, предчистовая отделка.
Квартира располагается на 4 этаже 16-этажного дома в ЖК Горные высоты.
Застройщик - ГК ССК, сдача дома - III квартал 2027 года, высота потолков 2.7 м.
Дом оборудован грузовым и пассажирским лифтом.
Парковка автомобилей - наземная. Обеспечение безопасности: видеонаблюдение. Инфраструктура: школа, детский сад, поликлиника, детские площадки, спортивные площадки, места для отдыха.
«Горные Высоты» - это радушный, современный и природный микрорайон, где сердце остаётся навсегда: соседи становятся семьёй, технологии служат уюту, а горный воздух и панорамные виды дарят ощущение гармонии каждый день. Здесь рождаются тёплые традиции, всё продумано для комфорта жизни, а природа становится частью вашего дома. Возвращаться сюда - значит возвращаться туда, где вас ждут, понимают и окружают заботой.
При покупке трёхкомнатной квартиры в микрорайоне «Горные Высоты» вы получаете качественный ремонт в подарок - всё, чтобы сразу заселиться и начать жить.
Современные планировки, высокие потолки и продуманные до деталей отделочные материалы создают идеальный баланс между уютом и стилем. Большие панорамные окна наполняют пространство светом, витражные конструкции подчёркивают эстетику, а удобные холлы и рациональное зонирование делают каждый день лёгким и комфортным.
Позвоните и узнайте условия покупки прямо сейчас!
20.02.2026
7 737 730 ₽
Продается 2-комн. квартира, площадью 54.11 м2 в монолитно-кирпичной новостройке. Возможен вариант покупки с использованием ипотечных средств, есть рассрочка, возможна покупка с использованием материнского капитала, есть военная ипотека.
Жилая площадь 23.9 м2, предчистовая отделка.
Квартира располагается на 4 этаже 16-этажного дома в ЖК Горные высоты.
Застройщик - ГК ССК, сдача дома - III квартал 2027 года, высота потолков 2.7 м.
Дом оборудован грузовым и пассажирским лифтом.
Парковка автомобилей - наземная. Обеспечение безопасности: видеонаблюдение. Инфраструктура: школа, детский сад, поликлиника, детские площадки, спортивные площадки, места для отдыха.
«Горные Высоты» - это радушный, современный и природный микрорайон, где сердце остаётся навсегда: соседи становятся семьёй, технологии служат уюту, а горный воздух и панорамные виды дарят ощущение гармонии каждый день. Здесь рождаются тёплые традиции, всё продумано для комфорта жизни, а природа становится частью вашего дома. Возвращаться сюда - значит возвращаться туда, где вас ждут, понимают и окружают заботой.
При покупке трёхкомнатной квартиры в микрорайоне «Горные Высоты» вы получаете качественный ремонт в подарок - всё, чтобы сразу заселиться и начать жить.
Современные планировки, высокие потолки и продуманные до деталей отделочные материалы создают идеальный баланс между уютом и стилем. Большие панорамные окна наполняют пространство светом, витражные конструкции подчёркивают эстетику, а удобные холлы и рациональное зонирование делают каждый день лёгким и комфортным.
Позвоните и узнайте условия покупки прямо сейчас!
21.02.2026
7 737 730 ₽
Продается 2-комн. квартира, площадью 54.11 м2 в монолитно-кирпичной новостройке. Возможен вариант покупки с использованием ипотечных средств, есть рассрочка, возможна покупка с использованием материнского капитала, есть военная ипотека.
Жилая площадь 23.9 м2, предчистовая отделка.
Квартира располагается на 3 этаже 16-этажного дома в ЖК Горные высоты.
Застройщик - ГК ССК, сдача дома - III квартал 2027 года, высота потолков 2.7 м.
Дом оборудован грузовым и пассажирским лифтом.
Парковка автомобилей - наземная. Обеспечение безопасности: видеонаблюдение. Инфраструктура: школа, детский сад, поликлиника, детские площадки, спортивные площадки, места для отдыха.
«Горные Высоты» - это радушный, современный и природный микрорайон, где сердце остаётся навсегда: соседи становятся семьёй, технологии служат уюту, а горный воздух и панорамные виды дарят ощущение гармонии каждый день. Здесь рождаются тёплые традиции, всё продумано для комфорта жизни, а природа становится частью вашего дома. Возвращаться сюда - значит возвращаться туда, где вас ждут, понимают и окружают заботой.
При покупке трёхкомнатной квартиры в микрорайоне «Горные Высоты» вы получаете качественный ремонт в подарок - всё, чтобы сразу заселиться и начать жить.
Современные планировки, высокие потолки и продуманные до деталей отделочные материалы создают идеальный баланс между уютом и стилем. Большие панорамные окна наполняют пространство светом, витражные конструкции подчёркивают эстетику, а удобные холлы и рациональное зонирование делают каждый день лёгким и комфортным.
Позвоните и узнайте условия покупки прямо сейчас!
20.02.2026
7 737 730 ₽
Продается 2-комн. квартира, площадью 54.11 м2 в монолитно-кирпичной новостройке. Возможен вариант покупки с использованием ипотечных средств, есть рассрочка, возможна покупка с использованием материнского капитала, есть военная ипотека.
Жилая площадь 23.9 м2, предчистовая отделка.
Квартира располагается на 5 этаже 16-этажного дома в ЖК Горные высоты.
Застройщик - ГК ССК, сдача дома - III квартал 2027 года, высота потолков 2.7 м.
Дом оборудован грузовым и пассажирским лифтом.
Парковка автомобилей - наземная. Обеспечение безопасности: видеонаблюдение. Инфраструктура: школа, детский сад, поликлиника, детские площадки, спортивные площадки, места для отдыха.
«Горные Высоты» - это радушный, современный и природный микрорайон, где сердце остаётся навсегда: соседи становятся семьёй, технологии служат уюту, а горный воздух и панорамные виды дарят ощущение гармонии каждый день. Здесь рождаются тёплые традиции, всё продумано для комфорта жизни, а природа становится частью вашего дома. Возвращаться сюда - значит возвращаться туда, где вас ждут, понимают и окружают заботой.
При покупке трёхкомнатной квартиры в микрорайоне «Горные Высоты» вы получаете качественный ремонт в подарок - всё, чтобы сразу заселиться и начать жить.
Современные планировки, высокие потолки и продуманные до деталей отделочные материалы создают идеальный баланс между уютом и стилем. Большие панорамные окна наполняют пространство светом, витражные конструкции подчёркивают эстетику, а удобные холлы и рациональное зонирование делают каждый день лёгким и комфортным.
Позвоните и узнайте условия покупки прямо сейчас!
20.02.2026
7 737 730 ₽
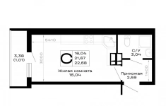
Продается студия, площадью 22.68 м2 в монолитно-кирпичной новостройке. Возможен вариант покупки с использованием ипотечных средств, есть рассрочка, возможна покупка с использованием материнского капитала, есть военная ипотека.
Жилая площадь 16.04 м2, предчистовая отделка, комнаты смежные.
Квартира располагается на 2 этаже 16-этажного дома в ЖК Горные высоты.
Застройщик - ГК ССК, сдача дома - III квартал 2027 года, высота потолков 2.7 м.
Дом оборудован грузовым и пассажирским лифтом.
Парковка автомобилей - наземная. Обеспечение безопасности: видеонаблюдение. Инфраструктура: школа, детский сад, поликлиника, детские площадки, спортивные площадки, места для отдыха.
«Горные Высоты» - это радушный, современный и природный микрорайон, где сердце остаётся навсегда: соседи становятся семьёй, технологии служат уюту, а горный воздух и панорамные виды дарят ощущение гармонии каждый день. Здесь рождаются тёплые традиции, всё продумано для комфорта жизни, а природа становится частью вашего дома. Возвращаться сюда - значит возвращаться туда, где вас ждут, понимают и окружают заботой.
При покупке трёхкомнатной квартиры в микрорайоне «Горные Высоты» вы получаете качественный ремонт в подарок - всё, чтобы сразу заселиться и начать жить.
Современные планировки, высокие потолки и продуманные до деталей отделочные материалы создают идеальный баланс между уютом и стилем. Большие панорамные окна наполняют пространство светом, витражные конструкции подчёркивают эстетику, а удобные холлы и рациональное зонирование делают каждый день лёгким и комфортным.
Позвоните и узнайте условия покупки прямо сейчас!
20.02.2026
3 764 880 ₽
Продается студия, площадью 22.68 м2 в монолитно-кирпичной новостройке. Возможен вариант покупки с использованием ипотечных средств, есть рассрочка, возможна покупка с использованием материнского капитала, есть военная ипотека.
Жилая площадь 16.04 м2, предчистовая отделка, комнаты смежные.
Квартира располагается на 2 этаже 16-этажного дома в ЖК Горные высоты.
Застройщик - ГК ССК, сдача дома - III квартал 2027 года, высота потолков 2.7 м.
Дом оборудован грузовым и пассажирским лифтом.
Парковка автомобилей - наземная. Обеспечение безопасности: видеонаблюдение. Инфраструктура: школа, детский сад, поликлиника, детские площадки, спортивные площадки, места для отдыха.
«Горные Высоты» - это радушный, современный и природный микрорайон, где сердце остаётся навсегда: соседи становятся семьёй, технологии служат уюту, а горный воздух и панорамные виды дарят ощущение гармонии каждый день. Здесь рождаются тёплые традиции, всё продумано для комфорта жизни, а природа становится частью вашего дома. Возвращаться сюда - значит возвращаться туда, где вас ждут, понимают и окружают заботой.
При покупке трёхкомнатной квартиры в микрорайоне «Горные Высоты» вы получаете качественный ремонт в подарок - всё, чтобы сразу заселиться и начать жить.
Современные планировки, высокие потолки и продуманные до деталей отделочные материалы создают идеальный баланс между уютом и стилем. Большие панорамные окна наполняют пространство светом, витражные конструкции подчёркивают эстетику, а удобные холлы и рациональное зонирование делают каждый день лёгким и комфортным.
Позвоните и узнайте условия покупки прямо сейчас!
20.02.2026
3 764 880 ₽
Продается студия, площадью 22.68 м2 в монолитно-кирпичной новостройке. Возможен вариант покупки с использованием ипотечных средств, есть рассрочка, возможна покупка с использованием материнского капитала, есть военная ипотека.
Жилая площадь 16.04 м2, предчистовая отделка, комнаты смежные.
Квартира располагается на 3 этаже 16-этажного дома в ЖК Горные высоты.
Застройщик - ГК ССК, сдача дома - III квартал 2027 года, высота потолков 2.7 м.
Дом оборудован грузовым и пассажирским лифтом.
Парковка автомобилей - наземная. Обеспечение безопасности: видеонаблюдение. Инфраструктура: школа, детский сад, поликлиника, детские площадки, спортивные площадки, места для отдыха.
«Горные Высоты» - это радушный, современный и природный микрорайон, где сердце остаётся навсегда: соседи становятся семьёй, технологии служат уюту, а горный воздух и панорамные виды дарят ощущение гармонии каждый день. Здесь рождаются тёплые традиции, всё продумано для комфорта жизни, а природа становится частью вашего дома. Возвращаться сюда - значит возвращаться туда, где вас ждут, понимают и окружают заботой.
При покупке трёхкомнатной квартиры в микрорайоне «Горные Высоты» вы получаете качественный ремонт в подарок - всё, чтобы сразу заселиться и начать жить.
Современные планировки, высокие потолки и продуманные до деталей отделочные материалы создают идеальный баланс между уютом и стилем. Большие панорамные окна наполняют пространство светом, витражные конструкции подчёркивают эстетику, а удобные холлы и рациональное зонирование делают каждый день лёгким и комфортным.
Позвоните и узнайте условия покупки прямо сейчас!
20.02.2026
3 764 880 ₽
Продается студия, площадью 22.68 м2 в монолитно-кирпичной новостройке. Возможен вариант покупки с использованием ипотечных средств, есть рассрочка, возможна покупка с использованием материнского капитала, есть военная ипотека.
Жилая площадь 16.04 м2, предчистовая отделка, комнаты смежные.
Квартира располагается на 6 этаже 16-этажного дома в ЖК Горные высоты.
Застройщик - ГК ССК, сдача дома - III квартал 2027 года, высота потолков 2.7 м.
Дом оборудован грузовым и пассажирским лифтом.
Парковка автомобилей - наземная. Обеспечение безопасности: видеонаблюдение. Инфраструктура: школа, детский сад, поликлиника, детские площадки, спортивные площадки, места для отдыха.
«Горные Высоты» - это радушный, современный и природный микрорайон, где сердце остаётся навсегда: соседи становятся семьёй, технологии служат уюту, а горный воздух и панорамные виды дарят ощущение гармонии каждый день. Здесь рождаются тёплые традиции, всё продумано для комфорта жизни, а природа становится частью вашего дома. Возвращаться сюда - значит возвращаться туда, где вас ждут, понимают и окружают заботой.
При покупке трёхкомнатной квартиры в микрорайоне «Горные Высоты» вы получаете качественный ремонт в подарок - всё, чтобы сразу заселиться и начать жить.
Современные планировки, высокие потолки и продуманные до деталей отделочные материалы создают идеальный баланс между уютом и стилем. Большие панорамные окна наполняют пространство светом, витражные конструкции подчёркивают эстетику, а удобные холлы и рациональное зонирование делают каждый день лёгким и комфортным.
Позвоните и узнайте условия покупки прямо сейчас!
20.02.2026
3 764 880 ₽
Продается 2-комн. квартира, площадью 49.5 м2 в панельной новостройке. Возможен вариант покупки с использованием ипотечных средств, возможна покупка с использованием материнского капитала.
Жилая площадь 21.5 м2, кухня 14.3 м2, предчистовая отделка.
Квартира располагается на 2 этаже 12-этажного дома в ЖК На Высоком берегу.
Застройщик - ГК ССК, сдача дома - II квартал 2027 года, высота потолков 2.7 м.
Дом оборудован пассажирским лифтом.
Подземная парковка. Инфраструктура: детские площадки, спортивные площадки, места для отдыха, рестораны.
Семейный квартал «На Высоком берегу» расположен всего в 300 метрах от моря, где каждая деталь создана для вашего максимального комфорта. Квартиры с высотой потолков 2,7 метра, просторные мастер-спальни и великолепные виды.
169 уникальных, современных и функциональных планировок, каждая из которых разработана специально для комфортной семейной жизни. Продуманное зонирование, рациональное использование пространства и эстетика современного дизайна делают каждую квартиру настоящим воплощением мечты о жилье премиум-класса.
«На Высоком берегу» - это не просто семейный квартал, это состояние души, доступное лишь немногим. И прямо сейчас у вас есть уникальный шанс стать одним из этих избранных.
Мы открываем специальные условия на 50 квартир, окна которых смотрят на главные достопримечательности вашей новой жизни: на умиротворяющую зелень Крещенского парка и сияющую линию Белой набережной. Это предложение для тех, кто понимает, что настоящая ценность - не в метрах, а в виде из окна, который каждый день дарит чувство гармонии и покоя.
Успейте закрепить за собой один из 50 лотов с выгодными условиями и начните писать свою историю на самом живописном листе Анапы - там, где высокий берег становится началом всего самого важного.
Позвоните и узнайте условия покупки прямо сейчас!
10.02.2026
12 870 000 ₽
Продается 2-комн. квартира, площадью 51.6 м2 в монолитно-кирпичной новостройке. Возможен вариант покупки с использованием ипотечных средств, есть рассрочка, возможна покупка с использованием материнского капитала, есть военная ипотека.
Жилая площадь 24.8 м2, кухня 13.5 м2, предчистовая отделка.
Квартира располагается на 2 этаже 18-этажного дома в ЖК Фонтаны.
Застройщик - ГК ССК, сдача дома - IV квартал 2026 года, высота потолков 2.82 м.
Дом оборудован пассажирским лифтом, закрытая территория.
Отдельная многоуровневая парковка, парковка охраняется. Обеспечение безопасности: видеонаблюдение, противопожарная система. Инфраструктура: детский сад, детские площадки, спортивные площадки, места для отдыха, супермаркет, рестораны, фитнес-центр, пункты бытового обслуживания, коммерческие объекты.
Жилой комплекс «Фонтаны» - дом клубного типа. Преимущество заключается в продуманном ландшафте дворов, круглосуточно охраняемой территории, системе видеонаблюдения во дворе. Также для удобства жителей проведен Wi-Fi во дворе, оборудованы безопасные и современные детские площадки, зоны отдыха.
«Фонтаны» - уникальный, неповторимый жилой комплекс, воплощающий оригинальные и креативные решения дизайнеров и архитекторов. Дома округлой форме - это придает им легкости, несмотря на массивность постройки.
ЖК «Фонтаны» расположен в микрорайоне Черёмушки. Отличная транспортная развязка позволяет быстро и с комфортом добраться до центра, а большое количество зеленых насаждений и парков дает возможность гулять с детьми и наслаждаться прекрасным видом на Кубань.
В жилом комплексе «Фонтаны» семьи с детьми до шести лет включительно могут оформить ипотеку по льготной ставке от 3,5% при первоначальном взносе от 20%.
Это возможность приобрести современную квартиру с продуманной планировкой, панорамными окнами и видами на реку Кубань, не откладывая мечту «на потом».
Территория ЖК - продуманное пространство для жизни: здесь найдётся место и для детских игр, и для спокойного отдыха взрослых, а близость к парковой зоне и будущему детскому саду сделает каждый день ещё комфортнее.
Выбирайте квартиру с готовым ремонтом и заселяйтесь без лишних хлопот - всё, что нужно для старта новой главы вашей семейной истории, уже здесь. Информация носит справочный характер. Не является публичной офертой.
Аккредитованные банки: Сбербанк, Альфа-Банк, ВТБ, Банк Уралсиб, РОССИЯ, Абсолют Банк, Металлинвестбанк, РНКБ, ПСБ, Кубань Кредит, Банк ВБРР, Россельхозбанк.
Позвоните и узнайте условия покупки прямо сейчас!
17.02.2026
9 804 000 ₽
Продается 2-комн. квартира, площадью 55 м2 в монолитно-кирпичной новостройке. Возможен вариант покупки с использованием ипотечных средств, есть рассрочка, возможна покупка с использованием материнского капитала, есть военная ипотека.
Жилая площадь 24.2 м2, кухня 16.3 м2, предчистовая отделка.
Квартира располагается на 7 этаже 18-этажного дома в ЖК Фонтаны.
Застройщик - ГК ССК, сдача дома - IV квартал 2026 года.
Дом оборудован пассажирским лифтом, закрытая территория.
Отдельная многоуровневая парковка, парковка охраняется. Обеспечение безопасности: видеонаблюдение, противопожарная система. Инфраструктура: детский сад, детские площадки, спортивные площадки, места для отдыха, супермаркет, рестораны, фитнес-центр, пункты бытового обслуживания, коммерческие объекты.
Жилой комплекс «Фонтаны» - дом клубного типа. Преимущество заключается в продуманном ландшафте дворов, круглосуточно охраняемой территории, системе видеонаблюдения во дворе. Также для удобства жителей проведен Wi-Fi во дворе, оборудованы безопасные и современные детские площадки, зоны отдыха.
«Фонтаны» - уникальный, неповторимый жилой комплекс, воплощающий оригинальные и креативные решения дизайнеров и архитекторов. Дома округлой форме - это придает им легкости, несмотря на массивность постройки.
ЖК «Фонтаны» расположен в микрорайоне Черёмушки. Отличная транспортная развязка позволяет быстро и с комфортом добраться до центра, а большое количество зеленых насаждений и парков дает возможность гулять с детьми и наслаждаться прекрасным видом на Кубань.
В жилом комплексе «Фонтаны» семьи с детьми до шести лет включительно могут оформить ипотеку по льготной ставке от 3,5% при первоначальном взносе от 20%.
Это возможность приобрести современную квартиру с продуманной планировкой, панорамными окнами и видами на реку Кубань, не откладывая мечту «на потом».
Территория ЖК - продуманное пространство для жизни: здесь найдётся место и для детских игр, и для спокойного отдыха взрослых, а близость к парковой зоне и будущему детскому саду сделает каждый день ещё комфортнее.
Выбирайте квартиру с готовым ремонтом и заселяйтесь без лишних хлопот - всё, что нужно для старта новой главы вашей семейной истории, уже здесь. Информация носит справочный характер. Не является публичной офертой.
Аккредитованные банки: Сбербанк, Альфа-Банк, ВТБ, Банк Уралсиб, РОССИЯ, Абсолют Банк, Металлинвестбанк, РНКБ, ПСБ, Кубань Кредит, Банк ВБРР, Россельхозбанк.
Позвоните и узнайте условия покупки прямо сейчас!
28.02.2026
9 900 000 ₽
Продается 2-комн. квартира, площадью 55 м2 в монолитно-кирпичной новостройке. Возможен вариант покупки с использованием ипотечных средств, есть рассрочка, возможна покупка с использованием материнского капитала, есть военная ипотека.
Жилая площадь 24.2 м2, кухня 16.3 м2, предчистовая отделка.
Квартира располагается на 4 этаже 18-этажного дома в ЖК Фонтаны.
Застройщик - ГК ССК, сдача дома - IV квартал 2026 года.
Дом оборудован пассажирским лифтом, закрытая территория.
Отдельная многоуровневая парковка, парковка охраняется. Обеспечение безопасности: видеонаблюдение, противопожарная система. Инфраструктура: детский сад, детские площадки, спортивные площадки, места для отдыха, супермаркет, рестораны, фитнес-центр, пункты бытового обслуживания, коммерческие объекты.
Жилой комплекс «Фонтаны» - дом клубного типа. Преимущество заключается в продуманном ландшафте дворов, круглосуточно охраняемой территории, системе видеонаблюдения во дворе. Также для удобства жителей проведен Wi-Fi во дворе, оборудованы безопасные и современные детские площадки, зоны отдыха.
«Фонтаны» - уникальный, неповторимый жилой комплекс, воплощающий оригинальные и креативные решения дизайнеров и архитекторов. Дома округлой форме - это придает им легкости, несмотря на массивность постройки.
ЖК «Фонтаны» расположен в микрорайоне Черёмушки. Отличная транспортная развязка позволяет быстро и с комфортом добраться до центра, а большое количество зеленых насаждений и парков дает возможность гулять с детьми и наслаждаться прекрасным видом на Кубань.
В жилом комплексе «Фонтаны» семьи с детьми до шести лет включительно могут оформить ипотеку по льготной ставке от 3,5% при первоначальном взносе от 20%.
Это возможность приобрести современную квартиру с продуманной планировкой, панорамными окнами и видами на реку Кубань, не откладывая мечту «на потом».
Территория ЖК - продуманное пространство для жизни: здесь найдётся место и для детских игр, и для спокойного отдыха взрослых, а близость к парковой зоне и будущему детскому саду сделает каждый день ещё комфортнее.
Выбирайте квартиру с готовым ремонтом и заселяйтесь без лишних хлопот - всё, что нужно для старта новой главы вашей семейной истории, уже здесь. Информация носит справочный характер. Не является публичной офертой.
Аккредитованные банки: Сбербанк, Альфа-Банк, ВТБ, Банк Уралсиб, РОССИЯ, Абсолют Банк, Металлинвестбанк, РНКБ, ПСБ, Кубань Кредит, Банк ВБРР, Россельхозбанк.
Позвоните и узнайте условия покупки прямо сейчас!
17.02.2026
9 900 000 ₽
Продается 2-комн. квартира, площадью 55 м2 в монолитно-кирпичной новостройке. Возможен вариант покупки с использованием ипотечных средств, есть рассрочка, возможна покупка с использованием материнского капитала, есть военная ипотека.
Жилая площадь 24.2 м2, кухня 16.3 м2, предчистовая отделка.
Квартира располагается на 8 этаже 18-этажного дома в ЖК Фонтаны.
Застройщик - ГК ССК, сдача дома - IV квартал 2026 года.
Дом оборудован пассажирским лифтом, закрытая территория.
Отдельная многоуровневая парковка, парковка охраняется. Обеспечение безопасности: видеонаблюдение, противопожарная система. Инфраструктура: детский сад, детские площадки, спортивные площадки, места для отдыха, супермаркет, рестораны, фитнес-центр, пункты бытового обслуживания, коммерческие объекты.
Жилой комплекс «Фонтаны» - дом клубного типа. Преимущество заключается в продуманном ландшафте дворов, круглосуточно охраняемой территории, системе видеонаблюдения во дворе. Также для удобства жителей проведен Wi-Fi во дворе, оборудованы безопасные и современные детские площадки, зоны отдыха.
«Фонтаны» - уникальный, неповторимый жилой комплекс, воплощающий оригинальные и креативные решения дизайнеров и архитекторов. Дома округлой форме - это придает им легкости, несмотря на массивность постройки.
ЖК «Фонтаны» расположен в микрорайоне Черёмушки. Отличная транспортная развязка позволяет быстро и с комфортом добраться до центра, а большое количество зеленых насаждений и парков дает возможность гулять с детьми и наслаждаться прекрасным видом на Кубань.
В жилом комплексе «Фонтаны» семьи с детьми до шести лет включительно могут оформить ипотеку по льготной ставке от 3,5% при первоначальном взносе от 20%.
Это возможность приобрести современную квартиру с продуманной планировкой, панорамными окнами и видами на реку Кубань, не откладывая мечту «на потом».
Территория ЖК - продуманное пространство для жизни: здесь найдётся место и для детских игр, и для спокойного отдыха взрослых, а близость к парковой зоне и будущему детскому саду сделает каждый день ещё комфортнее.
Выбирайте квартиру с готовым ремонтом и заселяйтесь без лишних хлопот - всё, что нужно для старта новой главы вашей семейной истории, уже здесь. Информация носит справочный характер. Не является публичной офертой.
Аккредитованные банки: Сбербанк, Альфа-Банк, ВТБ, Банк Уралсиб, РОССИЯ, Абсолют Банк, Металлинвестбанк, РНКБ, ПСБ, Кубань Кредит, Банк ВБРР, Россельхозбанк.
Позвоните и узнайте условия покупки прямо сейчас!
05.03.2026
9 900 000 ₽
Продается 2-комн. квартира, площадью 55 м2 в монолитно-кирпичной новостройке. Возможен вариант покупки с использованием ипотечных средств, есть рассрочка, возможна покупка с использованием материнского капитала, есть военная ипотека.
Жилая площадь 24.2 м2, кухня 16.3 м2, предчистовая отделка.
Квартира располагается на 4 этаже 18-этажного дома в ЖК Фонтаны.
Застройщик - ГК ССК, сдача дома - IV квартал 2026 года.
Дом оборудован пассажирским лифтом, закрытая территория.
Отдельная многоуровневая парковка, парковка охраняется. Обеспечение безопасности: видеонаблюдение, противопожарная система. Инфраструктура: детский сад, детские площадки, спортивные площадки, места для отдыха, супермаркет, рестораны, фитнес-центр, пункты бытового обслуживания, коммерческие объекты.
Жилой комплекс «Фонтаны» - дом клубного типа. Преимущество заключается в продуманном ландшафте дворов, круглосуточно охраняемой территории, системе видеонаблюдения во дворе. Также для удобства жителей проведен Wi-Fi во дворе, оборудованы безопасные и современные детские площадки, зоны отдыха.
«Фонтаны» - уникальный, неповторимый жилой комплекс, воплощающий оригинальные и креативные решения дизайнеров и архитекторов. Дома округлой форме - это придает им легкости, несмотря на массивность постройки.
ЖК «Фонтаны» расположен в микрорайоне Черёмушки. Отличная транспортная развязка позволяет быстро и с комфортом добраться до центра, а большое количество зеленых насаждений и парков дает возможность гулять с детьми и наслаждаться прекрасным видом на Кубань.
В жилом комплексе «Фонтаны» семьи с детьми до шести лет включительно могут оформить ипотеку по льготной ставке от 3,5% при первоначальном взносе от 20%.
Это возможность приобрести современную квартиру с продуманной планировкой, панорамными окнами и видами на реку Кубань, не откладывая мечту «на потом».
Территория ЖК - продуманное пространство для жизни: здесь найдётся место и для детских игр, и для спокойного отдыха взрослых, а близость к парковой зоне и будущему детскому саду сделает каждый день ещё комфортнее.
Выбирайте квартиру с готовым ремонтом и заселяйтесь без лишних хлопот - всё, что нужно для старта новой главы вашей семейной истории, уже здесь. Информация носит справочный характер. Не является публичной офертой.
Аккредитованные банки: Сбербанк, Альфа-Банк, ВТБ, Банк Уралсиб, РОССИЯ, Абсолют Банк, Металлинвестбанк, РНКБ, ПСБ, Кубань Кредит, Банк ВБРР, Россельхозбанк.
Позвоните и узнайте условия покупки прямо сейчас!
28.02.2026
9 900 000 ₽
Продается 2-комн. квартира, площадью 50.9 м2 в монолитно-кирпичной новостройке. Возможен вариант покупки с использованием ипотечных средств, есть рассрочка, возможна покупка с использованием материнского капитала, есть военная ипотека.
Жилая площадь 25 м2, кухня 13 м2, предчистовая отделка.
Квартира располагается на 13 этаже 18-этажного дома в ЖК Фонтаны.
Застройщик - ГК ССК, сдача дома - IV квартал 2026 года.
Дом оборудован пассажирским лифтом, закрытая территория.
Отдельная многоуровневая парковка, парковка охраняется. Обеспечение безопасности: видеонаблюдение, противопожарная система. Инфраструктура: детский сад, детские площадки, спортивные площадки, места для отдыха, супермаркет, рестораны, фитнес-центр, пункты бытового обслуживания, коммерческие объекты.
Жилой комплекс «Фонтаны» - дом клубного типа. Преимущество заключается в продуманном ландшафте дворов, круглосуточно охраняемой территории, системе видеонаблюдения во дворе. Также для удобства жителей проведен Wi-Fi во дворе, оборудованы безопасные и современные детские площадки, зоны отдыха.
«Фонтаны» - уникальный, неповторимый жилой комплекс, воплощающий оригинальные и креативные решения дизайнеров и архитекторов. Дома округлой форме - это придает им легкости, несмотря на массивность постройки.
ЖК «Фонтаны» расположен в микрорайоне Черёмушки. Отличная транспортная развязка позволяет быстро и с комфортом добраться до центра, а большое количество зеленых насаждений и парков дает возможность гулять с детьми и наслаждаться прекрасным видом на Кубань.
В жилом комплексе «Фонтаны» семьи с детьми до шести лет включительно могут оформить ипотеку по льготной ставке от 3,5% при первоначальном взносе от 20%.
Это возможность приобрести современную квартиру с продуманной планировкой, панорамными окнами и видами на реку Кубань, не откладывая мечту «на потом».
Территория ЖК - продуманное пространство для жизни: здесь найдётся место и для детских игр, и для спокойного отдыха взрослых, а близость к парковой зоне и будущему детскому саду сделает каждый день ещё комфортнее.
Выбирайте квартиру с готовым ремонтом и заселяйтесь без лишних хлопот - всё, что нужно для старта новой главы вашей семейной истории, уже здесь. Информация носит справочный характер. Не является публичной офертой.
Аккредитованные банки: Сбербанк, Альфа-Банк, ВТБ, Банк Уралсиб, РОССИЯ, Абсолют Банк, Металлинвестбанк, РНКБ, ПСБ, Кубань Кредит, Банк ВБРР, Россельхозбанк.
Позвоните и узнайте условия покупки прямо сейчас!
17.02.2026
9 671 000 ₽
Продается 2-комн. квартира, площадью 50.9 м2 в монолитно-кирпичной новостройке. Возможен вариант покупки с использованием ипотечных средств, есть рассрочка, возможна покупка с использованием материнского капитала, есть военная ипотека.
Жилая площадь 25 м2, кухня 13 м2, предчистовая отделка.
Квартира располагается на 11 этаже 18-этажного дома в ЖК Фонтаны.
Застройщик - ГК ССК, сдача дома - IV квартал 2026 года.
Дом оборудован пассажирским лифтом, закрытая территория.
Отдельная многоуровневая парковка, парковка охраняется. Обеспечение безопасности: видеонаблюдение, противопожарная система. Инфраструктура: детский сад, детские площадки, спортивные площадки, места для отдыха, супермаркет, рестораны, фитнес-центр, пункты бытового обслуживания, коммерческие объекты.
Жилой комплекс «Фонтаны» - дом клубного типа. Преимущество заключается в продуманном ландшафте дворов, круглосуточно охраняемой территории, системе видеонаблюдения во дворе. Также для удобства жителей проведен Wi-Fi во дворе, оборудованы безопасные и современные детские площадки, зоны отдыха.
«Фонтаны» - уникальный, неповторимый жилой комплекс, воплощающий оригинальные и креативные решения дизайнеров и архитекторов. Дома округлой форме - это придает им легкости, несмотря на массивность постройки.
ЖК «Фонтаны» расположен в микрорайоне Черёмушки. Отличная транспортная развязка позволяет быстро и с комфортом добраться до центра, а большое количество зеленых насаждений и парков дает возможность гулять с детьми и наслаждаться прекрасным видом на Кубань.
В жилом комплексе «Фонтаны» семьи с детьми до шести лет включительно могут оформить ипотеку по льготной ставке от 3,5% при первоначальном взносе от 20%.
Это возможность приобрести современную квартиру с продуманной планировкой, панорамными окнами и видами на реку Кубань, не откладывая мечту «на потом».
Территория ЖК - продуманное пространство для жизни: здесь найдётся место и для детских игр, и для спокойного отдыха взрослых, а близость к парковой зоне и будущему детскому саду сделает каждый день ещё комфортнее.
Выбирайте квартиру с готовым ремонтом и заселяйтесь без лишних хлопот - всё, что нужно для старта новой главы вашей семейной истории, уже здесь. Информация носит справочный характер. Не является публичной офертой.
Аккредитованные банки: Сбербанк, Альфа-Банк, ВТБ, Банк Уралсиб, РОССИЯ, Абсолют Банк, Металлинвестбанк, РНКБ, ПСБ, Кубань Кредит, Банк ВБРР, Россельхозбанк.
Позвоните и узнайте условия покупки прямо сейчас!
17.02.2026
9 671 000 ₽
Предлагаем вашему вниманию однокомнатную квартиру общей площадью 30,6 кв.м. , предназначенную исключительно для постоянного проживания семьи или сдачи в аренду.
Местоположение и инфраструктураРасположение: Недалеко от железнодорожной станции «Новороссийск», расстояние составляет примерно 8,5 километров. Транспортная доступность: Прекрасно обслуживается автобусами и маршрутными такси, что значительно облегчает передвижение.
Характеристики недвижимостиДом: 12-этажный монолитный жилой комплекс. Стены: выполнены из прочных монолитных конструкций. Внешняя отделка: хорошее состояние, обеспечивающее эстетику и долговечность фасада. Инженерные коммуникации: электроснабжение, теплоснабжение, централизованное водоотведение и холодное водоснабжение подключены и функционируют исправно.
Интерьер и удобстваОкна: оснащены пластиковыми стеклопакетами, что гарантирует тепло зимой и прохладу летом. Лоджия: имеет качественное остекление, позволяющее комфортно проводить время вне зависимости от погодных условий. Двери: входная дверь выполнена из металла, обеспечивающего безопасность жильцов, межкомнатные двери отсутствуют, что даёт возможность собственнику самостоятельно выбрать стиль интерьера. Санузел: совмещённый, готов к ремонту и оформлению в желаемом стиле. Чердак/мансарда: присутствует, что увеличивает общую полезную площадь дома. Лифт: имеется, что удобно для перемещения между этажами.
Эта квартира станет прекрасным вариантом для тех, кто ценит удобство расположения, хороший уровень обслуживания общественных транспортных средств и качественные материалы в строительстве своего будущего дома.
29.01.2026
5 730 000 ₽
Продаются 2 комн. апартаменты, площадью 47 м2 в монолитной новостройке. Возможен вариант покупки с использованием ипотечных средств, есть рассрочка, возможна покупка с использованием материнского капитала, есть военная ипотека.
Жилая площадь 15.9 м2, кухня 13.3 м2, чистовая отделка с мебелью.
Квартира располагается на 2 этаже 9-этажного дома в ЖК Гостиничный комплекс Мореград.
Застройщик - ГК ССК, сдача дома - I квартал 2027 года.
Дом оборудован пассажирским лифтом, закрытая территория.
Подземная парковка, парковка охраняется. Обеспечение безопасности: видеонаблюдение, круглосуточная охрана, противопожарная система. Инфраструктура: детские площадки, спортивные площадки, места для отдыха, супермаркет, рестораны, пункты бытового обслуживания, коммерческие объекты.
Расположенный в живописном месте города-курорта Анапы, гостиничный комплекс «Мореград» предлагает идеальное сочетание уютной обстановки и удобного расположения. Всего в трех минутах ходьбы от тенистых зеленых аллей Пионерского проспекта, он станет идеальным выбором для отдыхающих, желающих насладиться близостью к морю.
Песчаные пляжи Черного моря, всего в 7 минутах ходьбы от комплекса, приглашают насладиться теплым солнцем и ласковыми волнами.
«Мореград» - уникальный современный гостиничный комплекс, где гостям будут доступны все удобства отельного сервиса. Коммерческие блоки и различные виды отдыха - рестораны, бары, магазины, лаунж-зоны, оборудованные спортивные и детские площадки и многое другое сделают отдых гостей незабываемым.
Набережная, море и комфорт в каждом метре - гостиничный комплекс «Мореград» в живописном городе-курорте Анапа представляет специальное предложение для тех, кто ценит выгодные решения. При оплате наличными вы получаете выгоду до 1 180 000 рублей, что делает приобретение недвижимости здесь особенно привлекательным. Расположенный всего в трёх минутах ходьбы от тенистых зелёных аллей Пионерского проспекта, комплекс сочетает уютную атмосферу и удобное расположение, идеально подходя для отдыха и постоянного проживания. Наслаждайтесь близостью к морю, высоким уровнем комфорта и перспективной инвестицией в будущее уже сегодня.
Позвоните и узнайте условия покупки прямо сейчас!
17.01.2026
13 160 000 ₽




















