Объявление о квартирах в Красково - Страница 15
- Красково »
- Недвижимость
- » Квартиры в Красково
Продается 2-комн. квартира, площадью 55.65 м2 в монолитной новостройке в 12 мин. пешком от м. Кунцевская, район города - Кунцево. Возможен вариант покупки с использованием ипотечных средств, есть рассрочка.
Жилая площадь 23.3 м2, кухня 19.77 м2, квартира без отделки, комнаты изолированные.
Квартира располагается на 2 этаже 12-этажного дома в ЖК Среда на Кутузовском.
Застройщик - Среда, сдача дома - IV квартал 2027 года, высота потолков 2.92 м.
Дом оборудован пассажирским лифтом.
Отдельная многоуровневая парковка. Инфраструктура: детские площадки, спортивные площадки.
Комплекс предназначен для людей, которые ставят в приоритет свой комфорт, умеют прислушиваться к себе и понимают, что нужно для внутренней гармонии. Это проект для тех, кто ценит свое время и использует его правильно. Для тех, кто умеет радоваться тому, что есть. «Среда на Кутузовском» - личное место силы и гармонии в двух шагах от центра города.
Жилой комплекс строится в престижном и зеленом Кунцево. Здесь расположены различные торговые центры, престижные учебные заведения (МГУ, РЭУ им. Плеханова, Финансовый университет при Правительстве РФ, РУДН) медицинские клиники.
Представлены широкие возможности для поклонников разных видов спорта: от бега в ближайших парках и велозаездов до гребли, баскетбола, футбола, хоккея, фигурного катания и катания на лыжах. На каждый день подойдет World Class с открытым бассейном - он находится всего в 1 минуте от дома.
Выбор мест для прогулок также разнообразен: Суворовский парк, лесной массив Крылатских холмов, Москворецкий парк и природный заказник «Долина реки Сетунь».
10 мин пешком:
-м. Кунцевская
-вся необходимая инфраструктура
5-15 мин на авто:
-Северо-Западная хорда
-Кутузовский проспект
-Рублевское шоссе
-МКАД
-Можайское шоссе
Проект сочетает в себе ритмичность и динамичность, благодаря своей архитектуре, при он этом окружен зеленью и парками. «Среда на Кутузовском» погружает в активный и разнообразный образ жизни, дает вариативные возможности досуга и вдохновляет на новые свершения.
-Зоны отдыха у воды
-Принцип многослойности в архитектуре
-Зона барбекю
-Пентхаусы
-Умный паркинг
-Гайдбук по управлению умным домом
-Окна в пол на всех этажах
СПЕЦ. ПРЕДЛОЖЕНИЕ:
Ипотека 5% на 5 лет!
Специальные условия от банка МКБ в проекте «Среда на Кутузовском»: льготная ставка 5% действует первые 5 лет кредитования.
Первый взнос - от 50%
Сумма кредита - до 70 млн рублей
После окончания льготного периода, у вас будет возможность рефинансировать ипотеку на более выгодных условиях или погасить её досрочно, продав старую квартиру.
Подробности программы уточняйте у персонального консультанта по телефону.
Аккредитованные банки: Совкомбанк, Альфа-Банк , Банк ДОМ. РФ, Банк ВТБ , Т-Банк , МКБ
Позвоните и узнайте условия покупки прямо сейчас!
03.10.2025
28 359 240 ₽
Продается 2-комн. квартира, площадью 55.47 м2 в монолитной новостройке в 12 мин. пешком от м. Кунцевская, район города - Кунцево. Возможен вариант покупки с использованием ипотечных средств, есть рассрочка.
Жилая площадь 23.17 м2, кухня 19.77 м2, квартира без отделки, комнаты изолированные.
Квартира располагается на 2 этаже 12-этажного дома в ЖК Среда на Кутузовском.
Застройщик - Среда, сдача дома - IV квартал 2027 года, высота потолков 2.92 м.
Дом оборудован пассажирским лифтом.
Отдельная многоуровневая парковка. Инфраструктура: детские площадки, спортивные площадки.
Комплекс предназначен для людей, которые ставят в приоритет свой комфорт, умеют прислушиваться к себе и понимают, что нужно для внутренней гармонии. Это проект для тех, кто ценит свое время и использует его правильно. Для тех, кто умеет радоваться тому, что есть. «Среда на Кутузовском» - личное место силы и гармонии в двух шагах от центра города.
Жилой комплекс строится в престижном и зеленом Кунцево. Здесь расположены различные торговые центры, престижные учебные заведения (МГУ, РЭУ им. Плеханова, Финансовый университет при Правительстве РФ, РУДН) медицинские клиники.
Представлены широкие возможности для поклонников разных видов спорта: от бега в ближайших парках и велозаездов до гребли, баскетбола, футбола, хоккея, фигурного катания и катания на лыжах. На каждый день подойдет World Class с открытым бассейном - он находится всего в 1 минуте от дома.
Выбор мест для прогулок также разнообразен: Суворовский парк, лесной массив Крылатских холмов, Москворецкий парк и природный заказник «Долина реки Сетунь».
10 мин пешком:
-м. Кунцевская
-вся необходимая инфраструктура
5-15 мин на авто:
-Северо-Западная хорда
-Кутузовский проспект
-Рублевское шоссе
-МКАД
-Можайское шоссе
Проект сочетает в себе ритмичность и динамичность, благодаря своей архитектуре, при он этом окружен зеленью и парками. «Среда на Кутузовском» погружает в активный и разнообразный образ жизни, дает вариативные возможности досуга и вдохновляет на новые свершения.
-Зоны отдыха у воды
-Принцип многослойности в архитектуре
-Зона барбекю
-Пентхаусы
-Умный паркинг
-Гайдбук по управлению умным домом
-Окна в пол на всех этажах
СПЕЦ. ПРЕДЛОЖЕНИЕ:
Ипотека 5% на 5 лет!
Специальные условия от банка МКБ в проекте «Среда на Кутузовском»: льготная ставка 5% действует первые 5 лет кредитования.
Первый взнос - от 50%
Сумма кредита - до 70 млн рублей
После окончания льготного периода, у вас будет возможность рефинансировать ипотеку на более выгодных условиях или погасить её досрочно, продав старую квартиру.
Подробности программы уточняйте у персонального консультанта по телефону.
Аккредитованные банки: Совкомбанк, Альфа-Банк , Банк ДОМ. РФ, Банк ВТБ , Т-Банк , МКБ
Позвоните и узнайте условия покупки прямо сейчас!
03.10.2025
27 141 471 ₽
Продается 2-комн. квартира, площадью 55.79 м2 в монолитной новостройке в 12 мин. пешком от м. Кунцевская, район города - Кунцево. Возможен вариант покупки с использованием ипотечных средств, есть рассрочка.
Жилая площадь 23.4 м2, кухня 19.77 м2, квартира без отделки, комнаты изолированные.
Квартира располагается на 2 этаже 12-этажного дома в ЖК Среда на Кутузовском.
Застройщик - Среда, сдача дома - IV квартал 2027 года, высота потолков 2.92 м.
Дом оборудован пассажирским лифтом.
Отдельная многоуровневая парковка. Инфраструктура: детские площадки, спортивные площадки.
Комплекс предназначен для людей, которые ставят в приоритет свой комфорт, умеют прислушиваться к себе и понимают, что нужно для внутренней гармонии. Это проект для тех, кто ценит свое время и использует его правильно. Для тех, кто умеет радоваться тому, что есть. «Среда на Кутузовском» - личное место силы и гармонии в двух шагах от центра города.
Жилой комплекс строится в престижном и зеленом Кунцево. Здесь расположены различные торговые центры, престижные учебные заведения (МГУ, РЭУ им. Плеханова, Финансовый университет при Правительстве РФ, РУДН) медицинские клиники.
Представлены широкие возможности для поклонников разных видов спорта: от бега в ближайших парках и велозаездов до гребли, баскетбола, футбола, хоккея, фигурного катания и катания на лыжах. На каждый день подойдет World Class с открытым бассейном - он находится всего в 1 минуте от дома.
Выбор мест для прогулок также разнообразен: Суворовский парк, лесной массив Крылатских холмов, Москворецкий парк и природный заказник «Долина реки Сетунь».
10 мин пешком:
-м. Кунцевская
-вся необходимая инфраструктура
5-15 мин на авто:
-Северо-Западная хорда
-Кутузовский проспект
-Рублевское шоссе
-МКАД
-Можайское шоссе
Проект сочетает в себе ритмичность и динамичность, благодаря своей архитектуре, при он этом окружен зеленью и парками. «Среда на Кутузовском» погружает в активный и разнообразный образ жизни, дает вариативные возможности досуга и вдохновляет на новые свершения.
-Зоны отдыха у воды
-Принцип многослойности в архитектуре
-Зона барбекю
-Пентхаусы
-Умный паркинг
-Гайдбук по управлению умным домом
-Окна в пол на всех этажах
СПЕЦ. ПРЕДЛОЖЕНИЕ:
Ипотека 5% на 5 лет!
Специальные условия от банка МКБ в проекте «Среда на Кутузовском»: льготная ставка 5% действует первые 5 лет кредитования.
Первый взнос - от 50%
Сумма кредита - до 70 млн рублей
После окончания льготного периода, у вас будет возможность рефинансировать ипотеку на более выгодных условиях или погасить её досрочно, продав старую квартиру.
Подробности программы уточняйте у персонального консультанта по телефону.
Аккредитованные банки: Совкомбанк, Альфа-Банк , Банк ДОМ. РФ, Банк ВТБ , Т-Банк , МКБ
Позвоните и узнайте условия покупки прямо сейчас!
03.10.2025
27 632 787 ₽
Продается просторная квартира площадью 138.10 м2 в жилом комплексе ДОМ XXII. Квартира находится в 3 секции корпуса 1. Этаж 2-й из 12.
Квартира без чистовой отделки, с просторной кухней 41.10 м2. Жилая площадь - 45.40 м2. Высота потолка от 3.50.
ДОМ XXII расположен в Хамовниках - одном из самых респектабельных и тихих районов Москвы. Прямо напротив дома - Новодевичий монастырь, по соседству - Саввинская набережная Москвы-реки и сквер Девичьего поля. Расположение дома позволяет за считанные минуты добраться до всех знаковых мест столицы. Например, на автомобиле до Садового кольца 5 минут, до Дома Правительства - 8, до Кремля - 10.
Неоклассический архитектурный проект переменной этажности (9-12 этажей) выполнен мастерской «Сергей Киселев и Партнеры». Фасады облицованы натуральным мрамором и гранитом, их оригинальный декор создан Андреем, Павлом и Петром Наличами. Благородный силуэт дома подчеркнут французскими балконами и моллированным остеклением на углах.
В доме всего 109 квартир: лоты с патио, пентхаусы с панорамными террасами и возможностью установки камина, а также классические элитные квартиры с большими гостиными, мастер-спальнями, приватными ванными и гардеробными, террасами и лоджиями.
У дома предусмотрена зона дроп-офф. В интерьерах лобби использованы люксовые отделочные материалы, эксклюзивные световые инсталляции, декоративное озеленение. Премиальную атмосферу дополняют зенитный фонарь с естественным светом, водопад, лаунж у камина и библиотека. Площадь лобби 660 м2, высота потолков - до 6,5 м.
Двор превращен в тихий усадебный парк площадью 490 м2. Здесь создана приватная атмосфера для уединенного отдыха: дубовая аллея, пруд с живописным мостиком, галерея-берсо, зеленые комнаты, садовый камин, фонтаны. Для детей - игровая площадка. Для занятий спортом - воркаут. Предусмотрен контроль доступа на территорию, круглосуточная охрана, видеонаблюдение.
Неподалеку находятся лучшие школы: №57, №1535, Филипповская школа, школа «Золотое Сечение». Для знатоков гастрономии рядом - лучшие рестораны: Verd, Peach, «Сахалин», Modus, Soho Rooms, модный гастрономический кластер «Усачевский рынок». Для занятий спортом - спортивный комплекс «Лужники». Для ценителей искусства - Московский дворец молодежи
17.09.2025
237 808 200 ₽
Продается просторная квартира площадью 191.40 м2 в жилом комплексе ДОМ XXII. Квартира находится в 3 секции корпуса 1. Этаж 2-й из 12.
Квартира без чистовой отделки, с просторной кухней 40.90 м2. Жилая площадь - 55.30 м2. Высота потолка от 3.50.
ДОМ XXII расположен в Хамовниках - одном из самых респектабельных и тихих районов Москвы. Прямо напротив дома - Новодевичий монастырь, по соседству - Саввинская набережная Москвы-реки и сквер Девичьего поля. Расположение дома позволяет за считанные минуты добраться до всех знаковых мест столицы. Например, на автомобиле до Садового кольца 5 минут, до Дома Правительства - 8, до Кремля - 10.
Неоклассический архитектурный проект переменной этажности (9-12 этажей) выполнен мастерской «Сергей Киселев и Партнеры». Фасады облицованы натуральным мрамором и гранитом, их оригинальный декор создан Андреем, Павлом и Петром Наличами. Благородный силуэт дома подчеркнут французскими балконами и моллированным остеклением на углах.
В доме всего 109 квартир: лоты с патио, пентхаусы с панорамными террасами и возможностью установки камина, а также классические элитные квартиры с большими гостиными, мастер-спальнями, приватными ванными и гардеробными, террасами и лоджиями.
У дома предусмотрена зона дроп-офф. В интерьерах лобби использованы люксовые отделочные материалы, эксклюзивные световые инсталляции, декоративное озеленение. Премиальную атмосферу дополняют зенитный фонарь с естественным светом, водопад, лаунж у камина и библиотека. Площадь лобби 660 м2, высота потолков - до 6,5 м.
Двор превращен в тихий усадебный парк площадью 490 м2. Здесь создана приватная атмосфера для уединенного отдыха: дубовая аллея, пруд с живописным мостиком, галерея-берсо, зеленые комнаты, садовый камин, фонтаны. Для детей - игровая площадка. Для занятий спортом - воркаут. Предусмотрен контроль доступа на территорию, круглосуточная охрана, видеонаблюдение.
Неподалеку находятся лучшие школы: №57, №1535, Филипповская школа, школа «Золотое Сечение». Для знатоков гастрономии рядом - лучшие рестораны: Verd, Peach, «Сахалин», Modus, Soho Rooms, модный гастрономический кластер «Усачевский рынок». Для занятий спортом - спортивный комплекс «Лужники». Для ценителей искусства - Московский дворец молодежи
25.08.2025
331 504 800 ₽
Продается просторная квартира площадью 152.10 м2 в жилом комплексе ДОМ XXII. Квартира находится в 3 секции корпуса 1. Этаж 3-й из 12.
Квартира без чистовой отделки, с просторной кухней 40.90 м2. Жилая площадь - 55.30 м2. Высота потолка от 3.50.
ДОМ XXII расположен в Хамовниках - одном из самых респектабельных и тихих районов Москвы. Прямо напротив дома - Новодевичий монастырь, по соседству - Саввинская набережная Москвы-реки и сквер Девичьего поля. Расположение дома позволяет за считанные минуты добраться до всех знаковых мест столицы. Например, на автомобиле до Садового кольца 5 минут, до Дома Правительства - 8, до Кремля - 10.
Неоклассический архитектурный проект переменной этажности (9-12 этажей) выполнен мастерской «Сергей Киселев и Партнеры». Фасады облицованы натуральным мрамором и гранитом, их оригинальный декор создан Андреем, Павлом и Петром Наличами. Благородный силуэт дома подчеркнут французскими балконами и моллированным остеклением на углах.
В доме всего 109 квартир: лоты с патио, пентхаусы с панорамными террасами и возможностью установки камина, а также классические элитные квартиры с большими гостиными, мастер-спальнями, приватными ванными и гардеробными, террасами и лоджиями.
У дома предусмотрена зона дроп-офф. В интерьерах лобби использованы люксовые отделочные материалы, эксклюзивные световые инсталляции, декоративное озеленение. Премиальную атмосферу дополняют зенитный фонарь с естественным светом, водопад, лаунж у камина и библиотека. Площадь лобби 660 м2, высота потолков - до 6,5 м.
Двор превращен в тихий усадебный парк площадью 490 м2. Здесь создана приватная атмосфера для уединенного отдыха: дубовая аллея, пруд с живописным мостиком, галерея-берсо, зеленые комнаты, садовый камин, фонтаны. Для детей - игровая площадка. Для занятий спортом - воркаут. Предусмотрен контроль доступа на территорию, круглосуточная охрана, видеонаблюдение.
Неподалеку находятся лучшие школы: №57, №1535, Филипповская школа, школа «Золотое Сечение». Для знатоков гастрономии рядом - лучшие рестораны: Verd, Peach, «Сахалин», Modus, Soho Rooms, модный гастрономический кластер «Усачевский рынок». Для занятий спортом - спортивный комплекс «Лужники». Для ценителей искусства - Московский дворец молодежи
05.09.2025
360 172 800 ₽
Продается просторная квартира площадью 58.30 м2 в жилом комплексе ДОМ XXII. Квартира находится в 3 секции корпуса 1. Этаж 2-й из 12.
Квартира без чистовой отделки, с просторной кухней 22.50 м2. Жилая площадь - 13.30 м2. Высота потолка от 3.50.
ДОМ XXII расположен в Хамовниках - одном из самых респектабельных и тихих районов Москвы. Прямо напротив дома - Новодевичий монастырь, по соседству - Саввинская набережная Москвы-реки и сквер Девичьего поля. Расположение дома позволяет за считанные минуты добраться до всех знаковых мест столицы. Например, на автомобиле до Садового кольца 5 минут, до Дома Правительства - 8, до Кремля - 10.
Неоклассический архитектурный проект переменной этажности (9-12 этажей) выполнен мастерской «Сергей Киселев и Партнеры». Фасады облицованы натуральным мрамором и гранитом, их оригинальный декор создан Андреем, Павлом и Петром Наличами. Благородный силуэт дома подчеркнут французскими балконами и моллированным остеклением на углах.
В доме всего 109 квартир: лоты с патио, пентхаусы с панорамными террасами и возможностью установки камина, а также классические элитные квартиры с большими гостиными, мастер-спальнями, приватными ванными и гардеробными, террасами и лоджиями.
У дома предусмотрена зона дроп-офф. В интерьерах лобби использованы люксовые отделочные материалы, эксклюзивные световые инсталляции, декоративное озеленение. Премиальную атмосферу дополняют зенитный фонарь с естественным светом, водопад, лаунж у камина и библиотека. Площадь лобби 660 м2, высота потолков - до 6,5 м.
Двор превращен в тихий усадебный парк площадью 490 м2. Здесь создана приватная атмосфера для уединенного отдыха: дубовая аллея, пруд с живописным мостиком, галерея-берсо, зеленые комнаты, садовый камин, фонтаны. Для детей - игровая площадка. Для занятий спортом - воркаут. Предусмотрен контроль доступа на территорию, круглосуточная охрана, видеонаблюдение.
Неподалеку находятся лучшие школы: №57, №1535, Филипповская школа, школа «Золотое Сечение». Для знатоков гастрономии рядом - лучшие рестораны: Verd, Peach, «Сахалин», Modus, Soho Rooms, модный гастрономический кластер «Усачевский рынок». Для занятий спортом - спортивный комплекс «Лужники». Для ценителей искусства - Московский дворец молодежи
05.09.2025
101 733 500 ₽
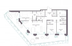
Продается просторная квартира площадью 150.30 м2 в жилом комплексе РЕКА. Квартира находится в 4 секции корпуса 3 (будет введен в эксплуатацию в 4 кв. 2026) . Этаж 6-й из 14.
В квартире продуманная функциональная планировка с просторной кухней 35.70 м2. Жилая площадь - 48.70 м2. Высота потолка от 3,65 м. Изолированные комнаты, 4 санузла(1 раздельный и 3 совмещенных) . Окна на смежные стороны. Виды на природный парк и реку.
РЕКА - клубный дом от Донстрой на западе Москвы, у границы природного заповедника "Долина реки Сетунь", по соседству с МГУ и МГИМО, дипломатическими представительствами зарубежных стран. В 5 минутах ходьбы находится станция метро "Мичуринский проспект", от которой до центра можно доехать за 15 минут. Также 15 минут понадобится, чтобы добраться на автомобиле до Садового кольца.
Прямо из дома можно попасть в природную часть грандиозного парка "Событие". Здесь созданы детские игровые площадки "Луг" и "Лес", большая воркаут-зона, поле для командных видов спорта, площадка для пикников, смотровые площадки с великолепными видами, летний амфитеатр для лекториев и летняя школа.
Архитектурный проект дома выполнен в стиле современной классики: фасады с облицовкой из натурального камня и металлическими декоративными элементами.
В доме представлены элитные клубные резиденции. Одна из секций целиком состоит из квартир с финишной авторской отделкой: дизайнерские интерьеры, итальянские кухни, премиальная бытовая техника и сантехника. В наличии имеются пентхаусы с террасами и каминами.
В непосредственной близости от дома предусмотрены школы, детские сады, магазины, фитнес-центры, кафе и рестораны, медицинские центры - все, что необходимо для жизни.
Закрытый двор без машин обеспечен круглосуточной охраной и системами контроля доступа. Двор создан как ландшафтное продолжение окружающих природных парков и зонирован для различных видов отдыха, детских игр, занятий спортом.
Работает шоурум.
Позвоните и запишитесь на показ квартиры.
05.09.2025
133 767 000 ₽
Продаётся 2-комн. квартира от застройщика: общая площадь 87.00 м, жилая 24.80 м, кухня 37.80 м, 18-й этаж, жилой квартал «Остров 7», корпус 6 (секция 2) . Срок сдачи: 3 квартал 2028 года.
2 совмещенных санузла. В жилой зоне 2 больших окна на одну сторону, хорошая инсоляция.
Позвоните сейчас и забронируйте квартиру!
ОСТРОВ от Донстрой - жилой комплекс на западе Москвы, в Мневниковской пойме. Уникальное преимущество комплекса - в том, что он обособлен от города рекой и природным парком (650 га) . Благодаря природному окружению эта территория имеет лучший экологический рейтинг в столице. Кварталы ОСТРОВА объединены ландшафтным дизайном в единое пространство - с набережными и Центральным бульваром. На ОСТРОВЕ любые объекты, необходимые для полноценной жизни и отдыха, находятся на расстоянии 15-минутной прогулки. Торговый центр и супермаркеты, кафе и рестораны, фитнес, салоны красоты, школы и детские сады. А также крупнейший в Москве спортивный кластер.
25.08.2025
65 337 000 ₽
Продаётся 2-комн. квартира от застройщика: общая площадь 91.20 м, жилая 26.00 м, кухня 35.80 м, 12-й этаж, жилой квартал «Остров 7», корпус 5 (секция 2) . Срок сдачи: 3 квартал 2028 года.
2 совмещенных санузла. В жилой зоне 2 больших окна на одну сторону, хорошая инсоляция.
Позвоните сейчас и забронируйте квартиру!
ОСТРОВ от Донстрой - жилой комплекс на западе Москвы, в Мневниковской пойме. Уникальное преимущество комплекса - в том, что он обособлен от города рекой и природным парком (650 га) . Благодаря природному окружению эта территория имеет лучший экологический рейтинг в столице. Кварталы ОСТРОВА объединены ландшафтным дизайном в единое пространство - с набережными и Центральным бульваром. На ОСТРОВЕ любые объекты, необходимые для полноценной жизни и отдыха, находятся на расстоянии 15-минутной прогулки. Торговый центр и супермаркеты, кафе и рестораны, фитнес, салоны красоты, школы и детские сады. А также крупнейший в Москве спортивный кластер.
16.10.2025
73 963 200 ₽
Продаётся 2-комн. квартира от застройщика: общая площадь 91.20 м, жилая 26.00 м, кухня 35.80 м, 16-й этаж, жилой квартал «Остров 7», корпус 5 (секция 2) . Срок сдачи: 3 квартал 2028 года.
2 совмещенных санузла. В жилой зоне 2 больших окна на одну сторону, хорошая инсоляция.
Позвоните сейчас и забронируйте квартиру!
ОСТРОВ от Донстрой - жилой комплекс на западе Москвы, в Мневниковской пойме. Уникальное преимущество комплекса - в том, что он обособлен от города рекой и природным парком (650 га) . Благодаря природному окружению эта территория имеет лучший экологический рейтинг в столице. Кварталы ОСТРОВА объединены ландшафтным дизайном в единое пространство - с набережными и Центральным бульваром. На ОСТРОВЕ любые объекты, необходимые для полноценной жизни и отдыха, находятся на расстоянии 15-минутной прогулки. Торговый центр и супермаркеты, кафе и рестораны, фитнес, салоны красоты, школы и детские сады. А также крупнейший в Москве спортивный кластер.
25.08.2025
77 884 800 ₽
Продаётся 4-комн. квартира от застройщика: общая площадь 128.60 м, жилая 48.10 м, кухня 44.70 м, 8-й этаж, жилой квартал «Остров 7», корпус 4 (секция 2) . Срок сдачи: 1 квартал 2028 года.
3 совмещенных санузла. В жилой зоне 2 больших окна на одну сторону, хорошая инсоляция.
Позвоните сейчас и забронируйте квартиру!
ОСТРОВ от Донстрой - жилой комплекс на западе Москвы, в Мневниковской пойме. Уникальное преимущество комплекса - в том, что он обособлен от города рекой и природным парком (650 га) . Благодаря природному окружению эта территория имеет лучший экологический рейтинг в столице. Кварталы ОСТРОВА объединены ландшафтным дизайном в единое пространство - с набережными и Центральным бульваром. На ОСТРОВЕ любые объекты, необходимые для полноценной жизни и отдыха, находятся на расстоянии 15-минутной прогулки. Торговый центр и супермаркеты, кафе и рестораны, фитнес, салоны красоты, школы и детские сады. А также крупнейший в Москве спортивный кластер.
25.08.2025
111 239 000 ₽
Продается 3-комн. квартира, площадью 164.1 м2.
Жилая площадь 120.69 м2, кухня 30 кв. м, комнаты изолированные, совмещенных санузлов - 1.
Квартира располагается на 3 этаже 4-этажного кирпичного дома.
14.10.2025
61 000 000 ₽
Продается просторная квартира площадью 218.60 м2 в жилом комплексе РЕКА. Квартира находится в 1 секции корпуса 3 (будет введен в эксплуатацию в 4 кв. 2026) . Этаж 6-й из 16.
В квартире продуманная функциональная планировка с просторной кухней 54.60 м2. Жилая площадь - 89.50 м2. Высота потолка от 3,65 м. Изолированные комнаты, 4 санузла(1 раздельный и 3 совмещенных) . Окна на три стороны света. Виды на природный парк и реку.
РЕКА - клубный дом от Донстрой на западе Москвы, у границы природного заповедника "Долина реки Сетунь", по соседству с МГУ и МГИМО, дипломатическими представительствами зарубежных стран. В 5 минутах ходьбы находится станция метро "Мичуринский проспект", от которой до центра можно доехать за 15 минут. Также 15 минут понадобится, чтобы добраться на автомобиле до Садового кольца.
Прямо из дома можно попасть в природную часть грандиозного парка "Событие". Здесь созданы детские игровые площадки "Луг" и "Лес", большая воркаут-зона, поле для командных видов спорта, площадка для пикников, смотровые площадки с великолепными видами, летний амфитеатр для лекториев и летняя школа.
Архитектурный проект дома выполнен в стиле современной классики: фасады с облицовкой из натурального камня и металлическими декоративными элементами.
В доме представлены элитные клубные резиденции. Одна из секций целиком состоит из квартир с финишной авторской отделкой: дизайнерские интерьеры, итальянские кухни, премиальная бытовая техника и сантехника. В наличии имеются пентхаусы с террасами и каминами.
В непосредственной близости от дома предусмотрены школы, детские сады, магазины, фитнес-центры, кафе и рестораны, медицинские центры - все, что необходимо для жизни.
Закрытый двор без машин обеспечен круглосуточной охраной и системами контроля доступа. Двор создан как ландшафтное продолжение окружающих природных парков и зонирован для различных видов отдыха, детских игр, занятий спортом.
Работает шоурум.
Позвоните и запишитесь на показ квартиры.
05.09.2025
238 055 400 ₽
Продаётся квартира от застройщика: общая площадь 167.50 м, жилая 106.40 м, кухня 14.30 м, 15-й этаж, жилой квартал «Остров 7», корпус 6 (секция 2) . Срок сдачи: 3 квартал 2028 года.
3 совмещенных санузла. В жилой зоне 2 больших окна на одну сторону, хорошая инсоляция.
Позвоните сейчас и забронируйте квартиру!
ОСТРОВ от Донстрой - жилой комплекс на западе Москвы, в Мневниковской пойме. Уникальное преимущество комплекса - в том, что он обособлен от города рекой и природным парком (650 га) . Благодаря природному окружению эта территория имеет лучший экологический рейтинг в столице. Кварталы ОСТРОВА объединены ландшафтным дизайном в единое пространство - с набережными и Центральным бульваром. На ОСТРОВЕ любые объекты, необходимые для полноценной жизни и отдыха, находятся на расстоянии 15-минутной прогулки. Торговый центр и супермаркеты, кафе и рестораны, фитнес, салоны красоты, школы и детские сады. А также крупнейший в Москве спортивный кластер.
25.08.2025
126 630 000 ₽
Продаётся 2-комн. квартира от застройщика: общая площадь 91.20 м, жилая 26.00 м, кухня 35.80 м, 16-й этаж, жилой квартал «Остров 7», корпус 3 (секция 2) . Срок сдачи: 1 квартал 2028 года.
2 совмещенных санузла. В жилой зоне 2 больших окна на одну сторону, хорошая инсоляция.
Позвоните сейчас и забронируйте квартиру!
ОСТРОВ от Донстрой - жилой комплекс на западе Москвы, в Мневниковской пойме. Уникальное преимущество комплекса - в том, что он обособлен от города рекой и природным парком (650 га) . Благодаря природному окружению эта территория имеет лучший экологический рейтинг в столице. Кварталы ОСТРОВА объединены ландшафтным дизайном в единое пространство - с набережными и Центральным бульваром. На ОСТРОВЕ любые объекты, необходимые для полноценной жизни и отдыха, находятся на расстоянии 15-минутной прогулки. Торговый центр и супермаркеты, кафе и рестораны, фитнес, салоны красоты, школы и детские сады. А также крупнейший в Москве спортивный кластер.
25.08.2025
91 291 200 ₽
Продаётся 1-комн. квартира от застройщика: общая площадь 44.00 м, жилая 14.30 м, кухня 19.40 м, 21-й этаж, жилой квартал «Остров 7», корпус 7 (секция 1) . Срок сдачи: 3 квартал 2028 года.
1 совмещенный санузел. В жилой зоне 2 больших окна на одну сторону, хорошая инсоляция.
Позвоните сейчас и забронируйте квартиру!
ОСТРОВ от Донстрой - жилой комплекс на западе Москвы, в Мневниковской пойме. Уникальное преимущество комплекса - в том, что он обособлен от города рекой и природным парком (650 га) . Благодаря природному окружению эта территория имеет лучший экологический рейтинг в столице. Кварталы ОСТРОВА объединены ландшафтным дизайном в единое пространство - с набережными и Центральным бульваром. На ОСТРОВЕ любые объекты, необходимые для полноценной жизни и отдыха, находятся на расстоянии 15-минутной прогулки. Торговый центр и супермаркеты, кафе и рестораны, фитнес, салоны красоты, школы и детские сады. А также крупнейший в Москве спортивный кластер.
25.08.2025
40 682 400 ₽
Продается 3-комнатная квартира в доме Champine (Сосинская, д. 8) .
Дом введен в эксплуатацию!
Общая площадь квартиры - 75.37 кв.м. В квартире выполнена премиальная отделка в современном стиле.
Отделка выполнена из высококачественных материалов: на полу - инженерная доска, на стенах - финишная покраска, потолок из ГКЛ белого цвета с нишами под шторы. Установлены точёные светильники и сделаны выводы под люстры. В каждой комнате будет установлена сплит-система с внутренним и внешним блоком, электрофурнитура (розетки, выключатели) . В санузлах установлена вся сантехника, тумбочка под раковину, оборудован теплый пол. Благодаря увеличенным окнам и высоким потолкам квартира наполнится светом и воздухом.
Champine - дом с камерной атмосферой, где каждая деталь продумана для вашего удобства.
Дом состоит из трех корпусов высотой от 6 до 13 этажей и рассчитан всего на 238 квартир. В проекте будет закрытая территория с видеонаблюдением. Предусмотрен подземный паркинг на 169 машино-мест, каждое из которых можно оборудовать зарядкой для электромобилей.
Дизайнерская отделка лобби и консьерж-сервис 24/7 сделают вашу жизнь в доме еще комфортнее.
Под благоустройство выделено 8 000 кв. м территории. Во внутреннем дворе будут игровые и спортивные площадки, а также зоны отдыха для взрослых и детей.
Расположенный на границе ЦАО Champine станет тем местом, куда действительно хочется вернуться после рабочего дня. Кирпично-монолитная технология также станет плюсом. Дом сдан.
Не упустите свой шанс стать обладателем квартиры в доме Champine!
11.10.2025
53 090 000 ₽
Продается 1-комнатная квартира в доме Champine (Сосинская, д. 8) .
Дом введен в эксплуатацию!
Общая площадь квартиры - 42.8 кв.м. В квартире выполнена премиальная отделка в неоклассическом стиле.
Отделка выполнена из высококачественных материалов: на полу - инженерная доска, на стенах - финишная покраска, потолок из ГКЛ белого цвета с нишами под шторы. Установлены точёные светильники и сделаны выводы под люстры. В каждой комнате будет установлена сплит-система с внутренним и внешним блоком, электрофурнитура (розетки, выключатели) . В санузлах установлена вся сантехника, тумбочка под раковину, оборудован теплый пол. Благодаря увеличенным окнам и высоким потолкам квартира наполнится светом и воздухом.
Champine - дом с камерной атмосферой, где каждая деталь продумана для вашего удобства.
Дом состоит из трех корпусов высотой от 6 до 13 этажей и рассчитан всего на 238 квартир. В проекте будет закрытая территория с видеонаблюдением. Предусмотрен подземный паркинг на 169 машино-мест, каждое из которых можно оборудовать зарядкой для электромобилей.
Дизайнерская отделка лобби и консьерж-сервис 24/7 сделают вашу жизнь в доме еще комфортнее.
Под благоустройство выделено 8 000 кв. м территории. Во внутреннем дворе будут игровые и спортивные площадки, а также зоны отдыха для взрослых и детей.
Расположенный на границе ЦАО Champine станет тем местом, куда действительно хочется вернуться после рабочего дня. Кирпично-монолитная технология также станет плюсом. Дом сдан.
Не упустите свой шанс стать обладателем квартиры в доме Champine!
11.10.2025
34 380 000 ₽
Продается 2-комнатная квартира в доме Champine (Сосинская, д. 8) .
Дом введен в эксплуатацию!
Общая площадь квартиры - 64 кв.м. В квартире выполнена премиальная отделка в неоклассическом стиле.
Отделка выполнена из высококачественных материалов: на полу - инженерная доска, на стенах - финишная покраска, потолок из ГКЛ белого цвета с нишами под шторы. Установлены точёные светильники и сделаны выводы под люстры. В каждой комнате будет установлена сплит-система с внутренним и внешним блоком, электрофурнитура (розетки, выключатели) . В санузлах установлена вся сантехника, тумбочка под раковину, оборудован теплый пол. Благодаря увеличенным окнам и высоким потолкам квартира наполнится светом и воздухом.
Champine - дом с камерной атмосферой, где каждая деталь продумана для вашего удобства.
Дом состоит из трех корпусов высотой от 6 до 13 этажей и рассчитан всего на 238 квартир. В проекте будет закрытая территория с видеонаблюдением. Предусмотрен подземный паркинг на 169 машино-мест, каждое из которых можно оборудовать зарядкой для электромобилей.
Дизайнерская отделка лобби и консьерж-сервис 24/7 сделают вашу жизнь в доме еще комфортнее.
Под благоустройство выделено 8 000 кв. м территории. Во внутреннем дворе будут игровые и спортивные площадки, а также зоны отдыха для взрослых и детей.
Расположенный на границе ЦАО Champine станет тем местом, куда действительно хочется вернуться после рабочего дня. Кирпично-монолитная технология также станет плюсом. Дом сдан.
Не упустите свой шанс стать обладателем квартиры в доме Champine!
11.10.2025
48 320 000 ₽
Продается просторная квартира площадью 144.70 м2 в жилом комплексе ДОМ XXII. Квартира находится в 1 секции корпуса 1. Этаж 2-й из 11.
Квартира без чистовой отделки, с просторной кухней 34.20 м2. Жилая площадь - 42.40 м2. Высота потолка от 3.50.
ДОМ XXII расположен в Хамовниках - одном из самых респектабельных и тихих районов Москвы. Прямо напротив дома - Новодевичий монастырь, по соседству - Саввинская набережная Москвы-реки и сквер Девичьего поля. Расположение дома позволяет за считанные минуты добраться до всех знаковых мест столицы. Например, на автомобиле до Садового кольца 5 минут, до Дома Правительства - 8, до Кремля - 10.
Неоклассический архитектурный проект переменной этажности (9-12 этажей) выполнен мастерской «Сергей Киселев и Партнеры». Фасады облицованы натуральным мрамором и гранитом, их оригинальный декор создан Андреем, Павлом и Петром Наличами. Благородный силуэт дома подчеркнут французскими балконами и моллированным остеклением на углах.
В доме всего 109 квартир: лоты с патио, пентхаусы с панорамными террасами и возможностью установки камина, а также классические элитные квартиры с большими гостиными, мастер-спальнями, приватными ванными и гардеробными, террасами и лоджиями.
У дома предусмотрена зона дроп-офф. В интерьерах лобби использованы люксовые отделочные материалы, эксклюзивные световые инсталляции, декоративное озеленение. Премиальную атмосферу дополняют зенитный фонарь с естественным светом, водопад, лаунж у камина и библиотека. Площадь лобби 660 м2, высота потолков - до 6,5 м.
Двор превращен в тихий усадебный парк площадью 490 м2. Здесь создана приватная атмосфера для уединенного отдыха: дубовая аллея, пруд с живописным мостиком, галерея-берсо, зеленые комнаты, садовый камин, фонтаны. Для детей - игровая площадка. Для занятий спортом - воркаут. Предусмотрен контроль доступа на территорию, круглосуточная охрана, видеонаблюдение.
Неподалеку находятся лучшие школы: №57, №1535, Филипповская школа, школа «Золотое Сечение». Для знатоков гастрономии рядом - лучшие рестораны: Verd, Peach, «Сахалин», Modus, Soho Rooms, модный гастрономический кластер «Усачевский рынок». Для занятий спортом - спортивный комплекс «Лужники». Для ценителей искусства - Московский дворец молодежи
05.09.2025
263 064 600 ₽




















