Продать квартиру в Кобринском - Страница 7
- Кобринское »
- Недвижимость
- » Квартиры
- » Продажа квартир в Кобринском
Старт продаж 5 орпуса в жилом комплексе "Аннино Сити", квартиры с отделкой! Срок сдачи 2025 год.
14.02.2026
7 869 050 ₽
Продается 2-комн. квартира, площадью 54.33 м2 в малоэтажной в монолитно-кирпичной новостройке. Возможен вариант покупки с использованием ипотечных средств, возможна покупка с использованием материнского капитала, есть военная ипотека.
Жилая площадь 27.31 м2, кухня 11.49 м2, квартира без отделки.
Квартира располагается на 1 этаже 4-этажного дома в ЖК Верево Сити.
Застройщик - Строй Бизнес Групп специализированный застройщик, сдача дома - II квартал 2025 года, закрытая территория.
Парковка автомобилей - наземная, парковка охраняется. Обеспечение безопасности: видеонаблюдение. Инфраструктура: школа, детский сад, поликлиника, детские площадки, спортивные площадки, места для отдыха, супермаркет.
Для бронирования конкретной квартиры звоните по номеру телефона в объявлении.
ЖК Верево Сити - это современный городской жилой квартал малоэтажной застройки.
В 10-ти четырехэтажных корпусах сможет поселиться 1171 семья. Дома располагаются блоками, образуя уютные закрытые и безопасные дворы с большим количеством зеленых насаждений и с зонами отдыха для взрослых и детей.
В ЖК Верево Сити самое низкое ценовое предложение в Ленинградской области и пригородах Санкт-Петербурга, что позволит вам приобрести жилье большей площади, нежели в других жилых комплексах.
Отделка - черновая.
Комфортная среда для жизни:
- малоэтажные красивые здания современной архитектуры, с большой площадью остекления
- обособленная территория
- продуманные планировки, как привычные одно- и двухкомнатные квартиры, так и европланировки
- небольшая плотность населения: комплекс располагается на 6,5 га земли
- полная внутренняя инфраструктура, которая позволит жить с комфортом
Позвоните и узнайте условия покупки прямо сейчас!
Аккредитованные банки: ПАО Сбербанк
Позвоните и узнайте условия покупки прямо сейчас!
05.03.2026
6 073 007 ₽
Продается 2-комн. квартира, площадью 61.9 м2 в малоэтажной в монолитной новостройке в 20 мин. транспортом от м. Проспект Ветеранов. Возможен вариант покупки с использованием ипотечных средств, есть рассрочка, возможна покупка с использованием материнского капитала.
Жилая площадь 49.52 м2, квартира без отделки.
Квартира располагается на 4 этаже 4-этажного дома в ЖК Аннино Сити.
Застройщик - ГК Невская строительная компания, сдача дома - III квартал 2025 года.
Парковка автомобилей - наземная. Инфраструктура: школа, детский сад, поликлиника, детские площадки, спортивные площадки, места для отдыха.
ЖК «Аннино Сити» как и любое жилье в стиле Urban Village имеет все достоинства современных жилых комплексов в мегаполисе, но при этом есть ряд неоспоримых преимуществ загородной жизни: малоэтажность, хорошо продуманная инфраструктура внутри комплекса, собственные котельные, охраняемые территории с зелеными насаждениями, пешеходные и зоны отдыха, детские и спортивные площадки, а также достаточное количество парковочных мест.
Аннино - небольшой уютный активно развивающийся поселок расположен всего в 30 минутах езды от Санкт-Петербурга. Поселок находится на западно-южном берегу Финского залива - т.е. к югу от Санкт-Петербурга.
Место для строительства ЖК Аннино Сити было выбрано не случайно. Поселок Аннино отличается развитой инфраструктурой, близостью к городу, хорошей транспортной доступностью, наличием различного общественного транспорта
Экологическая ситуация в районе благоприятная, так как нет крупных транспортных магистралей и промышленных производств. Поселок окружен лесными массивами, а поблизости находятся чистые лесные озера и парк Победы.
До побережья Финского залива от поселка Аннино около 14 километров.
Аккредитованные банки: Продажи ведутся через ЭСКРОУ счета при проектном финансировании ПАО Сбербанк
Позвоните и узнайте условия покупки прямо сейчас!
14.02.2026
8 132 700 ₽
Продается 2-комн. квартира, площадью 61.9 м2 в малоэтажной в монолитной новостройке в 20 мин. транспортом от м. Проспект Ветеранов. Возможен вариант покупки с использованием ипотечных средств, есть рассрочка, возможна покупка с использованием материнского капитала.
Жилая площадь 49.52 м2, квартира без отделки.
Квартира располагается на 4 этаже 4-этажного дома в ЖК Аннино Сити.
Застройщик - ГК Невская строительная компания, сдача дома - III квартал 2025 года.
Парковка автомобилей - наземная. Инфраструктура: школа, детский сад, поликлиника, детские площадки, спортивные площадки, места для отдыха.
ЖК «Аннино Сити» как и любое жилье в стиле Urban Village имеет все достоинства современных жилых комплексов в мегаполисе, но при этом есть ряд неоспоримых преимуществ загородной жизни: малоэтажность, хорошо продуманная инфраструктура внутри комплекса, собственные котельные, охраняемые территории с зелеными насаждениями, пешеходные и зоны отдыха, детские и спортивные площадки, а также достаточное количество парковочных мест.
Аннино - небольшой уютный активно развивающийся поселок расположен всего в 30 минутах езды от Санкт-Петербурга. Поселок находится на западно-южном берегу Финского залива - т.е. к югу от Санкт-Петербурга.
Место для строительства ЖК Аннино Сити было выбрано не случайно. Поселок Аннино отличается развитой инфраструктурой, близостью к городу, хорошей транспортной доступностью, наличием различного общественного транспорта
Экологическая ситуация в районе благоприятная, так как нет крупных транспортных магистралей и промышленных производств. Поселок окружен лесными массивами, а поблизости находятся чистые лесные озера и парк Победы.
До побережья Финского залива от поселка Аннино около 14 километров.
Аккредитованные банки: Продажи ведутся через ЭСКРОУ счета при проектном финансировании ПАО Сбербанк
Позвоните и узнайте условия покупки прямо сейчас!
14.02.2026
8 132 700 ₽
Продается 2-комн. квартира, площадью 62.22 м2 в малоэтажной в монолитной новостройке в 20 мин. транспортом от м. Проспект Ветеранов. Возможен вариант покупки с использованием ипотечных средств, есть рассрочка, возможна покупка с использованием материнского капитала.
Жилая площадь 49.78 м2, квартира без отделки.
Квартира располагается на 2 этаже 4-этажного дома в ЖК Аннино Сити.
Застройщик - ГК Невская строительная компания, сдача дома - III квартал 2025 года.
Парковка автомобилей - наземная. Инфраструктура: школа, детский сад, поликлиника, детские площадки, спортивные площадки, места для отдыха.
ЖК «Аннино Сити» как и любое жилье в стиле Urban Village имеет все достоинства современных жилых комплексов в мегаполисе, но при этом есть ряд неоспоримых преимуществ загородной жизни: малоэтажность, хорошо продуманная инфраструктура внутри комплекса, собственные котельные, охраняемые территории с зелеными насаждениями, пешеходные и зоны отдыха, детские и спортивные площадки, а также достаточное количество парковочных мест.
Аннино - небольшой уютный активно развивающийся поселок расположен всего в 30 минутах езды от Санкт-Петербурга. Поселок находится на западно-южном берегу Финского залива - т.е. к югу от Санкт-Петербурга.
Место для строительства ЖК Аннино Сити было выбрано не случайно. Поселок Аннино отличается развитой инфраструктурой, близостью к городу, хорошей транспортной доступностью, наличием различного общественного транспорта
Экологическая ситуация в районе благоприятная, так как нет крупных транспортных магистралей и промышленных производств. Поселок окружен лесными массивами, а поблизости находятся чистые лесные озера и парк Победы.
До побережья Финского залива от поселка Аннино около 14 километров.
Аккредитованные банки: Продажи ведутся через ЭСКРОУ счета при проектном финансировании ПАО Сбербанк
Позвоните и узнайте условия покупки прямо сейчас!
14.02.2026
8 299 700 ₽
Старт продаж 5 орпуса в жилом комплексе "Аннино Сити", квартиры с отделкой! Срок сдачи 2025 год.
14.02.2026
8 371 250 ₽
Старт продаж 5 орпуса в жилом комплексе "Аннино Сити", квартиры с отделкой! Срок сдачи 2025 год.
14.02.2026
8 299 700 ₽
Старт продаж 5 орпуса в жилом комплексе "Аннино Сити", квартиры с отделкой! Срок сдачи 2025 год.
14.02.2026
8 256 500 ₽
Старт продаж 5 орпуса в жилом комплексе "Аннино Сити", квартиры с отделкой! Срок сдачи 2025 год.
14.02.2026
8 299 700 ₽
Старт продаж 5 орпуса в жилом комплексе "Аннино Сити", квартиры с отделкой! Срок сдачи 2025 год.
20.02.2026
4 398 600 ₽
Старт продаж 5 орпуса в жилом комплексе "Аннино Сити", квартиры с отделкой! Срок сдачи 2025 год.
14.02.2026
4 290 700 ₽
Продается 1-комн. квартира, площадью 34.22 м2 в малоэтажной в монолитной новостройке в 20 мин. транспортом от м. Проспект Ветеранов. Возможен вариант покупки с использованием ипотечных средств, есть рассрочка, возможна покупка с использованием материнского капитала.
Жилая площадь 27.38 м2, квартира без отделки, комнаты изолированные.
Квартира располагается на 1 этаже 4-этажного дома в ЖК Аннино Сити.
Застройщик - ГК Невская строительная компания, сдача дома - III квартал 2025 года.
Парковка автомобилей - наземная. Инфраструктура: школа, детский сад, поликлиника, детские площадки, спортивные площадки, места для отдыха.
ЖК «Аннино Сити» как и любое жилье в стиле Urban Village имеет все достоинства современных жилых комплексов в мегаполисе, но при этом есть ряд неоспоримых преимуществ загородной жизни: малоэтажность, хорошо продуманная инфраструктура внутри комплекса, собственные котельные, охраняемые территории с зелеными насаждениями, пешеходные и зоны отдыха, детские и спортивные площадки, а также достаточное количество парковочных мест.
Аннино - небольшой уютный активно развивающийся поселок расположен всего в 30 минутах езды от Санкт-Петербурга. Поселок находится на западно-южном берегу Финского залива - т.е. к югу от Санкт-Петербурга.
Место для строительства ЖК Аннино Сити было выбрано не случайно. Поселок Аннино отличается развитой инфраструктурой, близостью к городу, хорошей транспортной доступностью, наличием различного общественного транспорта
Экологическая ситуация в районе благоприятная, так как нет крупных транспортных магистралей и промышленных производств. Поселок окружен лесными массивами, а поблизости находятся чистые лесные озера и парк Победы.
До побережья Финского залива от поселка Аннино около 14 километров.
Аккредитованные банки: Продажи ведутся через ЭСКРОУ счета при проектном финансировании ПАО Сбербанк
Позвоните и узнайте условия покупки прямо сейчас!
20.02.2026
4 398 600 ₽
Продается 1-комн. квартира, площадью 34.22 м2 в малоэтажной в монолитной новостройке в 20 мин. транспортом от м. Проспект Ветеранов. Возможен вариант покупки с использованием ипотечных средств, есть рассрочка, возможна покупка с использованием материнского капитала.
Жилая площадь 27.38 м2, квартира без отделки, комнаты изолированные.
Квартира располагается на 1 этаже 4-этажного дома в ЖК Аннино Сити.
Застройщик - ГК Невская строительная компания, сдача дома - III квартал 2025 года.
Парковка автомобилей - наземная. Инфраструктура: школа, детский сад, поликлиника, детские площадки, спортивные площадки, места для отдыха.
ЖК «Аннино Сити» как и любое жилье в стиле Urban Village имеет все достоинства современных жилых комплексов в мегаполисе, но при этом есть ряд неоспоримых преимуществ загородной жизни: малоэтажность, хорошо продуманная инфраструктура внутри комплекса, собственные котельные, охраняемые территории с зелеными насаждениями, пешеходные и зоны отдыха, детские и спортивные площадки, а также достаточное количество парковочных мест.
Аннино - небольшой уютный активно развивающийся поселок расположен всего в 30 минутах езды от Санкт-Петербурга. Поселок находится на западно-южном берегу Финского залива - т.е. к югу от Санкт-Петербурга.
Место для строительства ЖК Аннино Сити было выбрано не случайно. Поселок Аннино отличается развитой инфраструктурой, близостью к городу, хорошей транспортной доступностью, наличием различного общественного транспорта
Экологическая ситуация в районе благоприятная, так как нет крупных транспортных магистралей и промышленных производств. Поселок окружен лесными массивами, а поблизости находятся чистые лесные озера и парк Победы.
До побережья Финского залива от поселка Аннино около 14 километров.
Аккредитованные банки: Продажи ведутся через ЭСКРОУ счета при проектном финансировании ПАО Сбербанк
Позвоните и узнайте условия покупки прямо сейчас!
14.02.2026
4 398 600 ₽
Продается 1-комн. квартира, площадью 39.32 м2 в малоэтажной. Возможен вариант покупки с использованием ипотечных средств, возможна покупка с использованием материнского капитала, есть военная ипотека.
Жилая площадь 21.68 м2, кухня 10.7 м2, комнаты изолированные.
Квартира располагается на 4 этаже 4-этажного дома в ЖК Верево Сити.
Застройщик - Строй Бизнес Групп специализированный застройщик, сдача дома - II квартал 2025 года, закрытая территория.
Парковка автомобилей - наземная, парковка охраняется. Обеспечение безопасности: видеонаблюдение. Инфраструктура: школа, детский сад, поликлиника, детские площадки, спортивные площадки, места для отдыха, супермаркет.
Для бронирования конкретной квартиры звоните по номеру телефона в объявлении.
ЖК Верево Сити - это современный городской жилой квартал малоэтажной застройки.
В 10-ти четырехэтажных корпусах сможет поселиться 1171 семья. Дома располагаются блоками, образуя уютные закрытые и безопасные дворы с большим количеством зеленых насаждений и с зонами отдыха для взрослых и детей.
В ЖК Верево Сити самое низкое ценовое предложение в Ленинградской области и пригородах Санкт-Петербурга, что позволит вам приобрести жилье большей площади, нежели в других жилых комплексах.
Отделка - черновая.
Комфортная среда для жизни:
- малоэтажные красивые здания современной архитектуры, с большой площадью остекления
- обособленная территория
- продуманные планировки, как привычные одно- и двухкомнатные квартиры, так и европланировки
- небольшая плотность населения: комплекс располагается на 6,5 га земли
- полная внутренняя инфраструктура, которая позволит жить с комфортом
Позвоните и узнайте условия покупки прямо сейчас!
Аккредитованные банки: ПАО Сбербанк
Позвоните и узнайте условия покупки прямо сейчас!
05.03.2026
4 682 894 ₽
Продается 1-комн. квартира, площадью 36.83 м2 в малоэтажной. Возможен вариант покупки с использованием ипотечных средств, возможна покупка с использованием материнского капитала, есть военная ипотека.
Жилая площадь 17.08 м2, кухня 11.85 м2, комнаты изолированные.
Квартира располагается на 1 этаже 4-этажного дома в ЖК Верево Сити.
Застройщик - Строй Бизнес Групп специализированный застройщик, сдача дома - II квартал 2025 года, закрытая территория.
Парковка автомобилей - наземная, парковка охраняется. Обеспечение безопасности: видеонаблюдение. Инфраструктура: школа, детский сад, поликлиника, детские площадки, спортивные площадки, места для отдыха, супермаркет.
Для бронирования конкретной квартиры звоните по номеру телефона в объявлении.
ЖК Верево Сити - это современный городской жилой квартал малоэтажной застройки.
В 10-ти четырехэтажных корпусах сможет поселиться 1171 семья. Дома располагаются блоками, образуя уютные закрытые и безопасные дворы с большим количеством зеленых насаждений и с зонами отдыха для взрослых и детей.
В ЖК Верево Сити самое низкое ценовое предложение в Ленинградской области и пригородах Санкт-Петербурга, что позволит вам приобрести жилье большей площади, нежели в других жилых комплексах.
Отделка - черновая.
Комфортная среда для жизни:
- малоэтажные красивые здания современной архитектуры, с большой площадью остекления
- обособленная территория
- продуманные планировки, как привычные одно- и двухкомнатные квартиры, так и европланировки
- небольшая плотность населения: комплекс располагается на 6,5 га земли
- полная внутренняя инфраструктура, которая позволит жить с комфортом
Позвоните и узнайте условия покупки прямо сейчас!
Аккредитованные банки: ПАО Сбербанк
Позвоните и узнайте условия покупки прямо сейчас!
05.03.2026
4 386 342 ₽
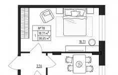
Продается 1-комн. квартира, площадью 38.65 м2 в малоэтажной. Возможен вариант покупки с использованием ипотечных средств, возможна покупка с использованием материнского капитала, есть военная ипотека.
Жилая площадь 18.71 м2, кухня 12.9 м2, комнаты изолированные.
Квартира располагается на 1 этаже 4-этажного дома в ЖК Верево Сити.
Застройщик - Строй Бизнес Групп специализированный застройщик, сдача дома - II квартал 2025 года, закрытая территория.
Парковка автомобилей - наземная, парковка охраняется. Обеспечение безопасности: видеонаблюдение. Инфраструктура: школа, детский сад, поликлиника, детские площадки, спортивные площадки, места для отдыха, супермаркет.
Для бронирования конкретной квартиры звоните по номеру телефона в объявлении.
ЖК Верево Сити - это современный городской жилой квартал малоэтажной застройки.
В 10-ти четырехэтажных корпусах сможет поселиться 1171 семья. Дома располагаются блоками, образуя уютные закрытые и безопасные дворы с большим количеством зеленых насаждений и с зонами отдыха для взрослых и детей.
В ЖК Верево Сити самое низкое ценовое предложение в Ленинградской области и пригородах Санкт-Петербурга, что позволит вам приобрести жилье большей площади, нежели в других жилых комплексах.
Отделка - черновая.
Комфортная среда для жизни:
- малоэтажные красивые здания современной архитектуры, с большой площадью остекления
- обособленная территория
- продуманные планировки, как привычные одно- и двухкомнатные квартиры, так и европланировки
- небольшая плотность населения: комплекс располагается на 6,5 га земли
- полная внутренняя инфраструктура, которая позволит жить с комфортом
Позвоните и узнайте условия покупки прямо сейчас!
Аккредитованные банки: ПАО Сбербанк
Позвоните и узнайте условия покупки прямо сейчас!
05.03.2026
4 603 099 ₽
Продается 1-комн. квартира, площадью 39.32 м2 в малоэтажной. Возможен вариант покупки с использованием ипотечных средств, возможна покупка с использованием материнского капитала, есть военная ипотека.
Жилая площадь 21.68 м2, кухня 10.72 м2, комнаты изолированные.
Квартира располагается на 3 этаже 4-этажного дома в ЖК Верево Сити.
Застройщик - Строй Бизнес Групп специализированный застройщик, сдача дома - II квартал 2025 года, закрытая территория.
Парковка автомобилей - наземная, парковка охраняется. Обеспечение безопасности: видеонаблюдение. Инфраструктура: школа, детский сад, поликлиника, детские площадки, спортивные площадки, места для отдыха, супермаркет.
Для бронирования конкретной квартиры звоните по номеру телефона в объявлении.
ЖК Верево Сити - это современный городской жилой квартал малоэтажной застройки.
В 10-ти четырехэтажных корпусах сможет поселиться 1171 семья. Дома располагаются блоками, образуя уютные закрытые и безопасные дворы с большим количеством зеленых насаждений и с зонами отдыха для взрослых и детей.
В ЖК Верево Сити самое низкое ценовое предложение в Ленинградской области и пригородах Санкт-Петербурга, что позволит вам приобрести жилье большей площади, нежели в других жилых комплексах.
Отделка - черновая.
Комфортная среда для жизни:
- малоэтажные красивые здания современной архитектуры, с большой площадью остекления
- обособленная территория
- продуманные планировки, как привычные одно- и двухкомнатные квартиры, так и европланировки
- небольшая плотность населения: комплекс располагается на 6,5 га земли
- полная внутренняя инфраструктура, которая позволит жить с комфортом
Позвоните и узнайте условия покупки прямо сейчас!
Аккредитованные банки: ПАО Сбербанк
Позвоните и узнайте условия покупки прямо сейчас!
05.03.2026
4 682 894 ₽
Продается 2-комн. квартира, площадью 54.27 м2 в малоэтажной. Возможен вариант покупки с использованием ипотечных средств, возможна покупка с использованием материнского капитала, есть военная ипотека.
Жилая площадь 25.22 м2, кухня 13.09 м2.
Квартира располагается на 1 этаже 4-этажного дома в ЖК Верево Сити.
Застройщик - Строй Бизнес Групп специализированный застройщик, сдача дома - II квартал 2025 года, закрытая территория.
Парковка автомобилей - наземная, парковка охраняется. Обеспечение безопасности: видеонаблюдение. Инфраструктура: школа, детский сад, поликлиника, детские площадки, спортивные площадки, места для отдыха, супермаркет.
Для бронирования конкретной квартиры звоните по номеру телефона в объявлении.
ЖК Верево Сити - это современный городской жилой квартал малоэтажной застройки.
В 10-ти четырехэтажных корпусах сможет поселиться 1171 семья. Дома располагаются блоками, образуя уютные закрытые и безопасные дворы с большим количеством зеленых насаждений и с зонами отдыха для взрослых и детей.
В ЖК Верево Сити самое низкое ценовое предложение в Ленинградской области и пригородах Санкт-Петербурга, что позволит вам приобрести жилье большей площади, нежели в других жилых комплексах.
Отделка - черновая.
Комфортная среда для жизни:
- малоэтажные красивые здания современной архитектуры, с большой площадью остекления
- обособленная территория
- продуманные планировки, как привычные одно- и двухкомнатные квартиры, так и европланировки
- небольшая плотность населения: комплекс располагается на 6,5 га земли
- полная внутренняя инфраструктура, которая позволит жить с комфортом
Позвоните и узнайте условия покупки прямо сейчас!
Аккредитованные банки: ПАО Сбербанк
Позвоните и узнайте условия покупки прямо сейчас!
05.03.2026
6 066 300 ₽
Продается 1-комн. квартира, площадью 36.83 м2 в малоэтажной. Возможен вариант покупки с использованием ипотечных средств, возможна покупка с использованием материнского капитала, есть военная ипотека.
Жилая площадь 17.08 м2, кухня 11.85 м2, комнаты изолированные.
Квартира располагается на 1 этаже 4-этажного дома в ЖК Верево Сити.
Застройщик - Строй Бизнес Групп специализированный застройщик, сдача дома - II квартал 2025 года, закрытая территория.
Парковка автомобилей - наземная, парковка охраняется. Обеспечение безопасности: видеонаблюдение. Инфраструктура: школа, детский сад, поликлиника, детские площадки, спортивные площадки, места для отдыха, супермаркет.
Для бронирования конкретной квартиры звоните по номеру телефона в объявлении.
ЖК Верево Сити - это современный городской жилой квартал малоэтажной застройки.
В 10-ти четырехэтажных корпусах сможет поселиться 1171 семья. Дома располагаются блоками, образуя уютные закрытые и безопасные дворы с большим количеством зеленых насаждений и с зонами отдыха для взрослых и детей.
В ЖК Верево Сити самое низкое ценовое предложение в Ленинградской области и пригородах Санкт-Петербурга, что позволит вам приобрести жилье большей площади, нежели в других жилых комплексах.
Отделка - черновая.
Комфортная среда для жизни:
- малоэтажные красивые здания современной архитектуры, с большой площадью остекления
- обособленная территория
- продуманные планировки, как привычные одно- и двухкомнатные квартиры, так и европланировки
- небольшая плотность населения: комплекс располагается на 6,5 га земли
- полная внутренняя инфраструктура, которая позволит жить с комфортом
Позвоните и узнайте условия покупки прямо сейчас!
Аккредитованные банки: ПАО Сбербанк
Позвоните и узнайте условия покупки прямо сейчас!
05.03.2026
4 386 342 ₽
Продаются просторные 2-комнатные апартаменты у самого берега Финского залива площадью 70,7 м2. Идеально для семейного проживания и отдыха. Из каждой комнаты есть выход на глубокую лоджию-аэрарий - там можно легко уместить 2 шезлонга и кофейный столик и наслаждаться видами на лес. Высокие потолки до 3 метров, гардеробная, отделка white-box.
Для семей с детьми мы предусмотрели все необходимое! Дом расположен в 50 метрах от Финского залива. Пляж широкий и песчаный, с собственным выходом. Окружают комплекс вековые хвойные деревья, воздух невероятно чистый и полезный, так как в Курортном районе нет предприятий. Такой воздух благоприятно влияет на сон, здоровье, самочувствие, а также на развитие детей.
Территория комплекса огромная и зеленая - 1,2 га. Ни одного члена семьи не оставит равнодушным большой открытый бассейн 25м с подогревом, он работает круглый год, можно просто поплавать и отдохнуть, а можно заняться спортом или даже устроить семейные соревнования.
А еще мы сделали:
- детские игровые площадки (для детей разных возрастов) , как на улице, так и в самом комплексе. Есть развивающие интерактивы, настольные игры, PlayStation. Пока дети играют, вы можете провести деловой созвон в лаунж-зоне или просто отдохнуть;
- тренажерный зал, теннисный корт, СПА-зону и многое другое. Здесь будет интересно абсолютно всем в любое время года!
И, конечно, мы тщательно продумали безопасность, чтобы вы могли спокойно жить и отдыхать. Территория комплекса закрыта от посторонних и охраняется круглосуточно. По всему периметру есть камеры видеонаблюдения, а попасть в помещения можно только по пропускам, так что вы сможете спокойно отпустить своего ребенка погулять одного, не тревожась за его безопасность.
Вы сможете жить у моря и при этом довольствоваться всей городской инфраструктурой - рядом есть школы, дет сады, поликлиника, рестораны, супермаркеты, лыжная база и тд. А до центра Санкт-Петербурга всего 40 минут езды.
А еще, в стоимость включен 22% НДС, которые вы можете сэкономить при оформлении апартамента на свое юридическое лицо. То есть, сразу на этапе покупки, получить скидку в 22%.
«Морская Ривьера» - это идеальный вариант для жизни и отдыха вашей семьи!
Записывайтесь на персональную экскурсию пока еще открыты продажи!
03.02.2026
40 652 500 ₽
Продаются просторные 2-комнатные апартаменты у самого берега Финского залива площадью 57,1 м2. Идеально для семейного проживания и отдыха. Из комнаты и кухни есть выход на глубокую лоджию-аэрарий - там можно легко уместить 2 шезлонга и кофейный столик и наслаждаться свежим воздухом, из спальни панорамное окно выходит на лес. Высокие потолки до 3 метров, отделка white-box.
Для семей с детьми мы предусмотрели все необходимое! Дом расположен в 50 метрах от Финского залива. Пляж широкий и песчаный, с собственным выходом. Окружают комплекс вековые хвойные деревья, воздух невероятно чистый и полезный, так как в Курортном районе нет предприятий. Такой воздух благоприятно влияет на сон, здоровье, самочувствие, а также на развитие детей.
Территория комплекса огромная и зеленая - 1,2 га. Ни одного члена семьи не оставит равнодушным большой открытый бассейн 25м с подогревом, он работает круглый год, можно просто поплавать и отдохнуть, а можно заняться спортом или даже устроить семейные соревнования.
А еще мы сделали:
- детские игровые площадки (для детей разных возрастов) , как на улице, так и в самом комплексе. Есть развивающие интерактивы, настольные игры, PlayStation. Пока дети играют, вы можете провести деловой созвон в лаунж-зоне или просто отдохнуть;
- тренажерный зал, теннисный корт, СПА-зону и многое другое. Здесь будет интересно абсолютно всем в любое время года!
И, конечно, мы тщательно продумали безопасность, чтобы вы могли спокойно жить и отдыхать. Территория комплекса закрыта от посторонних и охраняется круглосуточно. По всему периметру есть камеры видеонаблюдения, а попасть в помещения можно только по пропускам, так что вы сможете спокойно отпустить своего ребенка погулять одного, не тревожась за его безопасность.
Вы сможете жить у моря и при этом довольствоваться всей городской инфраструктурой - рядом есть школы, дет сады, поликлиника, рестораны, супермаркеты, лыжная база и тд. А до центра Санкт-Петербурга всего 40 минут езды.
А еще, в стоимость включен 22% НДС, которые вы можете сэкономить при оформлении апартамента на свое юридическое лицо. То есть, сразу на этапе покупки, получить скидку в 22%.
«Морская Ривьера» - это идеальный вариант для жизни и отдыха вашей семьи!
Записывайтесь на персональную экскурсию пока еще открыты продажи!
03.02.2026
33 160 825 ₽




















