Сдам коммерческую недвижимость 424 м2
Размещено 26 марта 2026
15
0
Жалоба
- Параметры объявления
- Общая площадь (м2): 424
- Описание
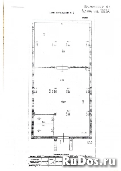
Сдам в аренду склад площадью 424 кв.м в субаренду на любой срок, с возможностью арендных каникул. Склад располагается в 2-этажном здании в 8 мин. транспортом от м.Яшьлек, юридический адрес не предоставляется.
Склад располагается на -1 этаже, бетонный пол. Внутри типовой ремонт, вход в помещение - общий с улицы, общая площадь здания 423.999 м2, участок находится в аренде, здание полностью функционирует, здание охраняется.
На складе есть электричество, вентиляция - естественная, нет отопления, пожарная сигнализация, парковка предоставляется бесплатно, ворота докового типа.
Лифтовое оборудование: нет грузовых лифтов, нет лифтов тельфер, нет пассажирских лифтов,.
Склад располагается на -1 этаже, бетонный пол. Внутри типовой ремонт, вход в помещение - общий с улицы, общая площадь здания 423.999 м2, участок находится в аренде, здание полностью функционирует, здание охраняется.
На складе есть электричество, вентиляция - естественная, нет отопления, пожарная сигнализация, парковка предоставляется бесплатно, ворота докового типа.
Лифтовое оборудование: нет грузовых лифтов, нет лифтов тельфер, нет пассажирских лифтов,.
