Продажа недвижимости в Каневской - Страница 3
- Каневская »
- Недвижимость в Каневской
Продается двухэтажный дом (сдан в эксплуатацию) напротив ТРЦ «OZ Mall», в экологически чистом районе. Дом 233 кв.м и земля 9 сот. в собственности, расположены в закрытом поселке Верхний Казачий Хутор. Городская прописка.
В доме на первом этаже имеется гараж, котельная, санузел и большая кухня-гостиная, на втором этаже санузел, гардеробная и три спальных комнаты. Газ проведен до границы участка. В комнатах установлены большие алюминиевые энергосберегающие окна, так же имеются раздвижные порталы на 1 и 2 этажах. Дом без внутренней и наружней отделки, проект прилагается. Так же имеется проект отопления и водоснабжения.
Вся инфраструктура: детская площадка, уличные тренажеры, магазины, школьные автобусы, в процессе обустраивается сквер для пеших прогулок, бетонируются все дороги. В 10 минутах ходьбы ТРЦ «OZ Moll», выезд к морю без пробок.
27.01.2026
15 000 000 ₽
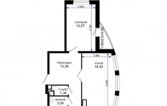
Продается 2-комн. квартира, площадью 63.16 м2 в монолитно-кирпичной новостройке. Возможен вариант покупки с использованием ипотечных средств, есть рассрочка, возможна покупка с использованием материнского капитала, есть военная ипотека.
Жилая площадь 26.01 м2, кухня 15.63 м2, предчистовая отделка.
Квартира располагается на 3 этаже 8-этажного дома в ЖК Резиденция морей.
Застройщик - ГК ССК, сдача дома - IV квартал 2026 года, высота потолков 2.85 м.
Дом оборудован пассажирским лифтом, закрытая территория.
Подземная парковка, парковка охраняется. Обеспечение безопасности: видеонаблюдение, пропускная система. Инфраструктура: детские площадки, спортивные площадки, супермаркет, рестораны, фитнес-центр, пункты бытового обслуживания, коммерческие объекты.
Жилой комплекс представляет собой закрытый периметр.
На территории подземного паркинга предусмотрены кладовые помещения, в которых будет удобно хранить авто-инвентарь, сезонные вещи и другие предметы быта, занимающие драгоценные метры квартиры.
Жители ЖК «Резиденция морей» смогут устраивать водные процедуры в любую погоду, даже когда на море шторм. Прямо во дворе комплекса расположатся два бассейна с расширенным временем пользования общей площадью 811 м2. В бассейне с разными уровнями глубины - от 0,5 до 1,5 м - смогут безопасно играть и учиться плавать самые маленькие жители.
Второй бассейн идеально подойдёт для длинных заплывов, спортивных тренировок и водного фитнеса, его глубина - 1,5 м. Вода в бассейнах всегда будет чистая за счет системы очистки и дезинфекции. Вокруг бассейнов будет благоустроена зона отдыха с шезлонгами. Также на территории будут оборудованы специальные помещения для переодевания и душевые комнаты.
Позвоните и узнайте условия покупки прямо сейчас!
11.12.2025
14 858 390 ₽
Продается 2-комн. квартира, площадью 63.16 м2 в монолитно-кирпичной новостройке. Возможен вариант покупки с использованием ипотечных средств, есть рассрочка, возможна покупка с использованием материнского капитала, есть военная ипотека.
Жилая площадь 26.01 м2, кухня 15.63 м2, предчистовая отделка.
Квартира располагается на 2 этаже 8-этажного дома в ЖК Резиденция морей.
Застройщик - ГК ССК, сдача дома - IV квартал 2026 года, высота потолков 2.85 м.
Дом оборудован пассажирским лифтом, закрытая территория.
Подземная парковка, парковка охраняется. Обеспечение безопасности: видеонаблюдение, пропускная система. Инфраструктура: детские площадки, спортивные площадки, супермаркет, рестораны, фитнес-центр, пункты бытового обслуживания, коммерческие объекты.
Жилой комплекс представляет собой закрытый периметр.
На территории подземного паркинга предусмотрены кладовые помещения, в которых будет удобно хранить авто-инвентарь, сезонные вещи и другие предметы быта, занимающие драгоценные метры квартиры.
Жители ЖК «Резиденция морей» смогут устраивать водные процедуры в любую погоду, даже когда на море шторм. Прямо во дворе комплекса расположатся два бассейна с расширенным временем пользования общей площадью 811 м2. В бассейне с разными уровнями глубины - от 0,5 до 1,5 м - смогут безопасно играть и учиться плавать самые маленькие жители.
Второй бассейн идеально подойдёт для длинных заплывов, спортивных тренировок и водного фитнеса, его глубина - 1,5 м. Вода в бассейнах всегда будет чистая за счет системы очистки и дезинфекции. Вокруг бассейнов будет благоустроена зона отдыха с шезлонгами. Также на территории будут оборудованы специальные помещения для переодевания и душевые комнаты.
Позвоните и узнайте условия покупки прямо сейчас!
16.12.2025
14 858 390 ₽
Продается 2-комн. квартира, площадью 63.16 м2 в монолитно-кирпичной новостройке. Возможен вариант покупки с использованием ипотечных средств, есть рассрочка, возможна покупка с использованием материнского капитала, есть военная ипотека.
Жилая площадь 26.01 м2, кухня 15.63 м2, предчистовая отделка.
Квартира располагается на 2 этаже 8-этажного дома в ЖК Резиденция морей.
Застройщик - ГК ССК, сдача дома - IV квартал 2026 года, высота потолков 2.85 м.
Дом оборудован пассажирским лифтом, закрытая территория.
Подземная парковка, парковка охраняется. Обеспечение безопасности: видеонаблюдение, пропускная система. Инфраструктура: детские площадки, спортивные площадки, супермаркет, рестораны, фитнес-центр, пункты бытового обслуживания, коммерческие объекты.
Жилой комплекс представляет собой закрытый периметр.
На территории подземного паркинга предусмотрены кладовые помещения, в которых будет удобно хранить авто-инвентарь, сезонные вещи и другие предметы быта, занимающие драгоценные метры квартиры.
Жители ЖК «Резиденция морей» смогут устраивать водные процедуры в любую погоду, даже когда на море шторм. Прямо во дворе комплекса расположатся два бассейна с расширенным временем пользования общей площадью 811 м2. В бассейне с разными уровнями глубины - от 0,5 до 1,5 м - смогут безопасно играть и учиться плавать самые маленькие жители.
Второй бассейн идеально подойдёт для длинных заплывов, спортивных тренировок и водного фитнеса, его глубина - 1,5 м. Вода в бассейнах всегда будет чистая за счет системы очистки и дезинфекции. Вокруг бассейнов будет благоустроена зона отдыха с шезлонгами. Также на территории будут оборудованы специальные помещения для переодевания и душевые комнаты.
Позвоните и узнайте условия покупки прямо сейчас!
11.12.2025
14 858 390 ₽
Продается 2-комн. квартира, площадью 63.13 м2 в монолитно-кирпичной новостройке. Возможен вариант покупки с использованием ипотечных средств, есть рассрочка, возможна покупка с использованием материнского капитала, есть военная ипотека.
Жилая площадь 26.01 м2, кухня 15.65 м2, предчистовая отделка.
Квартира располагается на 2 этаже 8-этажного дома в ЖК Резиденция морей.
Застройщик - ГК ССК, сдача дома - IV квартал 2026 года, высота потолков 2.85 м.
Дом оборудован пассажирским лифтом, закрытая территория.
Подземная парковка, парковка охраняется. Обеспечение безопасности: видеонаблюдение, пропускная система. Инфраструктура: детские площадки, спортивные площадки, супермаркет, рестораны, фитнес-центр, пункты бытового обслуживания, коммерческие объекты.
Жилой комплекс представляет собой закрытый периметр.
На территории подземного паркинга предусмотрены кладовые помещения, в которых будет удобно хранить авто-инвентарь, сезонные вещи и другие предметы быта, занимающие драгоценные метры квартиры.
Жители ЖК «Резиденция морей» смогут устраивать водные процедуры в любую погоду, даже когда на море шторм. Прямо во дворе комплекса расположатся два бассейна с расширенным временем пользования общей площадью 811 м2. В бассейне с разными уровнями глубины - от 0,5 до 1,5 м - смогут безопасно играть и учиться плавать самые маленькие жители.
Второй бассейн идеально подойдёт для длинных заплывов, спортивных тренировок и водного фитнеса, его глубина - 1,5 м. Вода в бассейнах всегда будет чистая за счет системы очистки и дезинфекции. Вокруг бассейнов будет благоустроена зона отдыха с шезлонгами. Также на территории будут оборудованы специальные помещения для переодевания и душевые комнаты.
Позвоните и узнайте условия покупки прямо сейчас!
14.11.2025
14 851 332 ₽
Продается 2-комн. квартира, площадью 63.19 м2 в монолитно-кирпичной новостройке. Возможен вариант покупки с использованием ипотечных средств, есть рассрочка, возможна покупка с использованием материнского капитала, есть военная ипотека.
Жилая площадь 26.01 м2, кухня 15.65 м2, предчистовая отделка.
Квартира располагается на 4 этаже 8-этажного дома в ЖК Резиденция морей.
Застройщик - ГК ССК, сдача дома - IV квартал 2026 года, высота потолков 2.85 м.
Дом оборудован пассажирским лифтом, закрытая территория.
Подземная парковка, парковка охраняется. Обеспечение безопасности: видеонаблюдение, пропускная система. Инфраструктура: детские площадки, спортивные площадки, супермаркет, рестораны, фитнес-центр, пункты бытового обслуживания, коммерческие объекты.
Жилой комплекс представляет собой закрытый периметр.
На территории подземного паркинга предусмотрены кладовые помещения, в которых будет удобно хранить авто-инвентарь, сезонные вещи и другие предметы быта, занимающие драгоценные метры квартиры.
Жители ЖК «Резиденция морей» смогут устраивать водные процедуры в любую погоду, даже когда на море шторм. Прямо во дворе комплекса расположатся два бассейна с расширенным временем пользования общей площадью 811 м2. В бассейне с разными уровнями глубины - от 0,5 до 1,5 м - смогут безопасно играть и учиться плавать самые маленькие жители.
Второй бассейн идеально подойдёт для длинных заплывов, спортивных тренировок и водного фитнеса, его глубина - 1,5 м. Вода в бассейнах всегда будет чистая за счет системы очистки и дезинфекции. Вокруг бассейнов будет благоустроена зона отдыха с шезлонгами. Также на территории будут оборудованы специальные помещения для переодевания и душевые комнаты.
Позвоните и узнайте условия покупки прямо сейчас!
14.11.2025
14 596 890 ₽
Продается 2-комн. квартира, площадью 63.19 м2 в монолитно-кирпичной новостройке. Возможен вариант покупки с использованием ипотечных средств, есть рассрочка, возможна покупка с использованием материнского капитала, есть военная ипотека.
Жилая площадь 26.01 м2, кухня 15.65 м2, предчистовая отделка.
Квартира располагается на 2 этаже 8-этажного дома в ЖК Резиденция морей.
Застройщик - ГК ССК, сдача дома - IV квартал 2026 года, высота потолков 2.85 м.
Дом оборудован пассажирским лифтом, закрытая территория.
Подземная парковка, парковка охраняется. Обеспечение безопасности: видеонаблюдение, пропускная система. Инфраструктура: детские площадки, спортивные площадки, супермаркет, рестораны, фитнес-центр, пункты бытового обслуживания, коммерческие объекты.
Жилой комплекс представляет собой закрытый периметр.
На территории подземного паркинга предусмотрены кладовые помещения, в которых будет удобно хранить авто-инвентарь, сезонные вещи и другие предметы быта, занимающие драгоценные метры квартиры.
Жители ЖК «Резиденция морей» смогут устраивать водные процедуры в любую погоду, даже когда на море шторм. Прямо во дворе комплекса расположатся два бассейна с расширенным временем пользования общей площадью 811 м2. В бассейне с разными уровнями глубины - от 0,5 до 1,5 м - смогут безопасно играть и учиться плавать самые маленькие жители.
Второй бассейн идеально подойдёт для длинных заплывов, спортивных тренировок и водного фитнеса, его глубина - 1,5 м. Вода в бассейнах всегда будет чистая за счет системы очистки и дезинфекции. Вокруг бассейнов будет благоустроена зона отдыха с шезлонгами. Также на территории будут оборудованы специальные помещения для переодевания и душевые комнаты.
Позвоните и узнайте условия покупки прямо сейчас!
14.11.2025
14 596 890 ₽
Продается 2-комн. квартира, площадью 63.19 м2 в монолитно-кирпичной новостройке. Возможен вариант покупки с использованием ипотечных средств, есть рассрочка, возможна покупка с использованием материнского капитала, есть военная ипотека.
Жилая площадь 26.01 м2, кухня 15.65 м2, предчистовая отделка.
Квартира располагается на 2 этаже 8-этажного дома в ЖК Резиденция морей.
Застройщик - ГК ССК, сдача дома - IV квартал 2026 года, высота потолков 2.85 м.
Дом оборудован пассажирским лифтом, закрытая территория.
Подземная парковка, парковка охраняется. Обеспечение безопасности: видеонаблюдение, пропускная система. Инфраструктура: детские площадки, спортивные площадки, супермаркет, рестораны, фитнес-центр, пункты бытового обслуживания, коммерческие объекты.
Жилой комплекс представляет собой закрытый периметр.
На территории подземного паркинга предусмотрены кладовые помещения, в которых будет удобно хранить авто-инвентарь, сезонные вещи и другие предметы быта, занимающие драгоценные метры квартиры.
Жители ЖК «Резиденция морей» смогут устраивать водные процедуры в любую погоду, даже когда на море шторм. Прямо во дворе комплекса расположатся два бассейна с расширенным временем пользования общей площадью 811 м2. В бассейне с разными уровнями глубины - от 0,5 до 1,5 м - смогут безопасно играть и учиться плавать самые маленькие жители.
Второй бассейн идеально подойдёт для длинных заплывов, спортивных тренировок и водного фитнеса, его глубина - 1,5 м. Вода в бассейнах всегда будет чистая за счет системы очистки и дезинфекции. Вокруг бассейнов будет благоустроена зона отдыха с шезлонгами. Также на территории будут оборудованы специальные помещения для переодевания и душевые комнаты.
Позвоните и узнайте условия покупки прямо сейчас!
14.11.2025
14 596 890 ₽
Продается 2-комн. квартира, площадью 63.17 м2 в монолитно-кирпичной новостройке. Возможен вариант покупки с использованием ипотечных средств, есть рассрочка, возможна покупка с использованием материнского капитала, есть военная ипотека.
Жилая площадь 26.01 м2, кухня 15.63 м2, предчистовая отделка.
Квартира располагается на 4 этаже 8-этажного дома в ЖК Резиденция морей.
Застройщик - ГК ССК, сдача дома - IV квартал 2026 года, высота потолков 2.85 м.
Дом оборудован пассажирским лифтом, закрытая территория.
Подземная парковка, парковка охраняется. Обеспечение безопасности: видеонаблюдение, пропускная система. Инфраструктура: детские площадки, спортивные площадки, супермаркет, рестораны, фитнес-центр, пункты бытового обслуживания, коммерческие объекты.
Жилой комплекс представляет собой закрытый периметр.
На территории подземного паркинга предусмотрены кладовые помещения, в которых будет удобно хранить авто-инвентарь, сезонные вещи и другие предметы быта, занимающие драгоценные метры квартиры.
Жители ЖК «Резиденция морей» смогут устраивать водные процедуры в любую погоду, даже когда на море шторм. Прямо во дворе комплекса расположатся два бассейна с расширенным временем пользования общей площадью 811 м2. В бассейне с разными уровнями глубины - от 0,5 до 1,5 м - смогут безопасно играть и учиться плавать самые маленькие жители.
Второй бассейн идеально подойдёт для длинных заплывов, спортивных тренировок и водного фитнеса, его глубина - 1,5 м. Вода в бассейнах всегда будет чистая за счет системы очистки и дезинфекции. Вокруг бассейнов будет благоустроена зона отдыха с шезлонгами. Также на территории будут оборудованы специальные помещения для переодевания и душевые комнаты.
Позвоните и узнайте условия покупки прямо сейчас!
14.11.2025
14 592 270 ₽
Продается 2-комн. квартира, площадью 63.17 м2 в монолитно-кирпичной новостройке. Возможен вариант покупки с использованием ипотечных средств, есть рассрочка, возможна покупка с использованием материнского капитала, есть военная ипотека.
Жилая площадь 26.01 м2, кухня 15.63 м2, предчистовая отделка.
Квартира располагается на 4 этаже 8-этажного дома в ЖК Резиденция морей.
Застройщик - ГК ССК, сдача дома - IV квартал 2026 года, высота потолков 2.85 м.
Дом оборудован пассажирским лифтом, закрытая территория.
Подземная парковка, парковка охраняется. Обеспечение безопасности: видеонаблюдение, пропускная система. Инфраструктура: детские площадки, спортивные площадки, супермаркет, рестораны, фитнес-центр, пункты бытового обслуживания, коммерческие объекты.
Жилой комплекс представляет собой закрытый периметр.
На территории подземного паркинга предусмотрены кладовые помещения, в которых будет удобно хранить авто-инвентарь, сезонные вещи и другие предметы быта, занимающие драгоценные метры квартиры.
Жители ЖК «Резиденция морей» смогут устраивать водные процедуры в любую погоду, даже когда на море шторм. Прямо во дворе комплекса расположатся два бассейна с расширенным временем пользования общей площадью 811 м2. В бассейне с разными уровнями глубины - от 0,5 до 1,5 м - смогут безопасно играть и учиться плавать самые маленькие жители.
Второй бассейн идеально подойдёт для длинных заплывов, спортивных тренировок и водного фитнеса, его глубина - 1,5 м. Вода в бассейнах всегда будет чистая за счет системы очистки и дезинфекции. Вокруг бассейнов будет благоустроена зона отдыха с шезлонгами. Также на территории будут оборудованы специальные помещения для переодевания и душевые комнаты.
Позвоните и узнайте условия покупки прямо сейчас!
14.11.2025
14 592 270 ₽
Продается 1-комн. квартира, площадью 41.54 м2 в монолитно-кирпичной новостройке. Возможен вариант покупки с использованием ипотечных средств, есть рассрочка, возможна покупка с использованием материнского капитала, есть военная ипотека.
Жилая площадь 12.72 м2, кухня 16.98 м2, предчистовая отделка, комнаты изолированные.
Квартира располагается на 5 этаже 8-этажного дома в ЖК Резиденция морей.
Застройщик - ГК ССК, сдача дома - IV квартал 2026 года, высота потолков 2.85 м.
Дом оборудован пассажирским лифтом, закрытая территория.
Подземная парковка, парковка охраняется. Обеспечение безопасности: видеонаблюдение, пропускная система. Инфраструктура: детские площадки, спортивные площадки, супермаркет, рестораны, фитнес-центр, пункты бытового обслуживания, коммерческие объекты.
Жилой комплекс представляет собой закрытый периметр.
На территории подземного паркинга предусмотрены кладовые помещения, в которых будет удобно хранить авто-инвентарь, сезонные вещи и другие предметы быта, занимающие драгоценные метры квартиры.
Жители ЖК «Резиденция морей» смогут устраивать водные процедуры в любую погоду, даже когда на море шторм. Прямо во дворе комплекса расположатся два бассейна с расширенным временем пользования общей площадью 811 м2. В бассейне с разными уровнями глубины - от 0,5 до 1,5 м - смогут безопасно играть и учиться плавать самые маленькие жители.
Второй бассейн идеально подойдёт для длинных заплывов, спортивных тренировок и водного фитнеса, его глубина - 1,5 м. Вода в бассейнах всегда будет чистая за счет системы очистки и дезинфекции. Вокруг бассейнов будет благоустроена зона отдыха с шезлонгами. Также на территории будут оборудованы специальные помещения для переодевания и душевые комнаты.
Позвоните и узнайте условия покупки прямо сейчас!
14.11.2025
10 478 465 ₽
Продается 2-комн. квартира, площадью 51.11 м2 в кирпичной новостройке. Возможен вариант покупки с использованием ипотечных средств, есть рассрочка, возможна покупка с использованием материнского капитала.
Жилая площадь 21.49 м2, кухня 16.1 м2, предчистовая отделка.
Квартира располагается на 3 этаже 4-этажного дома в ЖК Усадьба Гостагаевская.
Застройщик - ГК ССК, сдача дома - IV квартал 2026 года, высота потолков 2.7 м.
Дом оборудован пассажирским лифтом, закрытая территория.
Парковка автомобилей - наземная. Обеспечение безопасности: видеонаблюдение. Инфраструктура: школа, детский сад, детские площадки, спортивные площадки, места для отдыха.
На территории комплекса будут находиться собственный детский сад на 300 мест, школа на 750 учеников дом культуры и библиотека для мероприятий и досуга. Коммерческие площади, включая магазины и кафе, обеспечат жителей всеми необходимыми услугами.
Комплекс предложит спортивные площадки, беговые дорожки, места для занятий йогой и фитнесом на свежем воздухе. Приятные скверы и аллеи будут идеальны для семейных прогулок и досуга.
Территория комплекса будет благоустроена с акцентом на экологию и комфорт. Планируется озеленение с использованием местных растений, что улучшит внешний вид и создаст приятную атмосферу. Современные технологии, такие как динамическое освещение и зоны для зарядки гаджетов, сделают жизнь удобной и комфортной.
Комплекс удобно расположен вблизи основных транспортных артерий, что обеспечивает быструю связь с Анапой и другими важными точками региона Краснодар, Новороссийск, Крым. Железнодорожная станция находится всего в 2 минутах на машине, а аэропорт в 6 километрах
Специальная выгода за наличный расчет в ЖК «Усадьба Гостагаевская»
Масштабный проект на 27 гектарах в экологичном районе Анапы - современная усадьба для тех, кто ценит простор, гармонию и безупречный стиль.
Концепция современной усадьбы, реализованная через поквартальную застройку в едином архитектурном стиле, гарантирует и эстетическое единство, и личную приватность каждого резидента.
Ваш дом будет окружен чистой южной природой, а на территории комплекса будут разбиты «Сады четырех сезонов» для прогулок в любое время года. Море находится в шаговой доступности, а подогреваемый бассейн дополнит ощущение непрерывного отдыха.
Это настоящий мир уединения и гармонии, где все блага современной инфраструктуры - на расстоянии пары шагов, но за пределами вашего участка царит покой и природа. Грандиозный проект, который станет знаковым местом на карте Черноморского побережья.
Инвестируйте в будущее сегодня. Количество лотов на специальных условиях ограничено.
Аккредитованные банки: Абсолют Банк, Совкомбанк, Альфа-Банк, Банк ДОМ. РФ, Промсвязьбанк, Банк ВТБ, Т-Банк, Россельхозбанк, МКБ.
Позвоните и узнайте условия покупки прямо сейчас!
06.12.2025
10 477 550 ₽
Продаются 2 комн. апартаменты, площадью 49.4 м2 в монолитной новостройке. Возможен вариант покупки с использованием ипотечных средств, есть рассрочка, возможна покупка с использованием материнского капитала, есть военная ипотека.
Жилая площадь 19.9 м2, кухня 18.8 м2, чистовая отделка с мебелью.
Квартира располагается на 2 этаже 9-этажного дома в ЖК Гостиничный комплекс Мореград.
Застройщик - ГК ССК, сдача дома - I квартал 2027 года.
Дом оборудован пассажирским лифтом, закрытая территория.
Подземная парковка, парковка охраняется. Обеспечение безопасности: видеонаблюдение, круглосуточная охрана, противопожарная система. Инфраструктура: детские площадки, спортивные площадки, места для отдыха, супермаркет, рестораны, пункты бытового обслуживания, коммерческие объекты.
Расположенный в живописном месте города-курорта Анапы, гостиничный комплекс «Мореград» предлагает идеальное сочетание уютной обстановки и удобного расположения. Всего в трех минутах ходьбы от тенистых зеленых аллей Пионерского проспекта, он станет идеальным выбором для отдыхающих, желающих насладиться близостью к морю.
Песчаные пляжи Черного моря, всего в 7 минутах ходьбы от комплекса, приглашают насладиться теплым солнцем и ласковыми волнами.
«Мореград» - уникальный современный гостиничный комплекс, где гостям будут доступны все удобства отельного сервиса. Коммерческие блоки и различные виды отдыха - рестораны, бары, магазины, лаунж-зоны, оборудованные спортивные и детские площадки и многое другое сделают отдых гостей незабываемым.
Набережная, море и комфорт в каждом метре - гостиничный комплекс «Мореград» в живописном городе-курорте Анапа представляет специальное предложение для тех, кто ценит выгодные решения. При оплате наличными вы получаете выгоду до 1 180 000 рублей, что делает приобретение недвижимости здесь особенно привлекательным. Расположенный всего в трёх минутах ходьбы от тенистых зелёных аллей Пионерского проспекта, комплекс сочетает уютную атмосферу и удобное расположение, идеально подходя для отдыха и постоянного проживания. Наслаждайтесь близостью к морю, высоким уровнем комфорта и перспективной инвестицией в будущее уже сегодня.
Позвоните и узнайте условия покупки прямо сейчас!
06.12.2025
13 832 000 ₽
Продаются 2 комн. апартаменты, площадью 49.4 м2 в монолитной новостройке. Возможен вариант покупки с использованием ипотечных средств, есть рассрочка, возможна покупка с использованием материнского капитала, есть военная ипотека.
Жилая площадь 19.9 м2, кухня 18.8 м2, чистовая отделка с мебелью.
Квартира располагается на 2 этаже 9-этажного дома в ЖК Гостиничный комплекс Мореград.
Застройщик - ГК ССК, сдача дома - I квартал 2027 года.
Дом оборудован пассажирским лифтом, закрытая территория.
Подземная парковка, парковка охраняется. Обеспечение безопасности: видеонаблюдение, круглосуточная охрана, противопожарная система. Инфраструктура: детские площадки, спортивные площадки, места для отдыха, супермаркет, рестораны, пункты бытового обслуживания, коммерческие объекты.
Расположенный в живописном месте города-курорта Анапы, гостиничный комплекс «Мореград» предлагает идеальное сочетание уютной обстановки и удобного расположения. Всего в трех минутах ходьбы от тенистых зеленых аллей Пионерского проспекта, он станет идеальным выбором для отдыхающих, желающих насладиться близостью к морю.
Песчаные пляжи Черного моря, всего в 7 минутах ходьбы от комплекса, приглашают насладиться теплым солнцем и ласковыми волнами.
«Мореград» - уникальный современный гостиничный комплекс, где гостям будут доступны все удобства отельного сервиса. Коммерческие блоки и различные виды отдыха - рестораны, бары, магазины, лаунж-зоны, оборудованные спортивные и детские площадки и многое другое сделают отдых гостей незабываемым.
Набережная, море и комфорт в каждом метре - гостиничный комплекс «Мореград» в живописном городе-курорте Анапа представляет специальное предложение для тех, кто ценит выгодные решения. При оплате наличными вы получаете выгоду до 1 180 000 рублей, что делает приобретение недвижимости здесь особенно привлекательным. Расположенный всего в трёх минутах ходьбы от тенистых зелёных аллей Пионерского проспекта, комплекс сочетает уютную атмосферу и удобное расположение, идеально подходя для отдыха и постоянного проживания. Наслаждайтесь близостью к морю, высоким уровнем комфорта и перспективной инвестицией в будущее уже сегодня.
Позвоните и узнайте условия покупки прямо сейчас!
06.12.2025
13 832 000 ₽
Продаются 2 комн. апартаменты, площадью 45.7 м2 в монолитной новостройке. Возможен вариант покупки с использованием ипотечных средств, есть рассрочка, возможна покупка с использованием материнского капитала, есть военная ипотека.
Жилая площадь 19.9 м2, кухня 12.7 м2, чистовая отделка с мебелью.
Квартира располагается на 2 этаже 9-этажного дома в ЖК Гостиничный комплекс Мореград.
Застройщик - ГК ССК, сдача дома - I квартал 2027 года.
Дом оборудован пассажирским лифтом, закрытая территория.
Подземная парковка, парковка охраняется. Обеспечение безопасности: видеонаблюдение, круглосуточная охрана, противопожарная система. Инфраструктура: детские площадки, спортивные площадки, места для отдыха, супермаркет, рестораны, пункты бытового обслуживания, коммерческие объекты.
Расположенный в живописном месте города-курорта Анапы, гостиничный комплекс «Мореград» предлагает идеальное сочетание уютной обстановки и удобного расположения. Всего в трех минутах ходьбы от тенистых зеленых аллей Пионерского проспекта, он станет идеальным выбором для отдыхающих, желающих насладиться близостью к морю.
Песчаные пляжи Черного моря, всего в 7 минутах ходьбы от комплекса, приглашают насладиться теплым солнцем и ласковыми волнами.
«Мореград» - уникальный современный гостиничный комплекс, где гостям будут доступны все удобства отельного сервиса. Коммерческие блоки и различные виды отдыха - рестораны, бары, магазины, лаунж-зоны, оборудованные спортивные и детские площадки и многое другое сделают отдых гостей незабываемым.
Набережная, море и комфорт в каждом метре - гостиничный комплекс «Мореград» в живописном городе-курорте Анапа представляет специальное предложение для тех, кто ценит выгодные решения. При оплате наличными вы получаете выгоду до 1 180 000 рублей, что делает приобретение недвижимости здесь особенно привлекательным. Расположенный всего в трёх минутах ходьбы от тенистых зелёных аллей Пионерского проспекта, комплекс сочетает уютную атмосферу и удобное расположение, идеально подходя для отдыха и постоянного проживания. Наслаждайтесь близостью к морю, высоким уровнем комфорта и перспективной инвестицией в будущее уже сегодня.
Позвоните и узнайте условия покупки прямо сейчас!
06.12.2025
13 710 000 ₽
Продаются 2 комн. апартаменты, площадью 45.7 м2 в монолитной новостройке. Возможен вариант покупки с использованием ипотечных средств, есть рассрочка, возможна покупка с использованием материнского капитала, есть военная ипотека.
Жилая площадь 19.9 м2, кухня 12.7 м2, чистовая отделка с мебелью.
Квартира располагается на 2 этаже 9-этажного дома в ЖК Гостиничный комплекс Мореград.
Застройщик - ГК ССК, сдача дома - I квартал 2027 года.
Дом оборудован пассажирским лифтом, закрытая территория.
Подземная парковка, парковка охраняется. Обеспечение безопасности: видеонаблюдение, круглосуточная охрана, противопожарная система. Инфраструктура: детские площадки, спортивные площадки, места для отдыха, супермаркет, рестораны, пункты бытового обслуживания, коммерческие объекты.
Расположенный в живописном месте города-курорта Анапы, гостиничный комплекс «Мореград» предлагает идеальное сочетание уютной обстановки и удобного расположения. Всего в трех минутах ходьбы от тенистых зеленых аллей Пионерского проспекта, он станет идеальным выбором для отдыхающих, желающих насладиться близостью к морю.
Песчаные пляжи Черного моря, всего в 7 минутах ходьбы от комплекса, приглашают насладиться теплым солнцем и ласковыми волнами.
«Мореград» - уникальный современный гостиничный комплекс, где гостям будут доступны все удобства отельного сервиса. Коммерческие блоки и различные виды отдыха - рестораны, бары, магазины, лаунж-зоны, оборудованные спортивные и детские площадки и многое другое сделают отдых гостей незабываемым.
Набережная, море и комфорт в каждом метре - гостиничный комплекс «Мореград» в живописном городе-курорте Анапа представляет специальное предложение для тех, кто ценит выгодные решения. При оплате наличными вы получаете выгоду до 1 180 000 рублей, что делает приобретение недвижимости здесь особенно привлекательным. Расположенный всего в трёх минутах ходьбы от тенистых зелёных аллей Пионерского проспекта, комплекс сочетает уютную атмосферу и удобное расположение, идеально подходя для отдыха и постоянного проживания. Наслаждайтесь близостью к морю, высоким уровнем комфорта и перспективной инвестицией в будущее уже сегодня.
Позвоните и узнайте условия покупки прямо сейчас!
06.12.2025
13 710 000 ₽
Продаются 2 комн. апартаменты, площадью 62.32 м2 в монолитной новостройке. Возможен вариант покупки с использованием ипотечных средств, есть рассрочка, возможна покупка с использованием материнского капитала, есть военная ипотека.
Жилая площадь 49.09 м2, кухня 10.65 м2, чистовая отделка с мебелью.
Квартира располагается на 2 этаже 9-этажного дома в ЖК Гостиничный комплекс «Корсаков.
Застройщик - ГК ССК, сдача дома - IV квартал 2026 года.
Дом оборудован пассажирским лифтом, закрытая территория.
Отдельная многоуровневая парковка, парковка охраняется. Обеспечение безопасности: видеонаблюдение, круглосуточная охрана. Инфраструктура: детские площадки, спортивные площадки, места для отдыха, супермаркет, рестораны, фитнес-центр, пункты бытового обслуживания, коммерческие объекты.
Вершина инноваций и роскоши, воплощение передовых технологий в строительстве и непревзойденных решений в дизайне. Первый IT-отель Корсаков - место, где каждый элемент говорит о вашем статусе. Нашим гостям и резидентам мы предлагаем непревзойденный сервис и уникальные технологические решения, делающие пребывание в Корсакове по-настоящему незабываемым.
Наш отель выделяется на фоне текущих архитектурных проектов благодаря инновационному дизайну и современным архитектурным решениям, создающим эстетическое наслаждение и узнаваемый облик.
Стабильный доход от сдачи номера начинается с выгодных условий: рассрочка 0% и первый взнос всего 20%.
После первоначального взноса в 20% при подписании ДДУ вы делаете второй платеж 15% через месяц после регистрации договора, а третий платеж 20% - через два месяца. Оставшиеся 45% стоимости вы оплачиваете до конца строительства, выбрав удобный для себя график - ежемесячный или поквартальный.
Мы создали идеальные условия для инвестиций:
Рассрочка без переплат на весь срок строительства
Прозрачный график платежей
Первый взнос всего 20%
Юридическая защита по ДДУ
Ваши вложения начинают работать сразу: пока вы пользуетесь рассрочкой, объект растет в цене, а после сдачи ГК в эксплуатацию номер можно передать в управление и получать стабильный доход.
Аккредитованные банки: Сбербанк, Альфа-Банк, ВТБ, Банк Уралсиб, РОССИЯ, Абсолют Банк, Металлинвестбанк, РНКБ, ПСБ, Кубань Кредит, Банк ВБРР.
Позвоните и узнайте условия покупки прямо сейчас!
06.12.2025
21 500 400 ₽
Продаются 2 комн. апартаменты, площадью 56.38 м2 в монолитной новостройке. Возможен вариант покупки с использованием ипотечных средств, есть рассрочка, возможна покупка с использованием материнского капитала, есть военная ипотека.
Жилая площадь 43.44 м2, кухня 10.65 м2, чистовая отделка с мебелью.
Квартира располагается на 6 этаже 9-этажного дома в ЖК Гостиничный комплекс «Корсаков.
Застройщик - ГК ССК, сдача дома - IV квартал 2026 года.
Дом оборудован пассажирским лифтом, закрытая территория.
Отдельная многоуровневая парковка, парковка охраняется. Обеспечение безопасности: видеонаблюдение, круглосуточная охрана. Инфраструктура: детские площадки, спортивные площадки, места для отдыха, супермаркет, рестораны, фитнес-центр, пункты бытового обслуживания, коммерческие объекты.
Вершина инноваций и роскоши, воплощение передовых технологий в строительстве и непревзойденных решений в дизайне. Первый IT-отель Корсаков - место, где каждый элемент говорит о вашем статусе. Нашим гостям и резидентам мы предлагаем непревзойденный сервис и уникальные технологические решения, делающие пребывание в Корсакове по-настоящему незабываемым.
Наш отель выделяется на фоне текущих архитектурных проектов благодаря инновационному дизайну и современным архитектурным решениям, создающим эстетическое наслаждение и узнаваемый облик.
Стабильный доход от сдачи номера начинается с выгодных условий: рассрочка 0% и первый взнос всего 20%.
После первоначального взноса в 20% при подписании ДДУ вы делаете второй платеж 15% через месяц после регистрации договора, а третий платеж 20% - через два месяца. Оставшиеся 45% стоимости вы оплачиваете до конца строительства, выбрав удобный для себя график - ежемесячный или поквартальный.
Мы создали идеальные условия для инвестиций:
Рассрочка без переплат на весь срок строительства
Прозрачный график платежей
Первый взнос всего 20%
Юридическая защита по ДДУ
Ваши вложения начинают работать сразу: пока вы пользуетесь рассрочкой, объект растет в цене, а после сдачи ГК в эксплуатацию номер можно передать в управление и получать стабильный доход.
Аккредитованные банки: Сбербанк, Альфа-Банк, ВТБ, Банк Уралсиб, РОССИЯ, Абсолют Банк, Металлинвестбанк, РНКБ, ПСБ, Кубань Кредит, Банк ВБРР.
Позвоните и узнайте условия покупки прямо сейчас!
06.12.2025
20 296 800 ₽
Продаются 2 комн. апартаменты, площадью 54.28 м2 в монолитной новостройке. Возможен вариант покупки с использованием ипотечных средств, есть рассрочка, возможна покупка с использованием материнского капитала, есть военная ипотека.
Жилая площадь 41.45 м2, кухня 10.65 м2, чистовая отделка с мебелью.
Квартира располагается на 8 этаже 9-этажного дома в ЖК Гостиничный комплекс «Корсаков.
Застройщик - ГК ССК, сдача дома - IV квартал 2026 года.
Дом оборудован пассажирским лифтом, закрытая территория.
Отдельная многоуровневая парковка, парковка охраняется. Обеспечение безопасности: видеонаблюдение, круглосуточная охрана. Инфраструктура: детские площадки, спортивные площадки, места для отдыха, супермаркет, рестораны, фитнес-центр, пункты бытового обслуживания, коммерческие объекты.
Вершина инноваций и роскоши, воплощение передовых технологий в строительстве и непревзойденных решений в дизайне. Первый IT-отель Корсаков - место, где каждый элемент говорит о вашем статусе. Нашим гостям и резидентам мы предлагаем непревзойденный сервис и уникальные технологические решения, делающие пребывание в Корсакове по-настоящему незабываемым.
Наш отель выделяется на фоне текущих архитектурных проектов благодаря инновационному дизайну и современным архитектурным решениям, создающим эстетическое наслаждение и узнаваемый облик.
Стабильный доход от сдачи номера начинается с выгодных условий: рассрочка 0% и первый взнос всего 20%.
После первоначального взноса в 20% при подписании ДДУ вы делаете второй платеж 15% через месяц после регистрации договора, а третий платеж 20% - через два месяца. Оставшиеся 45% стоимости вы оплачиваете до конца строительства, выбрав удобный для себя график - ежемесячный или поквартальный.
Мы создали идеальные условия для инвестиций:
Рассрочка без переплат на весь срок строительства
Прозрачный график платежей
Первый взнос всего 20%
Юридическая защита по ДДУ
Ваши вложения начинают работать сразу: пока вы пользуетесь рассрочкой, объект растет в цене, а после сдачи ГК в эксплуатацию номер можно передать в управление и получать стабильный доход.
Аккредитованные банки: Сбербанк, Альфа-Банк, ВТБ, Банк Уралсиб, РОССИЯ, Абсолют Банк, Металлинвестбанк, РНКБ, ПСБ, Кубань Кредит, Банк ВБРР.
Позвоните и узнайте условия покупки прямо сейчас!
06.12.2025
19 540 800 ₽
Продаются 2 комн. апартаменты, площадью 54.28 м2 в монолитной новостройке. Возможен вариант покупки с использованием ипотечных средств, есть рассрочка, возможна покупка с использованием материнского капитала, есть военная ипотека.
Жилая площадь 41.45 м2, кухня 10.65 м2, чистовая отделка с мебелью.
Квартира располагается на 6 этаже 9-этажного дома в ЖК Гостиничный комплекс «Корсаков.
Застройщик - ГК ССК, сдача дома - IV квартал 2026 года.
Дом оборудован пассажирским лифтом, закрытая территория.
Отдельная многоуровневая парковка, парковка охраняется. Обеспечение безопасности: видеонаблюдение, круглосуточная охрана. Инфраструктура: детские площадки, спортивные площадки, места для отдыха, супермаркет, рестораны, фитнес-центр, пункты бытового обслуживания, коммерческие объекты.
Вершина инноваций и роскоши, воплощение передовых технологий в строительстве и непревзойденных решений в дизайне. Первый IT-отель Корсаков - место, где каждый элемент говорит о вашем статусе. Нашим гостям и резидентам мы предлагаем непревзойденный сервис и уникальные технологические решения, делающие пребывание в Корсакове по-настоящему незабываемым.
Наш отель выделяется на фоне текущих архитектурных проектов благодаря инновационному дизайну и современным архитектурным решениям, создающим эстетическое наслаждение и узнаваемый облик.
Стабильный доход от сдачи номера начинается с выгодных условий: рассрочка 0% и первый взнос всего 20%.
После первоначального взноса в 20% при подписании ДДУ вы делаете второй платеж 15% через месяц после регистрации договора, а третий платеж 20% - через два месяца. Оставшиеся 45% стоимости вы оплачиваете до конца строительства, выбрав удобный для себя график - ежемесячный или поквартальный.
Мы создали идеальные условия для инвестиций:
Рассрочка без переплат на весь срок строительства
Прозрачный график платежей
Первый взнос всего 20%
Юридическая защита по ДДУ
Ваши вложения начинают работать сразу: пока вы пользуетесь рассрочкой, объект растет в цене, а после сдачи ГК в эксплуатацию номер можно передать в управление и получать стабильный доход.
Аккредитованные банки: Сбербанк, Альфа-Банк, ВТБ, Банк Уралсиб, РОССИЯ, Абсолют Банк, Металлинвестбанк, РНКБ, ПСБ, Кубань Кредит, Банк ВБРР.
Позвоните и узнайте условия покупки прямо сейчас!
06.12.2025
19 540 800 ₽
Продаются 2 комн. апартаменты, площадью 54.28 м2 в монолитной новостройке. Возможен вариант покупки с использованием ипотечных средств, есть рассрочка, возможна покупка с использованием материнского капитала, есть военная ипотека.
Жилая площадь 41.45 м2, кухня 10.65 м2, чистовая отделка с мебелью.
Квартира располагается на 5 этаже 9-этажного дома в ЖК Гостиничный комплекс «Корсаков.
Застройщик - ГК ССК, сдача дома - IV квартал 2026 года.
Дом оборудован пассажирским лифтом, закрытая территория.
Отдельная многоуровневая парковка, парковка охраняется. Обеспечение безопасности: видеонаблюдение, круглосуточная охрана. Инфраструктура: детские площадки, спортивные площадки, места для отдыха, супермаркет, рестораны, фитнес-центр, пункты бытового обслуживания, коммерческие объекты.
Вершина инноваций и роскоши, воплощение передовых технологий в строительстве и непревзойденных решений в дизайне. Первый IT-отель Корсаков - место, где каждый элемент говорит о вашем статусе. Нашим гостям и резидентам мы предлагаем непревзойденный сервис и уникальные технологические решения, делающие пребывание в Корсакове по-настоящему незабываемым.
Наш отель выделяется на фоне текущих архитектурных проектов благодаря инновационному дизайну и современным архитектурным решениям, создающим эстетическое наслаждение и узнаваемый облик.
Стабильный доход от сдачи номера начинается с выгодных условий: рассрочка 0% и первый взнос всего 20%.
После первоначального взноса в 20% при подписании ДДУ вы делаете второй платеж 15% через месяц после регистрации договора, а третий платеж 20% - через два месяца. Оставшиеся 45% стоимости вы оплачиваете до конца строительства, выбрав удобный для себя график - ежемесячный или поквартальный.
Мы создали идеальные условия для инвестиций:
Рассрочка без переплат на весь срок строительства
Прозрачный график платежей
Первый взнос всего 20%
Юридическая защита по ДДУ
Ваши вложения начинают работать сразу: пока вы пользуетесь рассрочкой, объект растет в цене, а после сдачи ГК в эксплуатацию номер можно передать в управление и получать стабильный доход.
Аккредитованные банки: Сбербанк, Альфа-Банк, ВТБ, Банк Уралсиб, РОССИЯ, Абсолют Банк, Металлинвестбанк, РНКБ, ПСБ, Кубань Кредит, Банк ВБРР.
Позвоните и узнайте условия покупки прямо сейчас!
06.12.2025
19 540 800 ₽




















