Объявление о квартирах в Кабардинке - Страница 2
- Кабардинка »
- Недвижимость
- » Квартиры в Кабардинке
Продается 2-комн. квартира, площадью 51.4 м2 в монолитно-кирпичной новостройке. Возможен вариант покупки с использованием ипотечных средств, есть рассрочка, возможна покупка с использованием материнского капитала, есть военная ипотека.
Жилая площадь 25 м2, кухня 13.5 м2, предчистовая отделка.
Квартира располагается на 2 этаже 18-этажного дома в ЖК Фонтаны.
Застройщик - ГК ССК, сдача дома - IV квартал 2026 года.
Дом оборудован пассажирским лифтом, закрытая территория.
Отдельная многоуровневая парковка, парковка охраняется. Обеспечение безопасности: видеонаблюдение, противопожарная система. Инфраструктура: детский сад, детские площадки, спортивные площадки, места для отдыха, супермаркет, рестораны, фитнес-центр, пункты бытового обслуживания, коммерческие объекты.
Жилой комплекс «Фонтаны» - дом клубного типа. Преимущество заключается в продуманном ландшафте дворов, круглосуточно охраняемой территории, системе видеонаблюдения во дворе. Также для удобства жителей проведен Wi-Fi во дворе, оборудованы безопасные и современные детские площадки, зоны отдыха.
«Фонтаны» - уникальный, неповторимый жилой комплекс, воплощающий оригинальные и креативные решения дизайнеров и архитекторов. Дома округлой форме - это придает им легкости, несмотря на массивность постройки.
ЖК «Фонтаны» расположен в микрорайоне Черёмушки. Отличная транспортная развязка позволяет быстро и с комфортом добраться до центра, а большое количество зеленых насаждений и парков дает возможность гулять с детьми и наслаждаться прекрасным видом на Кубань.
АКЦИЯ:
В жилом комплексе «Фонтаны» семьи с детьми до шести лет включительно могут оформить ипотеку по льготной ставке от 3,5% при первоначальном взносе от 20%.
Это возможность приобрести современную квартиру с продуманной планировкой, панорамными окнами и видами на реку Кубань, не откладывая мечту «на потом».
Территория ЖК - продуманное пространство для жизни: здесь найдётся место и для детских игр, и для спокойного отдыха взрослых, а близость к парковой зоне и будущему детскому саду сделает каждый день ещё комфортнее.
Выбирайте квартиру с готовым ремонтом и заселяйтесь без лишних хлопот - всё, что нужно для старта новой главы вашей семейной истории, уже здесь. Информация носит справочный характер. Не является публичной офертой.
Аккредитованные банки: Сбербанк, Альфа-Банк, ВТБ, Банк Уралсиб, РОССИЯ, Абсолют Банк, Металлинвестбанк, РНКБ, ПСБ, Кубань Кредит, Банк ВБРР, Россельхозбанк.
Позвоните и узнайте условия покупки прямо сейчас!
12.03.2026
9 252 000 ₽
Продается 2-комн. квартира, площадью 57 м2 в монолитно-кирпичной новостройке. Возможен вариант покупки с использованием ипотечных средств, есть рассрочка, возможна покупка с использованием материнского капитала, есть военная ипотека.
Жилая площадь 26.1 м2, кухня 19.1 м2, черновая отделка.
Квартира располагается на 5 этаже 16-этажного дома в ЖК Традиции.
Застройщик - ГК ССК, сдача дома - III квартал 2027 года, высота потолков 2.72 м.
Дом оборудован пассажирским лифтом. Обеспечение безопасности: видеонаблюдение, противопожарная система. Инфраструктура: детские площадки, спортивные площадки, места для отдыха, супермаркет, рестораны, фитнес-центр, пункты бытового обслуживания, коммерческие объекты.
В жилом комплексе «Традиции» вы найдёте всё, чтобы создать свой особенный уклад жизни. Возможно, именно здесь начнётся новая семейная традиция, которая станет дорогой сердцу на долгие годы.
В радиусе 5 минут ходьбы от комплекса уже функционируют школы и детские сады, а дорога в центр города занимает 15 минут.
АКЦИЯ:
Выгодные условия при покупке за наличный расчёт в ЖК «Традиции»
Для клиентов, выбирающих полный расчёт наличными, действуют специальные условия приобретения квартиры в жилом комплексе «Традиции».
Данное предложение обеспечивает максимальную экономию, позволяя стать владельцем современного жилья по исключительной цене при единовременной оплате.
Аккредитованные банки: Сбербанк, Альфа-Банк, ВТБ, Банк Уралсиб, РОССИЯ, Абсолют Банк, Металлинвестбанк, РНКБ, ПСБ, Кубань Кредит, Банк ВБРР, Россельхозбанк.
Позвоните и узнайте условия покупки прямо сейчас!
10.03.2026
7 125 000 ₽
Продается 2-комн. квартира, площадью 55.86 м2 в монолитно-кирпичной новостройке. Возможен вариант покупки с использованием ипотечных средств, есть рассрочка, возможна покупка с использованием материнского капитала, есть военная ипотека.
Жилая площадь 24.79 м2, кухня 17.2 м2, предчистовая отделка.
Квартира располагается на 10 этаже 18-этажного дома в ЖК Фонтаны.
Застройщик - ГК ССК, сдача дома - IV квартал 2026 года, высота потолков 2.82 м.
Дом оборудован пассажирским лифтом, закрытая территория.
Отдельная многоуровневая парковка, парковка охраняется. Обеспечение безопасности: видеонаблюдение, противопожарная система. Инфраструктура: детский сад, детские площадки, спортивные площадки, места для отдыха, супермаркет, рестораны, фитнес-центр, пункты бытового обслуживания, коммерческие объекты.
Жилой комплекс «Фонтаны» - дом клубного типа. Преимущество заключается в продуманном ландшафте дворов, круглосуточно охраняемой территории, системе видеонаблюдения во дворе. Также для удобства жителей проведен Wi-Fi во дворе, оборудованы безопасные и современные детские площадки, зоны отдыха.
«Фонтаны» - уникальный, неповторимый жилой комплекс, воплощающий оригинальные и креативные решения дизайнеров и архитекторов. Дома округлой форме - это придает им легкости, несмотря на массивность постройки.
ЖК «Фонтаны» расположен в микрорайоне Черёмушки. Отличная транспортная развязка позволяет быстро и с комфортом добраться до центра, а большое количество зеленых насаждений и парков дает возможность гулять с детьми и наслаждаться прекрасным видом на Кубань.
АКЦИЯ:
В жилом комплексе «Фонтаны» семьи с детьми до шести лет включительно могут оформить ипотеку по льготной ставке от 3,5% при первоначальном взносе от 20%.
Это возможность приобрести современную квартиру с продуманной планировкой, панорамными окнами и видами на реку Кубань, не откладывая мечту «на потом».
Территория ЖК - продуманное пространство для жизни: здесь найдётся место и для детских игр, и для спокойного отдыха взрослых, а близость к парковой зоне и будущему детскому саду сделает каждый день ещё комфортнее.
Выбирайте квартиру с готовым ремонтом и заселяйтесь без лишних хлопот - всё, что нужно для старта новой главы вашей семейной истории, уже здесь. Информация носит справочный характер. Не является публичной офертой.
Аккредитованные банки: Сбербанк, Альфа-Банк, ВТБ, Банк Уралсиб, РОССИЯ, Абсолют Банк, Металлинвестбанк, РНКБ, ПСБ, Кубань Кредит, Банк ВБРР, Россельхозбанк.
Позвоните и узнайте условия покупки прямо сейчас!
18.03.2026
9 775 500 ₽
Продается 2-комн. квартира, площадью 57.55 м2 в панельной новостройке. Возможен вариант покупки с использованием ипотечных средств, возможна покупка с использованием материнского капитала.
Жилая площадь 27 м2, кухня 16.2 м2, предчистовая отделка.
Квартира располагается на 4 этаже 12-этажного дома в ЖК На Высоком берегу.
Застройщик - ГК ССК, сдача дома - II квартал 2027 года, высота потолков 2.7 м.
Дом оборудован пассажирским лифтом.
Подземная парковка. Инфраструктура: детские площадки, спортивные площадки, места для отдыха, рестораны.
Семейный квартал «На Высоком берегу» расположен всего в 300 метрах от моря, где каждая деталь создана для вашего максимального комфорта. Квартиры с высотой потолков 2,7 метра, просторные мастер-спальни и великолепные виды.
169 уникальных, современных и функциональных планировок, каждая из которых разработана специально для комфортной семейной жизни. Продуманное зонирование, рациональное использование пространства и эстетика современного дизайна делают каждую квартиру настоящим воплощением мечты о жилье премиум-класса.
АКЦИЯ:
«На Высоком берегу» - это не просто семейный квартал, это состояние души, доступное лишь немногим. И прямо сейчас у вас есть уникальный шанс стать одним из этих избранных.
Мы открываем специальные условия на 50 квартир, окна которых смотрят на главные достопримечательности вашей новой жизни: на умиротворяющую зелень Крещенского парка и сияющую линию Белой набережной. Это предложение для тех, кто понимает, что настоящая ценность - не в метрах, а в виде из окна, который каждый день дарит чувство гармонии и покоя.
Успейте закрепить за собой один из 50 лотов с выгодными условиями и начните писать свою историю на самом живописном листе Анапы - там, где высокий берег становится началом всего самого важного.
Позвоните и узнайте условия покупки прямо сейчас!
19.03.2026
12 085 500 ₽
Коммуналка 3000 рублей фиксированная.
Регулируемое отопление, новая мебель, кровать, диван раскладной, электрочайник, микроволновка, кухонная плита, двухкамерный холодильник, вся посуда, стиральная машина, бесплатный Wi-fi И ТВ. Постельное бельё не предоставляется .
Квартира расположена в доме 2020 года постройки с развитой инфраструктурой, а именно: консьерж, облагороженная территория, бесплатная парковка, современная детская площадка, баскетбольная и волейбольная площадки, рядом 3 школы, множество детских садов, поликлиника, почта, круглосуточный Гипермаркет "Магнит Семейный" в 5 минутах пешком, " Пятёрочка", "Табрис", банкоматы. Рядом ЖК " Московский" со всеми благоустроенными преимуществами. На первом этаже дома круглосуточный минимаркет. Идти до трамвая и остановок автобусов от дома 5 минут. Собственник.
27.02.2026
23 000 ₽
Продается 2-комн. квартира, площадью 62.69 м2 в монолитно-кирпичной новостройке. Возможен вариант покупки с использованием ипотечных средств, есть рассрочка, возможна покупка с использованием материнского капитала, есть военная ипотека.
Жилая площадь 31.25 м2, кухня 15.41 м2, предчистовая отделка.
Квартира располагается на 5 этаже 18-этажного дома в ЖК Фонтаны.
Застройщик - ГК ССК, сдача дома - IV квартал 2026 года, высота потолков 2.82 м.
Дом оборудован пассажирским лифтом, закрытая территория.
Отдельная многоуровневая парковка, парковка охраняется. Обеспечение безопасности: видеонаблюдение, противопожарная система. Инфраструктура: детский сад, детские площадки, спортивные площадки, места для отдыха, супермаркет, рестораны, фитнес-центр, пункты бытового обслуживания, коммерческие объекты.
Жилой комплекс «Фонтаны» - дом клубного типа. Преимущество заключается в продуманном ландшафте дворов, круглосуточно охраняемой территории, системе видеонаблюдения во дворе. Также для удобства жителей проведен Wi-Fi во дворе, оборудованы безопасные и современные детские площадки, зоны отдыха.
«Фонтаны» - уникальный, неповторимый жилой комплекс, воплощающий оригинальные и креативные решения дизайнеров и архитекторов. Дома округлой форме - это придает им легкости, несмотря на массивность постройки.
ЖК «Фонтаны» расположен в микрорайоне Черёмушки. Отличная транспортная развязка позволяет быстро и с комфортом добраться до центра, а большое количество зеленых насаждений и парков дает возможность гулять с детьми и наслаждаться прекрасным видом на Кубань.
АКЦИЯ:
В жилом комплексе «Фонтаны» семьи с детьми до шести лет включительно могут оформить ипотеку по льготной ставке от 3,5% при первоначальном взносе от 20%.
Это возможность приобрести современную квартиру с продуманной планировкой, панорамными окнами и видами на реку Кубань, не откладывая мечту «на потом».
Территория ЖК - продуманное пространство для жизни: здесь найдётся место и для детских игр, и для спокойного отдыха взрослых, а близость к парковой зоне и будущему детскому саду сделает каждый день ещё комфортнее.
Выбирайте квартиру с готовым ремонтом и заселяйтесь без лишних хлопот - всё, что нужно для старта новой главы вашей семейной истории, уже здесь. Информация носит справочный характер. Не является публичной офертой.
Аккредитованные банки: Сбербанк, Альфа-Банк, ВТБ, Банк Уралсиб, РОССИЯ, Абсолют Банк, Металлинвестбанк, РНКБ, ПСБ, Кубань Кредит, Банк ВБРР, Россельхозбанк.
Позвоните и узнайте условия покупки прямо сейчас!
27.02.2026
10 343 850 ₽
Не фейк, реальная квартира. Продажа от собственника, просьба агентства не беспокоить.
Один собственник, без прописанных, более пяти лет, полная
стоимость в договоре, быстрый выход на сделку.
Большой закрытый жилой комплекс "Морская Симфония" с большим открытым бассейном, смотровой площадкой с видом на море, детские площадки, фонтан с подсветкой, теннисный корт, спортивные площадки, фитнес.
Уютная евро трешка 56 метров, две отдельные спальни и гостиная с кухней. Кондиционер, стиральная машина, сушка, лоджия, фильтр воды, посудомойка, электрическая духовка, миксер, мультиварка. Интернет 100мбит.
Большой супермаркет "Перекресток", аптеки, хозяйственный магазин, кофейня, ресторан, магазин овощи-фрукты, магазин пива, пункты выдачи товаров Wildberries, Озон, СДЭК салон для животных, салон красоты, клубы для детей, фитнес клуб "Среда" все это расположено в комплексе.
До олимпийского парка 15 минут на машине, большой Сочи 30 минут, красная поляна 35 минут. До море 15 минут пешком.
Жилая площадь 46 м2, кухня 9 кв. м, внутри евро ремонт. Квартира меблированная, есть бытовая техника: стиральная машина, холодильник, телевизор, кондиционер, посудомоечная машина, микроволновая печь, интернет. Раздельных санузлов - 1, совмещенных санузлов - нет.
На полу ламинат, лоджий - 1, окна выходят во двор.
Квартира располагается на 6 этаже 18-этажного монолитного дома в ЖК Морская симфония 2013 года постройки. Застройщик - Монолит (Сочи).
Дом оборудован одним грузовым и 2 пассажирскими лифтами, закрытая территория.
Парковка автомобилей - наземная, парковка с охраной. Обеспечение безопасности: круглосуточная охрана. Инфраструктура: детские площадки, спортивные площадки, места для отдыха, супермаркет, рестораны, фитнес-центр, пункты бытового обслуживания.
01.03.2026
17 950 000 ₽
Продаю готовый прибыльный бизнес: уютный апарт-отель в сердце Немецкой деревни.
Приобретение включает комфортабельный отель с развитой инфраструктурой и превосходной атмосферой. Гостям предлагается приятное размещение рядом с озером, населённым красивыми водоплавающими птицами, разнообразием ресторанов, собственной пивоварней, фирменным магазином вина, уютными кофейнями, заведениями быстрого питания, множеством торговых точек, дорожками для велоспорта, просторными местами для прогулок, спортивными площадками для тенниса и детской зоной. Удобства включают доступ ко всем сервисам доставок.
Отель располагает четырьмя комфортабельными номерами с полным набором удобств, качественным дизайнерским интерьером, современной мебелью и бытовой техникой. Имеется также техническая комната с профессиональной прачечной и необходимым уборочным инвентарем. Реализовано бесконтактное поселение гостей.
Будущим собственникам предоставляется полная отчётность бизнеса, богатая база постоянных клиентов, сайт гостиницы и страницы на популярных онлайн-площадках бронирования.
Идеальное предложение для инвесторов, желающих приобрести успешный гостиничный бизнес с налаженным потоком туристов и высоким уровнем комфорта.
21.02.2026
17 900 000 ₽
Стильные aпаpтаменты Green Oasis в комплeксe ЖК Большой
О комплексе:
Потрясающая локация. Центр города.
На территории комплекса есть всё для отдыха, расслабления и восстановления сил. косметические кабинеты, флоатинг, студии маникюра, и салоны красоты,
В непосредственной близости – ТРЦ «Галерея» , кинотеатр Каро,с 8 кинозалами премиум класса, ресторанами и магазинами, гипермаркет Ноff,
На первом этаже дома находится торговый центр с продуктовым магазином Перекресток
В шаговой доступности находятся: ФудМаркет (120 ресторанов кухонь мира под одной крышей), ресторан «Голый повар», «Бумбараш» и др. - центральная улица Красная, Аллея с фонтанами.
Маршруты общественного транспорта в шаговой доступности – без пробок в любую часть города
Закрытый доступ на территорию – никаких посторонних, комфорт и безопасность
10 этаж, красивый вид на город
Двуспальная кровать quin-sizе (160*200)
Стильный диван-кровать
Смарт ТВ с доступом к видеоконтенту интернет-сервисов в зоне спальни и гостиной
Сплит система в комнате и на кухне, стиральная машина, холодильник, микроволновая печь, варочная панель, чайник, фен, гладильные принадлежности
Укомплектованная техникой и посудой кухонная зона
Ванная комната с ванной
Высокоскоростной Wi-Fi
Документы установленного образца, работаем с организациями.
21.02.2026
10 800 000 ₽
Продается 2-комнатная квартира в центре города в сталинском доме с высокими потолками (3 метра). Квартира находится на 2-м этаже, что гарантирует тишину и минимальное количество соседей сверху. Предоставляется предчистовая отделка, что дает возможность реализовать ваши дизайнерские идеи и сделать ремонт по своему вкусу.
Во дворе всегда есть парковочное место. Дом расположен в исторической части Краснодара, рядом находится остановка трамвая, а также в шаговой доступности школы и детские сады. Это отличное предложение для тех, кто ценит комфорт и удобство городской жизни!
21.02.2026
5 800 000 ₽
Продается 2-комн. квартира, площадью 50.9 м2 в монолитно-кирпичной новостройке. Возможен вариант покупки с использованием ипотечных средств, есть рассрочка, возможна покупка с использованием материнского капитала, есть военная ипотека.
Жилая площадь 25 м2, кухня 13 м2, предчистовая отделка.
Квартира располагается на 16 этаже 18-этажного дома в ЖК Фонтаны.
Застройщик - ГК ССК, сдача дома - IV квартал 2026 года.
Дом оборудован пассажирским лифтом, закрытая территория.
Отдельная многоуровневая парковка, парковка охраняется. Обеспечение безопасности: видеонаблюдение, противопожарная система. Инфраструктура: детский сад, детские площадки, спортивные площадки, места для отдыха, супермаркет, рестораны, фитнес-центр, пункты бытового обслуживания, коммерческие объекты.
Жилой комплекс «Фонтаны» - дом клубного типа. Преимущество заключается в продуманном ландшафте дворов, круглосуточно охраняемой территории, системе видеонаблюдения во дворе. Также для удобства жителей проведен Wi-Fi во дворе, оборудованы безопасные и современные детские площадки, зоны отдыха.
«Фонтаны» - уникальный, неповторимый жилой комплекс, воплощающий оригинальные и креативные решения дизайнеров и архитекторов. Дома округлой форме - это придает им легкости, несмотря на массивность постройки.
ЖК «Фонтаны» расположен в микрорайоне Черёмушки. Отличная транспортная развязка позволяет быстро и с комфортом добраться до центра, а большое количество зеленых насаждений и парков дает возможность гулять с детьми и наслаждаться прекрасным видом на Кубань.
АКЦИЯ:
В жилом комплексе «Фонтаны» семьи с детьми до шести лет включительно могут оформить ипотеку по льготной ставке от 3,5% при первоначальном взносе от 20%.
Это возможность приобрести современную квартиру с продуманной планировкой, панорамными окнами и видами на реку Кубань, не откладывая мечту «на потом».
Территория ЖК - продуманное пространство для жизни: здесь найдётся место и для детских игр, и для спокойного отдыха взрослых, а близость к парковой зоне и будущему детскому саду сделает каждый день ещё комфортнее.
Выбирайте квартиру с готовым ремонтом и заселяйтесь без лишних хлопот - всё, что нужно для старта новой главы вашей семейной истории, уже здесь. Информация носит справочный характер. Не является публичной офертой.
Аккредитованные банки: Сбербанк, Альфа-Банк, ВТБ, Банк Уралсиб, РОССИЯ, Абсолют Банк, Металлинвестбанк, РНКБ, ПСБ, Кубань Кредит, Банк ВБРР, Россельхозбанк.
Позвоните и узнайте условия покупки прямо сейчас!
16.02.2026
9 671 000 ₽
Продается 2-комн. квартира, площадью 54.11 м2 в монолитно-кирпичной новостройке. Возможен вариант покупки с использованием ипотечных средств, есть рассрочка, возможна покупка с использованием материнского капитала, есть военная ипотека.
Жилая площадь 23.9 м2, предчистовая отделка.
Квартира располагается на 6 этаже 16-этажного дома в ЖК Горные высоты.
Застройщик - ГК ССК, сдача дома - III квартал 2027 года, высота потолков 2.7 м.
Дом оборудован грузовым и пассажирским лифтом.
Парковка автомобилей - наземная. Обеспечение безопасности: видеонаблюдение. Инфраструктура: школа, детский сад, поликлиника, детские площадки, спортивные площадки, места для отдыха.
«Горные Высоты» - это радушный, современный и природный микрорайон, где сердце остаётся навсегда: соседи становятся семьёй, технологии служат уюту, а горный воздух и панорамные виды дарят ощущение гармонии каждый день. Здесь рождаются тёплые традиции, всё продумано для комфорта жизни, а природа становится частью вашего дома. Возвращаться сюда - значит возвращаться туда, где вас ждут, понимают и окружают заботой.
АКЦИЯ:
При покупке трёхкомнатной квартиры в микрорайоне «Горные Высоты» вы получаете качественный ремонт в подарок - всё, чтобы сразу заселиться и начать жить.
Современные планировки, высокие потолки и продуманные до деталей отделочные материалы создают идеальный баланс между уютом и стилем. Большие панорамные окна наполняют пространство светом, витражные конструкции подчёркивают эстетику, а удобные холлы и рациональное зонирование делают каждый день лёгким и комфортным.
Позвоните и узнайте условия покупки прямо сейчас!
20.02.2026
7 737 730 ₽
Продается 2-комн. квартира, площадью 54.11 м2 в монолитно-кирпичной новостройке. Возможен вариант покупки с использованием ипотечных средств, есть рассрочка, возможна покупка с использованием материнского капитала, есть военная ипотека.
Жилая площадь 23.9 м2, предчистовая отделка.
Квартира располагается на 4 этаже 16-этажного дома в ЖК Горные высоты.
Застройщик - ГК ССК, сдача дома - III квартал 2027 года, высота потолков 2.7 м.
Дом оборудован грузовым и пассажирским лифтом.
Парковка автомобилей - наземная. Обеспечение безопасности: видеонаблюдение. Инфраструктура: школа, детский сад, поликлиника, детские площадки, спортивные площадки, места для отдыха.
«Горные Высоты» - это радушный, современный и природный микрорайон, где сердце остаётся навсегда: соседи становятся семьёй, технологии служат уюту, а горный воздух и панорамные виды дарят ощущение гармонии каждый день. Здесь рождаются тёплые традиции, всё продумано для комфорта жизни, а природа становится частью вашего дома. Возвращаться сюда - значит возвращаться туда, где вас ждут, понимают и окружают заботой.
АКЦИЯ:
При покупке трёхкомнатной квартиры в микрорайоне «Горные Высоты» вы получаете качественный ремонт в подарок - всё, чтобы сразу заселиться и начать жить.
Современные планировки, высокие потолки и продуманные до деталей отделочные материалы создают идеальный баланс между уютом и стилем. Большие панорамные окна наполняют пространство светом, витражные конструкции подчёркивают эстетику, а удобные холлы и рациональное зонирование делают каждый день лёгким и комфортным.
Позвоните и узнайте условия покупки прямо сейчас!
20.02.2026
7 737 730 ₽
Продается 2-комн. квартира, площадью 54.11 м2 в монолитно-кирпичной новостройке. Возможен вариант покупки с использованием ипотечных средств, есть рассрочка, возможна покупка с использованием материнского капитала, есть военная ипотека.
Жилая площадь 23.9 м2, предчистовая отделка.
Квартира располагается на 4 этаже 16-этажного дома в ЖК Горные высоты.
Застройщик - ГК ССК, сдача дома - III квартал 2027 года, высота потолков 2.7 м.
Дом оборудован грузовым и пассажирским лифтом.
Парковка автомобилей - наземная. Обеспечение безопасности: видеонаблюдение. Инфраструктура: школа, детский сад, поликлиника, детские площадки, спортивные площадки, места для отдыха.
«Горные Высоты» - это радушный, современный и природный микрорайон, где сердце остаётся навсегда: соседи становятся семьёй, технологии служат уюту, а горный воздух и панорамные виды дарят ощущение гармонии каждый день. Здесь рождаются тёплые традиции, всё продумано для комфорта жизни, а природа становится частью вашего дома. Возвращаться сюда - значит возвращаться туда, где вас ждут, понимают и окружают заботой.
АКЦИЯ:
При покупке трёхкомнатной квартиры в микрорайоне «Горные Высоты» вы получаете качественный ремонт в подарок - всё, чтобы сразу заселиться и начать жить.
Современные планировки, высокие потолки и продуманные до деталей отделочные материалы создают идеальный баланс между уютом и стилем. Большие панорамные окна наполняют пространство светом, витражные конструкции подчёркивают эстетику, а удобные холлы и рациональное зонирование делают каждый день лёгким и комфортным.
Позвоните и узнайте условия покупки прямо сейчас!
21.02.2026
7 737 730 ₽
Продается 2-комн. квартира, площадью 54.11 м2 в монолитно-кирпичной новостройке. Возможен вариант покупки с использованием ипотечных средств, есть рассрочка, возможна покупка с использованием материнского капитала, есть военная ипотека.
Жилая площадь 23.9 м2, предчистовая отделка.
Квартира располагается на 3 этаже 16-этажного дома в ЖК Горные высоты.
Застройщик - ГК ССК, сдача дома - III квартал 2027 года, высота потолков 2.7 м.
Дом оборудован грузовым и пассажирским лифтом.
Парковка автомобилей - наземная. Обеспечение безопасности: видеонаблюдение. Инфраструктура: школа, детский сад, поликлиника, детские площадки, спортивные площадки, места для отдыха.
«Горные Высоты» - это радушный, современный и природный микрорайон, где сердце остаётся навсегда: соседи становятся семьёй, технологии служат уюту, а горный воздух и панорамные виды дарят ощущение гармонии каждый день. Здесь рождаются тёплые традиции, всё продумано для комфорта жизни, а природа становится частью вашего дома. Возвращаться сюда - значит возвращаться туда, где вас ждут, понимают и окружают заботой.
АКЦИЯ:
При покупке трёхкомнатной квартиры в микрорайоне «Горные Высоты» вы получаете качественный ремонт в подарок - всё, чтобы сразу заселиться и начать жить.
Современные планировки, высокие потолки и продуманные до деталей отделочные материалы создают идеальный баланс между уютом и стилем. Большие панорамные окна наполняют пространство светом, витражные конструкции подчёркивают эстетику, а удобные холлы и рациональное зонирование делают каждый день лёгким и комфортным.
Позвоните и узнайте условия покупки прямо сейчас!
11.03.2026
7 737 730 ₽
Продается 2-комн. квартира, площадью 54.11 м2 в монолитно-кирпичной новостройке. Возможен вариант покупки с использованием ипотечных средств, есть рассрочка, возможна покупка с использованием материнского капитала, есть военная ипотека.
Жилая площадь 23.9 м2, предчистовая отделка.
Квартира располагается на 3 этаже 16-этажного дома в ЖК Горные высоты.
Застройщик - ГК ССК, сдача дома - III квартал 2027 года, высота потолков 2.7 м.
Дом оборудован грузовым и пассажирским лифтом.
Парковка автомобилей - наземная. Обеспечение безопасности: видеонаблюдение. Инфраструктура: школа, детский сад, поликлиника, детские площадки, спортивные площадки, места для отдыха.
«Горные Высоты» - это радушный, современный и природный микрорайон, где сердце остаётся навсегда: соседи становятся семьёй, технологии служат уюту, а горный воздух и панорамные виды дарят ощущение гармонии каждый день. Здесь рождаются тёплые традиции, всё продумано для комфорта жизни, а природа становится частью вашего дома. Возвращаться сюда - значит возвращаться туда, где вас ждут, понимают и окружают заботой.
АКЦИЯ:
При покупке трёхкомнатной квартиры в микрорайоне «Горные Высоты» вы получаете качественный ремонт в подарок - всё, чтобы сразу заселиться и начать жить.
Современные планировки, высокие потолки и продуманные до деталей отделочные материалы создают идеальный баланс между уютом и стилем. Большие панорамные окна наполняют пространство светом, витражные конструкции подчёркивают эстетику, а удобные холлы и рациональное зонирование делают каждый день лёгким и комфортным.
Позвоните и узнайте условия покупки прямо сейчас!
20.02.2026
7 737 730 ₽
Продается 2-комн. квартира, площадью 54.11 м2 в монолитно-кирпичной новостройке. Возможен вариант покупки с использованием ипотечных средств, есть рассрочка, возможна покупка с использованием материнского капитала, есть военная ипотека.
Жилая площадь 23.9 м2, предчистовая отделка.
Квартира располагается на 5 этаже 16-этажного дома в ЖК Горные высоты.
Застройщик - ГК ССК, сдача дома - III квартал 2027 года, высота потолков 2.7 м.
Дом оборудован грузовым и пассажирским лифтом.
Парковка автомобилей - наземная. Обеспечение безопасности: видеонаблюдение. Инфраструктура: школа, детский сад, поликлиника, детские площадки, спортивные площадки, места для отдыха.
«Горные Высоты» - это радушный, современный и природный микрорайон, где сердце остаётся навсегда: соседи становятся семьёй, технологии служат уюту, а горный воздух и панорамные виды дарят ощущение гармонии каждый день. Здесь рождаются тёплые традиции, всё продумано для комфорта жизни, а природа становится частью вашего дома. Возвращаться сюда - значит возвращаться туда, где вас ждут, понимают и окружают заботой.
АКЦИЯ:
При покупке трёхкомнатной квартиры в микрорайоне «Горные Высоты» вы получаете качественный ремонт в подарок - всё, чтобы сразу заселиться и начать жить.
Современные планировки, высокие потолки и продуманные до деталей отделочные материалы создают идеальный баланс между уютом и стилем. Большие панорамные окна наполняют пространство светом, витражные конструкции подчёркивают эстетику, а удобные холлы и рациональное зонирование делают каждый день лёгким и комфортным.
Позвоните и узнайте условия покупки прямо сейчас!
20.02.2026
7 737 730 ₽
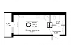
Продается студия, площадью 22.68 м2 в монолитно-кирпичной новостройке. Возможен вариант покупки с использованием ипотечных средств, есть рассрочка, возможна покупка с использованием материнского капитала, есть военная ипотека.
Жилая площадь 16.04 м2, предчистовая отделка, комнаты смежные.
Квартира располагается на 2 этаже 16-этажного дома в ЖК Горные высоты.
Застройщик - ГК ССК, сдача дома - III квартал 2027 года, высота потолков 2.7 м.
Дом оборудован грузовым и пассажирским лифтом.
Парковка автомобилей - наземная. Обеспечение безопасности: видеонаблюдение. Инфраструктура: школа, детский сад, поликлиника, детские площадки, спортивные площадки, места для отдыха.
«Горные Высоты» - это радушный, современный и природный микрорайон, где сердце остаётся навсегда: соседи становятся семьёй, технологии служат уюту, а горный воздух и панорамные виды дарят ощущение гармонии каждый день. Здесь рождаются тёплые традиции, всё продумано для комфорта жизни, а природа становится частью вашего дома. Возвращаться сюда - значит возвращаться туда, где вас ждут, понимают и окружают заботой.
АКЦИЯ:
При покупке трёхкомнатной квартиры в микрорайоне «Горные Высоты» вы получаете качественный ремонт в подарок - всё, чтобы сразу заселиться и начать жить.
Современные планировки, высокие потолки и продуманные до деталей отделочные материалы создают идеальный баланс между уютом и стилем. Большие панорамные окна наполняют пространство светом, витражные конструкции подчёркивают эстетику, а удобные холлы и рациональное зонирование делают каждый день лёгким и комфортным.
Позвоните и узнайте условия покупки прямо сейчас!
20.02.2026
3 764 880 ₽
Продается студия, площадью 22.68 м2 в монолитно-кирпичной новостройке. Возможен вариант покупки с использованием ипотечных средств, есть рассрочка, возможна покупка с использованием материнского капитала, есть военная ипотека.
Жилая площадь 16.04 м2, предчистовая отделка, комнаты смежные.
Квартира располагается на 2 этаже 16-этажного дома в ЖК Горные высоты.
Застройщик - ГК ССК, сдача дома - III квартал 2027 года, высота потолков 2.7 м.
Дом оборудован грузовым и пассажирским лифтом.
Парковка автомобилей - наземная. Обеспечение безопасности: видеонаблюдение. Инфраструктура: школа, детский сад, поликлиника, детские площадки, спортивные площадки, места для отдыха.
«Горные Высоты» - это радушный, современный и природный микрорайон, где сердце остаётся навсегда: соседи становятся семьёй, технологии служат уюту, а горный воздух и панорамные виды дарят ощущение гармонии каждый день. Здесь рождаются тёплые традиции, всё продумано для комфорта жизни, а природа становится частью вашего дома. Возвращаться сюда - значит возвращаться туда, где вас ждут, понимают и окружают заботой.
АКЦИЯ:
При покупке трёхкомнатной квартиры в микрорайоне «Горные Высоты» вы получаете качественный ремонт в подарок - всё, чтобы сразу заселиться и начать жить.
Современные планировки, высокие потолки и продуманные до деталей отделочные материалы создают идеальный баланс между уютом и стилем. Большие панорамные окна наполняют пространство светом, витражные конструкции подчёркивают эстетику, а удобные холлы и рациональное зонирование делают каждый день лёгким и комфортным.
Позвоните и узнайте условия покупки прямо сейчас!
20.02.2026
3 764 880 ₽
Продается студия, площадью 22.68 м2 в монолитно-кирпичной новостройке. Возможен вариант покупки с использованием ипотечных средств, есть рассрочка, возможна покупка с использованием материнского капитала, есть военная ипотека.
Жилая площадь 16.04 м2, предчистовая отделка, комнаты смежные.
Квартира располагается на 3 этаже 16-этажного дома в ЖК Горные высоты.
Застройщик - ГК ССК, сдача дома - III квартал 2027 года, высота потолков 2.7 м.
Дом оборудован грузовым и пассажирским лифтом.
Парковка автомобилей - наземная. Обеспечение безопасности: видеонаблюдение. Инфраструктура: школа, детский сад, поликлиника, детские площадки, спортивные площадки, места для отдыха.
«Горные Высоты» - это радушный, современный и природный микрорайон, где сердце остаётся навсегда: соседи становятся семьёй, технологии служат уюту, а горный воздух и панорамные виды дарят ощущение гармонии каждый день. Здесь рождаются тёплые традиции, всё продумано для комфорта жизни, а природа становится частью вашего дома. Возвращаться сюда - значит возвращаться туда, где вас ждут, понимают и окружают заботой.
АКЦИЯ:
При покупке трёхкомнатной квартиры в микрорайоне «Горные Высоты» вы получаете качественный ремонт в подарок - всё, чтобы сразу заселиться и начать жить.
Современные планировки, высокие потолки и продуманные до деталей отделочные материалы создают идеальный баланс между уютом и стилем. Большие панорамные окна наполняют пространство светом, витражные конструкции подчёркивают эстетику, а удобные холлы и рациональное зонирование делают каждый день лёгким и комфортным.
Позвоните и узнайте условия покупки прямо сейчас!
20.02.2026
3 764 880 ₽
Продается студия, площадью 22.68 м2 в монолитно-кирпичной новостройке. Возможен вариант покупки с использованием ипотечных средств, есть рассрочка, возможна покупка с использованием материнского капитала, есть военная ипотека.
Жилая площадь 16.04 м2, предчистовая отделка, комнаты смежные.
Квартира располагается на 6 этаже 16-этажного дома в ЖК Горные высоты.
Застройщик - ГК ССК, сдача дома - III квартал 2027 года, высота потолков 2.7 м.
Дом оборудован грузовым и пассажирским лифтом.
Парковка автомобилей - наземная. Обеспечение безопасности: видеонаблюдение. Инфраструктура: школа, детский сад, поликлиника, детские площадки, спортивные площадки, места для отдыха.
«Горные Высоты» - это радушный, современный и природный микрорайон, где сердце остаётся навсегда: соседи становятся семьёй, технологии служат уюту, а горный воздух и панорамные виды дарят ощущение гармонии каждый день. Здесь рождаются тёплые традиции, всё продумано для комфорта жизни, а природа становится частью вашего дома. Возвращаться сюда - значит возвращаться туда, где вас ждут, понимают и окружают заботой.
АКЦИЯ:
При покупке трёхкомнатной квартиры в микрорайоне «Горные Высоты» вы получаете качественный ремонт в подарок - всё, чтобы сразу заселиться и начать жить.
Современные планировки, высокие потолки и продуманные до деталей отделочные материалы создают идеальный баланс между уютом и стилем. Большие панорамные окна наполняют пространство светом, витражные конструкции подчёркивают эстетику, а удобные холлы и рациональное зонирование делают каждый день лёгким и комфортным.
Позвоните и узнайте условия покупки прямо сейчас!
20.02.2026
3 764 880 ₽




















