Продажа недвижимости в Ивангороде - Страница 7
- Ивангород »
- Недвижимость в Ивангороде
Продается 2-комн. квартира, площадью 53.79 м2 в монолитно-кирпичной новостройке в 8 мин. транспортом от м. Пролетарская. Возможен вариант покупки с использованием ипотечных средств, есть рассрочка, возможна покупка с использованием материнского капитала, есть военная ипотека.
Жилая площадь 24.23 м2, кухня 16.06 м2, черновая отделка.
Квартира располагается на 12 этаже 23-этажного дома в ЖК Имена.
Застройщик - ГК ССК, сдача дома - III квартал 2028 года, высота потолков 2.75 м.
Дом оборудован пассажирским лифтом, закрытая территория. Обеспечение безопасности: видеонаблюдение. Инфраструктура: детские площадки, спортивные площадки, места для отдыха, коммерческие объекты.
Жилой комплекс «Имена» - это не просто дома, это пространство для самой значимой главы вашей жизни. Здесь рождаются крепкие семьи, сбываются мечты и находят вдохновение для новых свершений. Расположенный на стыке современного мегаполиса и живописной природы, он открывает безграничные возможности для жизни по-настоящему комфортно и гармонично.
Просторные квартиры, продуманная инфраструктура и утопающий в зелени район создают идеальные условия для реализации ваших амбиций и создания уютного семейного очага.
При покупке трёхкомнатной квартиры в мастер-классном городе «Имена» вы получаете кладовое помещение - келлер площадью 3 м - в подарок. Это полезное дополнение сделает ваш быт комфортнее и организованнее. Келлер - это не просто место для хранения, а удобное пространство, которое помогает рационально использовать каждый метр вашей квартиры. С его помощью вы легко освободите жилое пространство от ненужных вещей, уберёте на хранение сезонный инвентарь, спортивное оборудование или старые книги, оставив в доме больше света, воздуха и уюта.
Жилой комплекс «Имена» расположился на правом берегу Невы, у подножия Невского лесопарка.
АКЦИЯ:
ЖК «Имена» предлагает выгодные условия покупки квартир по программе «Семейная ипотека» под 3,5% годовых. Такая ставка делает приобретение жилья более доступным, позволяя семьям сосредоточиться на создании уютного дома и будущего для детей. Жизнь в комплексе сочетает комфорт, безопасность и развитую социальную среду.
Для детей предусмотрены современные игровые зоны с концептуальными комплексами и качелями со световыми элементами. Пространства выполнены из натуральных материалов и способствуют развитию фантазии и познания мира. В арт-кварталах «Имена» также будет открыт комьюнити-центр - место для общения, занятий творчеством, спортом, учебы и проведения досуга, где соседи смогут вместе учиться, отдыхать и развиваться.
Аккредитованные банки: Сбербанк, Альфа-Банк , ВТБ, Банк Уралсиб, РОССИЯ, Абсолют Банк, Металлинвестбанк, РНКБ, ПСБ, Кубань Кредит, Банк ВБРР, Россельхозбанк.
Позвоните и узнайте условия покупки прямо сейчас!
03.03.2026
8 606 400 ₽
Продается 2-комн. квартира, площадью 56.45 м2 в монолитно-кирпичной новостройке в 8 мин. транспортом от м. Пролетарская. Возможен вариант покупки с использованием ипотечных средств, есть рассрочка, возможна покупка с использованием материнского капитала, есть военная ипотека.
Жилая площадь 22.9 м2, кухня 16.87 м2, черновая отделка.
Квартира располагается на 23 этаже 23-этажного дома в ЖК Имена.
Застройщик - ГК ССК, сдача дома - III квартал 2028 года, высота потолков 2.75 м.
Дом оборудован пассажирским лифтом, закрытая территория. Обеспечение безопасности: видеонаблюдение. Инфраструктура: детские площадки, спортивные площадки, места для отдыха, коммерческие объекты.
Жилой комплекс «Имена» - это не просто дома, это пространство для самой значимой главы вашей жизни. Здесь рождаются крепкие семьи, сбываются мечты и находят вдохновение для новых свершений. Расположенный на стыке современного мегаполиса и живописной природы, он открывает безграничные возможности для жизни по-настоящему комфортно и гармонично.
Просторные квартиры, продуманная инфраструктура и утопающий в зелени район создают идеальные условия для реализации ваших амбиций и создания уютного семейного очага.
При покупке трёхкомнатной квартиры в мастер-классном городе «Имена» вы получаете кладовое помещение - келлер площадью 3 м - в подарок. Это полезное дополнение сделает ваш быт комфортнее и организованнее. Келлер - это не просто место для хранения, а удобное пространство, которое помогает рационально использовать каждый метр вашей квартиры. С его помощью вы легко освободите жилое пространство от ненужных вещей, уберёте на хранение сезонный инвентарь, спортивное оборудование или старые книги, оставив в доме больше света, воздуха и уюта.
Жилой комплекс «Имена» расположился на правом берегу Невы, у подножия Невского лесопарка.
АКЦИЯ:
ЖК «Имена» предлагает выгодные условия покупки квартир по программе «Семейная ипотека» под 3,5% годовых. Такая ставка делает приобретение жилья более доступным, позволяя семьям сосредоточиться на создании уютного дома и будущего для детей. Жизнь в комплексе сочетает комфорт, безопасность и развитую социальную среду.
Для детей предусмотрены современные игровые зоны с концептуальными комплексами и качелями со световыми элементами. Пространства выполнены из натуральных материалов и способствуют развитию фантазии и познания мира. В арт-кварталах «Имена» также будет открыт комьюнити-центр - место для общения, занятий творчеством, спортом, учебы и проведения досуга, где соседи смогут вместе учиться, отдыхать и развиваться.
Аккредитованные банки: Сбербанк, Альфа-Банк , ВТБ, Банк Уралсиб, РОССИЯ, Абсолют Банк, Металлинвестбанк, РНКБ, ПСБ, Кубань Кредит, Банк ВБРР, Россельхозбанк.
Позвоните и узнайте условия покупки прямо сейчас!
03.03.2026
8 919 100 ₽
Продается 2-комн. квартира, площадью 56.45 м2 в монолитно-кирпичной новостройке в 8 мин. транспортом от м. Пролетарская. Возможен вариант покупки с использованием ипотечных средств, есть рассрочка, возможна покупка с использованием материнского капитала, есть военная ипотека.
Жилая площадь 22.9 м2, кухня 16.87 м2, черновая отделка.
Квартира располагается на 22 этаже 23-этажного дома в ЖК Имена.
Застройщик - ГК ССК, сдача дома - III квартал 2028 года, высота потолков 2.75 м.
Дом оборудован пассажирским лифтом, закрытая территория. Обеспечение безопасности: видеонаблюдение. Инфраструктура: детские площадки, спортивные площадки, места для отдыха, коммерческие объекты.
Жилой комплекс «Имена» - это не просто дома, это пространство для самой значимой главы вашей жизни. Здесь рождаются крепкие семьи, сбываются мечты и находят вдохновение для новых свершений. Расположенный на стыке современного мегаполиса и живописной природы, он открывает безграничные возможности для жизни по-настоящему комфортно и гармонично.
Просторные квартиры, продуманная инфраструктура и утопающий в зелени район создают идеальные условия для реализации ваших амбиций и создания уютного семейного очага.
При покупке трёхкомнатной квартиры в мастер-классном городе «Имена» вы получаете кладовое помещение - келлер площадью 3 м - в подарок. Это полезное дополнение сделает ваш быт комфортнее и организованнее. Келлер - это не просто место для хранения, а удобное пространство, которое помогает рационально использовать каждый метр вашей квартиры. С его помощью вы легко освободите жилое пространство от ненужных вещей, уберёте на хранение сезонный инвентарь, спортивное оборудование или старые книги, оставив в доме больше света, воздуха и уюта.
Жилой комплекс «Имена» расположился на правом берегу Невы, у подножия Невского лесопарка.
АКЦИЯ:
ЖК «Имена» предлагает выгодные условия покупки квартир по программе «Семейная ипотека» под 3,5% годовых. Такая ставка делает приобретение жилья более доступным, позволяя семьям сосредоточиться на создании уютного дома и будущего для детей. Жизнь в комплексе сочетает комфорт, безопасность и развитую социальную среду.
Для детей предусмотрены современные игровые зоны с концептуальными комплексами и качелями со световыми элементами. Пространства выполнены из натуральных материалов и способствуют развитию фантазии и познания мира. В арт-кварталах «Имена» также будет открыт комьюнити-центр - место для общения, занятий творчеством, спортом, учебы и проведения досуга, где соседи смогут вместе учиться, отдыхать и развиваться.
Аккредитованные банки: Сбербанк, Альфа-Банк , ВТБ, Банк Уралсиб, РОССИЯ, Абсолют Банк, Металлинвестбанк, РНКБ, ПСБ, Кубань Кредит, Банк ВБРР, Россельхозбанк.
Позвоните и узнайте условия покупки прямо сейчас!
03.03.2026
8 919 100 ₽
Продается 2-комн. квартира, площадью 56.45 м2 в монолитно-кирпичной новостройке в 8 мин. транспортом от м. Пролетарская. Возможен вариант покупки с использованием ипотечных средств, есть рассрочка, возможна покупка с использованием материнского капитала, есть военная ипотека.
Жилая площадь 22.9 м2, кухня 16.87 м2, черновая отделка.
Квартира располагается на 21 этаже 23-этажного дома в ЖК Имена.
Застройщик - ГК ССК, сдача дома - III квартал 2028 года, высота потолков 2.75 м.
Дом оборудован пассажирским лифтом, закрытая территория. Обеспечение безопасности: видеонаблюдение. Инфраструктура: детские площадки, спортивные площадки, места для отдыха, коммерческие объекты.
Жилой комплекс «Имена» - это не просто дома, это пространство для самой значимой главы вашей жизни. Здесь рождаются крепкие семьи, сбываются мечты и находят вдохновение для новых свершений. Расположенный на стыке современного мегаполиса и живописной природы, он открывает безграничные возможности для жизни по-настоящему комфортно и гармонично.
Просторные квартиры, продуманная инфраструктура и утопающий в зелени район создают идеальные условия для реализации ваших амбиций и создания уютного семейного очага.
При покупке трёхкомнатной квартиры в мастер-классном городе «Имена» вы получаете кладовое помещение - келлер площадью 3 м - в подарок. Это полезное дополнение сделает ваш быт комфортнее и организованнее. Келлер - это не просто место для хранения, а удобное пространство, которое помогает рационально использовать каждый метр вашей квартиры. С его помощью вы легко освободите жилое пространство от ненужных вещей, уберёте на хранение сезонный инвентарь, спортивное оборудование или старые книги, оставив в доме больше света, воздуха и уюта.
Жилой комплекс «Имена» расположился на правом берегу Невы, у подножия Невского лесопарка.
АКЦИЯ:
ЖК «Имена» предлагает выгодные условия покупки квартир по программе «Семейная ипотека» под 3,5% годовых. Такая ставка делает приобретение жилья более доступным, позволяя семьям сосредоточиться на создании уютного дома и будущего для детей. Жизнь в комплексе сочетает комфорт, безопасность и развитую социальную среду.
Для детей предусмотрены современные игровые зоны с концептуальными комплексами и качелями со световыми элементами. Пространства выполнены из натуральных материалов и способствуют развитию фантазии и познания мира. В арт-кварталах «Имена» также будет открыт комьюнити-центр - место для общения, занятий творчеством, спортом, учебы и проведения досуга, где соседи смогут вместе учиться, отдыхать и развиваться.
Аккредитованные банки: Сбербанк, Альфа-Банк , ВТБ, Банк Уралсиб, РОССИЯ, Абсолют Банк, Металлинвестбанк, РНКБ, ПСБ, Кубань Кредит, Банк ВБРР, Россельхозбанк.
Позвоните и узнайте условия покупки прямо сейчас!
03.03.2026
8 919 100 ₽
Продается 2-комн. квартира, площадью 53.78 м2 в монолитно-кирпичной новостройке в 8 мин. транспортом от м. Пролетарская. Возможен вариант покупки с использованием ипотечных средств, есть рассрочка, возможна покупка с использованием материнского капитала, есть военная ипотека.
Жилая площадь 24.23 м2, кухня 16.06 м2, черновая отделка.
Квартира располагается на 2 этаже 23-этажного дома в ЖК Имена.
Застройщик - ГК ССК, сдача дома - III квартал 2028 года, высота потолков 2.75 м.
Дом оборудован пассажирским лифтом, закрытая территория. Обеспечение безопасности: видеонаблюдение. Инфраструктура: детские площадки, спортивные площадки, места для отдыха, коммерческие объекты.
Жилой комплекс «Имена» - это не просто дома, это пространство для самой значимой главы вашей жизни. Здесь рождаются крепкие семьи, сбываются мечты и находят вдохновение для новых свершений. Расположенный на стыке современного мегаполиса и живописной природы, он открывает безграничные возможности для жизни по-настоящему комфортно и гармонично.
Просторные квартиры, продуманная инфраструктура и утопающий в зелени район создают идеальные условия для реализации ваших амбиций и создания уютного семейного очага.
При покупке трёхкомнатной квартиры в мастер-классном городе «Имена» вы получаете кладовое помещение - келлер площадью 3 м - в подарок. Это полезное дополнение сделает ваш быт комфортнее и организованнее. Келлер - это не просто место для хранения, а удобное пространство, которое помогает рационально использовать каждый метр вашей квартиры. С его помощью вы легко освободите жилое пространство от ненужных вещей, уберёте на хранение сезонный инвентарь, спортивное оборудование или старые книги, оставив в доме больше света, воздуха и уюта.
Жилой комплекс «Имена» расположился на правом берегу Невы, у подножия Невского лесопарка.
АКЦИЯ:
ЖК «Имена» предлагает выгодные условия покупки квартир по программе «Семейная ипотека» под 3,5% годовых. Такая ставка делает приобретение жилья более доступным, позволяя семьям сосредоточиться на создании уютного дома и будущего для детей. Жизнь в комплексе сочетает комфорт, безопасность и развитую социальную среду.
Для детей предусмотрены современные игровые зоны с концептуальными комплексами и качелями со световыми элементами. Пространства выполнены из натуральных материалов и способствуют развитию фантазии и познания мира. В арт-кварталах «Имена» также будет открыт комьюнити-центр - место для общения, занятий творчеством, спортом, учебы и проведения досуга, где соседи смогут вместе учиться, отдыхать и развиваться.
Аккредитованные банки: Сбербанк, Альфа-Банк , ВТБ, Банк Уралсиб, РОССИЯ, Абсолют Банк, Металлинвестбанк, РНКБ, ПСБ, Кубань Кредит, Банк ВБРР, Россельхозбанк.
Позвоните и узнайте условия покупки прямо сейчас!
03.03.2026
8 497 240 ₽
Продается 2-комн. квартира, площадью 56.45 м2 в монолитно-кирпичной новостройке в 8 мин. транспортом от м. Пролетарская. Возможен вариант покупки с использованием ипотечных средств, есть рассрочка, возможна покупка с использованием материнского капитала, есть военная ипотека.
Жилая площадь 22.9 м2, кухня 16.87 м2, черновая отделка.
Квартира располагается на 2 этаже 23-этажного дома в ЖК Имена.
Застройщик - ГК ССК, сдача дома - III квартал 2028 года, высота потолков 2.75 м.
Дом оборудован пассажирским лифтом, закрытая территория. Обеспечение безопасности: видеонаблюдение. Инфраструктура: детские площадки, спортивные площадки, места для отдыха, коммерческие объекты.
Жилой комплекс «Имена» - это не просто дома, это пространство для самой значимой главы вашей жизни. Здесь рождаются крепкие семьи, сбываются мечты и находят вдохновение для новых свершений. Расположенный на стыке современного мегаполиса и живописной природы, он открывает безграничные возможности для жизни по-настоящему комфортно и гармонично.
Просторные квартиры, продуманная инфраструктура и утопающий в зелени район создают идеальные условия для реализации ваших амбиций и создания уютного семейного очага.
При покупке трёхкомнатной квартиры в мастер-классном городе «Имена» вы получаете кладовое помещение - келлер площадью 3 м - в подарок. Это полезное дополнение сделает ваш быт комфортнее и организованнее. Келлер - это не просто место для хранения, а удобное пространство, которое помогает рационально использовать каждый метр вашей квартиры. С его помощью вы легко освободите жилое пространство от ненужных вещей, уберёте на хранение сезонный инвентарь, спортивное оборудование или старые книги, оставив в доме больше света, воздуха и уюта.
Жилой комплекс «Имена» расположился на правом берегу Невы, у подножия Невского лесопарка.
АКЦИЯ:
ЖК «Имена» предлагает выгодные условия покупки квартир по программе «Семейная ипотека» под 3,5% годовых. Такая ставка делает приобретение жилья более доступным, позволяя семьям сосредоточиться на создании уютного дома и будущего для детей. Жизнь в комплексе сочетает комфорт, безопасность и развитую социальную среду.
Для детей предусмотрены современные игровые зоны с концептуальными комплексами и качелями со световыми элементами. Пространства выполнены из натуральных материалов и способствуют развитию фантазии и познания мира. В арт-кварталах «Имена» также будет открыт комьюнити-центр - место для общения, занятий творчеством, спортом, учебы и проведения досуга, где соседи смогут вместе учиться, отдыхать и развиваться.
Аккредитованные банки: Сбербанк, Альфа-Банк , ВТБ, Банк Уралсиб, РОССИЯ, Абсолют Банк, Металлинвестбанк, РНКБ, ПСБ, Кубань Кредит, Банк ВБРР, Россельхозбанк.
Позвоните и узнайте условия покупки прямо сейчас!
03.03.2026
8 919 100 ₽
Продается 2-комн. квартира, площадью 56.45 м2 в монолитно-кирпичной новостройке в 8 мин. транспортом от м. Пролетарская. Возможен вариант покупки с использованием ипотечных средств, есть рассрочка, возможна покупка с использованием материнского капитала, есть военная ипотека.
Жилая площадь 22.9 м2, кухня 16.87 м2, черновая отделка.
Квартира располагается на 19 этаже 23-этажного дома в ЖК Имена.
Застройщик - ГК ССК, сдача дома - III квартал 2028 года, высота потолков 2.75 м.
Дом оборудован пассажирским лифтом, закрытая территория. Обеспечение безопасности: видеонаблюдение. Инфраструктура: детские площадки, спортивные площадки, места для отдыха, коммерческие объекты.
Жилой комплекс «Имена» - это не просто дома, это пространство для самой значимой главы вашей жизни. Здесь рождаются крепкие семьи, сбываются мечты и находят вдохновение для новых свершений. Расположенный на стыке современного мегаполиса и живописной природы, он открывает безграничные возможности для жизни по-настоящему комфортно и гармонично.
Просторные квартиры, продуманная инфраструктура и утопающий в зелени район создают идеальные условия для реализации ваших амбиций и создания уютного семейного очага.
При покупке трёхкомнатной квартиры в мастер-классном городе «Имена» вы получаете кладовое помещение - келлер площадью 3 м - в подарок. Это полезное дополнение сделает ваш быт комфортнее и организованнее. Келлер - это не просто место для хранения, а удобное пространство, которое помогает рационально использовать каждый метр вашей квартиры. С его помощью вы легко освободите жилое пространство от ненужных вещей, уберёте на хранение сезонный инвентарь, спортивное оборудование или старые книги, оставив в доме больше света, воздуха и уюта.
Жилой комплекс «Имена» расположился на правом берегу Невы, у подножия Невского лесопарка.
АКЦИЯ:
ЖК «Имена» предлагает выгодные условия покупки квартир по программе «Семейная ипотека» под 3,5% годовых. Такая ставка делает приобретение жилья более доступным, позволяя семьям сосредоточиться на создании уютного дома и будущего для детей. Жизнь в комплексе сочетает комфорт, безопасность и развитую социальную среду.
Для детей предусмотрены современные игровые зоны с концептуальными комплексами и качелями со световыми элементами. Пространства выполнены из натуральных материалов и способствуют развитию фантазии и познания мира. В арт-кварталах «Имена» также будет открыт комьюнити-центр - место для общения, занятий творчеством, спортом, учебы и проведения досуга, где соседи смогут вместе учиться, отдыхать и развиваться.
Аккредитованные банки: Сбербанк, Альфа-Банк , ВТБ, Банк Уралсиб, РОССИЯ, Абсолют Банк, Металлинвестбанк, РНКБ, ПСБ, Кубань Кредит, Банк ВБРР, Россельхозбанк.
Позвоните и узнайте условия покупки прямо сейчас!
03.03.2026
8 919 100 ₽
Продается 2-комн. квартира, площадью 56.45 м2 в монолитно-кирпичной новостройке в 8 мин. транспортом от м. Пролетарская. Возможен вариант покупки с использованием ипотечных средств, есть рассрочка, возможна покупка с использованием материнского капитала, есть военная ипотека.
Жилая площадь 22.9 м2, кухня 16.87 м2, черновая отделка.
Квартира располагается на 17 этаже 23-этажного дома в ЖК Имена.
Застройщик - ГК ССК, сдача дома - III квартал 2028 года, высота потолков 2.75 м.
Дом оборудован пассажирским лифтом, закрытая территория. Обеспечение безопасности: видеонаблюдение. Инфраструктура: детские площадки, спортивные площадки, места для отдыха, коммерческие объекты.
Жилой комплекс «Имена» - это не просто дома, это пространство для самой значимой главы вашей жизни. Здесь рождаются крепкие семьи, сбываются мечты и находят вдохновение для новых свершений. Расположенный на стыке современного мегаполиса и живописной природы, он открывает безграничные возможности для жизни по-настоящему комфортно и гармонично.
Просторные квартиры, продуманная инфраструктура и утопающий в зелени район создают идеальные условия для реализации ваших амбиций и создания уютного семейного очага.
При покупке трёхкомнатной квартиры в мастер-классном городе «Имена» вы получаете кладовое помещение - келлер площадью 3 м - в подарок. Это полезное дополнение сделает ваш быт комфортнее и организованнее. Келлер - это не просто место для хранения, а удобное пространство, которое помогает рационально использовать каждый метр вашей квартиры. С его помощью вы легко освободите жилое пространство от ненужных вещей, уберёте на хранение сезонный инвентарь, спортивное оборудование или старые книги, оставив в доме больше света, воздуха и уюта.
Жилой комплекс «Имена» расположился на правом берегу Невы, у подножия Невского лесопарка.
АКЦИЯ:
ЖК «Имена» предлагает выгодные условия покупки квартир по программе «Семейная ипотека» под 3,5% годовых. Такая ставка делает приобретение жилья более доступным, позволяя семьям сосредоточиться на создании уютного дома и будущего для детей. Жизнь в комплексе сочетает комфорт, безопасность и развитую социальную среду.
Для детей предусмотрены современные игровые зоны с концептуальными комплексами и качелями со световыми элементами. Пространства выполнены из натуральных материалов и способствуют развитию фантазии и познания мира. В арт-кварталах «Имена» также будет открыт комьюнити-центр - место для общения, занятий творчеством, спортом, учебы и проведения досуга, где соседи смогут вместе учиться, отдыхать и развиваться.
Аккредитованные банки: Сбербанк, Альфа-Банк , ВТБ, Банк Уралсиб, РОССИЯ, Абсолют Банк, Металлинвестбанк, РНКБ, ПСБ, Кубань Кредит, Банк ВБРР, Россельхозбанк.
Позвоните и узнайте условия покупки прямо сейчас!
03.03.2026
8 919 100 ₽
Продается 1-комн. квартира, площадью 39.32 м2 в малоэтажной. Возможен вариант покупки с использованием ипотечных средств, возможна покупка с использованием материнского капитала, есть военная ипотека.
Жилая площадь 21.68 м2, кухня 10.72 м2, комнаты изолированные.
Квартира располагается на 4 этаже 4-этажного дома в ЖК Верево Сити.
Застройщик - Строй Бизнес Групп специализированный застройщик, сдача дома - II квартал 2025 года, закрытая территория.
Парковка автомобилей - наземная, парковка охраняется. Обеспечение безопасности: видеонаблюдение. Инфраструктура: школа, детский сад, поликлиника, детские площадки, спортивные площадки, места для отдыха, супермаркет.
Для бронирования конкретной квартиры звоните по номеру телефона в объявлении.
ЖК Верево Сити - это современный городской жилой квартал малоэтажной застройки.
В 10-ти четырехэтажных корпусах сможет поселиться 1171 семья. Дома располагаются блоками, образуя уютные закрытые и безопасные дворы с большим количеством зеленых насаждений и с зонами отдыха для взрослых и детей.
В ЖК Верево Сити самое низкое ценовое предложение в Ленинградской области и пригородах Санкт-Петербурга, что позволит вам приобрести жилье большей площади, нежели в других жилых комплексах.
Отделка - черновая.
Комфортная среда для жизни:
- малоэтажные красивые здания современной архитектуры, с большой площадью остекления
- обособленная территория
- продуманные планировки, как привычные одно- и двухкомнатные квартиры, так и европланировки
- небольшая плотность населения: комплекс располагается на 6,5 га земли
- полная внутренняя инфраструктура, которая позволит жить с комфортом
Позвоните и узнайте условия покупки прямо сейчас!
Аккредитованные банки: ПАО Сбербанк
Позвоните и узнайте условия покупки прямо сейчас!
05.03.2026
4 682 894 ₽
Продается 2-комн. квартира, площадью 42.6 кв.м.
Жилая площадь 19.3 кв. м, кухня 6.39 кв. м, ремонта нет.
Квартира располагается на 4 этаже 4-этажного монолитного дома.
20.01.2026
3 580 800 ₽
Продается 2-комн. квартира, площадью 50.2 м2 в Пушкинском районе Санкт-Петербурга.
Жилая площадь 31.2 кв. м, кухня 8.4 кв. м, ремонта нет.
Квартира располагается на 3 этаже 9-этажного кирпичного дома.
20.01.2026
6 169 400 ₽
Продается 1-комн. квартира, площадью 37.95 м2 в малоэтажной. Возможен вариант покупки с использованием ипотечных средств, возможна покупка с использованием материнского капитала, есть военная ипотека.
Жилая площадь 14.43 м2, кухня 15 м2, комнаты изолированные.
Квартира располагается на 1 этаже 4-этажного дома в ЖК Верево Сити.
Застройщик - Строй Бизнес Групп специализированный застройщик, сдача дома - II квартал 2025 года, закрытая территория.
Парковка автомобилей - наземная, парковка охраняется. Обеспечение безопасности: видеонаблюдение. Инфраструктура: школа, детский сад, поликлиника, детские площадки, спортивные площадки, места для отдыха, супермаркет.
Для бронирования конкретной квартиры звоните по номеру телефона в объявлении.
ЖК Верево Сити - это современный городской жилой квартал малоэтажной застройки.
В 10-ти четырехэтажных корпусах сможет поселиться 1171 семья. Дома располагаются блоками, образуя уютные закрытые и безопасные дворы с большим количеством зеленых насаждений и с зонами отдыха для взрослых и детей.
В ЖК Верево Сити самое низкое ценовое предложение в Ленинградской области и пригородах Санкт-Петербурга, что позволит вам приобрести жилье большей площади, нежели в других жилых комплексах.
Отделка - черновая.
Комфортная среда для жизни:
- малоэтажные красивые здания современной архитектуры, с большой площадью остекления
- обособленная территория
- продуманные планировки, как привычные одно- и двухкомнатные квартиры, так и европланировки
- небольшая плотность населения: комплекс располагается на 6,5 га земли
- полная внутренняя инфраструктура, которая позволит жить с комфортом
Позвоните и узнайте условия покупки прямо сейчас!
Аккредитованные банки: ПАО Сбербанк
Позвоните и узнайте условия покупки прямо сейчас!
05.03.2026
4 519 731 ₽
Продается 1-комн. квартира, площадью 35.51 кв.м.
Жилая площадь 13.71 м2, кухня 13.83 кв. м, ремонта нет, комнаты изолированные.
Квартира располагается на 10 этаже 11-этажного монолитного дома.
20.01.2026
4 559 400 ₽
Продается 1-комн. квартира, площадью 35.3 кв.м.
Жилая площадь 16.25 кв. м, кухня 10.36 кв. м, ремонта нет, комнаты изолированные.
Квартира располагается на 10 этаже 11-этажного монолитного дома.
20.01.2026
4 634 000 ₽
Продается 1-комн. квартира, площадью 59.2 кв.м.
Жилая площадь 21.7 кв. м, кухня 21.38 кв. м, ремонта нет, комнаты изолированные.
Квартира располагается на 10 этаже 11-этажного монолитного дома.
20.01.2026
6 616 200 ₽
Продается 1-комн. квартира, площадью 59.2 кв.м.
Жилая площадь 21.7 м2, кухня 21.38 кв. м, ремонта нет, комнаты изолированные.
Квартира располагается на 11 этаже 11-этажного монолитного дома.
20.01.2026
6 616 200 ₽
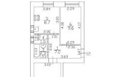
Продается 2-комн. квартира, площадью 46.4 м2 в Пушкинском районе Санкт-Петербурга.
Жилая площадь 26.9 кв. м, кухня 8.7 кв. м, ремонта нет.
Квартира располагается на 3 этаже 9-этажного кирпичного дома.
20.01.2026
6 030 600 ₽
Продается 1-комн. квартира, площадью 36.9 кв. м м. Площадь Мужества в Калининском районе Санкт-Петербурга.
Жилая площадь 17.9 кв. м, кухня 10 кв. м, ремонта нет, комнаты изолированные.
Квартира располагается на 2 этаже 14-этажного монолитного дома.
20.01.2026
10 008 000 ₽
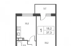
Продается 1-комн. квартира, площадью 37.3 кв. м м. Площадь Мужества в Калининском районе Санкт-Петербурга.
Жилая площадь 18.2 кв. м, кухня 10.2 кв. м, ремонта нет, комнаты изолированные.
Квартира располагается на 14 этаже 14-этажного монолитного дома.
20.01.2026
9 929 500 ₽
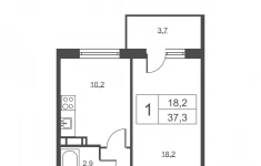
Продается 1-комн. квартира, площадью 37.3 м2 м. Площадь Мужества в Калининском районе Санкт-Петербурга.
Жилая площадь 17.5 кв. м, кухня 10.2 кв. м, ремонта нет, комнаты изолированные.
Квартира располагается на 2 этаже 14-этажного монолитного дома.
20.01.2026
9 743 000 ₽
Продается 1-комн. квартира, площадью 32 м2 в Пушкинском районе Санкт-Петербурга.
Жилая площадь 15.4 м2, кухня 11 кв. м, ремонта нет, комнаты изолированные.
Квартира располагается на 5 этаже 9-этажного кирпичного дома.
20.01.2026
4 205 000 ₽




















