Сдам коммерческую недвижимость 36.7 м2

Размещено сегодня в 02:45 0
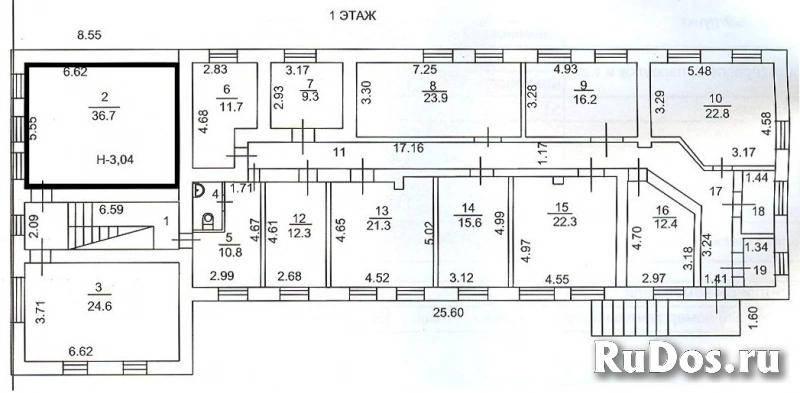
  • Параметры объявления
  • Общая площадь (м2): 36.7
  • Описание
ДОРЕНБЕРГ ОБНОВЛЯЕТСЯ!
Присоединяйтесь к новому Выставочному центру товаров и услуг для дизайна интерьера, ремонта и строительства!
Сдается Идеальное место для торгового офиса, шоу-рума, магазина, выставки товаров на Арт-заводе Доренберг
Характеристики:
- Полезная площадью помещения 36,7 кв.м
- Высокие потолки с возможностью установки стеллажей для складского хранения
- Заинтересованные соседи-единомышленники
- Офис в стиле "лофт"
Неочевидные преимущества:
Посетители: 23.000 - 29.000 человек (в месяц); Средний дневной трафик: 900 человек
Большинство посетителей - покупатели смежных товаров (магазины Русклимат, ДНС, Custom kitchens, AElight, ТехАспект, WOODWORKING, ТурунгаСиб, Confirbox)
Ежедневно на улице Баррикад проезжает более 16,5 тысяч автомобилей
Вам будут доступны рекламные возможности на территории Арт-завода (баннеры, аудиореклама, листовки, промо-акции, коллаборации с другими резидентами)
Управляющая компания на Арт-заводе Доренберг станет вашим партнером, мы заинтересованы в долгосрочном перспективном сотрудничестве и выстраиваем честные доверительные отношения
Очевидные преимущества:
Доступ 24/7
Частная охраняемая территория
Активное строительство жилых домой поблизости
СОБСТВЕННИК, БЕЗ КОМИССИИ
В условиях глобальной застройки района — перспективное расположение
Также у нас на территории Арт-Завода «Доренберг» есть доступные помещения с другой площадью, звоните, расскажем подробнее
Немного о нас:
Арт-завод «Доренберг» — место для тех, кто горит идеями и желанием развивать свои проекты в атмосфере сотрудничества и взаимной поддержки
Расположен в 5-х минутах от центра города (скв.Кирова)
С возможностью работать и отдыхать (бары, кофейни) на территории
У нас уютная дружественная атмосфера
Есть свой чат резидентов для общения и коллабораций
Мы с радостью разместим вашу компанию на нашем сайте и в социальных сетях
Звоните! С радостью ответим на любые вопросы.
Оперативно организуем просмотр
Будем рады видеть вас своими резидентами!
0.2642