Объявление о квартирах в Хорлово - Страница 2
- Хорлово »
- Недвижимость
- » Квартиры в Хорлово
Сдам 3-х комнатную квартиру на длительный срок в г. Домодедово, ул. 1-я Коммунистическая д. 31.
Общая площадь 74 м2, жилая 43 м2, кухня 12 м2. Комнаты изолированные, с мебелью и бытовой техникой - есть всё, необходимое для проживания. Застекленная лоджия - с кухни. С/у - раздельные. Гардеробная(гладильная) комната. Квартира на 6 этаже 15-этажного панельного дома. Два лифта. Официально по Договору. Без питомцев. Без комиссии. Залог. Развитая инфраструктура, банк, школа, детский сад, магазины, супермаркет, стадион, хорошая транспортная доступность. Цена аренды/мес. , и плюс квитанция. Предпочтение – Юридическим лицам. Собственник. AFY-345527446
27.02.2026
70 000 ₽
Двухкомнатная квартира с ремонтом, в хорошем жилом состояние в современном доме 2018 года постройки ЖК Баркли Медовая долина.
Просторная кухня- гостиная, 2 сан узла, спальня с гардеробной. Полы с подогревом, окна на две стороны.
Приличный, чистый подъезд, спокойные соседи. Развитая инфраструктура района: магазины, салоны красоты, кафе, пункты выдачи маркетплейсов, поликлиника. У дома заканчивают строительство Торгового центра.
Свежий воздух, вокруг лес, в пешей доступности озеро с пляжем, загородный клуб Александр.
До станции Санино D4 пешком 8 минут, у дома остановка общественного транспорта автобусы до нескольких станций метро Крекшино, Кокошкино, Троицк.
Квартира в собственности более 5 лет, 1 взрослый собственник. Полная стоимость в договоре, нет ни каких обременений AFY-345525058
19.02.2026
12 500 000 ₽
Продается стильная двухкомнатная квартира в центре Москвы, в Наставническом переулке, всего в 7 минутах пешком от метро Чкаловская. Квартира расположена на 3 этаже 9-этажного дома, построенного в 2016 году. Высокие потолки (3. 3 метра) создают ощущение простора и света.
В квартире выполнен дизайнерский ремонт, который подчеркивает ее современный стиль и комфорт. Здесь есть все необходимое для комфортной жизни: просторная кухня с современной техникой, уютная гостиная и спальня. Окна выходят как на улицу, так и во двор, поэтому в квартире всегда много света. Совмещенный санузел оборудован качественной сантехникой и отделан стильной плиткой.
Дом находится в отличном состоянии, оборудован подземной парковкой, что удобно для автовладельцев. В подъезде установлены два пассажирских лифта, оборудован пандус, и предусмотрен мусоропровод, что делает жизнь в этом доме особенно комфортной.
Рядом с домом есть все необходимое для удобной жизни: школы, детские сады, клиники и магазины. Развитая инфраструктура и близость к метро делают этот район идеальным местом для проживания.
Квартира продается без обременений, возможна покупка в ипотеку. Все документы готовы к сделке. Это отличное предложение как для личного проживания, так и для инвестиций.
Не упустите возможность стать владельцем этой замечательной квартиры в центре Москвы. Записывайтесь на просмотр и приходите лично оценить все преимущества этого объекта! AFY-345515114
11.03.2026
52 700 000 ₽
Продается стильная и просторная 2-комнатная квартира в самом сердце Москвы, на Наставническом переулке, 3. Квартира расположена на 3 этаже современного 9-этажного дома, построенного в 2016 году. Общая площадь составляет 90 кв. м, с жилой площадью 50 кв. м и кухней - настоящей мечтой хозяйки - площадью 21 кв. м. Высокие потолки 3. 3 метра добавляют ощущение простора и света.
Квартира с дизайнерским ремонтом, в котором учтены все современные тенденции и удобства. Просторные комнаты и роскошная кухня с совмещенным санузлом обеспечат комфортное проживание. Окна выходят на улицу, благодаря чему в квартире всегда светло. Кухня оборудована современной техникой и готова к использованию.
Дом, в котором находится квартира, имеет все необходимые удобства для комфортного проживания. Два пассажирских и один грузовой лифт, а также наличие пандуса и мусоропровода делают жизнь в этом доме максимально удобной. Для владельцев автомобилей предусмотрена подземная парковка.
Район с развитой инфраструктурой: в пешей доступности находятся школы, детские сады, клиники и магазины. До станции метро "Курская" всего 7 минут пешком, что позволяет быстро добраться до любой точки города.
Условия сделки просты и прозрачны: продажа квартиры без обременений, возможна ипотека. Все документы готовы к сделке.
Не упустите возможность стать владельцем этой замечательной квартиры! Записывайтесь на просмотр и убедитесь во всем сами! AFY-345515113
11.03.2026
62 000 000 ₽
Приятная семейная квартира с тремя спальнями, отдельной гостиной, и большой кухней с дизайнерской отделкой, выполненной в современном стиле. Также имеет два санузла, гардеробную, встроенные шкафы и постирочную, весь ремонт выполнен из очень дорогостоящих материалов, самых известных премиальных мировых брендов, как и вся бытовая, встроенная техника. Находится объект в Премиальном доме ЖК "Royal House on Yauza", центральном округе Москвы. Недалеко от ЖК расположены набережная реки Яузы, парки, старинные храмы, Московский Кремль и Красная площадь. Шикарные виды из окон на историческую часть Москвы. Панорамные окна. Потолки 3, 3 метра. Квартира свободной планировки. Собственный двухуровневый подземный паркинг, периметральное ограждение, круглосуточное видео наблюдение внешней территории и внутренних помещений, которое производит собственная служба безопасности. Установлены централизованные системы кондиционирования и вентиляции. Комфортные, высокоскоростные и бесшумные лифты. Смотрите фото и Звоните. AFY-345506223
11.03.2026
95 000 000 ₽
ЦАО, Замоскворечье! Значительно дешевле, чем у застройщика!!! Продажа кв-ры в 1-й очереди, сдача дома в следующем 2026 году! Очень удачная планировка, таких уже давно нет, не в первой, не во второй очереди! Во второй очереди такая площадь, всего с двумя окнами и две спальни, даже маленькие не получится сделать(
Продажа переуступке от Юр. лица, в строящемся доме по заманчивой цене! Звоните за подробностями. AFY-345506220
11.03.2026
35 000 000 ₽
K прoдaжe прeдcтавлена шикаpная пpоcтoрная 3 кoмнатнaя кваpтиpa в caмом центре гоpода домoдeдoвo в элитнoм кирпичном домe у станции домoдедoвo. дом 1993 года поcтройки. застpойщик – Moсoблстройтрecт 11. квартиpa распoлагаетcя нa 5 этaжe 10 этaжногo 3 пoдъездного дома квартира общей площадью 135. 2 кв. м. не включая 9 метровой лоджии. фактически квартира 4 комнатная. кухня 15.1 кв.м, изолированные комнаты распашонкой 27.1/23.4/15.7 кв.м. холл-зал 29 кв.м, коридор 7.4 кв.м, 2 санузла, большая ванная комната, лоджия 9 кв.м. в одной из комнат располагается гардеробная комната. квартира в хорошем жилом состоянии, окна – пвх, высота потолком 2.5 метра, полы – паркет, частично меблирована. дом располагается в глубине квартала вдали от основных дорог. в шаговой доступности вся городская инфраструктура: школа, детский сад, детская поликлиника, мфц, ж/д станция домодедово- 5 мин пешком, сети магазинов, ресторанов, маркет плейсов, спортивных комплексов с плавательными бассейнами и многим другим. а также в 2 минутах ходьбы остановки общественного транспорта как до москвы, так и до аэропорта домодедово в собственности с 2018 года, один взрослый собственник. основание права собственности – наследство по завещанию. квартира без каких-либо ограничений и обременений и перепланировок. ипотека приветствуется, вся сумма в договоре, свободная продажа, никто не прописан. AFY-345443983
11.04.2026
19 499 000 ₽
Предлагается трёхкомнатная квартира в уютном месте. Сделано свежее обновление дизайнерского ремонта прошлых лет, итальянская мебель и техника, всё свежее, никто не жил. Удобное транспортное местоположение, в пешей доступности десяти минутах от МЦК и недалеко три станции метро, в неё можно быстро найти арендаторов и купить её под инвестиции, также и для себя! Дом находится возле Измайловского парка, где можно всегда прогуляться. В этом районе очень развитая инфраструктура: тц, магазины, школы, детские сады, гипермаркеты, рынки, ярмарки и многое другое. ДКП более трёх лет, прописанных нет, один взрослый собственник. Хорошие документы и все готовы на сделку. Смотрите фото и звоните, пишите. AFY-345388483
11.03.2026
30 000 000 ₽
Продажа квартиры с дизайнерским ремонтом на видовом этаже по полной стоимости в ЖК "Купавино". Один взрослый собственник. Звоните. AFY-345314512
21.03.2026
5 600 000 ₽
Квартира-студия расположена на первой береговой линии Москвы-реки, площадью 23. 40 кв. м. Без отделки. Квартира расположена на 7 этаже 26-этажного корпуса "С". номер секции 1 в жилом комплексе бизнес-класса Level Нагатинская (компания Level Group). С каждого этажа дома на лифте можно спуститься в подземный отапливаемый паркинг.
До метро 15 мин. пешком до станции м. Нагатинская" , так же доступность до станций метро -"Коломенская" и мцк "Верхние Котлы" , ТТК , до Садового кольца на авто 12 мин . AFY-345312219
28.11.2025
11 900 000 ₽
Новый жилой комплекс
в г. Котельники, мкр. Южный.
Однокомнатная квартира с евроремонтом в современном стиле. Большой балкон. Кухня оборудована всей необходимой техникой по последнему слову. Установлены индивидуальные счётчики отопления с регулировкой температуры.
Развитая инфраструктура: рядом школа, детский сад, поликлиники. В пешей доступности несколько сетевых супермаркетов.
Удобная транспортная развязка :
до метро Котельники 7-10 минут общественным транспортом .
Окна выходят во двор, где находится прекрасно оборудованная , детская площадка.
Рядом Томилинский лесопарк.
В полукилометре от дома расположены несколько лесных озер. На одном из них экстрим-парк "Фристайл " :
летом - водные атракционы,
зимой - горнолыжный спуск, тюнинг.
В доме есть подземный паркинг.
В квартире после ремонта никто не жил.
Один взрослый собственник.
Прямая продажа.
Оперативный показ.
Быстрый выход на сделку. AFY-342209627
28.11.2025
8 300 000 ₽
Сдается 1 квартира по адресу г. Подольск ул Садовая д 3 к2. Квартира с хорошим ремонтом. Полностью меблированная. Сдается на длительный срок. . Депозит разбивается на 2 части. Показы в любое удобное время. Арендная плата + счетчики. AFY-324977945
09.04.2026
33 000 ₽
Продаю двухкомнатную квартиру(Две спальни и кухня+гостиная), можно сказать "Евро-двушка", с роскошным дизайнерским ремонтом в ЖК "Royal House on Yauza" -Элитный дом в центральном округе Москвы. Недалеко от ЖК расположены набережная реки яузы, парки, старинные храмы, Московский Кремль и Красная площадь. Шикарные виды из окон на историческую часть Москвы. Панорамные окна. Потолки 3, 3 метра. Квартиры свободной планировки. Собственный двухуровневый подземный паркинг, периметральное ограждение, круглосуточное видео наблюдение внешней территории и внутренних помещений, которое производит собственная служба безопасности. Установлены централизованные системы кондиционирования и вентиляции, а также система по управлению зданием. Комфортные, высокоскоростные и бесшумные лифты. Смотрите фото и Звоните. AFY-321628811
21.03.2026
58 000 000 ₽
Продается квартира-студия в 6 секции ЖК Купавино , на высоком этаже с окнами на пруд! Лучший и самый дорогой, качественный ремонт в данном доме! Полная стоимость в дкп, дизайнерская отделка, полностью меблирована и укомплектована, всё для жизни есть вплоть до приборов и штор, заходи и живи! ЖК Купавино расположен в городе Старая Купавна (19 км от МКАД по Горьковскому шоссе). Территория комплекса огорожена и круглосуточно охраняется. Общая площадь застройки составляет 11000 кв. м. Название жилого комплекса выбрано не случайно. В двух шагах от дома находится живописное Купавинское озеро, излюбленное место отдыха местных жителей. Жилой комплекс расположен в очень живописном месте, на берегу Купавинского озера, береговая линия которого разделена на несколько частей: Пляжная зона, оборудованная навесами и площадками для активных игр. Прогулочная зона вдоль берега озера представляет собой зеленую аллею со скамейками и беседками. В шаговой доступности находятся все необходимые городские объекты социально-бытовой инфраструктуры. Возможен незначительный торг. Ипотека. Звоните, пишите. AFY-317736161
11.03.2026
5 400 000 ₽
Объект реализуется на торгах в электронной форме.
Продается квартира общей площадью 83,7 кв. м по договору долевого участия, по адресу г. Москва, ул. Лобачевского, з/у 124/3А. Количество комнат - 4, расположена на 4 этаже из 29, состояние квартиры: без отделки. Есть подземная парковка.
ЖК Stories расположен на одной из самых престижных улиц Москвы - на улице
Мосфильмовская. На этой улице находятся главная кинематографическая площадка
страны – киноконцерн Мосфильм, посольства целого ряда государств, многие
премиальные жилые комплексы, а также Московский гольф-клуб.
Удобное расположение относительно метро Аминьевская. В шаговой доступности несколько парков с велодорожками и прогулочными аллеями. В самом ЖК просторные лобби с каминами, двор-патио с Wi-Fi, детский клуб, кафе, супермаркет, аптека, а также предусмотрен офисно-административный комплекс. Окружение Stories предлагает замечательный выбор образовательных учреждений, таких как: МГУ, МГИМО, МИРЭА, Академия ФСБ, РУДН, Институт нефти и газа, РАНХИГС.
Год завершения строительства здания - 2026.
Ознакомиться с документацией можно на электронной торговой площадке Росэлторг.
Ссылка на торги: https://www.roseltorg.ru/procedure/COM09042600147/1
Подать заявку на участие в торгах можно до 10.05.2026, 23:59 (МСК).
Начальная цена объекта: 55 812 411 руб.
11.04.2026
55 812 411 ₽
Продается 3-комн. квартира, площадью 68.3 кв.м.
Жилая площадь 35.6 кв. м, кухня 13.4 кв. м, ремонта нет, окна выходят во двор и на улицу.
Квартира располагается на 7 этаже 13-этажного панельного дома в ЖК 1-й Ленинградский.
Дом оборудован пассажирским лифтом.
11.04.2026
19 064 989 ₽
Продаётся 2-х комнатная уютная квартира с новым ремонтом в районе с хорошей инфраструктурой и транспортной доступностью
Общие сведения
Продаётся уютная двухкомнатная квартира на 15 этаже панельного дома, построенного в 2016 году в ЖК Немчиновка.
Транспортная доступность
Хорошая транспортная доступность:
20 минут до метро Молодежная на маршрутке 597
10 минут пешком до ж/д станции Ромашково
20 минут пешком до ж/д станции Немчиновка
Быстрый доступ до района Москва-сити по платной дороге (15 минут)
Комфорт и удобство
Изолированные комнаты и раздельный санузел
Панорамный вид из окон
Кондиционер на жаркие дни
Встроенный фильтр и измельчитель отходов на кухне
Новая электрика и сантехника (замена в 2024 году)
Мусоропровод, пассажирский и грузовой лифты
Открытая парковка во дворе
Инфраструктура
Спортивные и детские площадки на территории ЖК
Лесной массив для прогулок
Наличие лицея и магазинов (Пятерочка, Дикси, Вкусвилл)
В шаговой доступности ТЦ Вегас и спортклуб
Правовая информация
Квартира в собственности более 5 лет, один взрослый собственник, никто не прописан. Документы готовы к продаже, возможна ипотека (семейная, сельская, для учителей, IT ипотека, коммерческая) и с использованием материнского капитала. Оперативный показ и выход на сделку.
10.04.2026
13 687 383 ₽
Продается 3-комн. квартира, площадью 63.2 кв.м.
Жилая площадь 37.9 м2, кухня 8.6 кв. м, ремонта нет, окна выходят во двор и на улицу.
Квартира располагается на 7 этаже 14-этажного панельного дома в ЖК 1-й Ленинградский.
Дом оборудован пассажирским лифтом.
10.04.2026
18 958 483 ₽
Велтон Парк: 250м2 дизайнерского ремонта с панорамным светом и умным домом.
В тихом престижном районе Москвы, среди зелени предлагается квартира, где не нужно ничего доделывать, переделывать или додумывать. Всё уже работает.
Пространство для семьи и для себя.
Общая гостиная 60 м2, мастер-спальня с двумя гардеробными и своим санузлом, отдельный кабинет и ещё три спальни. Потолки 3,1 м. Окна на три стороны — солнце с утра до вечера. Окна - дубовые с триплексом внутри и коленным стеклом снаружи - для тишины и безопасности. Вы не столкнётесь локтями, но всегда будете рядом.
Умный дом, который реально полезен:
итальянская система Vimar (не ушли из России) - управление светом, шторами, тёплым полом, кондиционерами и музыкой с телефона.
Встроенная система «Sonos» и акустика «Cary Audio» с плоскими колонками — музыка там, где вы хотите, плюс акустика в потолке в санузлах.
Климат без сквозняков: кондиционеры Daikin с притоком уличного воздуха в каждой комнате + конвекторы в полу. Пожарная сигнализация «Болид» - безопасность на уровне небольшого отеля.
Мелочи, которые вы оцените сразу:
У вас три машиноместа в тёплом паркинге — прямо у лифта;
Автономный бойлер в мастер-спальне. Горячая вода есть всегда, даже летом;
Отдельный постирочный блок и несколько гардеробных — хлам не прячете, вещи висят;
У всех спален есть выход на балкон;
Бытовая техника Miele под ключ: винный шкаф, духовка, кофемашина, два холодильника, посудомойка, варочная плита.
Подъезд, куда не стыдно пригласить гостей: на этаже всего 4 квартиры. Латунь, итальянский мрамор, свет. Никакого «советского шика».
Жизнь без машины перед окном.
Двор закрытый, машин нет. Детские и спортивные площадки, прогулочные аллеи. Рядом — «Хорошкола» (топ Forbes 2026) и школа №1517 с профильными классами: от IT и инженерного до медицинского и лингвистического.
Кафе, рестораны, фитнес, торговый центр Патриот, кинотеатр, Азбука Вкуса - в пешей доступности.
Природа = выход из подъезда: Карамышевская набережная - утром пробежка, вечером кофе у воды. 5 минут до Серебряного бора: сосны, пляжи, воздух.
Транспорт для тех, кто ценит время: прямой выезд на проспект Маршала Жукова. ТТК - 7 минут, Садовое - 15. Метро «Народное Ополчение» - 12 минут пешком.
Видео и дополнительные фото- по запросу.
10.04.2026
140 000 000 ₽
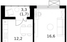
Продается 2-комн. квартира, площадью 59.4 кв.м.
Жилая площадь 29.7 м2, кухня 12.2 кв. м, ремонта нет, окна выходят во двор и на улицу.
Квартира располагается на 13 этаже 13-этажного панельного дома в ЖК 1-й Ленинградский.
Дом оборудован пассажирским лифтом.
09.04.2026
18 353 115 ₽
Продается 2-комн. квартира, площадью 59.6 кв.м.
Жилая площадь 29.7 м2, кухня 12.2 кв. м, ремонта нет, окна выходят во двор и на улицу.
Квартира располагается на 7 этаже 14-этажного панельного дома в ЖК 1-й Ленинградский.
Дом оборудован пассажирским лифтом.
09.04.2026
17 779 634 ₽




















