Объявление о квартирах в Дивноморском - Страница 2
- Дивноморское с. »
- Недвижимость
- » Квартиры в Дивноморском
Продается 2-комн. квартира, площадью 50.9 м2 в монолитно-кирпичной новостройке. Возможен вариант покупки с использованием ипотечных средств, есть рассрочка, возможна покупка с использованием материнского капитала, есть военная ипотека.
Жилая площадь 25 м2, кухня 13 м2, предчистовая отделка.
Квартира располагается на 16 этаже 18-этажного дома в ЖК Фонтаны.
Застройщик - ГК ССК, сдача дома - IV квартал 2026 года.
Дом оборудован пассажирским лифтом, закрытая территория.
Отдельная многоуровневая парковка, парковка охраняется. Обеспечение безопасности: видеонаблюдение, противопожарная система. Инфраструктура: детский сад, детские площадки, спортивные площадки, места для отдыха, супермаркет, рестораны, фитнес-центр, пункты бытового обслуживания, коммерческие объекты.
Жилой комплекс «Фонтаны» - дом клубного типа. Преимущество заключается в продуманном ландшафте дворов, круглосуточно охраняемой территории, системе видеонаблюдения во дворе. Также для удобства жителей проведен Wi-Fi во дворе, оборудованы безопасные и современные детские площадки, зоны отдыха.
«Фонтаны» - уникальный, неповторимый жилой комплекс, воплощающий оригинальные и креативные решения дизайнеров и архитекторов. Дома округлой форме - это придает им легкости, несмотря на массивность постройки.
ЖК «Фонтаны» расположен в микрорайоне Черёмушки. Отличная транспортная развязка позволяет быстро и с комфортом добраться до центра, а большое количество зеленых насаждений и парков дает возможность гулять с детьми и наслаждаться прекрасным видом на Кубань.
В жилом комплексе «Фонтаны» семьи с детьми до шести лет включительно могут оформить ипотеку по льготной ставке от 3,5% при первоначальном взносе от 20%.
Это возможность приобрести современную квартиру с продуманной планировкой, панорамными окнами и видами на реку Кубань, не откладывая мечту «на потом».
Территория ЖК - продуманное пространство для жизни: здесь найдётся место и для детских игр, и для спокойного отдыха взрослых, а близость к парковой зоне и будущему детскому саду сделает каждый день ещё комфортнее.
Выбирайте квартиру с готовым ремонтом и заселяйтесь без лишних хлопот - всё, что нужно для старта новой главы вашей семейной истории, уже здесь. Информация носит справочный характер. Не является публичной офертой.
Аккредитованные банки: Сбербанк, Альфа-Банк, ВТБ, Банк Уралсиб, РОССИЯ, Абсолют Банк, Металлинвестбанк, РНКБ, ПСБ, Кубань Кредит, Банк ВБРР, Россельхозбанк.
Позвоните и узнайте условия покупки прямо сейчас!
16.02.2026
9 671 000 ₽
Сдается 1-комн. квартира посуточно, площадью 20 м2.
Жилая площадь 15 кв.м. В квартире два спальных места.
Квартира располагается на 2 этаже 2-этажного дома. Вся необходимая техника, зона для работы в сети Интернет через подключение интернет- разетка. 2 береговая линия, 500 метров др моря, пляж песчано-галечный наличный с развитой инфраструктурой. Удобное местоположение- жд Адлера , автобусная остановка в шаговой дрступности.
Минимальный срок проживания -2 дня.
Хорошая транспортная доступность, пешком минут 7 до остановки.
Скидки при проживании от 5 дней !
Звоните, отвечу на все интересующие вопросы.
13.02.2026
3 500 ₽
Продается 2-комн. квартира, площадью 54.11 м2 в монолитно-кирпичной новостройке. Возможен вариант покупки с использованием ипотечных средств, есть рассрочка, возможна покупка с использованием материнского капитала, есть военная ипотека.
Жилая площадь 23.9 м2, предчистовая отделка.
Квартира располагается на 6 этаже 16-этажного дома в ЖК Горные высоты.
Застройщик - ГК ССК, сдача дома - III квартал 2027 года, высота потолков 2.7 м.
Дом оборудован грузовым и пассажирским лифтом.
Парковка автомобилей - наземная. Обеспечение безопасности: видеонаблюдение. Инфраструктура: школа, детский сад, поликлиника, детские площадки, спортивные площадки, места для отдыха.
«Горные Высоты» - это радушный, современный и природный микрорайон, где сердце остаётся навсегда: соседи становятся семьёй, технологии служат уюту, а горный воздух и панорамные виды дарят ощущение гармонии каждый день. Здесь рождаются тёплые традиции, всё продумано для комфорта жизни, а природа становится частью вашего дома. Возвращаться сюда - значит возвращаться туда, где вас ждут, понимают и окружают заботой.
При покупке трёхкомнатной квартиры в микрорайоне «Горные Высоты» вы получаете качественный ремонт в подарок - всё, чтобы сразу заселиться и начать жить.
Современные планировки, высокие потолки и продуманные до деталей отделочные материалы создают идеальный баланс между уютом и стилем. Большие панорамные окна наполняют пространство светом, витражные конструкции подчёркивают эстетику, а удобные холлы и рациональное зонирование делают каждый день лёгким и комфортным.
Позвоните и узнайте условия покупки прямо сейчас!
25.02.2026
7 737 730 ₽
Продается 2-комн. квартира, площадью 54.11 м2 в монолитно-кирпичной новостройке. Возможен вариант покупки с использованием ипотечных средств, есть рассрочка, возможна покупка с использованием материнского капитала, есть военная ипотека.
Жилая площадь 23.9 м2, предчистовая отделка.
Квартира располагается на 6 этаже 16-этажного дома в ЖК Горные высоты.
Застройщик - ГК ССК, сдача дома - III квартал 2027 года, высота потолков 2.7 м.
Дом оборудован грузовым и пассажирским лифтом.
Парковка автомобилей - наземная. Обеспечение безопасности: видеонаблюдение. Инфраструктура: школа, детский сад, поликлиника, детские площадки, спортивные площадки, места для отдыха.
«Горные Высоты» - это радушный, современный и природный микрорайон, где сердце остаётся навсегда: соседи становятся семьёй, технологии служат уюту, а горный воздух и панорамные виды дарят ощущение гармонии каждый день. Здесь рождаются тёплые традиции, всё продумано для комфорта жизни, а природа становится частью вашего дома. Возвращаться сюда - значит возвращаться туда, где вас ждут, понимают и окружают заботой.
При покупке трёхкомнатной квартиры в микрорайоне «Горные Высоты» вы получаете качественный ремонт в подарок - всё, чтобы сразу заселиться и начать жить.
Современные планировки, высокие потолки и продуманные до деталей отделочные материалы создают идеальный баланс между уютом и стилем. Большие панорамные окна наполняют пространство светом, витражные конструкции подчёркивают эстетику, а удобные холлы и рациональное зонирование делают каждый день лёгким и комфортным.
Позвоните и узнайте условия покупки прямо сейчас!
20.02.2026
7 737 730 ₽
Продается 2-комн. квартира, площадью 54.11 м2 в монолитно-кирпичной новостройке. Возможен вариант покупки с использованием ипотечных средств, есть рассрочка, возможна покупка с использованием материнского капитала, есть военная ипотека.
Жилая площадь 23.9 м2, предчистовая отделка.
Квартира располагается на 4 этаже 16-этажного дома в ЖК Горные высоты.
Застройщик - ГК ССК, сдача дома - III квартал 2027 года, высота потолков 2.7 м.
Дом оборудован грузовым и пассажирским лифтом.
Парковка автомобилей - наземная. Обеспечение безопасности: видеонаблюдение. Инфраструктура: школа, детский сад, поликлиника, детские площадки, спортивные площадки, места для отдыха.
«Горные Высоты» - это радушный, современный и природный микрорайон, где сердце остаётся навсегда: соседи становятся семьёй, технологии служат уюту, а горный воздух и панорамные виды дарят ощущение гармонии каждый день. Здесь рождаются тёплые традиции, всё продумано для комфорта жизни, а природа становится частью вашего дома. Возвращаться сюда - значит возвращаться туда, где вас ждут, понимают и окружают заботой.
При покупке трёхкомнатной квартиры в микрорайоне «Горные Высоты» вы получаете качественный ремонт в подарок - всё, чтобы сразу заселиться и начать жить.
Современные планировки, высокие потолки и продуманные до деталей отделочные материалы создают идеальный баланс между уютом и стилем. Большие панорамные окна наполняют пространство светом, витражные конструкции подчёркивают эстетику, а удобные холлы и рациональное зонирование делают каждый день лёгким и комфортным.
Позвоните и узнайте условия покупки прямо сейчас!
20.02.2026
7 737 730 ₽
Продается 2-комн. квартира, площадью 54.11 м2 в монолитно-кирпичной новостройке. Возможен вариант покупки с использованием ипотечных средств, есть рассрочка, возможна покупка с использованием материнского капитала, есть военная ипотека.
Жилая площадь 23.9 м2, предчистовая отделка.
Квартира располагается на 4 этаже 16-этажного дома в ЖК Горные высоты.
Застройщик - ГК ССК, сдача дома - III квартал 2027 года, высота потолков 2.7 м.
Дом оборудован грузовым и пассажирским лифтом.
Парковка автомобилей - наземная. Обеспечение безопасности: видеонаблюдение. Инфраструктура: школа, детский сад, поликлиника, детские площадки, спортивные площадки, места для отдыха.
«Горные Высоты» - это радушный, современный и природный микрорайон, где сердце остаётся навсегда: соседи становятся семьёй, технологии служат уюту, а горный воздух и панорамные виды дарят ощущение гармонии каждый день. Здесь рождаются тёплые традиции, всё продумано для комфорта жизни, а природа становится частью вашего дома. Возвращаться сюда - значит возвращаться туда, где вас ждут, понимают и окружают заботой.
При покупке трёхкомнатной квартиры в микрорайоне «Горные Высоты» вы получаете качественный ремонт в подарок - всё, чтобы сразу заселиться и начать жить.
Современные планировки, высокие потолки и продуманные до деталей отделочные материалы создают идеальный баланс между уютом и стилем. Большие панорамные окна наполняют пространство светом, витражные конструкции подчёркивают эстетику, а удобные холлы и рациональное зонирование делают каждый день лёгким и комфортным.
Позвоните и узнайте условия покупки прямо сейчас!
21.02.2026
7 737 730 ₽
Продается 2-комн. квартира, площадью 54.11 м2 в монолитно-кирпичной новостройке. Возможен вариант покупки с использованием ипотечных средств, есть рассрочка, возможна покупка с использованием материнского капитала, есть военная ипотека.
Жилая площадь 23.9 м2, предчистовая отделка.
Квартира располагается на 3 этаже 16-этажного дома в ЖК Горные высоты.
Застройщик - ГК ССК, сдача дома - III квартал 2027 года, высота потолков 2.7 м.
Дом оборудован грузовым и пассажирским лифтом.
Парковка автомобилей - наземная. Обеспечение безопасности: видеонаблюдение. Инфраструктура: школа, детский сад, поликлиника, детские площадки, спортивные площадки, места для отдыха.
«Горные Высоты» - это радушный, современный и природный микрорайон, где сердце остаётся навсегда: соседи становятся семьёй, технологии служат уюту, а горный воздух и панорамные виды дарят ощущение гармонии каждый день. Здесь рождаются тёплые традиции, всё продумано для комфорта жизни, а природа становится частью вашего дома. Возвращаться сюда - значит возвращаться туда, где вас ждут, понимают и окружают заботой.
При покупке трёхкомнатной квартиры в микрорайоне «Горные Высоты» вы получаете качественный ремонт в подарок - всё, чтобы сразу заселиться и начать жить.
Современные планировки, высокие потолки и продуманные до деталей отделочные материалы создают идеальный баланс между уютом и стилем. Большие панорамные окна наполняют пространство светом, витражные конструкции подчёркивают эстетику, а удобные холлы и рациональное зонирование делают каждый день лёгким и комфортным.
Позвоните и узнайте условия покупки прямо сейчас!
20.02.2026
7 737 730 ₽
Продается 2-комн. квартира, площадью 54.11 м2 в монолитно-кирпичной новостройке. Возможен вариант покупки с использованием ипотечных средств, есть рассрочка, возможна покупка с использованием материнского капитала, есть военная ипотека.
Жилая площадь 23.9 м2, предчистовая отделка.
Квартира располагается на 5 этаже 16-этажного дома в ЖК Горные высоты.
Застройщик - ГК ССК, сдача дома - III квартал 2027 года, высота потолков 2.7 м.
Дом оборудован грузовым и пассажирским лифтом.
Парковка автомобилей - наземная. Обеспечение безопасности: видеонаблюдение. Инфраструктура: школа, детский сад, поликлиника, детские площадки, спортивные площадки, места для отдыха.
«Горные Высоты» - это радушный, современный и природный микрорайон, где сердце остаётся навсегда: соседи становятся семьёй, технологии служат уюту, а горный воздух и панорамные виды дарят ощущение гармонии каждый день. Здесь рождаются тёплые традиции, всё продумано для комфорта жизни, а природа становится частью вашего дома. Возвращаться сюда - значит возвращаться туда, где вас ждут, понимают и окружают заботой.
При покупке трёхкомнатной квартиры в микрорайоне «Горные Высоты» вы получаете качественный ремонт в подарок - всё, чтобы сразу заселиться и начать жить.
Современные планировки, высокие потолки и продуманные до деталей отделочные материалы создают идеальный баланс между уютом и стилем. Большие панорамные окна наполняют пространство светом, витражные конструкции подчёркивают эстетику, а удобные холлы и рациональное зонирование делают каждый день лёгким и комфортным.
Позвоните и узнайте условия покупки прямо сейчас!
20.02.2026
7 737 730 ₽
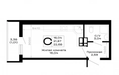
Продается студия, площадью 22.68 м2 в монолитно-кирпичной новостройке. Возможен вариант покупки с использованием ипотечных средств, есть рассрочка, возможна покупка с использованием материнского капитала, есть военная ипотека.
Жилая площадь 16.04 м2, предчистовая отделка, комнаты смежные.
Квартира располагается на 2 этаже 16-этажного дома в ЖК Горные высоты.
Застройщик - ГК ССК, сдача дома - III квартал 2027 года, высота потолков 2.7 м.
Дом оборудован грузовым и пассажирским лифтом.
Парковка автомобилей - наземная. Обеспечение безопасности: видеонаблюдение. Инфраструктура: школа, детский сад, поликлиника, детские площадки, спортивные площадки, места для отдыха.
«Горные Высоты» - это радушный, современный и природный микрорайон, где сердце остаётся навсегда: соседи становятся семьёй, технологии служат уюту, а горный воздух и панорамные виды дарят ощущение гармонии каждый день. Здесь рождаются тёплые традиции, всё продумано для комфорта жизни, а природа становится частью вашего дома. Возвращаться сюда - значит возвращаться туда, где вас ждут, понимают и окружают заботой.
При покупке трёхкомнатной квартиры в микрорайоне «Горные Высоты» вы получаете качественный ремонт в подарок - всё, чтобы сразу заселиться и начать жить.
Современные планировки, высокие потолки и продуманные до деталей отделочные материалы создают идеальный баланс между уютом и стилем. Большие панорамные окна наполняют пространство светом, витражные конструкции подчёркивают эстетику, а удобные холлы и рациональное зонирование делают каждый день лёгким и комфортным.
Позвоните и узнайте условия покупки прямо сейчас!
20.02.2026
3 764 880 ₽
Продается студия, площадью 22.68 м2 в монолитно-кирпичной новостройке. Возможен вариант покупки с использованием ипотечных средств, есть рассрочка, возможна покупка с использованием материнского капитала, есть военная ипотека.
Жилая площадь 16.04 м2, предчистовая отделка, комнаты смежные.
Квартира располагается на 2 этаже 16-этажного дома в ЖК Горные высоты.
Застройщик - ГК ССК, сдача дома - III квартал 2027 года, высота потолков 2.7 м.
Дом оборудован грузовым и пассажирским лифтом.
Парковка автомобилей - наземная. Обеспечение безопасности: видеонаблюдение. Инфраструктура: школа, детский сад, поликлиника, детские площадки, спортивные площадки, места для отдыха.
«Горные Высоты» - это радушный, современный и природный микрорайон, где сердце остаётся навсегда: соседи становятся семьёй, технологии служат уюту, а горный воздух и панорамные виды дарят ощущение гармонии каждый день. Здесь рождаются тёплые традиции, всё продумано для комфорта жизни, а природа становится частью вашего дома. Возвращаться сюда - значит возвращаться туда, где вас ждут, понимают и окружают заботой.
При покупке трёхкомнатной квартиры в микрорайоне «Горные Высоты» вы получаете качественный ремонт в подарок - всё, чтобы сразу заселиться и начать жить.
Современные планировки, высокие потолки и продуманные до деталей отделочные материалы создают идеальный баланс между уютом и стилем. Большие панорамные окна наполняют пространство светом, витражные конструкции подчёркивают эстетику, а удобные холлы и рациональное зонирование делают каждый день лёгким и комфортным.
Позвоните и узнайте условия покупки прямо сейчас!
20.02.2026
3 764 880 ₽
Продается студия, площадью 22.68 м2 в монолитно-кирпичной новостройке. Возможен вариант покупки с использованием ипотечных средств, есть рассрочка, возможна покупка с использованием материнского капитала, есть военная ипотека.
Жилая площадь 16.04 м2, предчистовая отделка, комнаты смежные.
Квартира располагается на 3 этаже 16-этажного дома в ЖК Горные высоты.
Застройщик - ГК ССК, сдача дома - III квартал 2027 года, высота потолков 2.7 м.
Дом оборудован грузовым и пассажирским лифтом.
Парковка автомобилей - наземная. Обеспечение безопасности: видеонаблюдение. Инфраструктура: школа, детский сад, поликлиника, детские площадки, спортивные площадки, места для отдыха.
«Горные Высоты» - это радушный, современный и природный микрорайон, где сердце остаётся навсегда: соседи становятся семьёй, технологии служат уюту, а горный воздух и панорамные виды дарят ощущение гармонии каждый день. Здесь рождаются тёплые традиции, всё продумано для комфорта жизни, а природа становится частью вашего дома. Возвращаться сюда - значит возвращаться туда, где вас ждут, понимают и окружают заботой.
При покупке трёхкомнатной квартиры в микрорайоне «Горные Высоты» вы получаете качественный ремонт в подарок - всё, чтобы сразу заселиться и начать жить.
Современные планировки, высокие потолки и продуманные до деталей отделочные материалы создают идеальный баланс между уютом и стилем. Большие панорамные окна наполняют пространство светом, витражные конструкции подчёркивают эстетику, а удобные холлы и рациональное зонирование делают каждый день лёгким и комфортным.
Позвоните и узнайте условия покупки прямо сейчас!
20.02.2026
3 764 880 ₽
Продается студия, площадью 22.68 м2 в монолитно-кирпичной новостройке. Возможен вариант покупки с использованием ипотечных средств, есть рассрочка, возможна покупка с использованием материнского капитала, есть военная ипотека.
Жилая площадь 16.04 м2, предчистовая отделка, комнаты смежные.
Квартира располагается на 6 этаже 16-этажного дома в ЖК Горные высоты.
Застройщик - ГК ССК, сдача дома - III квартал 2027 года, высота потолков 2.7 м.
Дом оборудован грузовым и пассажирским лифтом.
Парковка автомобилей - наземная. Обеспечение безопасности: видеонаблюдение. Инфраструктура: школа, детский сад, поликлиника, детские площадки, спортивные площадки, места для отдыха.
«Горные Высоты» - это радушный, современный и природный микрорайон, где сердце остаётся навсегда: соседи становятся семьёй, технологии служат уюту, а горный воздух и панорамные виды дарят ощущение гармонии каждый день. Здесь рождаются тёплые традиции, всё продумано для комфорта жизни, а природа становится частью вашего дома. Возвращаться сюда - значит возвращаться туда, где вас ждут, понимают и окружают заботой.
При покупке трёхкомнатной квартиры в микрорайоне «Горные Высоты» вы получаете качественный ремонт в подарок - всё, чтобы сразу заселиться и начать жить.
Современные планировки, высокие потолки и продуманные до деталей отделочные материалы создают идеальный баланс между уютом и стилем. Большие панорамные окна наполняют пространство светом, витражные конструкции подчёркивают эстетику, а удобные холлы и рациональное зонирование делают каждый день лёгким и комфортным.
Позвоните и узнайте условия покупки прямо сейчас!
20.02.2026
3 764 880 ₽
Продается 2-комн. квартира, площадью 49.5 м2 в панельной новостройке. Возможен вариант покупки с использованием ипотечных средств, возможна покупка с использованием материнского капитала.
Жилая площадь 21.5 м2, кухня 14.3 м2, предчистовая отделка.
Квартира располагается на 2 этаже 12-этажного дома в ЖК На Высоком берегу.
Застройщик - ГК ССК, сдача дома - II квартал 2027 года, высота потолков 2.7 м.
Дом оборудован пассажирским лифтом.
Подземная парковка. Инфраструктура: детские площадки, спортивные площадки, места для отдыха, рестораны.
Семейный квартал «На Высоком берегу» расположен всего в 300 метрах от моря, где каждая деталь создана для вашего максимального комфорта. Квартиры с высотой потолков 2,7 метра, просторные мастер-спальни и великолепные виды.
169 уникальных, современных и функциональных планировок, каждая из которых разработана специально для комфортной семейной жизни. Продуманное зонирование, рациональное использование пространства и эстетика современного дизайна делают каждую квартиру настоящим воплощением мечты о жилье премиум-класса.
«На Высоком берегу» - это не просто семейный квартал, это состояние души, доступное лишь немногим. И прямо сейчас у вас есть уникальный шанс стать одним из этих избранных.
Мы открываем специальные условия на 50 квартир, окна которых смотрят на главные достопримечательности вашей новой жизни: на умиротворяющую зелень Крещенского парка и сияющую линию Белой набережной. Это предложение для тех, кто понимает, что настоящая ценность - не в метрах, а в виде из окна, который каждый день дарит чувство гармонии и покоя.
Успейте закрепить за собой один из 50 лотов с выгодными условиями и начните писать свою историю на самом живописном листе Анапы - там, где высокий берег становится началом всего самого важного.
Позвоните и узнайте условия покупки прямо сейчас!
10.02.2026
12 870 000 ₽
Продается стильная студия площадью 23,68 м2, идеально подходящая для современного и динамичного образа жизни!
Особенности и преимущества студии:
- Просторная жилая площадь в 16,76 м2 эффективно используется для создания комфортного и уютного пространства.
- Квартира расположена на 6 этаже 16-этажного дома, что обеспечивает великолепные виды и достаточное количество естественного света.
- Рациональная планировка позволяет с легкостью организовать зону отдыха, рабочее пространство и кухонную зону.
- Современное многоквартирное здание с удобным лифтом обеспечивает комфортный доступ на любой этаж.
- Отличное решение как для собственного проживания, так и для инвестиций под аренду благодаря востребованному формату и выгодному расположению.
- Развитая инфраструктура
- Закрытая территория
Эта студия станет вашим идеальным городским убежищем, где все продумано до мелочей.
10.02.2026
4 050 000 ₽
Я СОБСТВЕННИК! ПРОСЬБА РИЕЛТОРОВ НЕ ЗВОНИТЬ И НЕ ПРЕДЛАГАТЬ СВОИ УСЛУГИ! Все фотографии именно моей квартиры!Продаю просторную,светлую, уютную евро-трешку
Квартира находится в жилом комплексе бизнес-класса «Седьмой Континент», в одном из престижных районов города Краснодар, в микрорайоне Фестивальный.
В квартире качественный дизайнерский ремонт. Удобная планировка(узаконеная, все документы имеются). Встроенная мебель и бытовая техника.
Две отдельные спальни и объединённая кухня с гостевой комнатой. Санузел раздельный,установлен бойлер на 80 литров,рабочая зона на кухне и лоджии керамо гранит(тёплый пол),большая прихожая, окна выходят на две стороны дома
На территории ЖК есть магазины, кафе, пункты выдачи OZON и Wildberries , частный детский сад, фитнес-центр (бассейн, тренажёрный зал, очень много разных направлений детских и взрослых занятий).
Территория комплекса закрытая, есть 4 выезда.
Охраняемая территория с видеонаблюдением. Для жильцов комплекса предусмотрены детские площадки, собственный фонтан, зоны барбекю, спортивное поле, спортивная площадка. На территории комплекса есть детская водная зона.
Под всей территорией комплекса расположена подземная парковка, из которой на лифте можно подняться на свою лестничную площадку . В подъезде есть зона для ожидания с удобными диванчиками, консьерж, есть отдельная общая комната для велосипедов и колясок.
Район обжитой, рядом находится несколько школ и садов для деток.
Удобная транспортная развязка.
Рядом магазин «Перекрёсток», «Магнит», рынок. Реальному покупателю торг! Если есть вопросы звоните все объясню и расскажу !
10.02.2026
23 000 000 ₽
Продаётся 1-комнатная квартира площадью 36 м2
Квартира с евроремонтом, полностью меблирована и оснащена техникой: холодильник, телевизор. Можно заехать и жить без дополнительных вложений.
Планировка и характеристики:
жилая площадь — 16,9 м2
совмещённый санузел;
балкон;
потолки 2,6 м;
4 этаж из 9.
Дом оборудован пассажирским лифтом, комфортный современный формат проживания.
Возможна покупка с использованием ипотечных средств.
09.02.2026
4 670 000 ₽
Продается 2-комн. квартира, площадью 51.6 м2 в монолитно-кирпичной новостройке. Возможен вариант покупки с использованием ипотечных средств, есть рассрочка, возможна покупка с использованием материнского капитала, есть военная ипотека.
Жилая площадь 24.8 м2, кухня 13.5 м2, предчистовая отделка.
Квартира располагается на 2 этаже 18-этажного дома в ЖК Фонтаны.
Застройщик - ГК ССК, сдача дома - IV квартал 2026 года, высота потолков 2.82 м.
Дом оборудован пассажирским лифтом, закрытая территория.
Отдельная многоуровневая парковка, парковка охраняется. Обеспечение безопасности: видеонаблюдение, противопожарная система. Инфраструктура: детский сад, детские площадки, спортивные площадки, места для отдыха, супермаркет, рестораны, фитнес-центр, пункты бытового обслуживания, коммерческие объекты.
Жилой комплекс «Фонтаны» - дом клубного типа. Преимущество заключается в продуманном ландшафте дворов, круглосуточно охраняемой территории, системе видеонаблюдения во дворе. Также для удобства жителей проведен Wi-Fi во дворе, оборудованы безопасные и современные детские площадки, зоны отдыха.
«Фонтаны» - уникальный, неповторимый жилой комплекс, воплощающий оригинальные и креативные решения дизайнеров и архитекторов. Дома округлой форме - это придает им легкости, несмотря на массивность постройки.
ЖК «Фонтаны» расположен в микрорайоне Черёмушки. Отличная транспортная развязка позволяет быстро и с комфортом добраться до центра, а большое количество зеленых насаждений и парков дает возможность гулять с детьми и наслаждаться прекрасным видом на Кубань.
В жилом комплексе «Фонтаны» семьи с детьми до шести лет включительно могут оформить ипотеку по льготной ставке от 3,5% при первоначальном взносе от 20%.
Это возможность приобрести современную квартиру с продуманной планировкой, панорамными окнами и видами на реку Кубань, не откладывая мечту «на потом».
Территория ЖК - продуманное пространство для жизни: здесь найдётся место и для детских игр, и для спокойного отдыха взрослых, а близость к парковой зоне и будущему детскому саду сделает каждый день ещё комфортнее.
Выбирайте квартиру с готовым ремонтом и заселяйтесь без лишних хлопот - всё, что нужно для старта новой главы вашей семейной истории, уже здесь. Информация носит справочный характер. Не является публичной офертой.
Аккредитованные банки: Сбербанк, Альфа-Банк, ВТБ, Банк Уралсиб, РОССИЯ, Абсолют Банк, Металлинвестбанк, РНКБ, ПСБ, Кубань Кредит, Банк ВБРР, Россельхозбанк.
Позвоните и узнайте условия покупки прямо сейчас!
17.02.2026
9 804 000 ₽
Продается 2-комн. квартира, площадью 55 м2 в монолитно-кирпичной новостройке. Возможен вариант покупки с использованием ипотечных средств, есть рассрочка, возможна покупка с использованием материнского капитала, есть военная ипотека.
Жилая площадь 24.2 м2, кухня 16.3 м2, предчистовая отделка.
Квартира располагается на 7 этаже 18-этажного дома в ЖК Фонтаны.
Застройщик - ГК ССК, сдача дома - IV квартал 2026 года.
Дом оборудован пассажирским лифтом, закрытая территория.
Отдельная многоуровневая парковка, парковка охраняется. Обеспечение безопасности: видеонаблюдение, противопожарная система. Инфраструктура: детский сад, детские площадки, спортивные площадки, места для отдыха, супермаркет, рестораны, фитнес-центр, пункты бытового обслуживания, коммерческие объекты.
Жилой комплекс «Фонтаны» - дом клубного типа. Преимущество заключается в продуманном ландшафте дворов, круглосуточно охраняемой территории, системе видеонаблюдения во дворе. Также для удобства жителей проведен Wi-Fi во дворе, оборудованы безопасные и современные детские площадки, зоны отдыха.
«Фонтаны» - уникальный, неповторимый жилой комплекс, воплощающий оригинальные и креативные решения дизайнеров и архитекторов. Дома округлой форме - это придает им легкости, несмотря на массивность постройки.
ЖК «Фонтаны» расположен в микрорайоне Черёмушки. Отличная транспортная развязка позволяет быстро и с комфортом добраться до центра, а большое количество зеленых насаждений и парков дает возможность гулять с детьми и наслаждаться прекрасным видом на Кубань.
В жилом комплексе «Фонтаны» семьи с детьми до шести лет включительно могут оформить ипотеку по льготной ставке от 3,5% при первоначальном взносе от 20%.
Это возможность приобрести современную квартиру с продуманной планировкой, панорамными окнами и видами на реку Кубань, не откладывая мечту «на потом».
Территория ЖК - продуманное пространство для жизни: здесь найдётся место и для детских игр, и для спокойного отдыха взрослых, а близость к парковой зоне и будущему детскому саду сделает каждый день ещё комфортнее.
Выбирайте квартиру с готовым ремонтом и заселяйтесь без лишних хлопот - всё, что нужно для старта новой главы вашей семейной истории, уже здесь. Информация носит справочный характер. Не является публичной офертой.
Аккредитованные банки: Сбербанк, Альфа-Банк, ВТБ, Банк Уралсиб, РОССИЯ, Абсолют Банк, Металлинвестбанк, РНКБ, ПСБ, Кубань Кредит, Банк ВБРР, Россельхозбанк.
Позвоните и узнайте условия покупки прямо сейчас!
28.02.2026
9 900 000 ₽
Продается 2-комн. квартира, площадью 55 м2 в монолитно-кирпичной новостройке. Возможен вариант покупки с использованием ипотечных средств, есть рассрочка, возможна покупка с использованием материнского капитала, есть военная ипотека.
Жилая площадь 24.2 м2, кухня 16.3 м2, предчистовая отделка.
Квартира располагается на 4 этаже 18-этажного дома в ЖК Фонтаны.
Застройщик - ГК ССК, сдача дома - IV квартал 2026 года.
Дом оборудован пассажирским лифтом, закрытая территория.
Отдельная многоуровневая парковка, парковка охраняется. Обеспечение безопасности: видеонаблюдение, противопожарная система. Инфраструктура: детский сад, детские площадки, спортивные площадки, места для отдыха, супермаркет, рестораны, фитнес-центр, пункты бытового обслуживания, коммерческие объекты.
Жилой комплекс «Фонтаны» - дом клубного типа. Преимущество заключается в продуманном ландшафте дворов, круглосуточно охраняемой территории, системе видеонаблюдения во дворе. Также для удобства жителей проведен Wi-Fi во дворе, оборудованы безопасные и современные детские площадки, зоны отдыха.
«Фонтаны» - уникальный, неповторимый жилой комплекс, воплощающий оригинальные и креативные решения дизайнеров и архитекторов. Дома округлой форме - это придает им легкости, несмотря на массивность постройки.
ЖК «Фонтаны» расположен в микрорайоне Черёмушки. Отличная транспортная развязка позволяет быстро и с комфортом добраться до центра, а большое количество зеленых насаждений и парков дает возможность гулять с детьми и наслаждаться прекрасным видом на Кубань.
В жилом комплексе «Фонтаны» семьи с детьми до шести лет включительно могут оформить ипотеку по льготной ставке от 3,5% при первоначальном взносе от 20%.
Это возможность приобрести современную квартиру с продуманной планировкой, панорамными окнами и видами на реку Кубань, не откладывая мечту «на потом».
Территория ЖК - продуманное пространство для жизни: здесь найдётся место и для детских игр, и для спокойного отдыха взрослых, а близость к парковой зоне и будущему детскому саду сделает каждый день ещё комфортнее.
Выбирайте квартиру с готовым ремонтом и заселяйтесь без лишних хлопот - всё, что нужно для старта новой главы вашей семейной истории, уже здесь. Информация носит справочный характер. Не является публичной офертой.
Аккредитованные банки: Сбербанк, Альфа-Банк, ВТБ, Банк Уралсиб, РОССИЯ, Абсолют Банк, Металлинвестбанк, РНКБ, ПСБ, Кубань Кредит, Банк ВБРР, Россельхозбанк.
Позвоните и узнайте условия покупки прямо сейчас!
17.02.2026
9 900 000 ₽
Продается 2-комн. квартира, площадью 55 м2 в монолитно-кирпичной новостройке. Возможен вариант покупки с использованием ипотечных средств, есть рассрочка, возможна покупка с использованием материнского капитала, есть военная ипотека.
Жилая площадь 24.2 м2, кухня 16.3 м2, предчистовая отделка.
Квартира располагается на 8 этаже 18-этажного дома в ЖК Фонтаны.
Застройщик - ГК ССК, сдача дома - IV квартал 2026 года.
Дом оборудован пассажирским лифтом, закрытая территория.
Отдельная многоуровневая парковка, парковка охраняется. Обеспечение безопасности: видеонаблюдение, противопожарная система. Инфраструктура: детский сад, детские площадки, спортивные площадки, места для отдыха, супермаркет, рестораны, фитнес-центр, пункты бытового обслуживания, коммерческие объекты.
Жилой комплекс «Фонтаны» - дом клубного типа. Преимущество заключается в продуманном ландшафте дворов, круглосуточно охраняемой территории, системе видеонаблюдения во дворе. Также для удобства жителей проведен Wi-Fi во дворе, оборудованы безопасные и современные детские площадки, зоны отдыха.
«Фонтаны» - уникальный, неповторимый жилой комплекс, воплощающий оригинальные и креативные решения дизайнеров и архитекторов. Дома округлой форме - это придает им легкости, несмотря на массивность постройки.
ЖК «Фонтаны» расположен в микрорайоне Черёмушки. Отличная транспортная развязка позволяет быстро и с комфортом добраться до центра, а большое количество зеленых насаждений и парков дает возможность гулять с детьми и наслаждаться прекрасным видом на Кубань.
В жилом комплексе «Фонтаны» семьи с детьми до шести лет включительно могут оформить ипотеку по льготной ставке от 3,5% при первоначальном взносе от 20%.
Это возможность приобрести современную квартиру с продуманной планировкой, панорамными окнами и видами на реку Кубань, не откладывая мечту «на потом».
Территория ЖК - продуманное пространство для жизни: здесь найдётся место и для детских игр, и для спокойного отдыха взрослых, а близость к парковой зоне и будущему детскому саду сделает каждый день ещё комфортнее.
Выбирайте квартиру с готовым ремонтом и заселяйтесь без лишних хлопот - всё, что нужно для старта новой главы вашей семейной истории, уже здесь. Информация носит справочный характер. Не является публичной офертой.
Аккредитованные банки: Сбербанк, Альфа-Банк, ВТБ, Банк Уралсиб, РОССИЯ, Абсолют Банк, Металлинвестбанк, РНКБ, ПСБ, Кубань Кредит, Банк ВБРР, Россельхозбанк.
Позвоните и узнайте условия покупки прямо сейчас!
05.03.2026
9 900 000 ₽
Продается 2-комн. квартира, площадью 55 м2 в монолитно-кирпичной новостройке. Возможен вариант покупки с использованием ипотечных средств, есть рассрочка, возможна покупка с использованием материнского капитала, есть военная ипотека.
Жилая площадь 24.2 м2, кухня 16.3 м2, предчистовая отделка.
Квартира располагается на 4 этаже 18-этажного дома в ЖК Фонтаны.
Застройщик - ГК ССК, сдача дома - IV квартал 2026 года.
Дом оборудован пассажирским лифтом, закрытая территория.
Отдельная многоуровневая парковка, парковка охраняется. Обеспечение безопасности: видеонаблюдение, противопожарная система. Инфраструктура: детский сад, детские площадки, спортивные площадки, места для отдыха, супермаркет, рестораны, фитнес-центр, пункты бытового обслуживания, коммерческие объекты.
Жилой комплекс «Фонтаны» - дом клубного типа. Преимущество заключается в продуманном ландшафте дворов, круглосуточно охраняемой территории, системе видеонаблюдения во дворе. Также для удобства жителей проведен Wi-Fi во дворе, оборудованы безопасные и современные детские площадки, зоны отдыха.
«Фонтаны» - уникальный, неповторимый жилой комплекс, воплощающий оригинальные и креативные решения дизайнеров и архитекторов. Дома округлой форме - это придает им легкости, несмотря на массивность постройки.
ЖК «Фонтаны» расположен в микрорайоне Черёмушки. Отличная транспортная развязка позволяет быстро и с комфортом добраться до центра, а большое количество зеленых насаждений и парков дает возможность гулять с детьми и наслаждаться прекрасным видом на Кубань.
В жилом комплексе «Фонтаны» семьи с детьми до шести лет включительно могут оформить ипотеку по льготной ставке от 3,5% при первоначальном взносе от 20%.
Это возможность приобрести современную квартиру с продуманной планировкой, панорамными окнами и видами на реку Кубань, не откладывая мечту «на потом».
Территория ЖК - продуманное пространство для жизни: здесь найдётся место и для детских игр, и для спокойного отдыха взрослых, а близость к парковой зоне и будущему детскому саду сделает каждый день ещё комфортнее.
Выбирайте квартиру с готовым ремонтом и заселяйтесь без лишних хлопот - всё, что нужно для старта новой главы вашей семейной истории, уже здесь. Информация носит справочный характер. Не является публичной офертой.
Аккредитованные банки: Сбербанк, Альфа-Банк, ВТБ, Банк Уралсиб, РОССИЯ, Абсолют Банк, Металлинвестбанк, РНКБ, ПСБ, Кубань Кредит, Банк ВБРР, Россельхозбанк.
Позвоните и узнайте условия покупки прямо сейчас!
28.02.2026
9 900 000 ₽




















