Продается отдельно стоящее здание под бизнес
Размещено 29 марта 2026
22
0
Жалоба
- Параметры объявления
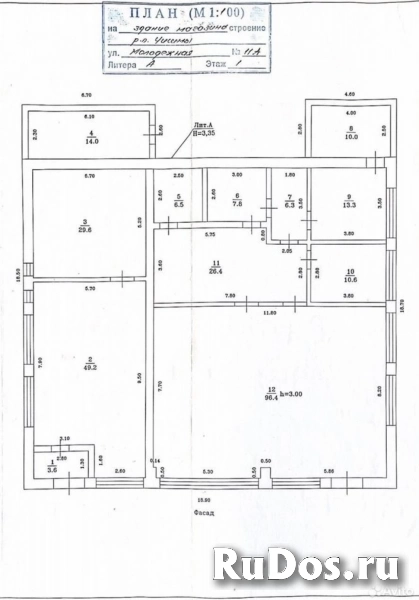
- Общая площадь (м2): 271
- Тип здания: Другой
- Тип сделки: Прямая продажа
- Отделка: Без отделки
- Этаж: Только первый
- Описание
Продается в рп. Чишмы отдельно стоящее здание под арендный бизнес: магазины Пятерочка, Магнит, Находка. ПВЗ Озон, Вайлдберриз, Яндекс, Авито. Помещение свободного назначения. Имеется 2 отдельных входа. Рассматриваю варианты обмена на авто
