Продам коммерческую недвижимость 462 м2
Размещено 18 ноября 2025
17
(+1)
0
Жалоба
- Параметры объявления
- Общая площадь (м2): 462
- Описание
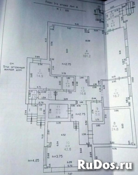
Продам производственное здание, площадью 462.7 м2. (1 этаж - 250 кв.м., эксплуатируемый подвал - 212.7 кв.м). Располагается в 10 минут от Нижнего Новгорода.
Высота потолков 3.2 м, несколько мокрых точек, на полу плитка, вход в помещение - отдельный с улицы. Внутри свежий ремонт.
На производстве есть электричество, общей мощностью 60 кВт (можно увеличить), есть вода (центральная: горячая/холодная) и канализация. Отопление - котел (можно подключить центральное).
Парковка на территории объекта, парковка предоставляется бесплатно. Оборудование убрано; помещение готово к работе.
Высота потолков 3.2 м, несколько мокрых точек, на полу плитка, вход в помещение - отдельный с улицы. Внутри свежий ремонт.
На производстве есть электричество, общей мощностью 60 кВт (можно увеличить), есть вода (центральная: горячая/холодная) и канализация. Отопление - котел (можно подключить центральное).
Парковка на территории объекта, парковка предоставляется бесплатно. Оборудование убрано; помещение готово к работе.
Продажа производственно-складского комплекса с арендаторами. Окупаемость 8 лет.
Андрей
415 000 000 ₽
