Продам дом 156.1 м2
Размещено сегодня в 02:56
0
0
Жалоба
- Параметры объявления
- Площадь дома (м2): 156.1
- Площадь участка (соток): 6
- Описание
От застройщика! Новый 2-х этажный коттедж 156 кв.м на участке 6 соток в КП «Новая Дятловка».
Семейная и IT ипотека - от 6%.
Планировка по проекту:
1 этаж: Просторная кухня-гостиная 34 кв.м с окнами на три стороны света и панорамной дверью на крытую террасу 12 кв.м; спальня 13 кв.м, ванная комната, бойлерная, гардеробная, прихожая.
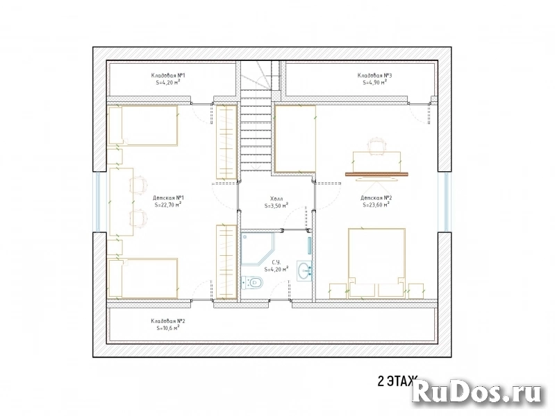
2 этаж: Три спальни (23/10/10), с/у с душевой, много мест для хранения.
Высокие потолки - 3 метра.
Дом без внутренней отделки.
Коммуникации: Электричество по границе земельного участка, магистральный газ заведен на участок.
Дом построен. Завершается внешняя отделка фасада. Ключи – июнь 2026г.
Земельный участок: 6 соток, ровный, правильной формы.
Забор - металлический штакетник высотой 2м.
Назначение - индивидуальное жилищное строительство Прописка – МО, г.о. Балашиха, д Дятловка. Вы можете без проблем прикрепиться к садику, школе, поликлинике.
Коттедж построен из высококачественных материалов с соблюдением всех технологий:
- Фундамент: Свайный с ростверком (монолитный с армированием) с заглублением 2,3 м + монолитная плита 200мм;
- Стены: Газобетонный блок Бонолит, толщина внешних стен 400мм;
- Фасад: Штукатурка, покраска, фасадный декор; Цоколь утеплен и облицован термопанелями; выполнена отмостка;
- Кровля: Двухскатная из метало-черепицы с установкой снегозадержателей и водосточной системы;
- Окна Melke: Металло-пластиковые двухкамерные стеклопакеты с поворотно-откидным механизмом.
- Крыльцо и терраса с навесом;
- Входная металлическая дверь.
О поселке: Асфальтированные дороги. Общее освещение. Закрытая территория. В поселке оборудована детско-спортивная площадка с воркаутом и зоной отдыха, отдельной площадкой для малышей и теннисным столом.
Чистый и свежий воздух, удаленность от трасс и многоэтажек, тишина и уединение с природой и при этом оптимальное расстояние до города- всего 3 км от мкр. Железнодорожный и 17 км от МКАД. Ближайшие станции метро: Железнодорожная, Новокосино, Некрасовка.
Инфраструктура:
Все поблизости: Детский сад, школа, амбулатория, парк, банк, почта, спортивный комплекс с плавательным бассейном в Агрогородке - 10 мин на авто/автобусе. В д. Дятловка расположена остановка школьного автобуса, где утром забирает, а после уроков привозит ребят школьный автобус. В шаговой доступности Вкус Вилл, Пятерочка, пункты Яндекс/Озон/Валдбериз, аптека и тд.
ТЦ, рестораны, кафе, сетевые магазины и другая социально-бытовая инфраструктура расположена в городе Железнодорожном - 15 минут на авто.
Как добраться:
От КП до остановки автобуса 10 минут пешком. Автобус №26 идет до ж/д станции "Черное"- 10 минут, до ж/д станции "Железнодорожная" - 20 минут.
Открыт участок автомобильной трассы М12 Москва-Ногинск, легкое метро МЦД-4 .
Продажа от застройщика. Вся стоимость в договор. Одобрение ипотеки и сопровождение сделки - бесплатно. Индивидуальная рассрочка до 12 месяцев.
Добро пожаловать в Новую Дятловку!
Семейная и IT ипотека - от 6%.
Планировка по проекту:
1 этаж: Просторная кухня-гостиная 34 кв.м с окнами на три стороны света и панорамной дверью на крытую террасу 12 кв.м; спальня 13 кв.м, ванная комната, бойлерная, гардеробная, прихожая.
2 этаж: Три спальни (23/10/10), с/у с душевой, много мест для хранения.
Высокие потолки - 3 метра.
Дом без внутренней отделки.
Коммуникации: Электричество по границе земельного участка, магистральный газ заведен на участок.
Дом построен. Завершается внешняя отделка фасада. Ключи – июнь 2026г.
Земельный участок: 6 соток, ровный, правильной формы.
Забор - металлический штакетник высотой 2м.
Назначение - индивидуальное жилищное строительство Прописка – МО, г.о. Балашиха, д Дятловка. Вы можете без проблем прикрепиться к садику, школе, поликлинике.
Коттедж построен из высококачественных материалов с соблюдением всех технологий:
- Фундамент: Свайный с ростверком (монолитный с армированием) с заглублением 2,3 м + монолитная плита 200мм;
- Стены: Газобетонный блок Бонолит, толщина внешних стен 400мм;
- Фасад: Штукатурка, покраска, фасадный декор; Цоколь утеплен и облицован термопанелями; выполнена отмостка;
- Кровля: Двухскатная из метало-черепицы с установкой снегозадержателей и водосточной системы;
- Окна Melke: Металло-пластиковые двухкамерные стеклопакеты с поворотно-откидным механизмом.
- Крыльцо и терраса с навесом;
- Входная металлическая дверь.
О поселке: Асфальтированные дороги. Общее освещение. Закрытая территория. В поселке оборудована детско-спортивная площадка с воркаутом и зоной отдыха, отдельной площадкой для малышей и теннисным столом.
Чистый и свежий воздух, удаленность от трасс и многоэтажек, тишина и уединение с природой и при этом оптимальное расстояние до города- всего 3 км от мкр. Железнодорожный и 17 км от МКАД. Ближайшие станции метро: Железнодорожная, Новокосино, Некрасовка.
Инфраструктура:
Все поблизости: Детский сад, школа, амбулатория, парк, банк, почта, спортивный комплекс с плавательным бассейном в Агрогородке - 10 мин на авто/автобусе. В д. Дятловка расположена остановка школьного автобуса, где утром забирает, а после уроков привозит ребят школьный автобус. В шаговой доступности Вкус Вилл, Пятерочка, пункты Яндекс/Озон/Валдбериз, аптека и тд.
ТЦ, рестораны, кафе, сетевые магазины и другая социально-бытовая инфраструктура расположена в городе Железнодорожном - 15 минут на авто.
Как добраться:
От КП до остановки автобуса 10 минут пешком. Автобус №26 идет до ж/д станции "Черное"- 10 минут, до ж/д станции "Железнодорожная" - 20 минут.
Открыт участок автомобильной трассы М12 Москва-Ногинск, легкое метро МЦД-4 .
Продажа от застройщика. Вся стоимость в договор. Одобрение ипотеки и сопровождение сделки - бесплатно. Индивидуальная рассрочка до 12 месяцев.
Добро пожаловать в Новую Дятловку!
