Продать квартиру в Апшеронске - Страница 4
- Апшеронск »
- Недвижимость
- » Квартиры
- » Продажа квартир в Апшеронске
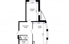
Продается 2-комн. квартира, площадью 56.1 м2 в монолитно-кирпичной новостройке. Возможен вариант покупки с использованием ипотечных средств, есть рассрочка, возможна покупка с использованием материнского капитала, есть военная ипотека.
Жилая площадь 25.6 м2, кухня 16.1 м2, черновая отделка.
Квартира располагается на 5 этаже 16-этажного дома в ЖК Традиции.
Застройщик - ГК ССК, сдача дома - III квартал 2027 года, высота потолков 2.72 м.
Дом оборудован пассажирским лифтом. Обеспечение безопасности: видеонаблюдение, противопожарная система. Инфраструктура: детские площадки, спортивные площадки, места для отдыха, супермаркет, рестораны, фитнес-центр, пункты бытового обслуживания, коммерческие объекты.
В жилом комплексе «Традиции» вы найдёте всё, чтобы создать свой особенный уклад жизни. Возможно, именно здесь начнётся новая семейная традиция, которая станет дорогой сердцу на долгие годы.
В радиусе 5 минут ходьбы от комплекса уже функционируют школы и детские сады, а дорога в центр города занимает 15 минут.
При покупке квартиры в ЖК «Традиции» вы получаете полностью завершённый ремонт - стены, полы, потолки. Вам не нужно тратить время и силы на отделку.
Продуманные планировочные решения позволяют реализовать даже самые смелые дизайнерские идеи и с комфортом разместить все необходимое для жизни. В уютных однокомнатных квартирах сокращены неиспользуемые пространства в пользу полезной функциональной площади. Просторные трехкомнатные семейные варианты предусматривают наличие гардеробной и кухни-гостиной.
График работы ОП в новогодние праздники:
31.12.25 - 03.01.26 - выходной
04.01.26 - 06.01.26 с 10: 00 до 18: 00.
07.01.26 - выходной
08.01.26 - 11.01.26 с 10: 00 до 18: 00.
С 12.01.26 - в стандартном режиме
Аккредитованные банки: Сбербанк, Альфа-Банк, ВТБ, Банк Уралсиб, РОССИЯ, Абсолют Банк, Металлинвестбанк, РНКБ, ПСБ, Кубань Кредит, Банк ВБРР, Россельхозбанк.
Позвоните и узнайте условия покупки прямо сейчас!
04.12.2025
7 573 500 ₽
Продается 2-комн. квартира, площадью 55.86 м2 в монолитно-кирпичной новостройке. Возможен вариант покупки с использованием ипотечных средств, есть рассрочка, возможна покупка с использованием материнского капитала, есть военная ипотека.
Жилая площадь 24.79 м2, кухня 17.2 м2, предчистовая отделка.
Квартира располагается на 7 этаже 18-этажного дома в ЖК Фонтаны.
Застройщик - ГК ССК, сдача дома - IV квартал 2026 года, высота потолков 2.82 м.
Дом оборудован пассажирским лифтом, закрытая территория.
Отдельная многоуровневая парковка, парковка охраняется. Обеспечение безопасности: видеонаблюдение, противопожарная система. Инфраструктура: детский сад, детские площадки, спортивные площадки, места для отдыха, супермаркет, рестораны, фитнес-центр, пункты бытового обслуживания, коммерческие объекты.
Жилой комплекс «Фонтаны» - дом клубного типа. Преимущество заключается в продуманном ландшафте дворов, круглосуточно охраняемой территории, системе видеонаблюдения во дворе. Также для удобства жителей проведен Wi-Fi во дворе, оборудованы безопасные и современные детские площадки, зоны отдыха.
«Фонтаны» - уникальный, неповторимый жилой комплекс, воплощающий оригинальные и креативные решения дизайнеров и архитекторов. Дома округлой форме - это придает им легкости, несмотря на массивность постройки.
ЖК «Фонтаны» расположен в микрорайоне Черёмушки. Отличная транспортная развязка позволяет быстро и с комфортом добраться до центра, а большое количество зеленых насаждений и парков дает возможность гулять с детьми и наслаждаться прекрасным видом на Кубань.
Программа «Доступное жилье» - скидка 3% для тех, кто строит будущее!
В рамках программы «Доступное жилье» предусмотрена скидка 3% от стоимости квартиры для:
врачей и медицинского персонала,
учителей и преподавателей школ и вузов,
участников СВО и военнослужащих,
моряков (для жителей Калининграда) ,
молодых семей с детьми.
Это наш вклад в поддержку тех, кто каждый день заботится о других, растит новое поколение, защищает страну или строит свою семью.
График работы ОП в новогодние праздники:
31.12.25 - 03.01.26 - выходной
04.01.26 - 06.01.26 с 10: 00 до 18: 00.
07.01.26 - выходной
08.01.26 - 11.01.26 с 10: 00 до 18: 00.
С 12.01.26 - в стандартном режиме
Аккредитованные банки: Сбербанк, Альфа-Банк, ВТБ, Банк Уралсиб, РОССИЯ, Абсолют Банк, Металлинвестбанк, РНКБ, ПСБ, Кубань Кредит, Банк ВБРР, Россельхозбанк.
Позвоните и узнайте условия покупки прямо сейчас!
20.12.2025
10 334 100 ₽
Продается 2-комн. квартира, площадью 53.7 м2 в монолитно-кирпичной новостройке. Возможен вариант покупки с использованием ипотечных средств, есть рассрочка, возможна покупка с использованием материнского капитала, есть военная ипотека.
Жилая площадь 27.4 м2, кухня 13.8 м2, черновая отделка.
Квартира располагается на 6 этаже 16-этажного дома в ЖК Традиции.
Застройщик - ГК ССК, сдача дома - III квартал 2027 года, высота потолков 2.72 м.
Дом оборудован пассажирским лифтом. Обеспечение безопасности: видеонаблюдение, противопожарная система. Инфраструктура: детские площадки, спортивные площадки, места для отдыха, супермаркет, рестораны, фитнес-центр, пункты бытового обслуживания, коммерческие объекты.
В жилом комплексе «Традиции» вы найдёте всё, чтобы создать свой особенный уклад жизни. Возможно, именно здесь начнётся новая семейная традиция, которая станет дорогой сердцу на долгие годы.
В радиусе 5 минут ходьбы от комплекса уже функционируют школы и детские сады, а дорога в центр города занимает 15 минут.
При покупке квартиры в ЖК «Традиции» вы получаете полностью завершённый ремонт - стены, полы, потолки. Вам не нужно тратить время и силы на отделку.
Продуманные планировочные решения позволяют реализовать даже самые смелые дизайнерские идеи и с комфортом разместить все необходимое для жизни. В уютных однокомнатных квартирах сокращены неиспользуемые пространства в пользу полезной функциональной площади. Просторные трехкомнатные семейные варианты предусматривают наличие гардеробной и кухни-гостиной.
График работы ОП в новогодние праздники:
31.12.25 - 03.01.26 - выходной
04.01.26 - 06.01.26 с 10: 00 до 18: 00.
07.01.26 - выходной
08.01.26 - 11.01.26 с 10: 00 до 18: 00.
С 12.01.26 - в стандартном режиме
Аккредитованные банки: Сбербанк, Альфа-Банк, ВТБ, Банк Уралсиб, РОССИЯ, Абсолют Банк, Металлинвестбанк, РНКБ, ПСБ, Кубань Кредит, Банк ВБРР, Россельхозбанк.
Позвоните и узнайте условия покупки прямо сейчас!
02.12.2025
7 249 500 ₽
Продается 2-комн. квартира, площадью 53.7 м2 в монолитно-кирпичной новостройке. Возможен вариант покупки с использованием ипотечных средств, есть рассрочка, возможна покупка с использованием материнского капитала, есть военная ипотека.
Жилая площадь 27.4 м2, кухня 13.8 м2, черновая отделка.
Квартира располагается на 2 этаже 16-этажного дома в ЖК Традиции.
Застройщик - ГК ССК, сдача дома - III квартал 2027 года, высота потолков 2.72 м.
Дом оборудован пассажирским лифтом. Обеспечение безопасности: видеонаблюдение, противопожарная система. Инфраструктура: детские площадки, спортивные площадки, места для отдыха, супермаркет, рестораны, фитнес-центр, пункты бытового обслуживания, коммерческие объекты.
В жилом комплексе «Традиции» вы найдёте всё, чтобы создать свой особенный уклад жизни. Возможно, именно здесь начнётся новая семейная традиция, которая станет дорогой сердцу на долгие годы.
В радиусе 5 минут ходьбы от комплекса уже функционируют школы и детские сады, а дорога в центр города занимает 15 минут.
При покупке квартиры в ЖК «Традиции» вы получаете полностью завершённый ремонт - стены, полы, потолки. Вам не нужно тратить время и силы на отделку.
Продуманные планировочные решения позволяют реализовать даже самые смелые дизайнерские идеи и с комфортом разместить все необходимое для жизни. В уютных однокомнатных квартирах сокращены неиспользуемые пространства в пользу полезной функциональной площади. Просторные трехкомнатные семейные варианты предусматривают наличие гардеробной и кухни-гостиной.
График работы ОП в новогодние праздники:
31.12.25 - 03.01.26 - выходной
04.01.26 - 06.01.26 с 10: 00 до 18: 00.
07.01.26 - выходной
08.01.26 - 11.01.26 с 10: 00 до 18: 00.
С 12.01.26 - в стандартном режиме
Аккредитованные банки: Сбербанк, Альфа-Банк, ВТБ, Банк Уралсиб, РОССИЯ, Абсолют Банк, Металлинвестбанк, РНКБ, ПСБ, Кубань Кредит, Банк ВБРР, Россельхозбанк.
Позвоните и узнайте условия покупки прямо сейчас!
02.12.2025
7 249 500 ₽
Продается 2-комн. квартира, площадью 56.1 м2 в монолитно-кирпичной новостройке. Возможен вариант покупки с использованием ипотечных средств, есть рассрочка, возможна покупка с использованием материнского капитала, есть военная ипотека.
Жилая площадь 25.6 м2, кухня 16.1 м2, черновая отделка.
Квартира располагается на 7 этаже 16-этажного дома в ЖК Традиции.
Застройщик - ГК ССК, сдача дома - III квартал 2027 года, высота потолков 2.72 м.
Дом оборудован пассажирским лифтом. Обеспечение безопасности: видеонаблюдение, противопожарная система. Инфраструктура: детские площадки, спортивные площадки, места для отдыха, супермаркет, рестораны, фитнес-центр, пункты бытового обслуживания, коммерческие объекты.
В жилом комплексе «Традиции» вы найдёте всё, чтобы создать свой особенный уклад жизни. Возможно, именно здесь начнётся новая семейная традиция, которая станет дорогой сердцу на долгие годы.
В радиусе 5 минут ходьбы от комплекса уже функционируют школы и детские сады, а дорога в центр города занимает 15 минут.
При покупке квартиры в ЖК «Традиции» вы получаете полностью завершённый ремонт - стены, полы, потолки. Вам не нужно тратить время и силы на отделку.
Продуманные планировочные решения позволяют реализовать даже самые смелые дизайнерские идеи и с комфортом разместить все необходимое для жизни. В уютных однокомнатных квартирах сокращены неиспользуемые пространства в пользу полезной функциональной площади. Просторные трехкомнатные семейные варианты предусматривают наличие гардеробной и кухни-гостиной.
График работы ОП в новогодние праздники:
31.12.25 - 03.01.26 - выходной
04.01.26 - 06.01.26 с 10: 00 до 18: 00.
07.01.26 - выходной
08.01.26 - 11.01.26 с 10: 00 до 18: 00.
С 12.01.26 - в стандартном режиме
Аккредитованные банки: Сбербанк, Альфа-Банк, ВТБ, Банк Уралсиб, РОССИЯ, Абсолют Банк, Металлинвестбанк, РНКБ, ПСБ, Кубань Кредит, Банк ВБРР, Россельхозбанк.
Позвоните и узнайте условия покупки прямо сейчас!
09.12.2025
7 573 500 ₽
Продается 2-комн. квартира, площадью 56.1 м2 в монолитно-кирпичной новостройке. Возможен вариант покупки с использованием ипотечных средств, есть рассрочка, возможна покупка с использованием материнского капитала, есть военная ипотека.
Жилая площадь 25.6 м2, кухня 16.1 м2, черновая отделка.
Квартира располагается на 13 этаже 16-этажного дома в ЖК Традиции.
Застройщик - ГК ССК, сдача дома - III квартал 2027 года, высота потолков 2.72 м.
Дом оборудован пассажирским лифтом. Обеспечение безопасности: видеонаблюдение, противопожарная система. Инфраструктура: детские площадки, спортивные площадки, места для отдыха, супермаркет, рестораны, фитнес-центр, пункты бытового обслуживания, коммерческие объекты.
В жилом комплексе «Традиции» вы найдёте всё, чтобы создать свой особенный уклад жизни. Возможно, именно здесь начнётся новая семейная традиция, которая станет дорогой сердцу на долгие годы.
В радиусе 5 минут ходьбы от комплекса уже функционируют школы и детские сады, а дорога в центр города занимает 15 минут.
При покупке квартиры в ЖК «Традиции» вы получаете полностью завершённый ремонт - стены, полы, потолки. Вам не нужно тратить время и силы на отделку.
Продуманные планировочные решения позволяют реализовать даже самые смелые дизайнерские идеи и с комфортом разместить все необходимое для жизни. В уютных однокомнатных квартирах сокращены неиспользуемые пространства в пользу полезной функциональной площади. Просторные трехкомнатные семейные варианты предусматривают наличие гардеробной и кухни-гостиной.
График работы ОП в новогодние праздники:
31.12.25 - 03.01.26 - выходной
04.01.26 - 06.01.26 с 10: 00 до 18: 00.
07.01.26 - выходной
08.01.26 - 11.01.26 с 10: 00 до 18: 00.
С 12.01.26 - в стандартном режиме
Аккредитованные банки: Сбербанк, Альфа-Банк, ВТБ, Банк Уралсиб, РОССИЯ, Абсолют Банк, Металлинвестбанк, РНКБ, ПСБ, Кубань Кредит, Банк ВБРР, Россельхозбанк.
Позвоните и узнайте условия покупки прямо сейчас!
02.12.2025
7 573 500 ₽
Продается 3-комн. квартира, площадью 55.4 кв.м.
Жилая площадь 44.32 м2, кухня 5.54 кв. м, ремонта нет.
Квартира располагается на 2 этаже 2-этажного кирпичного дома 1972 года постройки.
Кадастровый номер 23: 23: 0503018: 602. С подробной информацией вы можете ознакомиться на сайте ДОМ. РФ или по телефону.
Продажа залоговой недвижимости.
ДОМ. РФ - финансовый институт развития в жилищной сфере. К реализации представлена жилая недвижимость, которая поступила на баланс ДОМ. РФ в результате обращения взыскания на заложенное имущество. География лотов составляет более чем 75 регионов РФ.
13.11.2025
1 484 224 ₽
Продаются 2 комн. апартаменты, площадью 48.7 м2 в монолитной новостройке. Возможен вариант покупки с использованием ипотечных средств, есть рассрочка, возможна покупка с использованием материнского капитала, есть военная ипотека.
Жилая площадь 14.9 м2, кухня 13.3 м2, чистовая отделка с мебелью.
Квартира располагается на 2 этаже 9-этажного дома в ЖК Гостиничный комплекс Мореград.
Застройщик - ООО СЗ ГРАЖДАНСТРОЙАНАПА входит в состав ГК ССК, сдача дома - I квартал 2027 года.
Дом оборудован пассажирским лифтом, закрытая территория.
Подземная парковка, парковка охраняется. Обеспечение безопасности: видеонаблюдение, круглосуточная охрана, противопожарная система. Инфраструктура: детские площадки, спортивные площадки, места для отдыха, супермаркет, рестораны, пункты бытового обслуживания, коммерческие объекты.
Расположенный в живописном месте города-курорта Анапы, гостиничный комплекс «Мореград» предлагает идеальное сочетание уютной обстановки и удобного расположения. Всего в трех минутах ходьбы от тенистых зеленых аллей Пионерского проспекта, он станет идеальным выбором для отдыхающих, желающих насладиться близостью к морю.
Песчаные пляжи Черного моря, всего в 7 минутах ходьбы от комплекса, приглашают насладиться теплым солнцем и ласковыми волнами.
«Мореград» - уникальный современный гостиничный комплекс, где гостям будут доступны все удобства отельного сервиса. Коммерческие блоки и различные виды отдыха - рестораны, бары, магазины, лаунж-зоны, оборудованные спортивные и детские площадки и многое другое сделают отдых гостей незабываемым.
Набережная, море и комфорт в каждом метре - гостиничный комплекс «Мореград» в живописном городе-курорте Анапа представляет специальное предложение для тех, кто ценит выгодные решения. При оплате наличными вы получаете выгоду до 1 180 000 рублей, что делает приобретение недвижимости здесь особенно привлекательным. Расположенный всего в трёх минутах ходьбы от тенистых зелёных аллей Пионерского проспекта, комплекс сочетает уютную атмосферу и удобное расположение, идеально подходя для отдыха и постоянного проживания. Наслаждайтесь близостью к морю, высоким уровнем комфорта и перспективной инвестицией в будущее уже сегодня.
График работы ОП в новогодние праздники:
31.12.25 - 03.01.26 - выходной
04.01.26 - 06.01.26 с 10: 00 до 18: 00.
07.01.26 - выходной
08.01.26 - 11.01.26 с 10: 00 до 18: 00.
С 12.01.26 - в стандартном режиме
Позвоните и узнайте условия покупки прямо сейчас!
06.12.2025
13 636 000 ₽
Продаются 2 комн. апартаменты, площадью 48.7 м2 в монолитной новостройке. Возможен вариант покупки с использованием ипотечных средств, есть рассрочка, возможна покупка с использованием материнского капитала, есть военная ипотека.
Жилая площадь 14.9 м2, кухня 13.3 м2, чистовая отделка с мебелью.
Квартира располагается на 2 этаже 9-этажного дома в ЖК Гостиничный комплекс Мореград.
Застройщик - ООО СЗ ГРАЖДАНСТРОЙАНАПА входит в состав ГК ССК, сдача дома - I квартал 2027 года.
Дом оборудован пассажирским лифтом, закрытая территория.
Подземная парковка, парковка охраняется. Обеспечение безопасности: видеонаблюдение, круглосуточная охрана, противопожарная система. Инфраструктура: детские площадки, спортивные площадки, места для отдыха, супермаркет, рестораны, пункты бытового обслуживания, коммерческие объекты.
Расположенный в живописном месте города-курорта Анапы, гостиничный комплекс «Мореград» предлагает идеальное сочетание уютной обстановки и удобного расположения. Всего в трех минутах ходьбы от тенистых зеленых аллей Пионерского проспекта, он станет идеальным выбором для отдыхающих, желающих насладиться близостью к морю.
Песчаные пляжи Черного моря, всего в 7 минутах ходьбы от комплекса, приглашают насладиться теплым солнцем и ласковыми волнами.
«Мореград» - уникальный современный гостиничный комплекс, где гостям будут доступны все удобства отельного сервиса. Коммерческие блоки и различные виды отдыха - рестораны, бары, магазины, лаунж-зоны, оборудованные спортивные и детские площадки и многое другое сделают отдых гостей незабываемым.
Набережная, море и комфорт в каждом метре - гостиничный комплекс «Мореград» в живописном городе-курорте Анапа представляет специальное предложение для тех, кто ценит выгодные решения. При оплате наличными вы получаете выгоду до 1 180 000 рублей, что делает приобретение недвижимости здесь особенно привлекательным. Расположенный всего в трёх минутах ходьбы от тенистых зелёных аллей Пионерского проспекта, комплекс сочетает уютную атмосферу и удобное расположение, идеально подходя для отдыха и постоянного проживания. Наслаждайтесь близостью к морю, высоким уровнем комфорта и перспективной инвестицией в будущее уже сегодня.
График работы ОП в новогодние праздники:
31.12.25 - 03.01.26 - выходной
04.01.26 - 06.01.26 с 10: 00 до 18: 00.
07.01.26 - выходной
08.01.26 - 11.01.26 с 10: 00 до 18: 00.
С 12.01.26 - в стандартном режиме
Позвоните и узнайте условия покупки прямо сейчас!
06.12.2025
13 636 000 ₽
Продается 2-комн. квартира, площадью 66.42 м2 в монолитно-кирпичной новостройке. Возможен вариант покупки с использованием ипотечных средств, есть рассрочка, возможна покупка с использованием материнского капитала, есть военная ипотека.
Жилая площадь 29.43 м2, кухня 9.96 м2, предчистовая отделка.
Квартира располагается на 4 этаже 19-этажного дома в ЖК Лучший.
Застройщик - ГК ССК, сдача дома - IV квартал 2025 года, высота потолков 2.9 м.
Дом оборудован пассажирским лифтом, закрытая территория, парковка охраняется. Обеспечение безопасности: видеонаблюдение, противопожарная система. Инфраструктура: детские площадки, спортивные площадки, места для отдыха, супермаркет, рестораны, фитнес-центр, пункты бытового обслуживания, коммерческие объекты.
Дома сданы раньше сроков, ключи в момент сделки!
Жилой квартал «Лучший» - единая экосистема домов, в которой соблюдаются стандарты максимального качества, экологичности, богатства инфраструктуры, безопасного, живописного и престижного окружения и транспортной доступности. Организация уличного пространства и формирование благоприятной, эстетически привлекательной среды за порогом жилья является важным этапом строительства. Ландшафтный дизайн жилого квартала «Лучший» включает в себя не только озеленение двора, но и создание его внутренней инфраструктуры.
График работы ОП в новогодние праздники:
31.12.25 - 03.01.26 - выходной
04.01.26 - 06.01.26 с 10: 00 до 18: 00.
07.01.26 - выходной
08.01.26 - 11.01.26 с 10: 00 до 18: 00.
С 12.01.26 - в стандартном режиме
Два 24-этажных литера, выполненных по надежной технологии монолит-кирпич.
Компания ССК выражает благодарность тем, кто ежедневно вкладывает силы в развитие страны и заботится о её будущем. В рамках программы «Доступное жильё» предусмотрена скидка 3% от стоимости приобретаемой квартиры для врачей и медицинского персонала, учителей и преподавателей школ и вузов, участников специальной военной операции, военнослужащих, моряков (Калининград) , а также молодых семей с детьми.
Мы ценим ваш вклад и стремимся сделать новое, комфортное жильё с современной отделкой и продуманной планировкой ещё более доступным для вас.
Аккредитованные банки: Сбербанк, Альфа-Банк, ВТБ, Банк Уралсиб, РОССИЯ, Абсолют Банк, Металлинвестбанк, РНКБ, ПСБ, Кубань Кредит, Банк ВБРР, Россельхозбанк.
Позвоните и узнайте условия покупки прямо сейчас!
02.12.2025
8 966 700 ₽
Продается 2-комн. квартира, площадью 65.8 м2 в монолитно-кирпичной новостройке. Возможен вариант покупки с использованием ипотечных средств, есть рассрочка, возможна покупка с использованием материнского капитала, есть военная ипотека.
Жилая площадь 29.43 м2, кухня 9.87 м2, предчистовая отделка.
Квартира располагается на 2 этаже 19-этажного дома в ЖК Лучший.
Застройщик - ГК ССК, сдача дома - IV квартал 2025 года, высота потолков 2.9 м.
Дом оборудован пассажирским лифтом, закрытая территория, парковка охраняется. Обеспечение безопасности: видеонаблюдение, противопожарная система. Инфраструктура: детские площадки, спортивные площадки, места для отдыха, супермаркет, рестораны, фитнес-центр, пункты бытового обслуживания, коммерческие объекты.
Дома сданы раньше сроков, ключи в момент сделки!
Жилой квартал «Лучший» - единая экосистема домов, в которой соблюдаются стандарты максимального качества, экологичности, богатства инфраструктуры, безопасного, живописного и престижного окружения и транспортной доступности. Организация уличного пространства и формирование благоприятной, эстетически привлекательной среды за порогом жилья является важным этапом строительства. Ландшафтный дизайн жилого квартала «Лучший» включает в себя не только озеленение двора, но и создание его внутренней инфраструктуры.
График работы ОП в новогодние праздники:
31.12.25 - 03.01.26 - выходной
04.01.26 - 06.01.26 с 10: 00 до 18: 00.
07.01.26 - выходной
08.01.26 - 11.01.26 с 10: 00 до 18: 00.
С 12.01.26 - в стандартном режиме
Два 24-этажных литера, выполненных по надежной технологии монолит-кирпич.
Компания ССК выражает благодарность тем, кто ежедневно вкладывает силы в развитие страны и заботится о её будущем. В рамках программы «Доступное жильё» предусмотрена скидка 3% от стоимости приобретаемой квартиры для врачей и медицинского персонала, учителей и преподавателей школ и вузов, участников специальной военной операции, военнослужащих, моряков (Калининград) , а также молодых семей с детьми.
Мы ценим ваш вклад и стремимся сделать новое, комфортное жильё с современной отделкой и продуманной планировкой ещё более доступным для вас.
Аккредитованные банки: Сбербанк, Альфа-Банк, ВТБ, Банк Уралсиб, РОССИЯ, Абсолют Банк, Металлинвестбанк, РНКБ, ПСБ, Кубань Кредит, Банк ВБРР, Россельхозбанк.
Позвоните и узнайте условия покупки прямо сейчас!
02.12.2025
8 883 000 ₽
Продается 2-комн. квартира, площадью 65.27 м2 в монолитно-кирпичной новостройке. Возможен вариант покупки с использованием ипотечных средств, есть рассрочка, возможна покупка с использованием материнского капитала, есть военная ипотека.
Жилая площадь 36.3 м2, кухня 6.02 м2, предчистовая отделка.
Квартира располагается на 6 этаже 18-этажного дома в ЖК Фонтаны.
Застройщик - ГК ССК, сдача дома - IV квартал 2026 года, высота потолков 2.82 м.
Дом оборудован пассажирским лифтом, закрытая территория.
Отдельная многоуровневая парковка, парковка охраняется. Обеспечение безопасности: видеонаблюдение, противопожарная система. Инфраструктура: детский сад, детские площадки, спортивные площадки, места для отдыха, супермаркет, рестораны, фитнес-центр, пункты бытового обслуживания, коммерческие объекты.
Жилой комплекс «Фонтаны» - дом клубного типа. Преимущество заключается в продуманном ландшафте дворов, круглосуточно охраняемой территории, системе видеонаблюдения во дворе. Также для удобства жителей проведен Wi-Fi во дворе, оборудованы безопасные и современные детские площадки, зоны отдыха.
«Фонтаны» - уникальный, неповторимый жилой комплекс, воплощающий оригинальные и креативные решения дизайнеров и архитекторов. Дома округлой форме - это придает им легкости, несмотря на массивность постройки.
ЖК «Фонтаны» расположен в микрорайоне Черёмушки. Отличная транспортная развязка позволяет быстро и с комфортом добраться до центра, а большое количество зеленых насаждений и парков дает возможность гулять с детьми и наслаждаться прекрасным видом на Кубань.
Программа «Доступное жилье» - скидка 3% для тех, кто строит будущее!
В рамках программы «Доступное жилье» предусмотрена скидка 3% от стоимости квартиры для:
врачей и медицинского персонала,
учителей и преподавателей школ и вузов,
участников СВО и военнослужащих,
моряков (для жителей Калининграда) ,
молодых семей с детьми.
Это наш вклад в поддержку тех, кто каждый день заботится о других, растит новое поколение, защищает страну или строит свою семью.
График работы ОП в новогодние праздники:
31.12.25 - 03.01.26 - выходной
04.01.26 - 06.01.26 с 10: 00 до 18: 00.
07.01.26 - выходной
08.01.26 - 11.01.26 с 10: 00 до 18: 00.
С 12.01.26 - в стандартном режиме
Аккредитованные банки: Сбербанк, Альфа-Банк, ВТБ, Банк Уралсиб, РОССИЯ, Абсолют Банк, Металлинвестбанк, РНКБ, ПСБ, Кубань Кредит, Банк ВБРР, Россельхозбанк.
Позвоните и узнайте условия покупки прямо сейчас!
17.12.2025
10 116 850 ₽
Продается 2-комн. квартира, площадью 55.86 м2 в монолитно-кирпичной новостройке. Возможен вариант покупки с использованием ипотечных средств, есть рассрочка, возможна покупка с использованием материнского капитала, есть военная ипотека.
Жилая площадь 24.79 м2, кухня 17.2 м2, предчистовая отделка.
Квартира располагается на 10 этаже 18-этажного дома в ЖК Фонтаны.
Застройщик - ГК ССК, сдача дома - IV квартал 2026 года, высота потолков 2.82 м.
Дом оборудован пассажирским лифтом, закрытая территория.
Отдельная многоуровневая парковка, парковка охраняется. Обеспечение безопасности: видеонаблюдение, противопожарная система. Инфраструктура: детский сад, детские площадки, спортивные площадки, места для отдыха, супермаркет, рестораны, фитнес-центр, пункты бытового обслуживания, коммерческие объекты.
Жилой комплекс «Фонтаны» - дом клубного типа. Преимущество заключается в продуманном ландшафте дворов, круглосуточно охраняемой территории, системе видеонаблюдения во дворе. Также для удобства жителей проведен Wi-Fi во дворе, оборудованы безопасные и современные детские площадки, зоны отдыха.
«Фонтаны» - уникальный, неповторимый жилой комплекс, воплощающий оригинальные и креативные решения дизайнеров и архитекторов. Дома округлой форме - это придает им легкости, несмотря на массивность постройки.
ЖК «Фонтаны» расположен в микрорайоне Черёмушки. Отличная транспортная развязка позволяет быстро и с комфортом добраться до центра, а большое количество зеленых насаждений и парков дает возможность гулять с детьми и наслаждаться прекрасным видом на Кубань.
Программа «Доступное жилье» - скидка 3% для тех, кто строит будущее!
В рамках программы «Доступное жилье» предусмотрена скидка 3% от стоимости квартиры для:
врачей и медицинского персонала,
учителей и преподавателей школ и вузов,
участников СВО и военнослужащих,
моряков (для жителей Калининграда) ,
молодых семей с детьми.
Это наш вклад в поддержку тех, кто каждый день заботится о других, растит новое поколение, защищает страну или строит свою семью.
График работы ОП в новогодние праздники:
31.12.25 - 03.01.26 - выходной
04.01.26 - 06.01.26 с 10: 00 до 18: 00.
07.01.26 - выходной
08.01.26 - 11.01.26 с 10: 00 до 18: 00.
С 12.01.26 - в стандартном режиме
Аккредитованные банки: Сбербанк, Альфа-Банк, ВТБ, Банк Уралсиб, РОССИЯ, Абсолют Банк, Металлинвестбанк, РНКБ, ПСБ, Кубань Кредит, Банк ВБРР, Россельхозбанк.
Позвоните и узнайте условия покупки прямо сейчас!
17.12.2025
10 892 700 ₽
Продается 2-комн. квартира, площадью 63.55 м2 в монолитной новостройке. Возможен вариант покупки с использованием ипотечных средств, есть рассрочка, возможна покупка с использованием материнского капитала, есть военная ипотека.
Жилая площадь 35.05 м2, кухня 13.09 м2, предчистовая отделка.
Квартира располагается на 3 этаже 23-этажного дома в ЖК Сердце.
Застройщик - ГК ССК, сдача дома - I квартал 2025 года, дом уже сдан, высота потолков 2.7 м.
Дом оборудован пассажирским лифтом, закрытая территория, парковка охраняется. Обеспечение безопасности: видеонаблюдение, противопожарная система. Инфраструктура: детские площадки, спортивные площадки, места для отдыха, супермаркет, рестораны, фитнес-центр, пункты бытового обслуживания, коммерческие объекты.
ЖК «Сердце» - это премиальный комплекс, расположенный в одном из самых престижных районов Краснодара, всего в нескольких минутах от исторического и делового центра города.
Дом выполнен в стиле неоклассицизма. Высокий архитектурный стиль жилого комплекса внутри - это роскошные планировки для любой семьи: от студий до больших пятикомнатных квартир. Высокие потолки и панорамные окна - в вашем доме будет красиво, светло, просторно.
Всего в 7 минутах езды находится один из самых красивых стадионов Европы и прилегающий к нему великолепный парк «Краснодар», который стал настоящей гордостью города.
В рамках специального предложения доступны всего 20 квартир на особых условиях. ЖК «Сердце» расположен вблизи исторического и делового центра, сочетая городское удобство и атмосферу уюта. Фасады из натурального камня и высококачественных материалов подчёркивают статус комплекса, а закрытая территория с круглосуточной охраной обеспечивает безопасность. Уникальное озеленение, продуманные зоны отдыха и гармоничный ландшафтный дизайн создают атмосферу уединения в сердце города.
График работы ОП в новогодние праздники:
31.12.25 - 03.01.26 - выходной
04.01.26 - 06.01.26 с 10: 00 до 18: 00.
07.01.26 - выходной
08.01.26 - 11.01.26 с 10: 00 до 18: 00.
С 12.01.26 - в стандартном режиме
Аккредитованные банки: Сбербанк, Альфа-Банк, ВТБ, Банк Уралсиб, РОССИЯ, Абсолют Банк, Металлинвестбанк, РНКБ, ПСБ, Кубань Кредит, Банк ВБРР, Россельхозбанк.
Позвоните и узнайте условия покупки прямо сейчас!
09.12.2025
25 737 750 ₽
Продается 2-комн. квартира, площадью 63.7 м2 в монолитной новостройке. Возможен вариант покупки с использованием ипотечных средств, есть рассрочка, возможна покупка с использованием материнского капитала, есть военная ипотека.
Жилая площадь 32.26 м2, кухня 13.72 м2, предчистовая отделка.
Квартира располагается на 4 этаже 23-этажного дома в ЖК Сердце.
Застройщик - ГК ССК, сдача дома - I квартал 2025 года, дом уже сдан, высота потолков 2.7 м.
Дом оборудован пассажирским лифтом, закрытая территория, парковка охраняется. Обеспечение безопасности: видеонаблюдение, противопожарная система. Инфраструктура: детские площадки, спортивные площадки, места для отдыха, супермаркет, рестораны, фитнес-центр, пункты бытового обслуживания, коммерческие объекты.
ЖК «Сердце» - это премиальный комплекс, расположенный в одном из самых престижных районов Краснодара, всего в нескольких минутах от исторического и делового центра города.
Дом выполнен в стиле неоклассицизма. Высокий архитектурный стиль жилого комплекса внутри - это роскошные планировки для любой семьи: от студий до больших пятикомнатных квартир. Высокие потолки и панорамные окна - в вашем доме будет красиво, светло, просторно.
Всего в 7 минутах езды находится один из самых красивых стадионов Европы и прилегающий к нему великолепный парк «Краснодар», который стал настоящей гордостью города.
В рамках специального предложения доступны всего 20 квартир на особых условиях. ЖК «Сердце» расположен вблизи исторического и делового центра, сочетая городское удобство и атмосферу уюта. Фасады из натурального камня и высококачественных материалов подчёркивают статус комплекса, а закрытая территория с круглосуточной охраной обеспечивает безопасность. Уникальное озеленение, продуманные зоны отдыха и гармоничный ландшафтный дизайн создают атмосферу уединения в сердце города.
График работы ОП в новогодние праздники:
31.12.25 - 03.01.26 - выходной
04.01.26 - 06.01.26 с 10: 00 до 18: 00.
07.01.26 - выходной
08.01.26 - 11.01.26 с 10: 00 до 18: 00.
С 12.01.26 - в стандартном режиме
Аккредитованные банки: Сбербанк, Альфа-Банк, ВТБ, Банк Уралсиб, РОССИЯ, Абсолют Банк, Металлинвестбанк, РНКБ, ПСБ, Кубань Кредит, Банк ВБРР, Россельхозбанк.
Позвоните и узнайте условия покупки прямо сейчас!
09.12.2025
25 798 500 ₽
Продается 2-комн. квартира, площадью 62.25 м2 в монолитной новостройке. Возможен вариант покупки с использованием ипотечных средств, есть рассрочка, возможна покупка с использованием материнского капитала, есть военная ипотека.
Жилая площадь 35.05 м2, кухня 12.41 м2, предчистовая отделка.
Квартира располагается на 4 этаже 23-этажного дома в ЖК Сердце.
Застройщик - ГК ССК, сдача дома - I квартал 2025 года, дом уже сдан, высота потолков 2.7 м.
Дом оборудован пассажирским лифтом, закрытая территория, парковка охраняется. Обеспечение безопасности: видеонаблюдение, противопожарная система. Инфраструктура: детские площадки, спортивные площадки, места для отдыха, супермаркет, рестораны, фитнес-центр, пункты бытового обслуживания, коммерческие объекты.
ЖК «Сердце» - это премиальный комплекс, расположенный в одном из самых престижных районов Краснодара, всего в нескольких минутах от исторического и делового центра города.
Дом выполнен в стиле неоклассицизма. Высокий архитектурный стиль жилого комплекса внутри - это роскошные планировки для любой семьи: от студий до больших пятикомнатных квартир. Высокие потолки и панорамные окна - в вашем доме будет красиво, светло, просторно.
Всего в 7 минутах езды находится один из самых красивых стадионов Европы и прилегающий к нему великолепный парк «Краснодар», который стал настоящей гордостью города.
В рамках специального предложения доступны всего 20 квартир на особых условиях. ЖК «Сердце» расположен вблизи исторического и делового центра, сочетая городское удобство и атмосферу уюта. Фасады из натурального камня и высококачественных материалов подчёркивают статус комплекса, а закрытая территория с круглосуточной охраной обеспечивает безопасность. Уникальное озеленение, продуманные зоны отдыха и гармоничный ландшафтный дизайн создают атмосферу уединения в сердце города.
График работы ОП в новогодние праздники:
31.12.25 - 03.01.26 - выходной
04.01.26 - 06.01.26 с 10: 00 до 18: 00.
07.01.26 - выходной
08.01.26 - 11.01.26 с 10: 00 до 18: 00.
С 12.01.26 - в стандартном режиме
Аккредитованные банки: Сбербанк, Альфа-Банк, ВТБ, Банк Уралсиб, РОССИЯ, Абсолют Банк, Металлинвестбанк, РНКБ, ПСБ, Кубань Кредит, Банк ВБРР, Россельхозбанк.
Позвоните и узнайте условия покупки прямо сейчас!
09.12.2025
25 211 250 ₽
Продается 2-комн. квартира, площадью 62.25 м2 в монолитной новостройке. Возможен вариант покупки с использованием ипотечных средств, есть рассрочка, возможна покупка с использованием материнского капитала, есть военная ипотека.
Жилая площадь 35.05 м2, кухня 12.41 м2, предчистовая отделка.
Квартира располагается на 6 этаже 23-этажного дома в ЖК Сердце.
Застройщик - ГК ССК, сдача дома - I квартал 2025 года, дом уже сдан, высота потолков 2.7 м.
Дом оборудован пассажирским лифтом, закрытая территория, парковка охраняется. Обеспечение безопасности: видеонаблюдение, противопожарная система. Инфраструктура: детские площадки, спортивные площадки, места для отдыха, супермаркет, рестораны, фитнес-центр, пункты бытового обслуживания, коммерческие объекты.
ЖК «Сердце» - это премиальный комплекс, расположенный в одном из самых престижных районов Краснодара, всего в нескольких минутах от исторического и делового центра города.
Дом выполнен в стиле неоклассицизма. Высокий архитектурный стиль жилого комплекса внутри - это роскошные планировки для любой семьи: от студий до больших пятикомнатных квартир. Высокие потолки и панорамные окна - в вашем доме будет красиво, светло, просторно.
Всего в 7 минутах езды находится один из самых красивых стадионов Европы и прилегающий к нему великолепный парк «Краснодар», который стал настоящей гордостью города.
В рамках специального предложения доступны всего 20 квартир на особых условиях. ЖК «Сердце» расположен вблизи исторического и делового центра, сочетая городское удобство и атмосферу уюта. Фасады из натурального камня и высококачественных материалов подчёркивают статус комплекса, а закрытая территория с круглосуточной охраной обеспечивает безопасность. Уникальное озеленение, продуманные зоны отдыха и гармоничный ландшафтный дизайн создают атмосферу уединения в сердце города.
График работы ОП в новогодние праздники:
31.12.25 - 03.01.26 - выходной
04.01.26 - 06.01.26 с 10: 00 до 18: 00.
07.01.26 - выходной
08.01.26 - 11.01.26 с 10: 00 до 18: 00.
С 12.01.26 - в стандартном режиме
Аккредитованные банки: Сбербанк, Альфа-Банк, ВТБ, Банк Уралсиб, РОССИЯ, Абсолют Банк, Металлинвестбанк, РНКБ, ПСБ, Кубань Кредит, Банк ВБРР, Россельхозбанк.
Позвоните и узнайте условия покупки прямо сейчас!
09.12.2025
25 211 250 ₽
Продается студия, площадью 29.85 м2 в монолитной новостройке. Возможен вариант покупки с использованием ипотечных средств, есть рассрочка, возможна покупка с использованием материнского капитала, есть военная ипотека.
Жилая площадь 21.72 м2, предчистовая отделка, комнаты смежные.
Квартира располагается на 6 этаже 23-этажного дома в ЖК Сердце.
Застройщик - ГК ССК, сдача дома - I квартал 2025 года, дом уже сдан, высота потолков 2.7 м.
Дом оборудован пассажирским лифтом, закрытая территория, парковка охраняется. Обеспечение безопасности: видеонаблюдение, противопожарная система. Инфраструктура: детские площадки, спортивные площадки, места для отдыха, супермаркет, рестораны, фитнес-центр, пункты бытового обслуживания, коммерческие объекты.
ЖК «Сердце» - это премиальный комплекс, расположенный в одном из самых престижных районов Краснодара, всего в нескольких минутах от исторического и делового центра города.
Дом выполнен в стиле неоклассицизма. Высокий архитектурный стиль жилого комплекса внутри - это роскошные планировки для любой семьи: от студий до больших пятикомнатных квартир. Высокие потолки и панорамные окна - в вашем доме будет красиво, светло, просторно.
Всего в 7 минутах езды находится один из самых красивых стадионов Европы и прилегающий к нему великолепный парк «Краснодар», который стал настоящей гордостью города.
В рамках специального предложения доступны всего 20 квартир на особых условиях. ЖК «Сердце» расположен вблизи исторического и делового центра, сочетая городское удобство и атмосферу уюта. Фасады из натурального камня и высококачественных материалов подчёркивают статус комплекса, а закрытая территория с круглосуточной охраной обеспечивает безопасность. Уникальное озеленение, продуманные зоны отдыха и гармоничный ландшафтный дизайн создают атмосферу уединения в сердце города.
График работы ОП в новогодние праздники:
31.12.25 - 03.01.26 - выходной
04.01.26 - 06.01.26 с 10: 00 до 18: 00.
07.01.26 - выходной
08.01.26 - 11.01.26 с 10: 00 до 18: 00.
С 12.01.26 - в стандартном режиме
Аккредитованные банки: Сбербанк, Альфа-Банк, ВТБ, Банк Уралсиб, РОССИЯ, Абсолют Банк, Металлинвестбанк, РНКБ, ПСБ, Кубань Кредит, Банк ВБРР, Россельхозбанк.
Позвоните и узнайте условия покупки прямо сейчас!
09.12.2025
12 686 250 ₽
Продается студия, площадью 29.85 м2 в монолитной новостройке. Возможен вариант покупки с использованием ипотечных средств, есть рассрочка, возможна покупка с использованием материнского капитала, есть военная ипотека.
Жилая площадь 21.72 м2, предчистовая отделка, комнаты смежные.
Квартира располагается на 5 этаже 23-этажного дома в ЖК Сердце.
Застройщик - ГК ССК, сдача дома - I квартал 2025 года, дом уже сдан, высота потолков 2.7 м.
Дом оборудован пассажирским лифтом, закрытая территория, парковка охраняется. Обеспечение безопасности: видеонаблюдение, противопожарная система. Инфраструктура: детские площадки, спортивные площадки, места для отдыха, супермаркет, рестораны, фитнес-центр, пункты бытового обслуживания, коммерческие объекты.
ЖК «Сердце» - это премиальный комплекс, расположенный в одном из самых престижных районов Краснодара, всего в нескольких минутах от исторического и делового центра города.
Дом выполнен в стиле неоклассицизма. Высокий архитектурный стиль жилого комплекса внутри - это роскошные планировки для любой семьи: от студий до больших пятикомнатных квартир. Высокие потолки и панорамные окна - в вашем доме будет красиво, светло, просторно.
Всего в 7 минутах езды находится один из самых красивых стадионов Европы и прилегающий к нему великолепный парк «Краснодар», который стал настоящей гордостью города.
В рамках специального предложения доступны всего 20 квартир на особых условиях. ЖК «Сердце» расположен вблизи исторического и делового центра, сочетая городское удобство и атмосферу уюта. Фасады из натурального камня и высококачественных материалов подчёркивают статус комплекса, а закрытая территория с круглосуточной охраной обеспечивает безопасность. Уникальное озеленение, продуманные зоны отдыха и гармоничный ландшафтный дизайн создают атмосферу уединения в сердце города.
График работы ОП в новогодние праздники:
31.12.25 - 03.01.26 - выходной
04.01.26 - 06.01.26 с 10: 00 до 18: 00.
07.01.26 - выходной
08.01.26 - 11.01.26 с 10: 00 до 18: 00.
С 12.01.26 - в стандартном режиме
Аккредитованные банки: Сбербанк, Альфа-Банк, ВТБ, Банк Уралсиб, РОССИЯ, Абсолют Банк, Металлинвестбанк, РНКБ, ПСБ, Кубань Кредит, Банк ВБРР, Россельхозбанк.
Позвоните и узнайте условия покупки прямо сейчас!
09.12.2025
12 686 250 ₽
Продается студия, площадью 29.75 м2 в монолитной новостройке. Возможен вариант покупки с использованием ипотечных средств, есть рассрочка, возможна покупка с использованием материнского капитала, есть военная ипотека.
Жилая площадь 21.72 м2, предчистовая отделка, комнаты смежные.
Квартира располагается на 4 этаже 23-этажного дома в ЖК Сердце.
Застройщик - ГК ССК, сдача дома - I квартал 2025 года, дом уже сдан, высота потолков 2.7 м.
Дом оборудован пассажирским лифтом, закрытая территория, парковка охраняется. Обеспечение безопасности: видеонаблюдение, противопожарная система. Инфраструктура: детские площадки, спортивные площадки, места для отдыха, супермаркет, рестораны, фитнес-центр, пункты бытового обслуживания, коммерческие объекты.
ЖК «Сердце» - это премиальный комплекс, расположенный в одном из самых престижных районов Краснодара, всего в нескольких минутах от исторического и делового центра города.
Дом выполнен в стиле неоклассицизма. Высокий архитектурный стиль жилого комплекса внутри - это роскошные планировки для любой семьи: от студий до больших пятикомнатных квартир. Высокие потолки и панорамные окна - в вашем доме будет красиво, светло, просторно.
Всего в 7 минутах езды находится один из самых красивых стадионов Европы и прилегающий к нему великолепный парк «Краснодар», который стал настоящей гордостью города.
В рамках специального предложения доступны всего 20 квартир на особых условиях. ЖК «Сердце» расположен вблизи исторического и делового центра, сочетая городское удобство и атмосферу уюта. Фасады из натурального камня и высококачественных материалов подчёркивают статус комплекса, а закрытая территория с круглосуточной охраной обеспечивает безопасность. Уникальное озеленение, продуманные зоны отдыха и гармоничный ландшафтный дизайн создают атмосферу уединения в сердце города.
График работы ОП в новогодние праздники:
31.12.25 - 03.01.26 - выходной
04.01.26 - 06.01.26 с 10: 00 до 18: 00.
07.01.26 - выходной
08.01.26 - 11.01.26 с 10: 00 до 18: 00.
С 12.01.26 - в стандартном режиме
Аккредитованные банки: Сбербанк, Альфа-Банк, ВТБ, Банк Уралсиб, РОССИЯ, Абсолют Банк, Металлинвестбанк, РНКБ, ПСБ, Кубань Кредит, Банк ВБРР, Россельхозбанк.
Позвоните и узнайте условия покупки прямо сейчас!
09.12.2025
12 643 750 ₽
Продается студия, площадью 29.75 м2 в монолитной новостройке. Возможен вариант покупки с использованием ипотечных средств, есть рассрочка, возможна покупка с использованием материнского капитала, есть военная ипотека.
Жилая площадь 21.72 м2, предчистовая отделка, комнаты смежные.
Квартира располагается на 5 этаже 23-этажного дома в ЖК Сердце.
Застройщик - ГК ССК, сдача дома - I квартал 2025 года, дом уже сдан, высота потолков 2.7 м.
Дом оборудован пассажирским лифтом, закрытая территория, парковка охраняется. Обеспечение безопасности: видеонаблюдение, противопожарная система. Инфраструктура: детские площадки, спортивные площадки, места для отдыха, супермаркет, рестораны, фитнес-центр, пункты бытового обслуживания, коммерческие объекты.
ЖК «Сердце» - это премиальный комплекс, расположенный в одном из самых престижных районов Краснодара, всего в нескольких минутах от исторического и делового центра города.
Дом выполнен в стиле неоклассицизма. Высокий архитектурный стиль жилого комплекса внутри - это роскошные планировки для любой семьи: от студий до больших пятикомнатных квартир. Высокие потолки и панорамные окна - в вашем доме будет красиво, светло, просторно.
Всего в 7 минутах езды находится один из самых красивых стадионов Европы и прилегающий к нему великолепный парк «Краснодар», который стал настоящей гордостью города.
В рамках специального предложения доступны всего 20 квартир на особых условиях. ЖК «Сердце» расположен вблизи исторического и делового центра, сочетая городское удобство и атмосферу уюта. Фасады из натурального камня и высококачественных материалов подчёркивают статус комплекса, а закрытая территория с круглосуточной охраной обеспечивает безопасность. Уникальное озеленение, продуманные зоны отдыха и гармоничный ландшафтный дизайн создают атмосферу уединения в сердце города.
График работы ОП в новогодние праздники:
31.12.25 - 03.01.26 - выходной
04.01.26 - 06.01.26 с 10: 00 до 18: 00.
07.01.26 - выходной
08.01.26 - 11.01.26 с 10: 00 до 18: 00.
С 12.01.26 - в стандартном режиме
Аккредитованные банки: Сбербанк, Альфа-Банк, ВТБ, Банк Уралсиб, РОССИЯ, Абсолют Банк, Металлинвестбанк, РНКБ, ПСБ, Кубань Кредит, Банк ВБРР, Россельхозбанк.
Позвоните и узнайте условия покупки прямо сейчас!
09.12.2025
12 643 750 ₽




















